Property
Account |
| Property ID: | 21955 | Abbreviated Legal Description: | S23 T29 R1W TAX 17 LESS R/W |
| Parcel # / Geo ID: | 901231002 | Agent Code: | |
| Type: | Real | | |
| Tax Area: | 0211 - 1-49F1E1H2L1 | Land Use Code | 81 |
| Open Space: | N | DFL | N |
| Historic Property: | N | Remodel Property: | N |
| Multi-Family Redevelopment: | N | | |
| Township: | 29N | Section: | 23 |
| Range: | 1W |
Location |
| Address: | 300 TORKELSON RD CHIMACUM, WA 98325 | Mapsco: | 216/026 |
| Neighborhood: | S21, 22,& 23 T29N R1W; MCNEIL PARK; STEWARTS GRDN; FAWN MDOW | Map ID: | |
| Neighborhood CD: | 4270 |
Owner |
| Name: | KENNETH & JOAN KESSLER | Owner ID: | 96826 |
| Mailing Address: | 601 E 26TH ST TACOMA, WA 98421-2007 | % Ownership: | 100.0000000000% |
| | | Exemptions: | |
Pay Tax Due
There is currently No Amount Due on this property.
Taxes and Assessment Details
Property Tax Information as of
03/12/2026
Click on "Statement Details" to expand or collapse a tax statement.
* Please enter a valid date ** Please enter a valid date *
Statement Details |
| | TOTAL: | $0.00 | $0.00 | $0.00 | $0.00 | $0.00 | $0.00 |
|
| | $0.00 | $0.00 | $0.00 | $0.00 | $0.00 | $0.00 |
Values
| (+) Improvement Homesite Value: | + | $0 | |
| (+) Improvement Non-Homesite Value: | + | $695,854 | |
| (+) Land Homesite Value: | + | $0 | |
| (+) Land Non-Homesite Value: | + | $201,080 | |
| (+) Curr Use (HS): | + | $0 | $0 |
| (+) Curr Use (NHS): | + | $0 | $0 |
| | | -------------------------- | |
| (=) Market Value: | = | $896,934 | |
| (–) Productivity Loss: | – | $0 | |
| | | -------------------------- | |
| (=) Subtotal: | = | $896,934 | |
| (+) Senior Appraised Value: | + | $0 | |
| (+) Non-Senior Appraised Value: | + | $896,934 | |
| | | -------------------------- | |
| (=) Total Appraised Value: | = | $896,934 | |
| (–) Senior Exemption Loss: | – | $0 | |
| (–) Exemption Loss: | – | $0 | |
| | | -------------------------- | |
| (=) Taxable Value: | = | $896,934 | |
Taxing Jurisdiction
| Owner: | KENNETH & JOAN KESSLER | | |
| % Ownership: | 100.0000000000% | | |
| Total Value: | N/A | | |
| Tax Area: | 0211 - 1-49F1E1H2L1 |
| CE | COUNTY CURRENT EXPENSE | N/A | N/A | N/A | N/A | | |
| CNTYDD | DEVELOPMENTAL DISABILITIES | N/A | N/A | N/A | N/A | | |
| CNTYVET | VETERANS RELIEF | N/A | N/A | N/A | N/A | | |
| MENTAL | MENTAL HEALTH | N/A | N/A | N/A | N/A | | |
| ROADS | COUNTY ROADS | N/A | N/A | N/A | N/A | | |
| HOSP2CASH | HOSP DIST #2 GENERAL | N/A | N/A | N/A | N/A | | |
| SCH49CP | SCHOOL DIST #49 CAP PROJ | N/A | N/A | N/A | N/A | | |
| SCH49MO | SCHOOL DIST #49 EP & O | N/A | N/A | N/A | N/A | | |
| CONSERVE | CONSERVATION FUTURES | N/A | N/A | N/A | N/A | | |
| EMS1 | FIRE DIST #1 EMS | N/A | N/A | N/A | N/A | | |
| FD1 | FIRE DIST #1 GENERAL | N/A | N/A | N/A | N/A | | |
| LIB1 | LIBRARY DIST #1 GENERAL | N/A | N/A | N/A | N/A | | |
| PORTPT | PORT OF PT GENERAL | N/A | N/A | N/A | N/A | | |
| PORTPTIDD | PORT OF PT IDD 2019 | N/A | N/A | N/A | N/A | | |
| PUD1 | PUD #1 GENERAL | N/A | N/A | N/A | N/A | | |
| STATE | STATE SCHOOL PART 1 | N/A | N/A | N/A | N/A | | |
| STATE2 | STATE SCHOOL PART 2 | N/A | N/A | N/A | N/A | | |
| | Total Tax Rate: | N/A | | | | | |
| | | | | Taxes w/Current Exemptions: | N/A | | |
| | | | | Taxes w/o Exemptions: | N/A | | |
Improvement / Building
| Improvement #1: | Residential Bldg | State Code: | 80 | 2609.0 sqft | Value: | $695,854 |
| Bathrooms (#): | 2 (FULL) | Bedrooms (#): | 3 | | Exterior Wall: | SI/ST | Fireplace: | WD ST-GOOD | | Floor Construction: | FRAME | Foundation: | CONPR | | Heating/Cooling: | HPUMP | Inside Verify: | YES-FIX | | Roof Cover: | SHNGL |   |   |
|
| | Type | Description | Class CD | Sub Class CD | Year Built | Area |
| | MA | Main Area | 4+ | 15SF | 1900 | 2015.0 |
| | MA2 | Second Floor Main Area | 4 | 15SF | 1900 | 594.0 |
| | HWPOR | House Wood Porch | 4 | * | 2016 | 280.0 |
| | HBAL | House Balcony | 4 | * | 1900 | 90.0 |
| | BARN | Barn (Table Not Dep) | 5 | * | 1900 | 1860.0 |
| | PATIO | House Patio | 4 | * | 1900 | 1208.0 |
| | HENCL | House Enclosure | 4 | * | 2016 | 128.0 |
| | CONCD | Concrete Drive | 4 | | 2016 | 3882.0 |
| | SHED | Shed (Table Not Dep) | 4 | * | 1900 | 748.0 |
| | SHED | Shed (Table Not Dep) | 4 | * | 1900 | 188.0 |
| | SHED | Shed (Table Not Dep) | 5 | * | 1900 | 792.0 |
Sketch
Property Image
Land
| 1 | 4270-1374S | Residential Sites 1+/- Ac Fair/Avg Terr. Views | 1.0000 | 43560.00 | 0.00 | 0.00 | 1.00 | $77,000 | $0 |
| 2 | 4270-8775A | Terr View Acreage Used Primarily for Pasture | 15.4500 | 673002.00 | 0.00 | 0.00 | 0.00 | $67,980 | $0 |
| 3 | 1577A | Terr/Mtn/No View <6 Acres | 4.0000 | 174240.00 | 0.00 | 0.00 | 0.00 | $34,100 | $0 |
| 4 | 9810 | Well, Septic, & Power | 1.0000 | 43560.00 | 0.00 | 0.00 | 1.00 | $22,000 | $0 |
Roll Value History
| 2026 | N/A | N/A | N/A | N/A | N/A |
| 2025 | $695,854 | $201,080 | $0 | $896,934 | $896,934 |
| 2024 | $665,599 | $191,940 | $0 | $857,539 | $857,539 |
| 2023 | $635,345 | $181,800 | $0 | $817,145 | $817,145 |
| 2022 | $615,354 | $159,800 | $0 | $775,154 | $775,154 |
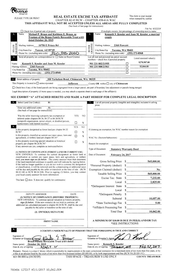
Deed and Sales History
| 1 | 02/24/2017 | SWD | Statutory Warranty Deed | BRAUN FAMILY REV LIVING TRUST | KENNETH & JOAN KESSLER | | | $565,000.00 | 127217 | |
|   | |
| 2 | 10/26/2015 | QCD | Quit Claim Deed | MICHAEL P BRAUN | BRAUN FAMILY REV LIVING TRUST | | | | 124242 | |
| 3 | 02/13/1997 | SWD | Statutory Warranty Deed | BRAUN, M P/K E & TRUST #1 | BRAUN, MICHAEL P/KATHLEEN E | 0 | 0 | $0.00 | 81463 | 0 |
Payout Agreement
| No payout information available.. |