Property
Account |
| Property ID: | 22067 | Abbreviated Legal Description: | S25 T29 R1W N1/2 N1/2 SE LYING EAST OF RD |
| Parcel # / Geo ID: | 901254001 | Agent Code: | |
| Type: | Real | | |
| Tax Area: | 0211 - 1-49F1E1H2L1 | Land Use Code | 11 |
| Open Space: | N | DFL | N |
| Historic Property: | N | Remodel Property: | N |
| Multi-Family Redevelopment: | N | | |
| Township: | 29N | Section: | 25 |
| Range: | 1W |
Location |
| Address: | 6212 BEAVER VALLEY RD CHIMACUM, WA 98325 | Mapsco: | 218/016 |
| Neighborhood: | S13, S24, & S25 T29N R1W; VIEW RIDGE LARGE LOT SUBDIVISION | Map ID: | |
| Neighborhood CD: | 4260 |
Owner |
| Name: | ERICA & BART BALKO | Owner ID: | 105548 |
| Mailing Address: | 6212 BEAVER VALLEY RD CHIMACUM, WA 98325-8741 | % Ownership: | 100.0000000000% |
| | | Exemptions: | |
Pay Tax Due
Select the appropriate checkbox next to the year to be paid. Multiple years may be selected.
*Convenience Fee not included
Taxes and Assessment Details
Property Tax Information as of
03/11/2026
Click on "Statement Details" to expand or collapse a tax statement.
* Please enter a valid date ** Please enter a valid date *
Statement Details |
| 2026 | 11532 | STATE - STATE LEVY (SCHOOL) | $631.19 | $631.17 | $0.00 | $0.00 | $0.00 | $1262.36 |
| 2026 | 11532 | COUNTY - COUNTY LEVIES (CE, DD, VET, MH) | $252.34 | $252.34 | $0.00 | $0.00 | $0.00 | $504.68 |
| 2026 | 11532 | CONSERVE - CONSERVATION FUTURES | $7.57 | $7.56 | $0.00 | $0.00 | $0.00 | $15.13 |
| 2026 | 11532 | COROADS - COUNTY ROADS (ROADS, DIV TO CE) | $203.57 | $203.57 | $0.00 | $0.00 | $0.00 | $407.14 |
| 2026 | 11532 | PORTPT - PORT DISTRICT | $101.92 | $101.91 | $0.00 | $0.00 | $0.00 | $203.83 |
| 2026 | 11532 | PUD1 - PUD #1 | $16.42 | $16.41 | $0.00 | $0.00 | $0.00 | $32.83 |
| 2026 | 11532 | LIB1 - LIBRARY DIST #1 | $78.76 | $78.76 | $0.00 | $0.00 | $0.00 | $157.52 |
| 2026 | 11532 | HD2 - HOSP DIST #2 | $14.72 | $14.71 | $0.00 | $0.00 | $0.00 | $29.43 |
| 2026 | 11532 | SD49 - SCHOOL DIST #49 | $347.45 | $347.43 | $0.00 | $0.00 | $0.00 | $694.88 |
| 2026 | 11532 | FD1 - FIRE DISTRICT #1 | $334.16 | $334.16 | $0.00 | $0.00 | $0.00 | $668.32 |
| 2026 | 11532 | EMS1 - FIRE DIST #1 EMS | $128.48 | $128.48 | $0.00 | $0.00 | $0.00 | $256.96 |
| 2026 | 11532 | FP - DNR Forest Fire Protection Assmt | $8.50 | $8.50 | $0.00 | $0.00 | $0.00 | $17.00 |
| 2026 | 11532 | FPLCA - DNR Landowner Contingency Assmt | $3.00 | $3.00 | $0.00 | $0.00 | $0.00 | $6.00 |
| 2026 | 11532 | JCCD - JC Conservation District | $3.45 | $3.45 | $0.00 | $0.00 | $0.00 | $6.90 |
| 2026 | 11532 | NWA - Noxious Weed Assessment | $7.03 | $7.02 | $0.00 | $0.00 | $0.00 | $14.05 |
| 2026 | 11532 | OSS - On Site Septic | $23.10 | $23.10 | $0.00 | $0.00 | $0.00 | $46.20 |
| 2026 | 11532 | WAT - Clean Water District | $13.00 | $13.00 | $0.00 | $0.00 | $0.00 | $26.00 |
| 2026 | 11532 | FP ADMIN - FP ADMIN | $0.50 | $0.00 | $0.00 | $0.00 | $0.00 | $0.50 |
| 2026 | 11532 | TOTAL: | $2175.16 | $2174.57 | $0.00 | $0.00 | $0.00 | $4349.73 |
|
| 2026 | 11532 | $2175.16 | $2174.57 | $0.00 | $0.00 | $0.00 | $4349.73 |
Statement Details |
| 2025 | 11558 | STATE - STATE LEVY (SCHOOL) | $629.03 | $629.02 | $0.00 | $0.00 | $1258.05 | $0.00 |
| 2025 | 11558 | COUNTY - COUNTY LEVIES (CE, DD, VET, MH) | $247.37 | $247.35 | $0.00 | $0.00 | $494.72 | $0.00 |
| 2025 | 11558 | CONSERVE - CONSERVATION FUTURES | $7.42 | $7.41 | $0.00 | $0.00 | $14.83 | $0.00 |
| 2025 | 11558 | COROADS - COUNTY ROADS (ROADS, DIV TO CE) | $198.18 | $198.17 | $0.00 | $0.00 | $396.35 | $0.00 |
| 2025 | 11558 | PORTPT - PORT DISTRICT | $100.95 | $100.93 | $0.00 | $0.00 | $201.88 | $0.00 |
| 2025 | 11558 | PUD1 - PUD #1 | $16.19 | $16.18 | $0.00 | $0.00 | $32.37 | $0.00 |
| 2025 | 11558 | LIB1 - LIBRARY DIST #1 | $76.67 | $76.67 | $0.00 | $0.00 | $153.34 | $0.00 |
| 2025 | 11558 | HD2 - HOSP DIST #2 | $14.43 | $14.43 | $0.00 | $0.00 | $28.86 | $0.00 |
| 2025 | 11558 | SD49 - SCHOOL DIST #49 | $337.13 | $337.11 | $0.00 | $0.00 | $674.24 | $0.00 |
| 2025 | 11558 | FD1 - FIRE DISTRICT #1 | $326.42 | $326.42 | $0.00 | $0.00 | $652.84 | $0.00 |
| 2025 | 11558 | EMS1 - FIRE DIST #1 EMS | $125.55 | $125.55 | $0.00 | $0.00 | $251.10 | $0.00 |
| 2025 | 11558 | FP - DNR Forest Fire Protection Assmt | $8.50 | $8.50 | $0.00 | $0.00 | $17.00 | $0.00 |
| 2025 | 11558 | FPLCA - DNR Landowner Contingency Assmt | $3.00 | $3.00 | $0.00 | $0.00 | $6.00 | $0.00 |
| 2025 | 11558 | JCCD - JC Conservation District | $3.45 | $3.45 | $0.00 | $0.00 | $6.90 | $0.00 |
| 2025 | 11558 | NWA - Noxious Weed Assessment | $4.85 | $4.85 | $0.00 | $0.00 | $9.70 | $0.00 |
| 2025 | 11558 | OSS - On Site Septic | $21.50 | $21.50 | $0.00 | $0.00 | $43.00 | $0.00 |
| 2025 | 11558 | WAT - Clean Water District | $13.00 | $13.00 | $0.00 | $0.00 | $26.00 | $0.00 |
| 2025 | 11558 | FP ADMIN - FP ADMIN | $0.50 | $0.00 | $0.00 | $0.00 | $0.50 | $0.00 |
| 2025 | 11558 | TOTAL: | $2134.14 | $2133.54 | $0.00 | $0.00 | $4267.68 | $0.00 |
|
| 2025 | 11558 | $2134.14 | $2133.54 | $0.00 | $0.00 | $4267.68 | $0.00 |
Statement Details |
| 2024 | 11584 | STATE - STATE LEVY (SCHOOL) | $562.41 | $562.39 | $0.00 | $0.00 | $1124.80 | $0.00 |
| 2024 | 11584 | COUNTY - COUNTY LEVIES (CE, DD, VET, MH) | $240.67 | $240.65 | $0.00 | $0.00 | $481.32 | $0.00 |
| 2024 | 11584 | CONSERVE - CONSERVATION FUTURES | $7.22 | $7.21 | $0.00 | $0.00 | $14.43 | $0.00 |
| 2024 | 11584 | COROADS - COUNTY ROADS (ROADS, DIV TO CE) | $193.66 | $193.64 | $0.00 | $0.00 | $387.30 | $0.00 |
| 2024 | 11584 | PORTPT - PORT DISTRICT | $99.41 | $99.39 | $0.00 | $0.00 | $198.80 | $0.00 |
| 2024 | 11584 | PUD1 - PUD #1 | $15.81 | $15.80 | $0.00 | $0.00 | $31.61 | $0.00 |
| 2024 | 11584 | LIB1 - LIBRARY DIST #1 | $74.92 | $74.92 | $0.00 | $0.00 | $149.84 | $0.00 |
| 2024 | 11584 | HD2 - HOSP DIST #2 | $14.04 | $14.04 | $0.00 | $0.00 | $28.08 | $0.00 |
| 2024 | 11584 | SD49 - SCHOOL DIST #49 | $251.15 | $251.13 | $0.00 | $0.00 | $502.28 | $0.00 |
| 2024 | 11584 | FD1 - FIRE DISTRICT #1 | $318.21 | $318.20 | $0.00 | $0.00 | $636.41 | $0.00 |
| 2024 | 11584 | EMS1 - FIRE DIST #1 EMS | $121.54 | $121.54 | $0.00 | $0.00 | $243.08 | $0.00 |
| 2024 | 11584 | FP - DNR Forest Fire Protection Assmt | $8.50 | $8.50 | $0.00 | $0.00 | $17.00 | $0.00 |
| 2024 | 11584 | FPLCA - DNR Landowner Contingency Assmt | $3.00 | $3.00 | $0.00 | $0.00 | $6.00 | $0.00 |
| 2024 | 11584 | JCCD - JC Conservation District | $3.45 | $3.45 | $0.00 | $0.00 | $6.90 | $0.00 |
| 2024 | 11584 | NWA - Noxious Weed Assessment | $4.85 | $4.85 | $0.00 | $0.00 | $9.70 | $0.00 |
| 2024 | 11584 | OSS - On Site Septic | $21.00 | $21.00 | $0.00 | $0.00 | $42.00 | $0.00 |
| 2024 | 11584 | WAT - Clean Water District | $12.50 | $12.50 | $0.00 | $0.00 | $25.00 | $0.00 |
| 2024 | 11584 | FP ADMIN - FP ADMIN | $0.50 | $0.00 | $0.00 | $0.00 | $0.50 | $0.00 |
| 2024 | 11584 | TOTAL: | $1952.84 | $1952.21 | $0.00 | $0.00 | $3905.05 | $0.00 |
|
| 2024 | 11584 | $1952.84 | $1952.21 | $0.00 | $0.00 | $3905.05 | $0.00 |
Statement Details |
| 2023 | 11604 | STATE - STATE LEVY (SCHOOL) | $533.68 | $533.67 | $0.00 | $0.00 | $1067.35 | $0.00 |
| 2023 | 11604 | COUNTY - COUNTY LEVIES (CE, DD, VET, MH) | $232.88 | $232.87 | $0.00 | $0.00 | $465.75 | $0.00 |
| 2023 | 11604 | CONSERVE - CONSERVATION FUTURES | $6.99 | $6.98 | $0.00 | $0.00 | $13.97 | $0.00 |
| 2023 | 11604 | COROADS - COUNTY ROADS (ROADS, DIV TO CE) | $188.42 | $188.41 | $0.00 | $0.00 | $376.83 | $0.00 |
| 2023 | 11604 | PORTPT - PORT DISTRICT | $98.11 | $98.09 | $0.00 | $0.00 | $196.20 | $0.00 |
| 2023 | 11604 | PUD1 - PUD #1 | $15.44 | $15.43 | $0.00 | $0.00 | $30.87 | $0.00 |
| 2023 | 11604 | LIB1 - LIBRARY DIST #1 | $72.90 | $72.89 | $0.00 | $0.00 | $145.79 | $0.00 |
| 2023 | 11604 | HD2 - HOSP DIST #2 | $13.59 | $13.59 | $0.00 | $0.00 | $27.18 | $0.00 |
| 2023 | 11604 | SD49 - SCHOOL DIST #49 | $249.47 | $249.46 | $0.00 | $0.00 | $498.93 | $0.00 |
| 2023 | 11604 | FD1 - FIRE DISTRICT #1 | $191.85 | $191.84 | $0.00 | $0.00 | $383.69 | $0.00 |
| 2023 | 11604 | EMS1 - FIRE DIST #1 EMS | $81.61 | $81.61 | $0.00 | $0.00 | $163.22 | $0.00 |
| 2023 | 11604 | FP - DNR Forest Fire Protection Assmt | $8.50 | $8.50 | $0.00 | $0.00 | $17.00 | $0.00 |
| 2023 | 11604 | FPLCA - DNR Landowner Contingency Assmt | $3.00 | $3.00 | $0.00 | $0.00 | $6.00 | $0.00 |
| 2023 | 11604 | JCCD - JC Conservation District | $3.45 | $3.45 | $0.00 | $0.00 | $6.90 | $0.00 |
| 2023 | 11604 | NWA - Noxious Weed Assessment | $4.85 | $4.85 | $0.00 | $0.00 | $9.70 | $0.00 |
| 2023 | 11604 | OSS - On Site Septic | $20.50 | $20.50 | $0.00 | $0.00 | $41.00 | $0.00 |
| 2023 | 11604 | WAT - Clean Water District | $12.00 | $12.00 | $0.00 | $0.00 | $24.00 | $0.00 |
| 2023 | 11604 | FP ADMIN - FP ADMIN | $0.50 | $0.00 | $0.00 | $0.00 | $0.50 | $0.00 |
| 2023 | 11604 | TOTAL: | $1737.74 | $1737.14 | $0.00 | $0.00 | $3474.88 | $0.00 |
|
| 2023 | 11604 | $1737.74 | $1737.14 | $0.00 | $0.00 | $3474.88 | $0.00 |
Values
| (+) Improvement Homesite Value: | + | $0 | |
| (+) Improvement Non-Homesite Value: | + | $255,469 | |
| (+) Land Homesite Value: | + | $0 | |
| (+) Land Non-Homesite Value: | + | $293,601 | |
| (+) Curr Use (HS): | + | $0 | $0 |
| (+) Curr Use (NHS): | + | $0 | $0 |
| | | -------------------------- | |
| (=) Market Value: | = | $549,070 | |
| (–) Productivity Loss: | – | $0 | |
| | | -------------------------- | |
| (=) Subtotal: | = | $549,070 | |
| (+) Senior Appraised Value: | + | $0 | |
| (+) Non-Senior Appraised Value: | + | $549,070 | |
| | | -------------------------- | |
| (=) Total Appraised Value: | = | $549,070 | |
| (–) Senior Exemption Loss: | – | $0 | |
| (–) Exemption Loss: | – | $0 | |
| | | -------------------------- | |
| (=) Taxable Value: | = | $549,070 | |
Taxing Jurisdiction
| Owner: | ERICA & BART BALKO | | |
| % Ownership: | 100.0000000000% | | |
| Total Value: | $549,070 | | |
| Tax Area: | 0211 - 1-49F1E1H2L1 |
| CE | COUNTY CURRENT EXPENSE | 0.9034619479 | $549,070 | $549,070 | $496.06 | | |
| CNTYDD | DEVELOPMENTAL DISABILITIES | 0.0052121823 | $549,070 | $549,070 | $2.86 | | |
| CNTYVET | VETERANS RELIEF | 0.0052777810 | $549,070 | $549,070 | $2.90 | | |
| MENTAL | MENTAL HEALTH | 0.0052121823 | $549,070 | $549,070 | $2.86 | | |
| ROADS | COUNTY ROADS | 0.7415066410 | $549,070 | $549,070 | $407.14 | | |
| ROADSCU | COUNTY ROADS TO CUR EXP | 0.0000000000 | $549,070 | $549,070 | $0.00 | | |
| HOSP2CASH | HOSP DIST #2 GENERAL | 0.0536075306 | $549,070 | $549,070 | $29.43 | | |
| SCH49CP | SCHOOL DIST #49 CAP PROJ | 0.6279093905 | $549,070 | $549,070 | $344.77 | | |
| SCH49MO | SCHOOL DIST #49 EP & O | 0.6376483602 | $549,070 | $549,070 | $350.11 | | |
| CONSERVE | CONSERVATION FUTURES | 0.0275621078 | $549,070 | $549,070 | $15.13 | | |
| EMS1 | FIRE DIST #1 EMS | 0.4679948282 | $549,070 | $549,070 | $256.96 | | |
| FD1 | FIRE DIST #1 GENERAL | 1.2171942929 | $549,070 | $549,070 | $668.32 | | |
| LIB1 | LIBRARY DIST #1 GENERAL | 0.2868827388 | $549,070 | $549,070 | $157.52 | | |
| PORTPT | PORT OF PT GENERAL | 0.1134941229 | $549,070 | $549,070 | $62.32 | | |
| PORTPTIDD | PORT OF PT IDD 2019 | 0.2577346692 | $549,070 | $549,070 | $141.51 | | |
| PUD1 | PUD #1 GENERAL | 0.0597888892 | $549,070 | $549,070 | $32.83 | | |
| STATE | STATE SCHOOL PART 1 | 1.4940692947 | $549,070 | $549,070 | $820.35 | | |
| STATE2 | STATE SCHOOL PART 2 | 0.8050170049 | $549,070 | $549,070 | $442.01 | | |
| | Total Tax Rate: | 7.7095739644 | | | | | |
| | | | | Taxes w/Current Exemptions: | $4,233.08 | | |
| | | | | Taxes w/o Exemptions: | $4,233.08 | | |
Improvement / Building
| Improvement #1: | Residential Bldg | State Code: | 11 | 1512.0 sqft | Value: | $221,843 |
| Bathrooms (#): | 1 (FULL) | Bathrooms (#): | 1 (HALF) | | Bedrooms (#): | 3 | Exterior Wall: | PL/T1 | | Fireplace: | SIN 1-AVG | Floor Construction: | FRAME | | Foundation: | CONPR | Heating/Cooling: | HTWTR | | Inside Verify: | YES-FIX | Roof Cover: | SHNGL |
|
| | Type | Description | Class CD | Sub Class CD | Year Built | Area |
| | MA | Main Area | 3 | 1S | 1959 | 1512.0 |
| | HCPOR | House Concrete Porch | 3 | * | 1959 | 284.0 |
| | GDET | Detached Garage | 3 | 1S | 1959 | 560.0 |
| | BARN | Barn (Table Not Dep) | 1 | * | 1959 | 1080.0 |
| | SHED | Shed (Table Not Dep) | 2 | * | 1959 | 108.0 |
| | SHED | Shed (Table Not Dep) | 2 | * | 1959 | 45.0 |
| Improvement #2: | Manufactured Home | State Code: | 19 | 374.0 sqft | Value: | $33,626 |
| Exterior Wall: | PL/T1 | Floor Construction: | FRAME | | Foundation: | PO&BL | Roof Cover: | COMP |
|
| | Type | Description | Class CD | Sub Class CD | Year Built | Area |
| | MA | Main Area | 3 | MSG | 2007 | 374.0 |
| | MSKIRT_MTL | MH Skirting - Metal/Vinyl | 3 | * | 2007 | 374.0 |
Sketch
Property Image
Land
| 1 | 1772A | | 17.9900 | 783644.40 | 0.00 | 0.00 | 0.00 | $178,101 | $0 |
| 2 | 4260-1374S | | 1.0000 | 43560.00 | 0.00 | 0.00 | 1.00 | $115,500 | $0 |
Roll Value History
| 2026 | N/A | N/A | N/A | N/A | N/A |
| 2025 | $255,469 | $293,601 | $0 | $549,070 | $549,070 |
| 2024 | $244,362 | $280,256 | $0 | $524,618 | $524,618 |
| 2023 | $233,254 | $252,915 | $0 | $486,169 | $486,169 |
| 2022 | $239,470 | $213,920 | $0 | $453,390 | $453,390 |
Deed and Sales History
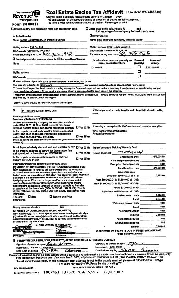
| 1 | 09/10/2021 | SWD | Statutory Warranty Deed | KENDRA L HERMANSON | ERICA & BART BALKO | | | $475,000.00 | 137620 | |
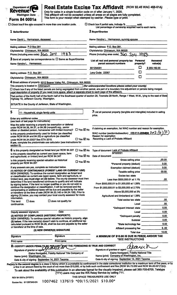
| 2 | 09/10/2021 | LOP | Lack of Probate | DAVID L HERMANSON | KENDRA L HERMANSON | | | | 137619 | |
| 3 | 08/28/2007 | QCD | Quit Claim Deed | SWANSON, MYRON S | HERMANSON, DAVID/KENDRA | 0 | 0 | $0.00 | 109918 | 0 |
| 4 | 07/05/1996 | QCD | Quit Claim Deed | SWANSON, SIGNE M | SWANSON, MYRON S | 0 | 0 | $0.00 | 79967 | 0 |
Payout Agreement
| No payout information available.. |