Property
Account |
| Property ID: | 22091 | Abbreviated Legal Description: | S26 T29 R1W TAX 7(ENLG BY PTN TX 6) ENLG BY TX 25(SEC 35) LESS TAX 28 |
| Parcel # / Geo ID: | 901263008 | Agent Code: | |
| Type: | Real | | |
| Tax Area: | 0211 - 1-49F1E1H2L1 | Land Use Code | 11 |
| Open Space: | N | DFL | N |
| Historic Property: | N | Remodel Property: | N |
| Multi-Family Redevelopment: | N | | |
| Township: | 29N | Section: | 26 |
| Range: | 1W |
Location |
| Address: | 2900 CENTER RD CHIMACUM, WA 98325 | Mapsco: | 219/020 |
| Neighborhood: | S26 & S27 T29N R1W | Map ID: | |
| Neighborhood CD: | 4280 |
Owner |
| Name: | MICHAEL JENNINGS | Owner ID: | 56054 |
| Mailing Address: | PO BOX 930 CHIMACUM, WA 98325-0930 | % Ownership: | 100.0000000000% |
| | | Exemptions: | |
Pay Tax Due
Select the appropriate checkbox next to the year to be paid. Multiple years may be selected.
*Convenience Fee not included
Taxes and Assessment Details
Property Tax Information as of
03/10/2026
Click on "Statement Details" to expand or collapse a tax statement.
* Please enter a valid date ** Please enter a valid date *
Statement Details |
| 2026 | 11554 | STATE - STATE LEVY (SCHOOL) | $1200.89 | $1200.87 | $0.00 | $0.00 | $0.00 | $2401.76 |
| 2026 | 11554 | COUNTY - COUNTY LEVIES (CE, DD, VET, MH) | $480.11 | $480.09 | $0.00 | $0.00 | $0.00 | $960.20 |
| 2026 | 11554 | CONSERVE - CONSERVATION FUTURES | $14.40 | $14.39 | $0.00 | $0.00 | $0.00 | $28.79 |
| 2026 | 11554 | COROADS - COUNTY ROADS (ROADS, DIV TO CE) | $387.31 | $387.31 | $0.00 | $0.00 | $0.00 | $774.62 |
| 2026 | 11554 | PORTPT - PORT DISTRICT | $193.90 | $193.90 | $0.00 | $0.00 | $0.00 | $387.80 |
| 2026 | 11554 | PUD1 - PUD #1 | $31.23 | $31.23 | $0.00 | $0.00 | $0.00 | $62.46 |
| 2026 | 11554 | LIB1 - LIBRARY DIST #1 | $149.85 | $149.84 | $0.00 | $0.00 | $0.00 | $299.69 |
| 2026 | 11554 | HD2 - HOSP DIST #2 | $28.00 | $28.00 | $0.00 | $0.00 | $0.00 | $56.00 |
| 2026 | 11554 | SD49 - SCHOOL DIST #49 | $661.05 | $661.03 | $0.00 | $0.00 | $0.00 | $1322.08 |
| 2026 | 11554 | FD1 - FIRE DISTRICT #1 | $635.78 | $635.77 | $0.00 | $0.00 | $0.00 | $1271.55 |
| 2026 | 11554 | EMS1 - FIRE DIST #1 EMS | $244.45 | $244.45 | $0.00 | $0.00 | $0.00 | $488.90 |
| 2026 | 11554 | JCCD - JC Conservation District | $3.35 | $3.35 | $0.00 | $0.00 | $0.00 | $6.70 |
| 2026 | 11554 | NWA - Noxious Weed Assessment | $6.58 | $6.57 | $0.00 | $0.00 | $0.00 | $13.15 |
| 2026 | 11554 | OSS - On Site Septic | $23.10 | $23.10 | $0.00 | $0.00 | $0.00 | $46.20 |
| 2026 | 11554 | WAT - Clean Water District | $13.00 | $13.00 | $0.00 | $0.00 | $0.00 | $26.00 |
| 2026 | 11554 | TOTAL: | $4073.00 | $4072.90 | $0.00 | $0.00 | $0.00 | $8145.90 |
|
| 2026 | 11554 | $4073.00 | $4072.90 | $0.00 | $0.00 | $0.00 | $8145.90 |
Statement Details |
| 2025 | 11580 | STATE - STATE LEVY (SCHOOL) | $1197.57 | $1197.55 | $0.00 | $0.00 | $2395.12 | $0.00 |
| 2025 | 11580 | COUNTY - COUNTY LEVIES (CE, DD, VET, MH) | $470.95 | $470.92 | $0.00 | $0.00 | $941.87 | $0.00 |
| 2025 | 11580 | CONSERVE - CONSERVATION FUTURES | $14.12 | $14.12 | $0.00 | $0.00 | $28.24 | $0.00 |
| 2025 | 11580 | COROADS - COUNTY ROADS (ROADS, DIV TO CE) | $377.30 | $377.28 | $0.00 | $0.00 | $754.58 | $0.00 |
| 2025 | 11580 | PORTPT - PORT DISTRICT | $192.17 | $192.17 | $0.00 | $0.00 | $384.34 | $0.00 |
| 2025 | 11580 | PUD1 - PUD #1 | $30.82 | $30.81 | $0.00 | $0.00 | $61.63 | $0.00 |
| 2025 | 11580 | LIB1 - LIBRARY DIST #1 | $145.97 | $145.97 | $0.00 | $0.00 | $291.94 | $0.00 |
| 2025 | 11580 | HD2 - HOSP DIST #2 | $27.48 | $27.47 | $0.00 | $0.00 | $54.95 | $0.00 |
| 2025 | 11580 | SD49 - SCHOOL DIST #49 | $641.82 | $641.81 | $0.00 | $0.00 | $1283.63 | $0.00 |
| 2025 | 11580 | FD1 - FIRE DISTRICT #1 | $621.45 | $621.44 | $0.00 | $0.00 | $1242.89 | $0.00 |
| 2025 | 11580 | EMS1 - FIRE DIST #1 EMS | $239.03 | $239.02 | $0.00 | $0.00 | $478.05 | $0.00 |
| 2025 | 11580 | JCCD - JC Conservation District | $3.35 | $3.35 | $0.00 | $0.00 | $6.70 | $0.00 |
| 2025 | 11580 | NWA - Noxious Weed Assessment | $4.55 | $4.55 | $0.00 | $0.00 | $9.10 | $0.00 |
| 2025 | 11580 | OSS - On Site Septic | $21.50 | $21.50 | $0.00 | $0.00 | $43.00 | $0.00 |
| 2025 | 11580 | WAT - Clean Water District | $13.00 | $13.00 | $0.00 | $0.00 | $26.00 | $0.00 |
| 2025 | 11580 | TOTAL: | $4001.08 | $4000.96 | $0.00 | $0.00 | $8002.04 | $0.00 |
|
| 2025 | 11580 | $4001.08 | $4000.96 | $0.00 | $0.00 | $8002.04 | $0.00 |
Statement Details |
| 2024 | 11606 | STATE - STATE LEVY (SCHOOL) | $1091.93 | $1091.92 | $0.00 | $0.00 | $2183.85 | $0.00 |
| 2024 | 11606 | COUNTY - COUNTY LEVIES (CE, DD, VET, MH) | $467.25 | $467.25 | $0.00 | $0.00 | $934.50 | $0.00 |
| 2024 | 11606 | CONSERVE - CONSERVATION FUTURES | $14.01 | $14.01 | $0.00 | $0.00 | $28.02 | $0.00 |
| 2024 | 11606 | COROADS - COUNTY ROADS (ROADS, DIV TO CE) | $375.98 | $375.97 | $0.00 | $0.00 | $751.95 | $0.00 |
| 2024 | 11606 | PORTPT - PORT DISTRICT | $193.00 | $192.99 | $0.00 | $0.00 | $385.99 | $0.00 |
| 2024 | 11606 | PUD1 - PUD #1 | $30.69 | $30.69 | $0.00 | $0.00 | $61.38 | $0.00 |
| 2024 | 11606 | LIB1 - LIBRARY DIST #1 | $145.47 | $145.46 | $0.00 | $0.00 | $290.93 | $0.00 |
| 2024 | 11606 | HD2 - HOSP DIST #2 | $27.27 | $27.26 | $0.00 | $0.00 | $54.53 | $0.00 |
| 2024 | 11606 | SD49 - SCHOOL DIST #49 | $487.60 | $487.59 | $0.00 | $0.00 | $975.19 | $0.00 |
| 2024 | 11606 | FD1 - FIRE DISTRICT #1 | $617.81 | $617.81 | $0.00 | $0.00 | $1235.62 | $0.00 |
| 2024 | 11606 | EMS1 - FIRE DIST #1 EMS | $235.98 | $235.98 | $0.00 | $0.00 | $471.96 | $0.00 |
| 2024 | 11606 | JCCD - JC Conservation District | $3.35 | $3.35 | $0.00 | $0.00 | $6.70 | $0.00 |
| 2024 | 11606 | NWA - Noxious Weed Assessment | $4.55 | $4.55 | $0.00 | $0.00 | $9.10 | $0.00 |
| 2024 | 11606 | OSS - On Site Septic | $21.00 | $21.00 | $0.00 | $0.00 | $42.00 | $0.00 |
| 2024 | 11606 | WAT - Clean Water District | $12.50 | $12.50 | $0.00 | $0.00 | $25.00 | $0.00 |
| 2024 | 11606 | TOTAL: | $3728.39 | $3728.33 | $0.00 | $0.00 | $7456.72 | $0.00 |
|
| 2024 | 11606 | $3728.39 | $3728.33 | $0.00 | $0.00 | $7456.72 | $0.00 |
Statement Details |
| 2023 | 11626 | STATE - STATE LEVY (SCHOOL) | $1109.55 | $1109.54 | $0.00 | $0.00 | $2219.09 | $0.00 |
| 2023 | 11626 | COUNTY - COUNTY LEVIES (CE, DD, VET, MH) | $484.18 | $484.17 | $0.00 | $0.00 | $968.35 | $0.00 |
| 2023 | 11626 | CONSERVE - CONSERVATION FUTURES | $14.52 | $14.52 | $0.00 | $0.00 | $29.04 | $0.00 |
| 2023 | 11626 | COROADS - COUNTY ROADS (ROADS, DIV TO CE) | $391.73 | $391.73 | $0.00 | $0.00 | $783.46 | $0.00 |
| 2023 | 11626 | PORTPT - PORT DISTRICT | $203.97 | $203.95 | $0.00 | $0.00 | $407.92 | $0.00 |
| 2023 | 11626 | PUD1 - PUD #1 | $32.10 | $32.09 | $0.00 | $0.00 | $64.19 | $0.00 |
| 2023 | 11626 | LIB1 - LIBRARY DIST #1 | $151.56 | $151.55 | $0.00 | $0.00 | $303.11 | $0.00 |
| 2023 | 11626 | HD2 - HOSP DIST #2 | $28.26 | $28.24 | $0.00 | $0.00 | $56.50 | $0.00 |
| 2023 | 11626 | SD49 - SCHOOL DIST #49 | $518.66 | $518.65 | $0.00 | $0.00 | $1037.31 | $0.00 |
| 2023 | 11626 | FD1 - FIRE DISTRICT #1 | $398.86 | $398.86 | $0.00 | $0.00 | $797.72 | $0.00 |
| 2023 | 11626 | EMS1 - FIRE DIST #1 EMS | $169.67 | $169.67 | $0.00 | $0.00 | $339.34 | $0.00 |
| 2023 | 11626 | JCCD - JC Conservation District | $3.35 | $3.35 | $0.00 | $0.00 | $6.70 | $0.00 |
| 2023 | 11626 | NWA - Noxious Weed Assessment | $4.55 | $4.55 | $0.00 | $0.00 | $9.10 | $0.00 |
| 2023 | 11626 | OSS - On Site Septic | $20.50 | $20.50 | $0.00 | $0.00 | $41.00 | $0.00 |
| 2023 | 11626 | WAT - Clean Water District | $12.00 | $12.00 | $0.00 | $0.00 | $24.00 | $0.00 |
| 2023 | 11626 | TOTAL: | $3543.46 | $3543.37 | $0.00 | $0.00 | $7086.83 | $0.00 |
|
| 2023 | 11626 | $3543.46 | $3543.37 | $0.00 | $0.00 | $7086.83 | $0.00 |
Values
| (+) Improvement Homesite Value: | + | $0 | |
| (+) Improvement Non-Homesite Value: | + | $816,081 | |
| (+) Land Homesite Value: | + | $0 | |
| (+) Land Non-Homesite Value: | + | $228,578 | |
| (+) Curr Use (HS): | + | $0 | $0 |
| (+) Curr Use (NHS): | + | $0 | $0 |
| | | -------------------------- | |
| (=) Market Value: | = | $1,044,659 | |
| (–) Productivity Loss: | – | $0 | |
| | | -------------------------- | |
| (=) Subtotal: | = | $1,044,659 | |
| (+) Senior Appraised Value: | + | $0 | |
| (+) Non-Senior Appraised Value: | + | $1,044,659 | |
| | | -------------------------- | |
| (=) Total Appraised Value: | = | $1,044,659 | |
| (–) Senior Exemption Loss: | – | $0 | |
| (–) Exemption Loss: | – | $0 | |
| | | -------------------------- | |
| (=) Taxable Value: | = | $1,044,659 | |
Taxing Jurisdiction
| Owner: | MICHAEL JENNINGS | | |
| % Ownership: | 100.0000000000% | | |
| Total Value: | $1,044,659 | | |
| Tax Area: | 0211 - 1-49F1E1H2L1 |
| CE | COUNTY CURRENT EXPENSE | 0.9034619479 | $1,044,659 | $1,044,659 | $943.81 | | |
| CNTYDD | DEVELOPMENTAL DISABILITIES | 0.0052121823 | $1,044,659 | $1,044,659 | $5.44 | | |
| CNTYVET | VETERANS RELIEF | 0.0052777810 | $1,044,659 | $1,044,659 | $5.51 | | |
| MENTAL | MENTAL HEALTH | 0.0052121823 | $1,044,659 | $1,044,659 | $5.44 | | |
| ROADS | COUNTY ROADS | 0.7415066410 | $1,044,659 | $1,044,659 | $774.62 | | |
| ROADSCU | COUNTY ROADS TO CUR EXP | 0.0000000000 | $1,044,659 | $1,044,659 | $0.00 | | |
| HOSP2CASH | HOSP DIST #2 GENERAL | 0.0536075306 | $1,044,659 | $1,044,659 | $56.00 | | |
| SCH49CP | SCHOOL DIST #49 CAP PROJ | 0.6279093905 | $1,044,659 | $1,044,659 | $655.95 | | |
| SCH49MO | SCHOOL DIST #49 EP & O | 0.6376483602 | $1,044,659 | $1,044,659 | $666.13 | | |
| CONSERVE | CONSERVATION FUTURES | 0.0275621078 | $1,044,659 | $1,044,659 | $28.79 | | |
| EMS1 | FIRE DIST #1 EMS | 0.4679948282 | $1,044,659 | $1,044,659 | $488.90 | | |
| FD1 | FIRE DIST #1 GENERAL | 1.2171942929 | $1,044,659 | $1,044,659 | $1,271.55 | | |
| LIB1 | LIBRARY DIST #1 GENERAL | 0.2868827388 | $1,044,659 | $1,044,659 | $299.69 | | |
| PORTPT | PORT OF PT GENERAL | 0.1134941229 | $1,044,659 | $1,044,659 | $118.56 | | |
| PORTPTIDD | PORT OF PT IDD 2019 | 0.2577346692 | $1,044,659 | $1,044,659 | $269.24 | | |
| PUD1 | PUD #1 GENERAL | 0.0597888892 | $1,044,659 | $1,044,659 | $62.46 | | |
| STATE | STATE SCHOOL PART 1 | 1.4940692947 | $1,044,659 | $1,044,659 | $1,560.79 | | |
| STATE2 | STATE SCHOOL PART 2 | 0.8050170049 | $1,044,659 | $1,044,659 | $840.97 | | |
| | Total Tax Rate: | 7.7095739644 | | | | | |
| | | | | Taxes w/Current Exemptions: | $8,053.85 | | |
| | | | | Taxes w/o Exemptions: | $8,053.85 | | |
Improvement / Building
| Improvement #1: | Residential Bldg | State Code: | 11 | 1643.0 sqft | Value: | $816,081 |
| Bathrooms (#): | 2 (FULL) | Bathrooms (#): | 1 (HALF) | | Bedrooms (#): | 3 | Exterior Wall: | LOG | | Fireplace: | DBL 1-GOOD | Floor Construction: | FRAME | | Foundation: | CONPR | Heating/Cooling: | HPUMP | | Inside Verify: | YES-FIX | Roof Cover: | METAL |
|
| | Type | Description | Class CD | Sub Class CD | Year Built | Area |
| | MA | Main Area | 5- | 1S | 2005 | 1643.0 |
| | PATIO | House Patio | 4 | * | 2005 | 1000.0 |
| | HWPOR | House Wood Porch | 4 | * | 2005 | 900.0 |
| | GDET | Detached Garage | 4 | 1S | 2005 | 864.0 |
| | CARPTF | Carport W/Floor | 3 | * | 2005 | 620.0 |
| | BARN | Barn (Table Not Dep) | 3 | * | 2005 | 2760.0 |
| | BSMTF | House basement finished | 4 | * | 2005 | 1643.0 |
| | SHED | Shed (Table Not Dep) | 3 | * | 2005 | 96.0 |
Sketch
Property Image
Land
| 1 | 4280-1374S | | 1.0000 | 43560.00 | 0.00 | 0.00 | 1.00 | $110,000 | $0 |
| 2 | 1775A | | 15.9700 | 695653.20 | 0.00 | 0.00 | 0.00 | $118,578 | $0 |
Roll Value History
| 2026 | N/A | N/A | N/A | N/A | N/A |
| 2025 | $816,081 | $228,578 | $0 | $1,044,659 | $1,044,659 |
| 2024 | $780,600 | $218,188 | $0 | $998,788 | $998,788 |
| 2023 | $745,118 | $198,805 | $0 | $943,923 | $943,923 |
| 2022 | $756,805 | $185,820 | $0 | $942,625 | $942,625 |
Deed and Sales History
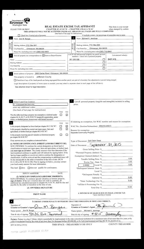
| 1 | 09/21/2015 | QCD | Quit Claim Deed | | | | | | 124025 | |
| 2 | 12/18/2002 | QCD | Quit Claim Deed | JENNINGS, MICHAEL K | JENNINGS, MICHAEL K & ANN M | 0 | 0 | $0.00 | 96211 | 0 |
| 3 | 06/15/1999 | SWD | Statutory Warranty Deed | STRANDSKOV, ALVIN & JEAN/ | JENNINGS, MICHAEL K | 0 | 0 | $225,000.00 | 87197 | 0 |
| 4 | 11/01/1997 | QCD | Quit Claim Deed | STRANDSKOV, ALVIN G/JEAN | STRANDSKOV, ALVIN & JEAN/TRTEE | 0 | 0 | $0.00 | 83098 | 0 |
Payout Agreement
| No payout information available.. |