Property
Account |
| Property ID: | 22095 | Abbreviated Legal Description: | S26 T29 R1W TAX 10 |
| Parcel # / Geo ID: | 901263012 | Agent Code: | |
| Type: | Real | | |
| Tax Area: | 0211 - 1-49F1E1H2L1 | Land Use Code | 91 |
| Open Space: | N | DFL | N |
| Historic Property: | N | Remodel Property: | N |
| Multi-Family Redevelopment: | N | | |
| Township: | 29N | Section: | 26 |
| Range: | 1W |
Location |
| Address: | | Mapsco: | 219/030 |
| Neighborhood: | S26 & S27 T29N R1W | Map ID: | |
| Neighborhood CD: | 4280 |
Owner |
| Name: | KYLE T WINDLE | Owner ID: | 30641 |
| Mailing Address: | PO BOX 691 CHIMACUM, WA 98325-0691 | % Ownership: | 100.0000000000% |
| | | Exemptions: | |
Pay Tax Due
There is currently No Amount Due on this property.
Taxes and Assessment Details
Property Tax Information as of
03/11/2026
Click on "Statement Details" to expand or collapse a tax statement.
* Please enter a valid date ** Please enter a valid date *
Statement Details |
| | TOTAL: | $0.00 | $0.00 | $0.00 | $0.00 | $0.00 | $0.00 |
|
| | $0.00 | $0.00 | $0.00 | $0.00 | $0.00 | $0.00 |
Values
| (+) Improvement Homesite Value: | + | $0 | |
| (+) Improvement Non-Homesite Value: | + | $0 | |
| (+) Land Homesite Value: | + | $0 | |
| (+) Land Non-Homesite Value: | + | $59,111 | |
| (+) Curr Use (HS): | + | $0 | $0 |
| (+) Curr Use (NHS): | + | $0 | $0 |
| | | -------------------------- | |
| (=) Market Value: | = | $59,111 | |
| (–) Productivity Loss: | – | $0 | |
| | | -------------------------- | |
| (=) Subtotal: | = | $59,111 | |
| (+) Senior Appraised Value: | + | $0 | |
| (+) Non-Senior Appraised Value: | + | $59,111 | |
| | | -------------------------- | |
| (=) Total Appraised Value: | = | $59,111 | |
| (–) Senior Exemption Loss: | – | $0 | |
| (–) Exemption Loss: | – | $0 | |
| | | -------------------------- | |
| (=) Taxable Value: | = | $59,111 | |
Taxing Jurisdiction
| Owner: | KYLE T WINDLE | | |
| % Ownership: | 100.0000000000% | | |
| Total Value: | $59,111 | | |
| Tax Area: | 0211 - 1-49F1E1H2L1 |
| CE | COUNTY CURRENT EXPENSE | 0.9034619479 | $59,111 | $59,111 | $53.40 | | |
| CNTYDD | DEVELOPMENTAL DISABILITIES | 0.0052121823 | $59,111 | $59,111 | $0.31 | | |
| CNTYVET | VETERANS RELIEF | 0.0052777810 | $59,111 | $59,111 | $0.31 | | |
| MENTAL | MENTAL HEALTH | 0.0052121823 | $59,111 | $59,111 | $0.31 | | |
| ROADS | COUNTY ROADS | 0.7415066410 | $59,111 | $59,111 | $43.83 | | |
| ROADSCU | COUNTY ROADS TO CUR EXP | 0.0000000000 | $59,111 | $59,111 | $0.00 | | |
| HOSP2CASH | HOSP DIST #2 GENERAL | 0.0536075306 | $59,111 | $59,111 | $3.17 | | |
| SCH49CP | SCHOOL DIST #49 CAP PROJ | 0.6279093905 | $59,111 | $59,111 | $37.12 | | |
| SCH49MO | SCHOOL DIST #49 EP & O | 0.6376483602 | $59,111 | $59,111 | $37.69 | | |
| CONSERVE | CONSERVATION FUTURES | 0.0275621078 | $59,111 | $59,111 | $1.63 | | |
| EMS1 | FIRE DIST #1 EMS | 0.4679948282 | $59,111 | $59,111 | $27.66 | | |
| FD1 | FIRE DIST #1 GENERAL | 1.2171942929 | $59,111 | $59,111 | $71.95 | | |
| LIB1 | LIBRARY DIST #1 GENERAL | 0.2868827388 | $59,111 | $59,111 | $16.96 | | |
| PORTPT | PORT OF PT GENERAL | 0.1134941229 | $59,111 | $59,111 | $6.71 | | |
| PORTPTIDD | PORT OF PT IDD 2019 | 0.2577346692 | $59,111 | $59,111 | $15.23 | | |
| PUD1 | PUD #1 GENERAL | 0.0597888892 | $59,111 | $59,111 | $3.53 | | |
| STATE | STATE SCHOOL PART 1 | 1.4940692947 | $59,111 | $59,111 | $88.32 | | |
| STATE2 | STATE SCHOOL PART 2 | 0.8050170049 | $59,111 | $59,111 | $47.59 | | |
| | Total Tax Rate: | 7.7095739644 | | | | | |
| | | | | Taxes w/Current Exemptions: | $455.72 | | |
| | | | | Taxes w/o Exemptions: | $455.72 | | |
Improvement / Building
Sketch
| No sketches available for this property. |
Property Image
Land
| 1 | 4280-1375S | Residential Sites 1+/- Ac SomeTerritorial Views | 1.0000 | 43560.00 | 0.00 | 0.00 | 1.00 | $41,250 | $0 |
| 2 | 1577A | Terr/Mtn/No View <6 Acres | 4.1900 | 182516.40 | 0.00 | 0.00 | 0.00 | $17,861 | $0 |
Roll Value History
| 2026 | N/A | N/A | N/A | N/A | N/A |
| 2025 | $0 | $59,111 | $0 | $59,111 | $59,111 |
| 2024 | $0 | $56,424 | $0 | $56,424 | $56,424 |
| 2023 | $0 | $53,213 | $0 | $53,213 | $53,213 |
| 2022 | $0 | $52,165 | $0 | $52,165 | $52,165 |
Deed and Sales History
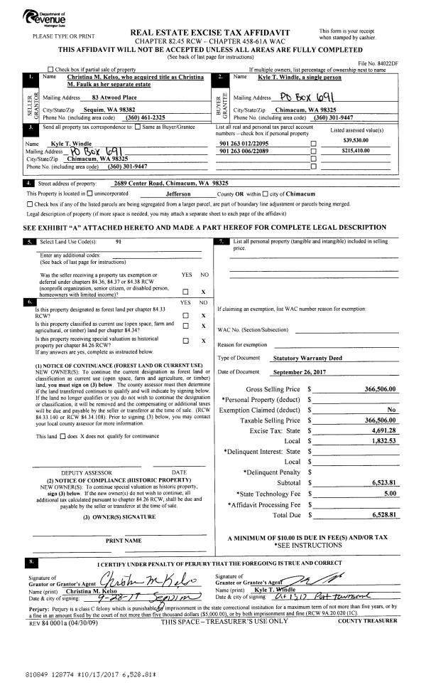
| 1 | 09/26/2017 | SWD | Statutory Warranty Deed | CHRISTINA M KELSO | KYLE T WINDLE | | | $366,506.00 | 128774 | |
|   | |
| 2 | 09/19/2001 | QCD | Quit Claim Deed | FAULK, WILLIAM R | FAULK, CHRISTINA M | 0 | 0 | $0.00 | 93130 | 0 |
| 3 | 05/30/1995 | QCD | Quit Claim Deed | KELSO LIVING TRUST | FAULK, WILLIAM R/CHRISTINA M | 0 | 0 | $0.00 | 77134 | 0 |
| 4 | 06/30/1993 | QCD | Quit Claim Deed | KELSO, GORDON S/NANCY L | KELSO LIVING TRUST | 0 | 0 | $0.00 | 71588 | 0 |
Payout Agreement
| No payout information available.. |