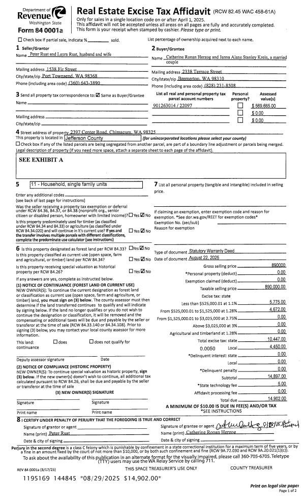
Property
Account |
| Property ID: | 22097 | Abbreviated Legal Description: | S26 T29 R1W TAX 13 |
| Parcel # / Geo ID: | 901263014 | Agent Code: | |
| Type: | Real | | |
| Tax Area: | 0211 - 1-49F1E1H2L1 | Land Use Code | 11 |
| Open Space: | N | DFL | N |
| Historic Property: | N | Remodel Property: | N |
| Multi-Family Redevelopment: | N | | |
| Township: | 29N | Section: | 26 |
| Range: | 1W |
Location |
| Address: | 2397 CENTER RD CHIMACUM, WA 98325 | Mapsco: | 219/033 |
| Neighborhood: | S26 & S27 T29N R1W | Map ID: | |
| Neighborhood CD: | 4280 |
Owner |
| Name: | CATHERINE R HERZOG | Owner ID: | 113243 |
| Mailing Address: | JANNA ALANE STANLEY KREIN 2338 TERRACE ST BREMERTON, WA 98310-5041 | % Ownership: | 100.0000000000% |
| | | Exemptions: | |
Pay Tax Due
Select the appropriate checkbox next to the year to be paid. Multiple years may be selected.
*Convenience Fee not included
Taxes and Assessment Details
Property Tax Information as of
03/11/2026
Click on "Statement Details" to expand or collapse a tax statement.
* Please enter a valid date ** Please enter a valid date *
Statement Details |
| 2026 | 11560 | STATE - STATE LEVY (SCHOOL) | $873.23 | $873.22 | $0.00 | $0.00 | $0.00 | $1746.45 |
| 2026 | 11560 | COUNTY - COUNTY LEVIES (CE, DD, VET, MH) | $349.12 | $349.10 | $0.00 | $0.00 | $0.00 | $698.22 |
| 2026 | 11560 | CONSERVE - CONSERVATION FUTURES | $10.47 | $10.47 | $0.00 | $0.00 | $0.00 | $20.94 |
| 2026 | 11560 | COROADS - COUNTY ROADS (ROADS, DIV TO CE) | $281.64 | $281.63 | $0.00 | $0.00 | $0.00 | $563.27 |
| 2026 | 11560 | PORTPT - PORT DISTRICT | $141.00 | $140.99 | $0.00 | $0.00 | $0.00 | $281.99 |
| 2026 | 11560 | PUD1 - PUD #1 | $22.71 | $22.71 | $0.00 | $0.00 | $0.00 | $45.42 |
| 2026 | 11560 | LIB1 - LIBRARY DIST #1 | $108.96 | $108.96 | $0.00 | $0.00 | $0.00 | $217.92 |
| 2026 | 11560 | HD2 - HOSP DIST #2 | $20.36 | $20.36 | $0.00 | $0.00 | $0.00 | $40.72 |
| 2026 | 11560 | SD49 - SCHOOL DIST #49 | $480.68 | $480.68 | $0.00 | $0.00 | $0.00 | $961.36 |
| 2026 | 11560 | FD1 - FIRE DISTRICT #1 | $462.31 | $462.30 | $0.00 | $0.00 | $0.00 | $924.61 |
| 2026 | 11560 | EMS1 - FIRE DIST #1 EMS | $177.75 | $177.75 | $0.00 | $0.00 | $0.00 | $355.50 |
| 2026 | 11560 | FP - DNR Forest Fire Protection Assmt | $8.50 | $8.50 | $0.00 | $0.00 | $0.00 | $17.00 |
| 2026 | 11560 | FPLCA - DNR Landowner Contingency Assmt | $3.00 | $3.00 | $0.00 | $0.00 | $0.00 | $6.00 |
| 2026 | 11560 | JCCD - JC Conservation District | $2.80 | $2.80 | $0.00 | $0.00 | $0.00 | $5.60 |
| 2026 | 11560 | NWA - Noxious Weed Assessment | $4.10 | $4.10 | $0.00 | $0.00 | $0.00 | $8.20 |
| 2026 | 11560 | OSS - On Site Septic | $23.10 | $23.10 | $0.00 | $0.00 | $0.00 | $46.20 |
| 2026 | 11560 | WAT - Clean Water District | $13.00 | $13.00 | $0.00 | $0.00 | $0.00 | $26.00 |
| 2026 | 11560 | FP ADMIN - FP ADMIN | $0.50 | $0.00 | $0.00 | $0.00 | $0.00 | $0.50 |
| 2026 | 11560 | TOTAL: | $2983.23 | $2982.67 | $0.00 | $0.00 | $0.00 | $5965.90 |
|
| 2026 | 11560 | $2983.23 | $2982.67 | $0.00 | $0.00 | $0.00 | $5965.90 |
Statement Details |
| 2025 | 11586 | STATE - STATE LEVY (SCHOOL) | $683.04 | $683.03 | $0.00 | $0.00 | $1366.07 | $0.00 |
| 2025 | 11586 | COUNTY - COUNTY LEVIES (CE, DD, VET, MH) | $268.60 | $268.60 | $0.00 | $0.00 | $537.20 | $0.00 |
| 2025 | 11586 | CONSERVE - CONSERVATION FUTURES | $8.06 | $8.05 | $0.00 | $0.00 | $16.11 | $0.00 |
| 2025 | 11586 | COROADS - COUNTY ROADS (ROADS, DIV TO CE) | $215.19 | $215.19 | $0.00 | $0.00 | $430.38 | $0.00 |
| 2025 | 11586 | PORTPT - PORT DISTRICT | $109.61 | $109.60 | $0.00 | $0.00 | $219.21 | $0.00 |
| 2025 | 11586 | PUD1 - PUD #1 | $17.58 | $17.57 | $0.00 | $0.00 | $35.15 | $0.00 |
| 2025 | 11586 | LIB1 - LIBRARY DIST #1 | $83.26 | $83.25 | $0.00 | $0.00 | $166.51 | $0.00 |
| 2025 | 11586 | HD2 - HOSP DIST #2 | $15.67 | $15.67 | $0.00 | $0.00 | $31.34 | $0.00 |
| 2025 | 11586 | SD49 - SCHOOL DIST #49 | $366.07 | $366.06 | $0.00 | $0.00 | $732.13 | $0.00 |
| 2025 | 11586 | FD1 - FIRE DISTRICT #1 | $354.45 | $354.44 | $0.00 | $0.00 | $708.89 | $0.00 |
| 2025 | 11586 | EMS1 - FIRE DIST #1 EMS | $136.33 | $136.33 | $0.00 | $0.00 | $272.66 | $0.00 |
| 2025 | 11586 | FP - DNR Forest Fire Protection Assmt | $8.50 | $8.50 | $0.00 | $0.00 | $17.00 | $0.00 |
| 2025 | 11586 | FPLCA - DNR Landowner Contingency Assmt | $3.00 | $3.00 | $0.00 | $0.00 | $6.00 | $0.00 |
| 2025 | 11586 | JCCD - JC Conservation District | $2.80 | $2.80 | $0.00 | $0.00 | $5.60 | $0.00 |
| 2025 | 11586 | NWA - Noxious Weed Assessment | $2.90 | $2.90 | $0.00 | $0.00 | $5.80 | $0.00 |
| 2025 | 11586 | OSS - On Site Septic | $21.50 | $21.50 | $0.00 | $0.00 | $43.00 | $0.00 |
| 2025 | 11586 | WAT - Clean Water District | $13.00 | $13.00 | $0.00 | $0.00 | $26.00 | $0.00 |
| 2025 | 11586 | FP ADMIN - FP ADMIN | $0.50 | $0.00 | $0.00 | $0.00 | $0.50 | $0.00 |
| 2025 | 11586 | TOTAL: | $2310.06 | $2309.49 | $0.00 | $0.00 | $4619.55 | $0.00 |
|
| 2025 | 11586 | $2310.06 | $2309.49 | $0.00 | $0.00 | $4619.55 | $0.00 |
Statement Details |
| 2024 | 11612 | STATE - STATE LEVY (SCHOOL) | $621.52 | $621.50 | $0.00 | $0.00 | $1243.02 | $0.00 |
| 2024 | 11612 | COUNTY - COUNTY LEVIES (CE, DD, VET, MH) | $265.95 | $265.94 | $0.00 | $0.00 | $531.89 | $0.00 |
| 2024 | 11612 | CONSERVE - CONSERVATION FUTURES | $7.98 | $7.97 | $0.00 | $0.00 | $15.95 | $0.00 |
| 2024 | 11612 | COROADS - COUNTY ROADS (ROADS, DIV TO CE) | $214.01 | $213.99 | $0.00 | $0.00 | $428.00 | $0.00 |
| 2024 | 11612 | PORTPT - PORT DISTRICT | $109.85 | $109.85 | $0.00 | $0.00 | $219.70 | $0.00 |
| 2024 | 11612 | PUD1 - PUD #1 | $17.47 | $17.47 | $0.00 | $0.00 | $34.94 | $0.00 |
| 2024 | 11612 | LIB1 - LIBRARY DIST #1 | $82.80 | $82.79 | $0.00 | $0.00 | $165.59 | $0.00 |
| 2024 | 11612 | HD2 - HOSP DIST #2 | $15.52 | $15.52 | $0.00 | $0.00 | $31.04 | $0.00 |
| 2024 | 11612 | SD49 - SCHOOL DIST #49 | $277.54 | $277.53 | $0.00 | $0.00 | $555.07 | $0.00 |
| 2024 | 11612 | FD1 - FIRE DISTRICT #1 | $351.65 | $351.65 | $0.00 | $0.00 | $703.30 | $0.00 |
| 2024 | 11612 | EMS1 - FIRE DIST #1 EMS | $134.32 | $134.31 | $0.00 | $0.00 | $268.63 | $0.00 |
| 2024 | 11612 | FP - DNR Forest Fire Protection Assmt | $8.50 | $8.50 | $0.00 | $0.00 | $17.00 | $0.00 |
| 2024 | 11612 | FPLCA - DNR Landowner Contingency Assmt | $3.00 | $3.00 | $0.00 | $0.00 | $6.00 | $0.00 |
| 2024 | 11612 | JCCD - JC Conservation District | $2.80 | $2.80 | $0.00 | $0.00 | $5.60 | $0.00 |
| 2024 | 11612 | NWA - Noxious Weed Assessment | $2.90 | $2.90 | $0.00 | $0.00 | $5.80 | $0.00 |
| 2024 | 11612 | OSS - On Site Septic | $21.00 | $21.00 | $0.00 | $0.00 | $42.00 | $0.00 |
| 2024 | 11612 | WAT - Clean Water District | $12.50 | $12.50 | $0.00 | $0.00 | $25.00 | $0.00 |
| 2024 | 11612 | FP ADMIN - FP ADMIN | $0.50 | $0.00 | $0.00 | $0.00 | $0.50 | $0.00 |
| 2024 | 11612 | TOTAL: | $2149.81 | $2149.22 | $0.00 | $0.00 | $4299.03 | $0.00 |
|
| 2024 | 11612 | $2149.81 | $2149.22 | $0.00 | $0.00 | $4299.03 | $0.00 |
Statement Details |
| 2023 | 11632 | STATE - STATE LEVY (SCHOOL) | $572.34 | $572.34 | $0.00 | $0.00 | $1144.68 | $0.00 |
| 2023 | 11632 | COUNTY - COUNTY LEVIES (CE, DD, VET, MH) | $249.76 | $249.75 | $0.00 | $0.00 | $499.51 | $0.00 |
| 2023 | 11632 | CONSERVE - CONSERVATION FUTURES | $7.49 | $7.49 | $0.00 | $0.00 | $14.98 | $0.00 |
| 2023 | 11632 | COROADS - COUNTY ROADS (ROADS, DIV TO CE) | $202.07 | $202.06 | $0.00 | $0.00 | $404.13 | $0.00 |
| 2023 | 11632 | PORTPT - PORT DISTRICT | $105.21 | $105.21 | $0.00 | $0.00 | $210.42 | $0.00 |
| 2023 | 11632 | PUD1 - PUD #1 | $16.56 | $16.55 | $0.00 | $0.00 | $33.11 | $0.00 |
| 2023 | 11632 | LIB1 - LIBRARY DIST #1 | $78.18 | $78.18 | $0.00 | $0.00 | $156.36 | $0.00 |
| 2023 | 11632 | HD2 - HOSP DIST #2 | $14.58 | $14.56 | $0.00 | $0.00 | $29.14 | $0.00 |
| 2023 | 11632 | SD49 - SCHOOL DIST #49 | $267.54 | $267.53 | $0.00 | $0.00 | $535.07 | $0.00 |
| 2023 | 11632 | FD1 - FIRE DISTRICT #1 | $205.75 | $205.74 | $0.00 | $0.00 | $411.49 | $0.00 |
| 2023 | 11632 | EMS1 - FIRE DIST #1 EMS | $87.52 | $87.52 | $0.00 | $0.00 | $175.04 | $0.00 |
| 2023 | 11632 | FP - DNR Forest Fire Protection Assmt | $8.50 | $8.50 | $0.00 | $0.00 | $17.00 | $0.00 |
| 2023 | 11632 | FPLCA - DNR Landowner Contingency Assmt | $3.00 | $3.00 | $0.00 | $0.00 | $6.00 | $0.00 |
| 2023 | 11632 | JCCD - JC Conservation District | $2.80 | $2.80 | $0.00 | $0.00 | $5.60 | $0.00 |
| 2023 | 11632 | NWA - Noxious Weed Assessment | $2.90 | $2.90 | $0.00 | $0.00 | $5.80 | $0.00 |
| 2023 | 11632 | OSS - On Site Septic | $20.50 | $20.50 | $0.00 | $0.00 | $41.00 | $0.00 |
| 2023 | 11632 | WAT - Clean Water District | $12.00 | $12.00 | $0.00 | $0.00 | $24.00 | $0.00 |
| 2023 | 11632 | FP ADMIN - FP ADMIN | $0.50 | $0.00 | $0.00 | $0.00 | $0.50 | $0.00 |
| 2023 | 11632 | TOTAL: | $1857.20 | $1856.63 | $0.00 | $0.00 | $3713.83 | $0.00 |
|
| 2023 | 11632 | $1857.20 | $1856.63 | $0.00 | $0.00 | $3713.83 | $0.00 |
Values
| (+) Improvement Homesite Value: | + | $0 | |
| (+) Improvement Non-Homesite Value: | + | $555,182 | |
| (+) Land Homesite Value: | + | $0 | |
| (+) Land Non-Homesite Value: | + | $204,446 | |
| (+) Curr Use (HS): | + | $0 | $0 |
| (+) Curr Use (NHS): | + | $0 | $0 |
| | | -------------------------- | |
| (=) Market Value: | = | $759,628 | |
| (–) Productivity Loss: | – | $0 | |
| | | -------------------------- | |
| (=) Subtotal: | = | $759,628 | |
| (+) Senior Appraised Value: | + | $0 | |
| (+) Non-Senior Appraised Value: | + | $759,628 | |
| | | -------------------------- | |
| (=) Total Appraised Value: | = | $759,628 | |
| (–) Senior Exemption Loss: | – | $0 | |
| (–) Exemption Loss: | – | $0 | |
| | | -------------------------- | |
| (=) Taxable Value: | = | $759,628 | |
Taxing Jurisdiction
| Owner: | CATHERINE R HERZOG | | |
| % Ownership: | 100.0000000000% | | |
| Total Value: | $759,628 | | |
| Tax Area: | 0211 - 1-49F1E1H2L1 |
| CE | COUNTY CURRENT EXPENSE | 0.9034619479 | $759,628 | $759,628 | $686.29 | | |
| CNTYDD | DEVELOPMENTAL DISABILITIES | 0.0052121823 | $759,628 | $759,628 | $3.96 | | |
| CNTYVET | VETERANS RELIEF | 0.0052777810 | $759,628 | $759,628 | $4.01 | | |
| MENTAL | MENTAL HEALTH | 0.0052121823 | $759,628 | $759,628 | $3.96 | | |
| ROADS | COUNTY ROADS | 0.7415066410 | $759,628 | $759,628 | $563.27 | | |
| ROADSCU | COUNTY ROADS TO CUR EXP | 0.0000000000 | $759,628 | $759,628 | $0.00 | | |
| HOSP2CASH | HOSP DIST #2 GENERAL | 0.0536075306 | $759,628 | $759,628 | $40.72 | | |
| SCH49CP | SCHOOL DIST #49 CAP PROJ | 0.6279093905 | $759,628 | $759,628 | $476.98 | | |
| SCH49MO | SCHOOL DIST #49 EP & O | 0.6376483602 | $759,628 | $759,628 | $484.38 | | |
| CONSERVE | CONSERVATION FUTURES | 0.0275621078 | $759,628 | $759,628 | $20.94 | | |
| EMS1 | FIRE DIST #1 EMS | 0.4679948282 | $759,628 | $759,628 | $355.50 | | |
| FD1 | FIRE DIST #1 GENERAL | 1.2171942929 | $759,628 | $759,628 | $924.61 | | |
| LIB1 | LIBRARY DIST #1 GENERAL | 0.2868827388 | $759,628 | $759,628 | $217.92 | | |
| PORTPT | PORT OF PT GENERAL | 0.1134941229 | $759,628 | $759,628 | $86.21 | | |
| PORTPTIDD | PORT OF PT IDD 2019 | 0.2577346692 | $759,628 | $759,628 | $195.78 | | |
| PUD1 | PUD #1 GENERAL | 0.0597888892 | $759,628 | $759,628 | $45.42 | | |
| STATE | STATE SCHOOL PART 1 | 1.4940692947 | $759,628 | $759,628 | $1,134.94 | | |
| STATE2 | STATE SCHOOL PART 2 | 0.8050170049 | $759,628 | $759,628 | $611.51 | | |
| | Total Tax Rate: | 7.7095739644 | | | | | |
| | | | | Taxes w/Current Exemptions: | $5,856.40 | | |
| | | | | Taxes w/o Exemptions: | $5,856.40 | | |
Improvement / Building
| Improvement #1: | Residential Bldg | State Code: | 11 | 1671.0 sqft | Value: | $555,182 |
| Bathrooms (#): | 2 (FULL) | Bedrooms (#): | 2 | | Exterior Wall: | SI/ST | Floor Construction: | FRAME | | Foundation: | CONPR | Heating/Cooling: | ELBB | | Roof Cover: | METAL |   |   |
|
| | Type | Description | Class CD | Sub Class CD | Year Built | Area |
| | MA | Main Area | 4 | 1S | 2009 | 1671.0 |
| | PATIO | House Patio | 4 | * | 2009 | 258.0 |
| | HWPOR | House Wood Porch | 4 | * | 2009 | 186.0 |
| | HDECK | House Deck | 4 | * | 2009 | 45.0 |
| | GARAG | Garage (Table Not Dep) | 4 | * | 2009 | 560.0 |
| | SHED | Shed (Table Not Dep) | 4 | * | 2016 | 288.0 |
| | CARPTN | Carport W/O Floor | 4 | * | 2016 | 1116.0 |
| | ADDN | Addition (Table Not Dep) | 4 | 1S | 2016 | 720.0 |
| | HBAL | House Balcony | 4 | * | 2016 | 80.0 |
| | HDECK | House Deck | 4 | * | 2016 | 84.0 |
Sketch
Property Image
Land
| 1 | 4280-1374S | | 1.0000 | 43560.00 | 0.00 | 0.00 | 1.00 | $110,000 | $0 |
| 2 | 1572A | | 4.7700 | 207781.20 | 0.00 | 0.00 | 0.00 | $94,446 | $0 |
Roll Value History
| 2026 | N/A | N/A | N/A | N/A | N/A |
| 2025 | $555,182 | $204,446 | $0 | $759,628 | $759,628 |
| 2024 | $425,849 | $143,816 | $0 | $569,665 | $569,665 |
| 2023 | $406,492 | $130,775 | $0 | $537,267 | $537,267 |
| 2022 | $362,846 | $123,390 | $0 | $486,236 | $486,236 |
Deed and Sales History
| 1 | 08/22/2025 | SWD | Statutory Warranty Deed | PETER RUST | CATHERINE R HERZOG | | | $890,000.00 | 144845 | |
| 2 | 04/04/2007 | SWD | Statutory Warranty Deed | CALABRESE, JOSEPH A | RUST, PETER/LAURA | | | $114,900.00 | 108974 | 0 |
| 3 | 10/12/2005 | SWD | Statutory Warranty Deed | WILSON, GORDON & CHRISTIN | CALABRESE, JOSEPH A | 0 | 0 | $85,000.00 | 105171 | 0 |
Payout Agreement
| No payout information available.. |