Property
Account |
| Property ID: | 22217 | Abbreviated Legal Description: | S31 T29 R1W TAX NO.3 |
| Parcel # / Geo ID: | 901314007 | Agent Code: | |
| Type: | Real | | |
| Tax Area: | 0151 - 1-50F5E5H2L1 | Land Use Code | 91 |
| Open Space: | N | DFL | N |
| Historic Property: | N | Remodel Property: | N |
| Multi-Family Redevelopment: | N | | |
| Township: | 29N | Section: | 31 |
| Range: | 1W |
Location |
| Address: | | Mapsco: | 079/024 |
| Neighborhood: | S29, 30, 31, & 32 T29 R1W | Map ID: | |
| Neighborhood CD: | 5240 |
Owner |
| Name: | AMELIA A NORTON | Owner ID: | 23697 |
| Mailing Address: | 1032 OLD EAGLEMOUNT RD PORT TOWNSEND, WA 98368 | % Ownership: | 100.0000000000% |
| | | Exemptions: | |
Pay Tax Due
Select the appropriate checkbox next to the year to be paid. Multiple years may be selected.
*Convenience Fee not included
Taxes and Assessment Details
Property Tax Information as of
03/10/2026
Click on "Statement Details" to expand or collapse a tax statement.
* Please enter a valid date ** Please enter a valid date *
Statement Details |
| 2026 | 11678 | STATE - STATE LEVY (SCHOOL) | $31.13 | $31.13 | $0.00 | $0.00 | $0.00 | $62.26 |
| 2026 | 11678 | COUNTY - COUNTY LEVIES (CE, DD, VET, MH) | $12.45 | $12.44 | $0.00 | $0.00 | $0.00 | $24.89 |
| 2026 | 11678 | CONSERVE - CONSERVATION FUTURES | $0.38 | $0.37 | $0.00 | $0.00 | $0.00 | $0.75 |
| 2026 | 11678 | COROADS - COUNTY ROADS (ROADS, DIV TO CE) | $10.04 | $10.04 | $0.00 | $0.00 | $0.00 | $20.08 |
| 2026 | 11678 | PORTPT - PORT DISTRICT | $5.03 | $5.02 | $0.00 | $0.00 | $0.00 | $10.05 |
| 2026 | 11678 | PUD1 - PUD #1 | $0.81 | $0.81 | $0.00 | $0.00 | $0.00 | $1.62 |
| 2026 | 11678 | LIB1 - LIBRARY DIST #1 | $3.89 | $3.88 | $0.00 | $0.00 | $0.00 | $7.77 |
| 2026 | 11678 | HD2 - HOSP DIST #2 | $0.73 | $0.72 | $0.00 | $0.00 | $0.00 | $1.45 |
| 2026 | 11678 | SD50 - SCHOOL DIST #50 | $24.67 | $24.66 | $0.00 | $0.00 | $0.00 | $49.33 |
| 2026 | 11678 | FD5 - FIRE DISTRICT #5 | $14.47 | $14.46 | $0.00 | $0.00 | $0.00 | $28.93 |
| 2026 | 11678 | EMS5 - FIRE DIST #5 EMS | $5.16 | $5.16 | $0.00 | $0.00 | $0.00 | $10.32 |
| 2026 | 11678 | FPLCA - DNR Landowner Contingency Assmt | $3.00 | $3.00 | $0.00 | $0.00 | $0.00 | $6.00 |
| 2026 | 11678 | JCCD - JC Conservation District | $2.57 | $2.57 | $0.00 | $0.00 | $0.00 | $5.14 |
| 2026 | 11678 | NWA - Noxious Weed Assessment | $3.20 | $3.20 | $0.00 | $0.00 | $0.00 | $6.40 |
| 2026 | 11678 | WAT - Clean Water District | $13.00 | $13.00 | $0.00 | $0.00 | $0.00 | $26.00 |
| 2026 | 11678 | TOTAL: | $130.53 | $130.46 | $0.00 | $0.00 | $0.00 | $260.99 |
|
| 2026 | 11678 | $130.53 | $130.46 | $0.00 | $0.00 | $0.00 | $260.99 |
Statement Details |
| 2025 | 11704 | STATE - STATE LEVY (SCHOOL) | $32.47 | $32.47 | $0.00 | $0.00 | $64.94 | $0.00 |
| 2025 | 11704 | COUNTY - COUNTY LEVIES (CE, DD, VET, MH) | $12.77 | $12.76 | $0.00 | $0.00 | $25.53 | $0.00 |
| 2025 | 11704 | CONSERVE - CONSERVATION FUTURES | $0.39 | $0.38 | $0.00 | $0.00 | $0.77 | $0.00 |
| 2025 | 11704 | COROADS - COUNTY ROADS (ROADS, DIV TO CE) | $10.23 | $10.23 | $0.00 | $0.00 | $20.46 | $0.00 |
| 2025 | 11704 | PORTPT - PORT DISTRICT | $5.22 | $5.20 | $0.00 | $0.00 | $10.42 | $0.00 |
| 2025 | 11704 | PUD1 - PUD #1 | $0.84 | $0.83 | $0.00 | $0.00 | $1.67 | $0.00 |
| 2025 | 11704 | LIB1 - LIBRARY DIST #1 | $3.96 | $3.96 | $0.00 | $0.00 | $7.92 | $0.00 |
| 2025 | 11704 | HD2 - HOSP DIST #2 | $0.75 | $0.74 | $0.00 | $0.00 | $1.49 | $0.00 |
| 2025 | 11704 | SD50 - SCHOOL DIST #50 | $23.74 | $23.72 | $0.00 | $0.00 | $47.46 | $0.00 |
| 2025 | 11704 | FD5 - FIRE DISTRICT #5 | $14.92 | $14.90 | $0.00 | $0.00 | $29.82 | $0.00 |
| 2025 | 11704 | EMS5 - FIRE DIST #5 EMS | $5.30 | $5.30 | $0.00 | $0.00 | $10.60 | $0.00 |
| 2025 | 11704 | FPLCA - DNR Landowner Contingency Assmt | $3.00 | $3.00 | $0.00 | $0.00 | $6.00 | $0.00 |
| 2025 | 11704 | JCCD - JC Conservation District | $2.57 | $2.57 | $0.00 | $0.00 | $5.14 | $0.00 |
| 2025 | 11704 | NWA - Noxious Weed Assessment | $2.30 | $2.30 | $0.00 | $0.00 | $4.60 | $0.00 |
| 2025 | 11704 | WAT - Clean Water District | $13.00 | $13.00 | $0.00 | $0.00 | $26.00 | $0.00 |
| 2025 | 11704 | TOTAL: | $131.46 | $131.36 | $0.00 | $0.00 | $262.82 | $0.00 |
|
| 2025 | 11704 | $131.46 | $131.36 | $0.00 | $0.00 | $262.82 | $0.00 |
Statement Details |
| 2024 | 11730 | STATE - STATE LEVY (SCHOOL) | $29.82 | $29.81 | $0.00 | $0.00 | $59.63 | $0.00 |
| 2024 | 11730 | COUNTY - COUNTY LEVIES (CE, DD, VET, MH) | $12.76 | $12.75 | $0.00 | $0.00 | $25.51 | $0.00 |
| 2024 | 11730 | CONSERVE - CONSERVATION FUTURES | $0.39 | $0.38 | $0.00 | $0.00 | $0.77 | $0.00 |
| 2024 | 11730 | COROADS - COUNTY ROADS (ROADS, DIV TO CE) | $10.27 | $10.26 | $0.00 | $0.00 | $20.53 | $0.00 |
| 2024 | 11730 | PORTPT - PORT DISTRICT | $5.28 | $5.26 | $0.00 | $0.00 | $10.54 | $0.00 |
| 2024 | 11730 | PUD1 - PUD #1 | $0.84 | $0.84 | $0.00 | $0.00 | $1.68 | $0.00 |
| 2024 | 11730 | LIB1 - LIBRARY DIST #1 | $3.97 | $3.97 | $0.00 | $0.00 | $7.94 | $0.00 |
| 2024 | 11730 | HD2 - HOSP DIST #2 | $0.75 | $0.74 | $0.00 | $0.00 | $1.49 | $0.00 |
| 2024 | 11730 | SD50 - SCHOOL DIST #50 | $24.13 | $24.12 | $0.00 | $0.00 | $48.25 | $0.00 |
| 2024 | 11730 | FD5 - FIRE DISTRICT #5 | $14.92 | $14.90 | $0.00 | $0.00 | $29.82 | $0.00 |
| 2024 | 11730 | EMS5 - FIRE DIST #5 EMS | $5.12 | $5.11 | $0.00 | $0.00 | $10.23 | $0.00 |
| 2024 | 11730 | FPLCA - DNR Landowner Contingency Assmt | $3.00 | $3.00 | $0.00 | $0.00 | $6.00 | $0.00 |
| 2024 | 11730 | JCCD - JC Conservation District | $2.57 | $2.57 | $0.00 | $0.00 | $5.14 | $0.00 |
| 2024 | 11730 | NWA - Noxious Weed Assessment | $2.30 | $2.30 | $0.00 | $0.00 | $4.60 | $0.00 |
| 2024 | 11730 | WAT - Clean Water District | $12.50 | $12.50 | $0.00 | $0.00 | $25.00 | $0.00 |
| 2024 | 11730 | TOTAL: | $128.62 | $128.51 | $0.00 | $0.00 | $257.13 | $0.00 |
|
| 2024 | 11730 | $128.62 | $128.51 | $0.00 | $0.00 | $257.13 | $0.00 |
Statement Details |
| 2023 | 11750 | STATE - STATE LEVY (SCHOOL) | $28.73 | $28.72 | $0.00 | $0.00 | $57.45 | $0.00 |
| 2023 | 11750 | COUNTY - COUNTY LEVIES (CE, DD, VET, MH) | $12.53 | $12.53 | $0.00 | $0.00 | $25.06 | $0.00 |
| 2023 | 11750 | CONSERVE - CONSERVATION FUTURES | $0.38 | $0.37 | $0.00 | $0.00 | $0.75 | $0.00 |
| 2023 | 11750 | COROADS - COUNTY ROADS (ROADS, DIV TO CE) | $10.14 | $10.14 | $0.00 | $0.00 | $20.28 | $0.00 |
| 2023 | 11750 | PORTPT - PORT DISTRICT | $5.28 | $5.28 | $0.00 | $0.00 | $10.56 | $0.00 |
| 2023 | 11750 | PUD1 - PUD #1 | $0.83 | $0.83 | $0.00 | $0.00 | $1.66 | $0.00 |
| 2023 | 11750 | LIB1 - LIBRARY DIST #1 | $3.93 | $3.92 | $0.00 | $0.00 | $7.85 | $0.00 |
| 2023 | 11750 | HD2 - HOSP DIST #2 | $0.74 | $0.72 | $0.00 | $0.00 | $1.46 | $0.00 |
| 2023 | 11750 | SD50 - SCHOOL DIST #50 | $22.80 | $22.78 | $0.00 | $0.00 | $45.58 | $0.00 |
| 2023 | 11750 | FD5 - FIRE DISTRICT #5 | $14.92 | $14.91 | $0.00 | $0.00 | $29.83 | $0.00 |
| 2023 | 11750 | EMS5 - FIRE DIST #5 EMS | $4.91 | $4.90 | $0.00 | $0.00 | $9.81 | $0.00 |
| 2023 | 11750 | FPLCA - DNR Landowner Contingency Assmt | $3.00 | $3.00 | $0.00 | $0.00 | $6.00 | $0.00 |
| 2023 | 11750 | JCCD - JC Conservation District | $2.57 | $2.57 | $0.00 | $0.00 | $5.14 | $0.00 |
| 2023 | 11750 | NWA - Noxious Weed Assessment | $2.30 | $2.30 | $0.00 | $0.00 | $4.60 | $0.00 |
| 2023 | 11750 | WAT - Clean Water District | $12.00 | $12.00 | $0.00 | $0.00 | $24.00 | $0.00 |
| 2023 | 11750 | TOTAL: | $125.06 | $124.97 | $0.00 | $0.00 | $250.03 | $0.00 |
|
| 2023 | 11750 | $125.06 | $124.97 | $0.00 | $0.00 | $250.03 | $0.00 |
Values
| (+) Improvement Homesite Value: | + | $0 | |
| (+) Improvement Non-Homesite Value: | + | $0 | |
| (+) Land Homesite Value: | + | $0 | |
| (+) Land Non-Homesite Value: | + | $27,083 | |
| (+) Curr Use (HS): | + | $0 | $0 |
| (+) Curr Use (NHS): | + | $0 | $0 |
| | | -------------------------- | |
| (=) Market Value: | = | $27,083 | |
| (–) Productivity Loss: | – | $0 | |
| | | -------------------------- | |
| (=) Subtotal: | = | $27,083 | |
| (+) Senior Appraised Value: | + | $0 | |
| (+) Non-Senior Appraised Value: | + | $27,083 | |
| | | -------------------------- | |
| (=) Total Appraised Value: | = | $27,083 | |
| (–) Senior Exemption Loss: | – | $0 | |
| (–) Exemption Loss: | – | $0 | |
| | | -------------------------- | |
| (=) Taxable Value: | = | $27,083 | |
Taxing Jurisdiction
| Owner: | AMELIA A NORTON | | |
| % Ownership: | 100.0000000000% | | |
| Total Value: | $27,083 | | |
| Tax Area: | 0151 - 1-50F5E5H2L1 |
| CE | COUNTY CURRENT EXPENSE | 0.9034619479 | $27,083 | $27,083 | $24.47 | | |
| CNTYDD | DEVELOPMENTAL DISABILITIES | 0.0052121823 | $27,083 | $27,083 | $0.14 | | |
| CNTYVET | VETERANS RELIEF | 0.0052777810 | $27,083 | $27,083 | $0.14 | | |
| MENTAL | MENTAL HEALTH | 0.0052121823 | $27,083 | $27,083 | $0.14 | | |
| ROADS | COUNTY ROADS | 0.7415066410 | $27,083 | $27,083 | $20.08 | | |
| ROADSCU | COUNTY ROADS TO CUR EXP | 0.0000000000 | $27,083 | $27,083 | $0.00 | | |
| HOSP2CASH | HOSP DIST #2 GENERAL | 0.0536075306 | $27,083 | $27,083 | $1.45 | | |
| SCH50BOND | SCHOOL DIST #50 BOND 2016 | 0.5377451389 | $27,083 | $27,083 | $14.56 | | |
| SCH50CP | SCHOOL DIST #50 CAP PROJ | 0.4573475088 | $27,083 | $27,083 | $12.39 | | |
| SCH50MO | SCHOOL DIST #50 EP & O | 0.8262822886 | $27,083 | $27,083 | $22.38 | | |
| CONSERVE | CONSERVATION FUTURES | 0.0275621078 | $27,083 | $27,083 | $0.75 | | |
| EMS5 | FIRE DIST #5 EMS | 0.3811607070 | $27,083 | $27,083 | $10.32 | | |
| FD5 | FIRE DIST #5 GENERAL | 0.8460827285 | $27,083 | $27,083 | $22.91 | | |
| FD5BOND | FIRE DIST #5 BOND 2016 | 0.2222840608 | $27,083 | $27,083 | $6.02 | | |
| LIB1 | LIBRARY DIST #1 GENERAL | 0.2868827388 | $27,083 | $27,083 | $7.77 | | |
| PORTPT | PORT OF PT GENERAL | 0.1134941229 | $27,083 | $27,083 | $3.07 | | |
| PORTPTIDD | PORT OF PT IDD 2019 | 0.2577346692 | $27,083 | $27,083 | $6.98 | | |
| PUD1 | PUD #1 GENERAL | 0.0597888892 | $27,083 | $27,083 | $1.62 | | |
| STATE | STATE SCHOOL PART 1 | 1.4940692947 | $27,083 | $27,083 | $40.46 | | |
| STATE2 | STATE SCHOOL PART 2 | 0.8050170049 | $27,083 | $27,083 | $21.80 | | |
| | Total Tax Rate: | 8.0297295252 | | | | | |
| | | | | Taxes w/Current Exemptions: | $217.45 | | |
| | | | | Taxes w/o Exemptions: | $217.45 | | |
Improvement / Building
Sketch
| No sketches available for this property. |
Property Image
Land
| 1 | 5240-1385S | | 1.0000 | 43560.00 | 0.00 | 0.00 | 1.00 | $24,750 | $0 |
| 2 | 1579A | | 0.3900 | 16988.40 | 0.00 | 0.00 | 0.00 | $2,333 | $0 |
Roll Value History
| 2026 | N/A | N/A | N/A | N/A | N/A |
| 2025 | $0 | $27,083 | $0 | $27,083 | $27,083 |
| 2024 | $0 | $27,083 | $0 | $27,083 | $27,083 |
| 2023 | $0 | $25,775 | $0 | $25,775 | $25,775 |
| 2022 | $0 | $24,401 | $0 | $24,401 | $24,401 |
Deed and Sales History
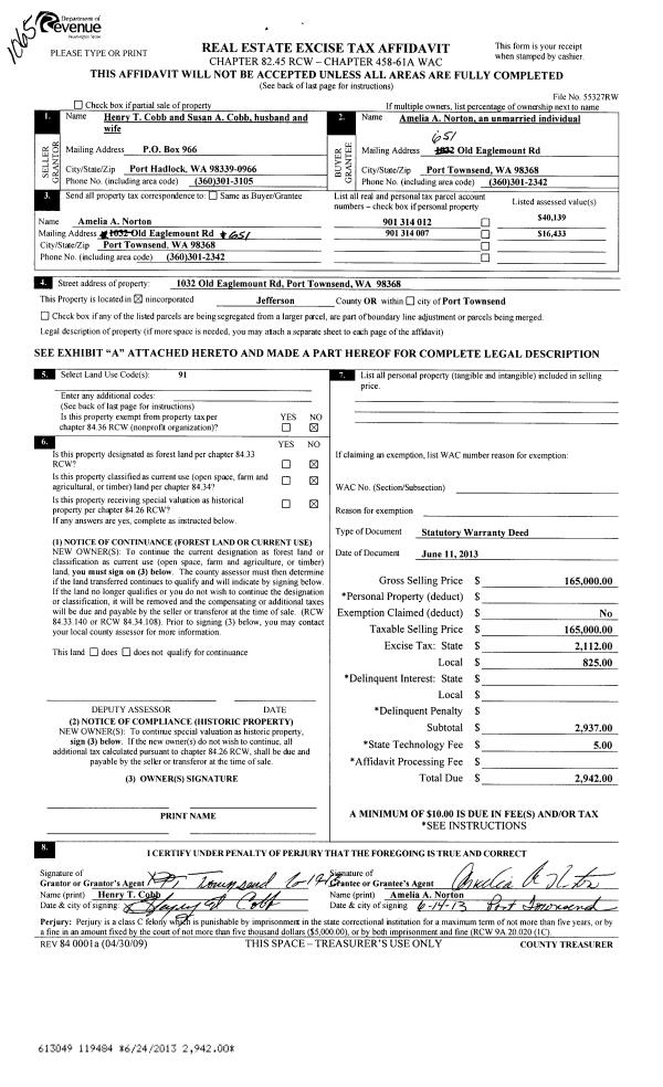
| 1 | 06/11/2013 | SWD | Statutory Warranty Deed | HENRY T COBB | AMELIA A NORTON | | | $165,000.00 | 119484 | |
|   | |
| 2 | 05/06/1999 | SWD | Statutory Warranty Deed | GERMEAU, JACK P | COBB, HENRY T/SUSAN A | 0 | 0 | $20,000.00 | 86952 | 0 |
Payout Agreement
| No payout information available.. |