Property
Account |
| Property ID: | 22279 | Abbreviated Legal Description: | S34 T29 R1W TAX 12 |
| Parcel # / Geo ID: | 901342002 | Agent Code: | |
| Type: | Real | | |
| Tax Area: | 0211 - 1-49F1E1H2L1 | Land Use Code | 11 |
| Open Space: | N | DFL | N |
| Historic Property: | N | Remodel Property: | N |
| Multi-Family Redevelopment: | N | | |
| Township: | 29N | Section: | 34 |
| Range: | 1W |
Location |
| Address: | 3430 WEST VALLEY RD CHIMACUM, WA 98325 | Mapsco: | 221/092 |
| Neighborhood: | S28, S33, & S34 T29N R1W; PUTAS, LOWELL DAY A&B, STIEVE SPLT | Map ID: | |
| Neighborhood CD: | 4285 |
Owner |
| Name: | SASHA M CROWELL | Owner ID: | 93009 |
| Mailing Address: | 3430 W VALLEY RD CHIMACUM, WA 98325-9751 | % Ownership: | 100.0000000000% |
| | | Exemptions: | |
Pay Tax Due
Select the appropriate checkbox next to the year to be paid. Multiple years may be selected.
*Convenience Fee not included
Taxes and Assessment Details
Property Tax Information as of
03/12/2026
Click on "Statement Details" to expand or collapse a tax statement.
* Please enter a valid date ** Please enter a valid date *
Statement Details |
| 2026 | 11738 | STATE - STATE LEVY (SCHOOL) | $830.04 | $830.03 | $0.00 | $0.00 | $0.00 | $1660.07 |
| 2026 | 11738 | COUNTY - COUNTY LEVIES (CE, DD, VET, MH) | $331.85 | $331.83 | $0.00 | $0.00 | $0.00 | $663.68 |
| 2026 | 11738 | CONSERVE - CONSERVATION FUTURES | $9.95 | $9.95 | $0.00 | $0.00 | $0.00 | $19.90 |
| 2026 | 11738 | COROADS - COUNTY ROADS (ROADS, DIV TO CE) | $267.71 | $267.70 | $0.00 | $0.00 | $0.00 | $535.41 |
| 2026 | 11738 | PORTPT - PORT DISTRICT | $134.03 | $134.02 | $0.00 | $0.00 | $0.00 | $268.05 |
| 2026 | 11738 | PUD1 - PUD #1 | $21.59 | $21.58 | $0.00 | $0.00 | $0.00 | $43.17 |
| 2026 | 11738 | LIB1 - LIBRARY DIST #1 | $103.57 | $103.57 | $0.00 | $0.00 | $0.00 | $207.14 |
| 2026 | 11738 | HD2 - HOSP DIST #2 | $19.36 | $19.35 | $0.00 | $0.00 | $0.00 | $38.71 |
| 2026 | 11738 | SD49 - SCHOOL DIST #49 | $456.90 | $456.90 | $0.00 | $0.00 | $0.00 | $913.80 |
| 2026 | 11738 | FD1 - FIRE DISTRICT #1 | $439.44 | $439.44 | $0.00 | $0.00 | $0.00 | $878.88 |
| 2026 | 11738 | EMS1 - FIRE DIST #1 EMS | $168.96 | $168.96 | $0.00 | $0.00 | $0.00 | $337.92 |
| 2026 | 11738 | FP - DNR Forest Fire Protection Assmt | $8.50 | $8.50 | $0.00 | $0.00 | $0.00 | $17.00 |
| 2026 | 11738 | FPLCA - DNR Landowner Contingency Assmt | $3.00 | $3.00 | $0.00 | $0.00 | $0.00 | $6.00 |
| 2026 | 11738 | JCCD - JC Conservation District | $3.15 | $3.15 | $0.00 | $0.00 | $0.00 | $6.30 |
| 2026 | 11738 | NWA - Noxious Weed Assessment | $5.68 | $5.67 | $0.00 | $0.00 | $0.00 | $11.35 |
| 2026 | 11738 | OSS - On Site Septic | $23.10 | $23.10 | $0.00 | $0.00 | $0.00 | $46.20 |
| 2026 | 11738 | WAT - Clean Water District | $13.00 | $13.00 | $0.00 | $0.00 | $0.00 | $26.00 |
| 2026 | 11738 | FP ADMIN - FP ADMIN | $0.50 | $0.00 | $0.00 | $0.00 | $0.00 | $0.50 |
| 2026 | 11738 | TOTAL: | $2840.33 | $2839.75 | $0.00 | $0.00 | $0.00 | $5680.08 |
|
| 2026 | 11738 | $2840.33 | $2839.75 | $0.00 | $0.00 | $0.00 | $5680.08 |
Statement Details |
| 2025 | 11764 | STATE - STATE LEVY (SCHOOL) | $827.58 | $827.57 | $0.00 | $0.00 | $1655.15 | $0.00 |
| 2025 | 11764 | COUNTY - COUNTY LEVIES (CE, DD, VET, MH) | $325.45 | $325.43 | $0.00 | $0.00 | $650.88 | $0.00 |
| 2025 | 11764 | CONSERVE - CONSERVATION FUTURES | $9.76 | $9.76 | $0.00 | $0.00 | $19.52 | $0.00 |
| 2025 | 11764 | COROADS - COUNTY ROADS (ROADS, DIV TO CE) | $260.73 | $260.72 | $0.00 | $0.00 | $521.45 | $0.00 |
| 2025 | 11764 | PORTPT - PORT DISTRICT | $132.81 | $132.79 | $0.00 | $0.00 | $265.60 | $0.00 |
| 2025 | 11764 | PUD1 - PUD #1 | $21.30 | $21.29 | $0.00 | $0.00 | $42.59 | $0.00 |
| 2025 | 11764 | LIB1 - LIBRARY DIST #1 | $100.88 | $100.87 | $0.00 | $0.00 | $201.75 | $0.00 |
| 2025 | 11764 | HD2 - HOSP DIST #2 | $18.99 | $18.98 | $0.00 | $0.00 | $37.97 | $0.00 |
| 2025 | 11764 | SD49 - SCHOOL DIST #49 | $443.53 | $443.53 | $0.00 | $0.00 | $887.06 | $0.00 |
| 2025 | 11764 | FD1 - FIRE DISTRICT #1 | $429.46 | $429.45 | $0.00 | $0.00 | $858.91 | $0.00 |
| 2025 | 11764 | EMS1 - FIRE DIST #1 EMS | $165.18 | $165.18 | $0.00 | $0.00 | $330.36 | $0.00 |
| 2025 | 11764 | FP - DNR Forest Fire Protection Assmt | $8.50 | $8.50 | $0.00 | $0.00 | $17.00 | $0.00 |
| 2025 | 11764 | FPLCA - DNR Landowner Contingency Assmt | $3.00 | $3.00 | $0.00 | $0.00 | $6.00 | $0.00 |
| 2025 | 11764 | JCCD - JC Conservation District | $3.15 | $3.15 | $0.00 | $0.00 | $6.30 | $0.00 |
| 2025 | 11764 | NWA - Noxious Weed Assessment | $3.95 | $3.95 | $0.00 | $0.00 | $7.90 | $0.00 |
| 2025 | 11764 | OSS - On Site Septic | $21.50 | $21.50 | $0.00 | $0.00 | $43.00 | $0.00 |
| 2025 | 11764 | WAT - Clean Water District | $13.00 | $13.00 | $0.00 | $0.00 | $26.00 | $0.00 |
| 2025 | 11764 | FP ADMIN - FP ADMIN | $0.50 | $0.00 | $0.00 | $0.00 | $0.50 | $0.00 |
| 2025 | 11764 | TOTAL: | $2789.27 | $2788.67 | $0.00 | $0.00 | $5577.94 | $0.00 |
|
| 2025 | 11764 | $2789.27 | $2788.67 | $0.00 | $0.00 | $5577.94 | $0.00 |
Statement Details |
| 2024 | 11790 | STATE - STATE LEVY (SCHOOL) | $727.64 | $727.62 | $0.00 | $0.00 | $1455.26 | $0.00 |
| 2024 | 11790 | COUNTY - COUNTY LEVIES (CE, DD, VET, MH) | $311.37 | $311.36 | $0.00 | $0.00 | $622.73 | $0.00 |
| 2024 | 11790 | CONSERVE - CONSERVATION FUTURES | $9.34 | $9.33 | $0.00 | $0.00 | $18.67 | $0.00 |
| 2024 | 11790 | COROADS - COUNTY ROADS (ROADS, DIV TO CE) | $250.54 | $250.54 | $0.00 | $0.00 | $501.08 | $0.00 |
| 2024 | 11790 | PORTPT - PORT DISTRICT | $128.61 | $128.60 | $0.00 | $0.00 | $257.21 | $0.00 |
| 2024 | 11790 | PUD1 - PUD #1 | $20.45 | $20.45 | $0.00 | $0.00 | $40.90 | $0.00 |
| 2024 | 11790 | LIB1 - LIBRARY DIST #1 | $96.94 | $96.93 | $0.00 | $0.00 | $193.87 | $0.00 |
| 2024 | 11790 | HD2 - HOSP DIST #2 | $18.17 | $18.16 | $0.00 | $0.00 | $36.33 | $0.00 |
| 2024 | 11790 | SD49 - SCHOOL DIST #49 | $324.93 | $324.91 | $0.00 | $0.00 | $649.84 | $0.00 |
| 2024 | 11790 | FD1 - FIRE DISTRICT #1 | $411.70 | $411.69 | $0.00 | $0.00 | $823.39 | $0.00 |
| 2024 | 11790 | EMS1 - FIRE DIST #1 EMS | $157.25 | $157.25 | $0.00 | $0.00 | $314.50 | $0.00 |
| 2024 | 11790 | FP - DNR Forest Fire Protection Assmt | $8.50 | $8.50 | $0.00 | $0.00 | $17.00 | $0.00 |
| 2024 | 11790 | FPLCA - DNR Landowner Contingency Assmt | $3.00 | $3.00 | $0.00 | $0.00 | $6.00 | $0.00 |
| 2024 | 11790 | JCCD - JC Conservation District | $3.15 | $3.15 | $0.00 | $0.00 | $6.30 | $0.00 |
| 2024 | 11790 | NWA - Noxious Weed Assessment | $3.95 | $3.95 | $0.00 | $0.00 | $7.90 | $0.00 |
| 2024 | 11790 | OSS - On Site Septic | $21.00 | $21.00 | $0.00 | $0.00 | $42.00 | $0.00 |
| 2024 | 11790 | WAT - Clean Water District | $12.50 | $12.50 | $0.00 | $0.00 | $25.00 | $0.00 |
| 2024 | 11790 | FP ADMIN - FP ADMIN | $0.50 | $0.00 | $0.00 | $0.00 | $0.50 | $0.00 |
| 2024 | 11790 | TOTAL: | $2509.54 | $2508.94 | $0.00 | $0.00 | $5018.48 | $0.00 |
|
| 2024 | 11790 | $2509.54 | $2508.94 | $0.00 | $0.00 | $5018.48 | $0.00 |
Statement Details |
| 2023 | 11810 | STATE - STATE LEVY (SCHOOL) | $414.36 | $414.35 | $0.00 | $0.00 | $828.71 | $0.00 |
| 2023 | 11810 | COUNTY - COUNTY LEVIES (CE, DD, VET, MH) | $180.82 | $180.80 | $0.00 | $0.00 | $361.62 | $0.00 |
| 2023 | 11810 | CONSERVE - CONSERVATION FUTURES | $5.42 | $5.42 | $0.00 | $0.00 | $10.84 | $0.00 |
| 2023 | 11810 | COROADS - COUNTY ROADS (ROADS, DIV TO CE) | $146.30 | $146.28 | $0.00 | $0.00 | $292.58 | $0.00 |
| 2023 | 11810 | PORTPT - PORT DISTRICT | $76.17 | $76.16 | $0.00 | $0.00 | $152.33 | $0.00 |
| 2023 | 11810 | PUD1 - PUD #1 | $11.99 | $11.98 | $0.00 | $0.00 | $23.97 | $0.00 |
| 2023 | 11810 | LIB1 - LIBRARY DIST #1 | $56.60 | $56.60 | $0.00 | $0.00 | $113.20 | $0.00 |
| 2023 | 11810 | HD2 - HOSP DIST #2 | $10.56 | $10.55 | $0.00 | $0.00 | $21.11 | $0.00 |
| 2023 | 11810 | SD49 - SCHOOL DIST #49 | $193.69 | $193.69 | $0.00 | $0.00 | $387.38 | $0.00 |
| 2023 | 11810 | FD1 - FIRE DISTRICT #1 | $148.96 | $148.95 | $0.00 | $0.00 | $297.91 | $0.00 |
| 2023 | 11810 | EMS1 - FIRE DIST #1 EMS | $63.36 | $63.36 | $0.00 | $0.00 | $126.72 | $0.00 |
| 2023 | 11810 | FP - DNR Forest Fire Protection Assmt | $8.50 | $8.50 | $0.00 | $0.00 | $17.00 | $0.00 |
| 2023 | 11810 | FPLCA - DNR Landowner Contingency Assmt | $3.00 | $3.00 | $0.00 | $0.00 | $6.00 | $0.00 |
| 2023 | 11810 | JCCD - JC Conservation District | $3.15 | $3.15 | $0.00 | $0.00 | $6.30 | $0.00 |
| 2023 | 11810 | NWA - Noxious Weed Assessment | $3.95 | $3.95 | $0.00 | $0.00 | $7.90 | $0.00 |
| 2023 | 11810 | OSS - On Site Septic | $20.50 | $20.50 | $0.00 | $0.00 | $41.00 | $0.00 |
| 2023 | 11810 | WAT - Clean Water District | $12.00 | $12.00 | $0.00 | $0.00 | $24.00 | $0.00 |
| 2023 | 11810 | FP ADMIN - FP ADMIN | $0.50 | $0.00 | $0.00 | $0.00 | $0.50 | $0.00 |
| 2023 | 11810 | TOTAL: | $1359.83 | $1359.24 | $0.00 | $0.00 | $2719.07 | $0.00 |
|
| 2023 | 11810 | $1359.83 | $1359.24 | $0.00 | $0.00 | $2719.07 | $0.00 |
Values
| (+) Improvement Homesite Value: | + | $0 | |
| (+) Improvement Non-Homesite Value: | + | $497,082 | |
| (+) Land Homesite Value: | + | $0 | |
| (+) Land Non-Homesite Value: | + | $224,972 | |
| (+) Curr Use (HS): | + | $0 | $0 |
| (+) Curr Use (NHS): | + | $0 | $0 |
| | | -------------------------- | |
| (=) Market Value: | = | $722,054 | |
| (–) Productivity Loss: | – | $0 | |
| | | -------------------------- | |
| (=) Subtotal: | = | $722,054 | |
| (+) Senior Appraised Value: | + | $0 | |
| (+) Non-Senior Appraised Value: | + | $722,054 | |
| | | -------------------------- | |
| (=) Total Appraised Value: | = | $722,054 | |
| (–) Senior Exemption Loss: | – | $0 | |
| (–) Exemption Loss: | – | $0 | |
| | | -------------------------- | |
| (=) Taxable Value: | = | $722,054 | |
Taxing Jurisdiction
| Owner: | SASHA M CROWELL | | |
| % Ownership: | 100.0000000000% | | |
| Total Value: | $722,054 | | |
| Tax Area: | 0211 - 1-49F1E1H2L1 |
| CE | COUNTY CURRENT EXPENSE | 0.9034619479 | $722,054 | $722,054 | $652.35 | | |
| CNTYDD | DEVELOPMENTAL DISABILITIES | 0.0052121823 | $722,054 | $722,054 | $3.76 | | |
| CNTYVET | VETERANS RELIEF | 0.0052777810 | $722,054 | $722,054 | $3.81 | | |
| MENTAL | MENTAL HEALTH | 0.0052121823 | $722,054 | $722,054 | $3.76 | | |
| ROADS | COUNTY ROADS | 0.7415066410 | $722,054 | $722,054 | $535.41 | | |
| ROADSCU | COUNTY ROADS TO CUR EXP | 0.0000000000 | $722,054 | $722,054 | $0.00 | | |
| HOSP2CASH | HOSP DIST #2 GENERAL | 0.0536075306 | $722,054 | $722,054 | $38.71 | | |
| SCH49CP | SCHOOL DIST #49 CAP PROJ | 0.6279093905 | $722,054 | $722,054 | $453.38 | | |
| SCH49MO | SCHOOL DIST #49 EP & O | 0.6376483602 | $722,054 | $722,054 | $460.42 | | |
| CONSERVE | CONSERVATION FUTURES | 0.0275621078 | $722,054 | $722,054 | $19.90 | | |
| EMS1 | FIRE DIST #1 EMS | 0.4679948282 | $722,054 | $722,054 | $337.92 | | |
| FD1 | FIRE DIST #1 GENERAL | 1.2171942929 | $722,054 | $722,054 | $878.88 | | |
| LIB1 | LIBRARY DIST #1 GENERAL | 0.2868827388 | $722,054 | $722,054 | $207.14 | | |
| PORTPT | PORT OF PT GENERAL | 0.1134941229 | $722,054 | $722,054 | $81.95 | | |
| PORTPTIDD | PORT OF PT IDD 2019 | 0.2577346692 | $722,054 | $722,054 | $186.10 | | |
| PUD1 | PUD #1 GENERAL | 0.0597888892 | $722,054 | $722,054 | $43.17 | | |
| STATE | STATE SCHOOL PART 1 | 1.4940692947 | $722,054 | $722,054 | $1,078.80 | | |
| STATE2 | STATE SCHOOL PART 2 | 0.8050170049 | $722,054 | $722,054 | $581.27 | | |
| | Total Tax Rate: | 7.7095739644 | | | | | |
| | | | | Taxes w/Current Exemptions: | $5,566.73 | | |
| | | | | Taxes w/o Exemptions: | $5,566.73 | | |
Improvement / Building
| Improvement #1: | Residential Bldg | State Code: | 11 | 1288.0 sqft | Value: | $497,082 |
| Bathrooms (#): | 1 (FULL) | Bathrooms (#): | 1 (HALF) | | Bedrooms (#): | 3 | Exterior Wall: | SI/ST | | Fireplace: | DBL 2-GOOD | Floor Construction: | FRAME | | Foundation: | CONBL | Heating/Cooling: | F/A | | Roof Cover: | COMP |   |   |
|
| | Type | Description | Class CD | Sub Class CD | Year Built | Area |
| | MA | Main Area | 4+ | 1S | 1968 | 1288.0 |
| | BARN | Barn (Table Not Dep) | 4 | * | 1968 | 1728.0 |
| | BSMTF | House basement finished | 3 | * | 1968 | 864.0 |
| | BSMTU | House basement unfinished | 3 | * | 1968 | 378.0 |
| | HDECK | House Deck | 4 | * | 1968 | 1008.0 |
| | CARPT | Carport (Table Not Dep) | 3 | * | 1968 | 820.0 |
| | OTHER | Other | 4 | * | 1968 | 0.0 |
Sketch
Property Image
Land
| 1 | 1677A | | 11.0400 | 480902.40 | 0.00 | 0.00 | 0.00 | $81,972 | $0 |
| 2 | 4285-1373S | | 1.0000 | 43560.00 | 0.00 | 0.00 | 1.00 | $143,000 | $0 |
Roll Value History
| 2026 | N/A | N/A | N/A | N/A | N/A |
| 2025 | $497,082 | $224,972 | $0 | $722,054 | $722,054 |
| 2024 | $475,470 | $214,746 | $0 | $690,216 | $690,216 |
| 2023 | $432,245 | $196,760 | $0 | $629,005 | $629,005 |
| 2022 | $215,779 | $136,240 | $0 | $352,019 | $352,019 |
Deed and Sales History
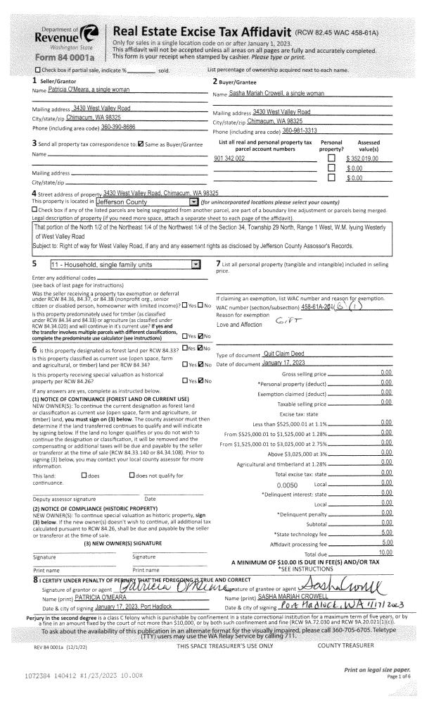
| 1 | 01/17/2023 | QCD | Quit Claim Deed | PATRICIA O'MEARA | SASHA M CROWELL | | | | 140412 | |
| 2 | 02/26/2010 | QCD | Quit Claim Deed | KEYSAR, HIROE | O'MEARA, PATRICIA | 0 | 0 | $0.00 | 114120 | 0 |
| 3 | 05/10/2005 | SWD | Statutory Warranty Deed | KRAUER, WILLIAM L | O'MEARA, PATRICIA/KEYSAR,HIROE | | | $240,000.00 | 104046 | 0 |
| 4 | 05/01/2003 | SWD | Statutory Warranty Deed | SEE, ALAN & CONSTANCE | KRAUER, WILLIAM L | 0 | 0 | $212,500.00 | 97261 | 0 |
| 5 | 02/27/1998 | SWD | Statutory Warranty Deed | WYATT, WILLIAM M/JOHANNA | SEE, ALAN D/CONSTANCE A | 0 | 0 | $180,000.00 | 83940 | 0 |
Payout Agreement
| No payout information available.. |