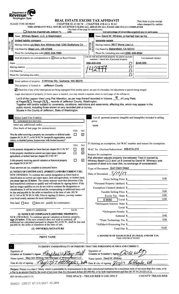
Property
Account |
| Property ID: | 22293 | Abbreviated Legal Description: | LOWELL DAY SHORT PLAT #A LOT 4 |
| Parcel # / Geo ID: | 901342017 | Agent Code: | |
| Type: | Real | | |
| Tax Area: | 0211 - 1-49F1E1H2L1 | Land Use Code | 11 |
| Open Space: | N | DFL | N |
| Historic Property: | N | Remodel Property: | N |
| Multi-Family Redevelopment: | N | | |
| Township: | 29N | Section: | 34 |
| Range: | 1W |
Location |
| Address: | 160 GIBBS LAKE RD CHIMACUM, WA 98325 | Mapsco: | 236/078 |
| Neighborhood: | S28, S33, & S34 T29N R1W; PUTAS, LOWELL DAY A&B, STIEVE SPLT | Map ID: | |
| Neighborhood CD: | 4285 |
Owner |
| Name: | MARILYN L KENNEDY | Owner ID: | 19714 |
| Mailing Address: | 160 GIBBS LAKE RD CHIMACUM, WA 98325-9726 | % Ownership: | 100.0000000000% |
| | | Exemptions: | SNR/DSBL |
Pay Tax Due
Select the appropriate checkbox next to the year to be paid. Multiple years may be selected.
*Convenience Fee not included
Taxes and Assessment Details
Property Tax Information as of
03/11/2026
Click on "Statement Details" to expand or collapse a tax statement.
* Please enter a valid date ** Please enter a valid date *
Statement Details |
| 2026 | 11752 | STATE - STATE LEVY (SCHOOL) | $0.73 | $0.72 | $0.00 | $0.00 | $0.00 | $1.45 |
| 2026 | 11752 | COUNTY - COUNTY LEVIES (CE, DD, VET, MH) | $0.47 | $0.44 | $0.00 | $0.00 | $0.00 | $0.91 |
| 2026 | 11752 | CONSERVE - CONSERVATION FUTURES | $0.02 | $0.01 | $0.00 | $0.00 | $0.00 | $0.03 |
| 2026 | 11752 | COROADS - COUNTY ROADS (ROADS, DIV TO CE) | $0.36 | $0.36 | $0.00 | $0.00 | $0.00 | $0.72 |
| 2026 | 11752 | PORTPT - PORT DISTRICT | $0.19 | $0.17 | $0.00 | $0.00 | $0.00 | $0.36 |
| 2026 | 11752 | PUD1 - PUD #1 | $0.03 | $0.03 | $0.00 | $0.00 | $0.00 | $0.06 |
| 2026 | 11752 | LIB1 - LIBRARY DIST #1 | $0.14 | $0.14 | $0.00 | $0.00 | $0.00 | $0.28 |
| 2026 | 11752 | HD2 - HOSP DIST #2 | $0.03 | $0.02 | $0.00 | $0.00 | $0.00 | $0.05 |
| 2026 | 11752 | SD49 - SCHOOL DIST #49 | $0.00 | $0.00 | $0.00 | $0.00 | $0.00 | $0.00 |
| 2026 | 11752 | FD1 - FIRE DISTRICT #1 | $0.59 | $0.59 | $0.00 | $0.00 | $0.00 | $1.18 |
| 2026 | 11752 | EMS1 - FIRE DIST #1 EMS | $0.23 | $0.22 | $0.00 | $0.00 | $0.00 | $0.45 |
| 2026 | 11752 | FP - DNR Forest Fire Protection Assmt | $8.50 | $8.50 | $0.00 | $0.00 | $0.00 | $17.00 |
| 2026 | 11752 | FPLCA - DNR Landowner Contingency Assmt | $3.00 | $3.00 | $0.00 | $0.00 | $0.00 | $6.00 |
| 2026 | 11752 | OSS - On Site Septic | $23.10 | $23.10 | $0.00 | $0.00 | $0.00 | $46.20 |
| 2026 | 11752 | FP ADMIN - FP ADMIN | $0.50 | $0.00 | $0.00 | $0.00 | $0.00 | $0.50 |
| 2026 | 11752 | TOTAL: | $37.89 | $37.30 | $0.00 | $0.00 | $0.00 | $75.19 |
|
| 2026 | 11752 | $37.89 | $37.30 | $0.00 | $0.00 | $0.00 | $75.19 |
Statement Details |
| 2025 | 11778 | STATE - STATE LEVY (SCHOOL) | $0.76 | $0.75 | $0.00 | $0.00 | $1.51 | $0.00 |
| 2025 | 11778 | COUNTY - COUNTY LEVIES (CE, DD, VET, MH) | $0.48 | $0.45 | $0.00 | $0.00 | $0.93 | $0.00 |
| 2025 | 11778 | CONSERVE - CONSERVATION FUTURES | $0.02 | $0.01 | $0.00 | $0.00 | $0.03 | $0.00 |
| 2025 | 11778 | COROADS - COUNTY ROADS (ROADS, DIV TO CE) | $0.37 | $0.36 | $0.00 | $0.00 | $0.73 | $0.00 |
| 2025 | 11778 | PORTPT - PORT DISTRICT | $0.19 | $0.18 | $0.00 | $0.00 | $0.37 | $0.00 |
| 2025 | 11778 | PUD1 - PUD #1 | $0.03 | $0.03 | $0.00 | $0.00 | $0.06 | $0.00 |
| 2025 | 11778 | LIB1 - LIBRARY DIST #1 | $0.14 | $0.14 | $0.00 | $0.00 | $0.28 | $0.00 |
| 2025 | 11778 | HD2 - HOSP DIST #2 | $0.03 | $0.02 | $0.00 | $0.00 | $0.05 | $0.00 |
| 2025 | 11778 | SD49 - SCHOOL DIST #49 | $0.00 | $0.00 | $0.00 | $0.00 | $0.00 | $0.00 |
| 2025 | 11778 | FD1 - FIRE DISTRICT #1 | $0.61 | $0.60 | $0.00 | $0.00 | $1.21 | $0.00 |
| 2025 | 11778 | EMS1 - FIRE DIST #1 EMS | $0.23 | $0.23 | $0.00 | $0.00 | $0.46 | $0.00 |
| 2025 | 11778 | FP - DNR Forest Fire Protection Assmt | $8.50 | $8.50 | $0.00 | $0.00 | $17.00 | $0.00 |
| 2025 | 11778 | FPLCA - DNR Landowner Contingency Assmt | $3.00 | $3.00 | $0.00 | $0.00 | $6.00 | $0.00 |
| 2025 | 11778 | OSS - On Site Septic | $21.50 | $21.50 | $0.00 | $0.00 | $43.00 | $0.00 |
| 2025 | 11778 | FP ADMIN - FP ADMIN | $0.50 | $0.00 | $0.00 | $0.00 | $0.50 | $0.00 |
| 2025 | 11778 | TOTAL: | $36.36 | $35.77 | $0.00 | $0.00 | $72.13 | $0.00 |
|
| 2025 | 11778 | $36.36 | $35.77 | $0.00 | $0.00 | $72.13 | $0.00 |
Statement Details |
| 2024 | 11804 | STATE - STATE LEVY (SCHOOL) | $0.73 | $0.73 | $0.00 | $0.00 | $1.46 | $0.00 |
| 2024 | 11804 | COUNTY - COUNTY LEVIES (CE, DD, VET, MH) | $0.50 | $0.47 | $0.00 | $0.00 | $0.97 | $0.00 |
| 2024 | 11804 | CONSERVE - CONSERVATION FUTURES | $0.02 | $0.01 | $0.00 | $0.00 | $0.03 | $0.00 |
| 2024 | 11804 | COROADS - COUNTY ROADS (ROADS, DIV TO CE) | $0.39 | $0.38 | $0.00 | $0.00 | $0.77 | $0.00 |
| 2024 | 11804 | PORTPT - PORT DISTRICT | $0.20 | $0.20 | $0.00 | $0.00 | $0.40 | $0.00 |
| 2024 | 11804 | PUD1 - PUD #1 | $0.03 | $0.03 | $0.00 | $0.00 | $0.06 | $0.00 |
| 2024 | 11804 | LIB1 - LIBRARY DIST #1 | $0.15 | $0.15 | $0.00 | $0.00 | $0.30 | $0.00 |
| 2024 | 11804 | HD2 - HOSP DIST #2 | $0.03 | $0.03 | $0.00 | $0.00 | $0.06 | $0.00 |
| 2024 | 11804 | SD49 - SCHOOL DIST #49 | $0.00 | $0.00 | $0.00 | $0.00 | $0.00 | $0.00 |
| 2024 | 11804 | FD1 - FIRE DISTRICT #1 | $0.64 | $0.63 | $0.00 | $0.00 | $1.27 | $0.00 |
| 2024 | 11804 | EMS1 - FIRE DIST #1 EMS | $0.25 | $0.24 | $0.00 | $0.00 | $0.49 | $0.00 |
| 2024 | 11804 | FP - DNR Forest Fire Protection Assmt | $8.50 | $8.50 | $0.00 | $0.00 | $17.00 | $0.00 |
| 2024 | 11804 | FPLCA - DNR Landowner Contingency Assmt | $3.00 | $3.00 | $0.00 | $0.00 | $6.00 | $0.00 |
| 2024 | 11804 | OSS - On Site Septic | $21.00 | $21.00 | $0.00 | $0.00 | $42.00 | $0.00 |
| 2024 | 11804 | FP ADMIN - FP ADMIN | $0.50 | $0.00 | $0.00 | $0.00 | $0.50 | $0.00 |
| 2024 | 11804 | TOTAL: | $35.94 | $35.37 | $0.00 | $0.00 | $71.31 | $0.00 |
|
| 2024 | 11804 | $35.94 | $35.37 | $0.00 | $0.00 | $71.31 | $0.00 |
Statement Details |
| 2023 | 11824 | STATE - STATE LEVY (SCHOOL) | $0.75 | $0.74 | $0.00 | $0.00 | $1.49 | $0.00 |
| 2023 | 11824 | COUNTY - COUNTY LEVIES (CE, DD, VET, MH) | $0.52 | $0.49 | $0.00 | $0.00 | $1.01 | $0.00 |
| 2023 | 11824 | CONSERVE - CONSERVATION FUTURES | $0.02 | $0.01 | $0.00 | $0.00 | $0.03 | $0.00 |
| 2023 | 11824 | COROADS - COUNTY ROADS (ROADS, DIV TO CE) | $0.41 | $0.40 | $0.00 | $0.00 | $0.81 | $0.00 |
| 2023 | 11824 | PORTPT - PORT DISTRICT | $0.21 | $0.21 | $0.00 | $0.00 | $0.42 | $0.00 |
| 2023 | 11824 | PUD1 - PUD #1 | $0.04 | $0.03 | $0.00 | $0.00 | $0.07 | $0.00 |
| 2023 | 11824 | LIB1 - LIBRARY DIST #1 | $0.16 | $0.15 | $0.00 | $0.00 | $0.31 | $0.00 |
| 2023 | 11824 | HD2 - HOSP DIST #2 | $0.04 | $0.02 | $0.00 | $0.00 | $0.06 | $0.00 |
| 2023 | 11824 | SD49 - SCHOOL DIST #49 | $0.00 | $0.00 | $0.00 | $0.00 | $0.00 | $0.00 |
| 2023 | 11824 | FD1 - FIRE DISTRICT #1 | $0.41 | $0.41 | $0.00 | $0.00 | $0.82 | $0.00 |
| 2023 | 11824 | EMS1 - FIRE DIST #1 EMS | $0.18 | $0.17 | $0.00 | $0.00 | $0.35 | $0.00 |
| 2023 | 11824 | FP - DNR Forest Fire Protection Assmt | $8.50 | $8.50 | $0.00 | $0.00 | $17.00 | $0.00 |
| 2023 | 11824 | FPLCA - DNR Landowner Contingency Assmt | $3.00 | $3.00 | $0.00 | $0.00 | $6.00 | $0.00 |
| 2023 | 11824 | OSS - On Site Septic | $20.50 | $20.50 | $0.00 | $0.00 | $41.00 | $0.00 |
| 2023 | 11824 | FP ADMIN - FP ADMIN | $0.50 | $0.00 | $0.00 | $0.00 | $0.50 | $0.00 |
| 2023 | 11824 | TOTAL: | $35.24 | $34.63 | $0.00 | $0.00 | $69.87 | $0.00 |
|
| 2023 | 11824 | $35.24 | $34.63 | $0.00 | $0.00 | $69.87 | $0.00 |
Values
| (+) Improvement Homesite Value: | + | $46,413 | |
| (+) Improvement Non-Homesite Value: | + | $0 | |
| (+) Land Homesite Value: | + | $127,903 | |
| (+) Land Non-Homesite Value: | + | $0 | |
| (+) Curr Use (HS): | + | $0 | $0 |
| (+) Curr Use (NHS): | + | $0 | $0 |
| | | -------------------------- | |
| (=) Market Value: | = | $174,316 | |
| (–) Productivity Loss: | – | $0 | |
| | | -------------------------- | |
| (=) Subtotal: | = | $174,316 | |
| (+) Senior Appraised Value: | + | $60,970 | |
| (+) Non-Senior Appraised Value: | + | $0 | |
| | | -------------------------- | |
| (=) Total Appraised Value: | = | $60,970 | |
| (–) Senior Exemption Loss: | – | $60,000 | |
| (–) Exemption Loss: | – | $0 | |
| | | -------------------------- | |
| (=) Taxable Value: | = | $970 | |
Taxing Jurisdiction
| Owner: | MARILYN L KENNEDY | | |
| % Ownership: | 100.0000000000% | | |
| Total Value: | $174,316 | | |
| Tax Area: | 0211 - 1-49F1E1H2L1 |
| CE | COUNTY CURRENT EXPENSE | 0.9034619479 | $174,316 | $970 | $0.88 | | |
| CNTYDD | DEVELOPMENTAL DISABILITIES | 0.0052121823 | $174,316 | $970 | $0.01 | | |
| CNTYVET | VETERANS RELIEF | 0.0052777810 | $174,316 | $970 | $0.01 | | |
| MENTAL | MENTAL HEALTH | 0.0052121823 | $174,316 | $970 | $0.01 | | |
| ROADS | COUNTY ROADS | 0.7415066410 | $174,316 | $970 | $0.72 | | |
| ROADSCU | COUNTY ROADS TO CUR EXP | 0.0000000000 | $174,316 | $970 | $0.00 | | |
| HOSP2CASH | HOSP DIST #2 GENERAL | 0.0536075306 | $174,316 | $970 | $0.05 | | |
| SCH49CP | SCHOOL DIST #49 CAP PROJ | 0.0000000000 | $174,316 | $0 | $0.00 | | |
| SCH49MO | SCHOOL DIST #49 EP & O | 0.0000000000 | $174,316 | $0 | $0.00 | | |
| CONSERVE | CONSERVATION FUTURES | 0.0275621078 | $174,316 | $970 | $0.03 | | |
| EMS1 | FIRE DIST #1 EMS | 0.4679948282 | $174,316 | $970 | $0.45 | | |
| FD1 | FIRE DIST #1 GENERAL | 1.2171942929 | $174,316 | $970 | $1.18 | | |
| LIB1 | LIBRARY DIST #1 GENERAL | 0.2868827388 | $174,316 | $970 | $0.28 | | |
| PORTPT | PORT OF PT GENERAL | 0.1134941229 | $174,316 | $970 | $0.11 | | |
| PORTPTIDD | PORT OF PT IDD 2019 | 0.2577346692 | $174,316 | $970 | $0.25 | | |
| PUD1 | PUD #1 GENERAL | 0.0597888892 | $174,316 | $970 | $0.06 | | |
| STATE | STATE SCHOOL PART 1 | 1.4940692947 | $174,316 | $970 | $1.45 | | |
| STATE2 | STATE SCHOOL PART 2 | 0.0000000000 | $174,316 | $0 | $0.00 | | |
| | Total Tax Rate: | 5.6389992088 | | | | | |
| | | | | Taxes w/Current Exemptions: | $5.49 | | |
| | | | | Taxes w/o Exemptions: | $1,343.90 | | |
Improvement / Building
| Improvement #1: | Manufactured Home | State Code: | 11 | 1440.0 sqft | Value: | $46,413 |
| Bathrooms (#): | 2 (FULL) | Bedrooms (#): | 2 | | Exterior Wall: | METAL | Floor Construction: | FRAME | | Foundation: | PO&BL | Heating/Cooling: | F/A | | Roof Cover: | METAL |   |   |
|
| | Type | Description | Class CD | Sub Class CD | Year Built | Area |
| | MA | Main Area | 3- | MDBL | 1972 | 1440.0 |
| | GARAG | Garage (Table Not Dep) | 2 | * | 1972 | 960.0 |
| | SHED | Shed (Table Not Dep) | 3 | | 1972 | 448.0 |
Sketch
Property Image
Land
| 1 | 4285-1374S | | 1.0000 | 43560.00 | 0.00 | 0.00 | 1.00 | $110,000 | $0 |
| 2 | 1577A | | 2.1000 | 91476.00 | 0.00 | 0.00 | 0.00 | $17,903 | $0 |
Roll Value History
| 2026 | N/A | N/A | N/A | N/A | N/A |
| 2025 | $46,413 | $127,903 | $0 | $174,316 | $970 |
| 2024 | $44,395 | $122,089 | $0 | $166,484 | $970 |
| 2023 | $40,359 | $110,750 | $0 | $151,109 | $970 |
| 2022 | $20,020 | $84,700 | $0 | $104,720 | $970 |
Deed and Sales History
Payout Agreement
| No payout information available.. |