Property
Account |
| Property ID: | 22358 | Abbreviated Legal Description: | BISHOP HEIGHTS LARGE LOT LOT 8 |
| Parcel # / Geo ID: | 901355011 | Agent Code: | |
| Type: | Real | | |
| Tax Area: | 0211 - 1-49F1E1H2L1 | Land Use Code | 91 |
| Open Space: | N | DFL | N |
| Historic Property: | N | Remodel Property: | N |
| Multi-Family Redevelopment: | N | | |
| Township: | 29N | Section: | 35 |
| Range: | 1W |
Location |
| Address: | 353 KEVIN LN CHIMACUM, WA 98325 | Mapsco: | 248/027 |
| Neighborhood: | S35 & S36 T29N R1W; BISHOP RIDGE; BISHOP & HUGGINS SP | Map ID: | |
| Neighborhood CD: | 4290 |
Owner |
| Name: | WILLIAM ALBRIGHT | Owner ID: | 113262 |
| Mailing Address: | JAMIE MAGDIC 446 VALLEY DR KALISPELL, MT 59901-5122 | % Ownership: | 100.0000000000% |
| | | Exemptions: | |
Pay Tax Due
There is currently No Amount Due on this property.
Taxes and Assessment Details
Property Tax Information as of
03/11/2026
Click on "Statement Details" to expand or collapse a tax statement.
* Please enter a valid date ** Please enter a valid date *
Statement Details |
| | TOTAL: | $0.00 | $0.00 | $0.00 | $0.00 | $0.00 | $0.00 |
|
| | $0.00 | $0.00 | $0.00 | $0.00 | $0.00 | $0.00 |
Values
| (+) Improvement Homesite Value: | + | $0 | |
| (+) Improvement Non-Homesite Value: | + | $0 | |
| (+) Land Homesite Value: | + | $0 | |
| (+) Land Non-Homesite Value: | + | $190,388 | |
| (+) Curr Use (HS): | + | $0 | $0 |
| (+) Curr Use (NHS): | + | $0 | $0 |
| | | -------------------------- | |
| (=) Market Value: | = | $190,388 | |
| (–) Productivity Loss: | – | $0 | |
| | | -------------------------- | |
| (=) Subtotal: | = | $190,388 | |
| (+) Senior Appraised Value: | + | $0 | |
| (+) Non-Senior Appraised Value: | + | $190,388 | |
| | | -------------------------- | |
| (=) Total Appraised Value: | = | $190,388 | |
| (–) Senior Exemption Loss: | – | $0 | |
| (–) Exemption Loss: | – | $0 | |
| | | -------------------------- | |
| (=) Taxable Value: | = | $190,388 | |
Taxing Jurisdiction
| Owner: | WILLIAM ALBRIGHT | | |
| % Ownership: | 100.0000000000% | | |
| Total Value: | $190,388 | | |
| Tax Area: | 0211 - 1-49F1E1H2L1 |
| CE | COUNTY CURRENT EXPENSE | 0.9034619479 | $190,388 | $190,388 | $172.01 | | |
| CNTYDD | DEVELOPMENTAL DISABILITIES | 0.0052121823 | $190,388 | $190,388 | $0.99 | | |
| CNTYVET | VETERANS RELIEF | 0.0052777810 | $190,388 | $190,388 | $1.00 | | |
| MENTAL | MENTAL HEALTH | 0.0052121823 | $190,388 | $190,388 | $0.99 | | |
| ROADS | COUNTY ROADS | 0.7415066410 | $190,388 | $190,388 | $141.17 | | |
| ROADSCU | COUNTY ROADS TO CUR EXP | 0.0000000000 | $190,388 | $190,388 | $0.00 | | |
| HOSP2CASH | HOSP DIST #2 GENERAL | 0.0536075306 | $190,388 | $190,388 | $10.21 | | |
| SCH49CP | SCHOOL DIST #49 CAP PROJ | 0.6279093905 | $190,388 | $190,388 | $119.55 | | |
| SCH49MO | SCHOOL DIST #49 EP & O | 0.6376483602 | $190,388 | $190,388 | $121.40 | | |
| CONSERVE | CONSERVATION FUTURES | 0.0275621078 | $190,388 | $190,388 | $5.25 | | |
| EMS1 | FIRE DIST #1 EMS | 0.4679948282 | $190,388 | $190,388 | $89.10 | | |
| FD1 | FIRE DIST #1 GENERAL | 1.2171942929 | $190,388 | $190,388 | $231.74 | | |
| LIB1 | LIBRARY DIST #1 GENERAL | 0.2868827388 | $190,388 | $190,388 | $54.62 | | |
| PORTPT | PORT OF PT GENERAL | 0.1134941229 | $190,388 | $190,388 | $21.61 | | |
| PORTPTIDD | PORT OF PT IDD 2019 | 0.2577346692 | $190,388 | $190,388 | $49.07 | | |
| PUD1 | PUD #1 GENERAL | 0.0597888892 | $190,388 | $190,388 | $11.38 | | |
| STATE | STATE SCHOOL PART 1 | 1.4940692947 | $190,388 | $190,388 | $284.45 | | |
| STATE2 | STATE SCHOOL PART 2 | 0.8050170049 | $190,388 | $190,388 | $153.27 | | |
| | Total Tax Rate: | 7.7095739644 | | | | | |
| | | | | Taxes w/Current Exemptions: | $1,467.81 | | |
| | | | | Taxes w/o Exemptions: | $1,467.81 | | |
Improvement / Building
Sketch
| No sketches available for this property. |
Property Image
Land
| 1 | 1572A | Terr/Mtn/No View <6 Acres | 4.0600 | 176853.60 | 0.00 | 0.00 | 0.00 | $80,388 | $0 |
| 2 | 4290-1373S | Residential Sites1+/- Ac Good Territorial Views | 1.0000 | 43560.00 | 0.00 | 0.00 | 1.00 | $110,000 | $0 |
Roll Value History
| 2026 | N/A | N/A | N/A | N/A | N/A |
| 2025 | $0 | $190,388 | $0 | $190,388 | $190,388 |
| 2024 | $0 | $181,734 | $0 | $181,734 | $181,734 |
| 2023 | $0 | $169,020 | $0 | $169,020 | $169,020 |
| 2022 | $0 | $160,900 | $0 | $160,900 | $160,900 |
Deed and Sales History
| 1 | 08/31/2025 | SWD | Statutory Warranty Deed | JEFFREY S ALFORD & BRENDA BARCELO TRUST | WILLIAM ALBRIGHT | | | $205,000.00 | 144861 | |
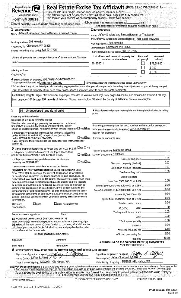
| 2 | 12/03/2021 | QCD | Quit Claim Deed | JEFFREY S ALFORD & BRENDA BARCELO | JEFFREY S ALFORD & BRENDA BARCELO TRUST | | | | 138175 | |
| 3 | 07/16/2021 | SWD | Statutory Warranty Deed | DAVE MUNDY | JEFFREY S ALFORD & BRENDA BARCELO | | | $205,000.00 | 137216 | |
| 4 | 06/15/2004 | SWD | Statutory Warranty Deed | BISHOP BROTHERS CONSTRUCT | MUNDY, DAVE/MORIARTY, MICHELLE | 0 | 0 | $40,000.00 | 100548 | 0 |
| 5 | 04/29/2004 | QCD | Quit Claim Deed | BISHOP, ALDENA M | BISHOP BROTHERS CONSTRUCTION | 0 | 0 | $0.00 | 100082 | 0 |
Payout Agreement
| No payout information available.. |