Property
Account |
| Property ID: | 22363 | Abbreviated Legal Description: | BISHOP HEIGHTS LARGE LOT LOT 14 (ENLG BY TAX 27) BND TGTH THRU BLA#108779 |
| Parcel # / Geo ID: | 901355017 | Agent Code: | |
| Type: | Real | | |
| Tax Area: | 0211 - 1-49F1E1H2L1 | Land Use Code | 11 |
| Open Space: | N | DFL | N |
| Historic Property: | N | Remodel Property: | N |
| Multi-Family Redevelopment: | N | | |
| Township: | 29N | Section: | 35 |
| Range: | 1W |
Location |
| Address: | 373 BISHOP HILL RD CHIMACUM, WA 98325 | Mapsco: | 248/033 |
| Neighborhood: | S35 & S36 T29N R1W; BISHOP RIDGE; BISHOP & HUGGINS SP | Map ID: | |
| Neighborhood CD: | 4290 |
Owner |
| Name: | JORDAN & ISABELLA COSSELL | Owner ID: | 98521 |
| Mailing Address: | 373 BISHOP HILL RD CHIMACUM, WA 98325-9709 | % Ownership: | 100.0000000000% |
| | | Exemptions: | |
Pay Tax Due
Select the appropriate checkbox next to the year to be paid. Multiple years may be selected.
*Convenience Fee not included
Taxes and Assessment Details
Property Tax Information as of
03/12/2026
Click on "Statement Details" to expand or collapse a tax statement.
* Please enter a valid date ** Please enter a valid date *
Statement Details |
| 2026 | 11819 | STATE - STATE LEVY (SCHOOL) | $726.53 | $726.52 | $0.00 | $0.00 | $0.00 | $1453.05 |
| 2026 | 11819 | COUNTY - COUNTY LEVIES (CE, DD, VET, MH) | $290.47 | $290.45 | $0.00 | $0.00 | $0.00 | $580.92 |
| 2026 | 11819 | CONSERVE - CONSERVATION FUTURES | $8.71 | $8.71 | $0.00 | $0.00 | $0.00 | $17.42 |
| 2026 | 11819 | COROADS - COUNTY ROADS (ROADS, DIV TO CE) | $234.32 | $234.32 | $0.00 | $0.00 | $0.00 | $468.64 |
| 2026 | 11819 | PORTPT - PORT DISTRICT | $117.32 | $117.30 | $0.00 | $0.00 | $0.00 | $234.62 |
| 2026 | 11819 | PUD1 - PUD #1 | $18.90 | $18.89 | $0.00 | $0.00 | $0.00 | $37.79 |
| 2026 | 11819 | LIB1 - LIBRARY DIST #1 | $90.66 | $90.65 | $0.00 | $0.00 | $0.00 | $181.31 |
| 2026 | 11819 | HD2 - HOSP DIST #2 | $16.94 | $16.94 | $0.00 | $0.00 | $0.00 | $33.88 |
| 2026 | 11819 | SD49 - SCHOOL DIST #49 | $399.93 | $399.92 | $0.00 | $0.00 | $0.00 | $799.85 |
| 2026 | 11819 | FD1 - FIRE DISTRICT #1 | $384.64 | $384.64 | $0.00 | $0.00 | $0.00 | $769.28 |
| 2026 | 11819 | EMS1 - FIRE DIST #1 EMS | $147.89 | $147.89 | $0.00 | $0.00 | $0.00 | $295.78 |
| 2026 | 11819 | FP - DNR Forest Fire Protection Assmt | $8.50 | $8.50 | $0.00 | $0.00 | $0.00 | $17.00 |
| 2026 | 11819 | FPLCA - DNR Landowner Contingency Assmt | $3.00 | $3.00 | $0.00 | $0.00 | $0.00 | $6.00 |
| 2026 | 11819 | JCCD - JC Conservation District | $2.85 | $2.85 | $0.00 | $0.00 | $0.00 | $5.70 |
| 2026 | 11819 | NWA - Noxious Weed Assessment | $4.33 | $4.32 | $0.00 | $0.00 | $0.00 | $8.65 |
| 2026 | 11819 | OSS - On Site Septic | $23.10 | $23.10 | $0.00 | $0.00 | $0.00 | $46.20 |
| 2026 | 11819 | WAT - Clean Water District | $13.00 | $13.00 | $0.00 | $0.00 | $0.00 | $26.00 |
| 2026 | 11819 | FP ADMIN - FP ADMIN | $0.50 | $0.00 | $0.00 | $0.00 | $0.00 | $0.50 |
| 2026 | 11819 | TOTAL: | $2491.59 | $2491.00 | $0.00 | $0.00 | $0.00 | $4982.59 |
|
| 2026 | 11819 | $2491.59 | $2491.00 | $0.00 | $0.00 | $0.00 | $4982.59 |
Statement Details |
| 2025 | 11845 | STATE - STATE LEVY (SCHOOL) | $724.54 | $724.53 | $0.00 | $0.00 | $1449.07 | $0.00 |
| 2025 | 11845 | COUNTY - COUNTY LEVIES (CE, DD, VET, MH) | $284.91 | $284.91 | $0.00 | $0.00 | $569.82 | $0.00 |
| 2025 | 11845 | CONSERVE - CONSERVATION FUTURES | $8.55 | $8.54 | $0.00 | $0.00 | $17.09 | $0.00 |
| 2025 | 11845 | COROADS - COUNTY ROADS (ROADS, DIV TO CE) | $228.27 | $228.26 | $0.00 | $0.00 | $456.53 | $0.00 |
| 2025 | 11845 | PORTPT - PORT DISTRICT | $116.27 | $116.26 | $0.00 | $0.00 | $232.53 | $0.00 |
| 2025 | 11845 | PUD1 - PUD #1 | $18.65 | $18.64 | $0.00 | $0.00 | $37.29 | $0.00 |
| 2025 | 11845 | LIB1 - LIBRARY DIST #1 | $88.32 | $88.31 | $0.00 | $0.00 | $176.63 | $0.00 |
| 2025 | 11845 | HD2 - HOSP DIST #2 | $16.63 | $16.62 | $0.00 | $0.00 | $33.25 | $0.00 |
| 2025 | 11845 | SD49 - SCHOOL DIST #49 | $388.31 | $388.30 | $0.00 | $0.00 | $776.61 | $0.00 |
| 2025 | 11845 | FD1 - FIRE DISTRICT #1 | $375.98 | $375.98 | $0.00 | $0.00 | $751.96 | $0.00 |
| 2025 | 11845 | EMS1 - FIRE DIST #1 EMS | $144.61 | $144.61 | $0.00 | $0.00 | $289.22 | $0.00 |
| 2025 | 11845 | FP - DNR Forest Fire Protection Assmt | $8.50 | $8.50 | $0.00 | $0.00 | $17.00 | $0.00 |
| 2025 | 11845 | FPLCA - DNR Landowner Contingency Assmt | $3.00 | $3.00 | $0.00 | $0.00 | $6.00 | $0.00 |
| 2025 | 11845 | JCCD - JC Conservation District | $2.85 | $2.85 | $0.00 | $0.00 | $5.70 | $0.00 |
| 2025 | 11845 | NWA - Noxious Weed Assessment | $3.05 | $3.05 | $0.00 | $0.00 | $6.10 | $0.00 |
| 2025 | 11845 | OSS - On Site Septic | $21.50 | $21.50 | $0.00 | $0.00 | $43.00 | $0.00 |
| 2025 | 11845 | WAT - Clean Water District | $13.00 | $13.00 | $0.00 | $0.00 | $26.00 | $0.00 |
| 2025 | 11845 | FP ADMIN - FP ADMIN | $0.50 | $0.00 | $0.00 | $0.00 | $0.50 | $0.00 |
| 2025 | 11845 | TOTAL: | $2447.44 | $2446.86 | $0.00 | $0.00 | $4894.30 | $0.00 |
|
| 2025 | 11845 | $2447.44 | $2446.86 | $0.00 | $0.00 | $4894.30 | $0.00 |
Statement Details |
| 2024 | 11871 | STATE - STATE LEVY (SCHOOL) | $659.67 | $659.65 | $0.00 | $0.00 | $1319.32 | $0.00 |
| 2024 | 11871 | COUNTY - COUNTY LEVIES (CE, DD, VET, MH) | $282.30 | $282.26 | $0.00 | $0.00 | $564.56 | $0.00 |
| 2024 | 11871 | CONSERVE - CONSERVATION FUTURES | $8.47 | $8.46 | $0.00 | $0.00 | $16.93 | $0.00 |
| 2024 | 11871 | COROADS - COUNTY ROADS (ROADS, DIV TO CE) | $227.14 | $227.13 | $0.00 | $0.00 | $454.27 | $0.00 |
| 2024 | 11871 | PORTPT - PORT DISTRICT | $116.60 | $116.58 | $0.00 | $0.00 | $233.18 | $0.00 |
| 2024 | 11871 | PUD1 - PUD #1 | $18.54 | $18.54 | $0.00 | $0.00 | $37.08 | $0.00 |
| 2024 | 11871 | LIB1 - LIBRARY DIST #1 | $87.88 | $87.88 | $0.00 | $0.00 | $175.76 | $0.00 |
| 2024 | 11871 | HD2 - HOSP DIST #2 | $16.47 | $16.47 | $0.00 | $0.00 | $32.94 | $0.00 |
| 2024 | 11871 | SD49 - SCHOOL DIST #49 | $294.57 | $294.57 | $0.00 | $0.00 | $589.14 | $0.00 |
| 2024 | 11871 | FD1 - FIRE DISTRICT #1 | $373.24 | $373.23 | $0.00 | $0.00 | $746.47 | $0.00 |
| 2024 | 11871 | EMS1 - FIRE DIST #1 EMS | $142.56 | $142.56 | $0.00 | $0.00 | $285.12 | $0.00 |
| 2024 | 11871 | FP - DNR Forest Fire Protection Assmt | $8.50 | $8.50 | $0.00 | $0.00 | $17.00 | $0.00 |
| 2024 | 11871 | FPLCA - DNR Landowner Contingency Assmt | $3.00 | $3.00 | $0.00 | $0.00 | $6.00 | $0.00 |
| 2024 | 11871 | JCCD - JC Conservation District | $2.85 | $2.85 | $0.00 | $0.00 | $5.70 | $0.00 |
| 2024 | 11871 | NWA - Noxious Weed Assessment | $3.05 | $3.05 | $0.00 | $0.00 | $6.10 | $0.00 |
| 2024 | 11871 | OSS - On Site Septic | $21.00 | $21.00 | $0.00 | $0.00 | $42.00 | $0.00 |
| 2024 | 11871 | WAT - Clean Water District | $12.50 | $12.50 | $0.00 | $0.00 | $25.00 | $0.00 |
| 2024 | 11871 | FP ADMIN - FP ADMIN | $0.50 | $0.00 | $0.00 | $0.00 | $0.50 | $0.00 |
| 2024 | 11871 | TOTAL: | $2278.84 | $2278.23 | $0.00 | $0.00 | $4557.07 | $0.00 |
|
| 2024 | 11871 | $2278.84 | $2278.23 | $0.00 | $0.00 | $4557.07 | $0.00 |
Statement Details |
| 2023 | 11891 | STATE - STATE LEVY (SCHOOL) | $626.86 | $626.85 | $0.00 | $0.00 | $1253.71 | $0.00 |
| 2023 | 11891 | COUNTY - COUNTY LEVIES (CE, DD, VET, MH) | $273.55 | $273.53 | $0.00 | $0.00 | $547.08 | $0.00 |
| 2023 | 11891 | CONSERVE - CONSERVATION FUTURES | $8.20 | $8.20 | $0.00 | $0.00 | $16.40 | $0.00 |
| 2023 | 11891 | COROADS - COUNTY ROADS (ROADS, DIV TO CE) | $221.32 | $221.31 | $0.00 | $0.00 | $442.63 | $0.00 |
| 2023 | 11891 | PORTPT - PORT DISTRICT | $115.24 | $115.22 | $0.00 | $0.00 | $230.46 | $0.00 |
| 2023 | 11891 | PUD1 - PUD #1 | $18.13 | $18.13 | $0.00 | $0.00 | $36.26 | $0.00 |
| 2023 | 11891 | LIB1 - LIBRARY DIST #1 | $85.63 | $85.62 | $0.00 | $0.00 | $171.25 | $0.00 |
| 2023 | 11891 | HD2 - HOSP DIST #2 | $15.97 | $15.95 | $0.00 | $0.00 | $31.92 | $0.00 |
| 2023 | 11891 | SD49 - SCHOOL DIST #49 | $293.03 | $293.01 | $0.00 | $0.00 | $586.04 | $0.00 |
| 2023 | 11891 | FD1 - FIRE DISTRICT #1 | $225.35 | $225.34 | $0.00 | $0.00 | $450.69 | $0.00 |
| 2023 | 11891 | EMS1 - FIRE DIST #1 EMS | $95.86 | $95.85 | $0.00 | $0.00 | $191.71 | $0.00 |
| 2023 | 11891 | FP - DNR Forest Fire Protection Assmt | $8.50 | $8.50 | $0.00 | $0.00 | $17.00 | $0.00 |
| 2023 | 11891 | FPLCA - DNR Landowner Contingency Assmt | $3.00 | $3.00 | $0.00 | $0.00 | $6.00 | $0.00 |
| 2023 | 11891 | JCCD - JC Conservation District | $2.85 | $2.85 | $0.00 | $0.00 | $5.70 | $0.00 |
| 2023 | 11891 | NWA - Noxious Weed Assessment | $3.05 | $3.05 | $0.00 | $0.00 | $6.10 | $0.00 |
| 2023 | 11891 | OSS - On Site Septic | $20.50 | $20.50 | $0.00 | $0.00 | $41.00 | $0.00 |
| 2023 | 11891 | WAT - Clean Water District | $12.00 | $12.00 | $0.00 | $0.00 | $24.00 | $0.00 |
| 2023 | 11891 | FP ADMIN - FP ADMIN | $0.50 | $0.00 | $0.00 | $0.00 | $0.50 | $0.00 |
| 2023 | 11891 | TOTAL: | $2029.54 | $2028.91 | $0.00 | $0.00 | $4058.45 | $0.00 |
|
| 2023 | 11891 | $2029.54 | $2028.91 | $0.00 | $0.00 | $4058.45 | $0.00 |
Values
| (+) Improvement Homesite Value: | + | $0 | |
| (+) Improvement Non-Homesite Value: | + | $500,110 | |
| (+) Land Homesite Value: | + | $0 | |
| (+) Land Non-Homesite Value: | + | $131,904 | |
| (+) Curr Use (HS): | + | $0 | $0 |
| (+) Curr Use (NHS): | + | $0 | $0 |
| | | -------------------------- | |
| (=) Market Value: | = | $632,014 | |
| (–) Productivity Loss: | – | $0 | |
| | | -------------------------- | |
| (=) Subtotal: | = | $632,014 | |
| (+) Senior Appraised Value: | + | $0 | |
| (+) Non-Senior Appraised Value: | + | $632,014 | |
| | | -------------------------- | |
| (=) Total Appraised Value: | = | $632,014 | |
| (–) Senior Exemption Loss: | – | $0 | |
| (–) Exemption Loss: | – | $0 | |
| | | -------------------------- | |
| (=) Taxable Value: | = | $632,014 | |
Taxing Jurisdiction
| Owner: | JORDAN & ISABELLA COSSELL | | |
| % Ownership: | 100.0000000000% | | |
| Total Value: | $632,014 | | |
| Tax Area: | 0211 - 1-49F1E1H2L1 |
| CE | COUNTY CURRENT EXPENSE | 0.9034619479 | $632,014 | $632,014 | $571.00 | | |
| CNTYDD | DEVELOPMENTAL DISABILITIES | 0.0052121823 | $632,014 | $632,014 | $3.29 | | |
| CNTYVET | VETERANS RELIEF | 0.0052777810 | $632,014 | $632,014 | $3.34 | | |
| MENTAL | MENTAL HEALTH | 0.0052121823 | $632,014 | $632,014 | $3.29 | | |
| ROADS | COUNTY ROADS | 0.7415066410 | $632,014 | $632,014 | $468.64 | | |
| ROADSCU | COUNTY ROADS TO CUR EXP | 0.0000000000 | $632,014 | $632,014 | $0.00 | | |
| HOSP2CASH | HOSP DIST #2 GENERAL | 0.0536075306 | $632,014 | $632,014 | $33.88 | | |
| SCH49CP | SCHOOL DIST #49 CAP PROJ | 0.6279093905 | $632,014 | $632,014 | $396.85 | | |
| SCH49MO | SCHOOL DIST #49 EP & O | 0.6376483602 | $632,014 | $632,014 | $403.00 | | |
| CONSERVE | CONSERVATION FUTURES | 0.0275621078 | $632,014 | $632,014 | $17.42 | | |
| EMS1 | FIRE DIST #1 EMS | 0.4679948282 | $632,014 | $632,014 | $295.78 | | |
| FD1 | FIRE DIST #1 GENERAL | 1.2171942929 | $632,014 | $632,014 | $769.28 | | |
| LIB1 | LIBRARY DIST #1 GENERAL | 0.2868827388 | $632,014 | $632,014 | $181.31 | | |
| PORTPT | PORT OF PT GENERAL | 0.1134941229 | $632,014 | $632,014 | $71.73 | | |
| PORTPTIDD | PORT OF PT IDD 2019 | 0.2577346692 | $632,014 | $632,014 | $162.89 | | |
| PUD1 | PUD #1 GENERAL | 0.0597888892 | $632,014 | $632,014 | $37.79 | | |
| STATE | STATE SCHOOL PART 1 | 1.4940692947 | $632,014 | $632,014 | $944.27 | | |
| STATE2 | STATE SCHOOL PART 2 | 0.8050170049 | $632,014 | $632,014 | $508.78 | | |
| | Total Tax Rate: | 7.7095739644 | | | | | |
| | | | | Taxes w/Current Exemptions: | $4,872.54 | | |
| | | | | Taxes w/o Exemptions: | $4,872.54 | | |
Improvement / Building
| Improvement #1: | Residential Bldg | State Code: | 11 | 1956.0 sqft | Value: | $426,390 |
| Bathrooms (#): | 2 (FULL) | Bedrooms (#): | 3 | | Exterior Wall: | SI/ST | Floor Construction: | FRAME | | Foundation: | CONPR | Heating/Cooling: | OTHER | | Roof Cover: | COMP |   |   |
|
| | Type | Description | Class CD | Sub Class CD | Year Built | Area |
| | MA | Main Area | 3+ | 1S | 2005 | 1956.0 |
| | HCPOR | House Concrete Porch | 3 | * | 2005 | 40.0 |
| | HWPOR | House Wood Porch | 3 | * | 2005 | 550.5 |
| | HDECK | House Deck | 3 | * | 2005 | 72.0 |
| | GATT | House Attached Garage | 3 | 1S | 2005 | 874.0 |
| | GARAG | Garage (Table Not Dep) | 3 | * | 2005 | 2400.0 |
| | CONCD | Concrete Drive | 3 | * | 2005 | 1500.0 |
| | SHED | Shed (Table Not Dep) | 3 | * | 2005 | 160.0 |
| Improvement #2: | Residential Bldg | State Code: | 19 | 374.0 sqft | Value: | $73,720 |
| Exterior Wall: | SI/ST | Floor Construction: | FRAME | | Foundation: | 01BASE | Roof Cover: | COMP |
|
| | Type | Description | Class CD | Sub Class CD | Year Built | Area |
| | MA | Main Area | 4- | MSG | 2016 | 374.0 |
| | MLOFT | MH Loft | 4 | MSG | 2016 | 286.0 |
| | MDECK | MH Deck | 3 | * | 2016 | 254.0 |
| | MSKIRT_MTL | MH Skirting - Metal/Vinyl | 3 | * | 2016 | 374.0 |
Sketch
Property Image
Land
| 1 | 4290-1375S | | 1.0000 | 43560.00 | 0.00 | 0.00 | 1.00 | $88,000 | $0 |
| 2 | 1577A | | 5.1500 | 224334.00 | 0.00 | 0.00 | 0.00 | $43,904 | $0 |
Roll Value History
| 2026 | N/A | N/A | N/A | N/A | N/A |
| 2025 | $500,110 | $131,904 | $0 | $632,014 | $632,014 |
| 2024 | $478,365 | $125,909 | $0 | $604,274 | $604,274 |
| 2023 | $456,622 | $113,625 | $0 | $570,247 | $570,247 |
| 2022 | $426,502 | $106,050 | $0 | $532,552 | $532,552 |
Deed and Sales History
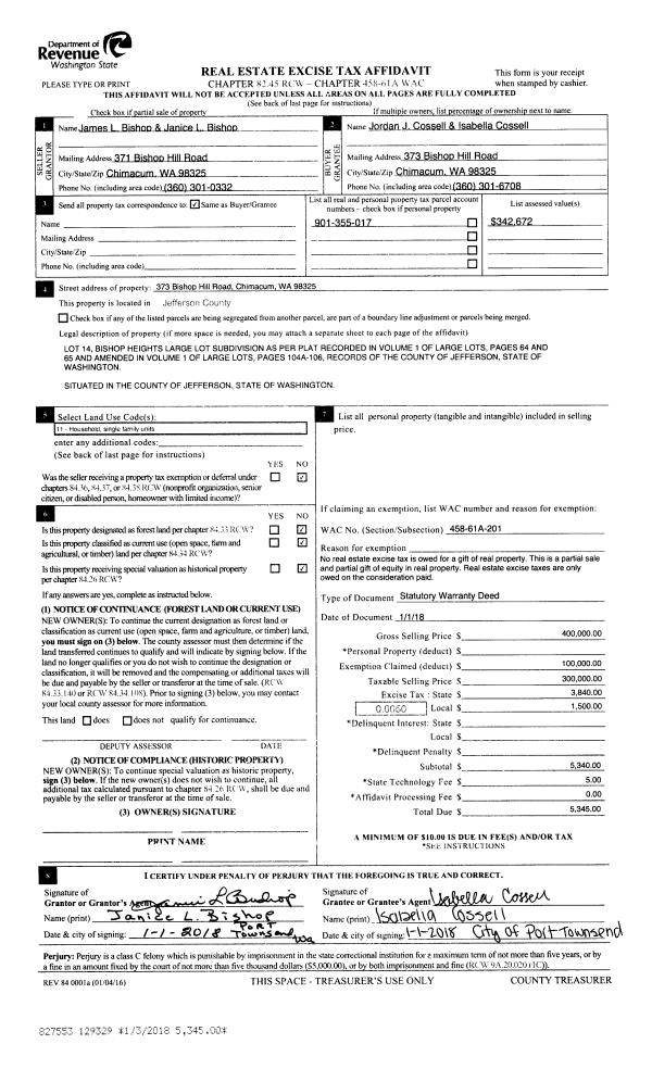
| 1 | 01/01/2018 | SWD | Statutory Warranty Deed | JAMES L BISHOP | JORDAN & ISABELLA COSSELL | | | $400,000.00 | 129329 | |
| 2 | 01/29/2018 | SWD | Statutory Warranty Deed | | | | | | 129488 | |
| 3 | 12/28/2006 | BLA | Boundary Line Adjustment | BISHOP, EDWARD L TESTAMEN | BISHOP, JAMES L, BISHOP, JANIC | 0 | 0 | $0.00 | 108779 | 0 |
| 4 | 07/21/2004 | QCD | Quit Claim Deed | BISHOP LOGGING COMPANY | BISHOP, JAMES L/JANICE L | 0 | 0 | $0.00 | 100862 | 0 |
| 5 | 12/30/1996 | QCD | Quit Claim Deed | BISHOP, EDWARD/ALDENA | BISHOP LOGGING CO | 0 | 0 | $0.00 | 81449 | 0 |
Payout Agreement
| No payout information available.. |