Property
Account |
| Property ID: | 22669 | Abbreviated Legal Description: | SKY VIEW HEIGHTS LOT 9 W/SUBJ TO EASEMENT SUBJ/REST COVT #541463 |
| Parcel # / Geo ID: | 902225009 | Agent Code: | |
| Type: | Real | | |
| Tax Area: | 0151 - 1-50F5E5H2L1 | Land Use Code | 91 |
| Open Space: | N | DFL | N |
| Historic Property: | N | Remodel Property: | N |
| Multi-Family Redevelopment: | N | | |
| Township: | 29N | Section: | 22 |
| Range: | 2W |
Location |
| Address: | 583 MISTY RIDGE RD PORT TOWNSEND, WA 98368 | Mapsco: | 145/028 |
| Neighborhood: | S21, 22, & 23, SKY VIEW HEIGHTS | Map ID: | |
| Neighborhood CD: | 5450 |
Owner |
| Name: | ALETA ERICKSON & STIG OSTERBERG | Owner ID: | 107178 |
| Mailing Address: | 814 BECKETT POINT RD PORT TOWNSEND, WA 98368-9028 | % Ownership: | 100.0000000000% |
| | | Exemptions: | |
Pay Tax Due
There is currently No Amount Due on this property.
Taxes and Assessment Details
Property Tax Information as of
03/10/2026
Click on "Statement Details" to expand or collapse a tax statement.
* Please enter a valid date ** Please enter a valid date *
Statement Details |
| 2026 | 12120 | STATE - STATE LEVY (SCHOOL) | $149.86 | $149.85 | $0.00 | $0.00 | $299.71 | $0.00 |
| 2026 | 12120 | COUNTY - COUNTY LEVIES (CE, DD, VET, MH) | $59.92 | $59.91 | $0.00 | $0.00 | $119.83 | $0.00 |
| 2026 | 12120 | CONSERVE - CONSERVATION FUTURES | $1.80 | $1.79 | $0.00 | $0.00 | $3.59 | $0.00 |
| 2026 | 12120 | COROADS - COUNTY ROADS (ROADS, DIV TO CE) | $48.33 | $48.33 | $0.00 | $0.00 | $96.66 | $0.00 |
| 2026 | 12120 | PORTPT - PORT DISTRICT | $24.20 | $24.20 | $0.00 | $0.00 | $48.40 | $0.00 |
| 2026 | 12120 | PUD1 - PUD #1 | $3.90 | $3.89 | $0.00 | $0.00 | $7.79 | $0.00 |
| 2026 | 12120 | LIB1 - LIBRARY DIST #1 | $18.70 | $18.70 | $0.00 | $0.00 | $37.40 | $0.00 |
| 2026 | 12120 | HD2 - HOSP DIST #2 | $3.50 | $3.49 | $0.00 | $0.00 | $6.99 | $0.00 |
| 2026 | 12120 | SD50 - SCHOOL DIST #50 | $118.72 | $118.71 | $0.00 | $0.00 | $237.43 | $0.00 |
| 2026 | 12120 | FD5 - FIRE DISTRICT #5 | $69.64 | $69.64 | $0.00 | $0.00 | $139.28 | $0.00 |
| 2026 | 12120 | EMS5 - FIRE DIST #5 EMS | $24.85 | $24.84 | $0.00 | $0.00 | $49.69 | $0.00 |
| 2026 | 12120 | FP - DNR Forest Fire Protection Assmt | $8.50 | $8.50 | $0.00 | $0.00 | $17.00 | $0.00 |
| 2026 | 12120 | FPLCA - DNR Landowner Contingency Assmt | $3.00 | $3.00 | $0.00 | $0.00 | $6.00 | $0.00 |
| 2026 | 12120 | JCCD - JC Conservation District | $2.73 | $2.73 | $0.00 | $0.00 | $5.46 | $0.00 |
| 2026 | 12120 | NWA - Noxious Weed Assessment | $4.10 | $4.10 | $0.00 | $0.00 | $8.20 | $0.00 |
| 2026 | 12120 | WAT - Clean Water District | $13.00 | $13.00 | $0.00 | $0.00 | $26.00 | $0.00 |
| 2026 | 12120 | FP ADMIN - FP ADMIN | $0.50 | $0.00 | $0.00 | $0.00 | $0.50 | $0.00 |
| 2026 | 12120 | TOTAL: | $555.25 | $554.68 | $0.00 | $0.00 | $1109.93 | $0.00 |
|
| 2026 | 12120 | $555.25 | $554.68 | $0.00 | $0.00 | $1109.93 | $0.00 |
Statement Details |
| 2025 | 12146 | STATE - STATE LEVY (SCHOOL) | $156.30 | $156.30 | $0.00 | $0.00 | $312.60 | $0.00 |
| 2025 | 12146 | COUNTY - COUNTY LEVIES (CE, DD, VET, MH) | $61.47 | $61.47 | $0.00 | $0.00 | $122.94 | $0.00 |
| 2025 | 12146 | CONSERVE - CONSERVATION FUTURES | $1.85 | $1.84 | $0.00 | $0.00 | $3.69 | $0.00 |
| 2025 | 12146 | COROADS - COUNTY ROADS (ROADS, DIV TO CE) | $49.25 | $49.24 | $0.00 | $0.00 | $98.49 | $0.00 |
| 2025 | 12146 | PORTPT - PORT DISTRICT | $25.08 | $25.08 | $0.00 | $0.00 | $50.16 | $0.00 |
| 2025 | 12146 | PUD1 - PUD #1 | $4.02 | $4.02 | $0.00 | $0.00 | $8.04 | $0.00 |
| 2025 | 12146 | LIB1 - LIBRARY DIST #1 | $19.05 | $19.05 | $0.00 | $0.00 | $38.10 | $0.00 |
| 2025 | 12146 | HD2 - HOSP DIST #2 | $3.59 | $3.58 | $0.00 | $0.00 | $7.17 | $0.00 |
| 2025 | 12146 | SD50 - SCHOOL DIST #50 | $114.24 | $114.22 | $0.00 | $0.00 | $228.46 | $0.00 |
| 2025 | 12146 | FD5 - FIRE DISTRICT #5 | $71.78 | $71.76 | $0.00 | $0.00 | $143.54 | $0.00 |
| 2025 | 12146 | EMS5 - FIRE DIST #5 EMS | $25.52 | $25.52 | $0.00 | $0.00 | $51.04 | $0.00 |
| 2025 | 12146 | FP - DNR Forest Fire Protection Assmt | $8.50 | $8.50 | $0.00 | $0.00 | $17.00 | $0.00 |
| 2025 | 12146 | FPLCA - DNR Landowner Contingency Assmt | $3.00 | $3.00 | $0.00 | $0.00 | $6.00 | $0.00 |
| 2025 | 12146 | JCCD - JC Conservation District | $2.73 | $2.73 | $0.00 | $0.00 | $5.46 | $0.00 |
| 2025 | 12146 | NWA - Noxious Weed Assessment | $2.90 | $2.90 | $0.00 | $0.00 | $5.80 | $0.00 |
| 2025 | 12146 | WAT - Clean Water District | $13.00 | $13.00 | $0.00 | $0.00 | $26.00 | $0.00 |
| 2025 | 12146 | FP ADMIN - FP ADMIN | $0.50 | $0.00 | $0.00 | $0.00 | $0.50 | $0.00 |
| 2025 | 12146 | TOTAL: | $562.78 | $562.21 | $0.00 | $0.00 | $1124.99 | $0.00 |
|
| 2025 | 12146 | $562.78 | $562.21 | $0.00 | $0.00 | $1124.99 | $0.00 |
Statement Details |
| 2024 | 12172 | STATE - STATE LEVY (SCHOOL) | $92.56 | $92.54 | $0.00 | $0.00 | $185.10 | $0.00 |
| 2024 | 12172 | COUNTY - COUNTY LEVIES (CE, DD, VET, MH) | $39.62 | $39.59 | $0.00 | $0.00 | $79.21 | $0.00 |
| 2024 | 12172 | CONSERVE - CONSERVATION FUTURES | $1.19 | $1.19 | $0.00 | $0.00 | $2.38 | $0.00 |
| 2024 | 12172 | COROADS - COUNTY ROADS (ROADS, DIV TO CE) | $31.87 | $31.86 | $0.00 | $0.00 | $63.73 | $0.00 |
| 2024 | 12172 | PORTPT - PORT DISTRICT | $16.36 | $16.36 | $0.00 | $0.00 | $32.72 | $0.00 |
| 2024 | 12172 | PUD1 - PUD #1 | $2.60 | $2.60 | $0.00 | $0.00 | $5.20 | $0.00 |
| 2024 | 12172 | LIB1 - LIBRARY DIST #1 | $12.33 | $12.33 | $0.00 | $0.00 | $24.66 | $0.00 |
| 2024 | 12172 | HD2 - HOSP DIST #2 | $2.31 | $2.31 | $0.00 | $0.00 | $4.62 | $0.00 |
| 2024 | 12172 | SD50 - SCHOOL DIST #50 | $74.89 | $74.87 | $0.00 | $0.00 | $149.76 | $0.00 |
| 2024 | 12172 | FD5 - FIRE DISTRICT #5 | $46.28 | $46.27 | $0.00 | $0.00 | $92.55 | $0.00 |
| 2024 | 12172 | EMS5 - FIRE DIST #5 EMS | $15.88 | $15.88 | $0.00 | $0.00 | $31.76 | $0.00 |
| 2024 | 12172 | FP - DNR Forest Fire Protection Assmt | $8.50 | $8.50 | $0.00 | $0.00 | $17.00 | $0.00 |
| 2024 | 12172 | FPLCA - DNR Landowner Contingency Assmt | $3.00 | $3.00 | $0.00 | $0.00 | $6.00 | $0.00 |
| 2024 | 12172 | JCCD - JC Conservation District | $2.73 | $2.73 | $0.00 | $0.00 | $5.46 | $0.00 |
| 2024 | 12172 | NWA - Noxious Weed Assessment | $2.90 | $2.90 | $0.00 | $0.00 | $5.80 | $0.00 |
| 2024 | 12172 | WAT - Clean Water District | $12.50 | $12.50 | $0.00 | $0.00 | $25.00 | $0.00 |
| 2024 | 12172 | FP ADMIN - FP ADMIN | $0.50 | $0.00 | $0.00 | $0.00 | $0.50 | $0.00 |
| 2024 | 12172 | TOTAL: | $366.02 | $365.43 | $0.00 | $0.00 | $731.45 | $0.00 |
|
| 2024 | 12172 | $366.02 | $365.43 | $0.00 | $0.00 | $731.45 | $0.00 |
Statement Details |
| 2023 | 12192 | STATE - STATE LEVY (SCHOOL) | $87.32 | $87.32 | $0.00 | $0.00 | $174.64 | $0.00 |
| 2023 | 12192 | COUNTY - COUNTY LEVIES (CE, DD, VET, MH) | $38.11 | $38.09 | $0.00 | $0.00 | $76.20 | $0.00 |
| 2023 | 12192 | CONSERVE - CONSERVATION FUTURES | $1.15 | $1.14 | $0.00 | $0.00 | $2.29 | $0.00 |
| 2023 | 12192 | COROADS - COUNTY ROADS (ROADS, DIV TO CE) | $30.83 | $30.82 | $0.00 | $0.00 | $61.65 | $0.00 |
| 2023 | 12192 | PORTPT - PORT DISTRICT | $16.06 | $16.04 | $0.00 | $0.00 | $32.10 | $0.00 |
| 2023 | 12192 | PUD1 - PUD #1 | $2.53 | $2.52 | $0.00 | $0.00 | $5.05 | $0.00 |
| 2023 | 12192 | LIB1 - LIBRARY DIST #1 | $11.93 | $11.92 | $0.00 | $0.00 | $23.85 | $0.00 |
| 2023 | 12192 | HD2 - HOSP DIST #2 | $2.23 | $2.22 | $0.00 | $0.00 | $4.45 | $0.00 |
| 2023 | 12192 | SD50 - SCHOOL DIST #50 | $69.30 | $69.28 | $0.00 | $0.00 | $138.58 | $0.00 |
| 2023 | 12192 | FD5 - FIRE DISTRICT #5 | $45.36 | $45.34 | $0.00 | $0.00 | $90.70 | $0.00 |
| 2023 | 12192 | EMS5 - FIRE DIST #5 EMS | $14.91 | $14.90 | $0.00 | $0.00 | $29.81 | $0.00 |
| 2023 | 12192 | FP - DNR Forest Fire Protection Assmt | $8.50 | $8.50 | $0.00 | $0.00 | $17.00 | $0.00 |
| 2023 | 12192 | FPLCA - DNR Landowner Contingency Assmt | $3.00 | $3.00 | $0.00 | $0.00 | $6.00 | $0.00 |
| 2023 | 12192 | JCCD - JC Conservation District | $2.73 | $2.73 | $0.00 | $0.00 | $5.46 | $0.00 |
| 2023 | 12192 | NWA - Noxious Weed Assessment | $2.90 | $2.90 | $0.00 | $0.00 | $5.80 | $0.00 |
| 2023 | 12192 | WAT - Clean Water District | $12.00 | $12.00 | $0.00 | $0.00 | $24.00 | $0.00 |
| 2023 | 12192 | FP ADMIN - FP ADMIN | $0.50 | $0.00 | $0.00 | $0.00 | $0.50 | $0.00 |
| 2023 | 12192 | TOTAL: | $349.36 | $348.72 | $0.00 | $0.00 | $698.08 | $0.00 |
|
| 2023 | 12192 | $349.36 | $348.72 | $0.00 | $0.00 | $698.08 | $0.00 |
Values
| (+) Improvement Homesite Value: | + | $0 | |
| (+) Improvement Non-Homesite Value: | + | $0 | |
| (+) Land Homesite Value: | + | $0 | |
| (+) Land Non-Homesite Value: | + | $130,361 | |
| (+) Curr Use (HS): | + | $0 | $0 |
| (+) Curr Use (NHS): | + | $0 | $0 |
| | | -------------------------- | |
| (=) Market Value: | = | $130,361 | |
| (–) Productivity Loss: | – | $0 | |
| | | -------------------------- | |
| (=) Subtotal: | = | $130,361 | |
| (+) Senior Appraised Value: | + | $0 | |
| (+) Non-Senior Appraised Value: | + | $130,361 | |
| | | -------------------------- | |
| (=) Total Appraised Value: | = | $130,361 | |
| (–) Senior Exemption Loss: | – | $0 | |
| (–) Exemption Loss: | – | $0 | |
| | | -------------------------- | |
| (=) Taxable Value: | = | $130,361 | |
Taxing Jurisdiction
| Owner: | ALETA ERICKSON & STIG OSTERBERG | | |
| % Ownership: | 100.0000000000% | | |
| Total Value: | $130,361 | | |
| Tax Area: | 0151 - 1-50F5E5H2L1 |
| CE | COUNTY CURRENT EXPENSE | 0.9034619479 | $130,361 | $130,361 | $117.78 | | |
| CNTYDD | DEVELOPMENTAL DISABILITIES | 0.0052121823 | $130,361 | $130,361 | $0.68 | | |
| CNTYVET | VETERANS RELIEF | 0.0052777810 | $130,361 | $130,361 | $0.69 | | |
| MENTAL | MENTAL HEALTH | 0.0052121823 | $130,361 | $130,361 | $0.68 | | |
| ROADS | COUNTY ROADS | 0.7415066410 | $130,361 | $130,361 | $96.66 | | |
| ROADSCU | COUNTY ROADS TO CUR EXP | 0.0000000000 | $130,361 | $130,361 | $0.00 | | |
| HOSP2CASH | HOSP DIST #2 GENERAL | 0.0536075306 | $130,361 | $130,361 | $6.99 | | |
| SCH50BOND | SCHOOL DIST #50 BOND 2016 | 0.5377451389 | $130,361 | $130,361 | $70.10 | | |
| SCH50CP | SCHOOL DIST #50 CAP PROJ | 0.4573475088 | $130,361 | $130,361 | $59.62 | | |
| SCH50MO | SCHOOL DIST #50 EP & O | 0.8262822886 | $130,361 | $130,361 | $107.71 | | |
| CONSERVE | CONSERVATION FUTURES | 0.0275621078 | $130,361 | $130,361 | $3.59 | | |
| EMS5 | FIRE DIST #5 EMS | 0.3811607070 | $130,361 | $130,361 | $49.69 | | |
| FD5 | FIRE DIST #5 GENERAL | 0.8460827285 | $130,361 | $130,361 | $110.30 | | |
| FD5BOND | FIRE DIST #5 BOND 2016 | 0.2222840608 | $130,361 | $130,361 | $28.98 | | |
| LIB1 | LIBRARY DIST #1 GENERAL | 0.2868827388 | $130,361 | $130,361 | $37.40 | | |
| PORTPT | PORT OF PT GENERAL | 0.1134941229 | $130,361 | $130,361 | $14.80 | | |
| PORTPTIDD | PORT OF PT IDD 2019 | 0.2577346692 | $130,361 | $130,361 | $33.60 | | |
| PUD1 | PUD #1 GENERAL | 0.0597888892 | $130,361 | $130,361 | $7.79 | | |
| STATE | STATE SCHOOL PART 1 | 1.4940692947 | $130,361 | $130,361 | $194.77 | | |
| STATE2 | STATE SCHOOL PART 2 | 0.8050170049 | $130,361 | $130,361 | $104.94 | | |
| | Total Tax Rate: | 8.0297295252 | | | | | |
| | | | | Taxes w/Current Exemptions: | $1,046.77 | | |
| | | | | Taxes w/o Exemptions: | $1,046.77 | | |
Improvement / Building
Sketch
| No sketches available for this property. |
Property Image
Land
| 1 | 5450-1375S | | 1.0000 | 43560.00 | 0.00 | 0.00 | 1.00 | $55,000 | $0 |
| 2 | 1672A | | 4.0300 | 175546.80 | 0.00 | 0.00 | 0.00 | $75,361 | $0 |
Roll Value History
| 2026 | N/A | N/A | N/A | N/A | N/A |
| 2025 | $0 | $130,361 | $0 | $130,361 | $130,361 |
| 2024 | $0 | $130,361 | $0 | $130,361 | $130,361 |
| 2023 | $0 | $80,005 | $0 | $80,005 | $80,005 |
| 2022 | $0 | $74,180 | $0 | $74,180 | $74,180 |
Deed and Sales History
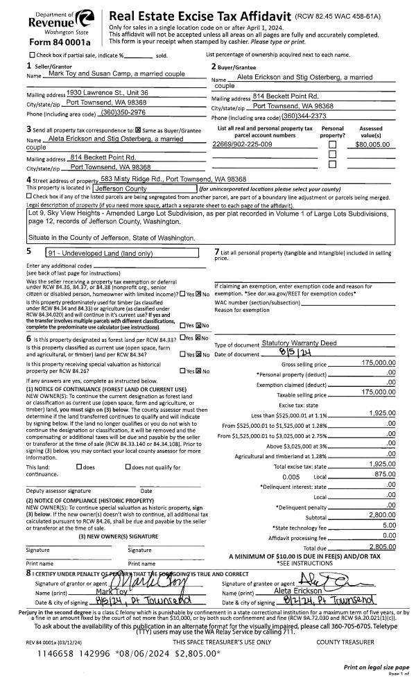
| 1 | 08/05/2024 | SWD | Statutory Warranty Deed | MARK TOY & SUSAN CAMP | ALETA ERICKSON & STIG OSTERBERG | | | $175,000.00 | 142996 | |
| 2 | 12/29/2020 | SWD | Statutory Warranty Deed | ALETA ERICKSON | MARK TOY & SUSAN CAMP | | | $75,000.00 | 135882 | |
| 3 | 08/23/2017 | SWD | Statutory Warranty Deed | PATRICIA G WEEDMAN | ALETA ERICKSON | | | $54,000.00 | 128454 | |
| 4 | 08/23/2017 | QCD | Quit Claim Deed | | | | | | 128455 | |
| 5 | 05/05/2005 | SWD | Statutory Warranty Deed | IACOLUCCI, JACK | WEEDMAN, PATRICIA G | | | $87,500.00 | 103830 | 0 |
| 6 | 06/04/2004 | SWD | Statutory Warranty Deed | WHITNEY, JON R & JUDITH | IACOLUCCI, JACK | 0 | 0 | $46,500.00 | 100512 | 0 |
Payout Agreement
| No payout information available.. |