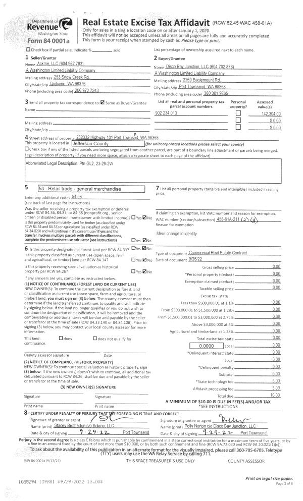
Property
Account |
| Property ID: | 22727 | Abbreviated Legal Description: | S23 T29 R2W TAX 8 |
| Parcel # / Geo ID: | 902234013 | Agent Code: | |
| Type: | Real | | |
| Tax Area: | 0151 - 1-50F5E5H2L1 | Land Use Code | 50 |
| Open Space: | N | DFL | N |
| Historic Property: | N | Remodel Property: | N |
| Multi-Family Redevelopment: | N | | |
| Township: | 29N | Section: | 23 |
| Range: | 2W |
Location |
| Address: | 282332 HIGHWAY 101 PORT TOWNSEND, WA 98368 | Mapsco: | 112/047 |
| Neighborhood: | DISCOVERY BAY COMMERCIAL AREA | Map ID: | |
| Neighborhood CD: | 5450C |
Owner |
| Name: | DISCO BAY JUNCTION LLC | Owner ID: | 104090 |
| Mailing Address: | 2260 EAGLEMOUNT RD PORT TOWNSEND, WA 98368-8721 | % Ownership: | 100.0000000000% |
| | | Exemptions: | |
Pay Tax Due
Select the appropriate checkbox next to the year to be paid. Multiple years may be selected.
*Convenience Fee not included
Taxes and Assessment Details
Property Tax Information as of
03/11/2026
Click on "Statement Details" to expand or collapse a tax statement.
* Please enter a valid date ** Please enter a valid date *
Statement Details |
| 2026 | 12178 | STATE - STATE LEVY (SCHOOL) | $417.20 | $417.20 | $0.00 | $0.00 | $0.00 | $834.40 |
| 2026 | 12178 | COUNTY - COUNTY LEVIES (CE, DD, VET, MH) | $166.81 | $166.78 | $0.00 | $0.00 | $0.00 | $333.59 |
| 2026 | 12178 | CONSERVE - CONSERVATION FUTURES | $5.00 | $5.00 | $0.00 | $0.00 | $0.00 | $10.00 |
| 2026 | 12178 | COROADS - COUNTY ROADS (ROADS, DIV TO CE) | $134.56 | $134.55 | $0.00 | $0.00 | $0.00 | $269.11 |
| 2026 | 12178 | PORTPT - PORT DISTRICT | $67.37 | $67.36 | $0.00 | $0.00 | $0.00 | $134.73 |
| 2026 | 12178 | PUD1 - PUD #1 | $10.85 | $10.85 | $0.00 | $0.00 | $0.00 | $21.70 |
| 2026 | 12178 | LIB1 - LIBRARY DIST #1 | $52.06 | $52.06 | $0.00 | $0.00 | $0.00 | $104.12 |
| 2026 | 12178 | HD2 - HOSP DIST #2 | $9.73 | $9.73 | $0.00 | $0.00 | $0.00 | $19.46 |
| 2026 | 12178 | SD50 - SCHOOL DIST #50 | $330.51 | $330.51 | $0.00 | $0.00 | $0.00 | $661.02 |
| 2026 | 12178 | FD5 - FIRE DISTRICT #5 | $193.88 | $193.86 | $0.00 | $0.00 | $0.00 | $387.74 |
| 2026 | 12178 | EMS5 - FIRE DIST #5 EMS | $69.17 | $69.16 | $0.00 | $0.00 | $0.00 | $138.33 |
| 2026 | 12178 | JCCD - JC Conservation District | $2.53 | $2.53 | $0.00 | $0.00 | $0.00 | $5.06 |
| 2026 | 12178 | NWA - Noxious Weed Assessment | $2.98 | $2.97 | $0.00 | $0.00 | $0.00 | $5.95 |
| 2026 | 12178 | OSS - On Site Septic | $23.10 | $23.10 | $0.00 | $0.00 | $0.00 | $46.20 |
| 2026 | 12178 | WAT - Clean Water District | $13.00 | $13.00 | $0.00 | $0.00 | $0.00 | $26.00 |
| 2026 | 12178 | TOTAL: | $1498.75 | $1498.66 | $0.00 | $0.00 | $0.00 | $2997.41 |
|
| 2026 | 12178 | $1498.75 | $1498.66 | $0.00 | $0.00 | $0.00 | $2997.41 |
Statement Details |
| 2025 | 12204 | STATE - STATE LEVY (SCHOOL) | $435.16 | $435.15 | $0.00 | $0.00 | $870.31 | $0.00 |
| 2025 | 12204 | COUNTY - COUNTY LEVIES (CE, DD, VET, MH) | $171.13 | $171.12 | $0.00 | $0.00 | $342.25 | $0.00 |
| 2025 | 12204 | CONSERVE - CONSERVATION FUTURES | $5.13 | $5.13 | $0.00 | $0.00 | $10.26 | $0.00 |
| 2025 | 12204 | COROADS - COUNTY ROADS (ROADS, DIV TO CE) | $137.10 | $137.09 | $0.00 | $0.00 | $274.19 | $0.00 |
| 2025 | 12204 | PORTPT - PORT DISTRICT | $69.83 | $69.83 | $0.00 | $0.00 | $139.66 | $0.00 |
| 2025 | 12204 | PUD1 - PUD #1 | $11.20 | $11.19 | $0.00 | $0.00 | $22.39 | $0.00 |
| 2025 | 12204 | LIB1 - LIBRARY DIST #1 | $53.04 | $53.04 | $0.00 | $0.00 | $106.08 | $0.00 |
| 2025 | 12204 | HD2 - HOSP DIST #2 | $9.99 | $9.98 | $0.00 | $0.00 | $19.97 | $0.00 |
| 2025 | 12204 | SD50 - SCHOOL DIST #50 | $318.03 | $318.02 | $0.00 | $0.00 | $636.05 | $0.00 |
| 2025 | 12204 | FD5 - FIRE DISTRICT #5 | $199.81 | $199.80 | $0.00 | $0.00 | $399.61 | $0.00 |
| 2025 | 12204 | EMS5 - FIRE DIST #5 EMS | $71.05 | $71.04 | $0.00 | $0.00 | $142.09 | $0.00 |
| 2025 | 12204 | JCCD - JC Conservation District | $2.53 | $2.53 | $0.00 | $0.00 | $5.06 | $0.00 |
| 2025 | 12204 | NWA - Noxious Weed Assessment | $2.15 | $2.15 | $0.00 | $0.00 | $4.30 | $0.00 |
| 2025 | 12204 | WAT - Clean Water District | $13.00 | $13.00 | $0.00 | $0.00 | $26.00 | $0.00 |
| 2025 | 12204 | TOTAL: | $1499.15 | $1499.07 | $0.00 | $0.00 | $2998.22 | $0.00 |
|
| 2025 | 12204 | $1499.15 | $1499.07 | $0.00 | $0.00 | $2998.22 | $0.00 |
Statement Details |
| 2024 | 12230 | STATE - STATE LEVY (SCHOOL) | $424.99 | $424.98 | $0.00 | $0.00 | $849.97 | $0.00 |
| 2024 | 12230 | COUNTY - COUNTY LEVIES (CE, DD, VET, MH) | $181.86 | $181.84 | $0.00 | $0.00 | $363.70 | $0.00 |
| 2024 | 12230 | CONSERVE - CONSERVATION FUTURES | $5.46 | $5.45 | $0.00 | $0.00 | $10.91 | $0.00 |
| 2024 | 12230 | COROADS - COUNTY ROADS (ROADS, DIV TO CE) | $146.34 | $146.33 | $0.00 | $0.00 | $292.67 | $0.00 |
| 2024 | 12230 | PORTPT - PORT DISTRICT | $75.12 | $75.11 | $0.00 | $0.00 | $150.23 | $0.00 |
| 2024 | 12230 | PUD1 - PUD #1 | $11.95 | $11.94 | $0.00 | $0.00 | $23.89 | $0.00 |
| 2024 | 12230 | LIB1 - LIBRARY DIST #1 | $56.62 | $56.61 | $0.00 | $0.00 | $113.23 | $0.00 |
| 2024 | 12230 | HD2 - HOSP DIST #2 | $10.61 | $10.61 | $0.00 | $0.00 | $21.22 | $0.00 |
| 2024 | 12230 | SD50 - SCHOOL DIST #50 | $343.84 | $343.82 | $0.00 | $0.00 | $687.66 | $0.00 |
| 2024 | 12230 | FD5 - FIRE DISTRICT #5 | $212.49 | $212.48 | $0.00 | $0.00 | $424.97 | $0.00 |
| 2024 | 12230 | EMS5 - FIRE DIST #5 EMS | $72.92 | $72.92 | $0.00 | $0.00 | $145.84 | $0.00 |
| 2024 | 12230 | JCCD - JC Conservation District | $2.53 | $2.53 | $0.00 | $0.00 | $5.06 | $0.00 |
| 2024 | 12230 | NWA - Noxious Weed Assessment | $2.15 | $2.15 | $0.00 | $0.00 | $4.30 | $0.00 |
| 2024 | 12230 | WAT - Clean Water District | $12.50 | $12.50 | $0.00 | $0.00 | $25.00 | $0.00 |
| 2024 | 12230 | TOTAL: | $1559.38 | $1559.27 | $0.00 | $0.00 | $3118.65 | $0.00 |
|
| 2024 | 12230 | $1559.38 | $1559.27 | $0.00 | $0.00 | $3118.65 | $0.00 |
Statement Details |
| 2023 | 12250 | STATE - STATE LEVY (SCHOOL) | $410.46 | $410.46 | $0.00 | $0.00 | $820.92 | $0.00 |
| 2023 | 12250 | COUNTY - COUNTY LEVIES (CE, DD, VET, MH) | $179.12 | $179.10 | $0.00 | $0.00 | $358.22 | $0.00 |
| 2023 | 12250 | CONSERVE - CONSERVATION FUTURES | $5.37 | $5.37 | $0.00 | $0.00 | $10.74 | $0.00 |
| 2023 | 12250 | COROADS - COUNTY ROADS (ROADS, DIV TO CE) | $144.92 | $144.91 | $0.00 | $0.00 | $289.83 | $0.00 |
| 2023 | 12250 | PORTPT - PORT DISTRICT | $75.46 | $75.44 | $0.00 | $0.00 | $150.90 | $0.00 |
| 2023 | 12250 | PUD1 - PUD #1 | $11.88 | $11.87 | $0.00 | $0.00 | $23.75 | $0.00 |
| 2023 | 12250 | LIB1 - LIBRARY DIST #1 | $56.07 | $56.06 | $0.00 | $0.00 | $112.13 | $0.00 |
| 2023 | 12250 | HD2 - HOSP DIST #2 | $10.46 | $10.44 | $0.00 | $0.00 | $20.90 | $0.00 |
| 2023 | 12250 | SD50 - SCHOOL DIST #50 | $325.72 | $325.70 | $0.00 | $0.00 | $651.42 | $0.00 |
| 2023 | 12250 | FD5 - FIRE DISTRICT #5 | $213.17 | $213.16 | $0.00 | $0.00 | $426.33 | $0.00 |
| 2023 | 12250 | EMS5 - FIRE DIST #5 EMS | $70.07 | $70.06 | $0.00 | $0.00 | $140.13 | $0.00 |
| 2023 | 12250 | JCCD - JC Conservation District | $2.53 | $2.53 | $0.00 | $0.00 | $5.06 | $0.00 |
| 2023 | 12250 | NWA - Noxious Weed Assessment | $2.15 | $2.15 | $0.00 | $0.00 | $4.30 | $0.00 |
| 2023 | 12250 | WAT - Clean Water District | $12.00 | $12.00 | $0.00 | $0.00 | $24.00 | $0.00 |
| 2023 | 12250 | TOTAL: | $1519.38 | $1519.25 | $0.00 | $0.00 | $3038.63 | $0.00 |
|
| 2023 | 12250 | $1519.38 | $1519.25 | $0.00 | $0.00 | $3038.63 | $0.00 |
Values
| (+) Improvement Homesite Value: | + | $0 | |
| (+) Improvement Non-Homesite Value: | + | $277,581 | |
| (+) Land Homesite Value: | + | $0 | |
| (+) Land Non-Homesite Value: | + | $85,345 | |
| (+) Curr Use (HS): | + | $0 | $0 |
| (+) Curr Use (NHS): | + | $0 | $0 |
| | | -------------------------- | |
| (=) Market Value: | = | $362,926 | |
| (–) Productivity Loss: | – | $0 | |
| | | -------------------------- | |
| (=) Subtotal: | = | $362,926 | |
| (+) Senior Appraised Value: | + | $0 | |
| (+) Non-Senior Appraised Value: | + | $362,926 | |
| | | -------------------------- | |
| (=) Total Appraised Value: | = | $362,926 | |
| (–) Senior Exemption Loss: | – | $0 | |
| (–) Exemption Loss: | – | $0 | |
| | | -------------------------- | |
| (=) Taxable Value: | = | $362,926 | |
Taxing Jurisdiction
| Owner: | DISCO BAY JUNCTION LLC | | |
| % Ownership: | 100.0000000000% | | |
| Total Value: | $362,926 | | |
| Tax Area: | 0151 - 1-50F5E5H2L1 |
| CE | COUNTY CURRENT EXPENSE | 0.9034619479 | $362,926 | $362,926 | $327.89 | | |
| CNTYDD | DEVELOPMENTAL DISABILITIES | 0.0052121823 | $362,926 | $362,926 | $1.89 | | |
| CNTYVET | VETERANS RELIEF | 0.0052777810 | $362,926 | $362,926 | $1.92 | | |
| MENTAL | MENTAL HEALTH | 0.0052121823 | $362,926 | $362,926 | $1.89 | | |
| ROADS | COUNTY ROADS | 0.7415066410 | $362,926 | $362,926 | $269.11 | | |
| ROADSCU | COUNTY ROADS TO CUR EXP | 0.0000000000 | $362,926 | $362,926 | $0.00 | | |
| HOSP2CASH | HOSP DIST #2 GENERAL | 0.0536075306 | $362,926 | $362,926 | $19.46 | | |
| SCH50BOND | SCHOOL DIST #50 BOND 2016 | 0.5377451389 | $362,926 | $362,926 | $195.16 | | |
| SCH50CP | SCHOOL DIST #50 CAP PROJ | 0.4573475088 | $362,926 | $362,926 | $165.98 | | |
| SCH50MO | SCHOOL DIST #50 EP & O | 0.8262822886 | $362,926 | $362,926 | $299.88 | | |
| CONSERVE | CONSERVATION FUTURES | 0.0275621078 | $362,926 | $362,926 | $10.00 | | |
| EMS5 | FIRE DIST #5 EMS | 0.3811607070 | $362,926 | $362,926 | $138.33 | | |
| FD5 | FIRE DIST #5 GENERAL | 0.8460827285 | $362,926 | $362,926 | $307.07 | | |
| FD5BOND | FIRE DIST #5 BOND 2016 | 0.2222840608 | $362,926 | $362,926 | $80.67 | | |
| LIB1 | LIBRARY DIST #1 GENERAL | 0.2868827388 | $362,926 | $362,926 | $104.12 | | |
| PORTPT | PORT OF PT GENERAL | 0.1134941229 | $362,926 | $362,926 | $41.19 | | |
| PORTPTIDD | PORT OF PT IDD 2019 | 0.2577346692 | $362,926 | $362,926 | $93.54 | | |
| PUD1 | PUD #1 GENERAL | 0.0597888892 | $362,926 | $362,926 | $21.70 | | |
| STATE | STATE SCHOOL PART 1 | 1.4940692947 | $362,926 | $362,926 | $542.24 | | |
| STATE2 | STATE SCHOOL PART 2 | 0.8050170049 | $362,926 | $362,926 | $292.16 | | |
| | Total Tax Rate: | 8.0297295252 | | | | | |
| | | | | Taxes w/Current Exemptions: | $2,914.20 | | |
| | | | | Taxes w/o Exemptions: | $2,914.20 | | |
Improvement / Building
| Improvement #1: | Commercial/Industrial/Government Bldg | State Code: | 50 | 3020.0 sqft | Value: | $277,581 |
| Exterior Wall: | SI/ST | Floor Construction: | FRAME | | Foundation: | PO&BL | Interior Finish: | FIN | | Roof Cover: | METAL |   |   |
|
| | Type | Description | Class CD | Sub Class CD | Year Built | Area |
| | M&S | Commercial (M&S) | 3 | * | 1960 | 2348.0 |
| | M&S | Commercial (M&S) | 2 | * | 1960 | 192.0 |
| | M&S | Commercial (M&S) | 4 | * | 1960 | 480.0 |
Sketch
Property Image
Land
| 1 | 5450-6455Q | | 0.3470 | 15115.00 | 0.00 | 0.00 | 1.00 | $85,345 | $0 |
Roll Value History
| 2026 | N/A | N/A | N/A | N/A | N/A |
| 2025 | $277,581 | $85,345 | $0 | $362,926 | $362,926 |
| 2024 | $277,581 | $85,345 | $0 | $362,926 | $362,926 |
| 2023 | $287,032 | $80,345 | $0 | $367,377 | $367,377 |
| 2022 | $273,364 | $75,345 | $0 | $348,709 | $348,709 |
Deed and Sales History
| 1 | 09/26/2022 | REC | Real Estate Contract | ACKME LLC | DISCO BAY JUNCTION LLC | | | | 139881 | |
| 2 | 01/31/2021 | REC | Real Estate Contract | FRENETIC PRODUCTIONS | DISCO BAY JUNCTION LLC | | | $350,000.00 | 136041 | |
| 3 | 09/03/2019 | QCD | Quit Claim Deed | THE LOCAL 101 LLC | FRENETIC PRODUCTIONS | | | $70,946.00 | 133060 | |
| 4 | 06/26/2013 | SWD | Statutory Warranty Deed | LUCILLE M BROWN TRUST | THE LOCAL 101 LLC | | | $188,000.00 | 119516 | |
Payout Agreement
| No payout information available.. |