Property
Account |
| Property ID: | 22901 | Abbreviated Legal Description: | S25 & 26 T29 R2W TAX 57 (E OF SNOW CREEK) |
| Parcel # / Geo ID: | 902264041 | Agent Code: | |
| Type: | Real | | |
| Tax Area: | 0151 - 1-50F5E5H2L1 | Land Use Code | 91 |
| Open Space: | N | DFL | N |
| Historic Property: | N | Remodel Property: | N |
| Multi-Family Redevelopment: | N | | |
| Township: | 29N | Section: | 26 |
| Range: | 2W |
Location |
| Address: | | Mapsco: | 116/031 |
| Neighborhood: | S25 - 28 T29 R2W | Map ID: | |
| Neighborhood CD: | 5470 |
Owner |
| Name: | JASON DAHL | Owner ID: | 111502 |
| Mailing Address: | 283632 US HIGHWAY 101 PORT TOWNSEND, WA 98368-9315 | % Ownership: | 100.0000000000% |
| | | Exemptions: | |
Pay Tax Due
There is currently No Amount Due on this property.
Taxes and Assessment Details
Property Tax Information as of
03/13/2026
Click on "Statement Details" to expand or collapse a tax statement.
* Please enter a valid date ** Please enter a valid date *
Statement Details |
| 2026 | 12350 | STATE - STATE LEVY (SCHOOL) | $13.68 | $13.67 | $0.00 | $0.00 | $27.35 | $0.00 |
| 2026 | 12350 | COUNTY - COUNTY LEVIES (CE, DD, VET, MH) | $5.47 | $5.46 | $0.00 | $0.00 | $10.93 | $0.00 |
| 2026 | 12350 | CONSERVE - CONSERVATION FUTURES | $0.17 | $0.16 | $0.00 | $0.00 | $0.33 | $0.00 |
| 2026 | 12350 | COROADS - COUNTY ROADS (ROADS, DIV TO CE) | $4.41 | $4.41 | $0.00 | $0.00 | $8.82 | $0.00 |
| 2026 | 12350 | PORTPT - PORT DISTRICT | $2.22 | $2.20 | $0.00 | $0.00 | $4.42 | $0.00 |
| 2026 | 12350 | PUD1 - PUD #1 | $0.36 | $0.35 | $0.00 | $0.00 | $0.71 | $0.00 |
| 2026 | 12350 | LIB1 - LIBRARY DIST #1 | $1.71 | $1.70 | $0.00 | $0.00 | $3.41 | $0.00 |
| 2026 | 12350 | HD2 - HOSP DIST #2 | $0.32 | $0.32 | $0.00 | $0.00 | $0.64 | $0.00 |
| 2026 | 12350 | SD50 - SCHOOL DIST #50 | $10.84 | $10.83 | $0.00 | $0.00 | $21.67 | $0.00 |
| 2026 | 12350 | FD5 - FIRE DISTRICT #5 | $6.35 | $6.35 | $0.00 | $0.00 | $12.70 | $0.00 |
| 2026 | 12350 | EMS5 - FIRE DIST #5 EMS | $2.27 | $2.26 | $0.00 | $0.00 | $4.53 | $0.00 |
| 2026 | 12350 | FPLCA - DNR Landowner Contingency Assmt | $3.00 | $3.00 | $0.00 | $0.00 | $6.00 | $0.00 |
| 2026 | 12350 | JCCD - JC Conservation District | $2.57 | $2.57 | $0.00 | $0.00 | $5.14 | $0.00 |
| 2026 | 12350 | NWA - Noxious Weed Assessment | $3.20 | $3.20 | $0.00 | $0.00 | $6.40 | $0.00 |
| 2026 | 12350 | WAT - Clean Water District | $13.00 | $13.00 | $0.00 | $0.00 | $26.00 | $0.00 |
| 2026 | 12350 | TOTAL: | $69.57 | $69.48 | $0.00 | $0.00 | $139.05 | $0.00 |
|
| 2026 | 12350 | $69.57 | $69.48 | $0.00 | $0.00 | $139.05 | $0.00 |
Statement Details |
| 2025 | 12376 | STATE - STATE LEVY (SCHOOL) | $14.26 | $14.26 | $0.00 | $0.00 | $28.52 | $0.00 |
| 2025 | 12376 | COUNTY - COUNTY LEVIES (CE, DD, VET, MH) | $5.61 | $5.60 | $0.00 | $0.00 | $11.21 | $0.00 |
| 2025 | 12376 | CONSERVE - CONSERVATION FUTURES | $0.17 | $0.17 | $0.00 | $0.00 | $0.34 | $0.00 |
| 2025 | 12376 | COROADS - COUNTY ROADS (ROADS, DIV TO CE) | $4.50 | $4.49 | $0.00 | $0.00 | $8.99 | $0.00 |
| 2025 | 12376 | PORTPT - PORT DISTRICT | $2.30 | $2.28 | $0.00 | $0.00 | $4.58 | $0.00 |
| 2025 | 12376 | PUD1 - PUD #1 | $0.37 | $0.36 | $0.00 | $0.00 | $0.73 | $0.00 |
| 2025 | 12376 | LIB1 - LIBRARY DIST #1 | $1.74 | $1.74 | $0.00 | $0.00 | $3.48 | $0.00 |
| 2025 | 12376 | HD2 - HOSP DIST #2 | $0.33 | $0.32 | $0.00 | $0.00 | $0.65 | $0.00 |
| 2025 | 12376 | SD50 - SCHOOL DIST #50 | $10.44 | $10.41 | $0.00 | $0.00 | $20.85 | $0.00 |
| 2025 | 12376 | FD5 - FIRE DISTRICT #5 | $6.55 | $6.55 | $0.00 | $0.00 | $13.10 | $0.00 |
| 2025 | 12376 | EMS5 - FIRE DIST #5 EMS | $2.33 | $2.33 | $0.00 | $0.00 | $4.66 | $0.00 |
| 2025 | 12376 | FP - DNR Forest Fire Protection Assmt | $8.50 | $8.50 | $0.00 | $0.00 | $17.00 | $0.00 |
| 2025 | 12376 | FPLCA - DNR Landowner Contingency Assmt | $3.00 | $3.00 | $0.00 | $0.00 | $6.00 | $0.00 |
| 2025 | 12376 | JCCD - JC Conservation District | $2.57 | $2.57 | $0.00 | $0.00 | $5.14 | $0.00 |
| 2025 | 12376 | NWA - Noxious Weed Assessment | $2.30 | $2.30 | $0.00 | $0.00 | $4.60 | $0.00 |
| 2025 | 12376 | WAT - Clean Water District | $13.00 | $13.00 | $0.00 | $0.00 | $26.00 | $0.00 |
| 2025 | 12376 | FP ADMIN - FP ADMIN | $0.50 | $0.00 | $0.00 | $0.00 | $0.50 | $0.00 |
| 2025 | 12376 | TOTAL: | $78.47 | $77.88 | $0.00 | $0.00 | $156.35 | $0.00 |
|
| 2025 | 12376 | $78.47 | $77.88 | $0.00 | $0.00 | $156.35 | $0.00 |
Statement Details |
| 2024 | 12402 | STATE - STATE LEVY (SCHOOL) | $12.65 | $12.64 | $0.00 | $0.00 | $25.29 | $0.00 |
| 2024 | 12402 | COUNTY - COUNTY LEVIES (CE, DD, VET, MH) | $5.41 | $5.41 | $0.00 | $0.00 | $10.82 | $0.00 |
| 2024 | 12402 | CONSERVE - CONSERVATION FUTURES | $0.16 | $0.16 | $0.00 | $0.00 | $0.32 | $0.00 |
| 2024 | 12402 | COROADS - COUNTY ROADS (ROADS, DIV TO CE) | $4.36 | $4.35 | $0.00 | $0.00 | $8.71 | $0.00 |
| 2024 | 12402 | PORTPT - PORT DISTRICT | $2.24 | $2.23 | $0.00 | $0.00 | $4.47 | $0.00 |
| 2024 | 12402 | PUD1 - PUD #1 | $0.36 | $0.35 | $0.00 | $0.00 | $0.71 | $0.00 |
| 2024 | 12402 | LIB1 - LIBRARY DIST #1 | $1.69 | $1.68 | $0.00 | $0.00 | $3.37 | $0.00 |
| 2024 | 12402 | HD2 - HOSP DIST #2 | $0.32 | $0.31 | $0.00 | $0.00 | $0.63 | $0.00 |
| 2024 | 12402 | SD50 - SCHOOL DIST #50 | $10.25 | $10.22 | $0.00 | $0.00 | $20.47 | $0.00 |
| 2024 | 12402 | FD5 - FIRE DISTRICT #5 | $6.33 | $6.31 | $0.00 | $0.00 | $12.64 | $0.00 |
| 2024 | 12402 | EMS5 - FIRE DIST #5 EMS | $2.17 | $2.17 | $0.00 | $0.00 | $4.34 | $0.00 |
| 2024 | 12402 | FPLCA - DNR Landowner Contingency Assmt | $3.00 | $3.00 | $0.00 | $0.00 | $6.00 | $0.00 |
| 2024 | 12402 | JCCD - JC Conservation District | $2.57 | $2.57 | $0.00 | $0.00 | $5.14 | $0.00 |
| 2024 | 12402 | NWA - Noxious Weed Assessment | $2.30 | $2.30 | $0.00 | $0.00 | $4.60 | $0.00 |
| 2024 | 12402 | WAT - Clean Water District | $12.50 | $12.50 | $0.00 | $0.00 | $25.00 | $0.00 |
| 2024 | 12402 | TOTAL: | $66.31 | $66.20 | $0.00 | $0.00 | $132.51 | $0.00 |
|
| 2024 | 12402 | $66.31 | $66.20 | $0.00 | $0.00 | $132.51 | $0.00 |
Statement Details |
| 2023 | 12422 | STATE - STATE LEVY (SCHOOL) | $11.32 | $11.31 | $0.00 | $0.00 | $22.63 | $0.00 |
| 2023 | 12422 | COUNTY - COUNTY LEVIES (CE, DD, VET, MH) | $4.95 | $4.94 | $0.00 | $0.00 | $9.89 | $0.00 |
| 2023 | 12422 | CONSERVE - CONSERVATION FUTURES | $0.15 | $0.15 | $0.00 | $0.00 | $0.30 | $0.00 |
| 2023 | 12422 | COROADS - COUNTY ROADS (ROADS, DIV TO CE) | $4.00 | $3.99 | $0.00 | $0.00 | $7.99 | $0.00 |
| 2023 | 12422 | PORTPT - PORT DISTRICT | $2.08 | $2.08 | $0.00 | $0.00 | $4.16 | $0.00 |
| 2023 | 12422 | PUD1 - PUD #1 | $0.33 | $0.32 | $0.00 | $0.00 | $0.65 | $0.00 |
| 2023 | 12422 | LIB1 - LIBRARY DIST #1 | $1.55 | $1.54 | $0.00 | $0.00 | $3.09 | $0.00 |
| 2023 | 12422 | HD2 - HOSP DIST #2 | $0.30 | $0.28 | $0.00 | $0.00 | $0.58 | $0.00 |
| 2023 | 12422 | SD50 - SCHOOL DIST #50 | $8.98 | $8.97 | $0.00 | $0.00 | $17.95 | $0.00 |
| 2023 | 12422 | FD5 - FIRE DISTRICT #5 | $5.88 | $5.88 | $0.00 | $0.00 | $11.76 | $0.00 |
| 2023 | 12422 | EMS5 - FIRE DIST #5 EMS | $1.93 | $1.93 | $0.00 | $0.00 | $3.86 | $0.00 |
| 2023 | 12422 | FPLCA - DNR Landowner Contingency Assmt | $3.00 | $3.00 | $0.00 | $0.00 | $6.00 | $0.00 |
| 2023 | 12422 | JCCD - JC Conservation District | $2.57 | $2.57 | $0.00 | $0.00 | $5.14 | $0.00 |
| 2023 | 12422 | NWA - Noxious Weed Assessment | $2.30 | $2.30 | $0.00 | $0.00 | $4.60 | $0.00 |
| 2023 | 12422 | WAT - Clean Water District | $12.00 | $12.00 | $0.00 | $0.00 | $24.00 | $0.00 |
| 2023 | 12422 | TOTAL: | $61.34 | $61.26 | $0.00 | $0.00 | $122.60 | $0.00 |
|
| 2023 | 12422 | $61.34 | $61.26 | $0.00 | $0.00 | $122.60 | $0.00 |
Values
| (+) Improvement Homesite Value: | + | $0 | |
| (+) Improvement Non-Homesite Value: | + | $0 | |
| (+) Land Homesite Value: | + | $0 | |
| (+) Land Non-Homesite Value: | + | $11,895 | |
| (+) Curr Use (HS): | + | $0 | $0 |
| (+) Curr Use (NHS): | + | $0 | $0 |
| | | -------------------------- | |
| (=) Market Value: | = | $11,895 | |
| (–) Productivity Loss: | – | $0 | |
| | | -------------------------- | |
| (=) Subtotal: | = | $11,895 | |
| (+) Senior Appraised Value: | + | $0 | |
| (+) Non-Senior Appraised Value: | + | $11,895 | |
| | | -------------------------- | |
| (=) Total Appraised Value: | = | $11,895 | |
| (–) Senior Exemption Loss: | – | $0 | |
| (–) Exemption Loss: | – | $0 | |
| | | -------------------------- | |
| (=) Taxable Value: | = | $11,895 | |
Taxing Jurisdiction
| Owner: | JASON DAHL | | |
| % Ownership: | 100.0000000000% | | |
| Total Value: | N/A | | |
| Tax Area: | 0151 - 1-50F5E5H2L1 |
| CE | COUNTY CURRENT EXPENSE | N/A | N/A | N/A | N/A | | |
| CNTYDD | DEVELOPMENTAL DISABILITIES | N/A | N/A | N/A | N/A | | |
| CNTYVET | VETERANS RELIEF | N/A | N/A | N/A | N/A | | |
| MENTAL | MENTAL HEALTH | N/A | N/A | N/A | N/A | | |
| ROADS | COUNTY ROADS | N/A | N/A | N/A | N/A | | |
| HOSP2CASH | HOSP DIST #2 GENERAL | N/A | N/A | N/A | N/A | | |
| SCH50BOND | SCHOOL DIST #50 BOND 2016 | N/A | N/A | N/A | N/A | | |
| SCH50CP | SCHOOL DIST #50 CAP PROJ | N/A | N/A | N/A | N/A | | |
| SCH50MO | SCHOOL DIST #50 EP & O | N/A | N/A | N/A | N/A | | |
| CONSERVE | CONSERVATION FUTURES | N/A | N/A | N/A | N/A | | |
| EMS5 | FIRE DIST #5 EMS | N/A | N/A | N/A | N/A | | |
| FD5 | FIRE DIST #5 GENERAL | N/A | N/A | N/A | N/A | | |
| FD5BOND | FIRE DIST #5 BOND 2016 | N/A | N/A | N/A | N/A | | |
| LIB1 | LIBRARY DIST #1 GENERAL | N/A | N/A | N/A | N/A | | |
| PORTPT | PORT OF PT GENERAL | N/A | N/A | N/A | N/A | | |
| PORTPTIDD | PORT OF PT IDD 2019 | N/A | N/A | N/A | N/A | | |
| PUD1 | PUD #1 GENERAL | N/A | N/A | N/A | N/A | | |
| STATE | STATE SCHOOL PART 1 | N/A | N/A | N/A | N/A | | |
| STATE2 | STATE SCHOOL PART 2 | N/A | N/A | N/A | N/A | | |
| | Total Tax Rate: | N/A | | | | | |
| | | | | Taxes w/Current Exemptions: | N/A | | |
| | | | | Taxes w/o Exemptions: | N/A | | |
Improvement / Building
Sketch
| No sketches available for this property. |
Property Image
Land
| 1 | 1678A | | 1.7800 | 77536.80 | 0.00 | 0.00 | 0.00 | $11,895 | $0 |
Roll Value History
| 2026 | N/A | N/A | N/A | N/A | N/A |
| 2025 | $0 | $11,895 | $0 | $11,895 | $11,895 |
| 2024 | $0 | $11,895 | $0 | $11,895 | $11,895 |
| 2023 | $0 | $10,934 | $0 | $10,934 | $10,934 |
| 2022 | $0 | $9,612 | $0 | $9,612 | $9,612 |
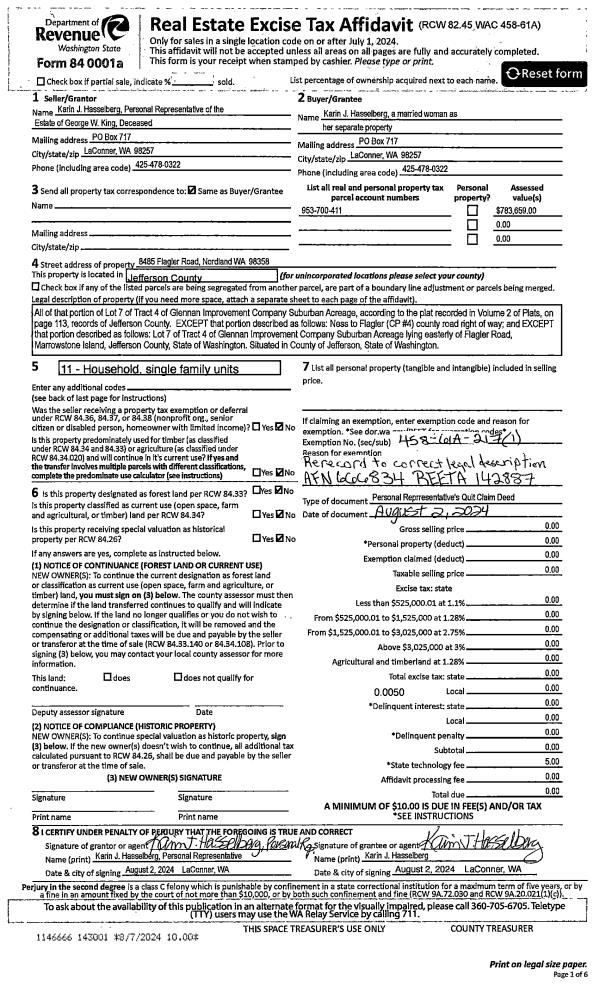
Deed and Sales History
| 1 | 09/24/2024 | SWD | Statutory Warranty Deed | THADEA INEZ OTTO | JASON DAHL | | | $310,000.00 | 143274 | |
|   | |
| 2 | 09/22/2023 | PRD | Personal Representatives Deed | THADDEUS W PIERCE JR | THADEA INEZ OTTO | | | | 141601 | |
Payout Agreement
| No payout information available.. |