Property
Account |
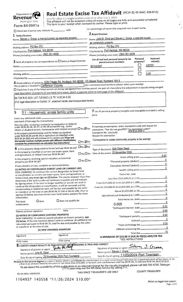
| Property ID: | 22952 | Abbreviated Legal Description: | S4 T29 R1E GOV LOT 7(S15AC) LS TX 14,83,84 & 92 |
| Parcel # / Geo ID: | 921042007 | Agent Code: | |
| Type: | Real | | |
| Tax Area: | 0211 - 1-49F1E1H2L1 | Land Use Code | 11 |
| Open Space: | N | DFL | N |
| Historic Property: | N | Remodel Property: | N |
| Multi-Family Redevelopment: | N | | |
| Township: | 29N | Section: | 4 |
| Range: | 1E |
Location |
| Address: | 6364 FLAGLER RD NORDLAND, WA 98358 | Mapsco: | 165/007 |
| Neighborhood: | SEC 4,5 T29 R1E LESS PLATTED INCL MINNIHAN & DR BILLS SP | Map ID: | |
| Neighborhood CD: | 4610 |
Owner |
| Name: | JULIE GEIST | Owner ID: | 48810 |
| Mailing Address: | STEVEN GRACE PO BOX 370 PORT HADLOCK, WA 98339-0370 | % Ownership: | 100.0000000000% |
| | | Exemptions: | |
Pay Tax Due
Select the appropriate checkbox next to the year to be paid. Multiple years may be selected.
*Convenience Fee not included
Taxes and Assessment Details
Property Tax Information as of
03/11/2026
Click on "Statement Details" to expand or collapse a tax statement.
* Please enter a valid date ** Please enter a valid date *
Statement Details |
| 2026 | 12401 | STATE - STATE LEVY (SCHOOL) | $554.62 | $554.60 | $0.00 | $0.00 | $0.00 | $1109.22 |
| 2026 | 12401 | COUNTY - COUNTY LEVIES (CE, DD, VET, MH) | $221.75 | $221.71 | $0.00 | $0.00 | $0.00 | $443.46 |
| 2026 | 12401 | CONSERVE - CONSERVATION FUTURES | $6.65 | $6.65 | $0.00 | $0.00 | $0.00 | $13.30 |
| 2026 | 12401 | COROADS - COUNTY ROADS (ROADS, DIV TO CE) | $178.88 | $178.87 | $0.00 | $0.00 | $0.00 | $357.75 |
| 2026 | 12401 | PORTPT - PORT DISTRICT | $89.56 | $89.55 | $0.00 | $0.00 | $0.00 | $179.11 |
| 2026 | 12401 | PUD1 - PUD #1 | $14.43 | $14.42 | $0.00 | $0.00 | $0.00 | $28.85 |
| 2026 | 12401 | LIB1 - LIBRARY DIST #1 | $69.21 | $69.20 | $0.00 | $0.00 | $0.00 | $138.41 |
| 2026 | 12401 | HD2 - HOSP DIST #2 | $12.93 | $12.93 | $0.00 | $0.00 | $0.00 | $25.86 |
| 2026 | 12401 | SD49 - SCHOOL DIST #49 | $305.29 | $305.29 | $0.00 | $0.00 | $0.00 | $610.58 |
| 2026 | 12401 | FD1 - FIRE DISTRICT #1 | $293.63 | $293.62 | $0.00 | $0.00 | $0.00 | $587.25 |
| 2026 | 12401 | EMS1 - FIRE DIST #1 EMS | $112.90 | $112.89 | $0.00 | $0.00 | $0.00 | $225.79 |
| 2026 | 12401 | FPLCA - DNR Landowner Contingency Assmt | $3.00 | $3.00 | $0.00 | $0.00 | $0.00 | $6.00 |
| 2026 | 12401 | JCCD - JC Conservation District | $3.05 | $3.05 | $0.00 | $0.00 | $0.00 | $6.10 |
| 2026 | 12401 | NWA - Noxious Weed Assessment | $5.23 | $5.22 | $0.00 | $0.00 | $0.00 | $10.45 |
| 2026 | 12401 | OSS - On Site Septic | $23.10 | $23.10 | $0.00 | $0.00 | $0.00 | $46.20 |
| 2026 | 12401 | WAT - Clean Water District | $13.00 | $13.00 | $0.00 | $0.00 | $0.00 | $26.00 |
| 2026 | 12401 | TOTAL: | $1907.23 | $1907.10 | $0.00 | $0.00 | $0.00 | $3814.33 |
|
| 2026 | 12401 | $1907.23 | $1907.10 | $0.00 | $0.00 | $0.00 | $3814.33 |
Statement Details |
| 2025 | 12427 | STATE - STATE LEVY (SCHOOL) | $552.31 | $552.29 | $0.00 | $0.00 | $1104.60 | $0.00 |
| 2025 | 12427 | COUNTY - COUNTY LEVIES (CE, DD, VET, MH) | $217.20 | $217.18 | $0.00 | $0.00 | $434.38 | $0.00 |
| 2025 | 12427 | CONSERVE - CONSERVATION FUTURES | $6.52 | $6.51 | $0.00 | $0.00 | $13.03 | $0.00 |
| 2025 | 12427 | COROADS - COUNTY ROADS (ROADS, DIV TO CE) | $174.01 | $173.99 | $0.00 | $0.00 | $348.00 | $0.00 |
| 2025 | 12427 | PORTPT - PORT DISTRICT | $88.63 | $88.62 | $0.00 | $0.00 | $177.25 | $0.00 |
| 2025 | 12427 | PUD1 - PUD #1 | $14.21 | $14.21 | $0.00 | $0.00 | $28.42 | $0.00 |
| 2025 | 12427 | LIB1 - LIBRARY DIST #1 | $67.32 | $67.32 | $0.00 | $0.00 | $134.64 | $0.00 |
| 2025 | 12427 | HD2 - HOSP DIST #2 | $12.67 | $12.67 | $0.00 | $0.00 | $25.34 | $0.00 |
| 2025 | 12427 | SD49 - SCHOOL DIST #49 | $296.01 | $295.99 | $0.00 | $0.00 | $592.00 | $0.00 |
| 2025 | 12427 | FD1 - FIRE DISTRICT #1 | $286.61 | $286.60 | $0.00 | $0.00 | $573.21 | $0.00 |
| 2025 | 12427 | EMS1 - FIRE DIST #1 EMS | $110.24 | $110.23 | $0.00 | $0.00 | $220.47 | $0.00 |
| 2025 | 12427 | FPLCA - DNR Landowner Contingency Assmt | $3.00 | $3.00 | $0.00 | $0.00 | $6.00 | $0.00 |
| 2025 | 12427 | JCCD - JC Conservation District | $3.05 | $3.05 | $0.00 | $0.00 | $6.10 | $0.00 |
| 2025 | 12427 | NWA - Noxious Weed Assessment | $3.65 | $3.65 | $0.00 | $0.00 | $7.30 | $0.00 |
| 2025 | 12427 | OSS - On Site Septic | $21.50 | $21.50 | $0.00 | $0.00 | $43.00 | $0.00 |
| 2025 | 12427 | WAT - Clean Water District | $13.00 | $13.00 | $0.00 | $0.00 | $26.00 | $0.00 |
| 2025 | 12427 | TOTAL: | $1869.93 | $1869.81 | $0.00 | $0.00 | $3739.74 | $0.00 |
|
| 2025 | 12427 | $1869.93 | $1869.81 | $0.00 | $0.00 | $3739.74 | $0.00 |
Statement Details |
| 2024 | 12453 | STATE - STATE LEVY (SCHOOL) | $501.82 | $501.81 | $0.00 | $0.00 | $1003.63 | $0.00 |
| 2024 | 12453 | COUNTY - COUNTY LEVIES (CE, DD, VET, MH) | $214.73 | $214.73 | $0.00 | $0.00 | $429.46 | $0.00 |
| 2024 | 12453 | CONSERVE - CONSERVATION FUTURES | $6.44 | $6.44 | $0.00 | $0.00 | $12.88 | $0.00 |
| 2024 | 12453 | COROADS - COUNTY ROADS (ROADS, DIV TO CE) | $172.79 | $172.79 | $0.00 | $0.00 | $345.58 | $0.00 |
| 2024 | 12453 | PORTPT - PORT DISTRICT | $88.70 | $88.69 | $0.00 | $0.00 | $177.39 | $0.00 |
| 2024 | 12453 | PUD1 - PUD #1 | $14.11 | $14.10 | $0.00 | $0.00 | $28.21 | $0.00 |
| 2024 | 12453 | LIB1 - LIBRARY DIST #1 | $66.85 | $66.85 | $0.00 | $0.00 | $133.70 | $0.00 |
| 2024 | 12453 | HD2 - HOSP DIST #2 | $12.53 | $12.53 | $0.00 | $0.00 | $25.06 | $0.00 |
| 2024 | 12453 | SD49 - SCHOOL DIST #49 | $224.09 | $224.08 | $0.00 | $0.00 | $448.17 | $0.00 |
| 2024 | 12453 | FD1 - FIRE DISTRICT #1 | $283.93 | $283.92 | $0.00 | $0.00 | $567.85 | $0.00 |
| 2024 | 12453 | EMS1 - FIRE DIST #1 EMS | $108.45 | $108.45 | $0.00 | $0.00 | $216.90 | $0.00 |
| 2024 | 12453 | FP - DNR Forest Fire Protection Assmt | $8.50 | $8.50 | $0.00 | $0.00 | $17.00 | $0.00 |
| 2024 | 12453 | FPLCA - DNR Landowner Contingency Assmt | $3.00 | $3.00 | $0.00 | $0.00 | $6.00 | $0.00 |
| 2024 | 12453 | JCCD - JC Conservation District | $3.05 | $3.05 | $0.00 | $0.00 | $6.10 | $0.00 |
| 2024 | 12453 | NWA - Noxious Weed Assessment | $3.65 | $3.65 | $0.00 | $0.00 | $7.30 | $0.00 |
| 2024 | 12453 | WAT - Clean Water District | $12.50 | $12.50 | $0.00 | $0.00 | $25.00 | $0.00 |
| 2024 | 12453 | FP ADMIN - FP ADMIN | $0.50 | $0.00 | $0.00 | $0.00 | $0.50 | $0.00 |
| 2024 | 12453 | TOTAL: | $1725.64 | $1725.09 | $0.00 | $0.00 | $3450.73 | $0.00 |
|
| 2024 | 12453 | $1725.64 | $1725.09 | $0.00 | $0.00 | $3450.73 | $0.00 |
Statement Details |
| 2023 | 12473 | STATE - STATE LEVY (SCHOOL) | $485.19 | $485.19 | $0.00 | $0.00 | $970.38 | $0.00 |
| 2023 | 12473 | COUNTY - COUNTY LEVIES (CE, DD, VET, MH) | $211.72 | $211.71 | $0.00 | $0.00 | $423.43 | $0.00 |
| 2023 | 12473 | CONSERVE - CONSERVATION FUTURES | $6.35 | $6.35 | $0.00 | $0.00 | $12.70 | $0.00 |
| 2023 | 12473 | COROADS - COUNTY ROADS (ROADS, DIV TO CE) | $171.30 | $171.30 | $0.00 | $0.00 | $342.60 | $0.00 |
| 2023 | 12473 | PORTPT - PORT DISTRICT | $89.20 | $89.18 | $0.00 | $0.00 | $178.38 | $0.00 |
| 2023 | 12473 | PUD1 - PUD #1 | $14.04 | $14.03 | $0.00 | $0.00 | $28.07 | $0.00 |
| 2023 | 12473 | LIB1 - LIBRARY DIST #1 | $66.28 | $66.27 | $0.00 | $0.00 | $132.55 | $0.00 |
| 2023 | 12473 | HD2 - HOSP DIST #2 | $12.36 | $12.35 | $0.00 | $0.00 | $24.71 | $0.00 |
| 2023 | 12473 | SD49 - SCHOOL DIST #49 | $226.80 | $226.80 | $0.00 | $0.00 | $453.60 | $0.00 |
| 2023 | 12473 | FD1 - FIRE DISTRICT #1 | $174.42 | $174.42 | $0.00 | $0.00 | $348.84 | $0.00 |
| 2023 | 12473 | EMS1 - FIRE DIST #1 EMS | $74.20 | $74.19 | $0.00 | $0.00 | $148.39 | $0.00 |
| 2023 | 12473 | FP - DNR Forest Fire Protection Assmt | $8.50 | $8.50 | $0.00 | $0.00 | $17.00 | $0.00 |
| 2023 | 12473 | FPLCA - DNR Landowner Contingency Assmt | $3.00 | $3.00 | $0.00 | $0.00 | $6.00 | $0.00 |
| 2023 | 12473 | JCCD - JC Conservation District | $3.05 | $3.05 | $0.00 | $0.00 | $6.10 | $0.00 |
| 2023 | 12473 | NWA - Noxious Weed Assessment | $3.65 | $3.65 | $0.00 | $0.00 | $7.30 | $0.00 |
| 2023 | 12473 | WAT - Clean Water District | $12.00 | $12.00 | $0.00 | $0.00 | $24.00 | $0.00 |
| 2023 | 12473 | FP ADMIN - FP ADMIN | $0.50 | $0.00 | $0.00 | $0.00 | $0.50 | $0.00 |
| 2023 | 12473 | TOTAL: | $1562.56 | $1561.99 | $0.00 | $0.00 | $3124.55 | $0.00 |
|
| 2023 | 12473 | $1562.56 | $1561.99 | $0.00 | $0.00 | $3124.55 | $0.00 |
Values
| (+) Improvement Homesite Value: | + | $0 | |
| (+) Improvement Non-Homesite Value: | + | $49,129 | |
| (+) Land Homesite Value: | + | $0 | |
| (+) Land Non-Homesite Value: | + | $433,334 | |
| (+) Curr Use (HS): | + | $0 | $0 |
| (+) Curr Use (NHS): | + | $0 | $0 |
| | | -------------------------- | |
| (=) Market Value: | = | $482,463 | |
| (–) Productivity Loss: | – | $0 | |
| | | -------------------------- | |
| (=) Subtotal: | = | $482,463 | |
| (+) Senior Appraised Value: | + | $0 | |
| (+) Non-Senior Appraised Value: | + | $482,463 | |
| | | -------------------------- | |
| (=) Total Appraised Value: | = | $482,463 | |
| (–) Senior Exemption Loss: | – | $0 | |
| (–) Exemption Loss: | – | $0 | |
| | | -------------------------- | |
| (=) Taxable Value: | = | $482,463 | |
Taxing Jurisdiction
| Owner: | JULIE GEIST | | |
| % Ownership: | 100.0000000000% | | |
| Total Value: | $482,463 | | |
| Tax Area: | 0211 - 1-49F1E1H2L1 |
| CE | COUNTY CURRENT EXPENSE | 0.9034619479 | $482,463 | $482,463 | $435.89 | | |
| CNTYDD | DEVELOPMENTAL DISABILITIES | 0.0052121823 | $482,463 | $482,463 | $2.51 | | |
| CNTYVET | VETERANS RELIEF | 0.0052777810 | $482,463 | $482,463 | $2.55 | | |
| MENTAL | MENTAL HEALTH | 0.0052121823 | $482,463 | $482,463 | $2.51 | | |
| ROADS | COUNTY ROADS | 0.7415066410 | $482,463 | $482,463 | $357.75 | | |
| ROADSCU | COUNTY ROADS TO CUR EXP | 0.0000000000 | $482,463 | $482,463 | $0.00 | | |
| HOSP2CASH | HOSP DIST #2 GENERAL | 0.0536075306 | $482,463 | $482,463 | $25.86 | | |
| SCH49CP | SCHOOL DIST #49 CAP PROJ | 0.6279093905 | $482,463 | $482,463 | $302.94 | | |
| SCH49MO | SCHOOL DIST #49 EP & O | 0.6376483602 | $482,463 | $482,463 | $307.64 | | |
| CONSERVE | CONSERVATION FUTURES | 0.0275621078 | $482,463 | $482,463 | $13.30 | | |
| EMS1 | FIRE DIST #1 EMS | 0.4679948282 | $482,463 | $482,463 | $225.79 | | |
| FD1 | FIRE DIST #1 GENERAL | 1.2171942929 | $482,463 | $482,463 | $587.25 | | |
| LIB1 | LIBRARY DIST #1 GENERAL | 0.2868827388 | $482,463 | $482,463 | $138.41 | | |
| PORTPT | PORT OF PT GENERAL | 0.1134941229 | $482,463 | $482,463 | $54.76 | | |
| PORTPTIDD | PORT OF PT IDD 2019 | 0.2577346692 | $482,463 | $482,463 | $124.35 | | |
| PUD1 | PUD #1 GENERAL | 0.0597888892 | $482,463 | $482,463 | $28.85 | | |
| STATE | STATE SCHOOL PART 1 | 1.4940692947 | $482,463 | $482,463 | $720.83 | | |
| STATE2 | STATE SCHOOL PART 2 | 0.8050170049 | $482,463 | $482,463 | $388.39 | | |
| | Total Tax Rate: | 7.7095739644 | | | | | |
| | | | | Taxes w/Current Exemptions: | $3,719.58 | | |
| | | | | Taxes w/o Exemptions: | $3,719.58 | | |
Improvement / Building
| Improvement #1: | Residential Bldg | State Code: | 11 | 1026.0 sqft | Value: | $49,129 |
| Bathrooms (#): | 1 (FULL) | Bedrooms (#): | 2 | | Exterior Wall: | SI/ST | Floor Construction: | FRAME | | Foundation: | PO&BL | Heating/Cooling: | OTHER | | Inside Verify: | YES-FIX | Roof Cover: | COMP |
|
| | Type | Description | Class CD | Sub Class CD | Year Built | Area |
| | MA | Main Area | 2- | 1S | 1920 | 1026.0 |
| | HDECK | House Deck | 2 | 1S | 1920 | 18.0 |
| | OTHER | Other | 1 | 1S | 1920 | 0.0 |
| | GDET | Detached Garage | 2 | 1S | 1920 | 864.0 |
Sketch
Property Image
Land
| 1 | 4610-1355S | | 1.0000 | 43560.00 | 0.00 | 0.00 | 1.00 | $209,000 | $0 |
| 2 | 4610-1665A | | 9.2700 | 403801.20 | 0.00 | 0.00 | 0.00 | $224,334 | $0 |
Roll Value History
| 2026 | N/A | N/A | N/A | N/A | N/A |
| 2025 | $49,129 | $433,334 | $0 | $482,463 | $482,463 |
| 2024 | $46,993 | $413,637 | $0 | $460,630 | $460,630 |
| 2023 | $44,857 | $388,940 | $0 | $433,797 | $433,797 |
| 2022 | $46,801 | $365,400 | $0 | $412,201 | $412,201 |
Deed and Sales History
| 1 | 11/25/2024 | QCD | Quit Claim Deed | STEVEN J GRACE | JULIE GEIST | | | | 143558 | |
| 2 | 04/18/2012 | SWD | Statutory Warranty Deed | PADDOCK, HARLAN | GRACE, STEVEN J | 0 | 0 | $168,330.00 | 117458 | 0 |
| 3 | 09/26/2005 | QCD | Quit Claim Deed | WESTERN WASHINGTON CORPOR | PADDOCK, HARLAN | 0 | 0 | $0.00 | 104877 | 0 |
| 4 | 10/21/1996 | SWD | Statutory Warranty Deed | PADDOCK, HARLAN T/STELLA | SEVENTH DAY ADVENTISTS/WW CORP | 0 | 0 | $0.00 | 80855 | 0 |
| 5 | 09/23/1996 | QCD | Quit Claim Deed | SEVENTH DAY ADVENTISTS/TR | PADDOCK, HARLAN/STELLA | 0 | 0 | $0.00 | 80741 | 0 |
| 6 | 12/06/1995 | QCD | Quit Claim Deed | PADDOCK, MILDRED | PADDOCK, HARLAN T/STELLA M | 0 | 0 | $0.00 | 78397 | 0 |
Payout Agreement
| No payout information available.. |