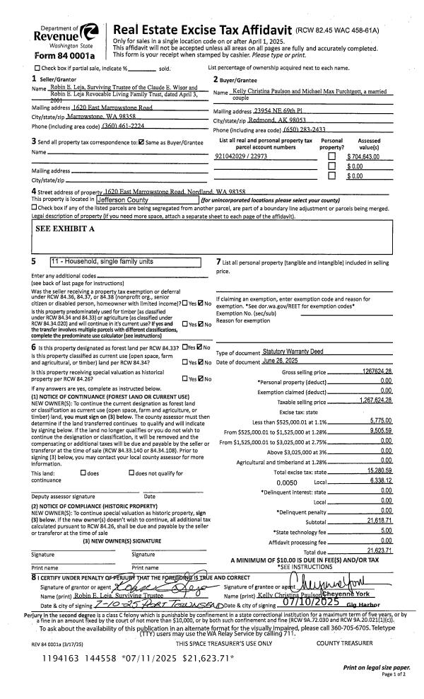
| 1 | 06/26/2025 | SWD | Statutory Warranty Deed | CLAUDE WISOR & ROBIN LEJA REVOCABLE LIVING TRUST | KELLY C PAULSON & | | | $1,267,624.00 | 144558 | |
| 2 | 12/29/2020 | QCD | Quit Claim Deed | ROBIN E LEJA | CLAUDE WISOR & ROBIN LEJA REVOCABLE LIVING TRUST | | | | 136425 | |
| 3 | 12/29/2020 | QCD | Quit Claim Deed | CLAUDE E WISOR TRUSTEE | ROBIN E LEJA | | | | 136422 | |
| 4 | 05/03/2016 | QCD | Quit Claim Deed | | | | | | 125397 | |
| 5 | 05/03/2016 | QCD | Quit Claim Deed | | | | | | 125396 | |
| 6 | 04/03/2001 | QCD | Quit Claim Deed | WISOR, CLAUDE E, LEJA, RO | WISOR, CLAUDE E, LEJA, ROBIN E | 0 | 0 | $0.00 | 92191 | 0 |
| 7 | 10/24/2000 | WD | Warranty Deed | SEVERIN GROUP INC | LEJA, ROBIN E/WISOR, CLAUDE E | 0 | 0 | $0.00 | 90886 | 0 |
| 8 | 10/24/2000 | WD | Warranty Deed | THE SEVERIN GROUP INC | LEJA, ROBIN E & WISOR, CLAUDE | 0 | 0 | $0.00 | 91052 | 0 |
| 9 | 05/15/2000 | SWD | Statutory Warranty Deed | WOODLEY, EARL L | SEVERIN GROUP INC | 0 | 0 | $282,500.00 | 89598 | 0 |