Property
Account |
| Property ID: | 22990 | Abbreviated Legal Description: | S4 T29 R1E TAX 87(LESS R/W) |
| Parcel # / Geo ID: | 921042046 | Agent Code: | |
| Type: | Real | | |
| Tax Area: | 0211 - 1-49F1E1H2L1 | Land Use Code | 91 |
| Open Space: | N | DFL | N |
| Historic Property: | N | Remodel Property: | N |
| Multi-Family Redevelopment: | N | | |
| Township: | 29N | Section: | 4 |
| Range: | 1E |
Location |
| Address: | 135 MEADE RD NORDLAND, WA 98358 | Mapsco: | 166/033 |
| Neighborhood: | SEC 4,5 T29 R1E LESS PLATTED INCL MINNIHAN & DR BILLS SP | Map ID: | |
| Neighborhood CD: | 4610 |
Owner |
| Name: | JULIE GEIST | Owner ID: | 48810 |
| Mailing Address: | STEVEN GRACE PO BOX 370 PORT HADLOCK, WA 98339-0370 | % Ownership: | 100.0000000000% |
| | | Exemptions: | |
Pay Tax Due
Select the appropriate checkbox next to the year to be paid. Multiple years may be selected.
*Convenience Fee not included
Taxes and Assessment Details
Property Tax Information as of
03/12/2026
Click on "Statement Details" to expand or collapse a tax statement.
* Please enter a valid date ** Please enter a valid date *
Statement Details |
| 2026 | 12438 | STATE - STATE LEVY (SCHOOL) | $136.76 | $136.75 | $0.00 | $0.00 | $0.00 | $273.51 |
| 2026 | 12438 | COUNTY - COUNTY LEVIES (CE, DD, VET, MH) | $54.68 | $54.67 | $0.00 | $0.00 | $0.00 | $109.35 |
| 2026 | 12438 | CONSERVE - CONSERVATION FUTURES | $1.64 | $1.64 | $0.00 | $0.00 | $0.00 | $3.28 |
| 2026 | 12438 | COROADS - COUNTY ROADS (ROADS, DIV TO CE) | $44.11 | $44.10 | $0.00 | $0.00 | $0.00 | $88.21 |
| 2026 | 12438 | PORTPT - PORT DISTRICT | $22.08 | $22.08 | $0.00 | $0.00 | $0.00 | $44.16 |
| 2026 | 12438 | PUD1 - PUD #1 | $3.56 | $3.55 | $0.00 | $0.00 | $0.00 | $7.11 |
| 2026 | 12438 | LIB1 - LIBRARY DIST #1 | $17.07 | $17.06 | $0.00 | $0.00 | $0.00 | $34.13 |
| 2026 | 12438 | HD2 - HOSP DIST #2 | $3.19 | $3.19 | $0.00 | $0.00 | $0.00 | $6.38 |
| 2026 | 12438 | SD49 - SCHOOL DIST #49 | $75.28 | $75.28 | $0.00 | $0.00 | $0.00 | $150.56 |
| 2026 | 12438 | FD1 - FIRE DISTRICT #1 | $72.40 | $72.40 | $0.00 | $0.00 | $0.00 | $144.80 |
| 2026 | 12438 | EMS1 - FIRE DIST #1 EMS | $27.84 | $27.84 | $0.00 | $0.00 | $0.00 | $55.68 |
| 2026 | 12438 | FPLCA - DNR Landowner Contingency Assmt | $3.00 | $3.00 | $0.00 | $0.00 | $0.00 | $6.00 |
| 2026 | 12438 | JCCD - JC Conservation District | $2.57 | $2.57 | $0.00 | $0.00 | $0.00 | $5.14 |
| 2026 | 12438 | NWA - Noxious Weed Assessment | $3.20 | $3.20 | $0.00 | $0.00 | $0.00 | $6.40 |
| 2026 | 12438 | OSS - On Site Septic | $23.10 | $23.10 | $0.00 | $0.00 | $0.00 | $46.20 |
| 2026 | 12438 | WAT - Clean Water District | $13.00 | $13.00 | $0.00 | $0.00 | $0.00 | $26.00 |
| 2026 | 12438 | TOTAL: | $503.48 | $503.43 | $0.00 | $0.00 | $0.00 | $1006.91 |
|
| 2026 | 12438 | $503.48 | $503.43 | $0.00 | $0.00 | $0.00 | $1006.91 |
Statement Details |
| 2025 | 12464 | STATE - STATE LEVY (SCHOOL) | $136.17 | $136.15 | $0.00 | $0.00 | $272.32 | $0.00 |
| 2025 | 12464 | COUNTY - COUNTY LEVIES (CE, DD, VET, MH) | $53.56 | $53.53 | $0.00 | $0.00 | $107.09 | $0.00 |
| 2025 | 12464 | CONSERVE - CONSERVATION FUTURES | $1.61 | $1.60 | $0.00 | $0.00 | $3.21 | $0.00 |
| 2025 | 12464 | COROADS - COUNTY ROADS (ROADS, DIV TO CE) | $42.90 | $42.89 | $0.00 | $0.00 | $85.79 | $0.00 |
| 2025 | 12464 | PORTPT - PORT DISTRICT | $21.85 | $21.84 | $0.00 | $0.00 | $43.69 | $0.00 |
| 2025 | 12464 | PUD1 - PUD #1 | $3.51 | $3.50 | $0.00 | $0.00 | $7.01 | $0.00 |
| 2025 | 12464 | LIB1 - LIBRARY DIST #1 | $16.60 | $16.59 | $0.00 | $0.00 | $33.19 | $0.00 |
| 2025 | 12464 | HD2 - HOSP DIST #2 | $3.13 | $3.12 | $0.00 | $0.00 | $6.25 | $0.00 |
| 2025 | 12464 | SD49 - SCHOOL DIST #49 | $72.97 | $72.97 | $0.00 | $0.00 | $145.94 | $0.00 |
| 2025 | 12464 | FD1 - FIRE DISTRICT #1 | $70.66 | $70.65 | $0.00 | $0.00 | $141.31 | $0.00 |
| 2025 | 12464 | EMS1 - FIRE DIST #1 EMS | $27.18 | $27.17 | $0.00 | $0.00 | $54.35 | $0.00 |
| 2025 | 12464 | FPLCA - DNR Landowner Contingency Assmt | $3.00 | $3.00 | $0.00 | $0.00 | $6.00 | $0.00 |
| 2025 | 12464 | JCCD - JC Conservation District | $2.57 | $2.57 | $0.00 | $0.00 | $5.14 | $0.00 |
| 2025 | 12464 | NWA - Noxious Weed Assessment | $2.30 | $2.30 | $0.00 | $0.00 | $4.60 | $0.00 |
| 2025 | 12464 | OSS - On Site Septic | $21.50 | $21.50 | $0.00 | $0.00 | $43.00 | $0.00 |
| 2025 | 12464 | WAT - Clean Water District | $13.00 | $13.00 | $0.00 | $0.00 | $26.00 | $0.00 |
| 2025 | 12464 | TOTAL: | $492.51 | $492.38 | $0.00 | $0.00 | $984.89 | $0.00 |
|
| 2025 | 12464 | $492.51 | $492.38 | $0.00 | $0.00 | $984.89 | $0.00 |
Statement Details |
| 2024 | 12490 | STATE - STATE LEVY (SCHOOL) | $124.94 | $124.93 | $0.00 | $0.00 | $249.87 | $0.00 |
| 2024 | 12490 | COUNTY - COUNTY LEVIES (CE, DD, VET, MH) | $53.46 | $53.45 | $0.00 | $0.00 | $106.91 | $0.00 |
| 2024 | 12490 | CONSERVE - CONSERVATION FUTURES | $1.61 | $1.60 | $0.00 | $0.00 | $3.21 | $0.00 |
| 2024 | 12490 | COROADS - COUNTY ROADS (ROADS, DIV TO CE) | $43.02 | $43.01 | $0.00 | $0.00 | $86.03 | $0.00 |
| 2024 | 12490 | PORTPT - PORT DISTRICT | $22.08 | $22.08 | $0.00 | $0.00 | $44.16 | $0.00 |
| 2024 | 12490 | PUD1 - PUD #1 | $3.51 | $3.51 | $0.00 | $0.00 | $7.02 | $0.00 |
| 2024 | 12490 | LIB1 - LIBRARY DIST #1 | $16.65 | $16.64 | $0.00 | $0.00 | $33.29 | $0.00 |
| 2024 | 12490 | HD2 - HOSP DIST #2 | $3.12 | $3.12 | $0.00 | $0.00 | $6.24 | $0.00 |
| 2024 | 12490 | SD49 - SCHOOL DIST #49 | $55.79 | $55.79 | $0.00 | $0.00 | $111.58 | $0.00 |
| 2024 | 12490 | FD1 - FIRE DISTRICT #1 | $70.69 | $70.69 | $0.00 | $0.00 | $141.38 | $0.00 |
| 2024 | 12490 | EMS1 - FIRE DIST #1 EMS | $27.00 | $27.00 | $0.00 | $0.00 | $54.00 | $0.00 |
| 2024 | 12490 | FPLCA - DNR Landowner Contingency Assmt | $3.00 | $3.00 | $0.00 | $0.00 | $6.00 | $0.00 |
| 2024 | 12490 | JCCD - JC Conservation District | $2.57 | $2.57 | $0.00 | $0.00 | $5.14 | $0.00 |
| 2024 | 12490 | NWA - Noxious Weed Assessment | $2.30 | $2.30 | $0.00 | $0.00 | $4.60 | $0.00 |
| 2024 | 12490 | OSS - On Site Septic | $21.00 | $21.00 | $0.00 | $0.00 | $42.00 | $0.00 |
| 2024 | 12490 | WAT - Clean Water District | $12.50 | $12.50 | $0.00 | $0.00 | $25.00 | $0.00 |
| 2024 | 12490 | TOTAL: | $463.24 | $463.19 | $0.00 | $0.00 | $926.43 | $0.00 |
|
| 2024 | 12490 | $463.24 | $463.19 | $0.00 | $0.00 | $926.43 | $0.00 |
Statement Details |
| 2023 | 12510 | STATE - STATE LEVY (SCHOOL) | $126.78 | $126.77 | $0.00 | $0.00 | $253.55 | $0.00 |
| 2023 | 12510 | COUNTY - COUNTY LEVIES (CE, DD, VET, MH) | $55.34 | $55.31 | $0.00 | $0.00 | $110.65 | $0.00 |
| 2023 | 12510 | CONSERVE - CONSERVATION FUTURES | $1.66 | $1.66 | $0.00 | $0.00 | $3.32 | $0.00 |
| 2023 | 12510 | COROADS - COUNTY ROADS (ROADS, DIV TO CE) | $44.76 | $44.75 | $0.00 | $0.00 | $89.51 | $0.00 |
| 2023 | 12510 | PORTPT - PORT DISTRICT | $23.31 | $23.30 | $0.00 | $0.00 | $46.61 | $0.00 |
| 2023 | 12510 | PUD1 - PUD #1 | $3.67 | $3.66 | $0.00 | $0.00 | $7.33 | $0.00 |
| 2023 | 12510 | LIB1 - LIBRARY DIST #1 | $17.32 | $17.31 | $0.00 | $0.00 | $34.63 | $0.00 |
| 2023 | 12510 | HD2 - HOSP DIST #2 | $3.24 | $3.22 | $0.00 | $0.00 | $6.46 | $0.00 |
| 2023 | 12510 | SD49 - SCHOOL DIST #49 | $59.27 | $59.25 | $0.00 | $0.00 | $118.52 | $0.00 |
| 2023 | 12510 | FD1 - FIRE DISTRICT #1 | $45.57 | $45.57 | $0.00 | $0.00 | $91.14 | $0.00 |
| 2023 | 12510 | EMS1 - FIRE DIST #1 EMS | $19.39 | $19.38 | $0.00 | $0.00 | $38.77 | $0.00 |
| 2023 | 12510 | FPLCA - DNR Landowner Contingency Assmt | $3.00 | $3.00 | $0.00 | $0.00 | $6.00 | $0.00 |
| 2023 | 12510 | JCCD - JC Conservation District | $2.57 | $2.57 | $0.00 | $0.00 | $5.14 | $0.00 |
| 2023 | 12510 | NWA - Noxious Weed Assessment | $2.30 | $2.30 | $0.00 | $0.00 | $4.60 | $0.00 |
| 2023 | 12510 | OSS - On Site Septic | $20.50 | $20.50 | $0.00 | $0.00 | $41.00 | $0.00 |
| 2023 | 12510 | WAT - Clean Water District | $12.00 | $12.00 | $0.00 | $0.00 | $24.00 | $0.00 |
| 2023 | 12510 | TOTAL: | $440.68 | $440.55 | $0.00 | $0.00 | $881.23 | $0.00 |
|
| 2023 | 12510 | $440.68 | $440.55 | $0.00 | $0.00 | $881.23 | $0.00 |
Values
| (+) Improvement Homesite Value: | + | $0 | |
| (+) Improvement Non-Homesite Value: | + | $0 | |
| (+) Land Homesite Value: | + | $0 | |
| (+) Land Non-Homesite Value: | + | $118,965 | |
| (+) Curr Use (HS): | + | $0 | $0 |
| (+) Curr Use (NHS): | + | $0 | $0 |
| | | -------------------------- | |
| (=) Market Value: | = | $118,965 | |
| (–) Productivity Loss: | – | $0 | |
| | | -------------------------- | |
| (=) Subtotal: | = | $118,965 | |
| (+) Senior Appraised Value: | + | $0 | |
| (+) Non-Senior Appraised Value: | + | $118,965 | |
| | | -------------------------- | |
| (=) Total Appraised Value: | = | $118,965 | |
| (–) Senior Exemption Loss: | – | $0 | |
| (–) Exemption Loss: | – | $0 | |
| | | -------------------------- | |
| (=) Taxable Value: | = | $118,965 | |
Taxing Jurisdiction
| Owner: | JULIE GEIST | | |
| % Ownership: | 100.0000000000% | | |
| Total Value: | $118,965 | | |
| Tax Area: | 0211 - 1-49F1E1H2L1 |
| CE | COUNTY CURRENT EXPENSE | 0.9034619479 | $118,965 | $118,965 | $107.48 | | |
| CNTYDD | DEVELOPMENTAL DISABILITIES | 0.0052121823 | $118,965 | $118,965 | $0.62 | | |
| CNTYVET | VETERANS RELIEF | 0.0052777810 | $118,965 | $118,965 | $0.63 | | |
| MENTAL | MENTAL HEALTH | 0.0052121823 | $118,965 | $118,965 | $0.62 | | |
| ROADS | COUNTY ROADS | 0.7415066410 | $118,965 | $118,965 | $88.21 | | |
| ROADSCU | COUNTY ROADS TO CUR EXP | 0.0000000000 | $118,965 | $118,965 | $0.00 | | |
| HOSP2CASH | HOSP DIST #2 GENERAL | 0.0536075306 | $118,965 | $118,965 | $6.38 | | |
| SCH49CP | SCHOOL DIST #49 CAP PROJ | 0.6279093905 | $118,965 | $118,965 | $74.70 | | |
| SCH49MO | SCHOOL DIST #49 EP & O | 0.6376483602 | $118,965 | $118,965 | $75.86 | | |
| CONSERVE | CONSERVATION FUTURES | 0.0275621078 | $118,965 | $118,965 | $3.28 | | |
| EMS1 | FIRE DIST #1 EMS | 0.4679948282 | $118,965 | $118,965 | $55.68 | | |
| FD1 | FIRE DIST #1 GENERAL | 1.2171942929 | $118,965 | $118,965 | $144.80 | | |
| LIB1 | LIBRARY DIST #1 GENERAL | 0.2868827388 | $118,965 | $118,965 | $34.13 | | |
| PORTPT | PORT OF PT GENERAL | 0.1134941229 | $118,965 | $118,965 | $13.50 | | |
| PORTPTIDD | PORT OF PT IDD 2019 | 0.2577346692 | $118,965 | $118,965 | $30.66 | | |
| PUD1 | PUD #1 GENERAL | 0.0597888892 | $118,965 | $118,965 | $7.11 | | |
| STATE | STATE SCHOOL PART 1 | 1.4940692947 | $118,965 | $118,965 | $177.74 | | |
| STATE2 | STATE SCHOOL PART 2 | 0.8050170049 | $118,965 | $118,965 | $95.77 | | |
| | Total Tax Rate: | 7.7095739644 | | | | | |
| | | | | Taxes w/Current Exemptions: | $917.17 | | |
| | | | | Taxes w/o Exemptions: | $917.17 | | |
Improvement / Building
Sketch
| No sketches available for this property. |
Property Image
Land
| 1 | 1571A | | 0.1500 | 6534.00 | 0.00 | 0.00 | 0.00 | $3,465 | $0 |
| 2 | 4610-1375S | | 1.0000 | 43560.00 | 0.00 | 0.00 | 1.00 | $115,500 | $0 |
Roll Value History
| 2026 | N/A | N/A | N/A | N/A | N/A |
| 2025 | $0 | $118,965 | $0 | $118,965 | $118,965 |
| 2024 | $0 | $113,558 | $0 | $113,558 | $113,558 |
| 2023 | $0 | $108,000 | $0 | $108,000 | $108,000 |
| 2022 | $0 | $107,700 | $0 | $107,700 | $107,700 |
Deed and Sales History
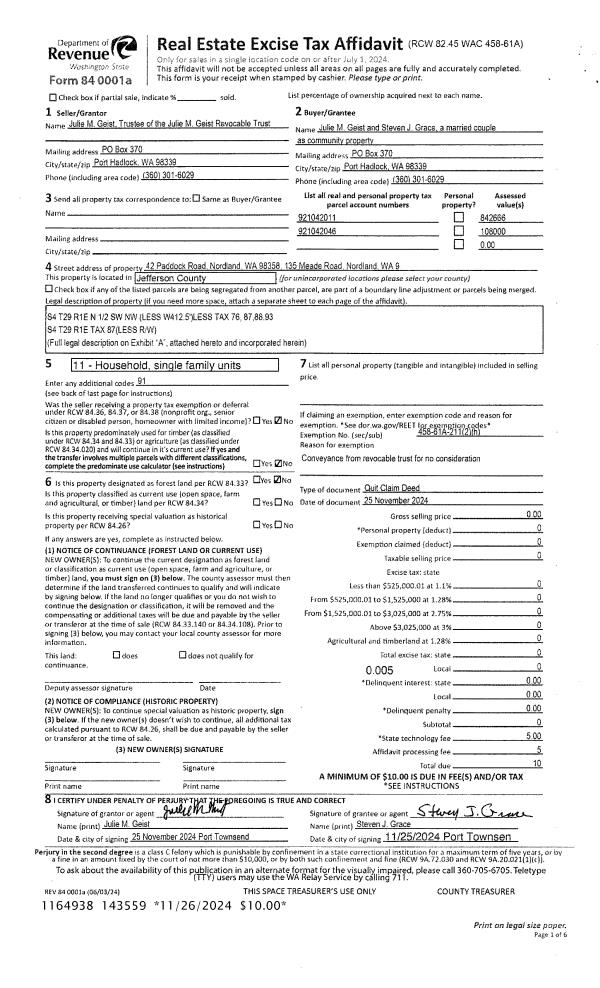
| 1 | 11/25/2024 | QCD | Quit Claim Deed | JULIE M GEIST TRUSTEE | JULIE GEIST | | | | 143559 | |
| 2 | 10/13/2010 | QCD | Quit Claim Deed | GEIST, JULIE M | GEIST, JULIE M REVOCABLE TRUST | 0 | 0 | $0.00 | 115076 | 0 |
| 3 | 07/23/2007 | SWD | Statutory Warranty Deed | PADDOCK, STELLA M | GEIST, JULIE | | | $450,000.00 | 109714 | 0 |
| 4 | 10/14/2005 | QCD | Quit Claim Deed | CORBETT ROTTACKER, RENEE | PADDOCK, STELLA | 0 | 0 | $0.00 | 105137 | 0 |
Payout Agreement
| No payout information available.. |