Property
Account |
| Property ID: | 23008 | Abbreviated Legal Description: | S4 T29 R1E TAX 6(S & W OF CO RD TL TAX H W/EASE |
| Parcel # / Geo ID: | 921043013 | Agent Code: | |
| Type: | Real | | |
| Tax Area: | 0211 - 1-49F1E1H2L1 | Land Use Code | 11 |
| Open Space: | N | DFL | N |
| Historic Property: | N | Remodel Property: | N |
| Multi-Family Redevelopment: | N | | |
| Township: | 29N | Section: | 4 |
| Range: | 1E |
Location |
| Address: | 5945 FLAGLER RD NORDLAND, WA 98358 | Mapsco: | 165/032 |
| Neighborhood: | SEC 4,5 T29 R1E LESS PLATTED INCL MINNIHAN & DR BILLS SP | Map ID: | |
| Neighborhood CD: | 4610 |
Owner |
| Name: | JEREMIAH& SABINA ROBERSON | Owner ID: | 103569 |
| Mailing Address: | 7711 111TH PL SE NEWCASTLE, WA 98056-1601 | % Ownership: | 100.0000000000% |
| | | Exemptions: | |
Pay Tax Due
Select the appropriate checkbox next to the year to be paid. Multiple years may be selected.
*Convenience Fee not included
Taxes and Assessment Details
Property Tax Information as of
03/11/2026
Click on "Statement Details" to expand or collapse a tax statement.
* Please enter a valid date ** Please enter a valid date *
Statement Details |
| 2026 | 12456 | STATE - STATE LEVY (SCHOOL) | $911.96 | $911.96 | $0.00 | $0.00 | $0.00 | $1823.92 |
| 2026 | 12456 | COUNTY - COUNTY LEVIES (CE, DD, VET, MH) | $364.61 | $364.58 | $0.00 | $0.00 | $0.00 | $729.19 |
| 2026 | 12456 | CONSERVE - CONSERVATION FUTURES | $10.94 | $10.93 | $0.00 | $0.00 | $0.00 | $21.87 |
| 2026 | 12456 | COROADS - COUNTY ROADS (ROADS, DIV TO CE) | $294.13 | $294.12 | $0.00 | $0.00 | $0.00 | $588.25 |
| 2026 | 12456 | PORTPT - PORT DISTRICT | $147.26 | $147.25 | $0.00 | $0.00 | $0.00 | $294.51 |
| 2026 | 12456 | PUD1 - PUD #1 | $23.72 | $23.71 | $0.00 | $0.00 | $0.00 | $47.43 |
| 2026 | 12456 | LIB1 - LIBRARY DIST #1 | $113.80 | $113.79 | $0.00 | $0.00 | $0.00 | $227.59 |
| 2026 | 12456 | HD2 - HOSP DIST #2 | $21.27 | $21.26 | $0.00 | $0.00 | $0.00 | $42.53 |
| 2026 | 12456 | SD49 - SCHOOL DIST #49 | $502.00 | $501.99 | $0.00 | $0.00 | $0.00 | $1003.99 |
| 2026 | 12456 | FD1 - FIRE DISTRICT #1 | $482.82 | $482.81 | $0.00 | $0.00 | $0.00 | $965.63 |
| 2026 | 12456 | EMS1 - FIRE DIST #1 EMS | $185.64 | $185.63 | $0.00 | $0.00 | $0.00 | $371.27 |
| 2026 | 12456 | JCCD - JC Conservation District | $2.55 | $2.55 | $0.00 | $0.00 | $0.00 | $5.10 |
| 2026 | 12456 | NWA - Noxious Weed Assessment | $2.98 | $2.97 | $0.00 | $0.00 | $0.00 | $5.95 |
| 2026 | 12456 | OSS - On Site Septic | $23.10 | $23.10 | $0.00 | $0.00 | $0.00 | $46.20 |
| 2026 | 12456 | WAT - Clean Water District | $13.00 | $13.00 | $0.00 | $0.00 | $0.00 | $26.00 |
| 2026 | 12456 | TOTAL: | $3099.78 | $3099.65 | $0.00 | $0.00 | $0.00 | $6199.43 |
|
| 2026 | 12456 | $3099.78 | $3099.65 | $0.00 | $0.00 | $0.00 | $6199.43 |
Statement Details |
| 2025 | 12482 | STATE - STATE LEVY (SCHOOL) | $909.39 | $909.38 | $0.00 | $0.00 | $1818.77 | $0.00 |
| 2025 | 12482 | COUNTY - COUNTY LEVIES (CE, DD, VET, MH) | $357.63 | $357.60 | $0.00 | $0.00 | $715.23 | $0.00 |
| 2025 | 12482 | CONSERVE - CONSERVATION FUTURES | $10.73 | $10.72 | $0.00 | $0.00 | $21.45 | $0.00 |
| 2025 | 12482 | COROADS - COUNTY ROADS (ROADS, DIV TO CE) | $286.50 | $286.50 | $0.00 | $0.00 | $573.00 | $0.00 |
| 2025 | 12482 | PORTPT - PORT DISTRICT | $145.93 | $145.92 | $0.00 | $0.00 | $291.85 | $0.00 |
| 2025 | 12482 | PUD1 - PUD #1 | $23.40 | $23.40 | $0.00 | $0.00 | $46.80 | $0.00 |
| 2025 | 12482 | LIB1 - LIBRARY DIST #1 | $110.85 | $110.84 | $0.00 | $0.00 | $221.69 | $0.00 |
| 2025 | 12482 | HD2 - HOSP DIST #2 | $20.87 | $20.86 | $0.00 | $0.00 | $41.73 | $0.00 |
| 2025 | 12482 | SD49 - SCHOOL DIST #49 | $487.38 | $487.37 | $0.00 | $0.00 | $974.75 | $0.00 |
| 2025 | 12482 | FD1 - FIRE DISTRICT #1 | $471.91 | $471.90 | $0.00 | $0.00 | $943.81 | $0.00 |
| 2025 | 12482 | EMS1 - FIRE DIST #1 EMS | $181.51 | $181.50 | $0.00 | $0.00 | $363.01 | $0.00 |
| 2025 | 12482 | JCCD - JC Conservation District | $2.55 | $2.55 | $0.00 | $0.00 | $5.10 | $0.00 |
| 2025 | 12482 | NWA - Noxious Weed Assessment | $2.15 | $2.15 | $0.00 | $0.00 | $4.30 | $0.00 |
| 2025 | 12482 | OSS - On Site Septic | $21.50 | $21.50 | $0.00 | $0.00 | $43.00 | $0.00 |
| 2025 | 12482 | WAT - Clean Water District | $13.00 | $13.00 | $0.00 | $0.00 | $26.00 | $0.00 |
| 2025 | 12482 | TOTAL: | $3045.30 | $3045.19 | $0.00 | $0.00 | $6090.49 | $0.00 |
|
| 2025 | 12482 | $3045.30 | $3045.19 | $0.00 | $0.00 | $6090.49 | $0.00 |
Statement Details |
| 2024 | 12508 | STATE - STATE LEVY (SCHOOL) | $831.24 | $831.22 | $0.00 | $0.00 | $1662.46 | $0.00 |
| 2024 | 12508 | COUNTY - COUNTY LEVIES (CE, DD, VET, MH) | $355.70 | $355.69 | $0.00 | $0.00 | $711.39 | $0.00 |
| 2024 | 12508 | CONSERVE - CONSERVATION FUTURES | $10.67 | $10.66 | $0.00 | $0.00 | $21.33 | $0.00 |
| 2024 | 12508 | COROADS - COUNTY ROADS (ROADS, DIV TO CE) | $286.21 | $286.21 | $0.00 | $0.00 | $572.42 | $0.00 |
| 2024 | 12508 | PORTPT - PORT DISTRICT | $146.92 | $146.91 | $0.00 | $0.00 | $293.83 | $0.00 |
| 2024 | 12508 | PUD1 - PUD #1 | $23.37 | $23.36 | $0.00 | $0.00 | $46.73 | $0.00 |
| 2024 | 12508 | LIB1 - LIBRARY DIST #1 | $110.74 | $110.73 | $0.00 | $0.00 | $221.47 | $0.00 |
| 2024 | 12508 | HD2 - HOSP DIST #2 | $20.76 | $20.75 | $0.00 | $0.00 | $41.51 | $0.00 |
| 2024 | 12508 | SD49 - SCHOOL DIST #49 | $371.19 | $371.18 | $0.00 | $0.00 | $742.37 | $0.00 |
| 2024 | 12508 | FD1 - FIRE DISTRICT #1 | $470.31 | $470.31 | $0.00 | $0.00 | $940.62 | $0.00 |
| 2024 | 12508 | EMS1 - FIRE DIST #1 EMS | $179.64 | $179.64 | $0.00 | $0.00 | $359.28 | $0.00 |
| 2024 | 12508 | JCCD - JC Conservation District | $2.55 | $2.55 | $0.00 | $0.00 | $5.10 | $0.00 |
| 2024 | 12508 | NWA - Noxious Weed Assessment | $2.15 | $2.15 | $0.00 | $0.00 | $4.30 | $0.00 |
| 2024 | 12508 | OSS - On Site Septic | $21.00 | $21.00 | $0.00 | $0.00 | $42.00 | $0.00 |
| 2024 | 12508 | WAT - Clean Water District | $12.50 | $12.50 | $0.00 | $0.00 | $25.00 | $0.00 |
| 2024 | 12508 | TOTAL: | $2844.95 | $2844.86 | $0.00 | $0.00 | $5689.81 | $0.00 |
|
| 2024 | 12508 | $2844.95 | $2844.86 | $0.00 | $0.00 | $5689.81 | $0.00 |
Statement Details |
| 2023 | 12528 | STATE - STATE LEVY (SCHOOL) | $783.54 | $783.53 | $0.00 | $0.00 | $1567.07 | $0.00 |
| 2023 | 12528 | COUNTY - COUNTY LEVIES (CE, DD, VET, MH) | $341.92 | $341.90 | $0.00 | $0.00 | $683.82 | $0.00 |
| 2023 | 12528 | CONSERVE - CONSERVATION FUTURES | $10.26 | $10.25 | $0.00 | $0.00 | $20.51 | $0.00 |
| 2023 | 12528 | COROADS - COUNTY ROADS (ROADS, DIV TO CE) | $276.63 | $276.63 | $0.00 | $0.00 | $553.26 | $0.00 |
| 2023 | 12528 | PORTPT - PORT DISTRICT | $144.04 | $144.02 | $0.00 | $0.00 | $288.06 | $0.00 |
| 2023 | 12528 | PUD1 - PUD #1 | $22.67 | $22.66 | $0.00 | $0.00 | $45.33 | $0.00 |
| 2023 | 12528 | LIB1 - LIBRARY DIST #1 | $107.03 | $107.02 | $0.00 | $0.00 | $214.05 | $0.00 |
| 2023 | 12528 | HD2 - HOSP DIST #2 | $19.95 | $19.95 | $0.00 | $0.00 | $39.90 | $0.00 |
| 2023 | 12528 | SD49 - SCHOOL DIST #49 | $366.26 | $366.26 | $0.00 | $0.00 | $732.52 | $0.00 |
| 2023 | 12528 | FD1 - FIRE DISTRICT #1 | $281.67 | $281.66 | $0.00 | $0.00 | $563.33 | $0.00 |
| 2023 | 12528 | EMS1 - FIRE DIST #1 EMS | $119.82 | $119.81 | $0.00 | $0.00 | $239.63 | $0.00 |
| 2023 | 12528 | JCCD - JC Conservation District | $2.55 | $2.55 | $0.00 | $0.00 | $5.10 | $0.00 |
| 2023 | 12528 | NWA - Noxious Weed Assessment | $2.15 | $2.15 | $0.00 | $0.00 | $4.30 | $0.00 |
| 2023 | 12528 | OSS - On Site Septic | $20.50 | $20.50 | $0.00 | $0.00 | $41.00 | $0.00 |
| 2023 | 12528 | WAT - Clean Water District | $12.00 | $12.00 | $0.00 | $0.00 | $24.00 | $0.00 |
| 2023 | 12528 | TOTAL: | $2510.99 | $2510.89 | $0.00 | $0.00 | $5021.88 | $0.00 |
|
| 2023 | 12528 | $2510.99 | $2510.89 | $0.00 | $0.00 | $5021.88 | $0.00 |
Values
| (+) Improvement Homesite Value: | + | $0 | |
| (+) Improvement Non-Homesite Value: | + | $596,698 | |
| (+) Land Homesite Value: | + | $0 | |
| (+) Land Non-Homesite Value: | + | $196,625 | |
| (+) Curr Use (HS): | + | $0 | $0 |
| (+) Curr Use (NHS): | + | $0 | $0 |
| | | -------------------------- | |
| (=) Market Value: | = | $793,323 | |
| (–) Productivity Loss: | – | $0 | |
| | | -------------------------- | |
| (=) Subtotal: | = | $793,323 | |
| (+) Senior Appraised Value: | + | $0 | |
| (+) Non-Senior Appraised Value: | + | $793,323 | |
| | | -------------------------- | |
| (=) Total Appraised Value: | = | $793,323 | |
| (–) Senior Exemption Loss: | – | $0 | |
| (–) Exemption Loss: | – | $0 | |
| | | -------------------------- | |
| (=) Taxable Value: | = | $793,323 | |
Taxing Jurisdiction
| Owner: | JEREMIAH& SABINA ROBERSON | | |
| % Ownership: | 100.0000000000% | | |
| Total Value: | $793,323 | | |
| Tax Area: | 0211 - 1-49F1E1H2L1 |
| CE | COUNTY CURRENT EXPENSE | 0.9034619479 | $793,323 | $793,323 | $716.74 | | |
| CNTYDD | DEVELOPMENTAL DISABILITIES | 0.0052121823 | $793,323 | $793,323 | $4.13 | | |
| CNTYVET | VETERANS RELIEF | 0.0052777810 | $793,323 | $793,323 | $4.19 | | |
| MENTAL | MENTAL HEALTH | 0.0052121823 | $793,323 | $793,323 | $4.13 | | |
| ROADS | COUNTY ROADS | 0.7415066410 | $793,323 | $793,323 | $588.25 | | |
| ROADSCU | COUNTY ROADS TO CUR EXP | 0.0000000000 | $793,323 | $793,323 | $0.00 | | |
| HOSP2CASH | HOSP DIST #2 GENERAL | 0.0536075306 | $793,323 | $793,323 | $42.53 | | |
| SCH49CP | SCHOOL DIST #49 CAP PROJ | 0.6279093905 | $793,323 | $793,323 | $498.13 | | |
| SCH49MO | SCHOOL DIST #49 EP & O | 0.6376483602 | $793,323 | $793,323 | $505.86 | | |
| CONSERVE | CONSERVATION FUTURES | 0.0275621078 | $793,323 | $793,323 | $21.87 | | |
| EMS1 | FIRE DIST #1 EMS | 0.4679948282 | $793,323 | $793,323 | $371.27 | | |
| FD1 | FIRE DIST #1 GENERAL | 1.2171942929 | $793,323 | $793,323 | $965.63 | | |
| LIB1 | LIBRARY DIST #1 GENERAL | 0.2868827388 | $793,323 | $793,323 | $227.59 | | |
| PORTPT | PORT OF PT GENERAL | 0.1134941229 | $793,323 | $793,323 | $90.04 | | |
| PORTPTIDD | PORT OF PT IDD 2019 | 0.2577346692 | $793,323 | $793,323 | $204.47 | | |
| PUD1 | PUD #1 GENERAL | 0.0597888892 | $793,323 | $793,323 | $47.43 | | |
| STATE | STATE SCHOOL PART 1 | 1.4940692947 | $793,323 | $793,323 | $1,185.28 | | |
| STATE2 | STATE SCHOOL PART 2 | 0.8050170049 | $793,323 | $793,323 | $638.64 | | |
| | Total Tax Rate: | 7.7095739644 | | | | | |
| | | | | Taxes w/Current Exemptions: | $6,116.18 | | |
| | | | | Taxes w/o Exemptions: | $6,116.18 | | |
Improvement / Building
| Improvement #1: | Residential Bldg | State Code: | 11 | 2671.0 sqft | Value: | $596,698 |
| Bathrooms (#): | 3 (FULL) | Bedrooms (#): | 2 | | Exterior Wall: | SI/ST | Fireplace: | DBL 1-GOOD | | Floor Construction: | FRAME | Foundation: | CONPR | | Heating/Cooling: | F/A | Inside Verify: | YES | | Roof Cover: | COMP |   |   |
|
| | Type | Description | Class CD | Sub Class CD | Year Built | Area |
| | MA | Main Area | 4+ | 2S | 2003 | 1114.0 |
| | MA2 | Second Floor Main Area | 4+ | 2S | 2003 | 819.0 |
| | MA3 | Third Floor Main Area | 4+ | 2S | 2003 | 738.0 |
| | HBAL | House Balcony | 4 | 2S | 2003 | 112.0 |
| | HDECK | House Deck | 4 | 2S | 2003 | 680.0 |
| | OTHER | Other | * | 2S | 2003 | 0.0 |
| | HATTIC | House Attic | 5 | 2S | 2003 | 150.0 |
Sketch
Property Image
Land
| 1 | 9301F | | 0.0000 | 0.00 | 0.00 | 0.00 | 0.00 | $5,225 | $0 |
| 2 | 4610-1525F | | 0.0000 | 0.00 | 0.00 | 0.00 | 0.00 | $191,400 | $0 |
Roll Value History
| 2026 | N/A | N/A | N/A | N/A | N/A |
| 2025 | $596,698 | $196,625 | $0 | $793,323 | $793,323 |
| 2024 | $570,755 | $187,688 | $0 | $758,443 | $758,443 |
| 2023 | $544,811 | $173,750 | $0 | $718,561 | $718,561 |
| 2022 | $496,910 | $168,750 | $0 | $665,660 | $665,660 |
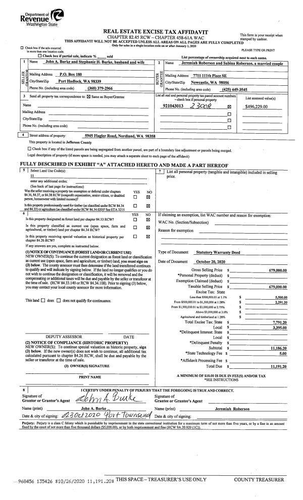
Deed and Sales History
| 1 | 10/20/2020 | SWD | Statutory Warranty Deed | JOHN BURKE | JEREMIAH& SABINA ROBERSON | | | $679,000.00 | 135426 | |
| 2 | 10/23/1995 | SWD | Statutory Warranty Deed | COUTO, DEE | BURKE, JOHN A/STEPHANIE H | 0 | 0 | $75,000.00 | 78078 | 0 |
| 3 | 08/09/1995 | SWD | Statutory Warranty Deed | GUSTAFSON, ALLEN W/HETTIE | COUTO, DEE | 0 | 0 | $42,800.00 | 77545 | 0 |
Payout Agreement
| No payout information available.. |