Property
Account |
| Property ID: | 23013 | Abbreviated Legal Description: | S4 T29 R1E TAX NO. 11(W OF CO RD) &T L TAX E 1.53 CH |
| Parcel # / Geo ID: | 921043018 | Agent Code: | |
| Type: | Real | | |
| Tax Area: | 0211 - 1-49F1E1H2L1 | Land Use Code | 19 |
| Open Space: | N | DFL | N |
| Historic Property: | N | Remodel Property: | N |
| Multi-Family Redevelopment: | N | | |
| Township: | 29N | Section: | 4 |
| Range: | 1E |
Location |
| Address: | 5863 FLAGLER RD NORDLAND, WA 98358 | Mapsco: | 165/041 |
| Neighborhood: | SEC 4,5 T29 R1E LESS PLATTED INCL MINNIHAN & DR BILLS SP | Map ID: | |
| Neighborhood CD: | 4610 |
Owner |
| Name: | MAUREEN STEWART & JEFFREY NORDBERG | Owner ID: | 97230 |
| Mailing Address: | 3848 W MERCER WAY MERCER ISLAND, WA 98040-3356 | % Ownership: | 100.0000000000% |
| | | Exemptions: | |
Pay Tax Due
Select the appropriate checkbox next to the year to be paid. Multiple years may be selected.
*Convenience Fee not included
Taxes and Assessment Details
Property Tax Information as of
03/10/2026
Click on "Statement Details" to expand or collapse a tax statement.
* Please enter a valid date ** Please enter a valid date *
Statement Details |
| 2026 | 12461 | STATE - STATE LEVY (SCHOOL) | $190.45 | $190.44 | $0.00 | $0.00 | $0.00 | $380.89 |
| 2026 | 12461 | COUNTY - COUNTY LEVIES (CE, DD, VET, MH) | $76.14 | $76.13 | $0.00 | $0.00 | $0.00 | $152.27 |
| 2026 | 12461 | CONSERVE - CONSERVATION FUTURES | $2.29 | $2.28 | $0.00 | $0.00 | $0.00 | $4.57 |
| 2026 | 12461 | COROADS - COUNTY ROADS (ROADS, DIV TO CE) | $61.42 | $61.42 | $0.00 | $0.00 | $0.00 | $122.84 |
| 2026 | 12461 | PORTPT - PORT DISTRICT | $30.75 | $30.75 | $0.00 | $0.00 | $0.00 | $61.50 |
| 2026 | 12461 | PUD1 - PUD #1 | $4.96 | $4.95 | $0.00 | $0.00 | $0.00 | $9.91 |
| 2026 | 12461 | LIB1 - LIBRARY DIST #1 | $23.77 | $23.76 | $0.00 | $0.00 | $0.00 | $47.53 |
| 2026 | 12461 | HD2 - HOSP DIST #2 | $4.44 | $4.44 | $0.00 | $0.00 | $0.00 | $8.88 |
| 2026 | 12461 | SD49 - SCHOOL DIST #49 | $104.84 | $104.83 | $0.00 | $0.00 | $0.00 | $209.67 |
| 2026 | 12461 | FD1 - FIRE DISTRICT #1 | $100.83 | $100.82 | $0.00 | $0.00 | $0.00 | $201.65 |
| 2026 | 12461 | EMS1 - FIRE DIST #1 EMS | $38.77 | $38.76 | $0.00 | $0.00 | $0.00 | $77.53 |
| 2026 | 12461 | FP - DNR Forest Fire Protection Assmt | $8.50 | $8.50 | $0.00 | $0.00 | $0.00 | $17.00 |
| 2026 | 12461 | FPLCA - DNR Landowner Contingency Assmt | $3.00 | $3.00 | $0.00 | $0.00 | $0.00 | $6.00 |
| 2026 | 12461 | JCCD - JC Conservation District | $2.55 | $2.55 | $0.00 | $0.00 | $0.00 | $5.10 |
| 2026 | 12461 | NWA - Noxious Weed Assessment | $2.98 | $2.97 | $0.00 | $0.00 | $0.00 | $5.95 |
| 2026 | 12461 | WAT - Clean Water District | $13.00 | $13.00 | $0.00 | $0.00 | $0.00 | $26.00 |
| 2026 | 12461 | FP ADMIN - FP ADMIN | $0.50 | $0.00 | $0.00 | $0.00 | $0.00 | $0.50 |
| 2026 | 12461 | TOTAL: | $669.19 | $668.60 | $0.00 | $0.00 | $0.00 | $1337.79 |
|
| 2026 | 12461 | $669.19 | $668.60 | $0.00 | $0.00 | $0.00 | $1337.79 |
Statement Details |
| 2025 | 12487 | STATE - STATE LEVY (SCHOOL) | $189.63 | $189.62 | $0.00 | $0.00 | $379.25 | $0.00 |
| 2025 | 12487 | COUNTY - COUNTY LEVIES (CE, DD, VET, MH) | $74.57 | $74.56 | $0.00 | $0.00 | $149.13 | $0.00 |
| 2025 | 12487 | CONSERVE - CONSERVATION FUTURES | $2.24 | $2.23 | $0.00 | $0.00 | $4.47 | $0.00 |
| 2025 | 12487 | COROADS - COUNTY ROADS (ROADS, DIV TO CE) | $59.75 | $59.74 | $0.00 | $0.00 | $119.49 | $0.00 |
| 2025 | 12487 | PORTPT - PORT DISTRICT | $30.43 | $30.43 | $0.00 | $0.00 | $60.86 | $0.00 |
| 2025 | 12487 | PUD1 - PUD #1 | $4.88 | $4.88 | $0.00 | $0.00 | $9.76 | $0.00 |
| 2025 | 12487 | LIB1 - LIBRARY DIST #1 | $23.12 | $23.11 | $0.00 | $0.00 | $46.23 | $0.00 |
| 2025 | 12487 | HD2 - HOSP DIST #2 | $4.35 | $4.35 | $0.00 | $0.00 | $8.70 | $0.00 |
| 2025 | 12487 | SD49 - SCHOOL DIST #49 | $101.63 | $101.63 | $0.00 | $0.00 | $203.26 | $0.00 |
| 2025 | 12487 | FD1 - FIRE DISTRICT #1 | $98.41 | $98.40 | $0.00 | $0.00 | $196.81 | $0.00 |
| 2025 | 12487 | EMS1 - FIRE DIST #1 EMS | $37.85 | $37.85 | $0.00 | $0.00 | $75.70 | $0.00 |
| 2025 | 12487 | FP - DNR Forest Fire Protection Assmt | $8.50 | $8.50 | $0.00 | $0.00 | $17.00 | $0.00 |
| 2025 | 12487 | FPLCA - DNR Landowner Contingency Assmt | $3.00 | $3.00 | $0.00 | $0.00 | $6.00 | $0.00 |
| 2025 | 12487 | JCCD - JC Conservation District | $2.55 | $2.55 | $0.00 | $0.00 | $5.10 | $0.00 |
| 2025 | 12487 | NWA - Noxious Weed Assessment | $2.15 | $2.15 | $0.00 | $0.00 | $4.30 | $0.00 |
| 2025 | 12487 | WAT - Clean Water District | $13.00 | $13.00 | $0.00 | $0.00 | $26.00 | $0.00 |
| 2025 | 12487 | FP ADMIN - FP ADMIN | $0.50 | $0.00 | $0.00 | $0.00 | $0.50 | $0.00 |
| 2025 | 12487 | TOTAL: | $656.56 | $656.00 | $0.00 | $0.00 | $1312.56 | $0.00 |
|
| 2025 | 12487 | $656.56 | $656.00 | $0.00 | $0.00 | $1312.56 | $0.00 |
Statement Details |
| 2024 | 12513 | STATE - STATE LEVY (SCHOOL) | $174.26 | $174.25 | $0.00 | $0.00 | $348.51 | $0.00 |
| 2024 | 12513 | COUNTY - COUNTY LEVIES (CE, DD, VET, MH) | $74.57 | $74.56 | $0.00 | $0.00 | $149.13 | $0.00 |
| 2024 | 12513 | CONSERVE - CONSERVATION FUTURES | $2.24 | $2.23 | $0.00 | $0.00 | $4.47 | $0.00 |
| 2024 | 12513 | COROADS - COUNTY ROADS (ROADS, DIV TO CE) | $60.01 | $59.99 | $0.00 | $0.00 | $120.00 | $0.00 |
| 2024 | 12513 | PORTPT - PORT DISTRICT | $30.80 | $30.79 | $0.00 | $0.00 | $61.59 | $0.00 |
| 2024 | 12513 | PUD1 - PUD #1 | $4.90 | $4.90 | $0.00 | $0.00 | $9.80 | $0.00 |
| 2024 | 12513 | LIB1 - LIBRARY DIST #1 | $23.22 | $23.21 | $0.00 | $0.00 | $46.43 | $0.00 |
| 2024 | 12513 | HD2 - HOSP DIST #2 | $4.35 | $4.35 | $0.00 | $0.00 | $8.70 | $0.00 |
| 2024 | 12513 | SD49 - SCHOOL DIST #49 | $77.82 | $77.81 | $0.00 | $0.00 | $155.63 | $0.00 |
| 2024 | 12513 | FD1 - FIRE DISTRICT #1 | $98.60 | $98.59 | $0.00 | $0.00 | $197.19 | $0.00 |
| 2024 | 12513 | EMS1 - FIRE DIST #1 EMS | $37.66 | $37.66 | $0.00 | $0.00 | $75.32 | $0.00 |
| 2024 | 12513 | FP - DNR Forest Fire Protection Assmt | $8.50 | $8.50 | $0.00 | $0.00 | $17.00 | $0.00 |
| 2024 | 12513 | FPLCA - DNR Landowner Contingency Assmt | $3.00 | $3.00 | $0.00 | $0.00 | $6.00 | $0.00 |
| 2024 | 12513 | JCCD - JC Conservation District | $2.55 | $2.55 | $0.00 | $0.00 | $5.10 | $0.00 |
| 2024 | 12513 | NWA - Noxious Weed Assessment | $2.15 | $2.15 | $0.00 | $0.00 | $4.30 | $0.00 |
| 2024 | 12513 | WAT - Clean Water District | $12.50 | $12.50 | $0.00 | $0.00 | $25.00 | $0.00 |
| 2024 | 12513 | FP ADMIN - FP ADMIN | $0.50 | $0.00 | $0.00 | $0.00 | $0.50 | $0.00 |
| 2024 | 12513 | TOTAL: | $617.63 | $617.04 | $0.00 | $0.00 | $1234.67 | $0.00 |
|
| 2024 | 12513 | $617.63 | $617.04 | $0.00 | $0.00 | $1234.67 | $0.00 |
Statement Details |
| 2023 | 12533 | STATE - STATE LEVY (SCHOOL) | $177.72 | $177.71 | $0.00 | $0.00 | $355.43 | $0.00 |
| 2023 | 12533 | COUNTY - COUNTY LEVIES (CE, DD, VET, MH) | $77.56 | $77.54 | $0.00 | $0.00 | $155.10 | $0.00 |
| 2023 | 12533 | CONSERVE - CONSERVATION FUTURES | $2.33 | $2.32 | $0.00 | $0.00 | $4.65 | $0.00 |
| 2023 | 12533 | COROADS - COUNTY ROADS (ROADS, DIV TO CE) | $62.75 | $62.74 | $0.00 | $0.00 | $125.49 | $0.00 |
| 2023 | 12533 | PORTPT - PORT DISTRICT | $32.68 | $32.66 | $0.00 | $0.00 | $65.34 | $0.00 |
| 2023 | 12533 | PUD1 - PUD #1 | $5.14 | $5.14 | $0.00 | $0.00 | $10.28 | $0.00 |
| 2023 | 12533 | LIB1 - LIBRARY DIST #1 | $24.28 | $24.27 | $0.00 | $0.00 | $48.55 | $0.00 |
| 2023 | 12533 | HD2 - HOSP DIST #2 | $4.53 | $4.52 | $0.00 | $0.00 | $9.05 | $0.00 |
| 2023 | 12533 | SD49 - SCHOOL DIST #49 | $83.08 | $83.07 | $0.00 | $0.00 | $166.15 | $0.00 |
| 2023 | 12533 | FD1 - FIRE DISTRICT #1 | $63.89 | $63.88 | $0.00 | $0.00 | $127.77 | $0.00 |
| 2023 | 12533 | EMS1 - FIRE DIST #1 EMS | $27.18 | $27.17 | $0.00 | $0.00 | $54.35 | $0.00 |
| 2023 | 12533 | FP - DNR Forest Fire Protection Assmt | $8.50 | $8.50 | $0.00 | $0.00 | $17.00 | $0.00 |
| 2023 | 12533 | FPLCA - DNR Landowner Contingency Assmt | $3.00 | $3.00 | $0.00 | $0.00 | $6.00 | $0.00 |
| 2023 | 12533 | JCCD - JC Conservation District | $2.55 | $2.55 | $0.00 | $0.00 | $5.10 | $0.00 |
| 2023 | 12533 | NWA - Noxious Weed Assessment | $2.15 | $2.15 | $0.00 | $0.00 | $4.30 | $0.00 |
| 2023 | 12533 | WAT - Clean Water District | $12.00 | $12.00 | $0.00 | $0.00 | $24.00 | $0.00 |
| 2023 | 12533 | FP ADMIN - FP ADMIN | $0.50 | $0.00 | $0.00 | $0.00 | $0.50 | $0.00 |
| 2023 | 12533 | TOTAL: | $589.84 | $589.22 | $0.00 | $0.00 | $1179.06 | $0.00 |
|
| 2023 | 12533 | $589.84 | $589.22 | $0.00 | $0.00 | $1179.06 | $0.00 |
Values
| (+) Improvement Homesite Value: | + | $0 | |
| (+) Improvement Non-Homesite Value: | + | $7,269 | |
| (+) Land Homesite Value: | + | $0 | |
| (+) Land Non-Homesite Value: | + | $158,400 | |
| (+) Curr Use (HS): | + | $0 | $0 |
| (+) Curr Use (NHS): | + | $0 | $0 |
| | | -------------------------- | |
| (=) Market Value: | = | $165,669 | |
| (–) Productivity Loss: | – | $0 | |
| | | -------------------------- | |
| (=) Subtotal: | = | $165,669 | |
| (+) Senior Appraised Value: | + | $0 | |
| (+) Non-Senior Appraised Value: | + | $165,669 | |
| | | -------------------------- | |
| (=) Total Appraised Value: | = | $165,669 | |
| (–) Senior Exemption Loss: | – | $0 | |
| (–) Exemption Loss: | – | $0 | |
| | | -------------------------- | |
| (=) Taxable Value: | = | $165,669 | |
Taxing Jurisdiction
| Owner: | MAUREEN STEWART & JEFFREY NORDBERG | | |
| % Ownership: | 100.0000000000% | | |
| Total Value: | $165,669 | | |
| Tax Area: | 0211 - 1-49F1E1H2L1 |
| CE | COUNTY CURRENT EXPENSE | 0.9034619479 | $165,669 | $165,669 | $149.68 | | |
| CNTYDD | DEVELOPMENTAL DISABILITIES | 0.0052121823 | $165,669 | $165,669 | $0.86 | | |
| CNTYVET | VETERANS RELIEF | 0.0052777810 | $165,669 | $165,669 | $0.87 | | |
| MENTAL | MENTAL HEALTH | 0.0052121823 | $165,669 | $165,669 | $0.86 | | |
| ROADS | COUNTY ROADS | 0.7415066410 | $165,669 | $165,669 | $122.84 | | |
| ROADSCU | COUNTY ROADS TO CUR EXP | 0.0000000000 | $165,669 | $165,669 | $0.00 | | |
| HOSP2CASH | HOSP DIST #2 GENERAL | 0.0536075306 | $165,669 | $165,669 | $8.88 | | |
| SCH49CP | SCHOOL DIST #49 CAP PROJ | 0.6279093905 | $165,669 | $165,669 | $104.03 | | |
| SCH49MO | SCHOOL DIST #49 EP & O | 0.6376483602 | $165,669 | $165,669 | $105.64 | | |
| CONSERVE | CONSERVATION FUTURES | 0.0275621078 | $165,669 | $165,669 | $4.57 | | |
| EMS1 | FIRE DIST #1 EMS | 0.4679948282 | $165,669 | $165,669 | $77.53 | | |
| FD1 | FIRE DIST #1 GENERAL | 1.2171942929 | $165,669 | $165,669 | $201.65 | | |
| LIB1 | LIBRARY DIST #1 GENERAL | 0.2868827388 | $165,669 | $165,669 | $47.53 | | |
| PORTPT | PORT OF PT GENERAL | 0.1134941229 | $165,669 | $165,669 | $18.80 | | |
| PORTPTIDD | PORT OF PT IDD 2019 | 0.2577346692 | $165,669 | $165,669 | $42.70 | | |
| PUD1 | PUD #1 GENERAL | 0.0597888892 | $165,669 | $165,669 | $9.91 | | |
| STATE | STATE SCHOOL PART 1 | 1.4940692947 | $165,669 | $165,669 | $247.52 | | |
| STATE2 | STATE SCHOOL PART 2 | 0.8050170049 | $165,669 | $165,669 | $133.37 | | |
| | Total Tax Rate: | 7.7095739644 | | | | | |
| | | | | Taxes w/Current Exemptions: | $1,277.24 | | |
| | | | | Taxes w/o Exemptions: | $1,277.24 | | |
Improvement / Building
| Improvement #1: | Residential Bldg | State Code: | 19 | 384.0 sqft | Value: | $7,269 |
| Bedrooms (#): | 1 | Exterior Wall: | PL/T1 | | Fireplace: | SIN 1-FAIR | Fireplace: | WD ST-FAIR | | Floor Construction: | FRAME | Foundation: | PO&BL | | Heating/Cooling: | WD/NO | Inside Verify: | YES-FIX | | Interior Finish: | FIN | Roof Cover: | METAL |
|
Sketch
Property Image
Land
| 1 | 9301F | | 0.0000 | 0.00 | 0.00 | 0.00 | 0.00 | $2,750 | $0 |
| 2 | 4610-1525F | | 0.0000 | 0.00 | 0.00 | 0.00 | 0.00 | $155,650 | $0 |
Roll Value History
| 2026 | N/A | N/A | N/A | N/A | N/A |
| 2025 | $7,269 | $158,400 | $0 | $165,669 | $165,669 |
| 2024 | $6,953 | $151,200 | $0 | $158,153 | $158,153 |
| 2023 | $6,637 | $144,000 | $0 | $150,637 | $150,637 |
| 2022 | $7,980 | $143,000 | $0 | $150,980 | $150,980 |
Deed and Sales History
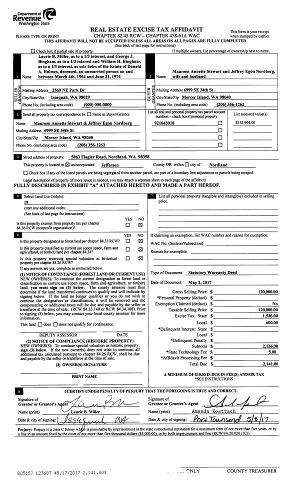
| 1 | 05/02/2017 | SWD | Statutory Warranty Deed | DONALD A HOLMES | MAUREEN STEWART & JEFFREY NORDBERG | | | $120,000.00 | 127687 | |
Payout Agreement
| No payout information available.. |