Property
Account |
| Property ID: | 23069 | Abbreviated Legal Description: | S5 T29 R1E TAX 34 (LESS R/W) |
| Parcel # / Geo ID: | 921051039 | Agent Code: | |
| Type: | Real | | |
| Tax Area: | 0211 - 1-49F1E1H2L1 | Land Use Code | 11 |
| Open Space: | N | DFL | N |
| Historic Property: | N | Remodel Property: | N |
| Multi-Family Redevelopment: | N | | |
| Township: | 29N | Section: | 5 |
| Range: | 1E |
Location |
| Address: | 6495 FLAGLER RD NORDLAND, WA 98358 | Mapsco: | 167/050 |
| Neighborhood: | SEC 4,5 T29 R1E LESS PLATTED INCL MINNIHAN & DR BILLS SP | Map ID: | |
| Neighborhood CD: | 4610 |
Owner |
| Name: | SANDRA R & JOHN D HAYNES | Owner ID: | 96700 |
| Mailing Address: | 6495 FLAGLER RD NORDLAND, WA 98358 | % Ownership: | 100.0000000000% |
| | | Exemptions: | |
Pay Tax Due
Select the appropriate checkbox next to the year to be paid. Multiple years may be selected.
*Convenience Fee not included
Taxes and Assessment Details
Property Tax Information as of
03/12/2026
Click on "Statement Details" to expand or collapse a tax statement.
* Please enter a valid date ** Please enter a valid date *
Statement Details |
| 2026 | 12516 | STATE - STATE LEVY (SCHOOL) | $1502.39 | $1502.38 | $0.00 | $0.00 | $0.00 | $3004.77 |
| 2026 | 12516 | COUNTY - COUNTY LEVIES (CE, DD, VET, MH) | $600.66 | $600.63 | $0.00 | $0.00 | $0.00 | $1201.29 |
| 2026 | 12516 | CONSERVE - CONSERVATION FUTURES | $18.01 | $18.01 | $0.00 | $0.00 | $0.00 | $36.02 |
| 2026 | 12516 | COROADS - COUNTY ROADS (ROADS, DIV TO CE) | $484.55 | $484.55 | $0.00 | $0.00 | $0.00 | $969.10 |
| 2026 | 12516 | PORTPT - PORT DISTRICT | $242.59 | $242.58 | $0.00 | $0.00 | $0.00 | $485.17 |
| 2026 | 12516 | PUD1 - PUD #1 | $39.07 | $39.07 | $0.00 | $0.00 | $0.00 | $78.14 |
| 2026 | 12516 | LIB1 - LIBRARY DIST #1 | $187.47 | $187.47 | $0.00 | $0.00 | $0.00 | $374.94 |
| 2026 | 12516 | HD2 - HOSP DIST #2 | $35.03 | $35.03 | $0.00 | $0.00 | $0.00 | $70.06 |
| 2026 | 12516 | SD49 - SCHOOL DIST #49 | $827.01 | $827.00 | $0.00 | $0.00 | $0.00 | $1654.01 |
| 2026 | 12516 | FD1 - FIRE DISTRICT #1 | $795.40 | $795.40 | $0.00 | $0.00 | $0.00 | $1590.80 |
| 2026 | 12516 | EMS1 - FIRE DIST #1 EMS | $305.82 | $305.82 | $0.00 | $0.00 | $0.00 | $611.64 |
| 2026 | 12516 | FP - DNR Forest Fire Protection Assmt | $8.50 | $8.50 | $0.00 | $0.00 | $0.00 | $17.00 |
| 2026 | 12516 | FPLCA - DNR Landowner Contingency Assmt | $3.00 | $3.00 | $0.00 | $0.00 | $0.00 | $6.00 |
| 2026 | 12516 | JCCD - JC Conservation District | $2.75 | $2.75 | $0.00 | $0.00 | $0.00 | $5.50 |
| 2026 | 12516 | NWA - Noxious Weed Assessment | $3.88 | $3.87 | $0.00 | $0.00 | $0.00 | $7.75 |
| 2026 | 12516 | OSS - On Site Septic | $23.10 | $23.10 | $0.00 | $0.00 | $0.00 | $46.20 |
| 2026 | 12516 | WAT - Clean Water District | $13.00 | $13.00 | $0.00 | $0.00 | $0.00 | $26.00 |
| 2026 | 12516 | FP ADMIN - FP ADMIN | $0.50 | $0.00 | $0.00 | $0.00 | $0.00 | $0.50 |
| 2026 | 12516 | TOTAL: | $5092.73 | $5092.16 | $0.00 | $0.00 | $0.00 | $10184.89 |
|
| 2026 | 12516 | $5092.73 | $5092.16 | $0.00 | $0.00 | $0.00 | $10184.89 |
Statement Details |
| 2025 | 12542 | STATE - STATE LEVY (SCHOOL) | $1498.11 | $1498.11 | $0.00 | $0.00 | $2996.22 | $0.00 |
| 2025 | 12542 | COUNTY - COUNTY LEVIES (CE, DD, VET, MH) | $589.14 | $589.11 | $0.00 | $0.00 | $1178.25 | $0.00 |
| 2025 | 12542 | CONSERVE - CONSERVATION FUTURES | $17.67 | $17.66 | $0.00 | $0.00 | $35.33 | $0.00 |
| 2025 | 12542 | COROADS - COUNTY ROADS (ROADS, DIV TO CE) | $471.99 | $471.97 | $0.00 | $0.00 | $943.96 | $0.00 |
| 2025 | 12542 | PORTPT - PORT DISTRICT | $240.40 | $240.39 | $0.00 | $0.00 | $480.79 | $0.00 |
| 2025 | 12542 | PUD1 - PUD #1 | $38.55 | $38.55 | $0.00 | $0.00 | $77.10 | $0.00 |
| 2025 | 12542 | LIB1 - LIBRARY DIST #1 | $182.61 | $182.60 | $0.00 | $0.00 | $365.21 | $0.00 |
| 2025 | 12542 | HD2 - HOSP DIST #2 | $34.37 | $34.37 | $0.00 | $0.00 | $68.74 | $0.00 |
| 2025 | 12542 | SD49 - SCHOOL DIST #49 | $802.89 | $802.89 | $0.00 | $0.00 | $1605.78 | $0.00 |
| 2025 | 12542 | FD1 - FIRE DISTRICT #1 | $777.41 | $777.41 | $0.00 | $0.00 | $1554.82 | $0.00 |
| 2025 | 12542 | EMS1 - FIRE DIST #1 EMS | $299.02 | $299.01 | $0.00 | $0.00 | $598.03 | $0.00 |
| 2025 | 12542 | FP - DNR Forest Fire Protection Assmt | $8.50 | $8.50 | $0.00 | $0.00 | $17.00 | $0.00 |
| 2025 | 12542 | FPLCA - DNR Landowner Contingency Assmt | $3.00 | $3.00 | $0.00 | $0.00 | $6.00 | $0.00 |
| 2025 | 12542 | JCCD - JC Conservation District | $2.75 | $2.75 | $0.00 | $0.00 | $5.50 | $0.00 |
| 2025 | 12542 | NWA - Noxious Weed Assessment | $2.75 | $2.75 | $0.00 | $0.00 | $5.50 | $0.00 |
| 2025 | 12542 | OSS - On Site Septic | $21.50 | $21.50 | $0.00 | $0.00 | $43.00 | $0.00 |
| 2025 | 12542 | WAT - Clean Water District | $13.00 | $13.00 | $0.00 | $0.00 | $26.00 | $0.00 |
| 2025 | 12542 | FP ADMIN - FP ADMIN | $0.50 | $0.00 | $0.00 | $0.00 | $0.50 | $0.00 |
| 2025 | 12542 | TOTAL: | $5004.16 | $5003.57 | $0.00 | $0.00 | $10007.73 | $0.00 |
|
| 2025 | 12542 | $5004.16 | $5003.57 | $0.00 | $0.00 | $10007.73 | $0.00 |
Statement Details |
| 2024 | 12568 | STATE - STATE LEVY (SCHOOL) | $1192.45 | $1192.44 | $0.00 | $0.00 | $2384.89 | $0.00 |
| 2024 | 12568 | COUNTY - COUNTY LEVIES (CE, DD, VET, MH) | $510.26 | $510.25 | $0.00 | $0.00 | $1020.51 | $0.00 |
| 2024 | 12568 | CONSERVE - CONSERVATION FUTURES | $15.30 | $15.30 | $0.00 | $0.00 | $30.60 | $0.00 |
| 2024 | 12568 | COROADS - COUNTY ROADS (ROADS, DIV TO CE) | $410.59 | $410.58 | $0.00 | $0.00 | $821.17 | $0.00 |
| 2024 | 12568 | PORTPT - PORT DISTRICT | $210.77 | $210.75 | $0.00 | $0.00 | $421.52 | $0.00 |
| 2024 | 12568 | PUD1 - PUD #1 | $33.52 | $33.51 | $0.00 | $0.00 | $67.03 | $0.00 |
| 2024 | 12568 | LIB1 - LIBRARY DIST #1 | $158.86 | $158.85 | $0.00 | $0.00 | $317.71 | $0.00 |
| 2024 | 12568 | HD2 - HOSP DIST #2 | $29.77 | $29.77 | $0.00 | $0.00 | $59.54 | $0.00 |
| 2024 | 12568 | SD49 - SCHOOL DIST #49 | $532.48 | $532.48 | $0.00 | $0.00 | $1064.96 | $0.00 |
| 2024 | 12568 | FD1 - FIRE DISTRICT #1 | $674.68 | $674.68 | $0.00 | $0.00 | $1349.36 | $0.00 |
| 2024 | 12568 | EMS1 - FIRE DIST #1 EMS | $257.71 | $257.70 | $0.00 | $0.00 | $515.41 | $0.00 |
| 2024 | 12568 | FP - DNR Forest Fire Protection Assmt | $8.50 | $8.50 | $0.00 | $0.00 | $17.00 | $0.00 |
| 2024 | 12568 | FPLCA - DNR Landowner Contingency Assmt | $3.00 | $3.00 | $0.00 | $0.00 | $6.00 | $0.00 |
| 2024 | 12568 | JCCD - JC Conservation District | $2.75 | $2.75 | $0.00 | $0.00 | $5.50 | $0.00 |
| 2024 | 12568 | NWA - Noxious Weed Assessment | $2.75 | $2.75 | $0.00 | $0.00 | $5.50 | $0.00 |
| 2024 | 12568 | OSS - On Site Septic | $21.00 | $21.00 | $0.00 | $0.00 | $42.00 | $0.00 |
| 2024 | 12568 | WAT - Clean Water District | $12.50 | $12.50 | $0.00 | $0.00 | $25.00 | $0.00 |
| 2024 | 12568 | FP ADMIN - FP ADMIN | $0.50 | $0.00 | $0.00 | $0.00 | $0.50 | $0.00 |
| 2024 | 12568 | TOTAL: | $4077.39 | $4076.81 | $0.00 | $0.00 | $8154.20 | $0.00 |
|
| 2024 | 12568 | $4077.39 | $4076.81 | $0.00 | $0.00 | $8154.20 | $0.00 |
Statement Details |
| 2023 | 12588 | STATE - STATE LEVY (SCHOOL) | $1171.56 | $1171.56 | $0.00 | $0.00 | $2343.12 | $0.00 |
| 2023 | 12588 | COUNTY - COUNTY LEVIES (CE, DD, VET, MH) | $511.23 | $511.23 | $0.00 | $0.00 | $1022.46 | $0.00 |
| 2023 | 12588 | CONSERVE - CONSERVATION FUTURES | $15.33 | $15.33 | $0.00 | $0.00 | $30.66 | $0.00 |
| 2023 | 12588 | COROADS - COUNTY ROADS (ROADS, DIV TO CE) | $413.62 | $413.62 | $0.00 | $0.00 | $827.24 | $0.00 |
| 2023 | 12588 | PORTPT - PORT DISTRICT | $215.37 | $215.35 | $0.00 | $0.00 | $430.72 | $0.00 |
| 2023 | 12588 | PUD1 - PUD #1 | $33.89 | $33.89 | $0.00 | $0.00 | $67.78 | $0.00 |
| 2023 | 12588 | LIB1 - LIBRARY DIST #1 | $160.03 | $160.03 | $0.00 | $0.00 | $320.06 | $0.00 |
| 2023 | 12588 | HD2 - HOSP DIST #2 | $29.84 | $29.83 | $0.00 | $0.00 | $59.67 | $0.00 |
| 2023 | 12588 | SD49 - SCHOOL DIST #49 | $547.65 | $547.63 | $0.00 | $0.00 | $1095.28 | $0.00 |
| 2023 | 12588 | FD1 - FIRE DISTRICT #1 | $421.16 | $421.15 | $0.00 | $0.00 | $842.31 | $0.00 |
| 2023 | 12588 | EMS1 - FIRE DIST #1 EMS | $179.15 | $179.15 | $0.00 | $0.00 | $358.30 | $0.00 |
| 2023 | 12588 | FP - DNR Forest Fire Protection Assmt | $8.50 | $8.50 | $0.00 | $0.00 | $17.00 | $0.00 |
| 2023 | 12588 | FPLCA - DNR Landowner Contingency Assmt | $3.00 | $3.00 | $0.00 | $0.00 | $6.00 | $0.00 |
| 2023 | 12588 | JCCD - JC Conservation District | $2.75 | $2.75 | $0.00 | $0.00 | $5.50 | $0.00 |
| 2023 | 12588 | NWA - Noxious Weed Assessment | $2.75 | $2.75 | $0.00 | $0.00 | $5.50 | $0.00 |
| 2023 | 12588 | OSS - On Site Septic | $20.50 | $20.50 | $0.00 | $0.00 | $41.00 | $0.00 |
| 2023 | 12588 | WAT - Clean Water District | $12.00 | $12.00 | $0.00 | $0.00 | $24.00 | $0.00 |
| 2023 | 12588 | FP ADMIN - FP ADMIN | $0.50 | $0.00 | $0.00 | $0.00 | $0.50 | $0.00 |
| 2023 | 12588 | TOTAL: | $3748.83 | $3748.27 | $0.00 | $0.00 | $7497.10 | $0.00 |
|
| 2023 | 12588 | $3748.83 | $3748.27 | $0.00 | $0.00 | $7497.10 | $0.00 |
Values
| (+) Improvement Homesite Value: | + | $0 | |
| (+) Improvement Non-Homesite Value: | + | $971,219 | |
| (+) Land Homesite Value: | + | $0 | |
| (+) Land Non-Homesite Value: | + | $335,720 | |
| (+) Curr Use (HS): | + | $0 | $0 |
| (+) Curr Use (NHS): | + | $0 | $0 |
| | | -------------------------- | |
| (=) Market Value: | = | $1,306,939 | |
| (–) Productivity Loss: | – | $0 | |
| | | -------------------------- | |
| (=) Subtotal: | = | $1,306,939 | |
| (+) Senior Appraised Value: | + | $0 | |
| (+) Non-Senior Appraised Value: | + | $1,306,939 | |
| | | -------------------------- | |
| (=) Total Appraised Value: | = | $1,306,939 | |
| (–) Senior Exemption Loss: | – | $0 | |
| (–) Exemption Loss: | – | $0 | |
| | | -------------------------- | |
| (=) Taxable Value: | = | $1,306,939 | |
Taxing Jurisdiction
| Owner: | SANDRA R & JOHN D HAYNES | | |
| % Ownership: | 100.0000000000% | | |
| Total Value: | $1,306,939 | | |
| Tax Area: | 0211 - 1-49F1E1H2L1 |
| CE | COUNTY CURRENT EXPENSE | 0.9034619479 | $1,306,939 | $1,306,939 | $1,180.77 | | |
| CNTYDD | DEVELOPMENTAL DISABILITIES | 0.0052121823 | $1,306,939 | $1,306,939 | $6.81 | | |
| CNTYVET | VETERANS RELIEF | 0.0052777810 | $1,306,939 | $1,306,939 | $6.90 | | |
| MENTAL | MENTAL HEALTH | 0.0052121823 | $1,306,939 | $1,306,939 | $6.81 | | |
| ROADS | COUNTY ROADS | 0.7415066410 | $1,306,939 | $1,306,939 | $969.10 | | |
| ROADSCU | COUNTY ROADS TO CUR EXP | 0.0000000000 | $1,306,939 | $1,306,939 | $0.00 | | |
| HOSP2CASH | HOSP DIST #2 GENERAL | 0.0536075306 | $1,306,939 | $1,306,939 | $70.06 | | |
| SCH49CP | SCHOOL DIST #49 CAP PROJ | 0.6279093905 | $1,306,939 | $1,306,939 | $820.64 | | |
| SCH49MO | SCHOOL DIST #49 EP & O | 0.6376483602 | $1,306,939 | $1,306,939 | $833.37 | | |
| CONSERVE | CONSERVATION FUTURES | 0.0275621078 | $1,306,939 | $1,306,939 | $36.02 | | |
| EMS1 | FIRE DIST #1 EMS | 0.4679948282 | $1,306,939 | $1,306,939 | $611.64 | | |
| FD1 | FIRE DIST #1 GENERAL | 1.2171942929 | $1,306,939 | $1,306,939 | $1,590.80 | | |
| LIB1 | LIBRARY DIST #1 GENERAL | 0.2868827388 | $1,306,939 | $1,306,939 | $374.94 | | |
| PORTPT | PORT OF PT GENERAL | 0.1134941229 | $1,306,939 | $1,306,939 | $148.33 | | |
| PORTPTIDD | PORT OF PT IDD 2019 | 0.2577346692 | $1,306,939 | $1,306,939 | $336.84 | | |
| PUD1 | PUD #1 GENERAL | 0.0597888892 | $1,306,939 | $1,306,939 | $78.14 | | |
| STATE | STATE SCHOOL PART 1 | 1.4940692947 | $1,306,939 | $1,306,939 | $1,952.66 | | |
| STATE2 | STATE SCHOOL PART 2 | 0.8050170049 | $1,306,939 | $1,306,939 | $1,052.11 | | |
| | Total Tax Rate: | 7.7095739644 | | | | | |
| | | | | Taxes w/Current Exemptions: | $10,075.94 | | |
| | | | | Taxes w/o Exemptions: | $10,075.94 | | |
Improvement / Building
| Improvement #1: | Residential Bldg | State Code: | 11 | 1899.9 sqft | Value: | $971,219 |
| Bathrooms (#): | 3 (FULL) | Bedrooms (#): | 2 | | Exterior Wall: | SI/ST | Foundation: | CONPR | | Heating/Cooling: | F/A | Roof Cover: | METAL |
|
| | Type | Description | Class CD | Sub Class CD | Year Built | Area |
| | MA | Main Area | 5+ | 1S | 2020 | 1899.9 |
| | BSMTF | House basement finished | 5 | 1S | 2020 | 1107.7 |
| | BSMTU | House basement unfinished | 5 | 1S | 2020 | 793.1 |
| | CARPTF | Carport W/Floor | 5 | 1S | 2020 | 470.0 |
| | HDECK | House Deck | 5 | 1S | 2020 | 742.3 |
| | GDET | Detached Garage | 3 | 1S | 1988 | 960.0 |
| | HCPOR | House Concrete Porch | 3 | 1S | 2020 | 560.0 |
| | BARN | Barn (Table Not Dep) | 3 | 1S | 1988 | 880.0 |
| | CARPTN | Carport W/O Floor | 3 | 1S | 1988 | 480.0 |
| | HDECK | House Deck | 4 | 1S | 2020 | 490.0 |
Sketch
Property Image
Land
| 1 | 4610-1355S | | 1.0000 | 43560.00 | 0.00 | 0.00 | 1.00 | $209,000 | $0 |
| 2 | 4610-1555A | | 3.6000 | 156816.00 | 0.00 | 0.00 | 0.00 | $126,720 | $0 |
Roll Value History
| 2026 | N/A | N/A | N/A | N/A | N/A |
| 2025 | $971,219 | $335,720 | $0 | $1,306,939 | $1,306,939 |
| 2024 | $928,992 | $320,460 | $0 | $1,249,452 | $1,249,452 |
| 2023 | $730,614 | $300,200 | $0 | $1,030,814 | $1,030,814 |
| 2022 | $707,312 | $288,000 | $0 | $995,312 | $995,312 |
Deed and Sales History
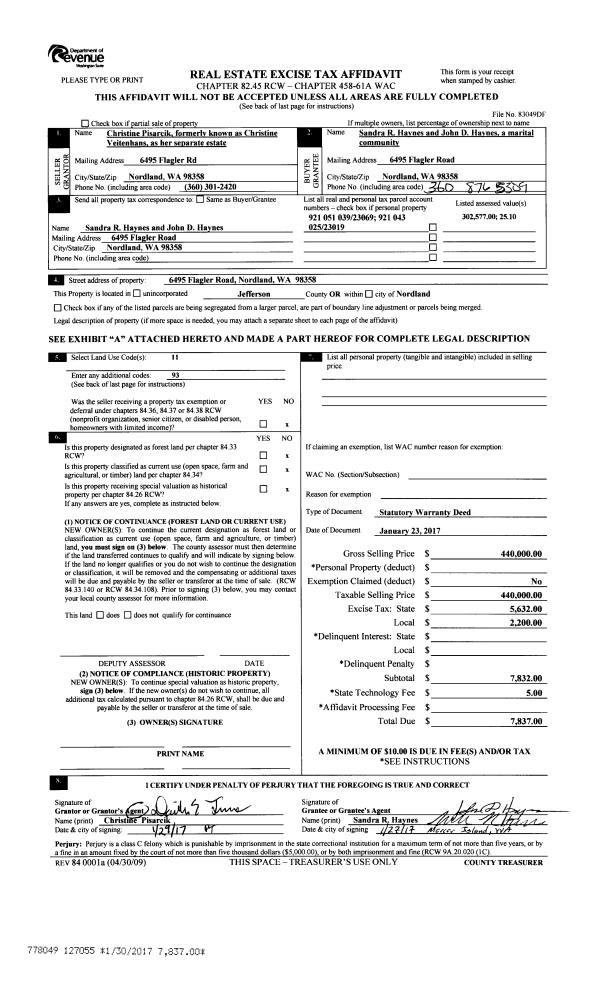
| 1 | 01/23/2017 | SWD | Statutory Warranty Deed | CHRISTINE PISARCIK | SANDRA R & JOHN D HAYNES | | | $440,000.00 | 127055 | |
|   | |
| 2 | 11/26/1999 | SWD | Statutory Warranty Deed | VEITENHANS, GREGORY K | PISARCIK, CHRISTINE | 0 | 0 | $0.00 | 88728 | 0 |
Payout Agreement
| No payout information available.. |