Property
Account |
| Property ID: | 23171 | Abbreviated Legal Description: | S8 T29 R1E TAX 41 WITH EASEMENTS |
| Parcel # / Geo ID: | 921084026 | Agent Code: | |
| Type: | Real | | |
| Tax Area: | 0211 - 1-49F1E1H2L1 | Land Use Code | 91 |
| Open Space: | N | DFL | N |
| Historic Property: | N | Remodel Property: | N |
| Multi-Family Redevelopment: | N | | |
| Township: | 29N | Section: | 8 |
| Range: | 1E |
Location |
| Address: | 213 ROBBINS RD NORDLAND, WA 98358 | Mapsco: | 169/077 |
| Neighborhood: | SEC 8 T29 R1E INCLUDING ROBBINS RD & THURLOW SP | Map ID: | |
| Neighborhood CD: | 4630 |
Owner |
| Name: | BRIAN & LIANA BARGER | Owner ID: | 89856 |
| Mailing Address: | 61 ROBBINS RD NORDLAND, WA 98358-9607 | % Ownership: | 100.0000000000% |
| | | Exemptions: | |
Pay Tax Due
Select the appropriate checkbox next to the year to be paid. Multiple years may be selected.
*Convenience Fee not included
Taxes and Assessment Details
Property Tax Information as of
03/09/2026
Click on "Statement Details" to expand or collapse a tax statement.
* Please enter a valid date ** Please enter a valid date *
Statement Details |
| 2026 | 12613 | STATE - STATE LEVY (SCHOOL) | $120.41 | $120.40 | $0.00 | $0.00 | $0.00 | $240.81 |
| 2026 | 12613 | COUNTY - COUNTY LEVIES (CE, DD, VET, MH) | $48.16 | $48.12 | $0.00 | $0.00 | $0.00 | $96.28 |
| 2026 | 12613 | CONSERVE - CONSERVATION FUTURES | $1.45 | $1.44 | $0.00 | $0.00 | $0.00 | $2.89 |
| 2026 | 12613 | COROADS - COUNTY ROADS (ROADS, DIV TO CE) | $38.83 | $38.83 | $0.00 | $0.00 | $0.00 | $77.66 |
| 2026 | 12613 | PORTPT - PORT DISTRICT | $19.45 | $19.43 | $0.00 | $0.00 | $0.00 | $38.88 |
| 2026 | 12613 | PUD1 - PUD #1 | $3.13 | $3.13 | $0.00 | $0.00 | $0.00 | $6.26 |
| 2026 | 12613 | LIB1 - LIBRARY DIST #1 | $15.03 | $15.02 | $0.00 | $0.00 | $0.00 | $30.05 |
| 2026 | 12613 | HD2 - HOSP DIST #2 | $2.81 | $2.80 | $0.00 | $0.00 | $0.00 | $5.61 |
| 2026 | 12613 | SD49 - SCHOOL DIST #49 | $66.29 | $66.27 | $0.00 | $0.00 | $0.00 | $132.56 |
| 2026 | 12613 | FD1 - FIRE DISTRICT #1 | $63.75 | $63.74 | $0.00 | $0.00 | $0.00 | $127.49 |
| 2026 | 12613 | EMS1 - FIRE DIST #1 EMS | $24.51 | $24.51 | $0.00 | $0.00 | $0.00 | $49.02 |
| 2026 | 12613 | FP - DNR Forest Fire Protection Assmt | $8.50 | $8.50 | $0.00 | $0.00 | $0.00 | $17.00 |
| 2026 | 12613 | FPLCA - DNR Landowner Contingency Assmt | $3.00 | $3.00 | $0.00 | $0.00 | $0.00 | $6.00 |
| 2026 | 12613 | JCCD - JC Conservation District | $2.53 | $2.53 | $0.00 | $0.00 | $0.00 | $5.06 |
| 2026 | 12613 | NWA - Noxious Weed Assessment | $2.98 | $2.97 | $0.00 | $0.00 | $0.00 | $5.95 |
| 2026 | 12613 | WAT - Clean Water District | $13.00 | $13.00 | $0.00 | $0.00 | $0.00 | $26.00 |
| 2026 | 12613 | FP ADMIN - FP ADMIN | $0.50 | $0.00 | $0.00 | $0.00 | $0.00 | $0.50 |
| 2026 | 12613 | TOTAL: | $434.33 | $433.69 | $0.00 | $0.00 | $0.00 | $868.02 |
|
| 2026 | 12613 | $434.33 | $433.69 | $0.00 | $0.00 | $0.00 | $868.02 |
Statement Details |
| 2025 | 12639 | STATE - STATE LEVY (SCHOOL) | $125.58 | $125.58 | $0.00 | $0.00 | $251.16 | $0.00 |
| 2025 | 12639 | COUNTY - COUNTY LEVIES (CE, DD, VET, MH) | $49.40 | $49.38 | $0.00 | $0.00 | $98.78 | $0.00 |
| 2025 | 12639 | CONSERVE - CONSERVATION FUTURES | $1.48 | $1.48 | $0.00 | $0.00 | $2.96 | $0.00 |
| 2025 | 12639 | COROADS - COUNTY ROADS (ROADS, DIV TO CE) | $39.57 | $39.56 | $0.00 | $0.00 | $79.13 | $0.00 |
| 2025 | 12639 | PORTPT - PORT DISTRICT | $20.16 | $20.15 | $0.00 | $0.00 | $40.31 | $0.00 |
| 2025 | 12639 | PUD1 - PUD #1 | $3.23 | $3.23 | $0.00 | $0.00 | $6.46 | $0.00 |
| 2025 | 12639 | LIB1 - LIBRARY DIST #1 | $15.31 | $15.30 | $0.00 | $0.00 | $30.61 | $0.00 |
| 2025 | 12639 | HD2 - HOSP DIST #2 | $2.88 | $2.88 | $0.00 | $0.00 | $5.76 | $0.00 |
| 2025 | 12639 | SD49 - SCHOOL DIST #49 | $67.31 | $67.30 | $0.00 | $0.00 | $134.61 | $0.00 |
| 2025 | 12639 | FD1 - FIRE DISTRICT #1 | $65.17 | $65.17 | $0.00 | $0.00 | $130.34 | $0.00 |
| 2025 | 12639 | EMS1 - FIRE DIST #1 EMS | $25.07 | $25.06 | $0.00 | $0.00 | $50.13 | $0.00 |
| 2025 | 12639 | FP - DNR Forest Fire Protection Assmt | $8.50 | $8.50 | $0.00 | $0.00 | $17.00 | $0.00 |
| 2025 | 12639 | FPLCA - DNR Landowner Contingency Assmt | $3.00 | $3.00 | $0.00 | $0.00 | $6.00 | $0.00 |
| 2025 | 12639 | JCCD - JC Conservation District | $2.53 | $2.53 | $0.00 | $0.00 | $5.06 | $0.00 |
| 2025 | 12639 | NWA - Noxious Weed Assessment | $2.15 | $2.15 | $0.00 | $0.00 | $4.30 | $0.00 |
| 2025 | 12639 | WAT - Clean Water District | $13.00 | $13.00 | $0.00 | $0.00 | $26.00 | $0.00 |
| 2025 | 12639 | FP ADMIN - FP ADMIN | $0.50 | $0.00 | $0.00 | $0.00 | $0.50 | $0.00 |
| 2025 | 12639 | TOTAL: | $444.84 | $444.27 | $0.00 | $0.00 | $889.11 | $0.00 |
|
| 2025 | 12639 | $444.84 | $444.27 | $0.00 | $0.00 | $889.11 | $0.00 |
Statement Details |
| 2024 | 12668 | STATE - STATE LEVY (SCHOOL) | $115.40 | $115.39 | $0.00 | $0.00 | $230.79 | $0.00 |
| 2024 | 12668 | COUNTY - COUNTY LEVIES (CE, DD, VET, MH) | $49.38 | $49.37 | $0.00 | $0.00 | $98.75 | $0.00 |
| 2024 | 12668 | CONSERVE - CONSERVATION FUTURES | $1.48 | $1.48 | $0.00 | $0.00 | $2.96 | $0.00 |
| 2024 | 12668 | COROADS - COUNTY ROADS (ROADS, DIV TO CE) | $39.74 | $39.72 | $0.00 | $0.00 | $79.46 | $0.00 |
| 2024 | 12668 | PORTPT - PORT DISTRICT | $20.40 | $20.39 | $0.00 | $0.00 | $40.79 | $0.00 |
| 2024 | 12668 | PUD1 - PUD #1 | $3.25 | $3.24 | $0.00 | $0.00 | $6.49 | $0.00 |
| 2024 | 12668 | LIB1 - LIBRARY DIST #1 | $15.37 | $15.37 | $0.00 | $0.00 | $30.74 | $0.00 |
| 2024 | 12668 | HD2 - HOSP DIST #2 | $2.88 | $2.88 | $0.00 | $0.00 | $5.76 | $0.00 |
| 2024 | 12668 | SD49 - SCHOOL DIST #49 | $51.53 | $51.53 | $0.00 | $0.00 | $103.06 | $0.00 |
| 2024 | 12668 | FD1 - FIRE DISTRICT #1 | $65.29 | $65.29 | $0.00 | $0.00 | $130.58 | $0.00 |
| 2024 | 12668 | EMS1 - FIRE DIST #1 EMS | $24.94 | $24.94 | $0.00 | $0.00 | $49.88 | $0.00 |
| 2024 | 12668 | FP - DNR Forest Fire Protection Assmt | $8.50 | $8.50 | $0.00 | $0.00 | $17.00 | $0.00 |
| 2024 | 12668 | FPLCA - DNR Landowner Contingency Assmt | $3.00 | $3.00 | $0.00 | $0.00 | $6.00 | $0.00 |
| 2024 | 12668 | JCCD - JC Conservation District | $2.53 | $2.53 | $0.00 | $0.00 | $5.06 | $0.00 |
| 2024 | 12668 | NWA - Noxious Weed Assessment | $2.15 | $2.15 | $0.00 | $0.00 | $4.30 | $0.00 |
| 2024 | 12668 | WAT - Clean Water District | $12.50 | $12.50 | $0.00 | $0.00 | $25.00 | $0.00 |
| 2024 | 12668 | FP ADMIN - FP ADMIN | $0.50 | $0.00 | $0.00 | $0.00 | $0.50 | $0.00 |
| 2024 | 12668 | TOTAL: | $418.84 | $418.28 | $0.00 | $0.00 | $837.12 | $0.00 |
|
| 2024 | 12668 | $418.84 | $418.28 | $0.00 | $0.00 | $837.12 | $0.00 |
Statement Details |
| 2023 | 12688 | STATE - STATE LEVY (SCHOOL) | $117.42 | $117.40 | $0.00 | $0.00 | $234.82 | $0.00 |
| 2023 | 12688 | COUNTY - COUNTY LEVIES (CE, DD, VET, MH) | $51.24 | $51.23 | $0.00 | $0.00 | $102.47 | $0.00 |
| 2023 | 12688 | CONSERVE - CONSERVATION FUTURES | $1.54 | $1.53 | $0.00 | $0.00 | $3.07 | $0.00 |
| 2023 | 12688 | COROADS - COUNTY ROADS (ROADS, DIV TO CE) | $41.46 | $41.45 | $0.00 | $0.00 | $82.91 | $0.00 |
| 2023 | 12688 | PORTPT - PORT DISTRICT | $21.59 | $21.57 | $0.00 | $0.00 | $43.16 | $0.00 |
| 2023 | 12688 | PUD1 - PUD #1 | $3.40 | $3.39 | $0.00 | $0.00 | $6.79 | $0.00 |
| 2023 | 12688 | LIB1 - LIBRARY DIST #1 | $16.04 | $16.04 | $0.00 | $0.00 | $32.08 | $0.00 |
| 2023 | 12688 | HD2 - HOSP DIST #2 | $2.99 | $2.99 | $0.00 | $0.00 | $5.98 | $0.00 |
| 2023 | 12688 | SD49 - SCHOOL DIST #49 | $54.89 | $54.88 | $0.00 | $0.00 | $109.77 | $0.00 |
| 2023 | 12688 | FD1 - FIRE DISTRICT #1 | $42.21 | $42.21 | $0.00 | $0.00 | $84.42 | $0.00 |
| 2023 | 12688 | EMS1 - FIRE DIST #1 EMS | $17.96 | $17.95 | $0.00 | $0.00 | $35.91 | $0.00 |
| 2023 | 12688 | FP - DNR Forest Fire Protection Assmt | $8.50 | $8.50 | $0.00 | $0.00 | $17.00 | $0.00 |
| 2023 | 12688 | FPLCA - DNR Landowner Contingency Assmt | $3.00 | $3.00 | $0.00 | $0.00 | $6.00 | $0.00 |
| 2023 | 12688 | JCCD - JC Conservation District | $2.53 | $2.53 | $0.00 | $0.00 | $5.06 | $0.00 |
| 2023 | 12688 | NWA - Noxious Weed Assessment | $2.15 | $2.15 | $0.00 | $0.00 | $4.30 | $0.00 |
| 2023 | 12688 | WAT - Clean Water District | $12.00 | $12.00 | $0.00 | $0.00 | $24.00 | $0.00 |
| 2023 | 12688 | FP ADMIN - FP ADMIN | $0.50 | $0.00 | $0.00 | $0.00 | $0.50 | $0.00 |
| 2023 | 12688 | TOTAL: | $399.42 | $398.82 | $0.00 | $0.00 | $798.24 | $0.00 |
|
| 2023 | 12688 | $399.42 | $398.82 | $0.00 | $0.00 | $798.24 | $0.00 |
Values
| (+) Improvement Homesite Value: | + | $0 | |
| (+) Improvement Non-Homesite Value: | + | $0 | |
| (+) Land Homesite Value: | + | $0 | |
| (+) Land Non-Homesite Value: | + | $104,738 | |
| (+) Curr Use (HS): | + | $0 | $0 |
| (+) Curr Use (NHS): | + | $0 | $0 |
| | | -------------------------- | |
| (=) Market Value: | = | $104,738 | |
| (–) Productivity Loss: | – | $0 | |
| | | -------------------------- | |
| (=) Subtotal: | = | $104,738 | |
| (+) Senior Appraised Value: | + | $0 | |
| (+) Non-Senior Appraised Value: | + | $104,738 | |
| | | -------------------------- | |
| (=) Total Appraised Value: | = | $104,738 | |
| (–) Senior Exemption Loss: | – | $0 | |
| (–) Exemption Loss: | – | $0 | |
| | | -------------------------- | |
| (=) Taxable Value: | = | $104,738 | |
Taxing Jurisdiction
| Owner: | BRIAN & LIANA BARGER | | |
| % Ownership: | 100.0000000000% | | |
| Total Value: | $104,738 | | |
| Tax Area: | 0211 - 1-49F1E1H2L1 |
| CE | COUNTY CURRENT EXPENSE | 0.9034619479 | $104,738 | $104,738 | $94.63 | | |
| CNTYDD | DEVELOPMENTAL DISABILITIES | 0.0052121823 | $104,738 | $104,738 | $0.55 | | |
| CNTYVET | VETERANS RELIEF | 0.0052777810 | $104,738 | $104,738 | $0.55 | | |
| MENTAL | MENTAL HEALTH | 0.0052121823 | $104,738 | $104,738 | $0.55 | | |
| ROADS | COUNTY ROADS | 0.7415066410 | $104,738 | $104,738 | $77.66 | | |
| ROADSCU | COUNTY ROADS TO CUR EXP | 0.0000000000 | $104,738 | $104,738 | $0.00 | | |
| HOSP2CASH | HOSP DIST #2 GENERAL | 0.0536075306 | $104,738 | $104,738 | $5.61 | | |
| SCH49CP | SCHOOL DIST #49 CAP PROJ | 0.6279093905 | $104,738 | $104,738 | $65.77 | | |
| SCH49MO | SCHOOL DIST #49 EP & O | 0.6376483602 | $104,738 | $104,738 | $66.79 | | |
| CONSERVE | CONSERVATION FUTURES | 0.0275621078 | $104,738 | $104,738 | $2.89 | | |
| EMS1 | FIRE DIST #1 EMS | 0.4679948282 | $104,738 | $104,738 | $49.02 | | |
| FD1 | FIRE DIST #1 GENERAL | 1.2171942929 | $104,738 | $104,738 | $127.49 | | |
| LIB1 | LIBRARY DIST #1 GENERAL | 0.2868827388 | $104,738 | $104,738 | $30.05 | | |
| PORTPT | PORT OF PT GENERAL | 0.1134941229 | $104,738 | $104,738 | $11.89 | | |
| PORTPTIDD | PORT OF PT IDD 2019 | 0.2577346692 | $104,738 | $104,738 | $26.99 | | |
| PUD1 | PUD #1 GENERAL | 0.0597888892 | $104,738 | $104,738 | $6.26 | | |
| STATE | STATE SCHOOL PART 1 | 1.4940692947 | $104,738 | $104,738 | $156.49 | | |
| STATE2 | STATE SCHOOL PART 2 | 0.8050170049 | $104,738 | $104,738 | $84.32 | | |
| | Total Tax Rate: | 7.7095739644 | | | | | |
| | | | | Taxes w/Current Exemptions: | $807.51 | | |
| | | | | Taxes w/o Exemptions: | $807.51 | | |
Improvement / Building
Sketch
| No sketches available for this property. |
Property Image
Land
| 1 | 4630-1375S | | 0.0000 | 0.00 | 0.00 | 0.00 | 1.00 | $104,738 | $0 |
Roll Value History
| 2026 | N/A | N/A | N/A | N/A | N/A |
| 2025 | $0 | $104,738 | $0 | $104,738 | $104,738 |
| 2024 | $0 | $104,738 | $0 | $104,738 | $104,738 |
| 2023 | $0 | $99,750 | $0 | $99,750 | $99,750 |
| 2022 | $0 | $99,750 | $0 | $99,750 | $99,750 |
Deed and Sales History
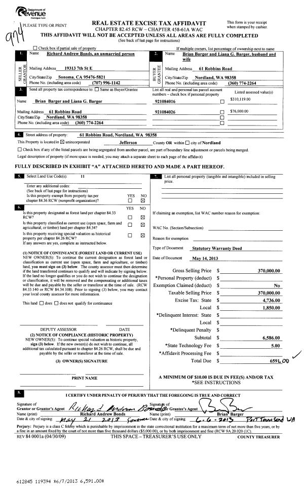
| 1 | 06/07/2013 | SWD | Statutory Warranty Deed | RICHARD ANDREW BONDS TRUST | BRIAN & LIANA BARGER | | | $370,000.00 | 119394 | |
|   | |
| 2 | 05/21/2013 | QCD | Quit Claim Deed | | RICHARD ANDREW BONDS | | | | 119393 | |
| 3 | 04/06/2005 | QCD | Quit Claim Deed | BONDS, RICHARD A | BONDS, RICHARD ANDREW TRUSTEE | | | $0.00 | 103250 | 0 |
| 4 | 04/01/2005 | SWD | Statutory Warranty Deed | BUNCE, JAMES F & AGNES | BONDS, RICHARD A | | | $525,000.00 | 103229 | 0 |
| 5 | 07/30/1998 | SWD | Statutory Warranty Deed | FULKERSON, GILBERT & ARLE | BUNCE, JAMES F & AGNES M | 0 | 0 | $20,000.00 | 84967 | 0 |
Payout Agreement
| No payout information available.. |