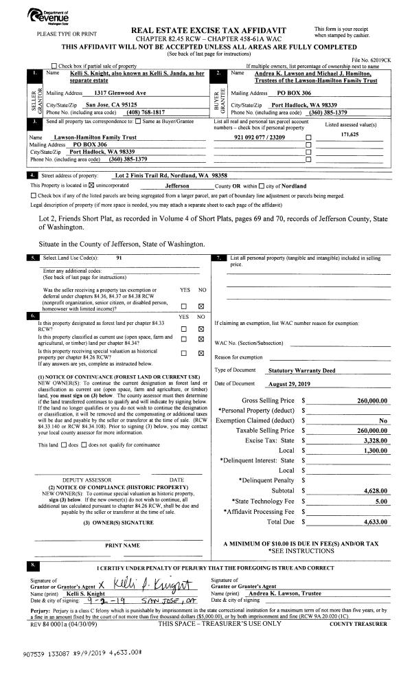
Property
Account |
| Property ID: | 23209 | Abbreviated Legal Description: | FRIENDS SHORT PLAT LOT 2 SUBJ TO TR A/EASE |
| Parcel # / Geo ID: | 921092077 | Agent Code: | |
| Type: | Real | | |
| Tax Area: | 0211 - 1-49F1E1H2L1 | Land Use Code | 11 |
| Open Space: | N | DFL | N |
| Historic Property: | N | Remodel Property: | N |
| Multi-Family Redevelopment: | N | | |
| Township: | 29N | Section: | 9 |
| Range: | 1E |
Location |
| Address: | 140 FINIS TRAIL NORDLAND, WA 98358 | Mapsco: | 230/046 |
| Neighborhood: | SEC9,16,17T29R1E & STAVNEY,GARDEN CLUB ACRES,MORROW-0LIVA SP | Map ID: | |
| Neighborhood CD: | 4620 |
Owner |
| Name: | LAWSON HAMILTON FAMILY TRUST | Owner ID: | 101181 |
| Mailing Address: | ANDREA K LAWSON TRUSTEE MICHAEL J HAMILTON TRUSTEE PO BOX 53 NORDLAND, WA 98358-0053 | % Ownership: | 100.0000000000% |
| | | Exemptions: | |
Pay Tax Due
Select the appropriate checkbox next to the year to be paid. Multiple years may be selected.
*Convenience Fee not included
Taxes and Assessment Details
Property Tax Information as of
03/11/2026
Click on "Statement Details" to expand or collapse a tax statement.
* Please enter a valid date ** Please enter a valid date *
Statement Details |
| 2026 | 12649 | STATE - STATE LEVY (SCHOOL) | $1247.13 | $1247.12 | $0.00 | $0.00 | $0.00 | $2494.25 |
| 2026 | 12649 | COUNTY - COUNTY LEVIES (CE, DD, VET, MH) | $498.61 | $498.57 | $0.00 | $0.00 | $0.00 | $997.18 |
| 2026 | 12649 | CONSERVE - CONSERVATION FUTURES | $14.95 | $14.95 | $0.00 | $0.00 | $0.00 | $29.90 |
| 2026 | 12649 | COROADS - COUNTY ROADS (ROADS, DIV TO CE) | $402.23 | $402.22 | $0.00 | $0.00 | $0.00 | $804.45 |
| 2026 | 12649 | PORTPT - PORT DISTRICT | $201.38 | $201.36 | $0.00 | $0.00 | $0.00 | $402.74 |
| 2026 | 12649 | PUD1 - PUD #1 | $32.43 | $32.43 | $0.00 | $0.00 | $0.00 | $64.86 |
| 2026 | 12649 | LIB1 - LIBRARY DIST #1 | $155.62 | $155.62 | $0.00 | $0.00 | $0.00 | $311.24 |
| 2026 | 12649 | HD2 - HOSP DIST #2 | $29.08 | $29.08 | $0.00 | $0.00 | $0.00 | $58.16 |
| 2026 | 12649 | SD49 - SCHOOL DIST #49 | $686.50 | $686.49 | $0.00 | $0.00 | $0.00 | $1372.99 |
| 2026 | 12649 | FD1 - FIRE DISTRICT #1 | $660.26 | $660.26 | $0.00 | $0.00 | $0.00 | $1320.52 |
| 2026 | 12649 | EMS1 - FIRE DIST #1 EMS | $253.86 | $253.86 | $0.00 | $0.00 | $0.00 | $507.72 |
| 2026 | 12649 | FP - DNR Forest Fire Protection Assmt | $8.50 | $8.50 | $0.00 | $0.00 | $0.00 | $17.00 |
| 2026 | 12649 | FPLCA - DNR Landowner Contingency Assmt | $3.00 | $3.00 | $0.00 | $0.00 | $0.00 | $6.00 |
| 2026 | 12649 | JCCD - JC Conservation District | $2.80 | $2.80 | $0.00 | $0.00 | $0.00 | $5.60 |
| 2026 | 12649 | NWA - Noxious Weed Assessment | $4.10 | $4.10 | $0.00 | $0.00 | $0.00 | $8.20 |
| 2026 | 12649 | OSS - On Site Septic | $23.10 | $23.10 | $0.00 | $0.00 | $0.00 | $46.20 |
| 2026 | 12649 | WAT - Clean Water District | $13.00 | $13.00 | $0.00 | $0.00 | $0.00 | $26.00 |
| 2026 | 12649 | FP ADMIN - FP ADMIN | $0.50 | $0.00 | $0.00 | $0.00 | $0.00 | $0.50 |
| 2026 | 12649 | TOTAL: | $4237.05 | $4236.46 | $0.00 | $0.00 | $0.00 | $8473.51 |
|
| 2026 | 12649 | $4237.05 | $4236.46 | $0.00 | $0.00 | $0.00 | $8473.51 |
Statement Details |
| 2025 | 12675 | STATE - STATE LEVY (SCHOOL) | $1129.59 | $1129.58 | $0.00 | $0.00 | $2259.17 | $0.00 |
| 2025 | 12675 | COUNTY - COUNTY LEVIES (CE, DD, VET, MH) | $444.22 | $444.19 | $0.00 | $0.00 | $888.41 | $0.00 |
| 2025 | 12675 | CONSERVE - CONSERVATION FUTURES | $13.32 | $13.32 | $0.00 | $0.00 | $26.64 | $0.00 |
| 2025 | 12675 | COROADS - COUNTY ROADS (ROADS, DIV TO CE) | $355.88 | $355.87 | $0.00 | $0.00 | $711.75 | $0.00 |
| 2025 | 12675 | PORTPT - PORT DISTRICT | $181.26 | $181.26 | $0.00 | $0.00 | $362.52 | $0.00 |
| 2025 | 12675 | PUD1 - PUD #1 | $29.07 | $29.06 | $0.00 | $0.00 | $58.13 | $0.00 |
| 2025 | 12675 | LIB1 - LIBRARY DIST #1 | $137.69 | $137.68 | $0.00 | $0.00 | $275.37 | $0.00 |
| 2025 | 12675 | HD2 - HOSP DIST #2 | $25.92 | $25.91 | $0.00 | $0.00 | $51.83 | $0.00 |
| 2025 | 12675 | SD49 - SCHOOL DIST #49 | $605.39 | $605.39 | $0.00 | $0.00 | $1210.78 | $0.00 |
| 2025 | 12675 | FD1 - FIRE DISTRICT #1 | $586.18 | $586.17 | $0.00 | $0.00 | $1172.35 | $0.00 |
| 2025 | 12675 | EMS1 - FIRE DIST #1 EMS | $225.46 | $225.46 | $0.00 | $0.00 | $450.92 | $0.00 |
| 2025 | 12675 | FP - DNR Forest Fire Protection Assmt | $8.50 | $8.50 | $0.00 | $0.00 | $17.00 | $0.00 |
| 2025 | 12675 | FPLCA - DNR Landowner Contingency Assmt | $3.00 | $3.00 | $0.00 | $0.00 | $6.00 | $0.00 |
| 2025 | 12675 | JCCD - JC Conservation District | $2.80 | $2.80 | $0.00 | $0.00 | $5.60 | $0.00 |
| 2025 | 12675 | NWA - Noxious Weed Assessment | $2.90 | $2.90 | $0.00 | $0.00 | $5.80 | $0.00 |
| 2025 | 12675 | OSS - On Site Septic | $21.50 | $21.50 | $0.00 | $0.00 | $43.00 | $0.00 |
| 2025 | 12675 | WAT - Clean Water District | $13.00 | $13.00 | $0.00 | $0.00 | $26.00 | $0.00 |
| 2025 | 12675 | FP ADMIN - FP ADMIN | $0.50 | $0.00 | $0.00 | $0.00 | $0.50 | $0.00 |
| 2025 | 12675 | TOTAL: | $3786.18 | $3785.59 | $0.00 | $0.00 | $7571.77 | $0.00 |
|
| 2025 | 12675 | $3786.18 | $3785.59 | $0.00 | $0.00 | $7571.77 | $0.00 |
Statement Details |
| 2024 | 12704 | STATE - STATE LEVY (SCHOOL) | $684.88 | $684.86 | $0.00 | $0.00 | $1369.74 | $0.00 |
| 2024 | 12704 | COUNTY - COUNTY LEVIES (CE, DD, VET, MH) | $293.08 | $293.05 | $0.00 | $0.00 | $586.13 | $0.00 |
| 2024 | 12704 | CONSERVE - CONSERVATION FUTURES | $8.79 | $8.79 | $0.00 | $0.00 | $17.58 | $0.00 |
| 2024 | 12704 | COROADS - COUNTY ROADS (ROADS, DIV TO CE) | $235.83 | $235.81 | $0.00 | $0.00 | $471.64 | $0.00 |
| 2024 | 12704 | PORTPT - PORT DISTRICT | $121.05 | $121.04 | $0.00 | $0.00 | $242.09 | $0.00 |
| 2024 | 12704 | PUD1 - PUD #1 | $19.25 | $19.25 | $0.00 | $0.00 | $38.50 | $0.00 |
| 2024 | 12704 | LIB1 - LIBRARY DIST #1 | $91.24 | $91.23 | $0.00 | $0.00 | $182.47 | $0.00 |
| 2024 | 12704 | HD2 - HOSP DIST #2 | $17.10 | $17.10 | $0.00 | $0.00 | $34.20 | $0.00 |
| 2024 | 12704 | SD49 - SCHOOL DIST #49 | $305.83 | $305.83 | $0.00 | $0.00 | $611.66 | $0.00 |
| 2024 | 12704 | FD1 - FIRE DISTRICT #1 | $387.50 | $387.50 | $0.00 | $0.00 | $775.00 | $0.00 |
| 2024 | 12704 | EMS1 - FIRE DIST #1 EMS | $148.01 | $148.01 | $0.00 | $0.00 | $296.02 | $0.00 |
| 2024 | 12704 | FP - DNR Forest Fire Protection Assmt | $8.50 | $8.50 | $0.00 | $0.00 | $17.00 | $0.00 |
| 2024 | 12704 | FPLCA - DNR Landowner Contingency Assmt | $3.00 | $3.00 | $0.00 | $0.00 | $6.00 | $0.00 |
| 2024 | 12704 | JCCD - JC Conservation District | $2.80 | $2.80 | $0.00 | $0.00 | $5.60 | $0.00 |
| 2024 | 12704 | NWA - Noxious Weed Assessment | $2.90 | $2.90 | $0.00 | $0.00 | $5.80 | $0.00 |
| 2024 | 12704 | WAT - Clean Water District | $12.50 | $12.50 | $0.00 | $0.00 | $25.00 | $0.00 |
| 2024 | 12704 | FP ADMIN - FP ADMIN | $0.50 | $0.00 | $0.00 | $0.00 | $0.50 | $0.00 |
| 2024 | 12704 | TOTAL: | $2342.76 | $2342.17 | $0.00 | $0.00 | $4684.93 | $0.00 |
|
| 2024 | 12704 | $2342.76 | $2342.17 | $0.00 | $0.00 | $4684.93 | $0.00 |
Statement Details |
| 2023 | 12724 | STATE - STATE LEVY (SCHOOL) | $273.03 | $273.02 | $0.00 | $0.00 | $546.05 | $0.00 |
| 2023 | 12724 | COUNTY - COUNTY LEVIES (CE, DD, VET, MH) | $119.15 | $119.12 | $0.00 | $0.00 | $238.27 | $0.00 |
| 2023 | 12724 | CONSERVE - CONSERVATION FUTURES | $3.58 | $3.57 | $0.00 | $0.00 | $7.15 | $0.00 |
| 2023 | 12724 | COROADS - COUNTY ROADS (ROADS, DIV TO CE) | $96.40 | $96.39 | $0.00 | $0.00 | $192.79 | $0.00 |
| 2023 | 12724 | PORTPT - PORT DISTRICT | $50.19 | $50.18 | $0.00 | $0.00 | $100.37 | $0.00 |
| 2023 | 12724 | PUD1 - PUD #1 | $7.90 | $7.89 | $0.00 | $0.00 | $15.79 | $0.00 |
| 2023 | 12724 | LIB1 - LIBRARY DIST #1 | $37.30 | $37.29 | $0.00 | $0.00 | $74.59 | $0.00 |
| 2023 | 12724 | HD2 - HOSP DIST #2 | $6.96 | $6.95 | $0.00 | $0.00 | $13.91 | $0.00 |
| 2023 | 12724 | SD49 - SCHOOL DIST #49 | $127.63 | $127.62 | $0.00 | $0.00 | $255.25 | $0.00 |
| 2023 | 12724 | FD1 - FIRE DISTRICT #1 | $98.15 | $98.14 | $0.00 | $0.00 | $196.29 | $0.00 |
| 2023 | 12724 | EMS1 - FIRE DIST #1 EMS | $41.75 | $41.75 | $0.00 | $0.00 | $83.50 | $0.00 |
| 2023 | 12724 | FP - DNR Forest Fire Protection Assmt | $8.50 | $8.50 | $0.00 | $0.00 | $17.00 | $0.00 |
| 2023 | 12724 | FPLCA - DNR Landowner Contingency Assmt | $3.00 | $3.00 | $0.00 | $0.00 | $6.00 | $0.00 |
| 2023 | 12724 | JCCD - JC Conservation District | $2.73 | $2.73 | $0.00 | $0.00 | $5.46 | $0.00 |
| 2023 | 12724 | NWA - Noxious Weed Assessment | $2.90 | $2.90 | $0.00 | $0.00 | $5.80 | $0.00 |
| 2023 | 12724 | WAT - Clean Water District | $12.00 | $12.00 | $0.00 | $0.00 | $24.00 | $0.00 |
| 2023 | 12724 | FP ADMIN - FP ADMIN | $0.50 | $0.00 | $0.00 | $0.00 | $0.50 | $0.00 |
| 2023 | 12724 | TOTAL: | $891.67 | $891.05 | $0.00 | $0.00 | $1782.72 | $0.00 |
|
| 2023 | 12724 | $891.67 | $891.05 | $0.00 | $0.00 | $1782.72 | $0.00 |
Values
| (+) Improvement Homesite Value: | + | $0 | |
| (+) Improvement Non-Homesite Value: | + | $796,830 | |
| (+) Land Homesite Value: | + | $0 | |
| (+) Land Non-Homesite Value: | + | $288,057 | |
| (+) Curr Use (HS): | + | $0 | $0 |
| (+) Curr Use (NHS): | + | $0 | $0 |
| | | -------------------------- | |
| (=) Market Value: | = | $1,084,887 | |
| (–) Productivity Loss: | – | $0 | |
| | | -------------------------- | |
| (=) Subtotal: | = | $1,084,887 | |
| (+) Senior Appraised Value: | + | $0 | |
| (+) Non-Senior Appraised Value: | + | $1,084,887 | |
| | | -------------------------- | |
| (=) Total Appraised Value: | = | $1,084,887 | |
| (–) Senior Exemption Loss: | – | $0 | |
| (–) Exemption Loss: | – | $0 | |
| | | -------------------------- | |
| (=) Taxable Value: | = | $1,084,887 | |
Taxing Jurisdiction
| Owner: | LAWSON HAMILTON FAMILY TRUST | | |
| % Ownership: | 100.0000000000% | | |
| Total Value: | $1,084,887 | | |
| Tax Area: | 0211 - 1-49F1E1H2L1 |
| CE | COUNTY CURRENT EXPENSE | 0.9034619479 | $1,084,887 | $1,084,887 | $980.15 | | |
| CNTYDD | DEVELOPMENTAL DISABILITIES | 0.0052121823 | $1,084,887 | $1,084,887 | $5.65 | | |
| CNTYVET | VETERANS RELIEF | 0.0052777810 | $1,084,887 | $1,084,887 | $5.73 | | |
| MENTAL | MENTAL HEALTH | 0.0052121823 | $1,084,887 | $1,084,887 | $5.65 | | |
| ROADS | COUNTY ROADS | 0.7415066410 | $1,084,887 | $1,084,887 | $804.45 | | |
| ROADSCU | COUNTY ROADS TO CUR EXP | 0.0000000000 | $1,084,887 | $1,084,887 | $0.00 | | |
| HOSP2CASH | HOSP DIST #2 GENERAL | 0.0536075306 | $1,084,887 | $1,084,887 | $58.16 | | |
| SCH49CP | SCHOOL DIST #49 CAP PROJ | 0.6279093905 | $1,084,887 | $1,084,887 | $681.21 | | |
| SCH49MO | SCHOOL DIST #49 EP & O | 0.6376483602 | $1,084,887 | $1,084,887 | $691.78 | | |
| CONSERVE | CONSERVATION FUTURES | 0.0275621078 | $1,084,887 | $1,084,887 | $29.90 | | |
| EMS1 | FIRE DIST #1 EMS | 0.4679948282 | $1,084,887 | $1,084,887 | $507.72 | | |
| FD1 | FIRE DIST #1 GENERAL | 1.2171942929 | $1,084,887 | $1,084,887 | $1,320.52 | | |
| LIB1 | LIBRARY DIST #1 GENERAL | 0.2868827388 | $1,084,887 | $1,084,887 | $311.24 | | |
| PORTPT | PORT OF PT GENERAL | 0.1134941229 | $1,084,887 | $1,084,887 | $123.13 | | |
| PORTPTIDD | PORT OF PT IDD 2019 | 0.2577346692 | $1,084,887 | $1,084,887 | $279.61 | | |
| PUD1 | PUD #1 GENERAL | 0.0597888892 | $1,084,887 | $1,084,887 | $64.86 | | |
| STATE | STATE SCHOOL PART 1 | 1.4940692947 | $1,084,887 | $1,084,887 | $1,620.90 | | |
| STATE2 | STATE SCHOOL PART 2 | 0.8050170049 | $1,084,887 | $1,084,887 | $873.35 | | |
| | Total Tax Rate: | 7.7095739644 | | | | | |
| | | | | Taxes w/Current Exemptions: | $8,364.01 | | |
| | | | | Taxes w/o Exemptions: | $8,364.01 | | |
Improvement / Building
| Improvement #1: | Residential Bldg | State Code: | 11 | 2280.0 sqft | Value: | $480,768 |
| Bathrooms (#): | 2 (FULL) | Bedrooms (#): | 2 | | Exterior Wall: | PL/T1 | Foundation: | CONPR | | Heating/Cooling: | HPUMP | Roof Cover: | METAL |
|
| | Type | Description | Class CD | Sub Class CD | Year Built | Area |
| | MA | Main Area | 4- | 15SF | 2023 | 378.0 |
| | MA2 | Second Floor Main Area | 4- | 15SF | 2023 | 1902.0 |
| | GBLTIN | Builtin Garage | 4 | 15SF | 2023 | 1422.0 |
| | CARPTF | Carport W/Floor | 4 | 15SF | 2023 | 190.0 |
| | PATIO | House Patio | 4 | 15SF | 2023 | 280.0 |
| | HCPOR | House Concrete Porch | 4 | 15SF | 2023 | 42.0 |
| | HBAL | House Balcony | 4 | 15SF | 2023 | 280.0 |
| | SHED | Shed (Table Not Dep) | 4 | 15SF | 2023 | 96.0 |
| Improvement #2: | Residential Bldg | State Code: | 11 | 1923.0 sqft | Value: | $316,062 |
| Bathrooms (#): | 3 (FULL) | Bedrooms (#): | 4 | | Exterior Wall: | PL/T1 | Floor Construction: | FRAME | | Foundation: | CONPR | Heating/Cooling: | HPUMP | | Interior Finish: | FIN | Roof Cover: | METAL |
|
| | Type | Description | Class CD | Sub Class CD | Year Built | Area |
| | MA | Main Area | 5 | 2S | 2024 | 981.0 |
| | MA2 | Second Floor Main Area | 5 | 2S | 2024 | 942.0 |
| | HWPOR | House Wood Porch | 5 | 2S | 2024 | 368.0 |
| | CARPTF | Carport W/Floor | 5 | 2S | 2024 | 350.0 |
Sketch
Property Image
Land
| 1 | 4620-1355S | | 1.0000 | 43560.00 | 0.00 | 0.00 | 1.00 | $210,000 | $0 |
| 2 | 1572A | | 4.1300 | 179902.80 | 0.00 | 0.00 | 0.00 | $78,057 | $0 |
Roll Value History
| 2026 | N/A | N/A | N/A | N/A | N/A |
| 2025 | $796,830 | $288,057 | $0 | $1,084,887 | $1,084,887 |
| 2024 | $654,038 | $288,057 | $0 | $942,095 | $942,095 |
| 2023 | $326,832 | $265,210 | $0 | $592,042 | $592,042 |
| 2022 | $0 | $231,950 | $0 | $231,950 | $231,950 |
Deed and Sales History
| 1 | 08/29/2019 | SWD | Statutory Warranty Deed | KELLI S KNIGHT | LAWSON HAMILTON FAMILY TRUST | | | $260,000.00 | 133087 | |
| 2 | 12/27/2006 | SWD | Statutory Warranty Deed | MILLER, KEVIN & SUSAN | KNIGHT, KELLI | 0 | 0 | $215,000.00 | 108408 | 0 |
| 3 | 10/27/1998 | QCD | Quit Claim Deed | BROWN, ROBERT M/III ET A | MILLER, KEVIN M/SUSAN E | 0 | 0 | $0.00 | 85601 | 0 |
Payout Agreement
| No payout information available.. |