Property
Account |
| Property ID: | 23244 | Abbreviated Legal Description: | S9 T29 R1E TAX 14 |
| Parcel # / Geo ID: | 921094013 | Agent Code: | |
| Type: | Real | | |
| Tax Area: | 0211 - 1-49F1E1H2L1 | Land Use Code | 11 |
| Open Space: | N | DFL | N |
| Historic Property: | N | Remodel Property: | N |
| Multi-Family Redevelopment: | N | | |
| Township: | 29N | Section: | 9 |
| Range: | 1E |
Location |
| Address: | 133 S LIP LIP LN NORDLAND, WA 98358 | Mapsco: | 170/051 |
| Neighborhood: | SEC9,16,17T29R1E & STAVNEY,GARDEN CLUB ACRES,MORROW-0LIVA SP | Map ID: | |
| Neighborhood CD: | 4620 |
Owner |
| Name: | LOIS M SAMARRON | Owner ID: | 98506 |
| Mailing Address: | 131 S LIP LIP LN NORDLAND, WA 98358-9687 | % Ownership: | 100.0000000000% |
| | | Exemptions: | |
Pay Tax Due
Select the appropriate checkbox next to the year to be paid. Multiple years may be selected.
*Convenience Fee not included
Taxes and Assessment Details
Property Tax Information as of
03/10/2026
Click on "Statement Details" to expand or collapse a tax statement.
* Please enter a valid date ** Please enter a valid date *
Statement Details |
| 2026 | 12682 | STATE - STATE LEVY (SCHOOL) | $413.36 | $413.35 | $0.00 | $0.00 | $0.00 | $826.71 |
| 2026 | 12682 | COUNTY - COUNTY LEVIES (CE, DD, VET, MH) | $165.27 | $165.24 | $0.00 | $0.00 | $0.00 | $330.51 |
| 2026 | 12682 | CONSERVE - CONSERVATION FUTURES | $4.96 | $4.95 | $0.00 | $0.00 | $0.00 | $9.91 |
| 2026 | 12682 | COROADS - COUNTY ROADS (ROADS, DIV TO CE) | $133.32 | $133.31 | $0.00 | $0.00 | $0.00 | $266.63 |
| 2026 | 12682 | PORTPT - PORT DISTRICT | $66.75 | $66.74 | $0.00 | $0.00 | $0.00 | $133.49 |
| 2026 | 12682 | PUD1 - PUD #1 | $10.75 | $10.75 | $0.00 | $0.00 | $0.00 | $21.50 |
| 2026 | 12682 | LIB1 - LIBRARY DIST #1 | $51.58 | $51.58 | $0.00 | $0.00 | $0.00 | $103.16 |
| 2026 | 12682 | HD2 - HOSP DIST #2 | $9.64 | $9.64 | $0.00 | $0.00 | $0.00 | $19.28 |
| 2026 | 12682 | SD49 - SCHOOL DIST #49 | $227.54 | $227.53 | $0.00 | $0.00 | $0.00 | $455.07 |
| 2026 | 12682 | FD1 - FIRE DISTRICT #1 | $218.84 | $218.84 | $0.00 | $0.00 | $0.00 | $437.68 |
| 2026 | 12682 | EMS1 - FIRE DIST #1 EMS | $84.14 | $84.14 | $0.00 | $0.00 | $0.00 | $168.28 |
| 2026 | 12682 | FP - DNR Forest Fire Protection Assmt | $8.50 | $8.50 | $0.00 | $0.00 | $0.00 | $17.00 |
| 2026 | 12682 | FPLCA - DNR Landowner Contingency Assmt | $3.00 | $3.00 | $0.00 | $0.00 | $0.00 | $6.00 |
| 2026 | 12682 | JCCD - JC Conservation District | $2.60 | $2.60 | $0.00 | $0.00 | $0.00 | $5.20 |
| 2026 | 12682 | NWA - Noxious Weed Assessment | $3.20 | $3.20 | $0.00 | $0.00 | $0.00 | $6.40 |
| 2026 | 12682 | OSS - On Site Septic | $23.10 | $23.10 | $0.00 | $0.00 | $0.00 | $46.20 |
| 2026 | 12682 | WAT - Clean Water District | $13.00 | $13.00 | $0.00 | $0.00 | $0.00 | $26.00 |
| 2026 | 12682 | FP ADMIN - FP ADMIN | $0.50 | $0.00 | $0.00 | $0.00 | $0.00 | $0.50 |
| 2026 | 12682 | TOTAL: | $1440.05 | $1439.47 | $0.00 | $0.00 | $0.00 | $2879.52 |
|
| 2026 | 12682 | $1440.05 | $1439.47 | $0.00 | $0.00 | $0.00 | $2879.52 |
Statement Details |
| 2025 | 12708 | STATE - STATE LEVY (SCHOOL) | $431.15 | $431.14 | $0.00 | $0.00 | $862.29 | $0.00 |
| 2025 | 12708 | COUNTY - COUNTY LEVIES (CE, DD, VET, MH) | $169.55 | $169.54 | $0.00 | $0.00 | $339.09 | $0.00 |
| 2025 | 12708 | CONSERVE - CONSERVATION FUTURES | $5.09 | $5.08 | $0.00 | $0.00 | $10.17 | $0.00 |
| 2025 | 12708 | COROADS - COUNTY ROADS (ROADS, DIV TO CE) | $135.84 | $135.83 | $0.00 | $0.00 | $271.67 | $0.00 |
| 2025 | 12708 | PORTPT - PORT DISTRICT | $69.19 | $69.18 | $0.00 | $0.00 | $138.37 | $0.00 |
| 2025 | 12708 | PUD1 - PUD #1 | $11.10 | $11.09 | $0.00 | $0.00 | $22.19 | $0.00 |
| 2025 | 12708 | LIB1 - LIBRARY DIST #1 | $52.55 | $52.55 | $0.00 | $0.00 | $105.10 | $0.00 |
| 2025 | 12708 | HD2 - HOSP DIST #2 | $9.89 | $9.89 | $0.00 | $0.00 | $19.78 | $0.00 |
| 2025 | 12708 | SD49 - SCHOOL DIST #49 | $231.07 | $231.06 | $0.00 | $0.00 | $462.13 | $0.00 |
| 2025 | 12708 | FD1 - FIRE DISTRICT #1 | $223.73 | $223.73 | $0.00 | $0.00 | $447.46 | $0.00 |
| 2025 | 12708 | EMS1 - FIRE DIST #1 EMS | $86.06 | $86.05 | $0.00 | $0.00 | $172.11 | $0.00 |
| 2025 | 12708 | FP - DNR Forest Fire Protection Assmt | $8.50 | $8.50 | $0.00 | $0.00 | $17.00 | $0.00 |
| 2025 | 12708 | FPLCA - DNR Landowner Contingency Assmt | $3.00 | $3.00 | $0.00 | $0.00 | $6.00 | $0.00 |
| 2025 | 12708 | JCCD - JC Conservation District | $2.60 | $2.60 | $0.00 | $0.00 | $5.20 | $0.00 |
| 2025 | 12708 | NWA - Noxious Weed Assessment | $2.30 | $2.30 | $0.00 | $0.00 | $4.60 | $0.00 |
| 2025 | 12708 | OSS - On Site Septic | $21.50 | $21.50 | $0.00 | $0.00 | $43.00 | $0.00 |
| 2025 | 12708 | WAT - Clean Water District | $13.00 | $13.00 | $0.00 | $0.00 | $26.00 | $0.00 |
| 2025 | 12708 | FP ADMIN - FP ADMIN | $0.50 | $0.00 | $0.00 | $0.00 | $0.50 | $0.00 |
| 2025 | 12708 | TOTAL: | $1476.62 | $1476.04 | $0.00 | $0.00 | $2952.66 | $0.00 |
|
| 2025 | 12708 | $1476.62 | $1476.04 | $0.00 | $0.00 | $2952.66 | $0.00 |
Statement Details |
| 2024 | 12737 | STATE - STATE LEVY (SCHOOL) | $390.51 | $390.50 | $0.00 | $0.00 | $781.01 | $0.00 |
| 2024 | 12737 | COUNTY - COUNTY LEVIES (CE, DD, VET, MH) | $167.12 | $167.09 | $0.00 | $0.00 | $334.21 | $0.00 |
| 2024 | 12737 | CONSERVE - CONSERVATION FUTURES | $5.01 | $5.01 | $0.00 | $0.00 | $10.02 | $0.00 |
| 2024 | 12737 | COROADS - COUNTY ROADS (ROADS, DIV TO CE) | $134.47 | $134.45 | $0.00 | $0.00 | $268.92 | $0.00 |
| 2024 | 12737 | PORTPT - PORT DISTRICT | $69.03 | $69.01 | $0.00 | $0.00 | $138.04 | $0.00 |
| 2024 | 12737 | PUD1 - PUD #1 | $10.98 | $10.97 | $0.00 | $0.00 | $21.95 | $0.00 |
| 2024 | 12737 | LIB1 - LIBRARY DIST #1 | $52.02 | $52.02 | $0.00 | $0.00 | $104.04 | $0.00 |
| 2024 | 12737 | HD2 - HOSP DIST #2 | $9.75 | $9.75 | $0.00 | $0.00 | $19.50 | $0.00 |
| 2024 | 12737 | SD49 - SCHOOL DIST #49 | $174.38 | $174.38 | $0.00 | $0.00 | $348.76 | $0.00 |
| 2024 | 12737 | FD1 - FIRE DISTRICT #1 | $220.95 | $220.95 | $0.00 | $0.00 | $441.90 | $0.00 |
| 2024 | 12737 | EMS1 - FIRE DIST #1 EMS | $84.40 | $84.39 | $0.00 | $0.00 | $168.79 | $0.00 |
| 2024 | 12737 | FP - DNR Forest Fire Protection Assmt | $8.50 | $8.50 | $0.00 | $0.00 | $17.00 | $0.00 |
| 2024 | 12737 | FPLCA - DNR Landowner Contingency Assmt | $3.00 | $3.00 | $0.00 | $0.00 | $6.00 | $0.00 |
| 2024 | 12737 | JCCD - JC Conservation District | $2.60 | $2.60 | $0.00 | $0.00 | $5.20 | $0.00 |
| 2024 | 12737 | NWA - Noxious Weed Assessment | $2.30 | $2.30 | $0.00 | $0.00 | $4.60 | $0.00 |
| 2024 | 12737 | OSS - On Site Septic | $21.00 | $21.00 | $0.00 | $0.00 | $42.00 | $0.00 |
| 2024 | 12737 | WAT - Clean Water District | $12.50 | $12.50 | $0.00 | $0.00 | $25.00 | $0.00 |
| 2024 | 12737 | FP ADMIN - FP ADMIN | $0.50 | $0.00 | $0.00 | $0.00 | $0.50 | $0.00 |
| 2024 | 12737 | TOTAL: | $1369.02 | $1368.42 | $0.00 | $0.00 | $2737.44 | $0.00 |
|
| 2024 | 12737 | $1369.02 | $1368.42 | $0.00 | $0.00 | $2737.44 | $0.00 |
Statement Details |
| 2023 | 12758 | STATE - STATE LEVY (SCHOOL) | $370.67 | $370.66 | $0.00 | $0.00 | $741.33 | $0.00 |
| 2023 | 12758 | COUNTY - COUNTY LEVIES (CE, DD, VET, MH) | $161.75 | $161.75 | $0.00 | $0.00 | $323.50 | $0.00 |
| 2023 | 12758 | CONSERVE - CONSERVATION FUTURES | $4.85 | $4.85 | $0.00 | $0.00 | $9.70 | $0.00 |
| 2023 | 12758 | COROADS - COUNTY ROADS (ROADS, DIV TO CE) | $130.87 | $130.86 | $0.00 | $0.00 | $261.73 | $0.00 |
| 2023 | 12758 | PORTPT - PORT DISTRICT | $68.14 | $68.13 | $0.00 | $0.00 | $136.27 | $0.00 |
| 2023 | 12758 | PUD1 - PUD #1 | $10.72 | $10.72 | $0.00 | $0.00 | $21.44 | $0.00 |
| 2023 | 12758 | LIB1 - LIBRARY DIST #1 | $50.63 | $50.63 | $0.00 | $0.00 | $101.26 | $0.00 |
| 2023 | 12758 | HD2 - HOSP DIST #2 | $9.44 | $9.44 | $0.00 | $0.00 | $18.88 | $0.00 |
| 2023 | 12758 | SD49 - SCHOOL DIST #49 | $173.27 | $173.26 | $0.00 | $0.00 | $346.53 | $0.00 |
| 2023 | 12758 | FD1 - FIRE DISTRICT #1 | $133.25 | $133.24 | $0.00 | $0.00 | $266.49 | $0.00 |
| 2023 | 12758 | EMS1 - FIRE DIST #1 EMS | $56.68 | $56.68 | $0.00 | $0.00 | $113.36 | $0.00 |
| 2023 | 12758 | FP - DNR Forest Fire Protection Assmt | $8.50 | $8.50 | $0.00 | $0.00 | $17.00 | $0.00 |
| 2023 | 12758 | FPLCA - DNR Landowner Contingency Assmt | $3.00 | $3.00 | $0.00 | $0.00 | $6.00 | $0.00 |
| 2023 | 12758 | JCCD - JC Conservation District | $2.60 | $2.60 | $0.00 | $0.00 | $5.20 | $0.00 |
| 2023 | 12758 | NWA - Noxious Weed Assessment | $2.30 | $2.30 | $0.00 | $0.00 | $4.60 | $0.00 |
| 2023 | 12758 | OSS - On Site Septic | $20.50 | $20.50 | $0.00 | $0.00 | $41.00 | $0.00 |
| 2023 | 12758 | WAT - Clean Water District | $12.00 | $12.00 | $0.00 | $0.00 | $24.00 | $0.00 |
| 2023 | 12758 | FP ADMIN - FP ADMIN | $0.50 | $0.00 | $0.00 | $0.00 | $0.50 | $0.00 |
| 2023 | 12758 | TOTAL: | $1219.67 | $1219.12 | $0.00 | $0.00 | $2438.79 | $0.00 |
|
| 2023 | 12758 | $1219.67 | $1219.12 | $0.00 | $0.00 | $2438.79 | $0.00 |
Values
| (+) Improvement Homesite Value: | + | $0 | |
| (+) Improvement Non-Homesite Value: | + | $53,769 | |
| (+) Land Homesite Value: | + | $0 | |
| (+) Land Non-Homesite Value: | + | $305,813 | |
| (+) Curr Use (HS): | + | $0 | $0 |
| (+) Curr Use (NHS): | + | $0 | $0 |
| | | -------------------------- | |
| (=) Market Value: | = | $359,582 | |
| (–) Productivity Loss: | – | $0 | |
| | | -------------------------- | |
| (=) Subtotal: | = | $359,582 | |
| (+) Senior Appraised Value: | + | $0 | |
| (+) Non-Senior Appraised Value: | + | $359,582 | |
| | | -------------------------- | |
| (=) Total Appraised Value: | = | $359,582 | |
| (–) Senior Exemption Loss: | – | $0 | |
| (–) Exemption Loss: | – | $0 | |
| | | -------------------------- | |
| (=) Taxable Value: | = | $359,582 | |
Taxing Jurisdiction
| Owner: | LOIS M SAMARRON | | |
| % Ownership: | 100.0000000000% | | |
| Total Value: | $359,582 | | |
| Tax Area: | 0211 - 1-49F1E1H2L1 |
| CE | COUNTY CURRENT EXPENSE | 0.9034619479 | $359,582 | $359,582 | $324.87 | | |
| CNTYDD | DEVELOPMENTAL DISABILITIES | 0.0052121823 | $359,582 | $359,582 | $1.87 | | |
| CNTYVET | VETERANS RELIEF | 0.0052777810 | $359,582 | $359,582 | $1.90 | | |
| MENTAL | MENTAL HEALTH | 0.0052121823 | $359,582 | $359,582 | $1.87 | | |
| ROADS | COUNTY ROADS | 0.7415066410 | $359,582 | $359,582 | $266.63 | | |
| ROADSCU | COUNTY ROADS TO CUR EXP | 0.0000000000 | $359,582 | $359,582 | $0.00 | | |
| HOSP2CASH | HOSP DIST #2 GENERAL | 0.0536075306 | $359,582 | $359,582 | $19.28 | | |
| SCH49CP | SCHOOL DIST #49 CAP PROJ | 0.6279093905 | $359,582 | $359,582 | $225.78 | | |
| SCH49MO | SCHOOL DIST #49 EP & O | 0.6376483602 | $359,582 | $359,582 | $229.29 | | |
| CONSERVE | CONSERVATION FUTURES | 0.0275621078 | $359,582 | $359,582 | $9.91 | | |
| EMS1 | FIRE DIST #1 EMS | 0.4679948282 | $359,582 | $359,582 | $168.28 | | |
| FD1 | FIRE DIST #1 GENERAL | 1.2171942929 | $359,582 | $359,582 | $437.68 | | |
| LIB1 | LIBRARY DIST #1 GENERAL | 0.2868827388 | $359,582 | $359,582 | $103.16 | | |
| PORTPT | PORT OF PT GENERAL | 0.1134941229 | $359,582 | $359,582 | $40.81 | | |
| PORTPTIDD | PORT OF PT IDD 2019 | 0.2577346692 | $359,582 | $359,582 | $92.68 | | |
| PUD1 | PUD #1 GENERAL | 0.0597888892 | $359,582 | $359,582 | $21.50 | | |
| STATE | STATE SCHOOL PART 1 | 1.4940692947 | $359,582 | $359,582 | $537.24 | | |
| STATE2 | STATE SCHOOL PART 2 | 0.8050170049 | $359,582 | $359,582 | $289.47 | | |
| | Total Tax Rate: | 7.7095739644 | | | | | |
| | | | | Taxes w/Current Exemptions: | $2,772.22 | | |
| | | | | Taxes w/o Exemptions: | $2,772.22 | | |
Improvement / Building
| Improvement #1: | Manufactured Home | State Code: | 11 | 1056.0 sqft | Value: | $53,769 |
| Bathrooms (#): | 2 (FULL) | Bedrooms (#): | 2 | | Exterior Wall: | SI/ST | Fireplace: | WD ST-FAIR | | Floor Construction: | FRAME | Foundation: | PO&BL | | Heating/Cooling: | F/A | Inside Verify: | YES-FIX | | Roof Cover: | COMP |   |   |
|
| | Type | Description | Class CD | Sub Class CD | Year Built | Area |
| | MA | Main Area | 3- | MDBL | 1973 | 1056.0 |
| | MDECK | MH Deck | 3 | MDBL | 1973 | 220.0 |
| | MSKIRT_MTL | MH Skirting - Metal/Vinyl | 3 | MDBL | 1973 | 136.0 |
| | GDET | Detached Garage | 1 | MDBL | 1973 | 864.0 |
Sketch
Property Image
Land
| 1 | 4620-1535F | | 0.0000 | 0.00 | 0.00 | 0.00 | 0.00 | $241,500 | $0 |
| 2 | 4620-1535F | | 0.0000 | 0.00 | 0.00 | 0.00 | 0.00 | $64,313 | $0 |
Roll Value History
| 2026 | N/A | N/A | N/A | N/A | N/A |
| 2025 | $53,769 | $305,813 | $0 | $359,582 | $359,582 |
| 2024 | $53,769 | $305,813 | $0 | $359,582 | $359,582 |
| 2023 | $51,325 | $286,250 | $0 | $337,575 | $337,575 |
| 2022 | $33,652 | $281,250 | $0 | $314,902 | $314,902 |
Deed and Sales History
| 1 | 02/01/2018 | MH | Mobile Home | | | | | | 131359 | |
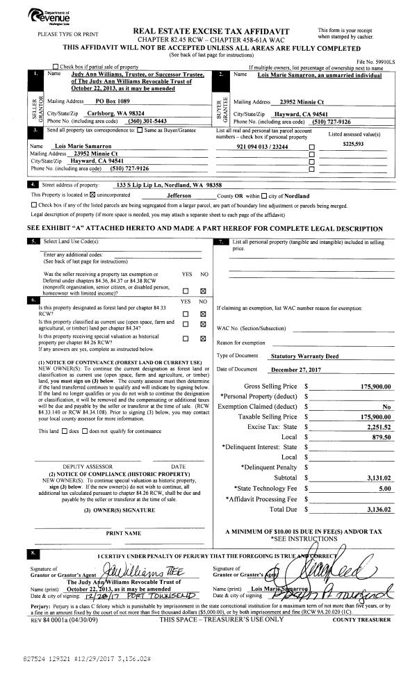
| 2 | 12/27/2017 | SWD | Statutory Warranty Deed | JUDY ANN WILLIAMS REVOCABLE TRUST | LOIS M SAMARRON | | | $175,900.00 | 129321 | |
| 3 | 02/01/2018 | MH | Mobile Home | | | | | | 129509 | |
| 4 | 10/27/2015 | QCD | Quit Claim Deed | HUBER FAMILY TRUST | JUDY ANN WILLIAMS REVOCABLE TRUST | | | | 124252 | |
Payout Agreement
| No payout information available.. |