Property
Account |
| Property ID: | 23299 | Abbreviated Legal Description: | S18 T29 R1E GOV LOT 4(S1/2 W OF CO RD) |
| Parcel # / Geo ID: | 921183002 | Agent Code: | |
| Type: | Real | | |
| Tax Area: | 0211 - 1-49F1E1H2L1 | Land Use Code | 91 |
| Open Space: | N | DFL | N |
| Historic Property: | N | Remodel Property: | N |
| Multi-Family Redevelopment: | N | | |
| Township: | 29N | Section: | 18 |
| Range: | 1E |
Location |
| Address: | | Mapsco: | 172/004 |
| Neighborhood: | S18 & S19 T29N R1E; SKYWATER LLS; OAK/HOG/FIN/DON/GLAV S.P.S | Map ID: | |
| Neighborhood CD: | 4650 |
Owner |
| Name: | POMONA WOODS LLC | Owner ID: | 104318 |
| Mailing Address: | PO BOX 145 PORT HADLOCK, WA 98339-0145 | % Ownership: | 100.0000000000% |
| | | Exemptions: | |
Pay Tax Due
Select the appropriate checkbox next to the year to be paid. Multiple years may be selected.
*Convenience Fee not included
Taxes and Assessment Details
Property Tax Information as of
03/11/2026
Click on "Statement Details" to expand or collapse a tax statement.
* Please enter a valid date ** Please enter a valid date *
Statement Details |
| 2026 | 12735 | STATE - STATE LEVY (SCHOOL) | $32.12 | $32.11 | $0.00 | $0.00 | $0.00 | $64.23 |
| 2026 | 12735 | COUNTY - COUNTY LEVIES (CE, DD, VET, MH) | $12.86 | $12.83 | $0.00 | $0.00 | $0.00 | $25.69 |
| 2026 | 12735 | CONSERVE - CONSERVATION FUTURES | $0.39 | $0.38 | $0.00 | $0.00 | $0.00 | $0.77 |
| 2026 | 12735 | COROADS - COUNTY ROADS (ROADS, DIV TO CE) | $10.36 | $10.36 | $0.00 | $0.00 | $0.00 | $20.72 |
| 2026 | 12735 | PORTPT - PORT DISTRICT | $5.19 | $5.18 | $0.00 | $0.00 | $0.00 | $10.37 |
| 2026 | 12735 | PUD1 - PUD #1 | $0.84 | $0.83 | $0.00 | $0.00 | $0.00 | $1.67 |
| 2026 | 12735 | LIB1 - LIBRARY DIST #1 | $4.01 | $4.01 | $0.00 | $0.00 | $0.00 | $8.02 |
| 2026 | 12735 | HD2 - HOSP DIST #2 | $0.75 | $0.75 | $0.00 | $0.00 | $0.00 | $1.50 |
| 2026 | 12735 | SD49 - SCHOOL DIST #49 | $17.68 | $17.68 | $0.00 | $0.00 | $0.00 | $35.36 |
| 2026 | 12735 | FD1 - FIRE DISTRICT #1 | $17.01 | $17.00 | $0.00 | $0.00 | $0.00 | $34.01 |
| 2026 | 12735 | EMS1 - FIRE DIST #1 EMS | $6.54 | $6.54 | $0.00 | $0.00 | $0.00 | $13.08 |
| 2026 | 12735 | FPLCA - DNR Landowner Contingency Assmt | $3.00 | $3.00 | $0.00 | $0.00 | $0.00 | $6.00 |
| 2026 | 12735 | JCCD - JC Conservation District | $2.57 | $2.57 | $0.00 | $0.00 | $0.00 | $5.14 |
| 2026 | 12735 | NWA - Noxious Weed Assessment | $3.20 | $3.20 | $0.00 | $0.00 | $0.00 | $6.40 |
| 2026 | 12735 | WAT - Clean Water District | $13.00 | $13.00 | $0.00 | $0.00 | $0.00 | $26.00 |
| 2026 | 12735 | TOTAL: | $129.52 | $129.44 | $0.00 | $0.00 | $0.00 | $258.96 |
|
| 2026 | 12735 | $129.52 | $129.44 | $0.00 | $0.00 | $0.00 | $258.96 |
Statement Details |
| 2025 | 12761 | STATE - STATE LEVY (SCHOOL) | $33.50 | $33.50 | $0.00 | $0.00 | $67.00 | $0.00 |
| 2025 | 12761 | COUNTY - COUNTY LEVIES (CE, DD, VET, MH) | $13.19 | $13.16 | $0.00 | $0.00 | $26.35 | $0.00 |
| 2025 | 12761 | CONSERVE - CONSERVATION FUTURES | $0.40 | $0.39 | $0.00 | $0.00 | $0.79 | $0.00 |
| 2025 | 12761 | COROADS - COUNTY ROADS (ROADS, DIV TO CE) | $10.56 | $10.55 | $0.00 | $0.00 | $21.11 | $0.00 |
| 2025 | 12761 | PORTPT - PORT DISTRICT | $5.38 | $5.37 | $0.00 | $0.00 | $10.75 | $0.00 |
| 2025 | 12761 | PUD1 - PUD #1 | $0.86 | $0.86 | $0.00 | $0.00 | $1.72 | $0.00 |
| 2025 | 12761 | LIB1 - LIBRARY DIST #1 | $4.09 | $4.08 | $0.00 | $0.00 | $8.17 | $0.00 |
| 2025 | 12761 | HD2 - HOSP DIST #2 | $0.77 | $0.77 | $0.00 | $0.00 | $1.54 | $0.00 |
| 2025 | 12761 | SD49 - SCHOOL DIST #49 | $17.96 | $17.95 | $0.00 | $0.00 | $35.91 | $0.00 |
| 2025 | 12761 | FD1 - FIRE DISTRICT #1 | $17.39 | $17.38 | $0.00 | $0.00 | $34.77 | $0.00 |
| 2025 | 12761 | EMS1 - FIRE DIST #1 EMS | $6.69 | $6.68 | $0.00 | $0.00 | $13.37 | $0.00 |
| 2025 | 12761 | FPLCA - DNR Landowner Contingency Assmt | $3.00 | $3.00 | $0.00 | $0.00 | $6.00 | $0.00 |
| 2025 | 12761 | JCCD - JC Conservation District | $2.57 | $2.57 | $0.00 | $0.00 | $5.14 | $0.00 |
| 2025 | 12761 | NWA - Noxious Weed Assessment | $2.30 | $2.30 | $0.00 | $0.00 | $4.60 | $0.00 |
| 2025 | 12761 | WAT - Clean Water District | $13.00 | $13.00 | $0.00 | $0.00 | $26.00 | $0.00 |
| 2025 | 12761 | TOTAL: | $131.66 | $131.56 | $0.00 | $0.00 | $263.22 | $0.00 |
|
| 2025 | 12761 | $131.66 | $131.56 | $0.00 | $0.00 | $263.22 | $0.00 |
Statement Details |
| 2024 | 12790 | STATE - STATE LEVY (SCHOOL) | $30.70 | $30.68 | $0.00 | $0.00 | $61.38 | $0.00 |
| 2024 | 12790 | COUNTY - COUNTY LEVIES (CE, DD, VET, MH) | $13.15 | $13.12 | $0.00 | $0.00 | $26.27 | $0.00 |
| 2024 | 12790 | CONSERVE - CONSERVATION FUTURES | $0.40 | $0.39 | $0.00 | $0.00 | $0.79 | $0.00 |
| 2024 | 12790 | COROADS - COUNTY ROADS (ROADS, DIV TO CE) | $10.57 | $10.57 | $0.00 | $0.00 | $21.14 | $0.00 |
| 2024 | 12790 | PORTPT - PORT DISTRICT | $5.42 | $5.42 | $0.00 | $0.00 | $10.84 | $0.00 |
| 2024 | 12790 | PUD1 - PUD #1 | $0.86 | $0.86 | $0.00 | $0.00 | $1.72 | $0.00 |
| 2024 | 12790 | LIB1 - LIBRARY DIST #1 | $4.09 | $4.09 | $0.00 | $0.00 | $8.18 | $0.00 |
| 2024 | 12790 | HD2 - HOSP DIST #2 | $0.77 | $0.76 | $0.00 | $0.00 | $1.53 | $0.00 |
| 2024 | 12790 | SD49 - SCHOOL DIST #49 | $13.71 | $13.70 | $0.00 | $0.00 | $27.41 | $0.00 |
| 2024 | 12790 | FD1 - FIRE DISTRICT #1 | $17.36 | $17.36 | $0.00 | $0.00 | $34.72 | $0.00 |
| 2024 | 12790 | EMS1 - FIRE DIST #1 EMS | $6.63 | $6.63 | $0.00 | $0.00 | $13.26 | $0.00 |
| 2024 | 12790 | FPLCA - DNR Landowner Contingency Assmt | $3.00 | $3.00 | $0.00 | $0.00 | $6.00 | $0.00 |
| 2024 | 12790 | JCCD - JC Conservation District | $2.57 | $2.57 | $0.00 | $0.00 | $5.14 | $0.00 |
| 2024 | 12790 | NWA - Noxious Weed Assessment | $2.30 | $2.30 | $0.00 | $0.00 | $4.60 | $0.00 |
| 2024 | 12790 | WAT - Clean Water District | $12.50 | $12.50 | $0.00 | $0.00 | $25.00 | $0.00 |
| 2024 | 12790 | TOTAL: | $124.03 | $123.95 | $0.00 | $0.00 | $247.98 | $0.00 |
|
| 2024 | 12790 | $124.03 | $123.95 | $0.00 | $0.00 | $247.98 | $0.00 |
Statement Details |
| 2023 | 12811 | STATE - STATE LEVY (SCHOOL) | $31.08 | $31.08 | $0.00 | $0.00 | $62.16 | $0.00 |
| 2023 | 12811 | COUNTY - COUNTY LEVIES (CE, DD, VET, MH) | $13.57 | $13.55 | $0.00 | $0.00 | $27.12 | $0.00 |
| 2023 | 12811 | CONSERVE - CONSERVATION FUTURES | $0.41 | $0.40 | $0.00 | $0.00 | $0.81 | $0.00 |
| 2023 | 12811 | COROADS - COUNTY ROADS (ROADS, DIV TO CE) | $10.98 | $10.97 | $0.00 | $0.00 | $21.95 | $0.00 |
| 2023 | 12811 | PORTPT - PORT DISTRICT | $5.72 | $5.71 | $0.00 | $0.00 | $11.43 | $0.00 |
| 2023 | 12811 | PUD1 - PUD #1 | $0.90 | $0.90 | $0.00 | $0.00 | $1.80 | $0.00 |
| 2023 | 12811 | LIB1 - LIBRARY DIST #1 | $4.25 | $4.24 | $0.00 | $0.00 | $8.49 | $0.00 |
| 2023 | 12811 | HD2 - HOSP DIST #2 | $0.79 | $0.79 | $0.00 | $0.00 | $1.58 | $0.00 |
| 2023 | 12811 | SD49 - SCHOOL DIST #49 | $14.53 | $14.53 | $0.00 | $0.00 | $29.06 | $0.00 |
| 2023 | 12811 | FD1 - FIRE DISTRICT #1 | $11.17 | $11.17 | $0.00 | $0.00 | $22.34 | $0.00 |
| 2023 | 12811 | EMS1 - FIRE DIST #1 EMS | $4.75 | $4.75 | $0.00 | $0.00 | $9.50 | $0.00 |
| 2023 | 12811 | FPLCA - DNR Landowner Contingency Assmt | $3.00 | $3.00 | $0.00 | $0.00 | $6.00 | $0.00 |
| 2023 | 12811 | JCCD - JC Conservation District | $2.57 | $2.57 | $0.00 | $0.00 | $5.14 | $0.00 |
| 2023 | 12811 | NWA - Noxious Weed Assessment | $2.30 | $2.30 | $0.00 | $0.00 | $4.60 | $0.00 |
| 2023 | 12811 | WAT - Clean Water District | $12.00 | $12.00 | $0.00 | $0.00 | $24.00 | $0.00 |
| 2023 | 12811 | TOTAL: | $118.02 | $117.96 | $0.00 | $0.00 | $235.98 | $0.00 |
|
| 2023 | 12811 | $118.02 | $117.96 | $0.00 | $0.00 | $235.98 | $0.00 |
Values
| (+) Improvement Homesite Value: | + | $0 | |
| (+) Improvement Non-Homesite Value: | + | $0 | |
| (+) Land Homesite Value: | + | $0 | |
| (+) Land Non-Homesite Value: | + | $27,939 | |
| (+) Curr Use (HS): | + | $0 | $0 |
| (+) Curr Use (NHS): | + | $0 | $0 |
| | | -------------------------- | |
| (=) Market Value: | = | $27,939 | |
| (–) Productivity Loss: | – | $0 | |
| | | -------------------------- | |
| (=) Subtotal: | = | $27,939 | |
| (+) Senior Appraised Value: | + | $0 | |
| (+) Non-Senior Appraised Value: | + | $27,939 | |
| | | -------------------------- | |
| (=) Total Appraised Value: | = | $27,939 | |
| (–) Senior Exemption Loss: | – | $0 | |
| (–) Exemption Loss: | – | $0 | |
| | | -------------------------- | |
| (=) Taxable Value: | = | $27,939 | |
Taxing Jurisdiction
| Owner: | POMONA WOODS LLC | | |
| % Ownership: | 100.0000000000% | | |
| Total Value: | $27,939 | | |
| Tax Area: | 0211 - 1-49F1E1H2L1 |
| CE | COUNTY CURRENT EXPENSE | 0.9034619479 | $27,939 | $27,939 | $25.24 | | |
| CNTYDD | DEVELOPMENTAL DISABILITIES | 0.0052121823 | $27,939 | $27,939 | $0.15 | | |
| CNTYVET | VETERANS RELIEF | 0.0052777810 | $27,939 | $27,939 | $0.15 | | |
| MENTAL | MENTAL HEALTH | 0.0052121823 | $27,939 | $27,939 | $0.15 | | |
| ROADS | COUNTY ROADS | 0.7415066410 | $27,939 | $27,939 | $20.72 | | |
| ROADSCU | COUNTY ROADS TO CUR EXP | 0.0000000000 | $27,939 | $27,939 | $0.00 | | |
| HOSP2CASH | HOSP DIST #2 GENERAL | 0.0536075306 | $27,939 | $27,939 | $1.50 | | |
| SCH49CP | SCHOOL DIST #49 CAP PROJ | 0.6279093905 | $27,939 | $27,939 | $17.54 | | |
| SCH49MO | SCHOOL DIST #49 EP & O | 0.6376483602 | $27,939 | $27,939 | $17.82 | | |
| CONSERVE | CONSERVATION FUTURES | 0.0275621078 | $27,939 | $27,939 | $0.77 | | |
| EMS1 | FIRE DIST #1 EMS | 0.4679948282 | $27,939 | $27,939 | $13.08 | | |
| FD1 | FIRE DIST #1 GENERAL | 1.2171942929 | $27,939 | $27,939 | $34.01 | | |
| LIB1 | LIBRARY DIST #1 GENERAL | 0.2868827388 | $27,939 | $27,939 | $8.02 | | |
| PORTPT | PORT OF PT GENERAL | 0.1134941229 | $27,939 | $27,939 | $3.17 | | |
| PORTPTIDD | PORT OF PT IDD 2019 | 0.2577346692 | $27,939 | $27,939 | $7.20 | | |
| PUD1 | PUD #1 GENERAL | 0.0597888892 | $27,939 | $27,939 | $1.67 | | |
| STATE | STATE SCHOOL PART 1 | 1.4940692947 | $27,939 | $27,939 | $41.74 | | |
| STATE2 | STATE SCHOOL PART 2 | 0.8050170049 | $27,939 | $27,939 | $22.49 | | |
| | Total Tax Rate: | 7.7095739644 | | | | | |
| | | | | Taxes w/Current Exemptions: | $215.42 | | |
| | | | | Taxes w/o Exemptions: | $215.42 | | |
Improvement / Building
Sketch
| No sketches available for this property. |
Property Image
Land
| 1 | 4650-1385S | | 1.0000 | 43560.00 | 0.00 | 0.00 | 1.00 | $26,250 | $0 |
| 2 | 1575A | | 0.3300 | 14374.80 | 0.00 | 0.00 | 0.00 | $1,689 | $0 |
Roll Value History
| 2026 | N/A | N/A | N/A | N/A | N/A |
| 2025 | $0 | $27,939 | $0 | $27,939 | $27,939 |
| 2024 | $0 | $27,939 | $0 | $27,939 | $27,939 |
| 2023 | $0 | $26,527 | $0 | $26,527 | $26,527 |
| 2022 | $0 | $26,403 | $0 | $26,403 | $26,403 |
Deed and Sales History
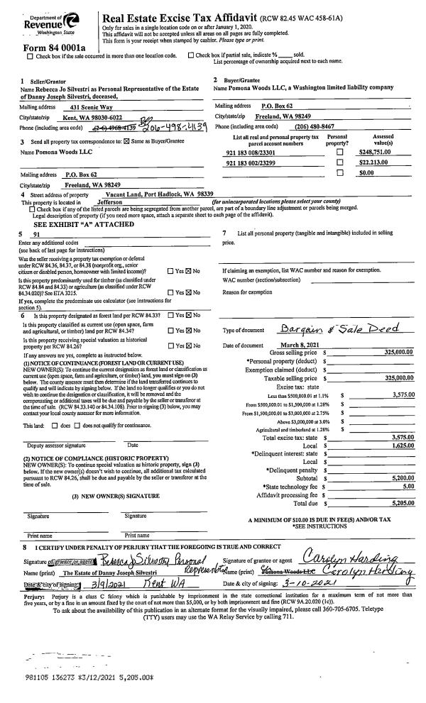
| 1 | 03/08/2021 | BSD | Bargain and Sale Deed | DAN J SILVESTRI | POMONA WOODS LLC | | | $325,000.00 | 136273 | |
|   | |
Payout Agreement
| No payout information available.. |