Property
Account |
| Property ID: | 23318 | Abbreviated Legal Description: | EAGLE RIDGE LARGE LOT SUB LOT 5 SUBJ TO EASE |
| Parcel # / Geo ID: | 921185005 | Agent Code: | |
| Type: | Real | | |
| Tax Area: | 0211 - 1-49F1E1H2L1 | Land Use Code | 11 |
| Open Space: | N | DFL | N |
| Historic Property: | N | Remodel Property: | N |
| Multi-Family Redevelopment: | N | | |
| Township: | 29N | Section: | 18 |
| Range: | 1E |
Location |
| Address: | 315 EAGLE RIDGE DR PORT HADLOCK, WA 98339 | Mapsco: | 250/044 |
| Neighborhood: | S18 & S19 T29N R1E; SKYWATER LLS; OAK/HOG/FIN/DON/GLAV S.P.S | Map ID: | |
| Neighborhood CD: | 4650 |
Owner |
| Name: | TIMOTHY F CALLISTER | Owner ID: | 64032 |
| Mailing Address: | 315 EAGLE RIDGE DRIVE PORT HADLOCK, WA 98339 | % Ownership: | 100.0000000000% |
| | | Exemptions: | |
Pay Tax Due
Select the appropriate checkbox next to the year to be paid. Multiple years may be selected.
*Convenience Fee not included
Taxes and Assessment Details
Property Tax Information as of
03/10/2026
Click on "Statement Details" to expand or collapse a tax statement.
* Please enter a valid date ** Please enter a valid date *
Statement Details |
| 2026 | 12754 | STATE - STATE LEVY (SCHOOL) | $711.08 | $711.07 | $0.00 | $0.00 | $0.00 | $1422.15 |
| 2026 | 12754 | COUNTY - COUNTY LEVIES (CE, DD, VET, MH) | $284.28 | $284.28 | $0.00 | $0.00 | $0.00 | $568.56 |
| 2026 | 12754 | CONSERVE - CONSERVATION FUTURES | $8.53 | $8.52 | $0.00 | $0.00 | $0.00 | $17.05 |
| 2026 | 12754 | COROADS - COUNTY ROADS (ROADS, DIV TO CE) | $229.34 | $229.34 | $0.00 | $0.00 | $0.00 | $458.68 |
| 2026 | 12754 | PORTPT - PORT DISTRICT | $114.82 | $114.81 | $0.00 | $0.00 | $0.00 | $229.63 |
| 2026 | 12754 | PUD1 - PUD #1 | $18.49 | $18.49 | $0.00 | $0.00 | $0.00 | $36.98 |
| 2026 | 12754 | LIB1 - LIBRARY DIST #1 | $88.73 | $88.73 | $0.00 | $0.00 | $0.00 | $177.46 |
| 2026 | 12754 | HD2 - HOSP DIST #2 | $16.58 | $16.58 | $0.00 | $0.00 | $0.00 | $33.16 |
| 2026 | 12754 | SD49 - SCHOOL DIST #49 | $391.43 | $391.41 | $0.00 | $0.00 | $0.00 | $782.84 |
| 2026 | 12754 | FD1 - FIRE DISTRICT #1 | $376.46 | $376.46 | $0.00 | $0.00 | $0.00 | $752.92 |
| 2026 | 12754 | EMS1 - FIRE DIST #1 EMS | $144.75 | $144.74 | $0.00 | $0.00 | $0.00 | $289.49 |
| 2026 | 12754 | FP - DNR Forest Fire Protection Assmt | $8.50 | $8.50 | $0.00 | $0.00 | $0.00 | $17.00 |
| 2026 | 12754 | FPLCA - DNR Landowner Contingency Assmt | $3.00 | $3.00 | $0.00 | $0.00 | $0.00 | $6.00 |
| 2026 | 12754 | JCCD - JC Conservation District | $2.75 | $2.75 | $0.00 | $0.00 | $0.00 | $5.50 |
| 2026 | 12754 | NWA - Noxious Weed Assessment | $3.88 | $3.87 | $0.00 | $0.00 | $0.00 | $7.75 |
| 2026 | 12754 | OSS - On Site Septic | $23.10 | $23.10 | $0.00 | $0.00 | $0.00 | $46.20 |
| 2026 | 12754 | WAT - Clean Water District | $13.00 | $13.00 | $0.00 | $0.00 | $0.00 | $26.00 |
| 2026 | 12754 | FP ADMIN - FP ADMIN | $0.50 | $0.00 | $0.00 | $0.00 | $0.00 | $0.50 |
| 2026 | 12754 | TOTAL: | $2439.22 | $2438.65 | $0.00 | $0.00 | $0.00 | $4877.87 |
|
| 2026 | 12754 | $2439.22 | $2438.65 | $0.00 | $0.00 | $0.00 | $4877.87 |
Statement Details |
| 2025 | 12780 | STATE - STATE LEVY (SCHOOL) | $741.68 | $741.68 | $0.00 | $0.00 | $1483.36 | $0.00 |
| 2025 | 12780 | COUNTY - COUNTY LEVIES (CE, DD, VET, MH) | $291.66 | $291.66 | $0.00 | $0.00 | $583.32 | $0.00 |
| 2025 | 12780 | CONSERVE - CONSERVATION FUTURES | $8.75 | $8.74 | $0.00 | $0.00 | $17.49 | $0.00 |
| 2025 | 12780 | COROADS - COUNTY ROADS (ROADS, DIV TO CE) | $233.67 | $233.66 | $0.00 | $0.00 | $467.33 | $0.00 |
| 2025 | 12780 | PORTPT - PORT DISTRICT | $119.02 | $119.01 | $0.00 | $0.00 | $238.03 | $0.00 |
| 2025 | 12780 | PUD1 - PUD #1 | $19.09 | $19.08 | $0.00 | $0.00 | $38.17 | $0.00 |
| 2025 | 12780 | LIB1 - LIBRARY DIST #1 | $90.41 | $90.40 | $0.00 | $0.00 | $180.81 | $0.00 |
| 2025 | 12780 | HD2 - HOSP DIST #2 | $17.02 | $17.01 | $0.00 | $0.00 | $34.03 | $0.00 |
| 2025 | 12780 | SD49 - SCHOOL DIST #49 | $397.50 | $397.49 | $0.00 | $0.00 | $794.99 | $0.00 |
| 2025 | 12780 | FD1 - FIRE DISTRICT #1 | $384.88 | $384.87 | $0.00 | $0.00 | $769.75 | $0.00 |
| 2025 | 12780 | EMS1 - FIRE DIST #1 EMS | $148.04 | $148.03 | $0.00 | $0.00 | $296.07 | $0.00 |
| 2025 | 12780 | FP - DNR Forest Fire Protection Assmt | $8.50 | $8.50 | $0.00 | $0.00 | $17.00 | $0.00 |
| 2025 | 12780 | FPLCA - DNR Landowner Contingency Assmt | $3.00 | $3.00 | $0.00 | $0.00 | $6.00 | $0.00 |
| 2025 | 12780 | JCCD - JC Conservation District | $2.75 | $2.75 | $0.00 | $0.00 | $5.50 | $0.00 |
| 2025 | 12780 | NWA - Noxious Weed Assessment | $2.75 | $2.75 | $0.00 | $0.00 | $5.50 | $0.00 |
| 2025 | 12780 | OSS - On Site Septic | $21.50 | $21.50 | $0.00 | $0.00 | $43.00 | $0.00 |
| 2025 | 12780 | WAT - Clean Water District | $13.00 | $13.00 | $0.00 | $0.00 | $26.00 | $0.00 |
| 2025 | 12780 | FP ADMIN - FP ADMIN | $0.50 | $0.00 | $0.00 | $0.00 | $0.50 | $0.00 |
| 2025 | 12780 | TOTAL: | $2503.72 | $2503.13 | $0.00 | $0.00 | $5006.85 | $0.00 |
|
| 2025 | 12780 | $2503.72 | $2503.13 | $0.00 | $0.00 | $5006.85 | $0.00 |
Statement Details |
| 2024 | 12809 | STATE - STATE LEVY (SCHOOL) | $676.63 | $676.61 | $0.00 | $0.00 | $1353.24 | $0.00 |
| 2024 | 12809 | COUNTY - COUNTY LEVIES (CE, DD, VET, MH) | $289.55 | $289.52 | $0.00 | $0.00 | $579.07 | $0.00 |
| 2024 | 12809 | CONSERVE - CONSERVATION FUTURES | $8.68 | $8.68 | $0.00 | $0.00 | $17.36 | $0.00 |
| 2024 | 12809 | COROADS - COUNTY ROADS (ROADS, DIV TO CE) | $232.98 | $232.98 | $0.00 | $0.00 | $465.96 | $0.00 |
| 2024 | 12809 | PORTPT - PORT DISTRICT | $119.59 | $119.59 | $0.00 | $0.00 | $239.18 | $0.00 |
| 2024 | 12809 | PUD1 - PUD #1 | $19.02 | $19.02 | $0.00 | $0.00 | $38.04 | $0.00 |
| 2024 | 12809 | LIB1 - LIBRARY DIST #1 | $90.14 | $90.13 | $0.00 | $0.00 | $180.27 | $0.00 |
| 2024 | 12809 | HD2 - HOSP DIST #2 | $16.90 | $16.89 | $0.00 | $0.00 | $33.79 | $0.00 |
| 2024 | 12809 | SD49 - SCHOOL DIST #49 | $302.15 | $302.14 | $0.00 | $0.00 | $604.29 | $0.00 |
| 2024 | 12809 | FD1 - FIRE DISTRICT #1 | $382.83 | $382.83 | $0.00 | $0.00 | $765.66 | $0.00 |
| 2024 | 12809 | EMS1 - FIRE DIST #1 EMS | $146.23 | $146.23 | $0.00 | $0.00 | $292.46 | $0.00 |
| 2024 | 12809 | FP - DNR Forest Fire Protection Assmt | $8.50 | $8.50 | $0.00 | $0.00 | $17.00 | $0.00 |
| 2024 | 12809 | FPLCA - DNR Landowner Contingency Assmt | $3.00 | $3.00 | $0.00 | $0.00 | $6.00 | $0.00 |
| 2024 | 12809 | JCCD - JC Conservation District | $2.75 | $2.75 | $0.00 | $0.00 | $5.50 | $0.00 |
| 2024 | 12809 | NWA - Noxious Weed Assessment | $2.75 | $2.75 | $0.00 | $0.00 | $5.50 | $0.00 |
| 2024 | 12809 | OSS - On Site Septic | $21.00 | $21.00 | $0.00 | $0.00 | $42.00 | $0.00 |
| 2024 | 12809 | WAT - Clean Water District | $12.50 | $12.50 | $0.00 | $0.00 | $25.00 | $0.00 |
| 2024 | 12809 | FP ADMIN - FP ADMIN | $0.50 | $0.00 | $0.00 | $0.00 | $0.50 | $0.00 |
| 2024 | 12809 | TOTAL: | $2335.70 | $2335.12 | $0.00 | $0.00 | $4670.82 | $0.00 |
|
| 2024 | 12809 | $2335.70 | $2335.12 | $0.00 | $0.00 | $4670.82 | $0.00 |
Statement Details |
| 2023 | 12830 | STATE - STATE LEVY (SCHOOL) | $635.12 | $635.10 | $0.00 | $0.00 | $1270.22 | $0.00 |
| 2023 | 12830 | COUNTY - COUNTY LEVIES (CE, DD, VET, MH) | $277.16 | $277.13 | $0.00 | $0.00 | $554.29 | $0.00 |
| 2023 | 12830 | CONSERVE - CONSERVATION FUTURES | $8.31 | $8.31 | $0.00 | $0.00 | $16.62 | $0.00 |
| 2023 | 12830 | COROADS - COUNTY ROADS (ROADS, DIV TO CE) | $224.23 | $224.23 | $0.00 | $0.00 | $448.46 | $0.00 |
| 2023 | 12830 | PORTPT - PORT DISTRICT | $116.75 | $116.74 | $0.00 | $0.00 | $233.49 | $0.00 |
| 2023 | 12830 | PUD1 - PUD #1 | $18.37 | $18.37 | $0.00 | $0.00 | $36.74 | $0.00 |
| 2023 | 12830 | LIB1 - LIBRARY DIST #1 | $86.75 | $86.75 | $0.00 | $0.00 | $173.50 | $0.00 |
| 2023 | 12830 | HD2 - HOSP DIST #2 | $16.18 | $16.16 | $0.00 | $0.00 | $32.34 | $0.00 |
| 2023 | 12830 | SD49 - SCHOOL DIST #49 | $296.89 | $296.87 | $0.00 | $0.00 | $593.76 | $0.00 |
| 2023 | 12830 | FD1 - FIRE DISTRICT #1 | $228.31 | $228.31 | $0.00 | $0.00 | $456.62 | $0.00 |
| 2023 | 12830 | EMS1 - FIRE DIST #1 EMS | $97.12 | $97.12 | $0.00 | $0.00 | $194.24 | $0.00 |
| 2023 | 12830 | FP - DNR Forest Fire Protection Assmt | $8.50 | $8.50 | $0.00 | $0.00 | $17.00 | $0.00 |
| 2023 | 12830 | FPLCA - DNR Landowner Contingency Assmt | $3.00 | $3.00 | $0.00 | $0.00 | $6.00 | $0.00 |
| 2023 | 12830 | JCCD - JC Conservation District | $2.75 | $2.75 | $0.00 | $0.00 | $5.50 | $0.00 |
| 2023 | 12830 | NWA - Noxious Weed Assessment | $2.75 | $2.75 | $0.00 | $0.00 | $5.50 | $0.00 |
| 2023 | 12830 | OSS - On Site Septic | $20.50 | $20.50 | $0.00 | $0.00 | $41.00 | $0.00 |
| 2023 | 12830 | WAT - Clean Water District | $12.00 | $12.00 | $0.00 | $0.00 | $24.00 | $0.00 |
| 2023 | 12830 | FP ADMIN - FP ADMIN | $0.50 | $0.00 | $0.00 | $0.00 | $0.50 | $0.00 |
| 2023 | 12830 | TOTAL: | $2055.19 | $2054.59 | $0.00 | $0.00 | $4109.78 | $0.00 |
|
| 2023 | 12830 | $2055.19 | $2054.59 | $0.00 | $0.00 | $4109.78 | $0.00 |
Values
| (+) Improvement Homesite Value: | + | $0 | |
| (+) Improvement Non-Homesite Value: | + | $366,573 | |
| (+) Land Homesite Value: | + | $0 | |
| (+) Land Non-Homesite Value: | + | $252,000 | |
| (+) Curr Use (HS): | + | $0 | $0 |
| (+) Curr Use (NHS): | + | $0 | $0 |
| | | -------------------------- | |
| (=) Market Value: | = | $618,573 | |
| (–) Productivity Loss: | – | $0 | |
| | | -------------------------- | |
| (=) Subtotal: | = | $618,573 | |
| (+) Senior Appraised Value: | + | $0 | |
| (+) Non-Senior Appraised Value: | + | $618,573 | |
| | | -------------------------- | |
| (=) Total Appraised Value: | = | $618,573 | |
| (–) Senior Exemption Loss: | – | $0 | |
| (–) Exemption Loss: | – | $0 | |
| | | -------------------------- | |
| (=) Taxable Value: | = | $618,573 | |
Taxing Jurisdiction
| Owner: | TIMOTHY F CALLISTER | | |
| % Ownership: | 100.0000000000% | | |
| Total Value: | $618,573 | | |
| Tax Area: | 0211 - 1-49F1E1H2L1 |
| CE | COUNTY CURRENT EXPENSE | 0.9034619479 | $618,573 | $618,573 | $558.86 | | |
| CNTYDD | DEVELOPMENTAL DISABILITIES | 0.0052121823 | $618,573 | $618,573 | $3.22 | | |
| CNTYVET | VETERANS RELIEF | 0.0052777810 | $618,573 | $618,573 | $3.26 | | |
| MENTAL | MENTAL HEALTH | 0.0052121823 | $618,573 | $618,573 | $3.22 | | |
| ROADS | COUNTY ROADS | 0.7415066410 | $618,573 | $618,573 | $458.68 | | |
| ROADSCU | COUNTY ROADS TO CUR EXP | 0.0000000000 | $618,573 | $618,573 | $0.00 | | |
| HOSP2CASH | HOSP DIST #2 GENERAL | 0.0536075306 | $618,573 | $618,573 | $33.16 | | |
| SCH49CP | SCHOOL DIST #49 CAP PROJ | 0.6279093905 | $618,573 | $618,573 | $388.41 | | |
| SCH49MO | SCHOOL DIST #49 EP & O | 0.6376483602 | $618,573 | $618,573 | $394.43 | | |
| CONSERVE | CONSERVATION FUTURES | 0.0275621078 | $618,573 | $618,573 | $17.05 | | |
| EMS1 | FIRE DIST #1 EMS | 0.4679948282 | $618,573 | $618,573 | $289.49 | | |
| FD1 | FIRE DIST #1 GENERAL | 1.2171942929 | $618,573 | $618,573 | $752.92 | | |
| LIB1 | LIBRARY DIST #1 GENERAL | 0.2868827388 | $618,573 | $618,573 | $177.46 | | |
| PORTPT | PORT OF PT GENERAL | 0.1134941229 | $618,573 | $618,573 | $70.20 | | |
| PORTPTIDD | PORT OF PT IDD 2019 | 0.2577346692 | $618,573 | $618,573 | $159.43 | | |
| PUD1 | PUD #1 GENERAL | 0.0597888892 | $618,573 | $618,573 | $36.98 | | |
| STATE | STATE SCHOOL PART 1 | 1.4940692947 | $618,573 | $618,573 | $924.19 | | |
| STATE2 | STATE SCHOOL PART 2 | 0.8050170049 | $618,573 | $618,573 | $497.96 | | |
| | Total Tax Rate: | 7.7095739644 | | | | | |
| | | | | Taxes w/Current Exemptions: | $4,768.92 | | |
| | | | | Taxes w/o Exemptions: | $4,768.92 | | |
Improvement / Building
| Improvement #1: | Residential Bldg | State Code: | 11 | 1452.0 sqft | Value: | $366,573 |
| Bathrooms (#): | 2 (FULL) | Bedrooms (#): | 2 | | Exterior Wall: | SI/ST | Floor Construction: | FRAME | | Foundation: | CONPR | Heating/Cooling: | ELBB | | Inside Verify: | YES-FIX | Roof Cover: | COMP |
|
| | Type | Description | Class CD | Sub Class CD | Year Built | Area |
| | MA | Main Area | 4- | 1S | 1999 | 1452.0 |
| | HWPOR | House Wood Porch | 3 | 1S | 1999 | 224.0 |
| | GATT | House Attached Garage | 3 | 1S | 1999 | 780.0 |
| | SHED | Shed (Table Not Dep) | 3 | 1S | 1999 | 0.0 |
| | BSMTU | House basement unfinished | 3 | 1S | 1999 | 1400.0 |
| | CARPTN | Carport W/O Floor | 2 | 1S | 1999 | 416.0 |
| | HDECK | House Deck | 3 | 1S | 1999 | 530.0 |
Sketch
Property Image
Land
| 1 | 4650-1145S | | 1.0000 | 43560.00 | 0.00 | 0.00 | 1.00 | $252,000 | $0 |
Roll Value History
| 2026 | N/A | N/A | N/A | N/A | N/A |
| 2025 | $366,573 | $252,000 | $0 | $618,573 | $618,573 |
| 2024 | $366,573 | $252,000 | $0 | $618,573 | $618,573 |
| 2023 | $349,910 | $235,000 | $0 | $584,910 | $584,910 |
| 2022 | $309,564 | $230,000 | $0 | $539,564 | $539,564 |
Deed and Sales History
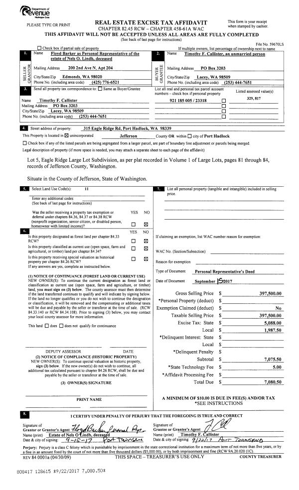
| 1 | 09/15/2017 | PRD | Personal Representatives Deed | NELS O LINDH | TIMOTHY F CALLISTER | | | $397,500.00 | 128615 | |
| 2 | 03/27/1998 | SWD | Statutory Warranty Deed | TARBOO TRADERS LLC | LINDH, NELS OKERBERG | 0 | 0 | $105,000.00 | 84138 | 0 |
Payout Agreement
| No payout information available.. |