Property
Account |
| Property ID: | 23444 | Abbreviated Legal Description: | S19 T29 R1E TAX 53A |
| Parcel # / Geo ID: | 921194044 | Agent Code: | |
| Type: | Real | | |
| Tax Area: | 0211 - 1-49F1E1H2L1 | Land Use Code | 91 |
| Open Space: | N | DFL | N |
| Historic Property: | N | Remodel Property: | N |
| Multi-Family Redevelopment: | N | | |
| Township: | 29N | Section: | 19 |
| Range: | 1E |
Location |
| Address: | 141 SENTINEL FIRS RD PORT HADLOCK, WA 98339 | Mapsco: | 176/008 |
| Neighborhood: | SENTINAL FIRS UNRECORDED PLAT (TAX NO'S IN S19 T29N R1E) | Map ID: | |
| Neighborhood CD: | 4660 |
Owner |
| Name: | NEIL D AHO & REBEDAH G BOLINGER FESSENDEN | Owner ID: | 106704 |
| Mailing Address: | 141 SENTINEL FIRS RD PORT HADLOCK, WA 98339-9764 | % Ownership: | 100.0000000000% |
| | | Exemptions: | |
Pay Tax Due
Select the appropriate checkbox next to the year to be paid. Multiple years may be selected.
*Convenience Fee not included
Taxes and Assessment Details
Property Tax Information as of
03/10/2026
Click on "Statement Details" to expand or collapse a tax statement.
* Please enter a valid date ** Please enter a valid date *
Statement Details |
| 2026 | 12879 | STATE - STATE LEVY (SCHOOL) | $18.11 | $18.10 | $0.00 | $0.00 | $0.00 | $36.21 |
| 2026 | 12879 | COUNTY - COUNTY LEVIES (CE, DD, VET, MH) | $7.24 | $7.23 | $0.00 | $0.00 | $0.00 | $14.47 |
| 2026 | 12879 | CONSERVE - CONSERVATION FUTURES | $0.22 | $0.21 | $0.00 | $0.00 | $0.00 | $0.43 |
| 2026 | 12879 | COROADS - COUNTY ROADS (ROADS, DIV TO CE) | $5.84 | $5.84 | $0.00 | $0.00 | $0.00 | $11.68 |
| 2026 | 12879 | PORTPT - PORT DISTRICT | $2.93 | $2.92 | $0.00 | $0.00 | $0.00 | $5.85 |
| 2026 | 12879 | PUD1 - PUD #1 | $0.47 | $0.47 | $0.00 | $0.00 | $0.00 | $0.94 |
| 2026 | 12879 | LIB1 - LIBRARY DIST #1 | $2.26 | $2.26 | $0.00 | $0.00 | $0.00 | $4.52 |
| 2026 | 12879 | HD2 - HOSP DIST #2 | $0.42 | $0.42 | $0.00 | $0.00 | $0.00 | $0.84 |
| 2026 | 12879 | SD49 - SCHOOL DIST #49 | $9.97 | $9.96 | $0.00 | $0.00 | $0.00 | $19.93 |
| 2026 | 12879 | FD1 - FIRE DISTRICT #1 | $9.59 | $9.58 | $0.00 | $0.00 | $0.00 | $19.17 |
| 2026 | 12879 | EMS1 - FIRE DIST #1 EMS | $3.69 | $3.68 | $0.00 | $0.00 | $0.00 | $7.37 |
| 2026 | 12879 | FPLCA - DNR Landowner Contingency Assmt | $3.00 | $3.00 | $0.00 | $0.00 | $0.00 | $6.00 |
| 2026 | 12879 | JCCD - JC Conservation District | $2.53 | $2.53 | $0.00 | $0.00 | $0.00 | $5.06 |
| 2026 | 12879 | NWA - Noxious Weed Assessment | $2.98 | $2.97 | $0.00 | $0.00 | $0.00 | $5.95 |
| 2026 | 12879 | WAT - Clean Water District | $13.00 | $13.00 | $0.00 | $0.00 | $0.00 | $26.00 |
| 2026 | 12879 | TOTAL: | $82.25 | $82.17 | $0.00 | $0.00 | $0.00 | $164.42 |
|
| 2026 | 12879 | $82.25 | $82.17 | $0.00 | $0.00 | $0.00 | $164.42 |
Statement Details |
| 2025 | 12905 | STATE - STATE LEVY (SCHOOL) | $18.89 | $18.88 | $0.00 | $0.00 | $37.77 | $0.00 |
| 2025 | 12905 | COUNTY - COUNTY LEVIES (CE, DD, VET, MH) | $7.43 | $7.42 | $0.00 | $0.00 | $14.85 | $0.00 |
| 2025 | 12905 | CONSERVE - CONSERVATION FUTURES | $0.23 | $0.22 | $0.00 | $0.00 | $0.45 | $0.00 |
| 2025 | 12905 | COROADS - COUNTY ROADS (ROADS, DIV TO CE) | $5.95 | $5.95 | $0.00 | $0.00 | $11.90 | $0.00 |
| 2025 | 12905 | PORTPT - PORT DISTRICT | $3.04 | $3.02 | $0.00 | $0.00 | $6.06 | $0.00 |
| 2025 | 12905 | PUD1 - PUD #1 | $0.49 | $0.48 | $0.00 | $0.00 | $0.97 | $0.00 |
| 2025 | 12905 | LIB1 - LIBRARY DIST #1 | $2.30 | $2.30 | $0.00 | $0.00 | $4.60 | $0.00 |
| 2025 | 12905 | HD2 - HOSP DIST #2 | $0.44 | $0.43 | $0.00 | $0.00 | $0.87 | $0.00 |
| 2025 | 12905 | SD49 - SCHOOL DIST #49 | $10.13 | $10.11 | $0.00 | $0.00 | $20.24 | $0.00 |
| 2025 | 12905 | FD1 - FIRE DISTRICT #1 | $9.80 | $9.80 | $0.00 | $0.00 | $19.60 | $0.00 |
| 2025 | 12905 | EMS1 - FIRE DIST #1 EMS | $3.77 | $3.77 | $0.00 | $0.00 | $7.54 | $0.00 |
| 2025 | 12905 | FPLCA - DNR Landowner Contingency Assmt | $3.00 | $3.00 | $0.00 | $0.00 | $6.00 | $0.00 |
| 2025 | 12905 | JCCD - JC Conservation District | $2.53 | $2.53 | $0.00 | $0.00 | $5.06 | $0.00 |
| 2025 | 12905 | NWA - Noxious Weed Assessment | $2.15 | $2.15 | $0.00 | $0.00 | $4.30 | $0.00 |
| 2025 | 12905 | WAT - Clean Water District | $13.00 | $13.00 | $0.00 | $0.00 | $26.00 | $0.00 |
| 2025 | 12905 | TOTAL: | $83.15 | $83.06 | $0.00 | $0.00 | $166.21 | $0.00 |
|
| 2025 | 12905 | $83.15 | $83.06 | $0.00 | $0.00 | $166.21 | $0.00 |
Statement Details |
| 2024 | 12934 | STATE - STATE LEVY (SCHOOL) | $17.36 | $17.35 | $0.00 | $0.00 | $34.71 | $0.00 |
| 2024 | 12934 | COUNTY - COUNTY LEVIES (CE, DD, VET, MH) | $7.42 | $7.42 | $0.00 | $0.00 | $14.84 | $0.00 |
| 2024 | 12934 | CONSERVE - CONSERVATION FUTURES | $0.23 | $0.22 | $0.00 | $0.00 | $0.45 | $0.00 |
| 2024 | 12934 | COROADS - COUNTY ROADS (ROADS, DIV TO CE) | $5.98 | $5.97 | $0.00 | $0.00 | $11.95 | $0.00 |
| 2024 | 12934 | PORTPT - PORT DISTRICT | $3.07 | $3.06 | $0.00 | $0.00 | $6.13 | $0.00 |
| 2024 | 12934 | PUD1 - PUD #1 | $0.49 | $0.49 | $0.00 | $0.00 | $0.98 | $0.00 |
| 2024 | 12934 | LIB1 - LIBRARY DIST #1 | $2.31 | $2.31 | $0.00 | $0.00 | $4.62 | $0.00 |
| 2024 | 12934 | HD2 - HOSP DIST #2 | $0.44 | $0.43 | $0.00 | $0.00 | $0.87 | $0.00 |
| 2024 | 12934 | SD49 - SCHOOL DIST #49 | $7.75 | $7.74 | $0.00 | $0.00 | $15.49 | $0.00 |
| 2024 | 12934 | FD1 - FIRE DISTRICT #1 | $9.82 | $9.82 | $0.00 | $0.00 | $19.64 | $0.00 |
| 2024 | 12934 | EMS1 - FIRE DIST #1 EMS | $3.75 | $3.75 | $0.00 | $0.00 | $7.50 | $0.00 |
| 2024 | 12934 | FPLCA - DNR Landowner Contingency Assmt | $3.00 | $3.00 | $0.00 | $0.00 | $6.00 | $0.00 |
| 2024 | 12934 | JCCD - JC Conservation District | $2.53 | $2.53 | $0.00 | $0.00 | $5.06 | $0.00 |
| 2024 | 12934 | NWA - Noxious Weed Assessment | $2.15 | $2.15 | $0.00 | $0.00 | $4.30 | $0.00 |
| 2024 | 12934 | WAT - Clean Water District | $12.50 | $12.50 | $0.00 | $0.00 | $25.00 | $0.00 |
| 2024 | 12934 | TOTAL: | $78.80 | $78.74 | $0.00 | $0.00 | $157.54 | $0.00 |
|
| 2024 | 12934 | $78.80 | $78.74 | $0.00 | $0.00 | $157.54 | $0.00 |
Statement Details |
| 2023 | 12955 | STATE - STATE LEVY (SCHOOL) | $17.67 | $17.65 | $0.00 | $0.00 | $35.32 | $0.00 |
| 2023 | 12955 | COUNTY - COUNTY LEVIES (CE, DD, VET, MH) | $7.73 | $7.69 | $0.00 | $0.00 | $15.42 | $0.00 |
| 2023 | 12955 | CONSERVE - CONSERVATION FUTURES | $0.23 | $0.23 | $0.00 | $0.00 | $0.46 | $0.00 |
| 2023 | 12955 | COROADS - COUNTY ROADS (ROADS, DIV TO CE) | $6.24 | $6.23 | $0.00 | $0.00 | $12.47 | $0.00 |
| 2023 | 12955 | PORTPT - PORT DISTRICT | $3.25 | $3.24 | $0.00 | $0.00 | $6.49 | $0.00 |
| 2023 | 12955 | PUD1 - PUD #1 | $0.51 | $0.51 | $0.00 | $0.00 | $1.02 | $0.00 |
| 2023 | 12955 | LIB1 - LIBRARY DIST #1 | $2.41 | $2.41 | $0.00 | $0.00 | $4.82 | $0.00 |
| 2023 | 12955 | HD2 - HOSP DIST #2 | $0.46 | $0.44 | $0.00 | $0.00 | $0.90 | $0.00 |
| 2023 | 12955 | SD49 - SCHOOL DIST #49 | $8.25 | $8.25 | $0.00 | $0.00 | $16.50 | $0.00 |
| 2023 | 12955 | FD1 - FIRE DISTRICT #1 | $6.35 | $6.34 | $0.00 | $0.00 | $12.69 | $0.00 |
| 2023 | 12955 | EMS1 - FIRE DIST #1 EMS | $2.70 | $2.70 | $0.00 | $0.00 | $5.40 | $0.00 |
| 2023 | 12955 | FPLCA - DNR Landowner Contingency Assmt | $3.00 | $3.00 | $0.00 | $0.00 | $6.00 | $0.00 |
| 2023 | 12955 | JCCD - JC Conservation District | $2.53 | $2.53 | $0.00 | $0.00 | $5.06 | $0.00 |
| 2023 | 12955 | NWA - Noxious Weed Assessment | $2.15 | $2.15 | $0.00 | $0.00 | $4.30 | $0.00 |
| 2023 | 12955 | WAT - Clean Water District | $12.00 | $12.00 | $0.00 | $0.00 | $24.00 | $0.00 |
| 2023 | 12955 | TOTAL: | $75.48 | $75.37 | $0.00 | $0.00 | $150.85 | $0.00 |
|
| 2023 | 12955 | $75.48 | $75.37 | $0.00 | $0.00 | $150.85 | $0.00 |
Values
| (+) Improvement Homesite Value: | + | $0 | |
| (+) Improvement Non-Homesite Value: | + | $0 | |
| (+) Land Homesite Value: | + | $0 | |
| (+) Land Non-Homesite Value: | + | $15,750 | |
| (+) Curr Use (HS): | + | $0 | $0 |
| (+) Curr Use (NHS): | + | $0 | $0 |
| | | -------------------------- | |
| (=) Market Value: | = | $15,750 | |
| (–) Productivity Loss: | – | $0 | |
| | | -------------------------- | |
| (=) Subtotal: | = | $15,750 | |
| (+) Senior Appraised Value: | + | $0 | |
| (+) Non-Senior Appraised Value: | + | $15,750 | |
| | | -------------------------- | |
| (=) Total Appraised Value: | = | $15,750 | |
| (–) Senior Exemption Loss: | – | $0 | |
| (–) Exemption Loss: | – | $0 | |
| | | -------------------------- | |
| (=) Taxable Value: | = | $15,750 | |
Taxing Jurisdiction
| Owner: | NEIL D AHO & REBEDAH G BOLINGER FESSENDEN | | |
| % Ownership: | 100.0000000000% | | |
| Total Value: | $15,750 | | |
| Tax Area: | 0211 - 1-49F1E1H2L1 |
| CE | COUNTY CURRENT EXPENSE | 0.9034619479 | $15,750 | $15,750 | $14.23 | | |
| CNTYDD | DEVELOPMENTAL DISABILITIES | 0.0052121823 | $15,750 | $15,750 | $0.08 | | |
| CNTYVET | VETERANS RELIEF | 0.0052777810 | $15,750 | $15,750 | $0.08 | | |
| MENTAL | MENTAL HEALTH | 0.0052121823 | $15,750 | $15,750 | $0.08 | | |
| ROADS | COUNTY ROADS | 0.7415066410 | $15,750 | $15,750 | $11.68 | | |
| ROADSCU | COUNTY ROADS TO CUR EXP | 0.0000000000 | $15,750 | $15,750 | $0.00 | | |
| HOSP2CASH | HOSP DIST #2 GENERAL | 0.0536075306 | $15,750 | $15,750 | $0.84 | | |
| SCH49CP | SCHOOL DIST #49 CAP PROJ | 0.6279093905 | $15,750 | $15,750 | $9.89 | | |
| SCH49MO | SCHOOL DIST #49 EP & O | 0.6376483602 | $15,750 | $15,750 | $10.04 | | |
| CONSERVE | CONSERVATION FUTURES | 0.0275621078 | $15,750 | $15,750 | $0.43 | | |
| EMS1 | FIRE DIST #1 EMS | 0.4679948282 | $15,750 | $15,750 | $7.37 | | |
| FD1 | FIRE DIST #1 GENERAL | 1.2171942929 | $15,750 | $15,750 | $19.17 | | |
| LIB1 | LIBRARY DIST #1 GENERAL | 0.2868827388 | $15,750 | $15,750 | $4.52 | | |
| PORTPT | PORT OF PT GENERAL | 0.1134941229 | $15,750 | $15,750 | $1.79 | | |
| PORTPTIDD | PORT OF PT IDD 2019 | 0.2577346692 | $15,750 | $15,750 | $4.06 | | |
| PUD1 | PUD #1 GENERAL | 0.0597888892 | $15,750 | $15,750 | $0.94 | | |
| STATE | STATE SCHOOL PART 1 | 1.4940692947 | $15,750 | $15,750 | $23.53 | | |
| STATE2 | STATE SCHOOL PART 2 | 0.8050170049 | $15,750 | $15,750 | $12.68 | | |
| | Total Tax Rate: | 7.7095739644 | | | | | |
| | | | | Taxes w/Current Exemptions: | $121.41 | | |
| | | | | Taxes w/o Exemptions: | $121.41 | | |
Improvement / Building
Sketch
| No sketches available for this property. |
Property Image
Land
| 1 | 4660-1277S | | 0.0000 | 0.00 | 0.00 | 0.00 | 1.00 | $15,750 | $0 |
Roll Value History
| 2026 | N/A | N/A | N/A | N/A | N/A |
| 2025 | $0 | $15,750 | $0 | $15,750 | $15,750 |
| 2024 | $0 | $15,750 | $0 | $15,750 | $15,750 |
| 2023 | $0 | $15,000 | $0 | $15,000 | $15,000 |
| 2022 | $0 | $15,000 | $0 | $15,000 | $15,000 |
Deed and Sales History
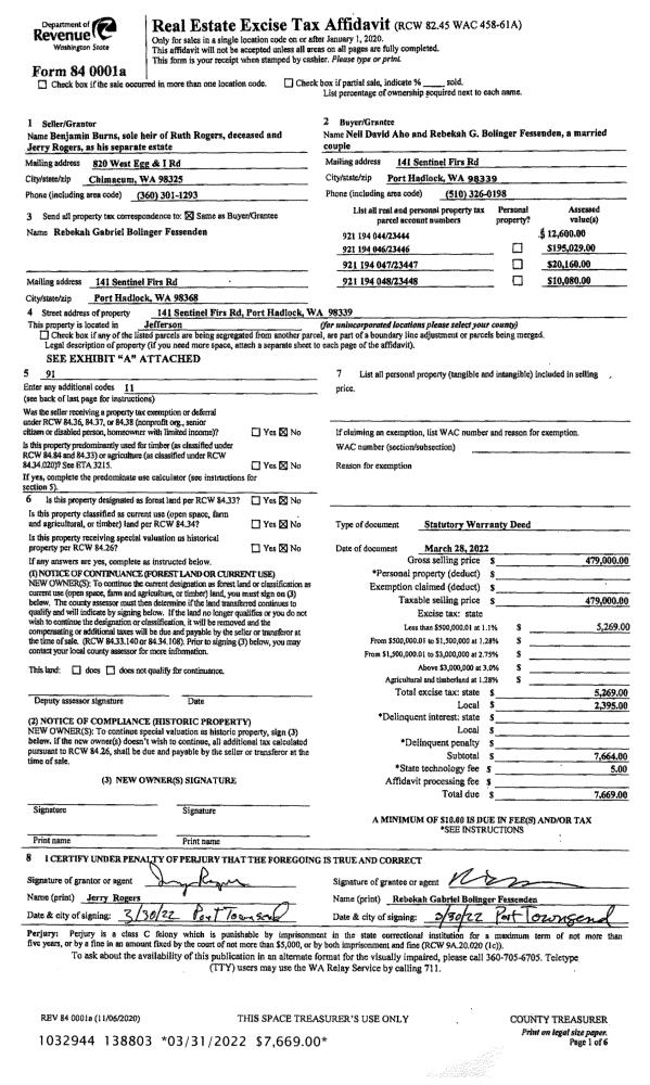
| 1 | 03/28/2022 | SWD | Statutory Warranty Deed | RUTH & JERRY ROGERS | NEIL D AHO & REBEDAH G BOLINGER FESSENDEN | | | $479,000.00 | 138803 | |
|   | |
| 2 | 05/26/2020 | QCD | Quit Claim Deed | RUTH A ROGERS | RUTH & JERRY ROGERS | | | | 134441 | |
| 3 | 01/20/2010 | SWD | Statutory Warranty Deed | QUIMPER COMMUNITY FEDERAL | BURNS, RUTH | 0 | 0 | $0.00 | 113945 | 0 |
| 4 | 01/20/2010 | QCD | Quit Claim Deed | ROGERS, JERRY | BURNS, RUTH | 0 | 0 | $0.00 | 113946 | 0 |
| 5 | 09/22/2009 | WD | Warranty Deed | BISHOP, WHITE & MARSHALL | QUIMPER COMMUNITY FEDERAL CU | 0 | 0 | $0.00 | 113440 | 0 |
| 6 | 11/01/2006 | SWD | Statutory Warranty Deed | GRISWOLD, DVID | CHRISTIANSEN, DANIEL & DEBORAH | 0 | 0 | $0.00 | 107996 | 0 |
| 7 | 07/12/1993 | QCD | Quit Claim Deed | MERGEL, MALVIN E | GRISWOLD, DAVID | 0 | 0 | $200.00 | 71619 | 0 |
|   | |
Payout Agreement
| No payout information available.. |