Property
Account |
| Property ID: | 23447 | Abbreviated Legal Description: | S19 T29 R1E TAX 55 |
| Parcel # / Geo ID: | 921194047 | Agent Code: | |
| Type: | Real | | |
| Tax Area: | 0211 - 1-49F1E1H2L1 | Land Use Code | 91 |
| Open Space: | N | DFL | N |
| Historic Property: | N | Remodel Property: | N |
| Multi-Family Redevelopment: | N | | |
| Township: | 29N | Section: | 19 |
| Range: | 1E |
Location |
| Address: | | Mapsco: | 176/011 |
| Neighborhood: | SENTINAL FIRS UNRECORDED PLAT (TAX NO'S IN S19 T29N R1E) | Map ID: | |
| Neighborhood CD: | 4660 |
Owner |
| Name: | NEIL D AHO & REBEDAH G BOLINGER FESSENDEN | Owner ID: | 106704 |
| Mailing Address: | 141 SENTINEL FIRS RD PORT HADLOCK, WA 98339-9764 | % Ownership: | 100.0000000000% |
| | | Exemptions: | |
Pay Tax Due
Select the appropriate checkbox next to the year to be paid. Multiple years may be selected.
*Convenience Fee not included
Taxes and Assessment Details
Property Tax Information as of
03/10/2026
Click on "Statement Details" to expand or collapse a tax statement.
* Please enter a valid date ** Please enter a valid date *
Statement Details |
| 2026 | 12882 | STATE - STATE LEVY (SCHOOL) | $36.21 | $36.21 | $0.00 | $0.00 | $0.00 | $72.42 |
| 2026 | 12882 | COUNTY - COUNTY LEVIES (CE, DD, VET, MH) | $14.48 | $14.47 | $0.00 | $0.00 | $0.00 | $28.95 |
| 2026 | 12882 | CONSERVE - CONSERVATION FUTURES | $0.44 | $0.43 | $0.00 | $0.00 | $0.00 | $0.87 |
| 2026 | 12882 | COROADS - COUNTY ROADS (ROADS, DIV TO CE) | $11.68 | $11.68 | $0.00 | $0.00 | $0.00 | $23.36 |
| 2026 | 12882 | PORTPT - PORT DISTRICT | $5.85 | $5.85 | $0.00 | $0.00 | $0.00 | $11.70 |
| 2026 | 12882 | PUD1 - PUD #1 | $0.94 | $0.94 | $0.00 | $0.00 | $0.00 | $1.88 |
| 2026 | 12882 | LIB1 - LIBRARY DIST #1 | $4.52 | $4.52 | $0.00 | $0.00 | $0.00 | $9.04 |
| 2026 | 12882 | HD2 - HOSP DIST #2 | $0.85 | $0.84 | $0.00 | $0.00 | $0.00 | $1.69 |
| 2026 | 12882 | SD49 - SCHOOL DIST #49 | $19.94 | $19.93 | $0.00 | $0.00 | $0.00 | $39.87 |
| 2026 | 12882 | FD1 - FIRE DISTRICT #1 | $19.17 | $19.17 | $0.00 | $0.00 | $0.00 | $38.34 |
| 2026 | 12882 | EMS1 - FIRE DIST #1 EMS | $7.37 | $7.37 | $0.00 | $0.00 | $0.00 | $14.74 |
| 2026 | 12882 | FP - DNR Forest Fire Protection Assmt | $8.50 | $8.50 | $0.00 | $0.00 | $0.00 | $17.00 |
| 2026 | 12882 | FPLCA - DNR Landowner Contingency Assmt | $3.00 | $3.00 | $0.00 | $0.00 | $0.00 | $6.00 |
| 2026 | 12882 | JCCD - JC Conservation District | $2.53 | $2.53 | $0.00 | $0.00 | $0.00 | $5.06 |
| 2026 | 12882 | NWA - Noxious Weed Assessment | $2.98 | $2.97 | $0.00 | $0.00 | $0.00 | $5.95 |
| 2026 | 12882 | OSS - On Site Septic | $23.10 | $23.10 | $0.00 | $0.00 | $0.00 | $46.20 |
| 2026 | 12882 | WAT - Clean Water District | $13.00 | $13.00 | $0.00 | $0.00 | $0.00 | $26.00 |
| 2026 | 12882 | FP ADMIN - FP ADMIN | $0.50 | $0.00 | $0.00 | $0.00 | $0.00 | $0.50 |
| 2026 | 12882 | TOTAL: | $175.06 | $174.51 | $0.00 | $0.00 | $0.00 | $349.57 |
|
| 2026 | 12882 | $175.06 | $174.51 | $0.00 | $0.00 | $0.00 | $349.57 |
Statement Details |
| 2025 | 12908 | STATE - STATE LEVY (SCHOOL) | $37.78 | $37.76 | $0.00 | $0.00 | $75.54 | $0.00 |
| 2025 | 12908 | COUNTY - COUNTY LEVIES (CE, DD, VET, MH) | $14.87 | $14.84 | $0.00 | $0.00 | $29.71 | $0.00 |
| 2025 | 12908 | CONSERVE - CONSERVATION FUTURES | $0.45 | $0.44 | $0.00 | $0.00 | $0.89 | $0.00 |
| 2025 | 12908 | COROADS - COUNTY ROADS (ROADS, DIV TO CE) | $11.90 | $11.90 | $0.00 | $0.00 | $23.80 | $0.00 |
| 2025 | 12908 | PORTPT - PORT DISTRICT | $6.07 | $6.05 | $0.00 | $0.00 | $12.12 | $0.00 |
| 2025 | 12908 | PUD1 - PUD #1 | $0.97 | $0.97 | $0.00 | $0.00 | $1.94 | $0.00 |
| 2025 | 12908 | LIB1 - LIBRARY DIST #1 | $4.61 | $4.60 | $0.00 | $0.00 | $9.21 | $0.00 |
| 2025 | 12908 | HD2 - HOSP DIST #2 | $0.87 | $0.86 | $0.00 | $0.00 | $1.73 | $0.00 |
| 2025 | 12908 | SD49 - SCHOOL DIST #49 | $20.24 | $20.24 | $0.00 | $0.00 | $40.48 | $0.00 |
| 2025 | 12908 | FD1 - FIRE DISTRICT #1 | $19.60 | $19.60 | $0.00 | $0.00 | $39.20 | $0.00 |
| 2025 | 12908 | EMS1 - FIRE DIST #1 EMS | $7.54 | $7.54 | $0.00 | $0.00 | $15.08 | $0.00 |
| 2025 | 12908 | FP - DNR Forest Fire Protection Assmt | $8.50 | $8.50 | $0.00 | $0.00 | $17.00 | $0.00 |
| 2025 | 12908 | FPLCA - DNR Landowner Contingency Assmt | $3.00 | $3.00 | $0.00 | $0.00 | $6.00 | $0.00 |
| 2025 | 12908 | JCCD - JC Conservation District | $2.53 | $2.53 | $0.00 | $0.00 | $5.06 | $0.00 |
| 2025 | 12908 | NWA - Noxious Weed Assessment | $2.15 | $2.15 | $0.00 | $0.00 | $4.30 | $0.00 |
| 2025 | 12908 | OSS - On Site Septic | $21.50 | $21.50 | $0.00 | $0.00 | $43.00 | $0.00 |
| 2025 | 12908 | WAT - Clean Water District | $13.00 | $13.00 | $0.00 | $0.00 | $26.00 | $0.00 |
| 2025 | 12908 | FP ADMIN - FP ADMIN | $0.50 | $0.00 | $0.00 | $0.00 | $0.50 | $0.00 |
| 2025 | 12908 | TOTAL: | $176.08 | $175.48 | $0.00 | $0.00 | $351.56 | $0.00 |
|
| 2025 | 12908 | $176.08 | $175.48 | $0.00 | $0.00 | $351.56 | $0.00 |
Statement Details |
| 2024 | 12937 | STATE - STATE LEVY (SCHOOL) | $34.71 | $34.69 | $0.00 | $0.00 | $69.40 | $0.00 |
| 2024 | 12937 | COUNTY - COUNTY LEVIES (CE, DD, VET, MH) | $14.87 | $14.84 | $0.00 | $0.00 | $29.71 | $0.00 |
| 2024 | 12937 | CONSERVE - CONSERVATION FUTURES | $0.45 | $0.44 | $0.00 | $0.00 | $0.89 | $0.00 |
| 2024 | 12937 | COROADS - COUNTY ROADS (ROADS, DIV TO CE) | $11.95 | $11.94 | $0.00 | $0.00 | $23.89 | $0.00 |
| 2024 | 12937 | PORTPT - PORT DISTRICT | $6.14 | $6.13 | $0.00 | $0.00 | $12.27 | $0.00 |
| 2024 | 12937 | PUD1 - PUD #1 | $0.98 | $0.97 | $0.00 | $0.00 | $1.95 | $0.00 |
| 2024 | 12937 | LIB1 - LIBRARY DIST #1 | $4.63 | $4.62 | $0.00 | $0.00 | $9.25 | $0.00 |
| 2024 | 12937 | HD2 - HOSP DIST #2 | $0.87 | $0.86 | $0.00 | $0.00 | $1.73 | $0.00 |
| 2024 | 12937 | SD49 - SCHOOL DIST #49 | $15.51 | $15.49 | $0.00 | $0.00 | $31.00 | $0.00 |
| 2024 | 12937 | FD1 - FIRE DISTRICT #1 | $19.64 | $19.63 | $0.00 | $0.00 | $39.27 | $0.00 |
| 2024 | 12937 | EMS1 - FIRE DIST #1 EMS | $7.50 | $7.50 | $0.00 | $0.00 | $15.00 | $0.00 |
| 2024 | 12937 | FP - DNR Forest Fire Protection Assmt | $8.50 | $8.50 | $0.00 | $0.00 | $17.00 | $0.00 |
| 2024 | 12937 | FPLCA - DNR Landowner Contingency Assmt | $3.00 | $3.00 | $0.00 | $0.00 | $6.00 | $0.00 |
| 2024 | 12937 | JCCD - JC Conservation District | $2.53 | $2.53 | $0.00 | $0.00 | $5.06 | $0.00 |
| 2024 | 12937 | NWA - Noxious Weed Assessment | $2.15 | $2.15 | $0.00 | $0.00 | $4.30 | $0.00 |
| 2024 | 12937 | WAT - Clean Water District | $12.50 | $12.50 | $0.00 | $0.00 | $25.00 | $0.00 |
| 2024 | 12937 | FP ADMIN - FP ADMIN | $0.50 | $0.00 | $0.00 | $0.00 | $0.50 | $0.00 |
| 2024 | 12937 | TOTAL: | $146.43 | $145.79 | $0.00 | $0.00 | $292.22 | $0.00 |
|
| 2024 | 12937 | $146.43 | $145.79 | $0.00 | $0.00 | $292.22 | $0.00 |
Statement Details |
| 2023 | 12958 | STATE - STATE LEVY (SCHOOL) | $35.32 | $35.30 | $0.00 | $0.00 | $70.62 | $0.00 |
| 2023 | 12958 | COUNTY - COUNTY LEVIES (CE, DD, VET, MH) | $15.42 | $15.39 | $0.00 | $0.00 | $30.81 | $0.00 |
| 2023 | 12958 | CONSERVE - CONSERVATION FUTURES | $0.46 | $0.46 | $0.00 | $0.00 | $0.92 | $0.00 |
| 2023 | 12958 | COROADS - COUNTY ROADS (ROADS, DIV TO CE) | $12.47 | $12.46 | $0.00 | $0.00 | $24.93 | $0.00 |
| 2023 | 12958 | PORTPT - PORT DISTRICT | $6.50 | $6.49 | $0.00 | $0.00 | $12.99 | $0.00 |
| 2023 | 12958 | PUD1 - PUD #1 | $1.02 | $1.02 | $0.00 | $0.00 | $2.04 | $0.00 |
| 2023 | 12958 | LIB1 - LIBRARY DIST #1 | $4.83 | $4.82 | $0.00 | $0.00 | $9.65 | $0.00 |
| 2023 | 12958 | HD2 - HOSP DIST #2 | $0.90 | $0.90 | $0.00 | $0.00 | $1.80 | $0.00 |
| 2023 | 12958 | SD49 - SCHOOL DIST #49 | $16.52 | $16.50 | $0.00 | $0.00 | $33.02 | $0.00 |
| 2023 | 12958 | FD1 - FIRE DISTRICT #1 | $12.70 | $12.69 | $0.00 | $0.00 | $25.39 | $0.00 |
| 2023 | 12958 | EMS1 - FIRE DIST #1 EMS | $5.40 | $5.40 | $0.00 | $0.00 | $10.80 | $0.00 |
| 2023 | 12958 | FP - DNR Forest Fire Protection Assmt | $8.50 | $8.50 | $0.00 | $0.00 | $17.00 | $0.00 |
| 2023 | 12958 | FPLCA - DNR Landowner Contingency Assmt | $3.00 | $3.00 | $0.00 | $0.00 | $6.00 | $0.00 |
| 2023 | 12958 | JCCD - JC Conservation District | $2.53 | $2.53 | $0.00 | $0.00 | $5.06 | $0.00 |
| 2023 | 12958 | NWA - Noxious Weed Assessment | $2.15 | $2.15 | $0.00 | $0.00 | $4.30 | $0.00 |
| 2023 | 12958 | WAT - Clean Water District | $12.00 | $12.00 | $0.00 | $0.00 | $24.00 | $0.00 |
| 2023 | 12958 | FP ADMIN - FP ADMIN | $0.50 | $0.00 | $0.00 | $0.00 | $0.50 | $0.00 |
| 2023 | 12958 | TOTAL: | $140.22 | $139.61 | $0.00 | $0.00 | $279.83 | $0.00 |
|
| 2023 | 12958 | $140.22 | $139.61 | $0.00 | $0.00 | $279.83 | $0.00 |
Values
| (+) Improvement Homesite Value: | + | $0 | |
| (+) Improvement Non-Homesite Value: | + | $0 | |
| (+) Land Homesite Value: | + | $0 | |
| (+) Land Non-Homesite Value: | + | $31,500 | |
| (+) Curr Use (HS): | + | $0 | $0 |
| (+) Curr Use (NHS): | + | $0 | $0 |
| | | -------------------------- | |
| (=) Market Value: | = | $31,500 | |
| (–) Productivity Loss: | – | $0 | |
| | | -------------------------- | |
| (=) Subtotal: | = | $31,500 | |
| (+) Senior Appraised Value: | + | $0 | |
| (+) Non-Senior Appraised Value: | + | $31,500 | |
| | | -------------------------- | |
| (=) Total Appraised Value: | = | $31,500 | |
| (–) Senior Exemption Loss: | – | $0 | |
| (–) Exemption Loss: | – | $0 | |
| | | -------------------------- | |
| (=) Taxable Value: | = | $31,500 | |
Taxing Jurisdiction
| Owner: | NEIL D AHO & REBEDAH G BOLINGER FESSENDEN | | |
| % Ownership: | 100.0000000000% | | |
| Total Value: | $31,500 | | |
| Tax Area: | 0211 - 1-49F1E1H2L1 |
| CE | COUNTY CURRENT EXPENSE | 0.9034619479 | $31,500 | $31,500 | $28.46 | | |
| CNTYDD | DEVELOPMENTAL DISABILITIES | 0.0052121823 | $31,500 | $31,500 | $0.16 | | |
| CNTYVET | VETERANS RELIEF | 0.0052777810 | $31,500 | $31,500 | $0.17 | | |
| MENTAL | MENTAL HEALTH | 0.0052121823 | $31,500 | $31,500 | $0.16 | | |
| ROADS | COUNTY ROADS | 0.7415066410 | $31,500 | $31,500 | $23.36 | | |
| ROADSCU | COUNTY ROADS TO CUR EXP | 0.0000000000 | $31,500 | $31,500 | $0.00 | | |
| HOSP2CASH | HOSP DIST #2 GENERAL | 0.0536075306 | $31,500 | $31,500 | $1.69 | | |
| SCH49CP | SCHOOL DIST #49 CAP PROJ | 0.6279093905 | $31,500 | $31,500 | $19.78 | | |
| SCH49MO | SCHOOL DIST #49 EP & O | 0.6376483602 | $31,500 | $31,500 | $20.09 | | |
| CONSERVE | CONSERVATION FUTURES | 0.0275621078 | $31,500 | $31,500 | $0.87 | | |
| EMS1 | FIRE DIST #1 EMS | 0.4679948282 | $31,500 | $31,500 | $14.74 | | |
| FD1 | FIRE DIST #1 GENERAL | 1.2171942929 | $31,500 | $31,500 | $38.34 | | |
| LIB1 | LIBRARY DIST #1 GENERAL | 0.2868827388 | $31,500 | $31,500 | $9.04 | | |
| PORTPT | PORT OF PT GENERAL | 0.1134941229 | $31,500 | $31,500 | $3.58 | | |
| PORTPTIDD | PORT OF PT IDD 2019 | 0.2577346692 | $31,500 | $31,500 | $8.12 | | |
| PUD1 | PUD #1 GENERAL | 0.0597888892 | $31,500 | $31,500 | $1.88 | | |
| STATE | STATE SCHOOL PART 1 | 1.4940692947 | $31,500 | $31,500 | $47.06 | | |
| STATE2 | STATE SCHOOL PART 2 | 0.8050170049 | $31,500 | $31,500 | $25.36 | | |
| | Total Tax Rate: | 7.7095739644 | | | | | |
| | | | | Taxes w/Current Exemptions: | $242.86 | | |
| | | | | Taxes w/o Exemptions: | $242.86 | | |
Improvement / Building
Sketch
| No sketches available for this property. |
Property Image
Land
| 1 | 4660-1275S | | 0.0000 | 0.00 | 0.00 | 0.00 | 1.00 | $31,500 | $0 |
Roll Value History
| 2026 | N/A | N/A | N/A | N/A | N/A |
| 2025 | $0 | $31,500 | $0 | $31,500 | $31,500 |
| 2024 | $0 | $31,500 | $0 | $31,500 | $31,500 |
| 2023 | $0 | $30,000 | $0 | $30,000 | $30,000 |
| 2022 | $0 | $30,000 | $0 | $30,000 | $30,000 |
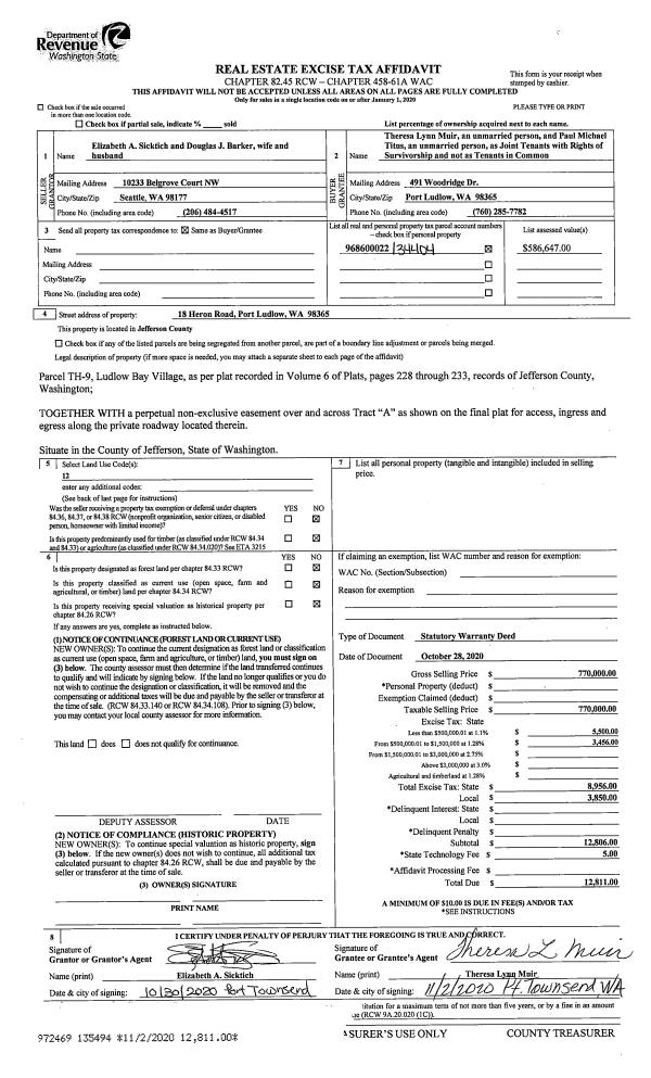
Deed and Sales History
| 1 | 03/28/2022 | SWD | Statutory Warranty Deed | RUTH & JERRY ROGERS | NEIL D AHO & REBEDAH G BOLINGER FESSENDEN | | | $479,000.00 | 138803 | |
|   | |
| 2 | 05/26/2020 | QCD | Quit Claim Deed | RUTH A ROGERS | RUTH & JERRY ROGERS | | | | 134441 | |
| 3 | 06/20/2019 | SWD | Statutory Warranty Deed | MELINDA SELA | RUTH A ROGERS | | | $40,000.00 | 132585 | |
|   | |
Payout Agreement
| No payout information available.. |