Property
Account |
| Property ID: | 23468 | Abbreviated Legal Description: | S19 T29 R1E TAX 128 |
| Parcel # / Geo ID: | 921194070 | Agent Code: | |
| Type: | Real | | |
| Tax Area: | 0211 - 1-49F1E1H2L1 | Land Use Code | 11 |
| Open Space: | N | DFL | N |
| Historic Property: | N | Remodel Property: | N |
| Multi-Family Redevelopment: | N | | |
| Township: | 29N | Section: | 19 |
| Range: | 1E |
Location |
| Address: | 3655 OAK BAY RD PORT HADLOCK, WA 98339 | Mapsco: | 174/047 |
| Neighborhood: | S18 & S19 T29N R1E; SKYWATER LLS; OAK/HOG/FIN/DON/GLAV S.P.S | Map ID: | |
| Neighborhood CD: | 4650 |
Owner |
| Name: | BRENT J & WENDY DAVIS | Owner ID: | 93890 |
| Mailing Address: | 1240 W SIMS WAY #341 PORT TOWNSEND, WA 98368 | % Ownership: | 100.0000000000% |
| | | Exemptions: | |
Pay Tax Due
Select the appropriate checkbox next to the year to be paid. Multiple years may be selected.
*Convenience Fee not included
Taxes and Assessment Details
Property Tax Information as of
03/09/2026
Click on "Statement Details" to expand or collapse a tax statement.
* Please enter a valid date ** Please enter a valid date *
Statement Details |
| 2026 | 12903 | STATE - STATE LEVY (SCHOOL) | $1364.80 | $1364.78 | $0.00 | $0.00 | $0.00 | $2729.58 |
| 2026 | 12903 | COUNTY - COUNTY LEVIES (CE, DD, VET, MH) | $545.66 | $545.62 | $0.00 | $0.00 | $0.00 | $1091.28 |
| 2026 | 12903 | CONSERVE - CONSERVATION FUTURES | $16.36 | $16.36 | $0.00 | $0.00 | $0.00 | $32.72 |
| 2026 | 12903 | COROADS - COUNTY ROADS (ROADS, DIV TO CE) | $440.18 | $440.17 | $0.00 | $0.00 | $0.00 | $880.35 |
| 2026 | 12903 | PORTPT - PORT DISTRICT | $220.38 | $220.36 | $0.00 | $0.00 | $0.00 | $440.74 |
| 2026 | 12903 | PUD1 - PUD #1 | $35.49 | $35.49 | $0.00 | $0.00 | $0.00 | $70.98 |
| 2026 | 12903 | LIB1 - LIBRARY DIST #1 | $170.30 | $170.30 | $0.00 | $0.00 | $0.00 | $340.60 |
| 2026 | 12903 | HD2 - HOSP DIST #2 | $31.83 | $31.82 | $0.00 | $0.00 | $0.00 | $63.65 |
| 2026 | 12903 | SD49 - SCHOOL DIST #49 | $751.27 | $751.26 | $0.00 | $0.00 | $0.00 | $1502.53 |
| 2026 | 12903 | FD1 - FIRE DISTRICT #1 | $722.56 | $722.55 | $0.00 | $0.00 | $0.00 | $1445.11 |
| 2026 | 12903 | EMS1 - FIRE DIST #1 EMS | $277.82 | $277.81 | $0.00 | $0.00 | $0.00 | $555.63 |
| 2026 | 12903 | FP - DNR Forest Fire Protection Assmt | $8.50 | $8.50 | $0.00 | $0.00 | $0.00 | $17.00 |
| 2026 | 12903 | FPLCA - DNR Landowner Contingency Assmt | $3.00 | $3.00 | $0.00 | $0.00 | $0.00 | $6.00 |
| 2026 | 12903 | JCCD - JC Conservation District | $2.60 | $2.60 | $0.00 | $0.00 | $0.00 | $5.20 |
| 2026 | 12903 | NWA - Noxious Weed Assessment | $3.20 | $3.20 | $0.00 | $0.00 | $0.00 | $6.40 |
| 2026 | 12903 | OSS - On Site Septic | $23.10 | $23.10 | $0.00 | $0.00 | $0.00 | $46.20 |
| 2026 | 12903 | WAT - Clean Water District | $13.00 | $13.00 | $0.00 | $0.00 | $0.00 | $26.00 |
| 2026 | 12903 | FP ADMIN - FP ADMIN | $0.50 | $0.00 | $0.00 | $0.00 | $0.00 | $0.50 |
| 2026 | 12903 | TOTAL: | $4630.55 | $4629.92 | $0.00 | $0.00 | $0.00 | $9260.47 |
|
| 2026 | 12903 | $4630.55 | $4629.92 | $0.00 | $0.00 | $0.00 | $9260.47 |
Statement Details |
| 2025 | 12929 | STATE - STATE LEVY (SCHOOL) | $1423.53 | $1423.52 | $0.00 | $0.00 | $2847.05 | $0.00 |
| 2025 | 12929 | COUNTY - COUNTY LEVIES (CE, DD, VET, MH) | $559.80 | $559.77 | $0.00 | $0.00 | $1119.57 | $0.00 |
| 2025 | 12929 | CONSERVE - CONSERVATION FUTURES | $16.79 | $16.78 | $0.00 | $0.00 | $33.57 | $0.00 |
| 2025 | 12929 | COROADS - COUNTY ROADS (ROADS, DIV TO CE) | $448.49 | $448.47 | $0.00 | $0.00 | $896.96 | $0.00 |
| 2025 | 12929 | PORTPT - PORT DISTRICT | $228.43 | $228.42 | $0.00 | $0.00 | $456.85 | $0.00 |
| 2025 | 12929 | PUD1 - PUD #1 | $36.63 | $36.63 | $0.00 | $0.00 | $73.26 | $0.00 |
| 2025 | 12929 | LIB1 - LIBRARY DIST #1 | $173.52 | $173.51 | $0.00 | $0.00 | $347.03 | $0.00 |
| 2025 | 12929 | HD2 - HOSP DIST #2 | $32.66 | $32.66 | $0.00 | $0.00 | $65.32 | $0.00 |
| 2025 | 12929 | SD49 - SCHOOL DIST #49 | $762.93 | $762.92 | $0.00 | $0.00 | $1525.85 | $0.00 |
| 2025 | 12929 | FD1 - FIRE DISTRICT #1 | $738.71 | $738.71 | $0.00 | $0.00 | $1477.42 | $0.00 |
| 2025 | 12929 | EMS1 - FIRE DIST #1 EMS | $284.13 | $284.12 | $0.00 | $0.00 | $568.25 | $0.00 |
| 2025 | 12929 | FP - DNR Forest Fire Protection Assmt | $8.50 | $8.50 | $0.00 | $0.00 | $17.00 | $0.00 |
| 2025 | 12929 | FPLCA - DNR Landowner Contingency Assmt | $3.00 | $3.00 | $0.00 | $0.00 | $6.00 | $0.00 |
| 2025 | 12929 | JCCD - JC Conservation District | $2.60 | $2.60 | $0.00 | $0.00 | $5.20 | $0.00 |
| 2025 | 12929 | NWA - Noxious Weed Assessment | $2.30 | $2.30 | $0.00 | $0.00 | $4.60 | $0.00 |
| 2025 | 12929 | OSS - On Site Septic | $21.50 | $21.50 | $0.00 | $0.00 | $43.00 | $0.00 |
| 2025 | 12929 | WAT - Clean Water District | $13.00 | $13.00 | $0.00 | $0.00 | $26.00 | $0.00 |
| 2025 | 12929 | FP ADMIN - FP ADMIN | $0.50 | $0.00 | $0.00 | $0.00 | $0.50 | $0.00 |
| 2025 | 12929 | TOTAL: | $4757.02 | $4756.41 | $0.00 | $0.00 | $9513.43 | $0.00 |
|
| 2025 | 12929 | $4757.02 | $4756.41 | $0.00 | $0.00 | $9513.43 | $0.00 |
Statement Details |
| 2024 | 12958 | STATE - STATE LEVY (SCHOOL) | $1303.97 | $1303.97 | $0.00 | $0.00 | $2607.94 | $0.00 |
| 2024 | 12958 | COUNTY - COUNTY LEVIES (CE, DD, VET, MH) | $557.98 | $557.98 | $0.00 | $0.00 | $1115.96 | $0.00 |
| 2024 | 12958 | CONSERVE - CONSERVATION FUTURES | $16.73 | $16.73 | $0.00 | $0.00 | $33.46 | $0.00 |
| 2024 | 12958 | COROADS - COUNTY ROADS (ROADS, DIV TO CE) | $448.99 | $448.99 | $0.00 | $0.00 | $897.98 | $0.00 |
| 2024 | 12958 | PORTPT - PORT DISTRICT | $230.48 | $230.46 | $0.00 | $0.00 | $460.94 | $0.00 |
| 2024 | 12958 | PUD1 - PUD #1 | $36.65 | $36.65 | $0.00 | $0.00 | $73.30 | $0.00 |
| 2024 | 12958 | LIB1 - LIBRARY DIST #1 | $173.71 | $173.71 | $0.00 | $0.00 | $347.42 | $0.00 |
| 2024 | 12958 | HD2 - HOSP DIST #2 | $32.56 | $32.55 | $0.00 | $0.00 | $65.11 | $0.00 |
| 2024 | 12958 | SD49 - SCHOOL DIST #49 | $582.29 | $582.28 | $0.00 | $0.00 | $1164.57 | $0.00 |
| 2024 | 12958 | FD1 - FIRE DISTRICT #1 | $737.79 | $737.78 | $0.00 | $0.00 | $1475.57 | $0.00 |
| 2024 | 12958 | EMS1 - FIRE DIST #1 EMS | $281.81 | $281.80 | $0.00 | $0.00 | $563.61 | $0.00 |
| 2024 | 12958 | FP - DNR Forest Fire Protection Assmt | $8.50 | $8.50 | $0.00 | $0.00 | $17.00 | $0.00 |
| 2024 | 12958 | FPLCA - DNR Landowner Contingency Assmt | $3.00 | $3.00 | $0.00 | $0.00 | $6.00 | $0.00 |
| 2024 | 12958 | JCCD - JC Conservation District | $2.60 | $2.60 | $0.00 | $0.00 | $5.20 | $0.00 |
| 2024 | 12958 | NWA - Noxious Weed Assessment | $2.30 | $2.30 | $0.00 | $0.00 | $4.60 | $0.00 |
| 2024 | 12958 | OSS - On Site Septic | $21.00 | $21.00 | $0.00 | $0.00 | $42.00 | $0.00 |
| 2024 | 12958 | WAT - Clean Water District | $12.50 | $12.50 | $0.00 | $0.00 | $25.00 | $0.00 |
| 2024 | 12958 | FP ADMIN - FP ADMIN | $0.50 | $0.00 | $0.00 | $0.00 | $0.50 | $0.00 |
| 2024 | 12958 | TOTAL: | $4453.36 | $4452.80 | $0.00 | $0.00 | $8906.16 | $0.00 |
|
| 2024 | 12958 | $4453.36 | $4452.80 | $0.00 | $0.00 | $8906.16 | $0.00 |
Statement Details |
| 2023 | 12979 | STATE - STATE LEVY (SCHOOL) | $1028.98 | $1028.97 | $0.00 | $0.00 | $2057.95 | $0.00 |
| 2023 | 12979 | COUNTY - COUNTY LEVIES (CE, DD, VET, MH) | $449.02 | $449.01 | $0.00 | $0.00 | $898.03 | $0.00 |
| 2023 | 12979 | CONSERVE - CONSERVATION FUTURES | $13.47 | $13.46 | $0.00 | $0.00 | $26.93 | $0.00 |
| 2023 | 12979 | COROADS - COUNTY ROADS (ROADS, DIV TO CE) | $363.29 | $363.28 | $0.00 | $0.00 | $726.57 | $0.00 |
| 2023 | 12979 | PORTPT - PORT DISTRICT | $189.15 | $189.14 | $0.00 | $0.00 | $378.29 | $0.00 |
| 2023 | 12979 | PUD1 - PUD #1 | $29.77 | $29.76 | $0.00 | $0.00 | $59.53 | $0.00 |
| 2023 | 12979 | LIB1 - LIBRARY DIST #1 | $140.55 | $140.55 | $0.00 | $0.00 | $281.10 | $0.00 |
| 2023 | 12979 | HD2 - HOSP DIST #2 | $26.20 | $26.20 | $0.00 | $0.00 | $52.40 | $0.00 |
| 2023 | 12979 | SD49 - SCHOOL DIST #49 | $480.99 | $480.99 | $0.00 | $0.00 | $961.98 | $0.00 |
| 2023 | 12979 | FD1 - FIRE DISTRICT #1 | $369.90 | $369.90 | $0.00 | $0.00 | $739.80 | $0.00 |
| 2023 | 12979 | EMS1 - FIRE DIST #1 EMS | $157.35 | $157.35 | $0.00 | $0.00 | $314.70 | $0.00 |
| 2023 | 12979 | FP - DNR Forest Fire Protection Assmt | $8.50 | $8.50 | $0.00 | $0.00 | $17.00 | $0.00 |
| 2023 | 12979 | FPLCA - DNR Landowner Contingency Assmt | $3.00 | $3.00 | $0.00 | $0.00 | $6.00 | $0.00 |
| 2023 | 12979 | JCCD - JC Conservation District | $2.60 | $2.60 | $0.00 | $0.00 | $5.20 | $0.00 |
| 2023 | 12979 | NWA - Noxious Weed Assessment | $2.30 | $2.30 | $0.00 | $0.00 | $4.60 | $0.00 |
| 2023 | 12979 | OSS - On Site Septic | $20.50 | $20.50 | $0.00 | $0.00 | $41.00 | $0.00 |
| 2023 | 12979 | WAT - Clean Water District | $12.00 | $12.00 | $0.00 | $0.00 | $24.00 | $0.00 |
| 2023 | 12979 | FP ADMIN - FP ADMIN | $0.50 | $0.00 | $0.00 | $0.00 | $0.50 | $0.00 |
| 2023 | 12979 | TOTAL: | $3298.07 | $3297.51 | $0.00 | $0.00 | $6595.58 | $0.00 |
|
| 2023 | 12979 | $3298.07 | $3297.51 | $0.00 | $0.00 | $6595.58 | $0.00 |
Values
| (+) Improvement Homesite Value: | + | $0 | |
| (+) Improvement Non-Homesite Value: | + | $697,423 | |
| (+) Land Homesite Value: | + | $0 | |
| (+) Land Non-Homesite Value: | + | $489,825 | |
| (+) Curr Use (HS): | + | $0 | $0 |
| (+) Curr Use (NHS): | + | $0 | $0 |
| | | -------------------------- | |
| (=) Market Value: | = | $1,187,248 | |
| (–) Productivity Loss: | – | $0 | |
| | | -------------------------- | |
| (=) Subtotal: | = | $1,187,248 | |
| (+) Senior Appraised Value: | + | $0 | |
| (+) Non-Senior Appraised Value: | + | $1,187,248 | |
| | | -------------------------- | |
| (=) Total Appraised Value: | = | $1,187,248 | |
| (–) Senior Exemption Loss: | – | $0 | |
| (–) Exemption Loss: | – | $0 | |
| | | -------------------------- | |
| (=) Taxable Value: | = | $1,187,248 | |
Taxing Jurisdiction
| Owner: | BRENT J & WENDY DAVIS | | |
| % Ownership: | 100.0000000000% | | |
| Total Value: | $1,187,248 | | |
| Tax Area: | 0211 - 1-49F1E1H2L1 |
| CE | COUNTY CURRENT EXPENSE | 0.9034619479 | $1,187,248 | $1,187,248 | $1,072.63 | | |
| CNTYDD | DEVELOPMENTAL DISABILITIES | 0.0052121823 | $1,187,248 | $1,187,248 | $6.19 | | |
| CNTYVET | VETERANS RELIEF | 0.0052777810 | $1,187,248 | $1,187,248 | $6.27 | | |
| MENTAL | MENTAL HEALTH | 0.0052121823 | $1,187,248 | $1,187,248 | $6.19 | | |
| ROADS | COUNTY ROADS | 0.7415066410 | $1,187,248 | $1,187,248 | $880.35 | | |
| ROADSCU | COUNTY ROADS TO CUR EXP | 0.0000000000 | $1,187,248 | $1,187,248 | $0.00 | | |
| HOSP2CASH | HOSP DIST #2 GENERAL | 0.0536075306 | $1,187,248 | $1,187,248 | $63.65 | | |
| SCH49CP | SCHOOL DIST #49 CAP PROJ | 0.6279093905 | $1,187,248 | $1,187,248 | $745.48 | | |
| SCH49MO | SCHOOL DIST #49 EP & O | 0.6376483602 | $1,187,248 | $1,187,248 | $757.05 | | |
| CONSERVE | CONSERVATION FUTURES | 0.0275621078 | $1,187,248 | $1,187,248 | $32.72 | | |
| EMS1 | FIRE DIST #1 EMS | 0.4679948282 | $1,187,248 | $1,187,248 | $555.63 | | |
| FD1 | FIRE DIST #1 GENERAL | 1.2171942929 | $1,187,248 | $1,187,248 | $1,445.11 | | |
| LIB1 | LIBRARY DIST #1 GENERAL | 0.2868827388 | $1,187,248 | $1,187,248 | $340.60 | | |
| PORTPT | PORT OF PT GENERAL | 0.1134941229 | $1,187,248 | $1,187,248 | $134.75 | | |
| PORTPTIDD | PORT OF PT IDD 2019 | 0.2577346692 | $1,187,248 | $1,187,248 | $305.99 | | |
| PUD1 | PUD #1 GENERAL | 0.0597888892 | $1,187,248 | $1,187,248 | $70.98 | | |
| STATE | STATE SCHOOL PART 1 | 1.4940692947 | $1,187,248 | $1,187,248 | $1,773.83 | | |
| STATE2 | STATE SCHOOL PART 2 | 0.8050170049 | $1,187,248 | $1,187,248 | $955.75 | | |
| | Total Tax Rate: | 7.7095739644 | | | | | |
| | | | | Taxes w/Current Exemptions: | $9,153.17 | | |
| | | | | Taxes w/o Exemptions: | $9,153.17 | | |
Improvement / Building
| Improvement #1: | Residential Bldg | State Code: | 11 | 2045.0 sqft | Value: | $697,423 |
| Bathrooms (#): | 2 (FULL) | Bedrooms (#): | 2 | | Exterior Wall: | PL/T1 | Fireplace: | SIN 1-GOOD | | Fireplace: | WD ST-AVG | Floor Construction: | FRAME | | Foundation: | CONPR | Heating/Cooling: | HTWTR | | Inside Verify: | YES-FIX | Roof Cover: | COMP |
|
| | Type | Description | Class CD | Sub Class CD | Year Built | Area |
| | MA | Main Area | 5 | 1S | 1974 | 2045.0 |
| | PATIO | House Patio | 5 | 1S | 1974 | 1022.0 |
| | HDECK | House Deck | 5 | 1S | 1974 | 653.0 |
| | GDET | Detached Garage | 4 | 1S | 1974 | 720.0 |
| | HWPOR | House Wood Porch | 5 | 1S | 1974 | 932.0 |
| | ASPHD | Asphalt Drive | 5 | 1S | 1974 | 1500.0 |
| | ADDN-D | Addition (Table Depreciated) | 4 | 1S | 1974 | 288.0 |
Sketch
Property Image
Land
| 1 | 4650-1535F | | 0.0000 | 0.00 | 0.00 | 0.00 | 0.00 | $346,500 | $0 |
| 2 | 4650-1535F | | 0.0000 | 0.00 | 0.00 | 0.00 | 0.00 | $143,325 | $0 |
Roll Value History
| 2026 | N/A | N/A | N/A | N/A | N/A |
| 2025 | $697,423 | $489,825 | $0 | $1,187,248 | $1,187,248 |
| 2024 | $697,423 | $489,825 | $0 | $1,187,248 | $1,187,248 |
| 2023 | $665,722 | $461,500 | $0 | $1,127,222 | $1,127,222 |
| 2022 | $417,678 | $456,500 | $0 | $874,178 | $874,178 |
Deed and Sales History
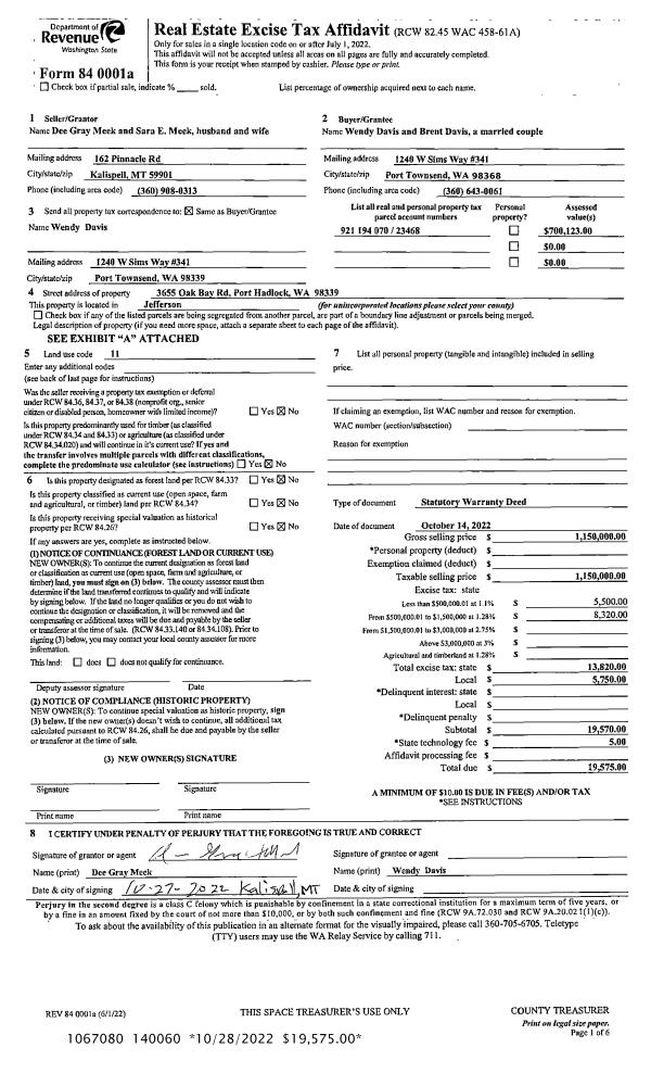
| 1 | 10/14/2022 | SWD | Statutory Warranty Deed | DEE G MEEK | BRENT J & WENDY DAVIS | | | $1,150,000.00 | 140060 | |
| 2 | 03/11/2004 | QCD | Quit Claim Deed | MINNIHAN, HARVEY/JANE | MEEK, DEE GRAY/SARA | 0 | 0 | $0.00 | 99682 | 0 |
| 3 | 04/24/2000 | SWD | Statutory Warranty Deed | MINNIHAN, HARVEY/JANE | MEEK, DEE/SARA | 0 | 0 | $369,000.00 | 89462 | 0 |
Payout Agreement
| No payout information available.. |