| 1 | 02/03/2021 | | | | | | | | 135993 | |
| 2 | 10/05/2020 | QCD | Quit Claim Deed | FREDERICK DEADRICK & VANESSA DANGERFIELD | DEADRICK DANGERFIELD FAMILY TRUST | | | | 135561 | |
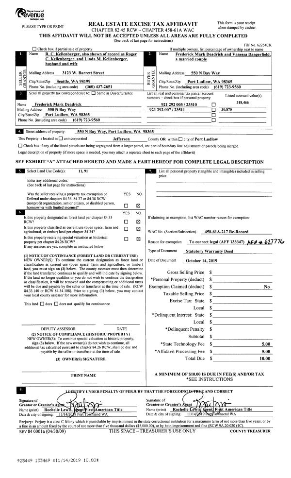
| 3 | 10/14/2019 | SWD | Statutory Warranty Deed | | | | | | 133469 | |
| 4 | 10/14/2019 | SWD | Statutory Warranty Deed | ROGER C KELLENBERGER | FREDERICK DEADRICK & VANESSA DANGERFIELD | | | $445,200.00 | 133347 | |
|   | |
| 5 | 06/28/2011 | SWD | Statutory Warranty Deed | ROBEY, CONSTANCE ET AL | KELLENBERGER, ROGER C/LINDA M | | | $30,000.00 | 116225 | 0 |
| 6 | 03/31/2004 | QCD | Quit Claim Deed | JOHNSON, ROBERT K & JUANI | EMERALD JUNCTION LLC | 0 | 0 | $0.00 | 99908 | 0 |
| 7 | 08/08/1997 | QCD | Quit Claim Deed | GIFFIN, RICHARD R/EST | GIFFIN, CONSTANCE ARLENE/EST | 0 | 0 | $0.00 | 82642 | 0 |
| 8 | 01/23/1996 | QCD | Quit Claim Deed | KATRA, ROSS/ET AL | GIFFIN, RICHARD R/EST & ET AL | 0 | 0 | $0.00 | 78743 | 0 |