Property
Account |
| Property ID: | 23527 | Abbreviated Legal Description: | S29 T29 R1E TAX 29 |
| Parcel # / Geo ID: | 921292025 | Agent Code: | |
| Type: | Real | | |
| Tax Area: | 0213 - 1-49F1E1H2L1 | Land Use Code | 18 |
| Open Space: | N | DFL | N |
| Historic Property: | N | Remodel Property: | N |
| Multi-Family Redevelopment: | N | | |
| Township: | 29N | Section: | 29 |
| Range: | 1E |
Location |
| Address: | | Mapsco: | 178/009 |
| Neighborhood: | S28 & S29 T29N R1E & OAK BAY WTRF TRTS & OLELE POINT | Map ID: | |
| Neighborhood CD: | 3280 |
Owner |
| Name: | RAUL & SONIA GARCIA | Owner ID: | 97872 |
| Mailing Address: | 537 N BAY WAY PORT LUDLOW, WA 98365-9455 | % Ownership: | 100.0000000000% |
| | | Exemptions: | |
Pay Tax Due
Select the appropriate checkbox next to the year to be paid. Multiple years may be selected.
*Convenience Fee not included
Taxes and Assessment Details
Property Tax Information as of
03/11/2026
Click on "Statement Details" to expand or collapse a tax statement.
* Please enter a valid date ** Please enter a valid date *
Statement Details |
| 2026 | 12961 | STATE - STATE LEVY (SCHOOL) | $14.88 | $14.87 | $0.00 | $0.00 | $0.00 | $29.75 |
| 2026 | 12961 | COUNTY - COUNTY LEVIES (CE, DD, VET, MH) | $5.97 | $5.93 | $0.00 | $0.00 | $0.00 | $11.90 |
| 2026 | 12961 | CONSERVE - CONSERVATION FUTURES | $0.18 | $0.18 | $0.00 | $0.00 | $0.00 | $0.36 |
| 2026 | 12961 | COROADS - COUNTY ROADS (ROADS, DIV TO CE) | $4.80 | $4.79 | $0.00 | $0.00 | $0.00 | $9.59 |
| 2026 | 12961 | PORTPT - PORT DISTRICT | $2.41 | $2.39 | $0.00 | $0.00 | $0.00 | $4.80 |
| 2026 | 12961 | PUD1 - PUD #1 | $0.39 | $0.38 | $0.00 | $0.00 | $0.00 | $0.77 |
| 2026 | 12961 | LIB1 - LIBRARY DIST #1 | $1.86 | $1.85 | $0.00 | $0.00 | $0.00 | $3.71 |
| 2026 | 12961 | HD2 - HOSP DIST #2 | $0.35 | $0.34 | $0.00 | $0.00 | $0.00 | $0.69 |
| 2026 | 12961 | SD49 - SCHOOL DIST #49 | $8.19 | $8.18 | $0.00 | $0.00 | $0.00 | $16.37 |
| 2026 | 12961 | FD1 - FIRE DISTRICT #1 | $7.88 | $7.87 | $0.00 | $0.00 | $0.00 | $15.75 |
| 2026 | 12961 | EMS1 - FIRE DIST #1 EMS | $3.03 | $3.02 | $0.00 | $0.00 | $0.00 | $6.05 |
| 2026 | 12961 | JCCD - JC Conservation District | $2.53 | $2.53 | $0.00 | $0.00 | $0.00 | $5.06 |
| 2026 | 12961 | NWA - Noxious Weed Assessment | $2.98 | $2.97 | $0.00 | $0.00 | $0.00 | $5.95 |
| 2026 | 12961 | WAT - Clean Water District | $13.00 | $13.00 | $0.00 | $0.00 | $0.00 | $26.00 |
| 2026 | 12961 | TOTAL: | $68.45 | $68.30 | $0.00 | $0.00 | $0.00 | $136.75 |
|
| 2026 | 12961 | $68.45 | $68.30 | $0.00 | $0.00 | $0.00 | $136.75 |
Statement Details |
| 2025 | 12987 | STATE - STATE LEVY (SCHOOL) | $14.84 | $14.83 | $0.00 | $0.00 | $29.67 | $0.00 |
| 2025 | 12987 | COUNTY - COUNTY LEVIES (CE, DD, VET, MH) | $5.86 | $5.82 | $0.00 | $0.00 | $11.68 | $0.00 |
| 2025 | 12987 | CONSERVE - CONSERVATION FUTURES | $0.18 | $0.17 | $0.00 | $0.00 | $0.35 | $0.00 |
| 2025 | 12987 | COROADS - COUNTY ROADS (ROADS, DIV TO CE) | $4.68 | $4.67 | $0.00 | $0.00 | $9.35 | $0.00 |
| 2025 | 12987 | PORTPT - PORT DISTRICT | $2.38 | $2.38 | $0.00 | $0.00 | $4.76 | $0.00 |
| 2025 | 12987 | PUD1 - PUD #1 | $0.38 | $0.38 | $0.00 | $0.00 | $0.76 | $0.00 |
| 2025 | 12987 | LIB1 - LIBRARY DIST #1 | $1.81 | $1.81 | $0.00 | $0.00 | $3.62 | $0.00 |
| 2025 | 12987 | HD2 - HOSP DIST #2 | $0.34 | $0.34 | $0.00 | $0.00 | $0.68 | $0.00 |
| 2025 | 12987 | SD49 - SCHOOL DIST #49 | $7.96 | $7.95 | $0.00 | $0.00 | $15.91 | $0.00 |
| 2025 | 12987 | FD1 - FIRE DISTRICT #1 | $7.70 | $7.70 | $0.00 | $0.00 | $15.40 | $0.00 |
| 2025 | 12987 | EMS1 - FIRE DIST #1 EMS | $2.96 | $2.96 | $0.00 | $0.00 | $5.92 | $0.00 |
| 2025 | 12987 | JCCD - JC Conservation District | $2.55 | $2.55 | $0.00 | $0.00 | $5.10 | $0.00 |
| 2025 | 12987 | NWA - Noxious Weed Assessment | $2.15 | $2.15 | $0.00 | $0.00 | $4.30 | $0.00 |
| 2025 | 12987 | WAT - Clean Water District | $13.00 | $13.00 | $0.00 | $0.00 | $26.00 | $0.00 |
| 2025 | 12987 | TOTAL: | $66.79 | $66.71 | $0.00 | $0.00 | $133.50 | $0.00 |
|
| 2025 | 12987 | $66.79 | $66.71 | $0.00 | $0.00 | $133.50 | $0.00 |
Statement Details |
| 2024 | 13016 | STATE - STATE LEVY (SCHOOL) | $13.02 | $13.01 | $0.00 | $0.00 | $26.03 | $0.00 |
| 2024 | 13016 | COUNTY - COUNTY LEVIES (CE, DD, VET, MH) | $5.57 | $5.56 | $0.00 | $0.00 | $11.13 | $0.00 |
| 2024 | 13016 | CONSERVE - CONSERVATION FUTURES | $0.17 | $0.16 | $0.00 | $0.00 | $0.33 | $0.00 |
| 2024 | 13016 | COROADS - COUNTY ROADS (ROADS, DIV TO CE) | $4.49 | $4.47 | $0.00 | $0.00 | $8.96 | $0.00 |
| 2024 | 13016 | PORTPT - PORT DISTRICT | $2.31 | $2.30 | $0.00 | $0.00 | $4.61 | $0.00 |
| 2024 | 13016 | PUD1 - PUD #1 | $0.37 | $0.36 | $0.00 | $0.00 | $0.73 | $0.00 |
| 2024 | 13016 | LIB1 - LIBRARY DIST #1 | $1.74 | $1.73 | $0.00 | $0.00 | $3.47 | $0.00 |
| 2024 | 13016 | HD2 - HOSP DIST #2 | $0.33 | $0.32 | $0.00 | $0.00 | $0.65 | $0.00 |
| 2024 | 13016 | SD49 - SCHOOL DIST #49 | $5.81 | $5.81 | $0.00 | $0.00 | $11.62 | $0.00 |
| 2024 | 13016 | FD1 - FIRE DISTRICT #1 | $7.37 | $7.36 | $0.00 | $0.00 | $14.73 | $0.00 |
| 2024 | 13016 | EMS1 - FIRE DIST #1 EMS | $2.82 | $2.81 | $0.00 | $0.00 | $5.63 | $0.00 |
| 2024 | 13016 | JCCD - JC Conservation District | $2.55 | $2.55 | $0.00 | $0.00 | $5.10 | $0.00 |
| 2024 | 13016 | NWA - Noxious Weed Assessment | $2.15 | $2.15 | $0.00 | $0.00 | $4.30 | $0.00 |
| 2024 | 13016 | WAT - Clean Water District | $12.50 | $12.50 | $0.00 | $0.00 | $25.00 | $0.00 |
| 2024 | 13016 | TOTAL: | $61.20 | $61.09 | $0.00 | $0.00 | $122.29 | $0.00 |
|
| 2024 | 13016 | $61.20 | $61.09 | $0.00 | $0.00 | $122.29 | $0.00 |
Statement Details |
| 2023 | 13037 | STATE - STATE LEVY (SCHOOL) | $13.25 | $13.23 | $0.00 | $0.00 | $26.48 | $0.00 |
| 2023 | 13037 | COUNTY - COUNTY LEVIES (CE, DD, VET, MH) | $5.80 | $5.77 | $0.00 | $0.00 | $11.57 | $0.00 |
| 2023 | 13037 | CONSERVE - CONSERVATION FUTURES | $0.18 | $0.17 | $0.00 | $0.00 | $0.35 | $0.00 |
| 2023 | 13037 | COROADS - COUNTY ROADS (ROADS, DIV TO CE) | $4.68 | $4.67 | $0.00 | $0.00 | $9.35 | $0.00 |
| 2023 | 13037 | PORTPT - PORT DISTRICT | $2.44 | $2.43 | $0.00 | $0.00 | $4.87 | $0.00 |
| 2023 | 13037 | PUD1 - PUD #1 | $0.39 | $0.38 | $0.00 | $0.00 | $0.77 | $0.00 |
| 2023 | 13037 | LIB1 - LIBRARY DIST #1 | $1.81 | $1.81 | $0.00 | $0.00 | $3.62 | $0.00 |
| 2023 | 13037 | HD2 - HOSP DIST #2 | $0.34 | $0.33 | $0.00 | $0.00 | $0.67 | $0.00 |
| 2023 | 13037 | SD49 - SCHOOL DIST #49 | $6.20 | $6.18 | $0.00 | $0.00 | $12.38 | $0.00 |
| 2023 | 13037 | FD3 - FIRE DISTRICT #3 | $5.75 | $5.75 | $0.00 | $0.00 | $11.50 | $0.00 |
| 2023 | 13037 | EMS3 - FIRE DIST #3 EMS | $2.06 | $2.05 | $0.00 | $0.00 | $4.11 | $0.00 |
| 2023 | 13037 | JCCD - JC Conservation District | $2.53 | $2.53 | $0.00 | $0.00 | $5.06 | $0.00 |
| 2023 | 13037 | NWA - Noxious Weed Assessment | $2.15 | $2.15 | $0.00 | $0.00 | $4.30 | $0.00 |
| 2023 | 13037 | WAT - Clean Water District | $12.00 | $12.00 | $0.00 | $0.00 | $24.00 | $0.00 |
| 2023 | 13037 | TOTAL: | $59.58 | $59.45 | $0.00 | $0.00 | $119.03 | $0.00 |
|
| 2023 | 13037 | $59.58 | $59.45 | $0.00 | $0.00 | $119.03 | $0.00 |
Values
| (+) Improvement Homesite Value: | + | $0 | |
| (+) Improvement Non-Homesite Value: | + | $0 | |
| (+) Land Homesite Value: | + | $0 | |
| (+) Land Non-Homesite Value: | + | $12,938 | |
| (+) Curr Use (HS): | + | $0 | $0 |
| (+) Curr Use (NHS): | + | $0 | $0 |
| | | -------------------------- | |
| (=) Market Value: | = | $12,938 | |
| (–) Productivity Loss: | – | $0 | |
| | | -------------------------- | |
| (=) Subtotal: | = | $12,938 | |
| (+) Senior Appraised Value: | + | $0 | |
| (+) Non-Senior Appraised Value: | + | $12,938 | |
| | | -------------------------- | |
| (=) Total Appraised Value: | = | $12,938 | |
| (–) Senior Exemption Loss: | – | $0 | |
| (–) Exemption Loss: | – | $0 | |
| | | -------------------------- | |
| (=) Taxable Value: | = | $12,938 | |
Taxing Jurisdiction
| Owner: | RAUL & SONIA GARCIA | | |
| % Ownership: | 100.0000000000% | | |
| Total Value: | $12,938 | | |
| Tax Area: | 0213 - 1-49F1E1H2L1 |
| CE | COUNTY CURRENT EXPENSE | 0.9034619479 | $12,938 | $12,938 | $11.69 | | |
| CNTYDD | DEVELOPMENTAL DISABILITIES | 0.0052121823 | $12,938 | $12,938 | $0.07 | | |
| CNTYVET | VETERANS RELIEF | 0.0052777810 | $12,938 | $12,938 | $0.07 | | |
| MENTAL | MENTAL HEALTH | 0.0052121823 | $12,938 | $12,938 | $0.07 | | |
| ROADS | COUNTY ROADS | 0.7415066410 | $12,938 | $12,938 | $9.59 | | |
| ROADSCU | COUNTY ROADS TO CUR EXP | 0.0000000000 | $12,938 | $12,938 | $0.00 | | |
| HOSP2CASH | HOSP DIST #2 GENERAL | 0.0536075306 | $12,938 | $12,938 | $0.69 | | |
| SCH49CP | SCHOOL DIST #49 CAP PROJ | 0.6279093905 | $12,938 | $12,938 | $8.12 | | |
| SCH49MO | SCHOOL DIST #49 EP & O | 0.6376483602 | $12,938 | $12,938 | $8.25 | | |
| CONSERVE | CONSERVATION FUTURES | 0.0275621078 | $12,938 | $12,938 | $0.36 | | |
| EMS1 | FIRE DIST #1 EMS | 0.4679948282 | $12,938 | $12,938 | $6.05 | | |
| FD1 | FIRE DIST #1 GENERAL | 1.2171942929 | $12,938 | $12,938 | $15.75 | | |
| LIB1 | LIBRARY DIST #1 GENERAL | 0.2868827388 | $12,938 | $12,938 | $3.71 | | |
| PORTPT | PORT OF PT GENERAL | 0.1134941229 | $12,938 | $12,938 | $1.47 | | |
| PORTPTIDD | PORT OF PT IDD 2019 | 0.2577346692 | $12,938 | $12,938 | $3.33 | | |
| PUD1 | PUD #1 GENERAL | 0.0597888892 | $12,938 | $12,938 | $0.77 | | |
| STATE | STATE SCHOOL PART 1 | 1.4940692947 | $12,938 | $12,938 | $19.33 | | |
| STATE2 | STATE SCHOOL PART 2 | 0.8050170049 | $12,938 | $12,938 | $10.42 | | |
| | Total Tax Rate: | 7.7095739644 | | | | | |
| | | | | Taxes w/Current Exemptions: | $99.74 | | |
| | | | | Taxes w/o Exemptions: | $99.74 | | |
Improvement / Building
Sketch
| No sketches available for this property. |
Property Image
Land
| 1 | 3280-1185L | | 0.0000 | 0.00 | 0.00 | 0.00 | 1.00 | $12,938 | $0 |
Roll Value History
| 2026 | N/A | N/A | N/A | N/A | N/A |
| 2025 | $0 | $12,938 | $0 | $12,938 | $12,938 |
| 2024 | $0 | $12,375 | $0 | $12,375 | $12,375 |
| 2023 | $0 | $11,250 | $0 | $11,250 | $11,250 |
| 2022 | $0 | $11,250 | $0 | $11,250 | $11,250 |
Deed and Sales History
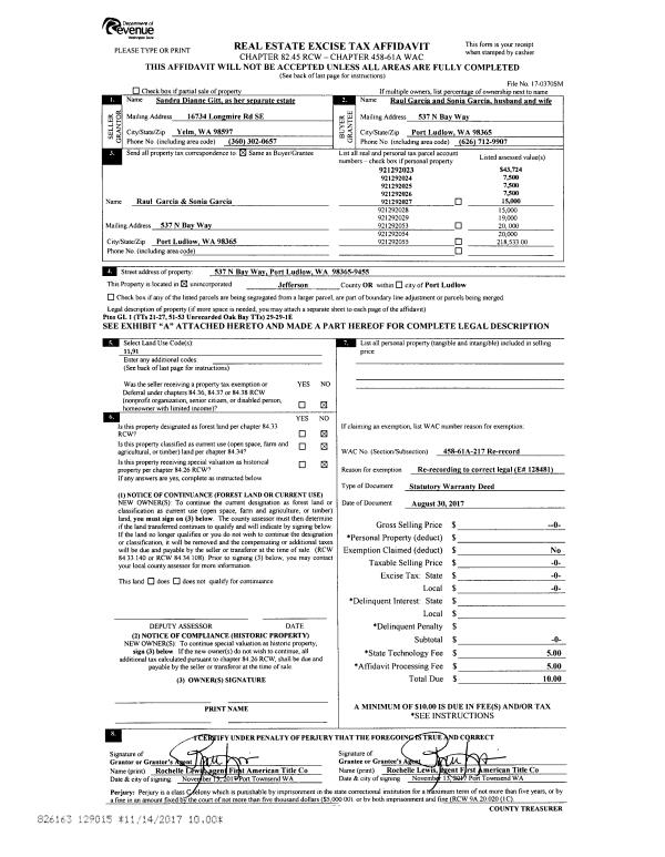
| 1 | 08/30/2017 | SWD | Statutory Warranty Deed | SANDRA D GITT | RAUL & SONIA GARCIA | | | $470,000.00 | 128481 | |
|   | |
| 2 | 03/23/2011 | QCD | Quit Claim Deed | GITT, RICHARD HAROLD | GITT, SANDRA DIANE | | | $0.00 | 115906 | 0 |
| 3 | 04/14/2003 | QCD | Quit Claim Deed | GITT FAMILY REVOCABLE LIV | GITT, RICHARD H/SANDRA D | 0 | 0 | $0.00 | 97127 | 0 |
| 4 | 02/12/2003 | QCD | Quit Claim Deed | GITT, LAVERNE E/VERDA N | GITT, RICHARD H/SANDRA D | 0 | 0 | $8,000.00 | 96657 | 0 |
|   | |
| 5 | 12/20/2000 | QCD | Quit Claim Deed | GITT, LAVERN E & VERDA N | GITT FAMILY TRUST | 0 | 0 | $0.00 | 91303 | 0 |
Payout Agreement
| No payout information available.. |