Property
Account |
| Property ID: | 23527 | Abbreviated Legal Description: | S29 T29 R1E TAX 29 |
| Parcel # / Geo ID: | 921292025 | Agent Code: | |
| Type: | Real | | |
| Tax Area: | 0213 - 1-49F1E1H2L1 | Land Use Code | 18 |
| Open Space: | N | DFL | N |
| Historic Property: | N | Remodel Property: | N |
| Multi-Family Redevelopment: | N | | |
| Township: | 29N | Section: | 29 |
| Range: | 1E |
Location |
| Address: | | Mapsco: | 178/009 |
| Neighborhood: | S28 & S29 T29N R1E & OAK BAY WTRF TRTS & OLELE POINT | Map ID: | |
| Neighborhood CD: | 3280 |
Owner |
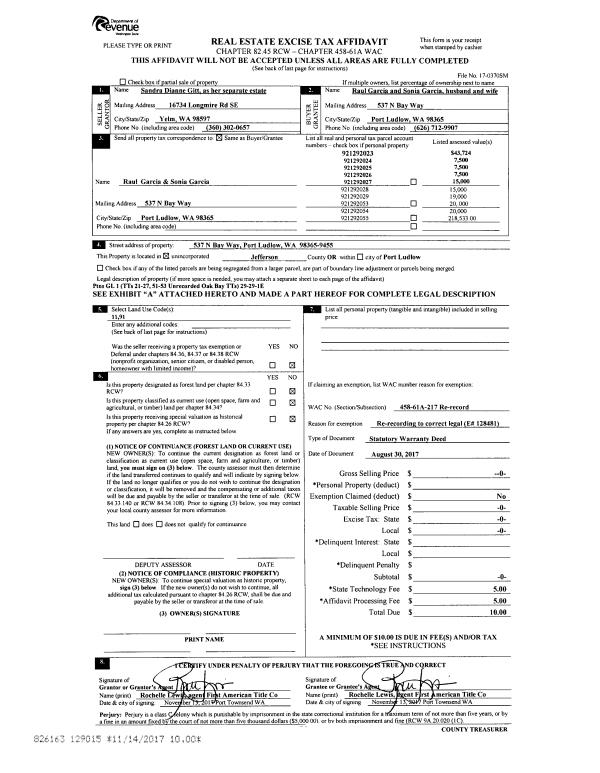
| Name: | RAUL & SONIA GARCIA | Owner ID: | 97872 |
| Mailing Address: | 537 N BAY WAY PORT LUDLOW, WA 98365-9455 | % Ownership: | 100.0000000000% |
| | | Exemptions: | |
Pay Tax Due
There is currently No Amount Due on this property.
Taxes and Assessment Details
Property Tax Information as of
03/12/2026
Click on "Statement Details" to expand or collapse a tax statement.
* Please enter a valid date ** Please enter a valid date *
Statement Details |
| | TOTAL: | $0.00 | $0.00 | $0.00 | $0.00 | $0.00 | $0.00 |
|
| | $0.00 | $0.00 | $0.00 | $0.00 | $0.00 | $0.00 |
Values
| (+) Improvement Homesite Value: | + | $0 | |
| (+) Improvement Non-Homesite Value: | + | $0 | |
| (+) Land Homesite Value: | + | $0 | |
| (+) Land Non-Homesite Value: | + | $12,938 | |
| (+) Curr Use (HS): | + | $0 | $0 |
| (+) Curr Use (NHS): | + | $0 | $0 |
| | | -------------------------- | |
| (=) Market Value: | = | $12,938 | |
| (–) Productivity Loss: | – | $0 | |
| | | -------------------------- | |
| (=) Subtotal: | = | $12,938 | |
| (+) Senior Appraised Value: | + | $0 | |
| (+) Non-Senior Appraised Value: | + | $12,938 | |
| | | -------------------------- | |
| (=) Total Appraised Value: | = | $12,938 | |
| (–) Senior Exemption Loss: | – | $0 | |
| (–) Exemption Loss: | – | $0 | |
| | | -------------------------- | |
| (=) Taxable Value: | = | $12,938 | |
Taxing Jurisdiction
| Owner: | RAUL & SONIA GARCIA | | |
| % Ownership: | 100.0000000000% | | |
| Total Value: | N/A | | |
| Tax Area: | 0213 - 1-49F1E1H2L1 |
| CE | COUNTY CURRENT EXPENSE | N/A | N/A | N/A | N/A | | |
| CNTYDD | DEVELOPMENTAL DISABILITIES | N/A | N/A | N/A | N/A | | |
| CNTYVET | VETERANS RELIEF | N/A | N/A | N/A | N/A | | |
| MENTAL | MENTAL HEALTH | N/A | N/A | N/A | N/A | | |
| ROADS | COUNTY ROADS | N/A | N/A | N/A | N/A | | |
| HOSP2CASH | HOSP DIST #2 GENERAL | N/A | N/A | N/A | N/A | | |
| SCH49CP | SCHOOL DIST #49 CAP PROJ | N/A | N/A | N/A | N/A | | |
| SCH49MO | SCHOOL DIST #49 EP & O | N/A | N/A | N/A | N/A | | |
| CONSERVE | CONSERVATION FUTURES | N/A | N/A | N/A | N/A | | |
| EMS1 | FIRE DIST #1 EMS | N/A | N/A | N/A | N/A | | |
| FD1 | FIRE DIST #1 GENERAL | N/A | N/A | N/A | N/A | | |
| LIB1 | LIBRARY DIST #1 GENERAL | N/A | N/A | N/A | N/A | | |
| PORTPT | PORT OF PT GENERAL | N/A | N/A | N/A | N/A | | |
| PORTPTIDD | PORT OF PT IDD 2019 | N/A | N/A | N/A | N/A | | |
| PUD1 | PUD #1 GENERAL | N/A | N/A | N/A | N/A | | |
| STATE | STATE SCHOOL PART 1 | N/A | N/A | N/A | N/A | | |
| STATE2 | STATE SCHOOL PART 2 | N/A | N/A | N/A | N/A | | |
| | Total Tax Rate: | N/A | | | | | |
| | | | | Taxes w/Current Exemptions: | N/A | | |
| | | | | Taxes w/o Exemptions: | N/A | | |
Improvement / Building
Sketch
| No sketches available for this property. |
Property Image
Land
| 1 | 3280-1185L | No/Limited View Lots Oak Bay Unrecorded Tracts | 0.0000 | 0.00 | 0.00 | 0.00 | 1.00 | $12,938 | $0 |
Roll Value History
| 2026 | N/A | N/A | N/A | N/A | N/A |
| 2025 | $0 | $12,938 | $0 | $12,938 | $12,938 |
| 2024 | $0 | $12,375 | $0 | $12,375 | $12,375 |
| 2023 | $0 | $11,250 | $0 | $11,250 | $11,250 |
| 2022 | $0 | $11,250 | $0 | $11,250 | $11,250 |
Deed and Sales History
| 1 | 08/30/2017 | SWD | Statutory Warranty Deed | SANDRA D GITT | RAUL & SONIA GARCIA | | | $470,000.00 | 128481 | |
|   | |
| 2 | 03/23/2011 | QCD | Quit Claim Deed | GITT, RICHARD HAROLD | GITT, SANDRA DIANE | | | $0.00 | 115906 | 0 |
| 3 | 04/14/2003 | QCD | Quit Claim Deed | GITT FAMILY REVOCABLE LIV | GITT, RICHARD H/SANDRA D | 0 | 0 | $0.00 | 97127 | 0 |
| 4 | 02/12/2003 | QCD | Quit Claim Deed | GITT, LAVERNE E/VERDA N | GITT, RICHARD H/SANDRA D | 0 | 0 | $8,000.00 | 96657 | 0 |
|   | |
| 5 | 12/20/2000 | QCD | Quit Claim Deed | GITT, LAVERN E & VERDA N | GITT FAMILY TRUST | 0 | 0 | $0.00 | 91303 | 0 |
Payout Agreement
| No payout information available.. |