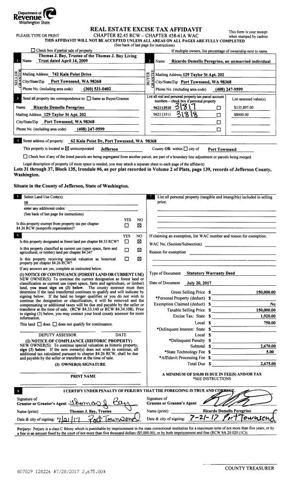
Property
Account |
| Property ID: | 23556 | Abbreviated Legal Description: | S29 T29 R1E TAX 58 |
| Parcel # / Geo ID: | 921292054 | Agent Code: | |
| Type: | Real | | |
| Tax Area: | 0213 - 1-49F1E1H2L1 | Land Use Code | 91 |
| Open Space: | N | DFL | N |
| Historic Property: | N | Remodel Property: | N |
| Multi-Family Redevelopment: | N | | |
| Township: | 29N | Section: | 29 |
| Range: | 1E |
Location |
| Address: | | Mapsco: | 178/038 |
| Neighborhood: | S28 & S29 T29N R1E & OAK BAY WTRF TRTS & OLELE POINT | Map ID: | |
| Neighborhood CD: | 3280 |
Owner |
| Name: | RAUL & SONIA GARCIA | Owner ID: | 97872 |
| Mailing Address: | 537 N BAY WAY PORT LUDLOW, WA 98365-9455 | % Ownership: | 100.0000000000% |
| | | Exemptions: | |
Pay Tax Due
Select the appropriate checkbox next to the year to be paid. Multiple years may be selected.
*Convenience Fee not included
Taxes and Assessment Details
Property Tax Information as of
03/11/2026
Click on "Statement Details" to expand or collapse a tax statement.
* Please enter a valid date ** Please enter a valid date *
Statement Details |
| 2026 | 12990 | STATE - STATE LEVY (SCHOOL) | $39.67 | $39.65 | $0.00 | $0.00 | $0.00 | $79.32 |
| 2026 | 12990 | COUNTY - COUNTY LEVIES (CE, DD, VET, MH) | $15.86 | $15.85 | $0.00 | $0.00 | $0.00 | $31.71 |
| 2026 | 12990 | CONSERVE - CONSERVATION FUTURES | $0.48 | $0.47 | $0.00 | $0.00 | $0.00 | $0.95 |
| 2026 | 12990 | COROADS - COUNTY ROADS (ROADS, DIV TO CE) | $12.79 | $12.79 | $0.00 | $0.00 | $0.00 | $25.58 |
| 2026 | 12990 | PORTPT - PORT DISTRICT | $6.41 | $6.40 | $0.00 | $0.00 | $0.00 | $12.81 |
| 2026 | 12990 | PUD1 - PUD #1 | $1.03 | $1.03 | $0.00 | $0.00 | $0.00 | $2.06 |
| 2026 | 12990 | LIB1 - LIBRARY DIST #1 | $4.95 | $4.95 | $0.00 | $0.00 | $0.00 | $9.90 |
| 2026 | 12990 | HD2 - HOSP DIST #2 | $0.93 | $0.92 | $0.00 | $0.00 | $0.00 | $1.85 |
| 2026 | 12990 | SD49 - SCHOOL DIST #49 | $21.83 | $21.83 | $0.00 | $0.00 | $0.00 | $43.66 |
| 2026 | 12990 | FD1 - FIRE DISTRICT #1 | $21.00 | $20.99 | $0.00 | $0.00 | $0.00 | $41.99 |
| 2026 | 12990 | EMS1 - FIRE DIST #1 EMS | $8.08 | $8.07 | $0.00 | $0.00 | $0.00 | $16.15 |
| 2026 | 12990 | JCCD - JC Conservation District | $2.53 | $2.53 | $0.00 | $0.00 | $0.00 | $5.06 |
| 2026 | 12990 | NWA - Noxious Weed Assessment | $2.98 | $2.97 | $0.00 | $0.00 | $0.00 | $5.95 |
| 2026 | 12990 | WAT - Clean Water District | $13.00 | $13.00 | $0.00 | $0.00 | $0.00 | $26.00 |
| 2026 | 12990 | TOTAL: | $151.54 | $151.45 | $0.00 | $0.00 | $0.00 | $302.99 |
|
| 2026 | 12990 | $151.54 | $151.45 | $0.00 | $0.00 | $0.00 | $302.99 |
Statement Details |
| 2025 | 13016 | STATE - STATE LEVY (SCHOOL) | $39.57 | $39.56 | $0.00 | $0.00 | $79.13 | $0.00 |
| 2025 | 13016 | COUNTY - COUNTY LEVIES (CE, DD, VET, MH) | $15.57 | $15.56 | $0.00 | $0.00 | $31.13 | $0.00 |
| 2025 | 13016 | CONSERVE - CONSERVATION FUTURES | $0.47 | $0.46 | $0.00 | $0.00 | $0.93 | $0.00 |
| 2025 | 13016 | COROADS - COUNTY ROADS (ROADS, DIV TO CE) | $12.47 | $12.46 | $0.00 | $0.00 | $24.93 | $0.00 |
| 2025 | 13016 | PORTPT - PORT DISTRICT | $6.35 | $6.35 | $0.00 | $0.00 | $12.70 | $0.00 |
| 2025 | 13016 | PUD1 - PUD #1 | $1.02 | $1.02 | $0.00 | $0.00 | $2.04 | $0.00 |
| 2025 | 13016 | LIB1 - LIBRARY DIST #1 | $4.83 | $4.82 | $0.00 | $0.00 | $9.65 | $0.00 |
| 2025 | 13016 | HD2 - HOSP DIST #2 | $0.91 | $0.91 | $0.00 | $0.00 | $1.82 | $0.00 |
| 2025 | 13016 | SD49 - SCHOOL DIST #49 | $21.21 | $21.20 | $0.00 | $0.00 | $42.41 | $0.00 |
| 2025 | 13016 | FD1 - FIRE DISTRICT #1 | $20.54 | $20.53 | $0.00 | $0.00 | $41.07 | $0.00 |
| 2025 | 13016 | EMS1 - FIRE DIST #1 EMS | $7.90 | $7.89 | $0.00 | $0.00 | $15.79 | $0.00 |
| 2025 | 13016 | JCCD - JC Conservation District | $2.53 | $2.53 | $0.00 | $0.00 | $5.06 | $0.00 |
| 2025 | 13016 | NWA - Noxious Weed Assessment | $2.15 | $2.15 | $0.00 | $0.00 | $4.30 | $0.00 |
| 2025 | 13016 | WAT - Clean Water District | $13.00 | $13.00 | $0.00 | $0.00 | $26.00 | $0.00 |
| 2025 | 13016 | TOTAL: | $148.52 | $148.44 | $0.00 | $0.00 | $296.96 | $0.00 |
|
| 2025 | 13016 | $148.52 | $148.44 | $0.00 | $0.00 | $296.96 | $0.00 |
Statement Details |
| 2024 | 13045 | STATE - STATE LEVY (SCHOOL) | $34.71 | $34.69 | $0.00 | $0.00 | $69.40 | $0.00 |
| 2024 | 13045 | COUNTY - COUNTY LEVIES (CE, DD, VET, MH) | $14.87 | $14.84 | $0.00 | $0.00 | $29.71 | $0.00 |
| 2024 | 13045 | CONSERVE - CONSERVATION FUTURES | $0.45 | $0.44 | $0.00 | $0.00 | $0.89 | $0.00 |
| 2024 | 13045 | COROADS - COUNTY ROADS (ROADS, DIV TO CE) | $11.95 | $11.94 | $0.00 | $0.00 | $23.89 | $0.00 |
| 2024 | 13045 | PORTPT - PORT DISTRICT | $6.14 | $6.13 | $0.00 | $0.00 | $12.27 | $0.00 |
| 2024 | 13045 | PUD1 - PUD #1 | $0.98 | $0.97 | $0.00 | $0.00 | $1.95 | $0.00 |
| 2024 | 13045 | LIB1 - LIBRARY DIST #1 | $4.63 | $4.62 | $0.00 | $0.00 | $9.25 | $0.00 |
| 2024 | 13045 | HD2 - HOSP DIST #2 | $0.87 | $0.86 | $0.00 | $0.00 | $1.73 | $0.00 |
| 2024 | 13045 | SD49 - SCHOOL DIST #49 | $15.51 | $15.49 | $0.00 | $0.00 | $31.00 | $0.00 |
| 2024 | 13045 | FD1 - FIRE DISTRICT #1 | $19.64 | $19.63 | $0.00 | $0.00 | $39.27 | $0.00 |
| 2024 | 13045 | EMS1 - FIRE DIST #1 EMS | $7.50 | $7.50 | $0.00 | $0.00 | $15.00 | $0.00 |
| 2024 | 13045 | JCCD - JC Conservation District | $2.53 | $2.53 | $0.00 | $0.00 | $5.06 | $0.00 |
| 2024 | 13045 | NWA - Noxious Weed Assessment | $2.15 | $2.15 | $0.00 | $0.00 | $4.30 | $0.00 |
| 2024 | 13045 | WAT - Clean Water District | $12.50 | $12.50 | $0.00 | $0.00 | $25.00 | $0.00 |
| 2024 | 13045 | TOTAL: | $134.43 | $134.29 | $0.00 | $0.00 | $268.72 | $0.00 |
|
| 2024 | 13045 | $134.43 | $134.29 | $0.00 | $0.00 | $268.72 | $0.00 |
Statement Details |
| 2023 | 13066 | STATE - STATE LEVY (SCHOOL) | $35.32 | $35.30 | $0.00 | $0.00 | $70.62 | $0.00 |
| 2023 | 13066 | COUNTY - COUNTY LEVIES (CE, DD, VET, MH) | $15.42 | $15.39 | $0.00 | $0.00 | $30.81 | $0.00 |
| 2023 | 13066 | CONSERVE - CONSERVATION FUTURES | $0.46 | $0.46 | $0.00 | $0.00 | $0.92 | $0.00 |
| 2023 | 13066 | COROADS - COUNTY ROADS (ROADS, DIV TO CE) | $12.47 | $12.46 | $0.00 | $0.00 | $24.93 | $0.00 |
| 2023 | 13066 | PORTPT - PORT DISTRICT | $6.50 | $6.49 | $0.00 | $0.00 | $12.99 | $0.00 |
| 2023 | 13066 | PUD1 - PUD #1 | $1.02 | $1.02 | $0.00 | $0.00 | $2.04 | $0.00 |
| 2023 | 13066 | LIB1 - LIBRARY DIST #1 | $4.83 | $4.82 | $0.00 | $0.00 | $9.65 | $0.00 |
| 2023 | 13066 | HD2 - HOSP DIST #2 | $0.90 | $0.90 | $0.00 | $0.00 | $1.80 | $0.00 |
| 2023 | 13066 | SD49 - SCHOOL DIST #49 | $16.52 | $16.50 | $0.00 | $0.00 | $33.02 | $0.00 |
| 2023 | 13066 | FD3 - FIRE DISTRICT #3 | $15.33 | $15.33 | $0.00 | $0.00 | $30.66 | $0.00 |
| 2023 | 13066 | EMS3 - FIRE DIST #3 EMS | $5.48 | $5.48 | $0.00 | $0.00 | $10.96 | $0.00 |
| 2023 | 13066 | JCCD - JC Conservation District | $2.53 | $2.53 | $0.00 | $0.00 | $5.06 | $0.00 |
| 2023 | 13066 | NWA - Noxious Weed Assessment | $2.15 | $2.15 | $0.00 | $0.00 | $4.30 | $0.00 |
| 2023 | 13066 | WAT - Clean Water District | $12.00 | $12.00 | $0.00 | $0.00 | $24.00 | $0.00 |
| 2023 | 13066 | TOTAL: | $130.93 | $130.83 | $0.00 | $0.00 | $261.76 | $0.00 |
|
| 2023 | 13066 | $130.93 | $130.83 | $0.00 | $0.00 | $261.76 | $0.00 |
Values
| (+) Improvement Homesite Value: | + | $0 | |
| (+) Improvement Non-Homesite Value: | + | $0 | |
| (+) Land Homesite Value: | + | $0 | |
| (+) Land Non-Homesite Value: | + | $34,500 | |
| (+) Curr Use (HS): | + | $0 | $0 |
| (+) Curr Use (NHS): | + | $0 | $0 |
| | | -------------------------- | |
| (=) Market Value: | = | $34,500 | |
| (–) Productivity Loss: | – | $0 | |
| | | -------------------------- | |
| (=) Subtotal: | = | $34,500 | |
| (+) Senior Appraised Value: | + | $0 | |
| (+) Non-Senior Appraised Value: | + | $34,500 | |
| | | -------------------------- | |
| (=) Total Appraised Value: | = | $34,500 | |
| (–) Senior Exemption Loss: | – | $0 | |
| (–) Exemption Loss: | – | $0 | |
| | | -------------------------- | |
| (=) Taxable Value: | = | $34,500 | |
Taxing Jurisdiction
| Owner: | RAUL & SONIA GARCIA | | |
| % Ownership: | 100.0000000000% | | |
| Total Value: | N/A | | |
| Tax Area: | 0213 - 1-49F1E1H2L1 |
| CE | COUNTY CURRENT EXPENSE | N/A | N/A | N/A | N/A | | |
| CNTYDD | DEVELOPMENTAL DISABILITIES | N/A | N/A | N/A | N/A | | |
| CNTYVET | VETERANS RELIEF | N/A | N/A | N/A | N/A | | |
| MENTAL | MENTAL HEALTH | N/A | N/A | N/A | N/A | | |
| ROADS | COUNTY ROADS | N/A | N/A | N/A | N/A | | |
| HOSP2CASH | HOSP DIST #2 GENERAL | N/A | N/A | N/A | N/A | | |
| SCH49CP | SCHOOL DIST #49 CAP PROJ | N/A | N/A | N/A | N/A | | |
| SCH49MO | SCHOOL DIST #49 EP & O | N/A | N/A | N/A | N/A | | |
| CONSERVE | CONSERVATION FUTURES | N/A | N/A | N/A | N/A | | |
| EMS1 | FIRE DIST #1 EMS | N/A | N/A | N/A | N/A | | |
| FD1 | FIRE DIST #1 GENERAL | N/A | N/A | N/A | N/A | | |
| LIB1 | LIBRARY DIST #1 GENERAL | N/A | N/A | N/A | N/A | | |
| PORTPT | PORT OF PT GENERAL | N/A | N/A | N/A | N/A | | |
| PORTPTIDD | PORT OF PT IDD 2019 | N/A | N/A | N/A | N/A | | |
| PUD1 | PUD #1 GENERAL | N/A | N/A | N/A | N/A | | |
| STATE | STATE SCHOOL PART 1 | N/A | N/A | N/A | N/A | | |
| STATE2 | STATE SCHOOL PART 2 | N/A | N/A | N/A | N/A | | |
| | Total Tax Rate: | N/A | | | | | |
| | | | | Taxes w/Current Exemptions: | N/A | | |
| | | | | Taxes w/o Exemptions: | N/A | | |
Improvement / Building
Sketch
| No sketches available for this property. |
Property Image
Land
| 1 | 3280-1185L | | 0.0000 | 0.00 | 0.00 | 0.00 | 1.00 | $34,500 | $0 |
Roll Value History
| 2026 | N/A | N/A | N/A | N/A | N/A |
| 2025 | $0 | $34,500 | $0 | $34,500 | $34,500 |
| 2024 | $0 | $33,000 | $0 | $33,000 | $33,000 |
| 2023 | $0 | $30,000 | $0 | $30,000 | $30,000 |
| 2022 | $0 | $30,000 | $0 | $30,000 | $30,000 |
Deed and Sales History
| 1 | 08/30/2017 | SWD | Statutory Warranty Deed | SANDRA D GITT | RAUL & SONIA GARCIA | | | $470,000.00 | 128481 | |
|   | |
| 2 | 11/16/2015 | QCD | Quit Claim Deed | | | | | | 124594 | |
| 3 | 11/16/2015 | QCD | Quit Claim Deed | OAK BAY HIDEAWAY LLC | SANDRA D GITT | | | | 124396 | |
| 4 | 09/21/2015 | QCD | Quit Claim Deed | | | | | | 124127 | |
| 5 | 09/21/2015 | QCD | Quit Claim Deed | SANDRA D GITT | OAK BAY HIDEAWAY LLC | | | | 124038 | |
Payout Agreement
| No payout information available.. |