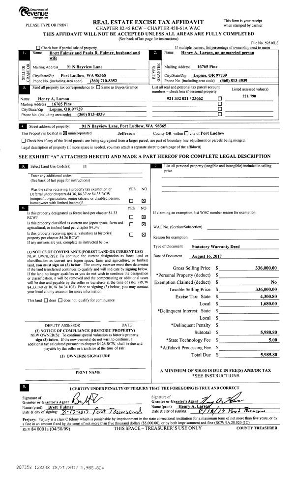
Property
Account |
| Property ID: | 23662 | Abbreviated Legal Description: | S33 T29 R1E TAX 19 (W280' LS S 30') W/EASE |
| Parcel # / Geo ID: | 921332021 | Agent Code: | |
| Type: | Real | | |
| Tax Area: | 0213 - 1-49F1E1H2L1 | Land Use Code | 11 |
| Open Space: | N | DFL | N |
| Historic Property: | N | Remodel Property: | N |
| Multi-Family Redevelopment: | N | | |
| Township: | 29N | Section: | 33 |
| Range: | 1E |
Location |
| Address: | 91 N BAYVIEW DR PORT LUDLOW, WA 98365 | Mapsco: | 180/023 |
| Neighborhood: | S32,S33 T29N R1E; MATS MATS BEACH; RIDGECREST/GAINER/LACY SP | Map ID: | |
| Neighborhood CD: | 3290 |
Owner |
| Name: | HENRY A LARSON | Owner ID: | 97804 |
| Mailing Address: | 91 N BAYVIEW DR PORT LUDLOW, WA 98365-9447 | % Ownership: | 100.0000000000% |
| | | Exemptions: | |
Pay Tax Due
There is currently No Amount Due on this property.
Taxes and Assessment Details
Property Tax Information as of
03/10/2026
Click on "Statement Details" to expand or collapse a tax statement.
* Please enter a valid date ** Please enter a valid date *
Statement Details |
| | TOTAL: | $0.00 | $0.00 | $0.00 | $0.00 | $0.00 | $0.00 |
|
| | $0.00 | $0.00 | $0.00 | $0.00 | $0.00 | $0.00 |
Values
| (+) Improvement Homesite Value: | + | $0 | |
| (+) Improvement Non-Homesite Value: | + | $369,581 | |
| (+) Land Homesite Value: | + | $0 | |
| (+) Land Non-Homesite Value: | + | $141,381 | |
| (+) Curr Use (HS): | + | $0 | $0 |
| (+) Curr Use (NHS): | + | $0 | $0 |
| | | -------------------------- | |
| (=) Market Value: | = | $510,962 | |
| (–) Productivity Loss: | – | $0 | |
| | | -------------------------- | |
| (=) Subtotal: | = | $510,962 | |
| (+) Senior Appraised Value: | + | $0 | |
| (+) Non-Senior Appraised Value: | + | $510,962 | |
| | | -------------------------- | |
| (=) Total Appraised Value: | = | $510,962 | |
| (–) Senior Exemption Loss: | – | $0 | |
| (–) Exemption Loss: | – | $0 | |
| | | -------------------------- | |
| (=) Taxable Value: | = | $510,962 | |
Taxing Jurisdiction
| Owner: | HENRY A LARSON | | |
| % Ownership: | 100.0000000000% | | |
| Total Value: | $510,962 | | |
| Tax Area: | 0213 - 1-49F1E1H2L1 |
| CE | COUNTY CURRENT EXPENSE | 0.9034619479 | $510,962 | $510,962 | $461.63 | | |
| CNTYDD | DEVELOPMENTAL DISABILITIES | 0.0052121823 | $510,962 | $510,962 | $2.66 | | |
| CNTYVET | VETERANS RELIEF | 0.0052777810 | $510,962 | $510,962 | $2.70 | | |
| MENTAL | MENTAL HEALTH | 0.0052121823 | $510,962 | $510,962 | $2.66 | | |
| ROADS | COUNTY ROADS | 0.7415066410 | $510,962 | $510,962 | $378.88 | | |
| ROADSCU | COUNTY ROADS TO CUR EXP | 0.0000000000 | $510,962 | $510,962 | $0.00 | | |
| HOSP2CASH | HOSP DIST #2 GENERAL | 0.0536075306 | $510,962 | $510,962 | $27.39 | | |
| SCH49CP | SCHOOL DIST #49 CAP PROJ | 0.6279093905 | $510,962 | $510,962 | $320.84 | | |
| SCH49MO | SCHOOL DIST #49 EP & O | 0.6376483602 | $510,962 | $510,962 | $325.81 | | |
| CONSERVE | CONSERVATION FUTURES | 0.0275621078 | $510,962 | $510,962 | $14.08 | | |
| EMS1 | FIRE DIST #1 EMS | 0.4679948282 | $510,962 | $510,962 | $239.13 | | |
| FD1 | FIRE DIST #1 GENERAL | 1.2171942929 | $510,962 | $510,962 | $621.94 | | |
| LIB1 | LIBRARY DIST #1 GENERAL | 0.2868827388 | $510,962 | $510,962 | $146.59 | | |
| PORTPT | PORT OF PT GENERAL | 0.1134941229 | $510,962 | $510,962 | $57.99 | | |
| PORTPTIDD | PORT OF PT IDD 2019 | 0.2577346692 | $510,962 | $510,962 | $131.69 | | |
| PUD1 | PUD #1 GENERAL | 0.0597888892 | $510,962 | $510,962 | $30.55 | | |
| STATE | STATE SCHOOL PART 1 | 1.4940692947 | $510,962 | $510,962 | $763.41 | | |
| STATE2 | STATE SCHOOL PART 2 | 0.8050170049 | $510,962 | $510,962 | $411.33 | | |
| | Total Tax Rate: | 7.7095739644 | | | | | |
| | | | | Taxes w/Current Exemptions: | $3,939.28 | | |
| | | | | Taxes w/o Exemptions: | $3,939.28 | | |
Improvement / Building
| Improvement #1: | Residential Bldg | State Code: | 11 | 2156.0 sqft | Value: | $369,581 |
| Bathrooms (#): | 2 (FULL) | Bedrooms (#): | 3 | | Exterior Wall: | PL/T1 | Fireplace: | SIN 1-AVG | | Fireplace: | WD ST-AVG | Floor Construction: | FRAME | | Foundation: | CONPR | Heating/Cooling: | HPUMP | | Inside Verify: | YES-FIX | Roof Cover: | METAL |
|
| | Type | Description | Class CD | Sub Class CD | Year Built | Area |
| | MA | Main Area | 3+ | 15SF | 1974 | 1476.0 |
| | MA2 | Second Floor Main Area | 3+ | 15SF | 1974 | 680.0 |
| | HDECK | House Deck | 3 | * | 1974 | 1536.0 |
| | SHED | Shed (Table Not Dep) | 3 | * | 1974 | 160.0 |
| | HRPO | House Roof Patio | 3 | * | 1974 | 60.0 |
| | GARAG | Garage (Table Not Dep) | 5 | * | 2018 | 576.0 |
Sketch
Property Image
Land
| 1 | 3290-1365S | Fair/Filtered Wtr/Terr View Sites 1+/- Acre | 1.0000 | 43560.00 | 0.00 | 0.00 | 1.00 | $129,375 | $0 |
| 2 | 1575A | Terr/Mtn/No View <6 Acres | 1.1600 | 50529.60 | 0.00 | 0.00 | 0.00 | $12,006 | $0 |
Roll Value History
| 2026 | N/A | N/A | N/A | N/A | N/A |
| 2025 | $369,581 | $141,381 | $0 | $510,962 | $510,962 |
| 2024 | $354,182 | $135,234 | $0 | $489,416 | $489,416 |
| 2023 | $338,782 | $117,360 | $0 | $456,142 | $456,142 |
| 2022 | $323,383 | $111,200 | $0 | $434,583 | $434,583 |
Deed and Sales History
| 1 | 08/16/2017 | SWD | Statutory Warranty Deed | BRETT M FULMER | HENRY A LARSON | | | $336,000.00 | 128348 | |
Payout Agreement
| No payout information available.. |