Property
Account |
| Property ID: | 23700 | Abbreviated Legal Description: | ALDRICH'S ADDITION BLK 5 LOT 1 |
| Parcel # / Geo ID: | 930300501 | Agent Code: | |
| Type: | Real | | |
| Tax Area: | 0110 - C-50F1E1H2 | Land Use Code | 11 |
| Open Space: | N | DFL | N |
| Historic Property: | N | Remodel Property: | N |
| Multi-Family Redevelopment: | N | | |
| Township: | 31N | Section: | 35 |
| Range: | 1W |
Location |
| Address: | 315 V ST PORT TOWNSEND, WA 98368 | Mapsco: | 001/014 |
| Neighborhood: | PTN OF PETTYGROVES 2ND LYING EAST OF CHERRY ST. & ALDRICH'S | Map ID: | |
| Neighborhood CD: | 6420 |
Owner |
| Name: | ROY W & JUDITH L HINES REVOCABLE LIVING TRUST | Owner ID: | 108724 |
| Mailing Address: | ROY W & JUDITH L HINES TRUSTEES PO BOX 968 MAPLE VALLEY, WA 98038-0968 | % Ownership: | 100.0000000000% |
| | | Exemptions: | |
Pay Tax Due
There is currently No Amount Due on this property.
Taxes and Assessment Details
Property Tax Information as of
03/11/2026
Click on "Statement Details" to expand or collapse a tax statement.
* Please enter a valid date ** Please enter a valid date *
Statement Details |
| | TOTAL: | $0.00 | $0.00 | $0.00 | $0.00 | $0.00 | $0.00 |
|
| | $0.00 | $0.00 | $0.00 | $0.00 | $0.00 | $0.00 |
Values
| (+) Improvement Homesite Value: | + | $0 | |
| (+) Improvement Non-Homesite Value: | + | $437,341 | |
| (+) Land Homesite Value: | + | $0 | |
| (+) Land Non-Homesite Value: | + | $250,000 | |
| (+) Curr Use (HS): | + | $0 | $0 |
| (+) Curr Use (NHS): | + | $0 | $0 |
| | | -------------------------- | |
| (=) Market Value: | = | $687,341 | |
| (–) Productivity Loss: | – | $0 | |
| | | -------------------------- | |
| (=) Subtotal: | = | $687,341 | |
| (+) Senior Appraised Value: | + | $0 | |
| (+) Non-Senior Appraised Value: | + | $687,341 | |
| | | -------------------------- | |
| (=) Total Appraised Value: | = | $687,341 | |
| (–) Senior Exemption Loss: | – | $0 | |
| (–) Exemption Loss: | – | $0 | |
| | | -------------------------- | |
| (=) Taxable Value: | = | $687,341 | |
Taxing Jurisdiction
| Owner: | ROY W & JUDITH L HINES REVOCABLE LIVING TRUST | | |
| % Ownership: | 100.0000000000% | | |
| Total Value: | $687,341 | | |
| Tax Area: | 0110 - C-50F1E1H2 |
| CE | COUNTY CURRENT EXPENSE | 0.9034619479 | $687,341 | $687,341 | $620.99 | | |
| CNTYDD | DEVELOPMENTAL DISABILITIES | 0.0052121823 | $687,341 | $687,341 | $3.58 | | |
| CNTYVET | VETERANS RELIEF | 0.0052777810 | $687,341 | $687,341 | $3.63 | | |
| MENTAL | MENTAL HEALTH | 0.0052121823 | $687,341 | $687,341 | $3.58 | | |
| PTGEN | CITY OF PT GENERAL | 0.8551967795 | $687,341 | $687,341 | $587.81 | | |
| PTLLL | CITY OF PT - LIBRARY LID LIFT | 0.4010114288 | $687,341 | $687,341 | $275.63 | | |
| PTMVBOND | CITY OF PT MV BOND | 0.0484717981 | $687,341 | $687,341 | $33.32 | | |
| HOSP2CASH | HOSP DIST #2 GENERAL | 0.0536075306 | $687,341 | $687,341 | $36.85 | | |
| SCH50BOND | SCHOOL DIST #50 BOND 2016 | 0.5377451389 | $687,341 | $687,341 | $369.61 | | |
| SCH50CP | SCHOOL DIST #50 CAP PROJ | 0.4573475088 | $687,341 | $687,341 | $314.35 | | |
| SCH50MO | SCHOOL DIST #50 EP & O | 0.8262822886 | $687,341 | $687,341 | $567.94 | | |
| CONSERVE | CONSERVATION FUTURES | 0.0275621078 | $687,341 | $687,341 | $18.94 | | |
| EMS1 | FIRE DIST #1 EMS | 0.4679948282 | $687,341 | $687,341 | $321.67 | | |
| FD1 | FIRE DIST #1 GENERAL | 1.2171942929 | $687,341 | $687,341 | $836.63 | | |
| PORTPT | PORT OF PT GENERAL | 0.1134941229 | $687,341 | $687,341 | $78.01 | | |
| PORTPTIDD | PORT OF PT IDD 2019 | 0.2577346692 | $687,341 | $687,341 | $177.15 | | |
| PUD1 | PUD #1 GENERAL | 0.0597888892 | $687,341 | $687,341 | $41.10 | | |
| STATE | STATE SCHOOL PART 1 | 1.4940692947 | $687,341 | $687,341 | $1,026.94 | | |
| STATE2 | STATE SCHOOL PART 2 | 0.8050170049 | $687,341 | $687,341 | $553.32 | | |
| | Total Tax Rate: | 8.5416817766 | | | | | |
| | | | | Taxes w/Current Exemptions: | $5,871.05 | | |
| | | | | Taxes w/o Exemptions: | $5,871.05 | | |
Improvement / Building
| Improvement #1: | Residential Bldg | State Code: | 11 | 946.0 sqft | Value: | $437,341 |
| Bathrooms (#): | 2 (FULL) | Bedrooms (#): | 2 | | Exterior Wall: | SI/ST | Foundation: | CONPR | | Roof Cover: | COMP |   |   |
|
| | Type | Description | Class CD | Sub Class CD | Year Built | Area |
| | MA | Main Area | 5 | 2S | 2017 | 946.0 |
| | BSMTF | House basement finished | 5 | * | 2017 | 775.0 |
Sketch
Property Image
Land
| 1 | 6420-1145L | Pettygroves 2nd Area of Good Views | 0.0000 | 0.00 | 0.00 | 0.00 | 1.00 | $250,000 | $0 |
Roll Value History
| 2026 | N/A | N/A | N/A | N/A | N/A |
| 2025 | $437,341 | $250,000 | $0 | $687,341 | $687,341 |
| 2024 | $405,626 | $253,000 | $0 | $658,626 | $658,626 |
| 2023 | $389,401 | $236,250 | $0 | $625,651 | $625,651 |
| 2022 | $330,252 | $220,000 | $0 | $550,252 | $550,252 |
Deed and Sales History
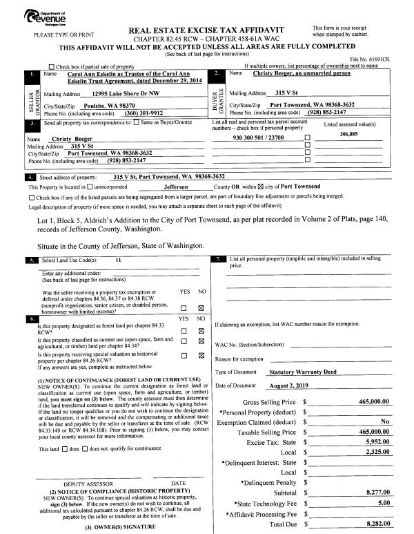
| 1 | 04/24/2023 | SWD | Statutory Warranty Deed | CHRISTY BEEGER | ROY W & JUDITH L HINES REVOCABLE LIVING TRUST | | | $650,000.00 | 140820 | |
| 2 | 08/02/2019 | SWD | Statutory Warranty Deed | CAROL ANN ESKELIN TRUST | CHRISTY BEEGER | | | $465,000.00 | 132887 | |
| 3 | 07/28/2015 | QCD | Quit Claim Deed | CAROL ANN ESKELIN | CAROL ANN ESKELIN TRUST | | | | 123735 | |
| 4 | 07/28/2015 | QCD | Quit Claim Deed | | | | | | 123734 | |
| 5 | 06/21/2006 | QCD | Quit Claim Deed | RADIN BROTHERS REALTY | RADIN, ROBERT B | | | $0.00 | 106915 | 0 |
| 6 | 06/19/2006 | QCD | Quit Claim Deed | RADIN, ROBERT B | RADIN, ROBERT B RESTATED LIVIN | | | $0.00 | 106916 | 0 |
| 7 | 10/11/2005 | SWD | Statutory Warranty Deed | EVANS, DIANE | RADIN BROTHERS REALTY | 0 | 0 | $191,000.00 | 105044 | 0 |
Payout Agreement
| No payout information available.. |