Property
Account |
| Property ID: | 23701 | Abbreviated Legal Description: | ALDRICH'S ADDITION BLK 5 LOTS 2,3 & 4 |
| Parcel # / Geo ID: | 930300502 | Agent Code: | |
| Type: | Real | | |
| Tax Area: | 0110 - C-50F1E1H2 | Land Use Code | 11 |
| Open Space: | N | DFL | N |
| Historic Property: | N | Remodel Property: | N |
| Multi-Family Redevelopment: | N | | |
| Township: | 31N | Section: | 35 |
| Range: | 1W |
Location |
| Address: | 309 V ST PORT TOWNSEND, WA 98368 | Mapsco: | 001/015 |
| Neighborhood: | PTN OF PETTYGROVES 2ND LYING EAST OF CHERRY ST. & ALDRICH'S | Map ID: | |
| Neighborhood CD: | 6420 |
Owner |
| Name: | 309 V ST LLC | Owner ID: | 107564 |
| Mailing Address: | 353 POR LA MAR CIR SANTA BARBARA, CA 93103-3791 | % Ownership: | 100.0000000000% |
| | | Exemptions: | |
Pay Tax Due
Select the appropriate checkbox next to the year to be paid. Multiple years may be selected.
*Convenience Fee not included
Taxes and Assessment Details
Property Tax Information as of
03/11/2026
Click on "Statement Details" to expand or collapse a tax statement.
* Please enter a valid date ** Please enter a valid date *
Statement Details |
| 2026 | 13134 | STATE - STATE LEVY (SCHOOL) | $1046.88 | $1046.87 | $0.00 | $0.00 | $0.00 | $2093.75 |
| 2026 | 13134 | COUNTY - COUNTY LEVIES (CE, DD, VET, MH) | $418.56 | $418.52 | $0.00 | $0.00 | $0.00 | $837.08 |
| 2026 | 13134 | CONSERVE - CONSERVATION FUTURES | $12.55 | $12.55 | $0.00 | $0.00 | $0.00 | $25.10 |
| 2026 | 13134 | CITYPT - CITY OF PT | $594.08 | $594.08 | $0.00 | $0.00 | $0.00 | $1188.16 |
| 2026 | 13134 | PORTPT - PORT DISTRICT | $169.04 | $169.04 | $0.00 | $0.00 | $0.00 | $338.08 |
| 2026 | 13134 | PUD1 - PUD #1 | $27.23 | $27.22 | $0.00 | $0.00 | $0.00 | $54.45 |
| 2026 | 13134 | HD2 - HOSP DIST #2 | $24.41 | $24.41 | $0.00 | $0.00 | $0.00 | $48.82 |
| 2026 | 13134 | SD50 - SCHOOL DIST #50 | $829.35 | $829.35 | $0.00 | $0.00 | $0.00 | $1658.70 |
| 2026 | 13134 | FD1 - FIRE DISTRICT #1 | $554.24 | $554.24 | $0.00 | $0.00 | $0.00 | $1108.48 |
| 2026 | 13134 | EMS1 - FIRE DIST #1 EMS | $213.10 | $213.10 | $0.00 | $0.00 | $0.00 | $426.20 |
| 2026 | 13134 | JCCD - JC Conservation District | $2.55 | $2.55 | $0.00 | $0.00 | $0.00 | $5.10 |
| 2026 | 13134 | NWA - Noxious Weed Assessment | $2.98 | $2.97 | $0.00 | $0.00 | $0.00 | $5.95 |
| 2026 | 13134 | TOTAL: | $3894.97 | $3894.90 | $0.00 | $0.00 | $0.00 | $7789.87 |
|
| 2026 | 13134 | $3894.97 | $3894.90 | $0.00 | $0.00 | $0.00 | $7789.87 |
Statement Details |
| 2025 | 13160 | STATE - STATE LEVY (SCHOOL) | $1035.98 | $1035.97 | $0.00 | $0.00 | $2071.95 | $0.00 |
| 2025 | 13160 | COUNTY - COUNTY LEVIES (CE, DD, VET, MH) | $407.41 | $407.38 | $0.00 | $0.00 | $814.79 | $0.00 |
| 2025 | 13160 | CONSERVE - CONSERVATION FUTURES | $12.22 | $12.21 | $0.00 | $0.00 | $24.43 | $0.00 |
| 2025 | 13160 | CITYPT - CITY OF PT | $587.50 | $587.50 | $0.00 | $0.00 | $1175.00 | $0.00 |
| 2025 | 13160 | PORTPT - PORT DISTRICT | $166.25 | $166.23 | $0.00 | $0.00 | $332.48 | $0.00 |
| 2025 | 13160 | PUD1 - PUD #1 | $26.66 | $26.65 | $0.00 | $0.00 | $53.31 | $0.00 |
| 2025 | 13160 | HD2 - HOSP DIST #2 | $23.77 | $23.77 | $0.00 | $0.00 | $47.54 | $0.00 |
| 2025 | 13160 | SD50 - SCHOOL DIST #50 | $757.14 | $757.11 | $0.00 | $0.00 | $1514.25 | $0.00 |
| 2025 | 13160 | FD1 - FIRE DISTRICT #1 | $537.60 | $537.60 | $0.00 | $0.00 | $1075.20 | $0.00 |
| 2025 | 13160 | EMS1 - FIRE DIST #1 EMS | $206.78 | $206.77 | $0.00 | $0.00 | $413.55 | $0.00 |
| 2025 | 13160 | JCCD - JC Conservation District | $2.55 | $2.55 | $0.00 | $0.00 | $5.10 | $0.00 |
| 2025 | 13160 | NWA - Noxious Weed Assessment | $2.15 | $2.15 | $0.00 | $0.00 | $4.30 | $0.00 |
| 2025 | 13160 | TOTAL: | $3766.01 | $3765.89 | $0.00 | $0.00 | $7531.90 | $0.00 |
|
| 2025 | 13160 | $3766.01 | $3765.89 | $0.00 | $0.00 | $7531.90 | $0.00 |
Statement Details |
| 2024 | 13189 | STATE - STATE LEVY (SCHOOL) | $950.85 | $950.85 | $0.00 | $0.00 | $1901.70 | $0.00 |
| 2024 | 13189 | COUNTY - COUNTY LEVIES (CE, DD, VET, MH) | $406.89 | $406.86 | $0.00 | $0.00 | $813.75 | $0.00 |
| 2024 | 13189 | CONSERVE - CONSERVATION FUTURES | $12.20 | $12.20 | $0.00 | $0.00 | $24.40 | $0.00 |
| 2024 | 13189 | CITYPT - CITY OF PT | $581.39 | $581.36 | $0.00 | $0.00 | $1162.75 | $0.00 |
| 2024 | 13189 | PORTPT - PORT DISTRICT | $168.06 | $168.06 | $0.00 | $0.00 | $336.12 | $0.00 |
| 2024 | 13189 | PUD1 - PUD #1 | $26.73 | $26.72 | $0.00 | $0.00 | $53.45 | $0.00 |
| 2024 | 13189 | HD2 - HOSP DIST #2 | $23.74 | $23.74 | $0.00 | $0.00 | $47.48 | $0.00 |
| 2024 | 13189 | SD50 - SCHOOL DIST #50 | $769.30 | $769.27 | $0.00 | $0.00 | $1538.57 | $0.00 |
| 2024 | 13189 | FD1 - FIRE DISTRICT #1 | $537.99 | $537.99 | $0.00 | $0.00 | $1075.98 | $0.00 |
| 2024 | 13189 | EMS1 - FIRE DIST #1 EMS | $205.50 | $205.49 | $0.00 | $0.00 | $410.99 | $0.00 |
| 2024 | 13189 | JCCD - JC Conservation District | $2.55 | $2.55 | $0.00 | $0.00 | $5.10 | $0.00 |
| 2024 | 13189 | NWA - Noxious Weed Assessment | $2.15 | $2.15 | $0.00 | $0.00 | $4.30 | $0.00 |
| 2024 | 13189 | TOTAL: | $3687.35 | $3687.24 | $0.00 | $0.00 | $7374.59 | $0.00 |
|
| 2024 | 13189 | $3687.35 | $3687.24 | $0.00 | $0.00 | $7374.59 | $0.00 |
Statement Details |
| 2023 | 13210 | STATE - STATE LEVY (SCHOOL) | $897.31 | $897.29 | $0.00 | $0.00 | $1794.60 | $0.00 |
| 2023 | 13210 | COUNTY - COUNTY LEVIES (CE, DD, VET, MH) | $391.57 | $391.54 | $0.00 | $0.00 | $783.11 | $0.00 |
| 2023 | 13210 | CONSERVE - CONSERVATION FUTURES | $11.74 | $11.74 | $0.00 | $0.00 | $23.48 | $0.00 |
| 2023 | 13210 | CITYPT - CITY OF PT | $553.41 | $553.39 | $0.00 | $0.00 | $1106.80 | $0.00 |
| 2023 | 13210 | PORTPT - PORT DISTRICT | $164.95 | $164.93 | $0.00 | $0.00 | $329.88 | $0.00 |
| 2023 | 13210 | PUD1 - PUD #1 | $25.96 | $25.95 | $0.00 | $0.00 | $51.91 | $0.00 |
| 2023 | 13210 | HD2 - HOSP DIST #2 | $22.85 | $22.84 | $0.00 | $0.00 | $45.69 | $0.00 |
| 2023 | 13210 | SD50 - SCHOOL DIST #50 | $712.03 | $712.02 | $0.00 | $0.00 | $1424.05 | $0.00 |
| 2023 | 13210 | FD1 - FIRE DISTRICT #1 | $322.56 | $322.56 | $0.00 | $0.00 | $645.12 | $0.00 |
| 2023 | 13210 | EMS1 - FIRE DIST #1 EMS | $137.21 | $137.21 | $0.00 | $0.00 | $274.42 | $0.00 |
| 2023 | 13210 | JCCD - JC Conservation District | $2.55 | $2.55 | $0.00 | $0.00 | $5.10 | $0.00 |
| 2023 | 13210 | NWA - Noxious Weed Assessment | $2.15 | $2.15 | $0.00 | $0.00 | $4.30 | $0.00 |
| 2023 | 13210 | TOTAL: | $3244.29 | $3244.17 | $0.00 | $0.00 | $6488.46 | $0.00 |
|
| 2023 | 13210 | $3244.29 | $3244.17 | $0.00 | $0.00 | $6488.46 | $0.00 |
Values
| (+) Improvement Homesite Value: | + | $0 | |
| (+) Improvement Non-Homesite Value: | + | $502,286 | |
| (+) Land Homesite Value: | + | $0 | |
| (+) Land Non-Homesite Value: | + | $408,400 | |
| (+) Curr Use (HS): | + | $0 | $0 |
| (+) Curr Use (NHS): | + | $0 | $0 |
| | | -------------------------- | |
| (=) Market Value: | = | $910,686 | |
| (–) Productivity Loss: | – | $0 | |
| | | -------------------------- | |
| (=) Subtotal: | = | $910,686 | |
| (+) Senior Appraised Value: | + | $0 | |
| (+) Non-Senior Appraised Value: | + | $910,686 | |
| | | -------------------------- | |
| (=) Total Appraised Value: | = | $910,686 | |
| (–) Senior Exemption Loss: | – | $0 | |
| (–) Exemption Loss: | – | $0 | |
| | | -------------------------- | |
| (=) Taxable Value: | = | $910,686 | |
Taxing Jurisdiction
| Owner: | 309 V ST LLC | | |
| % Ownership: | 100.0000000000% | | |
| Total Value: | $910,686 | | |
| Tax Area: | 0110 - C-50F1E1H2 |
| CE | COUNTY CURRENT EXPENSE | 0.9034619479 | $910,686 | $910,686 | $822.77 | | |
| CNTYDD | DEVELOPMENTAL DISABILITIES | 0.0052121823 | $910,686 | $910,686 | $4.75 | | |
| CNTYVET | VETERANS RELIEF | 0.0052777810 | $910,686 | $910,686 | $4.81 | | |
| MENTAL | MENTAL HEALTH | 0.0052121823 | $910,686 | $910,686 | $4.75 | | |
| PTGEN | CITY OF PT GENERAL | 0.8551967795 | $910,686 | $910,686 | $778.82 | | |
| PTLLL | CITY OF PT - LIBRARY LID LIFT | 0.4010114288 | $910,686 | $910,686 | $365.20 | | |
| PTMVBOND | CITY OF PT MV BOND | 0.0484717981 | $910,686 | $910,686 | $44.14 | | |
| HOSP2CASH | HOSP DIST #2 GENERAL | 0.0536075306 | $910,686 | $910,686 | $48.82 | | |
| SCH50BOND | SCHOOL DIST #50 BOND 2016 | 0.5377451389 | $910,686 | $910,686 | $489.72 | | |
| SCH50CP | SCHOOL DIST #50 CAP PROJ | 0.4573475088 | $910,686 | $910,686 | $416.50 | | |
| SCH50MO | SCHOOL DIST #50 EP & O | 0.8262822886 | $910,686 | $910,686 | $752.48 | | |
| CONSERVE | CONSERVATION FUTURES | 0.0275621078 | $910,686 | $910,686 | $25.10 | | |
| EMS1 | FIRE DIST #1 EMS | 0.4679948282 | $910,686 | $910,686 | $426.20 | | |
| FD1 | FIRE DIST #1 GENERAL | 1.2171942929 | $910,686 | $910,686 | $1,108.48 | | |
| PORTPT | PORT OF PT GENERAL | 0.1134941229 | $910,686 | $910,686 | $103.36 | | |
| PORTPTIDD | PORT OF PT IDD 2019 | 0.2577346692 | $910,686 | $910,686 | $234.72 | | |
| PUD1 | PUD #1 GENERAL | 0.0597888892 | $910,686 | $910,686 | $54.45 | | |
| STATE | STATE SCHOOL PART 1 | 1.4940692947 | $910,686 | $910,686 | $1,360.63 | | |
| STATE2 | STATE SCHOOL PART 2 | 0.8050170049 | $910,686 | $910,686 | $733.12 | | |
| | Total Tax Rate: | 8.5416817766 | | | | | |
| | | | | Taxes w/Current Exemptions: | $7,778.82 | | |
| | | | | Taxes w/o Exemptions: | $7,778.82 | | |
Improvement / Building
| Improvement #1: | Residential Bldg | State Code: | 11 | 1322.0 sqft | Value: | $502,286 |
| Bathrooms (#): | 1 (FULL) | Bedrooms (#): | 2 | | Exterior Wall: | SI/ST | Fireplace: | SIN 1-GOOD | | Floor Construction: | FRAME | Foundation: | CONPR | | Heating/Cooling: | F/A | Roof Cover: | COMP |
|
| | Type | Description | Class CD | Sub Class CD | Year Built | Area |
| | MA | Main Area | 4+ | 1S | 1929 | 1322.0 |
| | HWPOR | House Wood Porch | 4 | * | 1929 | 54.0 |
| | HDECK | House Deck | 4 | * | 1929 | 54.0 |
| | ADDN | Addition (Table Not Dep) | 4 | * | 1929 | 684.0 |
| | HRPO | House Roof Patio | 4 | * | 1929 | 259.0 |
| | PATIO | House Patio | 4 | * | 2016 | 800.0 |
| | HADDN | House Addition | 4 | 1S | 2016 | 100.8 |
Sketch
Property Image
Land
| 1 | 6420-1145L | | 0.0000 | 0.00 | 0.00 | 0.00 | 1.00 | $250,000 | $0 |
| 2 | 6420-1145L | | 0.0000 | 0.00 | 0.00 | 0.00 | 1.00 | $158,400 | $0 |
Roll Value History
| 2026 | N/A | N/A | N/A | N/A | N/A |
| 2025 | $502,286 | $408,400 | $0 | $910,686 | $910,686 |
| 2024 | $452,625 | $411,400 | $0 | $864,025 | $864,025 |
| 2023 | $434,520 | $387,450 | $0 | $821,970 | $821,970 |
| 2022 | $398,310 | $364,000 | $0 | $762,310 | $762,310 |
Deed and Sales History
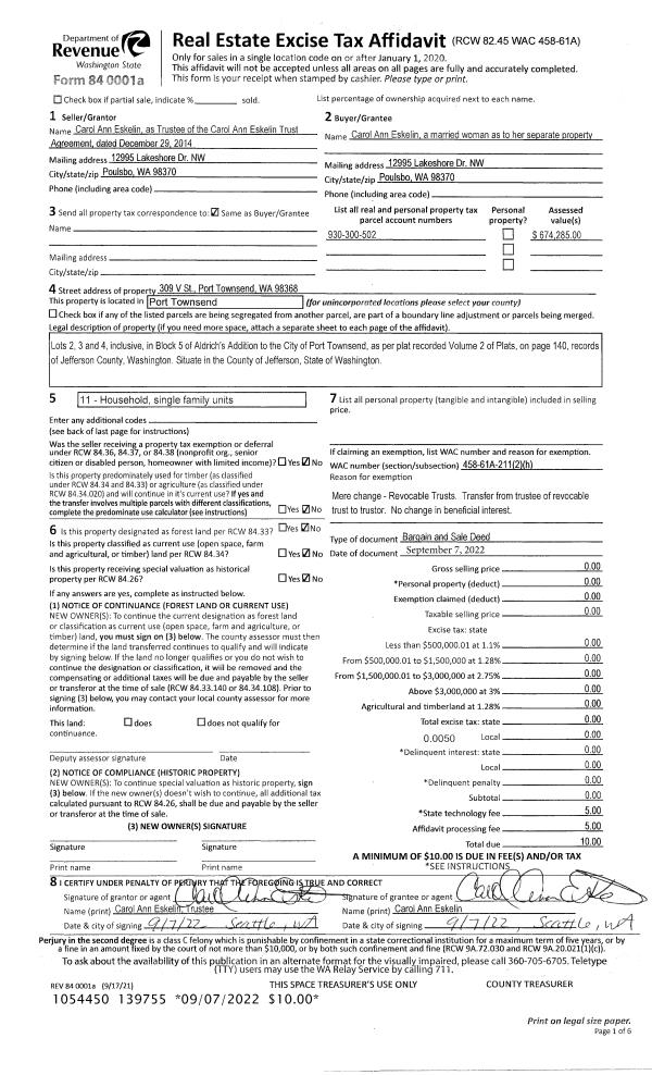
| 1 | 09/07/2022 | BSD | Bargain and Sale Deed | CAROL ANN ESKELIN | 309 V ST LLC | | | | 139756 | |
| 2 | 09/07/2022 | BSD | Bargain and Sale Deed | CAROL ANN ESKELIN TRUST | CAROL ANN ESKELIN | | | | 139755 | |
| 3 | 07/28/2015 | QCD | Quit Claim Deed | CAROL ANN ESKELIN | CAROL ANN ESKELIN TRUST | | | | 123733 | |
| 4 | 07/28/2015 | QCD | Quit Claim Deed | | | | | | 123732 | |
| 5 | 01/20/2010 | QCD | Quit Claim Deed | RADIN, ROBERT B | RADIN, ROBERT LIVING TRUST | 0 | 0 | $0.00 | 113957 | 0 |
| 6 | 12/21/2009 | QCD | Quit Claim Deed | ESKELIN, CAROL ANN/RADIN, | RADIN, ROBERT/CAROL ANN | 0 | 0 | $0.00 | 113855 | 0 |
| 7 | 12/20/2009 | QCD | Quit Claim Deed | ESKELIN, TODD | ESKELIN, CAROL ANN | 0 | 0 | $0.00 | 113856 | 0 |
| 8 | 06/22/2006 | QCD | Quit Claim Deed | RADIN, ROBERT B | RADIN, ROBERT/TRSTEE & ESKELIN | | | $0.00 | 106952 | 0 |
| 9 | 06/22/2006 | QCD | Quit Claim Deed | RADIN TRUSTEE, ROBERT B | RADIN, ROBERT B | | | $0.00 | 106951 | 0 |
| 10 | 07/01/2005 | QCD | Quit Claim Deed | RADIN, ROBERT B | RADIN, ROBERT B TRUSTEE OF THE | 0 | 0 | $0.00 | 104921 | 0 |
| 11 | 02/23/2005 | QCD | Quit Claim Deed | RADIN, ROBERT B LIVING TR | RADIN, ROBERT B | 0 | 0 | $0.00 | 104920 | 0 |
| 12 | 12/28/2004 | QCD | Quit Claim Deed | RADIN, ROBERT B | RADIN, ROBERT B TRUST | 0 | 0 | $0.00 | 102421 | 0 |
| 13 | 11/22/2004 | SWD | Statutory Warranty Deed | RADIN, ROBERT B TRUST | RADIN, ROBERT B | 0 | 0 | $0.00 | 102183 | 0 |
Payout Agreement
| No payout information available.. |