Property
Account |
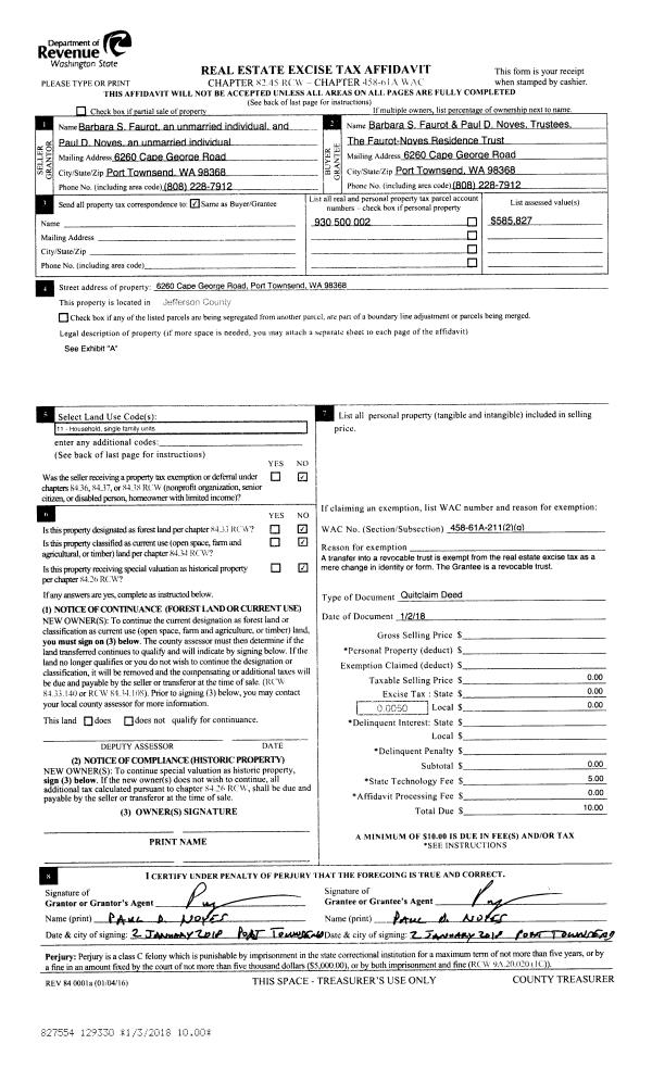
| Property ID: | 23740 | Abbreviated Legal Description: | ARBUTUS FIRST ADDITION LOT 2 (REVISED) SUBJ/EASE SUBJ TO COMMON AREA |
| Parcel # / Geo ID: | 930500002 | Agent Code: | |
| Type: | Real | | |
| Tax Area: | 0111 - 1-50F1E1H2L1 | Land Use Code | 11 |
| Open Space: | N | DFL | N |
| Historic Property: | N | Remodel Property: | N |
| Multi-Family Redevelopment: | N | | |
| Township: | 30N | Section: | 30 |
| Range: | 1W |
Location |
| Address: | 6260 CAPE GEORGE RD PORT TOWNSEND, WA 98368 | Mapsco: | 001/002 |
| Neighborhood: | S19,30&31T30NR1W,S25T30R2W,ARBUTUS,BAYVIEW CHEVY,DISCO RIDGE | Map ID: | |
| Neighborhood CD: | 5360 |
Owner |
| Name: | FAUROT NOYES RESIDENCE TRUST | Owner ID: | 98564 |
| Mailing Address: | BARBARA S FAUROT TRUSTEE PAUL D NOYES TRUSTEE 6260 CAPE GEORGE RD PORT TOWNSEND, WA 98368-9040 | % Ownership: | 100.0000000000% |
| | | Exemptions: | |
Pay Tax Due
There is currently No Amount Due on this property.
Taxes and Assessment Details
Property Tax Information as of
03/10/2026
Click on "Statement Details" to expand or collapse a tax statement.
* Please enter a valid date ** Please enter a valid date *
Statement Details |
| | TOTAL: | $0.00 | $0.00 | $0.00 | $0.00 | $0.00 | $0.00 |
|
| | $0.00 | $0.00 | $0.00 | $0.00 | $0.00 | $0.00 |
Values
| (+) Improvement Homesite Value: | + | $0 | |
| (+) Improvement Non-Homesite Value: | + | $778,006 | |
| (+) Land Homesite Value: | + | $0 | |
| (+) Land Non-Homesite Value: | + | $235,796 | |
| (+) Curr Use (HS): | + | $0 | $0 |
| (+) Curr Use (NHS): | + | $0 | $0 |
| | | -------------------------- | |
| (=) Market Value: | = | $1,013,802 | |
| (–) Productivity Loss: | – | $0 | |
| | | -------------------------- | |
| (=) Subtotal: | = | $1,013,802 | |
| (+) Senior Appraised Value: | + | $0 | |
| (+) Non-Senior Appraised Value: | + | $1,013,802 | |
| | | -------------------------- | |
| (=) Total Appraised Value: | = | $1,013,802 | |
| (–) Senior Exemption Loss: | – | $0 | |
| (–) Exemption Loss: | – | $0 | |
| | | -------------------------- | |
| (=) Taxable Value: | = | $1,013,802 | |
Taxing Jurisdiction
| Owner: | FAUROT NOYES RESIDENCE TRUST | | |
| % Ownership: | 100.0000000000% | | |
| Total Value: | $1,013,802 | | |
| Tax Area: | 0111 - 1-50F1E1H2L1 |
| CE | COUNTY CURRENT EXPENSE | 0.9034619479 | $1,013,802 | $1,013,802 | $915.93 | | |
| CNTYDD | DEVELOPMENTAL DISABILITIES | 0.0052121823 | $1,013,802 | $1,013,802 | $5.28 | | |
| CNTYVET | VETERANS RELIEF | 0.0052777810 | $1,013,802 | $1,013,802 | $5.35 | | |
| MENTAL | MENTAL HEALTH | 0.0052121823 | $1,013,802 | $1,013,802 | $5.28 | | |
| ROADS | COUNTY ROADS | 0.7415066410 | $1,013,802 | $1,013,802 | $751.74 | | |
| ROADSCU | COUNTY ROADS TO CUR EXP | 0.0000000000 | $1,013,802 | $1,013,802 | $0.00 | | |
| HOSP2CASH | HOSP DIST #2 GENERAL | 0.0536075306 | $1,013,802 | $1,013,802 | $54.35 | | |
| SCH50BOND | SCHOOL DIST #50 BOND 2016 | 0.5377451389 | $1,013,802 | $1,013,802 | $545.17 | | |
| SCH50CP | SCHOOL DIST #50 CAP PROJ | 0.4573475088 | $1,013,802 | $1,013,802 | $463.66 | | |
| SCH50MO | SCHOOL DIST #50 EP & O | 0.8262822886 | $1,013,802 | $1,013,802 | $837.69 | | |
| CONSERVE | CONSERVATION FUTURES | 0.0275621078 | $1,013,802 | $1,013,802 | $27.94 | | |
| EMS1 | FIRE DIST #1 EMS | 0.4679948282 | $1,013,802 | $1,013,802 | $474.45 | | |
| FD1 | FIRE DIST #1 GENERAL | 1.2171942929 | $1,013,802 | $1,013,802 | $1,233.99 | | |
| LIB1 | LIBRARY DIST #1 GENERAL | 0.2868827388 | $1,013,802 | $1,013,802 | $290.84 | | |
| PORTPT | PORT OF PT GENERAL | 0.1134941229 | $1,013,802 | $1,013,802 | $115.06 | | |
| PORTPTIDD | PORT OF PT IDD 2019 | 0.2577346692 | $1,013,802 | $1,013,802 | $261.29 | | |
| PUD1 | PUD #1 GENERAL | 0.0597888892 | $1,013,802 | $1,013,802 | $60.61 | | |
| STATE | STATE SCHOOL PART 1 | 1.4940692947 | $1,013,802 | $1,013,802 | $1,514.69 | | |
| STATE2 | STATE SCHOOL PART 2 | 0.8050170049 | $1,013,802 | $1,013,802 | $816.13 | | |
| | Total Tax Rate: | 8.2653911500 | | | | | |
| | | | | Taxes w/Current Exemptions: | $8,379.45 | | |
| | | | | Taxes w/o Exemptions: | $8,379.45 | | |
Improvement / Building
| Improvement #1: | Residential Bldg | State Code: | 11 | 2357.0 sqft | Value: | $778,006 |
| Bathrooms (#): | 2 (FULL) | Bedrooms (#): | 3 | | Exterior Wall: | SI/ST | Fireplace: | SIN 1-GOOD | | Floor Construction: | FRAME | Foundation: | CONPR | | Heating/Cooling: | F/A | Roof Cover: | COMP |
|
| | Type | Description | Class CD | Sub Class CD | Year Built | Area |
| | MA | Main Area | 5+ | 1S | 1989 | 2357.0 |
| | HWPOR | House Wood Porch | 5 | 1S | 1989 | 21.0 |
| | HDECK | House Deck | 5 | 1S | 1989 | 500.0 |
| | GATT | House Attached Garage | 5 | 1S | 1989 | 526.0 |
| | SHED | Shed (Table Not Dep) | 4 | 1S | 1989 | 176.0 |
| | GDET | Detached Garage | 5 | 1S | 1989 | 768.0 |
Sketch
| No sketches available for this property. |
Property Image
Land
| 1 | 5360-1555A | Back Acreage for Wtrfrt and near Wtrfrt Parcels | 1.3800 | 60112.80 | 0.00 | 0.00 | 0.00 | $33,396 | $0 |
| 2 | 5360-1345S | Good/Excel Wtr/Terr View Sites 1+/- Acre | 1.0000 | 43560.00 | 0.00 | 0.00 | 1.00 | $202,400 | $0 |
Roll Value History
| 2026 | N/A | N/A | N/A | N/A | N/A |
| 2025 | $778,006 | $235,796 | $0 | $1,013,802 | $1,013,802 |
| 2024 | $778,006 | $235,796 | $0 | $1,013,802 | $1,013,802 |
| 2023 | $750,669 | $219,828 | $0 | $970,497 | $970,497 |
| 2022 | $682,426 | $201,600 | $0 | $884,026 | $884,026 |
Deed and Sales History
| 1 | 01/02/2018 | QCD | Quit Claim Deed | BARBARA S FAUROT | FAUROT NOYES RESIDENCE TRUST | | | | 129330 | |
| 2 | 10/19/2015 | SWD | Statutory Warranty Deed | MARY E GERBER | BARBARA S FAUROT | | | $625,000.00 | 124258 | |
| 3 | 02/07/2003 | SWD | Statutory Warranty Deed | DUNGWORTH FAMILY TRUST | GERBER, MARY & WEEDING, DAVID | 0 | 0 | $475,000.00 | 96591 | 0 |
| 4 | 01/08/1999 | QCD | Quit Claim Deed | DUNGWORTH, DONALD L/MARGA | DUNGWORTH FAMILY TRUST | 0 | 0 | $0.00 | 86180 | 0 |
| 5 | 12/23/1998 | QCD | Quit Claim Deed | DUNGWORTH FAMILY TRUST | DUNGWORTH, DONALD L/MARGARET A | 0 | 0 | $0.00 | 86039 | 0 |
| 6 | 09/18/1994 | QCD | Quit Claim Deed | DUNGWORTH, DONALD L/MARGA | DUNGWORTH FAMILY TRUST | 0 | 0 | $0.00 | 75144 | 0 |
Payout Agreement
| No payout information available.. |