Property
Account |
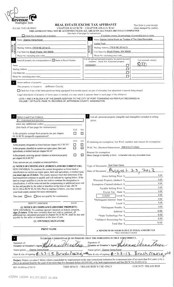
| Property ID: | 23839 | Abbreviated Legal Description: | BAKER'S ADDITION BLK 6 LOTS 1 & 2 |
| Parcel # / Geo ID: | 930900601 | Agent Code: | |
| Type: | Real | | |
| Tax Area: | 0110 - C-50F1E1H2 | Land Use Code | 91 |
| Open Space: | N | DFL | N |
| Historic Property: | N | Remodel Property: | N |
| Multi-Family Redevelopment: | N | | |
| Township: | 31N | Section: | 34 |
| Range: | 1W |
Location |
| Address: | 0 PORT TOWNSEND, WA 98368 | Mapsco: | 003/012 |
| Neighborhood: | TACOMA & BAKER ADDITIONS | Map ID: | |
| Neighborhood CD: | 6040 |
Owner |
| Name: | THE GAIA REVOCABLE LIVING TRUST | Owner ID: | 91020 |
| Mailing Address: | 2452 E OVERVIEW LN GREEN VALLEY, AZ 85614 | % Ownership: | 100.0000000000% |
| | | Exemptions: | |
Pay Tax Due
Select the appropriate checkbox next to the year to be paid. Multiple years may be selected.
*Convenience Fee not included
Taxes and Assessment Details
Property Tax Information as of
03/12/2026
Click on "Statement Details" to expand or collapse a tax statement.
* Please enter a valid date ** Please enter a valid date *
Statement Details |
| 2026 | 13267 | STATE - STATE LEVY (SCHOOL) | $5.76 | $5.74 | $0.00 | $0.00 | $0.00 | $11.50 |
| 2026 | 13267 | COUNTY - COUNTY LEVIES (CE, DD, VET, MH) | $2.32 | $2.29 | $0.00 | $0.00 | $0.00 | $4.61 |
| 2026 | 13267 | CONSERVE - CONSERVATION FUTURES | $0.07 | $0.07 | $0.00 | $0.00 | $0.00 | $0.14 |
| 2026 | 13267 | CITYPT - CITY OF PT | $3.27 | $3.26 | $0.00 | $0.00 | $0.00 | $6.53 |
| 2026 | 13267 | PORTPT - PORT DISTRICT | $0.94 | $0.92 | $0.00 | $0.00 | $0.00 | $1.86 |
| 2026 | 13267 | PUD1 - PUD #1 | $0.15 | $0.15 | $0.00 | $0.00 | $0.00 | $0.30 |
| 2026 | 13267 | HD2 - HOSP DIST #2 | $0.14 | $0.13 | $0.00 | $0.00 | $0.00 | $0.27 |
| 2026 | 13267 | SD50 - SCHOOL DIST #50 | $4.57 | $4.54 | $0.00 | $0.00 | $0.00 | $9.11 |
| 2026 | 13267 | FD1 - FIRE DISTRICT #1 | $3.05 | $3.04 | $0.00 | $0.00 | $0.00 | $6.09 |
| 2026 | 13267 | EMS1 - FIRE DIST #1 EMS | $1.17 | $1.17 | $0.00 | $0.00 | $0.00 | $2.34 |
| 2026 | 13267 | FP - DNR Forest Fire Protection Assmt | $8.50 | $8.50 | $0.00 | $0.00 | $0.00 | $17.00 |
| 2026 | 13267 | FPLCA - DNR Landowner Contingency Assmt | $3.00 | $3.00 | $0.00 | $0.00 | $0.00 | $6.00 |
| 2026 | 13267 | JCCD - JC Conservation District | $2.53 | $2.53 | $0.00 | $0.00 | $0.00 | $5.06 |
| 2026 | 13267 | NWA - Noxious Weed Assessment | $2.98 | $2.97 | $0.00 | $0.00 | $0.00 | $5.95 |
| 2026 | 13267 | WAT - Clean Water District | $13.00 | $13.00 | $0.00 | $0.00 | $0.00 | $26.00 |
| 2026 | 13267 | FP ADMIN - FP ADMIN | $0.50 | $0.00 | $0.00 | $0.00 | $0.00 | $0.50 |
| 2026 | 13267 | TOTAL: | $51.95 | $51.31 | $0.00 | $0.00 | $0.00 | $103.26 |
|
| 2026 | 13267 | $51.95 | $51.31 | $0.00 | $0.00 | $0.00 | $103.26 |
Statement Details |
| 2025 | 13293 | STATE - STATE LEVY (SCHOOL) | $6.00 | $5.99 | $0.00 | $0.00 | $11.99 | $0.00 |
| 2025 | 13293 | COUNTY - COUNTY LEVIES (CE, DD, VET, MH) | $2.38 | $2.34 | $0.00 | $0.00 | $4.72 | $0.00 |
| 2025 | 13293 | CONSERVE - CONSERVATION FUTURES | $0.07 | $0.07 | $0.00 | $0.00 | $0.14 | $0.00 |
| 2025 | 13293 | CITYPT - CITY OF PT | $3.41 | $3.40 | $0.00 | $0.00 | $6.81 | $0.00 |
| 2025 | 13293 | PORTPT - PORT DISTRICT | $0.96 | $0.96 | $0.00 | $0.00 | $1.92 | $0.00 |
| 2025 | 13293 | PUD1 - PUD #1 | $0.16 | $0.15 | $0.00 | $0.00 | $0.31 | $0.00 |
| 2025 | 13293 | HD2 - HOSP DIST #2 | $0.14 | $0.14 | $0.00 | $0.00 | $0.28 | $0.00 |
| 2025 | 13293 | SD50 - SCHOOL DIST #50 | $4.38 | $4.38 | $0.00 | $0.00 | $8.76 | $0.00 |
| 2025 | 13293 | FD1 - FIRE DISTRICT #1 | $3.11 | $3.11 | $0.00 | $0.00 | $6.22 | $0.00 |
| 2025 | 13293 | EMS1 - FIRE DIST #1 EMS | $1.20 | $1.19 | $0.00 | $0.00 | $2.39 | $0.00 |
| 2025 | 13293 | FP - DNR Forest Fire Protection Assmt | $8.50 | $8.50 | $0.00 | $0.00 | $17.00 | $0.00 |
| 2025 | 13293 | FPLCA - DNR Landowner Contingency Assmt | $3.00 | $3.00 | $0.00 | $0.00 | $6.00 | $0.00 |
| 2025 | 13293 | JCCD - JC Conservation District | $2.53 | $2.53 | $0.00 | $0.00 | $5.06 | $0.00 |
| 2025 | 13293 | NWA - Noxious Weed Assessment | $2.15 | $2.15 | $0.00 | $0.00 | $4.30 | $0.00 |
| 2025 | 13293 | WAT - Clean Water District | $13.00 | $13.00 | $0.00 | $0.00 | $26.00 | $0.00 |
| 2025 | 13293 | FP ADMIN - FP ADMIN | $0.50 | $0.00 | $0.00 | $0.00 | $0.50 | $0.00 |
| 2025 | 13293 | TOTAL: | $51.49 | $50.91 | $0.00 | $0.00 | $102.40 | $0.00 |
|
| 2025 | 13293 | $51.49 | $50.91 | $0.00 | $0.00 | $102.40 | $0.00 |
Statement Details |
| 2024 | 13322 | STATE - STATE LEVY (SCHOOL) | $5.79 | $5.78 | $0.00 | $0.00 | $11.57 | $0.00 |
| 2024 | 13322 | COUNTY - COUNTY LEVIES (CE, DD, VET, MH) | $2.50 | $2.46 | $0.00 | $0.00 | $4.96 | $0.00 |
| 2024 | 13322 | CONSERVE - CONSERVATION FUTURES | $0.08 | $0.07 | $0.00 | $0.00 | $0.15 | $0.00 |
| 2024 | 13322 | CITYPT - CITY OF PT | $3.55 | $3.52 | $0.00 | $0.00 | $7.07 | $0.00 |
| 2024 | 13322 | PORTPT - PORT DISTRICT | $1.03 | $1.01 | $0.00 | $0.00 | $2.04 | $0.00 |
| 2024 | 13322 | PUD1 - PUD #1 | $0.17 | $0.16 | $0.00 | $0.00 | $0.33 | $0.00 |
| 2024 | 13322 | HD2 - HOSP DIST #2 | $0.15 | $0.14 | $0.00 | $0.00 | $0.29 | $0.00 |
| 2024 | 13322 | SD50 - SCHOOL DIST #50 | $4.69 | $4.67 | $0.00 | $0.00 | $9.36 | $0.00 |
| 2024 | 13322 | FD1 - FIRE DISTRICT #1 | $3.28 | $3.27 | $0.00 | $0.00 | $6.55 | $0.00 |
| 2024 | 13322 | EMS1 - FIRE DIST #1 EMS | $1.25 | $1.25 | $0.00 | $0.00 | $2.50 | $0.00 |
| 2024 | 13322 | FP - DNR Forest Fire Protection Assmt | $8.50 | $8.50 | $0.00 | $0.00 | $17.00 | $0.00 |
| 2024 | 13322 | FPLCA - DNR Landowner Contingency Assmt | $3.00 | $3.00 | $0.00 | $0.00 | $6.00 | $0.00 |
| 2024 | 13322 | JCCD - JC Conservation District | $2.53 | $2.53 | $0.00 | $0.00 | $5.06 | $0.00 |
| 2024 | 13322 | NWA - Noxious Weed Assessment | $2.15 | $2.15 | $0.00 | $0.00 | $4.30 | $0.00 |
| 2024 | 13322 | WAT - Clean Water District | $12.50 | $12.50 | $0.00 | $0.00 | $25.00 | $0.00 |
| 2024 | 13322 | FP ADMIN - FP ADMIN | $0.50 | $0.00 | $0.00 | $0.00 | $0.50 | $0.00 |
| 2024 | 13322 | TOTAL: | $51.67 | $51.01 | $0.00 | $0.00 | $102.68 | $0.00 |
|
| 2024 | 13322 | $51.67 | $51.01 | $0.00 | $0.00 | $102.68 | $0.00 |
Statement Details |
| 2023 | 13345 | STATE - STATE LEVY (SCHOOL) | $5.89 | $5.88 | $0.00 | $0.00 | $11.77 | $0.00 |
| 2023 | 13345 | COUNTY - COUNTY LEVIES (CE, DD, VET, MH) | $2.59 | $2.55 | $0.00 | $0.00 | $5.14 | $0.00 |
| 2023 | 13345 | CONSERVE - CONSERVATION FUTURES | $0.08 | $0.07 | $0.00 | $0.00 | $0.15 | $0.00 |
| 2023 | 13345 | CITYPT - CITY OF PT | $3.65 | $3.62 | $0.00 | $0.00 | $7.27 | $0.00 |
| 2023 | 13345 | PORTPT - PORT DISTRICT | $1.09 | $1.07 | $0.00 | $0.00 | $2.16 | $0.00 |
| 2023 | 13345 | PUD1 - PUD #1 | $0.17 | $0.17 | $0.00 | $0.00 | $0.34 | $0.00 |
| 2023 | 13345 | HD2 - HOSP DIST #2 | $0.16 | $0.14 | $0.00 | $0.00 | $0.30 | $0.00 |
| 2023 | 13345 | SD50 - SCHOOL DIST #50 | $4.68 | $4.66 | $0.00 | $0.00 | $9.34 | $0.00 |
| 2023 | 13345 | FD1 - FIRE DISTRICT #1 | $2.12 | $2.11 | $0.00 | $0.00 | $4.23 | $0.00 |
| 2023 | 13345 | EMS1 - FIRE DIST #1 EMS | $0.90 | $0.90 | $0.00 | $0.00 | $1.80 | $0.00 |
| 2023 | 13345 | FP - DNR Forest Fire Protection Assmt | $8.50 | $8.50 | $0.00 | $0.00 | $17.00 | $0.00 |
| 2023 | 13345 | FPLCA - DNR Landowner Contingency Assmt | $3.00 | $3.00 | $0.00 | $0.00 | $6.00 | $0.00 |
| 2023 | 13345 | JCCD - JC Conservation District | $2.53 | $2.53 | $0.00 | $0.00 | $5.06 | $0.00 |
| 2023 | 13345 | NWA - Noxious Weed Assessment | $2.15 | $2.15 | $0.00 | $0.00 | $4.30 | $0.00 |
| 2023 | 13345 | WAT - Clean Water District | $12.00 | $12.00 | $0.00 | $0.00 | $24.00 | $0.00 |
| 2023 | 13345 | FP ADMIN - FP ADMIN | $0.50 | $0.00 | $0.00 | $0.00 | $0.50 | $0.00 |
| 2023 | 13345 | TOTAL: | $50.01 | $49.35 | $0.00 | $0.00 | $99.36 | $0.00 |
|
| 2023 | 13345 | $50.01 | $49.35 | $0.00 | $0.00 | $99.36 | $0.00 |
Values
| (+) Improvement Homesite Value: | + | $0 | |
| (+) Improvement Non-Homesite Value: | + | $0 | |
| (+) Land Homesite Value: | + | $0 | |
| (+) Land Non-Homesite Value: | + | $5,000 | |
| (+) Curr Use (HS): | + | $0 | $0 |
| (+) Curr Use (NHS): | + | $0 | $0 |
| | | -------------------------- | |
| (=) Market Value: | = | $5,000 | |
| (–) Productivity Loss: | – | $0 | |
| | | -------------------------- | |
| (=) Subtotal: | = | $5,000 | |
| (+) Senior Appraised Value: | + | $0 | |
| (+) Non-Senior Appraised Value: | + | $5,000 | |
| | | -------------------------- | |
| (=) Total Appraised Value: | = | $5,000 | |
| (–) Senior Exemption Loss: | – | $0 | |
| (–) Exemption Loss: | – | $0 | |
| | | -------------------------- | |
| (=) Taxable Value: | = | $5,000 | |
Taxing Jurisdiction
| Owner: | THE GAIA REVOCABLE LIVING TRUST | | |
| % Ownership: | 100.0000000000% | | |
| Total Value: | $5,000 | | |
| Tax Area: | 0110 - C-50F1E1H2 |
| CE | COUNTY CURRENT EXPENSE | 0.9034619479 | $5,000 | $5,000 | $4.52 | | |
| CNTYDD | DEVELOPMENTAL DISABILITIES | 0.0052121823 | $5,000 | $5,000 | $0.03 | | |
| CNTYVET | VETERANS RELIEF | 0.0052777810 | $5,000 | $5,000 | $0.03 | | |
| MENTAL | MENTAL HEALTH | 0.0052121823 | $5,000 | $5,000 | $0.03 | | |
| PTGEN | CITY OF PT GENERAL | 0.8551967795 | $5,000 | $5,000 | $4.28 | | |
| PTLLL | CITY OF PT - LIBRARY LID LIFT | 0.4010114288 | $5,000 | $5,000 | $2.01 | | |
| PTMVBOND | CITY OF PT MV BOND | 0.0484717981 | $5,000 | $5,000 | $0.24 | | |
| HOSP2CASH | HOSP DIST #2 GENERAL | 0.0536075306 | $5,000 | $5,000 | $0.27 | | |
| SCH50BOND | SCHOOL DIST #50 BOND 2016 | 0.5377451389 | $5,000 | $5,000 | $2.69 | | |
| SCH50CP | SCHOOL DIST #50 CAP PROJ | 0.4573475088 | $5,000 | $5,000 | $2.29 | | |
| SCH50MO | SCHOOL DIST #50 EP & O | 0.8262822886 | $5,000 | $5,000 | $4.13 | | |
| CONSERVE | CONSERVATION FUTURES | 0.0275621078 | $5,000 | $5,000 | $0.14 | | |
| EMS1 | FIRE DIST #1 EMS | 0.4679948282 | $5,000 | $5,000 | $2.34 | | |
| FD1 | FIRE DIST #1 GENERAL | 1.2171942929 | $5,000 | $5,000 | $6.09 | | |
| PORTPT | PORT OF PT GENERAL | 0.1134941229 | $5,000 | $5,000 | $0.57 | | |
| PORTPTIDD | PORT OF PT IDD 2019 | 0.2577346692 | $5,000 | $5,000 | $1.29 | | |
| PUD1 | PUD #1 GENERAL | 0.0597888892 | $5,000 | $5,000 | $0.30 | | |
| STATE | STATE SCHOOL PART 1 | 1.4940692947 | $5,000 | $5,000 | $7.47 | | |
| STATE2 | STATE SCHOOL PART 2 | 0.8050170049 | $5,000 | $5,000 | $4.03 | | |
| | Total Tax Rate: | 8.5416817766 | | | | | |
| | | | | Taxes w/Current Exemptions: | $42.75 | | |
| | | | | Taxes w/o Exemptions: | $42.75 | | |
Improvement / Building
Sketch
| No sketches available for this property. |
Property Image
Land
| 1 | 6040-1187L | | 0.0000 | 0.00 | 0.00 | 0.00 | 2.00 | $5,000 | $0 |
Roll Value History
| 2026 | N/A | N/A | N/A | N/A | N/A |
| 2025 | $0 | $5,000 | $0 | $5,000 | $5,000 |
| 2024 | $0 | $5,000 | $0 | $5,000 | $5,000 |
| 2023 | $0 | $5,000 | $0 | $5,000 | $5,000 |
| 2022 | $0 | $5,000 | $0 | $5,000 | $5,000 |
Deed and Sales History
| 1 | 08/23/2013 | QCD | Quit Claim Deed | DIANNE V KOCER | THE GAIA REVOCABLE LIVING TRUST | | | | 120349 | |
| 2 | 09/25/2006 | SWD | Statutory Warranty Deed | BURKE, KEVIN G | KOCER, DIANNE V | 0 | 0 | $17,500.00 | 107748 | 0 |
Payout Agreement
| No payout information available.. |