Property
Account |
| Property ID: | 23925 | Abbreviated Legal Description: | ANDERSON COURT LONG PLAT LOT 11 |
| Parcel # / Geo ID: | 931300011 | Agent Code: | |
| Type: | Real | | |
| Tax Area: | 0211 - 1-49F1E1H2L1 | Land Use Code | 11 |
| Open Space: | N | DFL | N |
| Historic Property: | N | Remodel Property: | N |
| Multi-Family Redevelopment: | N | | |
| Township: | 29N | Section: | 2 |
| Range: | 1W |
Location |
| Address: | 61 PETE'S SPUR PORT HADLOCK, WA 98339 | Mapsco: | 001/011 |
| Neighborhood: | S2 T29N R1W; COTTON LP; BRUNEAU, WIEDMAN, CHARWELL, B&R SP'S | Map ID: | |
| Neighborhood CD: | 4210 |
Owner |
| Name: | GARY & CHRISTI KOLSKY | Owner ID: | 92548 |
| Mailing Address: | 61 PETES SPUR PORT HADLOCK, WA 98339-8518 | % Ownership: | 100.0000000000% |
| | | Exemptions: | |
Pay Tax Due
Select the appropriate checkbox next to the year to be paid. Multiple years may be selected.
*Convenience Fee not included
Taxes and Assessment Details
Property Tax Information as of
03/10/2026
Click on "Statement Details" to expand or collapse a tax statement.
* Please enter a valid date ** Please enter a valid date *
Statement Details |
| 2026 | 13353 | STATE - STATE LEVY (SCHOOL) | $633.59 | $633.57 | $0.00 | $0.00 | $0.00 | $1267.16 |
| 2026 | 13353 | COUNTY - COUNTY LEVIES (CE, DD, VET, MH) | $253.32 | $253.28 | $0.00 | $0.00 | $0.00 | $506.60 |
| 2026 | 13353 | CONSERVE - CONSERVATION FUTURES | $7.60 | $7.59 | $0.00 | $0.00 | $0.00 | $15.19 |
| 2026 | 13353 | COROADS - COUNTY ROADS (ROADS, DIV TO CE) | $204.35 | $204.34 | $0.00 | $0.00 | $0.00 | $408.69 |
| 2026 | 13353 | PORTPT - PORT DISTRICT | $102.31 | $102.29 | $0.00 | $0.00 | $0.00 | $204.60 |
| 2026 | 13353 | PUD1 - PUD #1 | $16.48 | $16.47 | $0.00 | $0.00 | $0.00 | $32.95 |
| 2026 | 13353 | LIB1 - LIBRARY DIST #1 | $79.06 | $79.06 | $0.00 | $0.00 | $0.00 | $158.12 |
| 2026 | 13353 | HD2 - HOSP DIST #2 | $14.78 | $14.77 | $0.00 | $0.00 | $0.00 | $29.55 |
| 2026 | 13353 | SD49 - SCHOOL DIST #49 | $348.77 | $348.76 | $0.00 | $0.00 | $0.00 | $697.53 |
| 2026 | 13353 | FD1 - FIRE DISTRICT #1 | $335.44 | $335.43 | $0.00 | $0.00 | $0.00 | $670.87 |
| 2026 | 13353 | EMS1 - FIRE DIST #1 EMS | $128.97 | $128.97 | $0.00 | $0.00 | $0.00 | $257.94 |
| 2026 | 13353 | JCCD - JC Conservation District | $2.55 | $2.55 | $0.00 | $0.00 | $0.00 | $5.10 |
| 2026 | 13353 | NWA - Noxious Weed Assessment | $2.98 | $2.97 | $0.00 | $0.00 | $0.00 | $5.95 |
| 2026 | 13353 | OSS - On Site Septic | $23.10 | $23.10 | $0.00 | $0.00 | $0.00 | $46.20 |
| 2026 | 13353 | WAT - Clean Water District | $13.00 | $13.00 | $0.00 | $0.00 | $0.00 | $26.00 |
| 2026 | 13353 | TOTAL: | $2166.30 | $2166.15 | $0.00 | $0.00 | $0.00 | $4332.45 |
|
| 2026 | 13353 | $2166.30 | $2166.15 | $0.00 | $0.00 | $0.00 | $4332.45 |
Statement Details |
| 2025 | 13379 | STATE - STATE LEVY (SCHOOL) | $631.88 | $631.88 | $0.00 | $0.00 | $1263.76 | $0.00 |
| 2025 | 13379 | COUNTY - COUNTY LEVIES (CE, DD, VET, MH) | $248.50 | $248.47 | $0.00 | $0.00 | $496.97 | $0.00 |
| 2025 | 13379 | CONSERVE - CONSERVATION FUTURES | $7.45 | $7.45 | $0.00 | $0.00 | $14.90 | $0.00 |
| 2025 | 13379 | COROADS - COUNTY ROADS (ROADS, DIV TO CE) | $199.08 | $199.07 | $0.00 | $0.00 | $398.15 | $0.00 |
| 2025 | 13379 | PORTPT - PORT DISTRICT | $101.40 | $101.39 | $0.00 | $0.00 | $202.79 | $0.00 |
| 2025 | 13379 | PUD1 - PUD #1 | $16.26 | $16.26 | $0.00 | $0.00 | $32.52 | $0.00 |
| 2025 | 13379 | LIB1 - LIBRARY DIST #1 | $77.02 | $77.02 | $0.00 | $0.00 | $154.04 | $0.00 |
| 2025 | 13379 | HD2 - HOSP DIST #2 | $14.50 | $14.49 | $0.00 | $0.00 | $28.99 | $0.00 |
| 2025 | 13379 | SD49 - SCHOOL DIST #49 | $338.65 | $338.65 | $0.00 | $0.00 | $677.30 | $0.00 |
| 2025 | 13379 | FD1 - FIRE DISTRICT #1 | $327.90 | $327.90 | $0.00 | $0.00 | $655.80 | $0.00 |
| 2025 | 13379 | EMS1 - FIRE DIST #1 EMS | $126.12 | $126.12 | $0.00 | $0.00 | $252.24 | $0.00 |
| 2025 | 13379 | JCCD - JC Conservation District | $2.55 | $2.55 | $0.00 | $0.00 | $5.10 | $0.00 |
| 2025 | 13379 | NWA - Noxious Weed Assessment | $2.15 | $2.15 | $0.00 | $0.00 | $4.30 | $0.00 |
| 2025 | 13379 | OSS - On Site Septic | $21.50 | $21.50 | $0.00 | $0.00 | $43.00 | $0.00 |
| 2025 | 13379 | WAT - Clean Water District | $13.00 | $13.00 | $0.00 | $0.00 | $26.00 | $0.00 |
| 2025 | 13379 | TOTAL: | $2127.96 | $2127.90 | $0.00 | $0.00 | $4255.86 | $0.00 |
|
| 2025 | 13379 | $2127.96 | $2127.90 | $0.00 | $0.00 | $4255.86 | $0.00 |
Statement Details |
| 2024 | 13408 | STATE - STATE LEVY (SCHOOL) | $575.90 | $575.90 | $0.00 | $0.00 | $1151.80 | $0.00 |
| 2024 | 13408 | COUNTY - COUNTY LEVIES (CE, DD, VET, MH) | $246.44 | $246.43 | $0.00 | $0.00 | $492.87 | $0.00 |
| 2024 | 13408 | CONSERVE - CONSERVATION FUTURES | $7.39 | $7.39 | $0.00 | $0.00 | $14.78 | $0.00 |
| 2024 | 13408 | COROADS - COUNTY ROADS (ROADS, DIV TO CE) | $198.30 | $198.29 | $0.00 | $0.00 | $396.59 | $0.00 |
| 2024 | 13408 | PORTPT - PORT DISTRICT | $101.79 | $101.79 | $0.00 | $0.00 | $203.58 | $0.00 |
| 2024 | 13408 | PUD1 - PUD #1 | $16.19 | $16.18 | $0.00 | $0.00 | $32.37 | $0.00 |
| 2024 | 13408 | LIB1 - LIBRARY DIST #1 | $76.72 | $76.72 | $0.00 | $0.00 | $153.44 | $0.00 |
| 2024 | 13408 | HD2 - HOSP DIST #2 | $14.38 | $14.38 | $0.00 | $0.00 | $28.76 | $0.00 |
| 2024 | 13408 | SD49 - SCHOOL DIST #49 | $257.17 | $257.16 | $0.00 | $0.00 | $514.33 | $0.00 |
| 2024 | 13408 | FD1 - FIRE DISTRICT #1 | $325.85 | $325.84 | $0.00 | $0.00 | $651.69 | $0.00 |
| 2024 | 13408 | EMS1 - FIRE DIST #1 EMS | $124.46 | $124.46 | $0.00 | $0.00 | $248.92 | $0.00 |
| 2024 | 13408 | JCCD - JC Conservation District | $2.55 | $2.55 | $0.00 | $0.00 | $5.10 | $0.00 |
| 2024 | 13408 | NWA - Noxious Weed Assessment | $2.15 | $2.15 | $0.00 | $0.00 | $4.30 | $0.00 |
| 2024 | 13408 | OSS - On Site Septic | $21.00 | $21.00 | $0.00 | $0.00 | $42.00 | $0.00 |
| 2024 | 13408 | WAT - Clean Water District | $12.50 | $12.50 | $0.00 | $0.00 | $25.00 | $0.00 |
| 2024 | 13408 | TOTAL: | $1982.79 | $1982.74 | $0.00 | $0.00 | $3965.53 | $0.00 |
|
| 2024 | 13408 | $1982.79 | $1982.74 | $0.00 | $0.00 | $3965.53 | $0.00 |
Statement Details |
| 2023 | 13431 | STATE - STATE LEVY (SCHOOL) | $510.47 | $510.45 | $0.00 | $0.00 | $1020.92 | $0.00 |
| 2023 | 13431 | COUNTY - COUNTY LEVIES (CE, DD, VET, MH) | $222.76 | $222.74 | $0.00 | $0.00 | $445.50 | $0.00 |
| 2023 | 13431 | CONSERVE - CONSERVATION FUTURES | $6.68 | $6.68 | $0.00 | $0.00 | $13.36 | $0.00 |
| 2023 | 13431 | COROADS - COUNTY ROADS (ROADS, DIV TO CE) | $180.23 | $180.21 | $0.00 | $0.00 | $360.44 | $0.00 |
| 2023 | 13431 | PORTPT - PORT DISTRICT | $93.84 | $93.83 | $0.00 | $0.00 | $187.67 | $0.00 |
| 2023 | 13431 | PUD1 - PUD #1 | $14.77 | $14.76 | $0.00 | $0.00 | $29.53 | $0.00 |
| 2023 | 13431 | LIB1 - LIBRARY DIST #1 | $69.73 | $69.72 | $0.00 | $0.00 | $139.45 | $0.00 |
| 2023 | 13431 | HD2 - HOSP DIST #2 | $13.01 | $12.99 | $0.00 | $0.00 | $26.00 | $0.00 |
| 2023 | 13431 | SD49 - SCHOOL DIST #49 | $238.62 | $238.61 | $0.00 | $0.00 | $477.23 | $0.00 |
| 2023 | 13431 | FD1 - FIRE DISTRICT #1 | $183.50 | $183.50 | $0.00 | $0.00 | $367.00 | $0.00 |
| 2023 | 13431 | EMS1 - FIRE DIST #1 EMS | $78.06 | $78.06 | $0.00 | $0.00 | $156.12 | $0.00 |
| 2023 | 13431 | JCCD - JC Conservation District | $2.55 | $2.55 | $0.00 | $0.00 | $5.10 | $0.00 |
| 2023 | 13431 | NWA - Noxious Weed Assessment | $2.15 | $2.15 | $0.00 | $0.00 | $4.30 | $0.00 |
| 2023 | 13431 | OSS - On Site Septic | $20.50 | $20.50 | $0.00 | $0.00 | $41.00 | $0.00 |
| 2023 | 13431 | WAT - Clean Water District | $12.00 | $12.00 | $0.00 | $0.00 | $24.00 | $0.00 |
| 2023 | 13431 | TOTAL: | $1648.87 | $1648.75 | $0.00 | $0.00 | $3297.62 | $0.00 |
|
| 2023 | 13431 | $1648.87 | $1648.75 | $0.00 | $0.00 | $3297.62 | $0.00 |
Values
| (+) Improvement Homesite Value: | + | $452,160 | |
| (+) Improvement Non-Homesite Value: | + | $0 | |
| (+) Land Homesite Value: | + | $99,000 | |
| (+) Land Non-Homesite Value: | + | $0 | |
| (+) Curr Use (HS): | + | $0 | $0 |
| (+) Curr Use (NHS): | + | $0 | $0 |
| | | -------------------------- | |
| (=) Market Value: | = | $551,160 | |
| (–) Productivity Loss: | – | $0 | |
| | | -------------------------- | |
| (=) Subtotal: | = | $551,160 | |
| (+) Senior Appraised Value: | + | $0 | |
| (+) Non-Senior Appraised Value: | + | $551,160 | |
| | | -------------------------- | |
| (=) Total Appraised Value: | = | $551,160 | |
| (–) Senior Exemption Loss: | – | $0 | |
| (–) Exemption Loss: | – | $0 | |
| | | -------------------------- | |
| (=) Taxable Value: | = | $551,160 | |
Taxing Jurisdiction
| Owner: | GARY & CHRISTI KOLSKY | | |
| % Ownership: | 100.0000000000% | | |
| Total Value: | $551,160 | | |
| Tax Area: | 0211 - 1-49F1E1H2L1 |
| CE | COUNTY CURRENT EXPENSE | 0.9034619479 | $551,160 | $551,160 | $497.95 | | |
| CNTYDD | DEVELOPMENTAL DISABILITIES | 0.0052121823 | $551,160 | $551,160 | $2.87 | | |
| CNTYVET | VETERANS RELIEF | 0.0052777810 | $551,160 | $551,160 | $2.91 | | |
| MENTAL | MENTAL HEALTH | 0.0052121823 | $551,160 | $551,160 | $2.87 | | |
| ROADS | COUNTY ROADS | 0.7415066410 | $551,160 | $551,160 | $408.69 | | |
| ROADSCU | COUNTY ROADS TO CUR EXP | 0.0000000000 | $551,160 | $551,160 | $0.00 | | |
| HOSP2CASH | HOSP DIST #2 GENERAL | 0.0536075306 | $551,160 | $551,160 | $29.55 | | |
| SCH49CP | SCHOOL DIST #49 CAP PROJ | 0.6279093905 | $551,160 | $551,160 | $346.08 | | |
| SCH49MO | SCHOOL DIST #49 EP & O | 0.6376483602 | $551,160 | $551,160 | $351.45 | | |
| CONSERVE | CONSERVATION FUTURES | 0.0275621078 | $551,160 | $551,160 | $15.19 | | |
| EMS1 | FIRE DIST #1 EMS | 0.4679948282 | $551,160 | $551,160 | $257.94 | | |
| FD1 | FIRE DIST #1 GENERAL | 1.2171942929 | $551,160 | $551,160 | $670.87 | | |
| LIB1 | LIBRARY DIST #1 GENERAL | 0.2868827388 | $551,160 | $551,160 | $158.12 | | |
| PORTPT | PORT OF PT GENERAL | 0.1134941229 | $551,160 | $551,160 | $62.55 | | |
| PORTPTIDD | PORT OF PT IDD 2019 | 0.2577346692 | $551,160 | $551,160 | $142.05 | | |
| PUD1 | PUD #1 GENERAL | 0.0597888892 | $551,160 | $551,160 | $32.95 | | |
| STATE | STATE SCHOOL PART 1 | 1.4940692947 | $551,160 | $551,160 | $823.47 | | |
| STATE2 | STATE SCHOOL PART 2 | 0.8050170049 | $551,160 | $551,160 | $443.69 | | |
| | Total Tax Rate: | 7.7095739644 | | | | | |
| | | | | Taxes w/Current Exemptions: | $4,249.20 | | |
| | | | | Taxes w/o Exemptions: | $4,249.20 | | |
Improvement / Building
| Improvement #1: | Residential Bldg | State Code: | 11 | 1500.0 sqft | Value: | $452,160 |
| Bathrooms (#): | 2 (FULL) | Bedrooms (#): | 3 | | Exterior Wall: | SI/ST | Floor Construction: | FRAME | | Foundation: | CONPR | Heating/Cooling: | HPUMP | | Roof Cover: | COMP |   |   |
|
| | Type | Description | Class CD | Sub Class CD | Year Built | Area |
| | MA | Main Area | 4+ | 1S | 2006 | 1500.0 |
| | PATIO | House Patio | 4 | * | 2006 | 196.0 |
| | HWPOR | House Wood Porch | 4 | * | 2006 | 48.0 |
| | HDECK | House Deck | 4 | * | 2006 | 72.0 |
| | GATT | House Attached Garage | 4 | 1S | 2006 | 528.0 |
Sketch
Property Image
Land
| 1 | 4210-1275S | | 0.0000 | 0.00 | 0.00 | 0.00 | 1.00 | $99,000 | $0 |
Roll Value History
| 2026 | N/A | N/A | N/A | N/A | N/A |
| 2025 | $452,160 | $99,000 | $0 | $551,160 | $551,160 |
| 2024 | $432,501 | $94,500 | $0 | $527,001 | $527,001 |
| 2023 | $412,842 | $85,000 | $0 | $497,842 | $497,842 |
| 2022 | $363,666 | $70,000 | $0 | $433,666 | $433,666 |
Deed and Sales History
| 1 | 03/14/2019 | SWD | Statutory Warranty Deed | DALE M & GAYLE R COOK | GARY & CHRISTI KOLSKY | | | $328,000.00 | 131973 | |
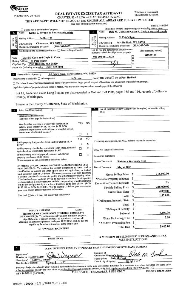
| 2 | 05/04/2018 | SWD | Statutory Warranty Deed | KATHY L WYNNE | DALE M & GAYLE R COOK | | | $315,000.00 | 130106 | |
| 3 | 05/17/2006 | SWD | Statutory Warranty Deed | SEVEN BRIDGES PROPERTIES, | WYNNE, KATHY L | | | $290,000.00 | 106655 | 0 |
| 4 | 10/14/2005 | SWD | Statutory Warranty Deed | ANDERSON, DAVID A/MARGARE | SEVEN BRIDGES PROPERTIES LLC | 0 | 0 | $112,800.00 | 105139 | 0 |
|   | |
Payout Agreement
| No payout information available.. |