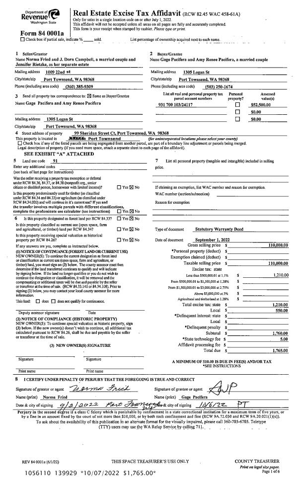
Property
Account |
| Property ID: | 24117 | Abbreviated Legal Description: | WEYMOUTH & DYER ADDITION BLK 1 LOT 6 |
| Parcel # / Geo ID: | 931700103 | Agent Code: | |
| Type: | Real | | |
| Tax Area: | 0110 - C-50F1E1H2 | Land Use Code | 91 |
| Open Space: | N | DFL | N |
| Historic Property: | N | Remodel Property: | N |
| Multi-Family Redevelopment: | N | | |
| Township: | 30N | Section: | 3 |
| Range: | 1W |
Location |
| Address: | 2610 SHERIDAN ST PORT TOWNSEND, WA 98368 | Mapsco: | 149/024 |
| Neighborhood: | COLUMBIA//HUSSEY/WEYMOUNT-DYER/WOODLAND LP-ACREAGE; CEMETERY | Map ID: | |
| Neighborhood CD: | 6120 |
Owner |
| Name: | GAGE & AMY PACIFERA | Owner ID: | 107592 |
| Mailing Address: | 2610 SHERIDAN ST PORT TOWNSEND, WA 98368-7112 | % Ownership: | 100.0000000000% |
| | | Exemptions: | |
Pay Tax Due
Select the appropriate checkbox next to the year to be paid. Multiple years may be selected.
*Convenience Fee not included
Taxes and Assessment Details
Property Tax Information as of
03/10/2026
Click on "Statement Details" to expand or collapse a tax statement.
* Please enter a valid date ** Please enter a valid date *
Statement Details |
| 2026 | 13544 | STATE - STATE LEVY (SCHOOL) | $109.21 | $109.21 | $0.00 | $0.00 | $0.00 | $218.42 |
| 2026 | 13544 | COUNTY - COUNTY LEVIES (CE, DD, VET, MH) | $43.67 | $43.66 | $0.00 | $0.00 | $0.00 | $87.33 |
| 2026 | 13544 | CONSERVE - CONSERVATION FUTURES | $1.31 | $1.31 | $0.00 | $0.00 | $0.00 | $2.62 |
| 2026 | 13544 | CITYPT - CITY OF PT | $61.97 | $61.97 | $0.00 | $0.00 | $0.00 | $123.94 |
| 2026 | 13544 | PORTPT - PORT DISTRICT | $17.63 | $17.63 | $0.00 | $0.00 | $0.00 | $35.26 |
| 2026 | 13544 | PUD1 - PUD #1 | $2.84 | $2.84 | $0.00 | $0.00 | $0.00 | $5.68 |
| 2026 | 13544 | HD2 - HOSP DIST #2 | $2.55 | $2.54 | $0.00 | $0.00 | $0.00 | $5.09 |
| 2026 | 13544 | SD50 - SCHOOL DIST #50 | $86.53 | $86.51 | $0.00 | $0.00 | $0.00 | $173.04 |
| 2026 | 13544 | FD1 - FIRE DISTRICT #1 | $57.82 | $57.81 | $0.00 | $0.00 | $0.00 | $115.63 |
| 2026 | 13544 | EMS1 - FIRE DIST #1 EMS | $22.23 | $22.23 | $0.00 | $0.00 | $0.00 | $44.46 |
| 2026 | 13544 | JCCD - JC Conservation District | $2.53 | $2.53 | $0.00 | $0.00 | $0.00 | $5.06 |
| 2026 | 13544 | NWA - Noxious Weed Assessment | $2.98 | $2.97 | $0.00 | $0.00 | $0.00 | $5.95 |
| 2026 | 13544 | WAT - Clean Water District | $13.00 | $13.00 | $0.00 | $0.00 | $0.00 | $26.00 |
| 2026 | 13544 | TOTAL: | $424.27 | $424.21 | $0.00 | $0.00 | $0.00 | $848.48 |
|
| 2026 | 13544 | $424.27 | $424.21 | $0.00 | $0.00 | $0.00 | $848.48 |
Statement Details |
| 2025 | 13570 | STATE - STATE LEVY (SCHOOL) | $113.31 | $113.30 | $0.00 | $0.00 | $226.61 | $0.00 |
| 2025 | 13570 | COUNTY - COUNTY LEVIES (CE, DD, VET, MH) | $44.56 | $44.55 | $0.00 | $0.00 | $89.11 | $0.00 |
| 2025 | 13570 | CONSERVE - CONSERVATION FUTURES | $1.34 | $1.33 | $0.00 | $0.00 | $2.67 | $0.00 |
| 2025 | 13570 | CITYPT - CITY OF PT | $64.26 | $64.25 | $0.00 | $0.00 | $128.51 | $0.00 |
| 2025 | 13570 | PORTPT - PORT DISTRICT | $18.18 | $18.18 | $0.00 | $0.00 | $36.36 | $0.00 |
| 2025 | 13570 | PUD1 - PUD #1 | $2.92 | $2.91 | $0.00 | $0.00 | $5.83 | $0.00 |
| 2025 | 13570 | HD2 - HOSP DIST #2 | $2.60 | $2.60 | $0.00 | $0.00 | $5.20 | $0.00 |
| 2025 | 13570 | SD50 - SCHOOL DIST #50 | $82.81 | $82.81 | $0.00 | $0.00 | $165.62 | $0.00 |
| 2025 | 13570 | FD1 - FIRE DISTRICT #1 | $58.80 | $58.80 | $0.00 | $0.00 | $117.60 | $0.00 |
| 2025 | 13570 | EMS1 - FIRE DIST #1 EMS | $22.62 | $22.61 | $0.00 | $0.00 | $45.23 | $0.00 |
| 2025 | 13570 | JCCD - JC Conservation District | $2.53 | $2.53 | $0.00 | $0.00 | $5.06 | $0.00 |
| 2025 | 13570 | NWA - Noxious Weed Assessment | $2.15 | $2.15 | $0.00 | $0.00 | $4.30 | $0.00 |
| 2025 | 13570 | WAT - Clean Water District | $13.00 | $13.00 | $0.00 | $0.00 | $26.00 | $0.00 |
| 2025 | 13570 | TOTAL: | $429.08 | $429.02 | $0.00 | $0.00 | $858.10 | $0.00 |
|
| 2025 | 13570 | $429.08 | $429.02 | $0.00 | $0.00 | $858.10 | $0.00 |
Statement Details |
| 2024 | 13599 | STATE - STATE LEVY (SCHOOL) | $109.32 | $109.31 | $0.00 | $0.00 | $218.63 | $0.00 |
| 2024 | 13599 | COUNTY - COUNTY LEVIES (CE, DD, VET, MH) | $46.79 | $46.76 | $0.00 | $0.00 | $93.55 | $0.00 |
| 2024 | 13599 | CONSERVE - CONSERVATION FUTURES | $1.41 | $1.40 | $0.00 | $0.00 | $2.81 | $0.00 |
| 2024 | 13599 | CITYPT - CITY OF PT | $66.84 | $66.83 | $0.00 | $0.00 | $133.67 | $0.00 |
| 2024 | 13599 | PORTPT - PORT DISTRICT | $19.33 | $19.31 | $0.00 | $0.00 | $38.64 | $0.00 |
| 2024 | 13599 | PUD1 - PUD #1 | $3.08 | $3.07 | $0.00 | $0.00 | $6.15 | $0.00 |
| 2024 | 13599 | HD2 - HOSP DIST #2 | $2.73 | $2.73 | $0.00 | $0.00 | $5.46 | $0.00 |
| 2024 | 13599 | SD50 - SCHOOL DIST #50 | $88.45 | $88.44 | $0.00 | $0.00 | $176.89 | $0.00 |
| 2024 | 13599 | FD1 - FIRE DISTRICT #1 | $61.85 | $61.85 | $0.00 | $0.00 | $123.70 | $0.00 |
| 2024 | 13599 | EMS1 - FIRE DIST #1 EMS | $23.63 | $23.62 | $0.00 | $0.00 | $47.25 | $0.00 |
| 2024 | 13599 | JCCD - JC Conservation District | $2.53 | $2.53 | $0.00 | $0.00 | $5.06 | $0.00 |
| 2024 | 13599 | NWA - Noxious Weed Assessment | $2.15 | $2.15 | $0.00 | $0.00 | $4.30 | $0.00 |
| 2024 | 13599 | WAT - Clean Water District | $12.50 | $12.50 | $0.00 | $0.00 | $25.00 | $0.00 |
| 2024 | 13599 | TOTAL: | $440.61 | $440.50 | $0.00 | $0.00 | $881.11 | $0.00 |
|
| 2024 | 13599 | $440.61 | $440.50 | $0.00 | $0.00 | $881.11 | $0.00 |
Statement Details |
| 2023 | 13622 | STATE - STATE LEVY (SCHOOL) | $82.40 | $82.39 | $0.00 | $0.00 | $164.79 | $0.00 |
| 2023 | 13622 | COUNTY - COUNTY LEVIES (CE, DD, VET, MH) | $35.97 | $35.94 | $0.00 | $0.00 | $71.91 | $0.00 |
| 2023 | 13622 | CONSERVE - CONSERVATION FUTURES | $1.08 | $1.08 | $0.00 | $0.00 | $2.16 | $0.00 |
| 2023 | 13622 | CITYPT - CITY OF PT | $50.83 | $50.80 | $0.00 | $0.00 | $101.63 | $0.00 |
| 2023 | 13622 | PORTPT - PORT DISTRICT | $15.15 | $15.14 | $0.00 | $0.00 | $30.29 | $0.00 |
| 2023 | 13622 | PUD1 - PUD #1 | $2.39 | $2.38 | $0.00 | $0.00 | $4.77 | $0.00 |
| 2023 | 13622 | HD2 - HOSP DIST #2 | $2.10 | $2.09 | $0.00 | $0.00 | $4.19 | $0.00 |
| 2023 | 13622 | SD50 - SCHOOL DIST #50 | $65.39 | $65.38 | $0.00 | $0.00 | $130.77 | $0.00 |
| 2023 | 13622 | FD1 - FIRE DISTRICT #1 | $29.62 | $29.62 | $0.00 | $0.00 | $59.24 | $0.00 |
| 2023 | 13622 | EMS1 - FIRE DIST #1 EMS | $12.60 | $12.60 | $0.00 | $0.00 | $25.20 | $0.00 |
| 2023 | 13622 | JCCD - JC Conservation District | $2.53 | $2.53 | $0.00 | $0.00 | $5.06 | $0.00 |
| 2023 | 13622 | NWA - Noxious Weed Assessment | $2.15 | $2.15 | $0.00 | $0.00 | $4.30 | $0.00 |
| 2023 | 13622 | WAT - Clean Water District | $12.00 | $12.00 | $0.00 | $0.00 | $24.00 | $0.00 |
| 2023 | 13622 | TOTAL: | $314.21 | $314.10 | $0.00 | $0.00 | $628.31 | $0.00 |
|
| 2023 | 13622 | $314.21 | $314.10 | $0.00 | $0.00 | $628.31 | $0.00 |
Values
| (+) Improvement Homesite Value: | + | $0 | |
| (+) Improvement Non-Homesite Value: | + | $0 | |
| (+) Land Homesite Value: | + | $0 | |
| (+) Land Non-Homesite Value: | + | $95,000 | |
| (+) Curr Use (HS): | + | $0 | $0 |
| (+) Curr Use (NHS): | + | $0 | $0 |
| | | -------------------------- | |
| (=) Market Value: | = | $95,000 | |
| (–) Productivity Loss: | – | $0 | |
| | | -------------------------- | |
| (=) Subtotal: | = | $95,000 | |
| (+) Senior Appraised Value: | + | $0 | |
| (+) Non-Senior Appraised Value: | + | $95,000 | |
| | | -------------------------- | |
| (=) Total Appraised Value: | = | $95,000 | |
| (–) Senior Exemption Loss: | – | $0 | |
| (–) Exemption Loss: | – | $0 | |
| | | -------------------------- | |
| (=) Taxable Value: | = | $95,000 | |
Taxing Jurisdiction
| Owner: | GAGE & AMY PACIFERA | | |
| % Ownership: | 100.0000000000% | | |
| Total Value: | $95,000 | | |
| Tax Area: | 0110 - C-50F1E1H2 |
| CE | COUNTY CURRENT EXPENSE | 0.9034619479 | $95,000 | $95,000 | $85.83 | | |
| CNTYDD | DEVELOPMENTAL DISABILITIES | 0.0052121823 | $95,000 | $95,000 | $0.50 | | |
| CNTYVET | VETERANS RELIEF | 0.0052777810 | $95,000 | $95,000 | $0.50 | | |
| MENTAL | MENTAL HEALTH | 0.0052121823 | $95,000 | $95,000 | $0.50 | | |
| PTGEN | CITY OF PT GENERAL | 0.8551967795 | $95,000 | $95,000 | $81.24 | | |
| PTLLL | CITY OF PT - LIBRARY LID LIFT | 0.4010114288 | $95,000 | $95,000 | $38.10 | | |
| PTMVBOND | CITY OF PT MV BOND | 0.0484717981 | $95,000 | $95,000 | $4.60 | | |
| HOSP2CASH | HOSP DIST #2 GENERAL | 0.0536075306 | $95,000 | $95,000 | $5.09 | | |
| SCH50BOND | SCHOOL DIST #50 BOND 2016 | 0.5377451389 | $95,000 | $95,000 | $51.09 | | |
| SCH50CP | SCHOOL DIST #50 CAP PROJ | 0.4573475088 | $95,000 | $95,000 | $43.45 | | |
| SCH50MO | SCHOOL DIST #50 EP & O | 0.8262822886 | $95,000 | $95,000 | $78.50 | | |
| CONSERVE | CONSERVATION FUTURES | 0.0275621078 | $95,000 | $95,000 | $2.62 | | |
| EMS1 | FIRE DIST #1 EMS | 0.4679948282 | $95,000 | $95,000 | $44.46 | | |
| FD1 | FIRE DIST #1 GENERAL | 1.2171942929 | $95,000 | $95,000 | $115.63 | | |
| PORTPT | PORT OF PT GENERAL | 0.1134941229 | $95,000 | $95,000 | $10.78 | | |
| PORTPTIDD | PORT OF PT IDD 2019 | 0.2577346692 | $95,000 | $95,000 | $24.48 | | |
| PUD1 | PUD #1 GENERAL | 0.0597888892 | $95,000 | $95,000 | $5.68 | | |
| STATE | STATE SCHOOL PART 1 | 1.4940692947 | $95,000 | $95,000 | $141.94 | | |
| STATE2 | STATE SCHOOL PART 2 | 0.8050170049 | $95,000 | $95,000 | $76.48 | | |
| | Total Tax Rate: | 8.5416817766 | | | | | |
| | | | | Taxes w/Current Exemptions: | $811.47 | | |
| | | | | Taxes w/o Exemptions: | $811.47 | | |
Improvement / Building
Sketch
| No sketches available for this property. |
Property Image
Land
| 1 | 6120-1177L | | 0.0000 | 0.00 | 0.00 | 0.00 | 1.00 | $95,000 | $0 |
Roll Value History
| 2026 | N/A | N/A | N/A | N/A | N/A |
| 2025 | $0 | $95,000 | $0 | $95,000 | $95,000 |
| 2024 | $0 | $94,500 | $0 | $94,500 | $94,500 |
| 2023 | $0 | $94,500 | $0 | $94,500 | $94,500 |
| 2022 | $0 | $70,000 | $0 | $70,000 | $70,000 |
Deed and Sales History
| 1 | 09/01/2022 | SWD | Statutory Warranty Deed | NORMA FRIED | GAGE & AMY PACIFERA | | | $110,000.00 | 139929 | |
| 2 | 05/30/1995 | SWD | Statutory Warranty Deed | URQUHART, KENNETH R/MARIL | FRIED, NORMA/ET AL | 0 | 0 | $65,000.00 | 77114 | 0 |
Payout Agreement
| No payout information available.. |