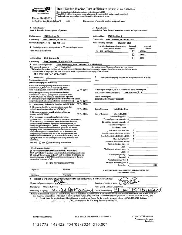
Property
Account |
| Property ID: | 24120 | Abbreviated Legal Description: | WEYMOUTH & DYER ADDITION BLK 1 LOTS 3(N17 80'), 4(ALL) |
| Parcel # / Geo ID: | 931700106 | Agent Code: | |
| Type: | Real | | |
| Tax Area: | 0110 - C-50F1E1H2 | Land Use Code | 11 |
| Open Space: | N | DFL | N |
| Historic Property: | N | Remodel Property: | N |
| Multi-Family Redevelopment: | N | | |
| Township: | 30N | Section: | 3 |
| Range: | 1W |
Location |
| Address: | 2540 SHERIDAN ST PORT TOWNSEND, WA 98368 | Mapsco: | 149/022 |
| Neighborhood: | COLUMBIA//HUSSEY/WEYMOUNT-DYER/WOODLAND LP-ACREAGE; CEMETERY | Map ID: | |
| Neighborhood CD: | 6120 |
Owner |
| Name: | JOHN E & CHRISTINE M FRANKLIN | Owner ID: | 110617 |
| Mailing Address: | BRIAN G BROWN 2540 SHERIDAN ST PORT TOWNSEND, WA 98368-7110 | % Ownership: | 100.0000000000% |
| | | Exemptions: | |
Pay Tax Due
There is currently No Amount Due on this property.
Taxes and Assessment Details
Property Tax Information as of
03/12/2026
Click on "Statement Details" to expand or collapse a tax statement.
* Please enter a valid date ** Please enter a valid date *
Statement Details |
| | TOTAL: | $0.00 | $0.00 | $0.00 | $0.00 | $0.00 | $0.00 |
|
| | $0.00 | $0.00 | $0.00 | $0.00 | $0.00 | $0.00 |
Values
| (+) Improvement Homesite Value: | + | $0 | |
| (+) Improvement Non-Homesite Value: | + | $334,872 | |
| (+) Land Homesite Value: | + | $0 | |
| (+) Land Non-Homesite Value: | + | $121,300 | |
| (+) Curr Use (HS): | + | $0 | $0 |
| (+) Curr Use (NHS): | + | $0 | $0 |
| | | -------------------------- | |
| (=) Market Value: | = | $456,172 | |
| (–) Productivity Loss: | – | $0 | |
| | | -------------------------- | |
| (=) Subtotal: | = | $456,172 | |
| (+) Senior Appraised Value: | + | $0 | |
| (+) Non-Senior Appraised Value: | + | $456,172 | |
| | | -------------------------- | |
| (=) Total Appraised Value: | = | $456,172 | |
| (–) Senior Exemption Loss: | – | $0 | |
| (–) Exemption Loss: | – | $0 | |
| | | -------------------------- | |
| (=) Taxable Value: | = | $456,172 | |
Taxing Jurisdiction
| Owner: | JOHN E & CHRISTINE M FRANKLIN | | |
| % Ownership: | 100.0000000000% | | |
| Total Value: | $456,172 | | |
| Tax Area: | 0110 - C-50F1E1H2 |
| CE | COUNTY CURRENT EXPENSE | 0.9034619479 | $456,172 | $456,172 | $412.13 | | |
| CNTYDD | DEVELOPMENTAL DISABILITIES | 0.0052121823 | $456,172 | $456,172 | $2.38 | | |
| CNTYVET | VETERANS RELIEF | 0.0052777810 | $456,172 | $456,172 | $2.41 | | |
| MENTAL | MENTAL HEALTH | 0.0052121823 | $456,172 | $456,172 | $2.38 | | |
| PTGEN | CITY OF PT GENERAL | 0.8551967795 | $456,172 | $456,172 | $390.12 | | |
| PTLLL | CITY OF PT - LIBRARY LID LIFT | 0.4010114288 | $456,172 | $456,172 | $182.93 | | |
| PTMVBOND | CITY OF PT MV BOND | 0.0484717981 | $456,172 | $456,172 | $22.11 | | |
| HOSP2CASH | HOSP DIST #2 GENERAL | 0.0536075306 | $456,172 | $456,172 | $24.45 | | |
| SCH50BOND | SCHOOL DIST #50 BOND 2016 | 0.5377451389 | $456,172 | $456,172 | $245.30 | | |
| SCH50CP | SCHOOL DIST #50 CAP PROJ | 0.4573475088 | $456,172 | $456,172 | $208.63 | | |
| SCH50MO | SCHOOL DIST #50 EP & O | 0.8262822886 | $456,172 | $456,172 | $376.93 | | |
| CONSERVE | CONSERVATION FUTURES | 0.0275621078 | $456,172 | $456,172 | $12.57 | | |
| EMS1 | FIRE DIST #1 EMS | 0.4679948282 | $456,172 | $456,172 | $213.49 | | |
| FD1 | FIRE DIST #1 GENERAL | 1.2171942929 | $456,172 | $456,172 | $555.25 | | |
| PORTPT | PORT OF PT GENERAL | 0.1134941229 | $456,172 | $456,172 | $51.77 | | |
| PORTPTIDD | PORT OF PT IDD 2019 | 0.2577346692 | $456,172 | $456,172 | $117.57 | | |
| PUD1 | PUD #1 GENERAL | 0.0597888892 | $456,172 | $456,172 | $27.27 | | |
| STATE | STATE SCHOOL PART 1 | 1.4940692947 | $456,172 | $456,172 | $681.55 | | |
| STATE2 | STATE SCHOOL PART 2 | 0.8050170049 | $456,172 | $456,172 | $367.23 | | |
| | Total Tax Rate: | 8.5416817766 | | | | | |
| | | | | Taxes w/Current Exemptions: | $3,896.47 | | |
| | | | | Taxes w/o Exemptions: | $3,896.47 | | |
Improvement / Building
| Improvement #1: | Residential Bldg | State Code: | 11 | 1320.0 sqft | Value: | $334,872 |
| Bathrooms (#): | 2 (FULL) | Bathrooms (#): | 1 (HALF) | | Bedrooms (#): | 3 | Exterior Wall: | SI/ST | | Floor Construction: | FRAME | Foundation: | CONPR | | Heating/Cooling: | F/A | Roof Cover: | COMP |
|
| | Type | Description | Class CD | Sub Class CD | Year Built | Area |
| | MA | Main Area | 4 | 15SF | 1991 | 700.0 |
| | MA2 | Second Floor Main Area | 4 | 15SF | 1991 | 620.0 |
| | HWPOR | House Wood Porch | 3 | * | 1991 | 424.0 |
| | GATT | House Attached Garage | 4 | 15SF | 1991 | 440.0 |
| | SHED | Shed (Table Not Dep) | 4 | * | 1991 | 144.0 |
Sketch
Property Image
Land
| 1 | 6120-1178L | Multiple Lot Site (2+/-) w/Fair/No Terr Views | 0.0000 | 0.00 | 0.00 | 0.00 | 1.00 | $121,300 | $0 |
Roll Value History
| 2026 | N/A | N/A | N/A | N/A | N/A |
| 2025 | $334,872 | $121,300 | $0 | $456,172 | $456,172 |
| 2024 | $261,804 | $118,650 | $0 | $380,454 | $380,454 |
| 2023 | $261,804 | $113,400 | $0 | $375,204 | $375,204 |
| 2022 | $239,987 | $103,000 | $0 | $342,987 | $342,987 |
Deed and Sales History
| 1 | 03/29/2024 | QCD | Quit Claim Deed | CLINTON L BROWN | BRIAN G BROWN | | | | 142422 | |
| 2 | 03/29/2024 | QCD | Quit Claim Deed | JOHN E & CHRISTINE M FRANKLIN | JOHN E & CHRISTINE M FRANKLIN | | | | 142420 | |
| 3 | 03/29/2024 | QCD | Quit Claim Deed | JOHN E FRANKLIN | JOHN E & CHRISTINE M FRANKLIN | | | | 142418 | |
| 4 | 04/17/1997 | SWD | Statutory Warranty Deed | HARRIS, RONAL L/CYRIE | FRANKLIN, JOHN E | 0 | 0 | $112,000.00 | 81789 | 0 |
| 5 | 02/13/1992 | QCD | Quit Claim Deed | HARRIS, RONAL L/CYRIE | SALL, DONNA | 0 | 0 | $0.00 | 67785 | 0 |
Payout Agreement
| No payout information available.. |