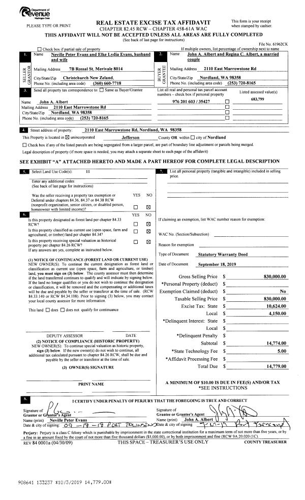
Property
Account |
| Property ID: | 24124 | Abbreviated Legal Description: | WEYMOUTH & DYER ADDITION BLK 2 LOTS 5 & 6 |
| Parcel # / Geo ID: | 931700201 | Agent Code: | |
| Type: | Real | | |
| Tax Area: | 0110 - C-50F1E1H2 | Land Use Code | 11 |
| Open Space: | N | DFL | N |
| Historic Property: | N | Remodel Property: | N |
| Multi-Family Redevelopment: | N | | |
| Township: | 30N | Section: | 3 |
| Range: | 1W |
Location |
| Address: | 2412 SHERIDAN ST PORT TOWNSEND, WA 98368 | Mapsco: | 149/029 |
| Neighborhood: | COLUMBIA//HUSSEY/WEYMOUNT-DYER/WOODLAND LP-ACREAGE; CEMETERY | Map ID: | |
| Neighborhood CD: | 6120 |
Owner |
| Name: | BEVERLY J ROSENOW | Owner ID: | 26162 |
| Mailing Address: | 2412 SHERIDAN ST PORT TOWNSEND, WA 98368-7125 | % Ownership: | 100.0000000000% |
| | | Exemptions: | SNR/DSBL |
Pay Tax Due
Select the appropriate checkbox next to the year to be paid. Multiple years may be selected.
*Convenience Fee not included
Taxes and Assessment Details
Property Tax Information as of
03/10/2026
Click on "Statement Details" to expand or collapse a tax statement.
* Please enter a valid date ** Please enter a valid date *
Statement Details |
| 2026 | 13551 | STATE - STATE LEVY (SCHOOL) | $71.13 | $71.12 | $0.00 | $0.00 | $0.00 | $142.25 |
| 2026 | 13551 | COUNTY - COUNTY LEVIES (CE, DD, VET, MH) | $43.76 | $43.76 | $0.00 | $0.00 | $0.00 | $87.52 |
| 2026 | 13551 | CONSERVE - CONSERVATION FUTURES | $1.31 | $1.31 | $0.00 | $0.00 | $0.00 | $2.62 |
| 2026 | 13551 | CITYPT - CITY OF PT | $59.80 | $59.80 | $0.00 | $0.00 | $0.00 | $119.60 |
| 2026 | 13551 | PORTPT - PORT DISTRICT | $17.68 | $17.67 | $0.00 | $0.00 | $0.00 | $35.35 |
| 2026 | 13551 | PUD1 - PUD #1 | $2.85 | $2.84 | $0.00 | $0.00 | $0.00 | $5.69 |
| 2026 | 13551 | HD2 - HOSP DIST #2 | $2.55 | $2.55 | $0.00 | $0.00 | $0.00 | $5.10 |
| 2026 | 13551 | SD50 - SCHOOL DIST #50 | $0.00 | $0.00 | $0.00 | $0.00 | $0.00 | $0.00 |
| 2026 | 13551 | FD1 - FIRE DISTRICT #1 | $57.95 | $57.94 | $0.00 | $0.00 | $0.00 | $115.89 |
| 2026 | 13551 | EMS1 - FIRE DIST #1 EMS | $22.28 | $22.28 | $0.00 | $0.00 | $0.00 | $44.56 |
| 2026 | 13551 | TOTAL: | $279.31 | $279.27 | $0.00 | $0.00 | $0.00 | $558.58 |
|
| 2026 | 13551 | $279.31 | $279.27 | $0.00 | $0.00 | $0.00 | $558.58 |
Statement Details |
| 2025 | 13577 | STATE - STATE LEVY (SCHOOL) | $74.22 | $74.21 | $0.00 | $0.00 | $148.43 | $0.00 |
| 2025 | 13577 | COUNTY - COUNTY LEVIES (CE, DD, VET, MH) | $44.91 | $44.87 | $0.00 | $0.00 | $89.78 | $0.00 |
| 2025 | 13577 | CONSERVE - CONSERVATION FUTURES | $1.35 | $1.34 | $0.00 | $0.00 | $2.69 | $0.00 |
| 2025 | 13577 | CITYPT - CITY OF PT | $62.31 | $62.31 | $0.00 | $0.00 | $124.62 | $0.00 |
| 2025 | 13577 | PORTPT - PORT DISTRICT | $18.33 | $18.31 | $0.00 | $0.00 | $36.64 | $0.00 |
| 2025 | 13577 | PUD1 - PUD #1 | $2.94 | $2.93 | $0.00 | $0.00 | $5.87 | $0.00 |
| 2025 | 13577 | HD2 - HOSP DIST #2 | $2.62 | $2.62 | $0.00 | $0.00 | $5.24 | $0.00 |
| 2025 | 13577 | SD50 - SCHOOL DIST #50 | $0.00 | $0.00 | $0.00 | $0.00 | $0.00 | $0.00 |
| 2025 | 13577 | FD1 - FIRE DISTRICT #1 | $59.24 | $59.24 | $0.00 | $0.00 | $118.48 | $0.00 |
| 2025 | 13577 | EMS1 - FIRE DIST #1 EMS | $22.79 | $22.78 | $0.00 | $0.00 | $45.57 | $0.00 |
| 2025 | 13577 | TOTAL: | $288.71 | $288.61 | $0.00 | $0.00 | $577.32 | $0.00 |
|
| 2025 | 13577 | $288.71 | $288.61 | $0.00 | $0.00 | $577.32 | $0.00 |
Statement Details |
| 2024 | 13606 | STATE - STATE LEVY (SCHOOL) | $71.69 | $71.68 | $0.00 | $0.00 | $143.37 | $0.00 |
| 2024 | 13606 | COUNTY - COUNTY LEVIES (CE, DD, VET, MH) | $47.14 | $47.12 | $0.00 | $0.00 | $94.26 | $0.00 |
| 2024 | 13606 | CONSERVE - CONSERVATION FUTURES | $1.42 | $1.41 | $0.00 | $0.00 | $2.83 | $0.00 |
| 2024 | 13606 | CITYPT - CITY OF PT | $64.76 | $64.75 | $0.00 | $0.00 | $129.51 | $0.00 |
| 2024 | 13606 | PORTPT - PORT DISTRICT | $19.47 | $19.46 | $0.00 | $0.00 | $38.93 | $0.00 |
| 2024 | 13606 | PUD1 - PUD #1 | $3.10 | $3.09 | $0.00 | $0.00 | $6.19 | $0.00 |
| 2024 | 13606 | HD2 - HOSP DIST #2 | $2.75 | $2.75 | $0.00 | $0.00 | $5.50 | $0.00 |
| 2024 | 13606 | SD50 - SCHOOL DIST #50 | $0.00 | $0.00 | $0.00 | $0.00 | $0.00 | $0.00 |
| 2024 | 13606 | FD1 - FIRE DISTRICT #1 | $62.32 | $62.31 | $0.00 | $0.00 | $124.63 | $0.00 |
| 2024 | 13606 | EMS1 - FIRE DIST #1 EMS | $23.81 | $23.80 | $0.00 | $0.00 | $47.61 | $0.00 |
| 2024 | 13606 | TOTAL: | $296.46 | $296.37 | $0.00 | $0.00 | $592.83 | $0.00 |
|
| 2024 | 13606 | $296.46 | $296.37 | $0.00 | $0.00 | $592.83 | $0.00 |
Statement Details |
| 2023 | 13629 | STATE - STATE LEVY (SCHOOL) | $73.02 | $73.01 | $0.00 | $0.00 | $146.03 | $0.00 |
| 2023 | 13629 | COUNTY - COUNTY LEVIES (CE, DD, VET, MH) | $48.91 | $48.91 | $0.00 | $0.00 | $97.82 | $0.00 |
| 2023 | 13629 | CONSERVE - CONSERVATION FUTURES | $1.47 | $1.46 | $0.00 | $0.00 | $2.93 | $0.00 |
| 2023 | 13629 | CITYPT - CITY OF PT | $66.39 | $66.39 | $0.00 | $0.00 | $132.78 | $0.00 |
| 2023 | 13629 | PORTPT - PORT DISTRICT | $20.61 | $20.60 | $0.00 | $0.00 | $41.21 | $0.00 |
| 2023 | 13629 | PUD1 - PUD #1 | $3.24 | $3.24 | $0.00 | $0.00 | $6.48 | $0.00 |
| 2023 | 13629 | HD2 - HOSP DIST #2 | $2.86 | $2.85 | $0.00 | $0.00 | $5.71 | $0.00 |
| 2023 | 13629 | SD50 - SCHOOL DIST #50 | $0.00 | $0.00 | $0.00 | $0.00 | $0.00 | $0.00 |
| 2023 | 13629 | FD1 - FIRE DISTRICT #1 | $40.29 | $40.28 | $0.00 | $0.00 | $80.57 | $0.00 |
| 2023 | 13629 | EMS1 - FIRE DIST #1 EMS | $17.14 | $17.14 | $0.00 | $0.00 | $34.28 | $0.00 |
| 2023 | 13629 | TOTAL: | $273.93 | $273.88 | $0.00 | $0.00 | $547.81 | $0.00 |
|
| 2023 | 13629 | $273.93 | $273.88 | $0.00 | $0.00 | $547.81 | $0.00 |
Values
| (+) Improvement Homesite Value: | + | $368,022 | |
| (+) Improvement Non-Homesite Value: | + | $0 | |
| (+) Land Homesite Value: | + | $151,000 | |
| (+) Land Non-Homesite Value: | + | $0 | |
| (+) Curr Use (HS): | + | $0 | $0 |
| (+) Curr Use (NHS): | + | $0 | $0 |
| | | -------------------------- | |
| (=) Market Value: | = | $519,022 | |
| (–) Productivity Loss: | – | $0 | |
| | | -------------------------- | |
| (=) Subtotal: | = | $519,022 | |
| (+) Senior Appraised Value: | + | $238,027 | |
| (+) Non-Senior Appraised Value: | + | $0 | |
| | | -------------------------- | |
| (=) Total Appraised Value: | = | $238,027 | |
| (–) Senior Exemption Loss: | – | $142,816 | |
| (–) Exemption Loss: | – | $0 | |
| | | -------------------------- | |
| (=) Taxable Value: | = | $95,211 | |
Taxing Jurisdiction
| Owner: | BEVERLY J ROSENOW | | |
| % Ownership: | 100.0000000000% | | |
| Total Value: | $519,022 | | |
| Tax Area: | 0110 - C-50F1E1H2 |
| CE | COUNTY CURRENT EXPENSE | 0.9034619479 | $519,022 | $95,211 | $86.02 | | |
| CNTYDD | DEVELOPMENTAL DISABILITIES | 0.0052121823 | $519,022 | $95,211 | $0.50 | | |
| CNTYVET | VETERANS RELIEF | 0.0052777810 | $519,022 | $95,211 | $0.50 | | |
| MENTAL | MENTAL HEALTH | 0.0052121823 | $519,022 | $95,211 | $0.50 | | |
| PTGEN | CITY OF PT GENERAL | 0.8551967795 | $519,022 | $95,211 | $81.42 | | |
| PTLLL | CITY OF PT - LIBRARY LID LIFT | 0.4010114288 | $519,022 | $95,211 | $38.18 | | |
| PTMVBOND | CITY OF PT MV BOND | 0.0000000000 | $519,022 | $0 | $0.00 | | |
| HOSP2CASH | HOSP DIST #2 GENERAL | 0.0536075306 | $519,022 | $95,211 | $5.10 | | |
| SCH50BOND | SCHOOL DIST #50 BOND 2016 | 0.0000000000 | $519,022 | $0 | $0.00 | | |
| SCH50CP | SCHOOL DIST #50 CAP PROJ | 0.0000000000 | $519,022 | $0 | $0.00 | | |
| SCH50MO | SCHOOL DIST #50 EP & O | 0.0000000000 | $519,022 | $0 | $0.00 | | |
| CONSERVE | CONSERVATION FUTURES | 0.0275621078 | $519,022 | $95,211 | $2.62 | | |
| EMS1 | FIRE DIST #1 EMS | 0.4679948282 | $519,022 | $95,211 | $44.56 | | |
| FD1 | FIRE DIST #1 GENERAL | 1.2171942929 | $519,022 | $95,211 | $115.89 | | |
| PORTPT | PORT OF PT GENERAL | 0.1134941229 | $519,022 | $95,211 | $10.81 | | |
| PORTPTIDD | PORT OF PT IDD 2019 | 0.2577346692 | $519,022 | $95,211 | $24.54 | | |
| PUD1 | PUD #1 GENERAL | 0.0597888892 | $519,022 | $95,211 | $5.69 | | |
| STATE | STATE SCHOOL PART 1 | 1.4940692947 | $519,022 | $95,211 | $142.25 | | |
| STATE2 | STATE SCHOOL PART 2 | 0.0000000000 | $519,022 | $0 | $0.00 | | |
| | Total Tax Rate: | 5.8668180373 | | | | | |
| | | | | Taxes w/Current Exemptions: | $558.58 | | |
| | | | | Taxes w/o Exemptions: | $4,433.33 | | |
Improvement / Building
| Improvement #1: | Residential Bldg | State Code: | 11 | 1931.0 sqft | Value: | $368,022 |
| Bathrooms (#): | 2 (FULL) | Bathrooms (#): | 1 (FULL) | | Bedrooms (#): | 4 | Exterior Wall: | SI/ST | | Fireplace: | SIN 2-GOOD | Floor Construction: | FRAME | | Foundation: | CONPR | Heating/Cooling: | F/A | | Roof Cover: | SHAKE |   |   |
|
| | Type | Description | Class CD | Sub Class CD | Year Built | Area |
| | MA | Main Area | 3 | 2S | 1991 | 1019.0 |
| | MA2 | Second Floor Main Area | 3 | 2S | 1991 | 912.0 |
| | HWPOR | House Wood Porch | 3 | * | 1991 | 90.0 |
| | HBAL | House Balcony | 3 | * | 1991 | 48.0 |
| | HDECK | House Deck | 3 | * | 1991 | 275.0 |
| | GATT | House Attached Garage | 4 | * | 1991 | 483.0 |
| | SHED | Shed (Table Not Dep) | 4 | * | 1991 | 120.0 |
Sketch
Property Image
Land
| 1 | 6120-1178L | | 0.0000 | 0.00 | 0.00 | 0.00 | 2.00 | $151,000 | $0 |
Roll Value History
| 2026 | N/A | N/A | N/A | N/A | N/A |
| 2025 | $368,022 | $151,000 | $0 | $519,022 | $95,211 |
| 2024 | $334,588 | $147,000 | $0 | $481,588 | $95,211 |
| 2023 | $334,588 | $141,750 | $0 | $476,338 | $95,211 |
| 2022 | $306,705 | $130,000 | $0 | $436,705 | $95,211 |
Deed and Sales History
| 1 | 08/23/2012 | SWD | Statutory Warranty Deed | ODEGARD, CHRISTINA RAE TR | ROSENOW, BEVERLY J | 0 | 0 | $220,000.00 | 117971 | 0 |
| 2 | 10/01/1999 | QCD | Quit Claim Deed | LEE, ROBERT E | ROBERT E LEE REVOCABLE TRUST | 0 | 0 | $0.00 | 88025 | 0 |
| 3 | 09/29/1997 | SWD | Statutory Warranty Deed | BLOOD, THOMAS A/ROSE M | LEE, ROBERT E | 0 | 0 | $159,000.00 | 82884 | 0 |
| 4 | 08/08/1994 | SWD | Statutory Warranty Deed | HARRIS, DANIEL W/RACHEL G | BLOOD, THOMAS M/ROSE M | 0 | 0 | $146,000.00 | 74887 | 0 |
Payout Agreement
| No payout information available.. |