Property
Account |
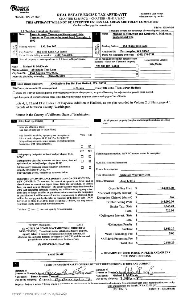
| Property ID: | 24148 | Abbreviated Legal Description: | BAYVIEW ADDITION TO HADLOCK BLK 1 LOTS 4,5,12 & 13 |
| Parcel # / Geo ID: | 931800107 | Agent Code: | |
| Type: | Real | | |
| Tax Area: | 0211 - 1-49F1E1H2L1 | Land Use Code | 11 |
| Open Space: | N | DFL | N |
| Historic Property: | N | Remodel Property: | N |
| Multi-Family Redevelopment: | N | | |
| Township: | 29N | Section: | 12 |
| Range: | 1W |
Location |
| Address: | 370 HADLOCK BAY RD PORT HADLOCK, WA 98339 | Mapsco: | 002/002 |
| Neighborhood: | BAY VIEW TO HADLOCK & KUHNSVILLE | Map ID: | |
| Neighborhood CD: | 4252 |
Owner |
| Name: | MICHAEL & KIMBERLY MC ELWAIN | Owner ID: | 95777 |
| Mailing Address: | 370 HADLOCK BAY RD PORT HADLOCK, WA 98339 | % Ownership: | 100.0000000000% |
| | | Exemptions: | |
Pay Tax Due
There is currently No Amount Due on this property.
Taxes and Assessment Details
Property Tax Information as of
03/13/2026
Click on "Statement Details" to expand or collapse a tax statement.
* Please enter a valid date ** Please enter a valid date *
Statement Details |
| | TOTAL: | $0.00 | $0.00 | $0.00 | $0.00 | $0.00 | $0.00 |
|
| | $0.00 | $0.00 | $0.00 | $0.00 | $0.00 | $0.00 |
Values
| (+) Improvement Homesite Value: | + | $0 | |
| (+) Improvement Non-Homesite Value: | + | $182,222 | |
| (+) Land Homesite Value: | + | $0 | |
| (+) Land Non-Homesite Value: | + | $165,000 | |
| (+) Curr Use (HS): | + | $0 | $0 |
| (+) Curr Use (NHS): | + | $0 | $0 |
| | | -------------------------- | |
| (=) Market Value: | = | $347,222 | |
| (–) Productivity Loss: | – | $0 | |
| | | -------------------------- | |
| (=) Subtotal: | = | $347,222 | |
| (+) Senior Appraised Value: | + | $0 | |
| (+) Non-Senior Appraised Value: | + | $347,222 | |
| | | -------------------------- | |
| (=) Total Appraised Value: | = | $347,222 | |
| (–) Senior Exemption Loss: | – | $0 | |
| (–) Exemption Loss: | – | $0 | |
| | | -------------------------- | |
| (=) Taxable Value: | = | $347,222 | |
Taxing Jurisdiction
| Owner: | MICHAEL & KIMBERLY MC ELWAIN | | |
| % Ownership: | 100.0000000000% | | |
| Total Value: | $347,222 | | |
| Tax Area: | 0211 - 1-49F1E1H2L1 |
| CE | COUNTY CURRENT EXPENSE | 0.9034619479 | $347,222 | $347,222 | $313.70 | | |
| CNTYDD | DEVELOPMENTAL DISABILITIES | 0.0052121823 | $347,222 | $347,222 | $1.81 | | |
| CNTYVET | VETERANS RELIEF | 0.0052777810 | $347,222 | $347,222 | $1.83 | | |
| MENTAL | MENTAL HEALTH | 0.0052121823 | $347,222 | $347,222 | $1.81 | | |
| ROADS | COUNTY ROADS | 0.7415066410 | $347,222 | $347,222 | $257.47 | | |
| ROADSCU | COUNTY ROADS TO CUR EXP | 0.0000000000 | $347,222 | $347,222 | $0.00 | | |
| HOSP2CASH | HOSP DIST #2 GENERAL | 0.0536075306 | $347,222 | $347,222 | $18.61 | | |
| SCH49CP | SCHOOL DIST #49 CAP PROJ | 0.6279093905 | $347,222 | $347,222 | $218.02 | | |
| SCH49MO | SCHOOL DIST #49 EP & O | 0.6376483602 | $347,222 | $347,222 | $221.41 | | |
| CONSERVE | CONSERVATION FUTURES | 0.0275621078 | $347,222 | $347,222 | $9.57 | | |
| EMS1 | FIRE DIST #1 EMS | 0.4679948282 | $347,222 | $347,222 | $162.50 | | |
| FD1 | FIRE DIST #1 GENERAL | 1.2171942929 | $347,222 | $347,222 | $422.64 | | |
| LIB1 | LIBRARY DIST #1 GENERAL | 0.2868827388 | $347,222 | $347,222 | $99.61 | | |
| PORTPT | PORT OF PT GENERAL | 0.1134941229 | $347,222 | $347,222 | $39.41 | | |
| PORTPTIDD | PORT OF PT IDD 2019 | 0.2577346692 | $347,222 | $347,222 | $89.49 | | |
| PUD1 | PUD #1 GENERAL | 0.0597888892 | $347,222 | $347,222 | $20.76 | | |
| STATE | STATE SCHOOL PART 1 | 1.4940692947 | $347,222 | $347,222 | $518.77 | | |
| STATE2 | STATE SCHOOL PART 2 | 0.8050170049 | $347,222 | $347,222 | $279.52 | | |
| | Total Tax Rate: | 7.7095739644 | | | | | |
| | | | | Taxes w/Current Exemptions: | $2,676.93 | | |
| | | | | Taxes w/o Exemptions: | $2,676.93 | | |
Improvement / Building
| Improvement #1: | Residential Bldg | State Code: | 11 | 1457.0 sqft | Value: | $182,222 |
| Bathrooms (#): | 2 (FULL) | Bedrooms (#): | 2 | | Exterior Wall: | PL/T1 | Fireplace: | WD ST-GOOD | | Floor Construction: | FRAME | Foundation: | CONPR | | Heating/Cooling: | ELBB | Inside Verify: | YES-FIX | | Roof Cover: | COMP |   |   |
|
| | Type | Description | Class CD | Sub Class CD | Year Built | Area |
| | MA | Main Area | 2 | 15SF | 1990 | 1177.0 |
| | MA2 | Second Floor Main Area | 2 | 15SF | 1990 | 280.0 |
| | HDECK | House Deck | 2 | 15SF | 1990 | 176.0 |
| | ADDN-D | Addition (Table Depreciated) | 3 | 15SF | 1990 | 1248.0 |
| | HLOFT | House Loft | 2 | 15SF | 1990 | 368.0 |
Sketch
Property Image
Land
| 1 | 4252-1165L | Kuhnsville Lots Fair View | 0.0000 | 0.00 | 0.00 | 0.00 | 4.00 | $165,000 | $0 |
Roll Value History
| 2026 | N/A | N/A | N/A | N/A | N/A |
| 2025 | $182,222 | $165,000 | $0 | $347,222 | $347,222 |
| 2024 | $174,299 | $157,500 | $0 | $331,799 | $331,799 |
| 2023 | $166,377 | $145,000 | $0 | $311,377 | $311,377 |
| 2022 | $141,349 | $75,000 | $0 | $216,349 | $216,349 |
Deed and Sales History
| 1 | 06/01/2016 | SWD | Statutory Warranty Deed | BARRY A CASSANO TRSTEE | MICHAEL & KIMBERLY MC ELWAIN | | | $144,000.00 | 125858 | |
| 2 | 06/03/2002 | SWD | Statutory Warranty Deed | STEPHEN J STREAKER | CASSANO TRUST, BARRY A/OLIVIA | 0 | 0 | $197,000.00 | 94795 | 0 |
| 3 | 02/16/1994 | SWD | Statutory Warranty Deed | SISNEROS, JEANNE L | STREAKER, STEPHEN J | 0 | 0 | $121,000.00 | 73454 | 0 |
Payout Agreement
| No payout information available.. |