Property
Account |
| Property ID: | 24160 | Abbreviated Legal Description: | BAYVIEW ADDITION TO HADLOCK BLK 3 LOTS 1 & 2 W/PTNS BAY VIEW AVE & OAK ST ADJ LOT 1 & 2 (LESS PTN TAX 43) QTA#19-2-00131-16 |
| Parcel # / Geo ID: | 931800301 | Agent Code: | |
| Type: | Real | | |
| Tax Area: | 0211 - 1-49F1E1H2L1 | Land Use Code | 11 |
| Open Space: | N | DFL | N |
| Historic Property: | N | Remodel Property: | N |
| Multi-Family Redevelopment: | N | | |
| Township: | 29N | Section: | 12 |
| Range: | 1W |
Location |
| Address: | 389 HADLOCK BAY RD PORT HADLOCK, WA 98339 | Mapsco: | 002/019 |
| Neighborhood: | BAY VIEW TO HADLOCK & KUHNSVILLE | Map ID: | |
| Neighborhood CD: | 4252 |
Owner |
| Name: | CHRISTY FRANCINE TVRDIK | Owner ID: | 107998 |
| Mailing Address: | 389 HADLOCK BAY RD PORT HADLOCK, WA 98339 | % Ownership: | 100.0000000000% |
| | | Exemptions: | SNR/DSBL |
Pay Tax Due
Select the appropriate checkbox next to the year to be paid. Multiple years may be selected.
*Convenience Fee not included
Taxes and Assessment Details
Property Tax Information as of
03/11/2026
Click on "Statement Details" to expand or collapse a tax statement.
* Please enter a valid date ** Please enter a valid date *
Statement Details |
| 2026 | 13587 | STATE - STATE LEVY (SCHOOL) | $105.49 | $105.48 | $0.00 | $0.00 | $0.00 | $210.97 |
| 2026 | 13587 | COUNTY - COUNTY LEVIES (CE, DD, VET, MH) | $64.91 | $64.89 | $0.00 | $0.00 | $0.00 | $129.80 |
| 2026 | 13587 | CONSERVE - CONSERVATION FUTURES | $1.95 | $1.94 | $0.00 | $0.00 | $0.00 | $3.89 |
| 2026 | 13587 | COROADS - COUNTY ROADS (ROADS, DIV TO CE) | $52.35 | $52.35 | $0.00 | $0.00 | $0.00 | $104.70 |
| 2026 | 13587 | PORTPT - PORT DISTRICT | $26.22 | $26.20 | $0.00 | $0.00 | $0.00 | $52.42 |
| 2026 | 13587 | PUD1 - PUD #1 | $4.22 | $4.22 | $0.00 | $0.00 | $0.00 | $8.44 |
| 2026 | 13587 | LIB1 - LIBRARY DIST #1 | $20.26 | $20.25 | $0.00 | $0.00 | $0.00 | $40.51 |
| 2026 | 13587 | HD2 - HOSP DIST #2 | $3.79 | $3.78 | $0.00 | $0.00 | $0.00 | $7.57 |
| 2026 | 13587 | SD49 - SCHOOL DIST #49 | $0.00 | $0.00 | $0.00 | $0.00 | $0.00 | $0.00 |
| 2026 | 13587 | FD1 - FIRE DISTRICT #1 | $85.94 | $85.93 | $0.00 | $0.00 | $0.00 | $171.87 |
| 2026 | 13587 | EMS1 - FIRE DIST #1 EMS | $33.04 | $33.04 | $0.00 | $0.00 | $0.00 | $66.08 |
| 2026 | 13587 | FP - DNR Forest Fire Protection Assmt | $8.50 | $8.50 | $0.00 | $0.00 | $0.00 | $17.00 |
| 2026 | 13587 | FPLCA - DNR Landowner Contingency Assmt | $3.00 | $3.00 | $0.00 | $0.00 | $0.00 | $6.00 |
| 2026 | 13587 | OSS - On Site Septic | $23.10 | $23.10 | $0.00 | $0.00 | $0.00 | $46.20 |
| 2026 | 13587 | FP ADMIN - FP ADMIN | $0.50 | $0.00 | $0.00 | $0.00 | $0.00 | $0.50 |
| 2026 | 13587 | TOTAL: | $433.27 | $432.68 | $0.00 | $0.00 | $0.00 | $865.95 |
|
| 2026 | 13587 | $433.27 | $432.68 | $0.00 | $0.00 | $0.00 | $865.95 |
Statement Details |
| 2025 | 13613 | STATE - STATE LEVY (SCHOOL) | $110.07 | $110.06 | $0.00 | $0.00 | $220.13 | $0.00 |
| 2025 | 13613 | COUNTY - COUNTY LEVIES (CE, DD, VET, MH) | $66.59 | $66.56 | $0.00 | $0.00 | $133.15 | $0.00 |
| 2025 | 13613 | CONSERVE - CONSERVATION FUTURES | $2.00 | $1.99 | $0.00 | $0.00 | $3.99 | $0.00 |
| 2025 | 13613 | COROADS - COUNTY ROADS (ROADS, DIV TO CE) | $53.34 | $53.34 | $0.00 | $0.00 | $106.68 | $0.00 |
| 2025 | 13613 | PORTPT - PORT DISTRICT | $27.17 | $27.16 | $0.00 | $0.00 | $54.33 | $0.00 |
| 2025 | 13613 | PUD1 - PUD #1 | $4.36 | $4.35 | $0.00 | $0.00 | $8.71 | $0.00 |
| 2025 | 13613 | LIB1 - LIBRARY DIST #1 | $20.64 | $20.63 | $0.00 | $0.00 | $41.27 | $0.00 |
| 2025 | 13613 | HD2 - HOSP DIST #2 | $3.89 | $3.88 | $0.00 | $0.00 | $7.77 | $0.00 |
| 2025 | 13613 | SD49 - SCHOOL DIST #49 | $0.00 | $0.00 | $0.00 | $0.00 | $0.00 | $0.00 |
| 2025 | 13613 | FD1 - FIRE DISTRICT #1 | $87.86 | $87.85 | $0.00 | $0.00 | $175.71 | $0.00 |
| 2025 | 13613 | EMS1 - FIRE DIST #1 EMS | $33.79 | $33.79 | $0.00 | $0.00 | $67.58 | $0.00 |
| 2025 | 13613 | FP - DNR Forest Fire Protection Assmt | $8.50 | $8.50 | $0.00 | $0.00 | $17.00 | $0.00 |
| 2025 | 13613 | FPLCA - DNR Landowner Contingency Assmt | $3.00 | $3.00 | $0.00 | $0.00 | $6.00 | $0.00 |
| 2025 | 13613 | JCCD - JC Conservation District | $2.55 | $2.55 | $0.00 | $0.00 | $5.10 | $0.00 |
| 2025 | 13613 | NWA - Noxious Weed Assessment | $2.15 | $2.15 | $0.00 | $0.00 | $4.30 | $0.00 |
| 2025 | 13613 | OSS - On Site Septic | $21.50 | $21.50 | $0.00 | $0.00 | $43.00 | $0.00 |
| 2025 | 13613 | WAT - Clean Water District | $13.00 | $13.00 | $0.00 | $0.00 | $26.00 | $0.00 |
| 2025 | 13613 | FP ADMIN - FP ADMIN | $0.50 | $0.00 | $0.00 | $0.00 | $0.50 | $0.00 |
| 2025 | 13613 | TOTAL: | $460.91 | $460.31 | $0.00 | $0.00 | $921.22 | $0.00 |
|
| 2025 | 13613 | $460.91 | $460.31 | $0.00 | $0.00 | $921.22 | $0.00 |
Statement Details |
| 2024 | 13642 | STATE - STATE LEVY (SCHOOL) | $138.25 | $138.23 | $0.00 | $0.00 | $276.48 | $0.00 |
| 2024 | 13642 | COUNTY - COUNTY LEVIES (CE, DD, VET, MH) | $59.17 | $59.14 | $0.00 | $0.00 | $118.31 | $0.00 |
| 2024 | 13642 | CONSERVE - CONSERVATION FUTURES | $1.78 | $1.77 | $0.00 | $0.00 | $3.55 | $0.00 |
| 2024 | 13642 | COROADS - COUNTY ROADS (ROADS, DIV TO CE) | $47.61 | $47.59 | $0.00 | $0.00 | $95.20 | $0.00 |
| 2024 | 13642 | PORTPT - PORT DISTRICT | $24.44 | $24.43 | $0.00 | $0.00 | $48.87 | $0.00 |
| 2024 | 13642 | PUD1 - PUD #1 | $3.89 | $3.88 | $0.00 | $0.00 | $7.77 | $0.00 |
| 2024 | 13642 | LIB1 - LIBRARY DIST #1 | $18.42 | $18.41 | $0.00 | $0.00 | $36.83 | $0.00 |
| 2024 | 13642 | HD2 - HOSP DIST #2 | $3.45 | $3.45 | $0.00 | $0.00 | $6.90 | $0.00 |
| 2024 | 13642 | SD49 - SCHOOL DIST #49 | $61.73 | $61.73 | $0.00 | $0.00 | $123.46 | $0.00 |
| 2024 | 13642 | FD1 - FIRE DISTRICT #1 | $78.22 | $78.21 | $0.00 | $0.00 | $156.43 | $0.00 |
| 2024 | 13642 | EMS1 - FIRE DIST #1 EMS | $29.88 | $29.87 | $0.00 | $0.00 | $59.75 | $0.00 |
| 2024 | 13642 | FP - DNR Forest Fire Protection Assmt | $8.50 | $8.50 | $0.00 | $0.00 | $17.00 | $0.00 |
| 2024 | 13642 | FPLCA - DNR Landowner Contingency Assmt | $3.00 | $3.00 | $0.00 | $0.00 | $6.00 | $0.00 |
| 2024 | 13642 | JCCD - JC Conservation District | $2.53 | $2.53 | $0.00 | $0.00 | $5.06 | $0.00 |
| 2024 | 13642 | NWA - Noxious Weed Assessment | $2.15 | $2.15 | $0.00 | $0.00 | $4.30 | $0.00 |
| 2024 | 13642 | WAT - Clean Water District | $12.50 | $12.50 | $0.00 | $0.00 | $25.00 | $0.00 |
| 2024 | 13642 | FP ADMIN - FP ADMIN | $0.50 | $0.00 | $0.00 | $0.00 | $0.50 | $0.00 |
| 2024 | 13642 | TOTAL: | $496.02 | $495.39 | $0.00 | $0.00 | $991.41 | $0.00 |
|
| 2024 | 13642 | $496.02 | $495.39 | $0.00 | $0.00 | $991.41 | $0.00 |
Statement Details |
| 2023 | 13665 | STATE - STATE LEVY (SCHOOL) | $51.80 | $51.79 | $0.00 | $0.00 | $103.59 | $0.00 |
| 2023 | 13665 | COUNTY - COUNTY LEVIES (CE, DD, VET, MH) | $22.61 | $22.60 | $0.00 | $0.00 | $45.21 | $0.00 |
| 2023 | 13665 | CONSERVE - CONSERVATION FUTURES | $0.68 | $0.68 | $0.00 | $0.00 | $1.36 | $0.00 |
| 2023 | 13665 | COROADS - COUNTY ROADS (ROADS, DIV TO CE) | $18.29 | $18.28 | $0.00 | $0.00 | $36.57 | $0.00 |
| 2023 | 13665 | PORTPT - PORT DISTRICT | $9.52 | $9.52 | $0.00 | $0.00 | $19.04 | $0.00 |
| 2023 | 13665 | PUD1 - PUD #1 | $1.50 | $1.50 | $0.00 | $0.00 | $3.00 | $0.00 |
| 2023 | 13665 | LIB1 - LIBRARY DIST #1 | $7.08 | $7.07 | $0.00 | $0.00 | $14.15 | $0.00 |
| 2023 | 13665 | HD2 - HOSP DIST #2 | $1.32 | $1.32 | $0.00 | $0.00 | $2.64 | $0.00 |
| 2023 | 13665 | SD49 - SCHOOL DIST #49 | $24.22 | $24.20 | $0.00 | $0.00 | $48.42 | $0.00 |
| 2023 | 13665 | FD1 - FIRE DISTRICT #1 | $18.62 | $18.62 | $0.00 | $0.00 | $37.24 | $0.00 |
| 2023 | 13665 | EMS1 - FIRE DIST #1 EMS | $7.92 | $7.92 | $0.00 | $0.00 | $15.84 | $0.00 |
| 2023 | 13665 | FP - DNR Forest Fire Protection Assmt | $8.50 | $8.50 | $0.00 | $0.00 | $17.00 | $0.00 |
| 2023 | 13665 | FPLCA - DNR Landowner Contingency Assmt | $3.00 | $3.00 | $0.00 | $0.00 | $6.00 | $0.00 |
| 2023 | 13665 | JCCD - JC Conservation District | $2.53 | $2.53 | $0.00 | $0.00 | $5.06 | $0.00 |
| 2023 | 13665 | NWA - Noxious Weed Assessment | $2.15 | $2.15 | $0.00 | $0.00 | $4.30 | $0.00 |
| 2023 | 13665 | WAT - Clean Water District | $12.00 | $12.00 | $0.00 | $0.00 | $24.00 | $0.00 |
| 2023 | 13665 | FP ADMIN - FP ADMIN | $0.50 | $0.00 | $0.00 | $0.00 | $0.50 | $0.00 |
| 2023 | 13665 | TOTAL: | $192.24 | $191.68 | $0.00 | $0.00 | $383.92 | $0.00 |
|
| 2023 | 13665 | $192.24 | $191.68 | $0.00 | $0.00 | $383.92 | $0.00 |
Values
| (+) Improvement Homesite Value: | + | $232,387 | |
| (+) Improvement Non-Homesite Value: | + | $0 | |
| (+) Land Homesite Value: | + | $136,950 | |
| (+) Land Non-Homesite Value: | + | $0 | |
| (+) Curr Use (HS): | + | $0 | $0 |
| (+) Curr Use (NHS): | + | $0 | $0 |
| | | -------------------------- | |
| (=) Market Value: | = | $369,337 | |
| (–) Productivity Loss: | – | $0 | |
| | | -------------------------- | |
| (=) Subtotal: | = | $369,337 | |
| (+) Senior Appraised Value: | + | $353,009 | |
| (+) Non-Senior Appraised Value: | + | $0 | |
| | | -------------------------- | |
| (=) Total Appraised Value: | = | $353,009 | |
| (–) Senior Exemption Loss: | – | $211,805 | |
| (–) Exemption Loss: | – | $0 | |
| | | -------------------------- | |
| (=) Taxable Value: | = | $141,204 | |
Taxing Jurisdiction
| Owner: | CHRISTY FRANCINE TVRDIK | | |
| % Ownership: | 100.0000000000% | | |
| Total Value: | $369,337 | | |
| Tax Area: | 0211 - 1-49F1E1H2L1 |
| CE | COUNTY CURRENT EXPENSE | 0.9034619479 | $369,337 | $141,204 | $127.57 | | |
| CNTYDD | DEVELOPMENTAL DISABILITIES | 0.0052121823 | $369,337 | $141,204 | $0.74 | | |
| CNTYVET | VETERANS RELIEF | 0.0052777810 | $369,337 | $141,204 | $0.75 | | |
| MENTAL | MENTAL HEALTH | 0.0052121823 | $369,337 | $141,204 | $0.74 | | |
| ROADS | COUNTY ROADS | 0.7415066410 | $369,337 | $141,204 | $104.70 | | |
| ROADSCU | COUNTY ROADS TO CUR EXP | 0.0000000000 | $369,337 | $141,204 | $0.00 | | |
| HOSP2CASH | HOSP DIST #2 GENERAL | 0.0536075306 | $369,337 | $141,204 | $7.57 | | |
| SCH49CP | SCHOOL DIST #49 CAP PROJ | 0.0000000000 | $369,337 | $0 | $0.00 | | |
| SCH49MO | SCHOOL DIST #49 EP & O | 0.0000000000 | $369,337 | $0 | $0.00 | | |
| CONSERVE | CONSERVATION FUTURES | 0.0275621078 | $369,337 | $141,204 | $3.89 | | |
| EMS1 | FIRE DIST #1 EMS | 0.4679948282 | $369,337 | $141,204 | $66.08 | | |
| FD1 | FIRE DIST #1 GENERAL | 1.2171942929 | $369,337 | $141,204 | $171.87 | | |
| LIB1 | LIBRARY DIST #1 GENERAL | 0.2868827388 | $369,337 | $141,204 | $40.51 | | |
| PORTPT | PORT OF PT GENERAL | 0.1134941229 | $369,337 | $141,204 | $16.03 | | |
| PORTPTIDD | PORT OF PT IDD 2019 | 0.2577346692 | $369,337 | $141,204 | $36.39 | | |
| PUD1 | PUD #1 GENERAL | 0.0597888892 | $369,337 | $141,204 | $8.44 | | |
| STATE | STATE SCHOOL PART 1 | 1.4940692947 | $369,337 | $141,204 | $210.97 | | |
| STATE2 | STATE SCHOOL PART 2 | 0.0000000000 | $369,337 | $0 | $0.00 | | |
| | Total Tax Rate: | 5.6389992088 | | | | | |
| | | | | Taxes w/Current Exemptions: | $796.25 | | |
| | | | | Taxes w/o Exemptions: | $2,847.45 | | |
Improvement / Building
| Improvement #1: | Manufactured Home | State Code: | 11M | 1296.0 sqft | Value: | $232,387 |
| Bathrooms (#): | 2 (FULL) | Bedrooms (#): | 2 | | Exterior Wall: | SI/ST | Foundation: | CONBL | | Heating/Cooling: | F/A | Roof Cover: | COMP |
|
| | Type | Description | Class CD | Sub Class CD | Year Built | Area |
| | MA | Main Area | 4- | MFH | 2024 | 1296.0 |
| | MRPO | MH Roof Porch | 3 | * | 2024 | 216.0 |
| | MDECK | MH Deck | 3 | * | 2024 | 48.0 |
Sketch
Property Image
Land
| 1 | 4252-1155L | | 0.0000 | 0.00 | 0.00 | 0.00 | 2.00 | $136,950 | $0 |
Roll Value History
| 2026 | N/A | N/A | N/A | N/A | N/A |
| 2025 | $232,387 | $136,950 | $0 | $369,337 | $141,204 |
| 2024 | $222,284 | $130,725 | $0 | $353,009 | $141,204 |
| 2023 | $0 | $119,500 | $0 | $119,500 | $119,500 |
| 2022 | $0 | $44,000 | $0 | $44,000 | $44,000 |
Deed and Sales History
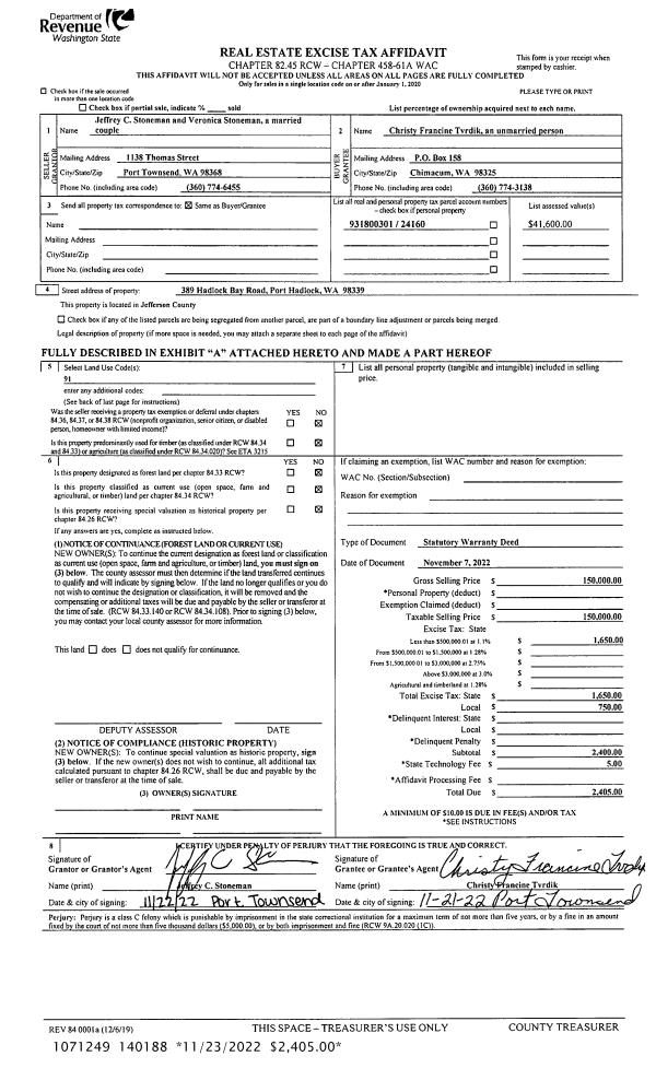
| 1 | 11/07/2022 | SWD | Statutory Warranty Deed | JEFF & VERONICA STONEMAN | CHRISTY FRANCINE TVRDIK | | | $150,000.00 | 140188 | |
| 2 | 08/06/2020 | SWD | Statutory Warranty Deed | RONALD A PANZERO | JEFF & VERONICA STONEMAN | | | $59,500.00 | 134908 | |
| 3 | 07/25/2018 | SWD | Statutory Warranty Deed | PETER E WALKER | RONALD A PANZERO | | | $38,000.00 | 130658 | |
Payout Agreement
| No payout information available.. |