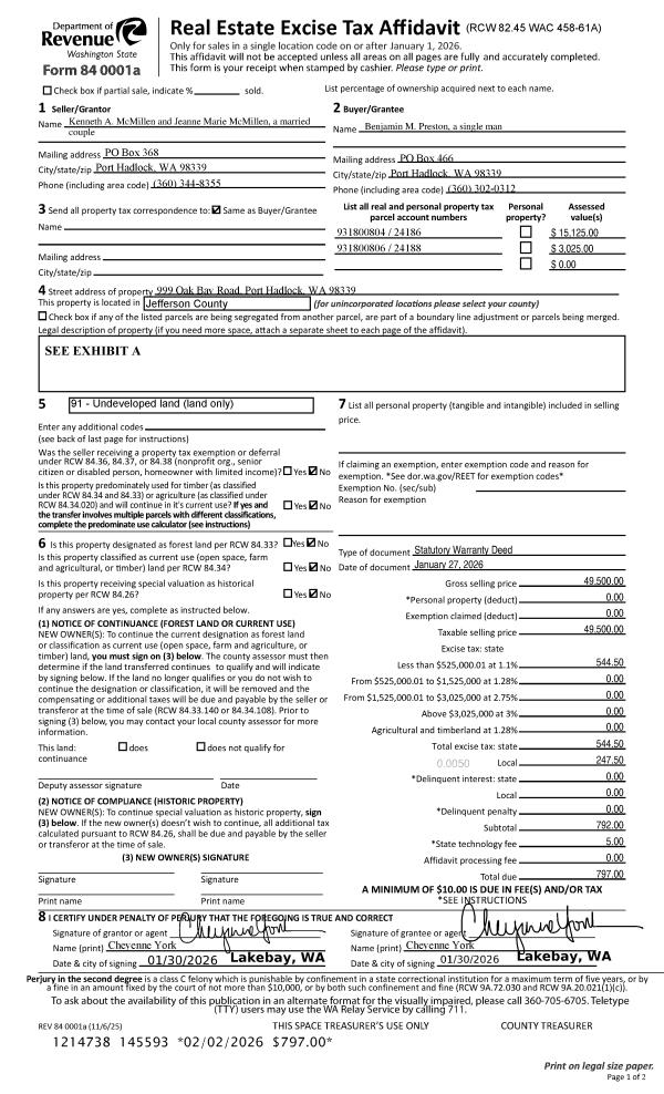
Property
Account |
| Property ID: | 24186 | Abbreviated Legal Description: | BAYVIEW ADDITION TO HADLOCK BLK 8, LOTS 7 THRU 10 (LS R/W IN LOT 10) LOT 11(LS PTN LYING N OF CO RD) |
| Parcel # / Geo ID: | 931800804 | Agent Code: | |
| Type: | Real | | |
| Tax Area: | 0211 - 1-49F1E1H2L1 | Land Use Code | 91 |
| Open Space: | N | DFL | N |
| Historic Property: | N | Remodel Property: | N |
| Multi-Family Redevelopment: | N | | |
| Township: | 29N | Section: | 12 |
| Range: | 1W |
Location |
| Address: | | Mapsco: | 002/062 |
| Neighborhood: | BAY VIEW TO HADLOCK & KUHNSVILLE | Map ID: | |
| Neighborhood CD: | 4252 |
Owner |
| Name: | BENJAMIN M PRESTON | Owner ID: | 114000 |
| Mailing Address: | PO BOX 466 PORT HADLOCK, WA 98339-0466 | % Ownership: | 100.0000000000% |
| | | Exemptions: | |
Pay Tax Due
Select the appropriate checkbox next to the year to be paid. Multiple years may be selected.
*Convenience Fee not included
Taxes and Assessment Details
Property Tax Information as of
03/12/2026
Click on "Statement Details" to expand or collapse a tax statement.
* Please enter a valid date ** Please enter a valid date *
Statement Details |
| 2026 | 13609 | STATE - STATE LEVY (SCHOOL) | $17.39 | $17.39 | $0.00 | $0.00 | $0.00 | $34.78 |
| 2026 | 13609 | COUNTY - COUNTY LEVIES (CE, DD, VET, MH) | $6.95 | $6.95 | $0.00 | $0.00 | $0.00 | $13.90 |
| 2026 | 13609 | CONSERVE - CONSERVATION FUTURES | $0.21 | $0.21 | $0.00 | $0.00 | $0.00 | $0.42 |
| 2026 | 13609 | COROADS - COUNTY ROADS (ROADS, DIV TO CE) | $5.61 | $5.61 | $0.00 | $0.00 | $0.00 | $11.22 |
| 2026 | 13609 | PORTPT - PORT DISTRICT | $2.81 | $2.81 | $0.00 | $0.00 | $0.00 | $5.62 |
| 2026 | 13609 | PUD1 - PUD #1 | $0.45 | $0.45 | $0.00 | $0.00 | $0.00 | $0.90 |
| 2026 | 13609 | LIB1 - LIBRARY DIST #1 | $2.17 | $2.17 | $0.00 | $0.00 | $0.00 | $4.34 |
| 2026 | 13609 | HD2 - HOSP DIST #2 | $0.41 | $0.40 | $0.00 | $0.00 | $0.00 | $0.81 |
| 2026 | 13609 | SD49 - SCHOOL DIST #49 | $9.57 | $9.57 | $0.00 | $0.00 | $0.00 | $19.14 |
| 2026 | 13609 | FD1 - FIRE DISTRICT #1 | $9.21 | $9.20 | $0.00 | $0.00 | $0.00 | $18.41 |
| 2026 | 13609 | EMS1 - FIRE DIST #1 EMS | $3.54 | $3.54 | $0.00 | $0.00 | $0.00 | $7.08 |
| 2026 | 13609 | FPLCA - DNR Landowner Contingency Assmt | $3.00 | $3.00 | $0.00 | $0.00 | $0.00 | $6.00 |
| 2026 | 13609 | JCCD - JC Conservation District | $2.53 | $2.53 | $0.00 | $0.00 | $0.00 | $5.06 |
| 2026 | 13609 | NWA - Noxious Weed Assessment | $2.98 | $2.97 | $0.00 | $0.00 | $0.00 | $5.95 |
| 2026 | 13609 | WAT - Clean Water District | $13.00 | $13.00 | $0.00 | $0.00 | $0.00 | $26.00 |
| 2026 | 13609 | TOTAL: | $79.83 | $79.80 | $0.00 | $0.00 | $0.00 | $159.63 |
|
| 2026 | 13609 | $79.83 | $79.80 | $0.00 | $0.00 | $0.00 | $159.63 |
Statement Details |
| 2025 | 13635 | STATE - STATE LEVY (SCHOOL) | $17.32 | $17.30 | $0.00 | $0.00 | $34.62 | $0.00 |
| 2025 | 13635 | COUNTY - COUNTY LEVIES (CE, DD, VET, MH) | $6.81 | $6.81 | $0.00 | $0.00 | $13.62 | $0.00 |
| 2025 | 13635 | CONSERVE - CONSERVATION FUTURES | $0.21 | $0.20 | $0.00 | $0.00 | $0.41 | $0.00 |
| 2025 | 13635 | COROADS - COUNTY ROADS (ROADS, DIV TO CE) | $5.46 | $5.45 | $0.00 | $0.00 | $10.91 | $0.00 |
| 2025 | 13635 | PORTPT - PORT DISTRICT | $2.78 | $2.77 | $0.00 | $0.00 | $5.55 | $0.00 |
| 2025 | 13635 | PUD1 - PUD #1 | $0.45 | $0.44 | $0.00 | $0.00 | $0.89 | $0.00 |
| 2025 | 13635 | LIB1 - LIBRARY DIST #1 | $2.11 | $2.11 | $0.00 | $0.00 | $4.22 | $0.00 |
| 2025 | 13635 | HD2 - HOSP DIST #2 | $0.40 | $0.39 | $0.00 | $0.00 | $0.79 | $0.00 |
| 2025 | 13635 | SD49 - SCHOOL DIST #49 | $9.28 | $9.27 | $0.00 | $0.00 | $18.55 | $0.00 |
| 2025 | 13635 | FD1 - FIRE DISTRICT #1 | $8.99 | $8.98 | $0.00 | $0.00 | $17.97 | $0.00 |
| 2025 | 13635 | EMS1 - FIRE DIST #1 EMS | $3.46 | $3.45 | $0.00 | $0.00 | $6.91 | $0.00 |
| 2025 | 13635 | FPLCA - DNR Landowner Contingency Assmt | $3.00 | $3.00 | $0.00 | $0.00 | $6.00 | $0.00 |
| 2025 | 13635 | JCCD - JC Conservation District | $2.53 | $2.53 | $0.00 | $0.00 | $5.06 | $0.00 |
| 2025 | 13635 | NWA - Noxious Weed Assessment | $2.15 | $2.15 | $0.00 | $0.00 | $4.30 | $0.00 |
| 2025 | 13635 | WAT - Clean Water District | $13.00 | $13.00 | $0.00 | $0.00 | $26.00 | $0.00 |
| 2025 | 13635 | TOTAL: | $77.95 | $77.85 | $0.00 | $0.00 | $155.80 | $0.00 |
|
| 2025 | 13635 | $77.95 | $77.85 | $0.00 | $0.00 | $155.80 | $0.00 |
Statement Details |
| 2024 | 13664 | STATE - STATE LEVY (SCHOOL) | $15.92 | $15.90 | $0.00 | $0.00 | $31.82 | $0.00 |
| 2024 | 13664 | COUNTY - COUNTY LEVIES (CE, DD, VET, MH) | $6.81 | $6.81 | $0.00 | $0.00 | $13.62 | $0.00 |
| 2024 | 13664 | CONSERVE - CONSERVATION FUTURES | $0.21 | $0.20 | $0.00 | $0.00 | $0.41 | $0.00 |
| 2024 | 13664 | COROADS - COUNTY ROADS (ROADS, DIV TO CE) | $5.48 | $5.48 | $0.00 | $0.00 | $10.96 | $0.00 |
| 2024 | 13664 | PORTPT - PORT DISTRICT | $2.81 | $2.81 | $0.00 | $0.00 | $5.62 | $0.00 |
| 2024 | 13664 | PUD1 - PUD #1 | $0.45 | $0.44 | $0.00 | $0.00 | $0.89 | $0.00 |
| 2024 | 13664 | LIB1 - LIBRARY DIST #1 | $2.12 | $2.12 | $0.00 | $0.00 | $4.24 | $0.00 |
| 2024 | 13664 | HD2 - HOSP DIST #2 | $0.40 | $0.39 | $0.00 | $0.00 | $0.79 | $0.00 |
| 2024 | 13664 | SD49 - SCHOOL DIST #49 | $7.11 | $7.10 | $0.00 | $0.00 | $14.21 | $0.00 |
| 2024 | 13664 | FD1 - FIRE DISTRICT #1 | $9.00 | $9.00 | $0.00 | $0.00 | $18.00 | $0.00 |
| 2024 | 13664 | EMS1 - FIRE DIST #1 EMS | $3.44 | $3.44 | $0.00 | $0.00 | $6.88 | $0.00 |
| 2024 | 13664 | FP - DNR Forest Fire Protection Assmt | $8.50 | $8.50 | $0.00 | $0.00 | $17.00 | $0.00 |
| 2024 | 13664 | FPLCA - DNR Landowner Contingency Assmt | $3.00 | $3.00 | $0.00 | $0.00 | $6.00 | $0.00 |
| 2024 | 13664 | JCCD - JC Conservation District | $2.53 | $2.53 | $0.00 | $0.00 | $5.06 | $0.00 |
| 2024 | 13664 | NWA - Noxious Weed Assessment | $2.15 | $2.15 | $0.00 | $0.00 | $4.30 | $0.00 |
| 2024 | 13664 | WAT - Clean Water District | $12.50 | $12.50 | $0.00 | $0.00 | $25.00 | $0.00 |
| 2024 | 13664 | FP ADMIN - FP ADMIN | $0.50 | $0.00 | $0.00 | $0.00 | $0.50 | $0.00 |
| 2024 | 13664 | TOTAL: | $82.93 | $82.37 | $0.00 | $0.00 | $165.30 | $0.00 |
|
| 2024 | 13664 | $82.93 | $82.37 | $0.00 | $0.00 | $165.30 | $0.00 |
Statement Details |
| 2023 | 13687 | STATE - STATE LEVY (SCHOOL) | $14.72 | $14.70 | $0.00 | $0.00 | $29.42 | $0.00 |
| 2023 | 13687 | COUNTY - COUNTY LEVIES (CE, DD, VET, MH) | $6.43 | $6.40 | $0.00 | $0.00 | $12.83 | $0.00 |
| 2023 | 13687 | CONSERVE - CONSERVATION FUTURES | $0.20 | $0.19 | $0.00 | $0.00 | $0.39 | $0.00 |
| 2023 | 13687 | COROADS - COUNTY ROADS (ROADS, DIV TO CE) | $5.20 | $5.19 | $0.00 | $0.00 | $10.39 | $0.00 |
| 2023 | 13687 | PORTPT - PORT DISTRICT | $2.71 | $2.70 | $0.00 | $0.00 | $5.41 | $0.00 |
| 2023 | 13687 | PUD1 - PUD #1 | $0.43 | $0.42 | $0.00 | $0.00 | $0.85 | $0.00 |
| 2023 | 13687 | LIB1 - LIBRARY DIST #1 | $2.01 | $2.01 | $0.00 | $0.00 | $4.02 | $0.00 |
| 2023 | 13687 | HD2 - HOSP DIST #2 | $0.38 | $0.37 | $0.00 | $0.00 | $0.75 | $0.00 |
| 2023 | 13687 | SD49 - SCHOOL DIST #49 | $6.88 | $6.88 | $0.00 | $0.00 | $13.76 | $0.00 |
| 2023 | 13687 | FD1 - FIRE DISTRICT #1 | $5.29 | $5.29 | $0.00 | $0.00 | $10.58 | $0.00 |
| 2023 | 13687 | EMS1 - FIRE DIST #1 EMS | $2.25 | $2.25 | $0.00 | $0.00 | $4.50 | $0.00 |
| 2023 | 13687 | FP - DNR Forest Fire Protection Assmt | $8.50 | $8.50 | $0.00 | $0.00 | $17.00 | $0.00 |
| 2023 | 13687 | FPLCA - DNR Landowner Contingency Assmt | $3.00 | $3.00 | $0.00 | $0.00 | $6.00 | $0.00 |
| 2023 | 13687 | JCCD - JC Conservation District | $2.53 | $2.53 | $0.00 | $0.00 | $5.06 | $0.00 |
| 2023 | 13687 | NWA - Noxious Weed Assessment | $2.15 | $2.15 | $0.00 | $0.00 | $4.30 | $0.00 |
| 2023 | 13687 | WAT - Clean Water District | $12.00 | $12.00 | $0.00 | $0.00 | $24.00 | $0.00 |
| 2023 | 13687 | FP ADMIN - FP ADMIN | $0.50 | $0.00 | $0.00 | $0.00 | $0.50 | $0.00 |
| 2023 | 13687 | TOTAL: | $75.18 | $74.58 | $0.00 | $0.00 | $149.76 | $0.00 |
|
| 2023 | 13687 | $75.18 | $74.58 | $0.00 | $0.00 | $149.76 | $0.00 |
Values
| (+) Improvement Homesite Value: | + | $0 | |
| (+) Improvement Non-Homesite Value: | + | $0 | |
| (+) Land Homesite Value: | + | $0 | |
| (+) Land Non-Homesite Value: | + | $27,500 | |
| (+) Curr Use (HS): | + | $0 | $0 |
| (+) Curr Use (NHS): | + | $0 | $0 |
| | | -------------------------- | |
| (=) Market Value: | = | $27,500 | |
| (–) Productivity Loss: | – | $0 | |
| | | -------------------------- | |
| (=) Subtotal: | = | $27,500 | |
| (+) Senior Appraised Value: | + | $0 | |
| (+) Non-Senior Appraised Value: | + | $27,500 | |
| | | -------------------------- | |
| (=) Total Appraised Value: | = | $27,500 | |
| (–) Senior Exemption Loss: | – | $0 | |
| (–) Exemption Loss: | – | $0 | |
| | | -------------------------- | |
| (=) Taxable Value: | = | $27,500 | |
Taxing Jurisdiction
| Owner: | BENJAMIN M PRESTON | | |
| % Ownership: | 100.0000000000% | | |
| Total Value: | N/A | | |
| Tax Area: | 0211 - 1-49F1E1H2L1 |
| CE | COUNTY CURRENT EXPENSE | N/A | N/A | N/A | N/A | | |
| CNTYDD | DEVELOPMENTAL DISABILITIES | N/A | N/A | N/A | N/A | | |
| CNTYVET | VETERANS RELIEF | N/A | N/A | N/A | N/A | | |
| MENTAL | MENTAL HEALTH | N/A | N/A | N/A | N/A | | |
| ROADS | COUNTY ROADS | N/A | N/A | N/A | N/A | | |
| HOSP2CASH | HOSP DIST #2 GENERAL | N/A | N/A | N/A | N/A | | |
| SCH49CP | SCHOOL DIST #49 CAP PROJ | N/A | N/A | N/A | N/A | | |
| SCH49MO | SCHOOL DIST #49 EP & O | N/A | N/A | N/A | N/A | | |
| CONSERVE | CONSERVATION FUTURES | N/A | N/A | N/A | N/A | | |
| EMS1 | FIRE DIST #1 EMS | N/A | N/A | N/A | N/A | | |
| FD1 | FIRE DIST #1 GENERAL | N/A | N/A | N/A | N/A | | |
| LIB1 | LIBRARY DIST #1 GENERAL | N/A | N/A | N/A | N/A | | |
| PORTPT | PORT OF PT GENERAL | N/A | N/A | N/A | N/A | | |
| PORTPTIDD | PORT OF PT IDD 2019 | N/A | N/A | N/A | N/A | | |
| PUD1 | PUD #1 GENERAL | N/A | N/A | N/A | N/A | | |
| STATE | STATE SCHOOL PART 1 | N/A | N/A | N/A | N/A | | |
| STATE2 | STATE SCHOOL PART 2 | N/A | N/A | N/A | N/A | | |
| | Total Tax Rate: | N/A | | | | | |
| | | | | Taxes w/Current Exemptions: | N/A | | |
| | | | | Taxes w/o Exemptions: | N/A | | |
Improvement / Building
Sketch
| No sketches available for this property. |
Property Image
Land
| 1 | 4252-1185L | | 0.0000 | 0.00 | 0.00 | 0.00 | 4.00 | $22,000 | $0 |
| 2 | 4252-1185L | | 0.0000 | 0.00 | 0.00 | 0.00 | 1.00 | $5,500 | $0 |
Roll Value History
| 2026 | N/A | N/A | N/A | N/A | N/A |
| 2025 | $0 | $15,125 | $0 | $15,125 | $15,125 |
| 2024 | $0 | $14,438 | $0 | $14,438 | $14,438 |
| 2023 | $0 | $13,750 | $0 | $13,750 | $13,750 |
| 2022 | $0 | $12,500 | $0 | $12,500 | $12,500 |
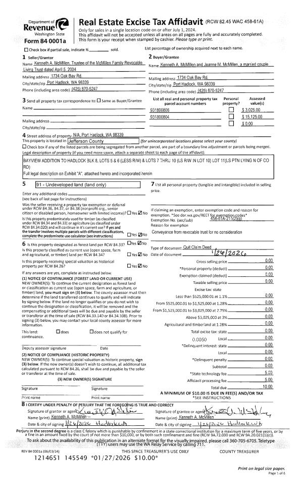
Deed and Sales History
| 1 | 01/27/2026 | SWD | Statutory Warranty Deed | KENNETH A & JEANNE M MCMILLEN | BENJAMIN M PRESTON | | | $49,500.00 | 145593 | |
|   | |
| 2 | 01/26/2026 | QCD | Quit Claim Deed | KENNETH A MCMILLEN TRTEE | KENNETH A & JEANNE M MCMILLEN | | | | 145549 | |
| 3 | 04/05/2004 | QCD | Quit Claim Deed | MCMILLEN, KENNETH A | MCMILLEN, KENNTH & JEANNE/TRST | 0 | 0 | $0.00 | 101235 | 0 |
| 4 | 08/04/1998 | QCD | Quit Claim Deed | MCMILLEN, KENNETH I/EST | MCMILLEN, KENNETH A | 0 | 0 | $0.00 | 85033 | 0 |
Payout Agreement
| No payout information available.. |