Property
Account |
| Property ID: | 24188 | Abbreviated Legal Description: | BAYVIEW ADDITION TO HADLOCK BLK 8 LOTS 5 & 6 (LESS R/W) |
| Parcel # / Geo ID: | 931800806 | Agent Code: | |
| Type: | Real | | |
| Tax Area: | 0211 - 1-49F1E1H2L1 | Land Use Code | 91 |
| Open Space: | N | DFL | N |
| Historic Property: | N | Remodel Property: | N |
| Multi-Family Redevelopment: | N | | |
| Township: | 29N | Section: | 12 |
| Range: | 1W |
Location |
| Address: | | Mapsco: | 002/061 |
| Neighborhood: | BAY VIEW TO HADLOCK & KUHNSVILLE | Map ID: | |
| Neighborhood CD: | 4252 |
Owner |
| Name: | BENJAMIN M PRESTON | Owner ID: | 114000 |
| Mailing Address: | PO BOX 466 PORT HADLOCK, WA 98339-0466 | % Ownership: | 100.0000000000% |
| | | Exemptions: | |
Pay Tax Due
Select the appropriate checkbox next to the year to be paid. Multiple years may be selected.
*Convenience Fee not included
Taxes and Assessment Details
Property Tax Information as of
03/10/2026
Click on "Statement Details" to expand or collapse a tax statement.
* Please enter a valid date ** Please enter a valid date *
Statement Details |
| 2026 | 13611 | STATE - STATE LEVY (SCHOOL) | $3.48 | $3.48 | $0.00 | $0.00 | $0.00 | $6.96 |
| 2026 | 13611 | COUNTY - COUNTY LEVIES (CE, DD, VET, MH) | $1.40 | $1.39 | $0.00 | $0.00 | $0.00 | $2.79 |
| 2026 | 13611 | CONSERVE - CONSERVATION FUTURES | $0.04 | $0.04 | $0.00 | $0.00 | $0.00 | $0.08 |
| 2026 | 13611 | COROADS - COUNTY ROADS (ROADS, DIV TO CE) | $1.12 | $1.12 | $0.00 | $0.00 | $0.00 | $2.24 |
| 2026 | 13611 | PORTPT - PORT DISTRICT | $0.56 | $0.56 | $0.00 | $0.00 | $0.00 | $1.12 |
| 2026 | 13611 | PUD1 - PUD #1 | $0.09 | $0.09 | $0.00 | $0.00 | $0.00 | $0.18 |
| 2026 | 13611 | LIB1 - LIBRARY DIST #1 | $0.44 | $0.43 | $0.00 | $0.00 | $0.00 | $0.87 |
| 2026 | 13611 | HD2 - HOSP DIST #2 | $0.08 | $0.08 | $0.00 | $0.00 | $0.00 | $0.16 |
| 2026 | 13611 | SD49 - SCHOOL DIST #49 | $1.92 | $1.91 | $0.00 | $0.00 | $0.00 | $3.83 |
| 2026 | 13611 | FD1 - FIRE DISTRICT #1 | $1.84 | $1.84 | $0.00 | $0.00 | $0.00 | $3.68 |
| 2026 | 13611 | EMS1 - FIRE DIST #1 EMS | $0.71 | $0.71 | $0.00 | $0.00 | $0.00 | $1.42 |
| 2026 | 13611 | FPLCA - DNR Landowner Contingency Assmt | $3.00 | $3.00 | $0.00 | $0.00 | $0.00 | $6.00 |
| 2026 | 13611 | JCCD - JC Conservation District | $2.53 | $2.53 | $0.00 | $0.00 | $0.00 | $5.06 |
| 2026 | 13611 | NWA - Noxious Weed Assessment | $2.98 | $2.97 | $0.00 | $0.00 | $0.00 | $5.95 |
| 2026 | 13611 | WAT - Clean Water District | $13.00 | $13.00 | $0.00 | $0.00 | $0.00 | $26.00 |
| 2026 | 13611 | TOTAL: | $33.19 | $33.15 | $0.00 | $0.00 | $0.00 | $66.34 |
|
| 2026 | 13611 | $33.19 | $33.15 | $0.00 | $0.00 | $0.00 | $66.34 |
Statement Details |
| 2025 | 13637 | STATE - STATE LEVY (SCHOOL) | $3.46 | $3.46 | $0.00 | $0.00 | $6.92 | $0.00 |
| 2025 | 13637 | COUNTY - COUNTY LEVIES (CE, DD, VET, MH) | $1.37 | $1.37 | $0.00 | $0.00 | $2.74 | $0.00 |
| 2025 | 13637 | CONSERVE - CONSERVATION FUTURES | $0.04 | $0.04 | $0.00 | $0.00 | $0.08 | $0.00 |
| 2025 | 13637 | COROADS - COUNTY ROADS (ROADS, DIV TO CE) | $1.09 | $1.09 | $0.00 | $0.00 | $2.18 | $0.00 |
| 2025 | 13637 | PORTPT - PORT DISTRICT | $0.56 | $0.56 | $0.00 | $0.00 | $1.12 | $0.00 |
| 2025 | 13637 | PUD1 - PUD #1 | $0.09 | $0.09 | $0.00 | $0.00 | $0.18 | $0.00 |
| 2025 | 13637 | LIB1 - LIBRARY DIST #1 | $0.42 | $0.42 | $0.00 | $0.00 | $0.84 | $0.00 |
| 2025 | 13637 | HD2 - HOSP DIST #2 | $0.08 | $0.08 | $0.00 | $0.00 | $0.16 | $0.00 |
| 2025 | 13637 | SD49 - SCHOOL DIST #49 | $1.86 | $1.85 | $0.00 | $0.00 | $3.71 | $0.00 |
| 2025 | 13637 | FD1 - FIRE DISTRICT #1 | $1.80 | $1.79 | $0.00 | $0.00 | $3.59 | $0.00 |
| 2025 | 13637 | EMS1 - FIRE DIST #1 EMS | $0.69 | $0.69 | $0.00 | $0.00 | $1.38 | $0.00 |
| 2025 | 13637 | FPLCA - DNR Landowner Contingency Assmt | $3.00 | $3.00 | $0.00 | $0.00 | $6.00 | $0.00 |
| 2025 | 13637 | JCCD - JC Conservation District | $2.53 | $2.53 | $0.00 | $0.00 | $5.06 | $0.00 |
| 2025 | 13637 | NWA - Noxious Weed Assessment | $2.15 | $2.15 | $0.00 | $0.00 | $4.30 | $0.00 |
| 2025 | 13637 | WAT - Clean Water District | $13.00 | $13.00 | $0.00 | $0.00 | $26.00 | $0.00 |
| 2025 | 13637 | TOTAL: | $32.14 | $32.12 | $0.00 | $0.00 | $64.26 | $0.00 |
|
| 2025 | 13637 | $32.14 | $32.12 | $0.00 | $0.00 | $64.26 | $0.00 |
Statement Details |
| 2024 | 13666 | STATE - STATE LEVY (SCHOOL) | $3.18 | $3.18 | $0.00 | $0.00 | $6.36 | $0.00 |
| 2024 | 13666 | COUNTY - COUNTY LEVIES (CE, DD, VET, MH) | $1.37 | $1.37 | $0.00 | $0.00 | $2.74 | $0.00 |
| 2024 | 13666 | CONSERVE - CONSERVATION FUTURES | $0.04 | $0.04 | $0.00 | $0.00 | $0.08 | $0.00 |
| 2024 | 13666 | COROADS - COUNTY ROADS (ROADS, DIV TO CE) | $1.10 | $1.09 | $0.00 | $0.00 | $2.19 | $0.00 |
| 2024 | 13666 | PORTPT - PORT DISTRICT | $0.57 | $0.56 | $0.00 | $0.00 | $1.13 | $0.00 |
| 2024 | 13666 | PUD1 - PUD #1 | $0.09 | $0.09 | $0.00 | $0.00 | $0.18 | $0.00 |
| 2024 | 13666 | LIB1 - LIBRARY DIST #1 | $0.43 | $0.42 | $0.00 | $0.00 | $0.85 | $0.00 |
| 2024 | 13666 | HD2 - HOSP DIST #2 | $0.08 | $0.08 | $0.00 | $0.00 | $0.16 | $0.00 |
| 2024 | 13666 | SD49 - SCHOOL DIST #49 | $1.43 | $1.42 | $0.00 | $0.00 | $2.85 | $0.00 |
| 2024 | 13666 | FD1 - FIRE DISTRICT #1 | $1.80 | $1.80 | $0.00 | $0.00 | $3.60 | $0.00 |
| 2024 | 13666 | EMS1 - FIRE DIST #1 EMS | $0.69 | $0.69 | $0.00 | $0.00 | $1.38 | $0.00 |
| 2024 | 13666 | FPLCA - DNR Landowner Contingency Assmt | $3.00 | $3.00 | $0.00 | $0.00 | $6.00 | $0.00 |
| 2024 | 13666 | JCCD - JC Conservation District | $2.53 | $2.53 | $0.00 | $0.00 | $5.06 | $0.00 |
| 2024 | 13666 | NWA - Noxious Weed Assessment | $2.15 | $2.15 | $0.00 | $0.00 | $4.30 | $0.00 |
| 2024 | 13666 | WAT - Clean Water District | $12.50 | $12.50 | $0.00 | $0.00 | $25.00 | $0.00 |
| 2024 | 13666 | TOTAL: | $30.96 | $30.92 | $0.00 | $0.00 | $61.88 | $0.00 |
|
| 2024 | 13666 | $30.96 | $30.92 | $0.00 | $0.00 | $61.88 | $0.00 |
Statement Details |
| 2023 | 13689 | STATE - STATE LEVY (SCHOOL) | $2.95 | $2.93 | $0.00 | $0.00 | $5.88 | $0.00 |
| 2023 | 13689 | COUNTY - COUNTY LEVIES (CE, DD, VET, MH) | $1.29 | $1.26 | $0.00 | $0.00 | $2.55 | $0.00 |
| 2023 | 13689 | CONSERVE - CONSERVATION FUTURES | $0.04 | $0.04 | $0.00 | $0.00 | $0.08 | $0.00 |
| 2023 | 13689 | COROADS - COUNTY ROADS (ROADS, DIV TO CE) | $1.04 | $1.04 | $0.00 | $0.00 | $2.08 | $0.00 |
| 2023 | 13689 | PORTPT - PORT DISTRICT | $0.54 | $0.54 | $0.00 | $0.00 | $1.08 | $0.00 |
| 2023 | 13689 | PUD1 - PUD #1 | $0.09 | $0.08 | $0.00 | $0.00 | $0.17 | $0.00 |
| 2023 | 13689 | LIB1 - LIBRARY DIST #1 | $0.40 | $0.40 | $0.00 | $0.00 | $0.80 | $0.00 |
| 2023 | 13689 | HD2 - HOSP DIST #2 | $0.08 | $0.07 | $0.00 | $0.00 | $0.15 | $0.00 |
| 2023 | 13689 | SD49 - SCHOOL DIST #49 | $1.38 | $1.37 | $0.00 | $0.00 | $2.75 | $0.00 |
| 2023 | 13689 | FD1 - FIRE DISTRICT #1 | $1.06 | $1.06 | $0.00 | $0.00 | $2.12 | $0.00 |
| 2023 | 13689 | EMS1 - FIRE DIST #1 EMS | $0.45 | $0.45 | $0.00 | $0.00 | $0.90 | $0.00 |
| 2023 | 13689 | FPLCA - DNR Landowner Contingency Assmt | $3.00 | $3.00 | $0.00 | $0.00 | $6.00 | $0.00 |
| 2023 | 13689 | JCCD - JC Conservation District | $2.53 | $2.53 | $0.00 | $0.00 | $5.06 | $0.00 |
| 2023 | 13689 | NWA - Noxious Weed Assessment | $2.15 | $2.15 | $0.00 | $0.00 | $4.30 | $0.00 |
| 2023 | 13689 | WAT - Clean Water District | $12.00 | $12.00 | $0.00 | $0.00 | $24.00 | $0.00 |
| 2023 | 13689 | TOTAL: | $29.00 | $28.92 | $0.00 | $0.00 | $57.92 | $0.00 |
|
| 2023 | 13689 | $29.00 | $28.92 | $0.00 | $0.00 | $57.92 | $0.00 |
Values
| (+) Improvement Homesite Value: | + | $0 | |
| (+) Improvement Non-Homesite Value: | + | $0 | |
| (+) Land Homesite Value: | + | $0 | |
| (+) Land Non-Homesite Value: | + | $3,025 | |
| (+) Curr Use (HS): | + | $0 | $0 |
| (+) Curr Use (NHS): | + | $0 | $0 |
| | | -------------------------- | |
| (=) Market Value: | = | $3,025 | |
| (–) Productivity Loss: | – | $0 | |
| | | -------------------------- | |
| (=) Subtotal: | = | $3,025 | |
| (+) Senior Appraised Value: | + | $0 | |
| (+) Non-Senior Appraised Value: | + | $3,025 | |
| | | -------------------------- | |
| (=) Total Appraised Value: | = | $3,025 | |
| (–) Senior Exemption Loss: | – | $0 | |
| (–) Exemption Loss: | – | $0 | |
| | | -------------------------- | |
| (=) Taxable Value: | = | $3,025 | |
Taxing Jurisdiction
| Owner: | BENJAMIN M PRESTON | | |
| % Ownership: | 100.0000000000% | | |
| Total Value: | $3,025 | | |
| Tax Area: | 0211 - 1-49F1E1H2L1 |
| CE | COUNTY CURRENT EXPENSE | 0.9034619479 | $3,025 | $3,025 | $2.73 | | |
| CNTYDD | DEVELOPMENTAL DISABILITIES | 0.0052121823 | $3,025 | $3,025 | $0.02 | | |
| CNTYVET | VETERANS RELIEF | 0.0052777810 | $3,025 | $3,025 | $0.02 | | |
| MENTAL | MENTAL HEALTH | 0.0052121823 | $3,025 | $3,025 | $0.02 | | |
| ROADS | COUNTY ROADS | 0.7415066410 | $3,025 | $3,025 | $2.24 | | |
| ROADSCU | COUNTY ROADS TO CUR EXP | 0.0000000000 | $3,025 | $3,025 | $0.00 | | |
| HOSP2CASH | HOSP DIST #2 GENERAL | 0.0536075306 | $3,025 | $3,025 | $0.16 | | |
| SCH49CP | SCHOOL DIST #49 CAP PROJ | 0.6279093905 | $3,025 | $3,025 | $1.90 | | |
| SCH49MO | SCHOOL DIST #49 EP & O | 0.6376483602 | $3,025 | $3,025 | $1.93 | | |
| CONSERVE | CONSERVATION FUTURES | 0.0275621078 | $3,025 | $3,025 | $0.08 | | |
| EMS1 | FIRE DIST #1 EMS | 0.4679948282 | $3,025 | $3,025 | $1.42 | | |
| FD1 | FIRE DIST #1 GENERAL | 1.2171942929 | $3,025 | $3,025 | $3.68 | | |
| LIB1 | LIBRARY DIST #1 GENERAL | 0.2868827388 | $3,025 | $3,025 | $0.87 | | |
| PORTPT | PORT OF PT GENERAL | 0.1134941229 | $3,025 | $3,025 | $0.34 | | |
| PORTPTIDD | PORT OF PT IDD 2019 | 0.2577346692 | $3,025 | $3,025 | $0.78 | | |
| PUD1 | PUD #1 GENERAL | 0.0597888892 | $3,025 | $3,025 | $0.18 | | |
| STATE | STATE SCHOOL PART 1 | 1.4940692947 | $3,025 | $3,025 | $4.52 | | |
| STATE2 | STATE SCHOOL PART 2 | 0.8050170049 | $3,025 | $3,025 | $2.44 | | |
| | Total Tax Rate: | 7.7095739644 | | | | | |
| | | | | Taxes w/Current Exemptions: | $23.33 | | |
| | | | | Taxes w/o Exemptions: | $23.33 | | |
Improvement / Building
Sketch
| No sketches available for this property. |
Property Image
Land
| 1 | 4252-1188L | | 0.0000 | 0.00 | 0.00 | 0.00 | 2.00 | $3,025 | $0 |
Roll Value History
| 2026 | N/A | N/A | N/A | N/A | N/A |
| 2025 | $0 | $3,025 | $0 | $3,025 | $3,025 |
| 2024 | $0 | $2,888 | $0 | $2,888 | $2,888 |
| 2023 | $0 | $2,750 | $0 | $2,750 | $2,750 |
| 2022 | $0 | $2,500 | $0 | $2,500 | $2,500 |
Deed and Sales History
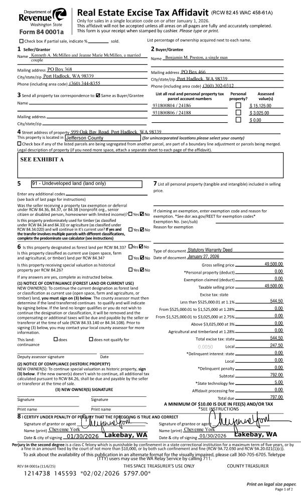
| 1 | 01/27/2026 | SWD | Statutory Warranty Deed | KENNETH A & JEANNE M MCMILLEN | BENJAMIN M PRESTON | | | $49,500.00 | 145593 | |
|   | |
| 2 | 01/26/2026 | QCD | Quit Claim Deed | KENNETH A MCMILLEN TRTEE | KENNETH A & JEANNE M MCMILLEN | | | | 145549 | |
| 3 | 04/05/2004 | QCD | Quit Claim Deed | MCMILLEN, KENNETH A | MCMILLEN, KENNTH & JEANNE/TRST | 0 | 0 | $0.00 | 101235 | 0 |
| 4 | 08/04/1998 | QCD | Quit Claim Deed | MCMILLEN, KENNETH I/EST | MCMILLEN, KENNETH A | 0 | 0 | $0.00 | 85033 | 0 |
Payout Agreement
| No payout information available.. |