Property
Account |
| Property ID: | 24213 | Abbreviated Legal Description: | BAYVIEW VILLAGE DIV 1 LOT 23 |
| Parcel # / Geo ID: | 931900023 | Agent Code: | |
| Type: | Real | | |
| Tax Area: | 0213 - 1-49F1E1H2L1 | Land Use Code | 11 |
| Open Space: | N | DFL | N |
| Historic Property: | N | Remodel Property: | N |
| Multi-Family Redevelopment: | N | | |
| Township: | 28N | Section: | 16 |
| Range: | 1E |
Location |
| Address: | 61 WINDROSE DR PORT LUDLOW, WA 98365 | Mapsco: | 003/003 |
| Neighborhood: | BAYVIEW VILLAGE DIVISIONS 1 AND 3 (& 2 THRU 2024) | Map ID: | |
| Neighborhood CD: | 3349 |
Owner |
| Name: | RAYDEAN HILTON PATTERSON LIVING TRUST | Owner ID: | 107194 |
| Mailing Address: | 11415 TANBARK DR RESTON, VA 20191-4103 | % Ownership: | 100.0000000000% |
| | | Exemptions: | |
Pay Tax Due
Select the appropriate checkbox next to the year to be paid. Multiple years may be selected.
*Convenience Fee not included
Taxes and Assessment Details
Property Tax Information as of
03/12/2026
Click on "Statement Details" to expand or collapse a tax statement.
* Please enter a valid date ** Please enter a valid date *
Statement Details |
| 2026 | 13636 | STATE - STATE LEVY (SCHOOL) | $690.54 | $690.54 | $0.00 | $0.00 | $0.00 | $1381.08 |
| 2026 | 13636 | COUNTY - COUNTY LEVIES (CE, DD, VET, MH) | $276.09 | $276.06 | $0.00 | $0.00 | $0.00 | $552.15 |
| 2026 | 13636 | CONSERVE - CONSERVATION FUTURES | $8.28 | $8.28 | $0.00 | $0.00 | $0.00 | $16.56 |
| 2026 | 13636 | COROADS - COUNTY ROADS (ROADS, DIV TO CE) | $222.72 | $222.71 | $0.00 | $0.00 | $0.00 | $445.43 |
| 2026 | 13636 | PORTPT - PORT DISTRICT | $111.50 | $111.50 | $0.00 | $0.00 | $0.00 | $223.00 |
| 2026 | 13636 | PUD1 - PUD #1 | $17.96 | $17.96 | $0.00 | $0.00 | $0.00 | $35.92 |
| 2026 | 13636 | LIB1 - LIBRARY DIST #1 | $86.17 | $86.16 | $0.00 | $0.00 | $0.00 | $172.33 |
| 2026 | 13636 | HD2 - HOSP DIST #2 | $16.10 | $16.10 | $0.00 | $0.00 | $0.00 | $32.20 |
| 2026 | 13636 | SD49 - SCHOOL DIST #49 | $380.12 | $380.11 | $0.00 | $0.00 | $0.00 | $760.23 |
| 2026 | 13636 | FD1 - FIRE DISTRICT #1 | $365.59 | $365.59 | $0.00 | $0.00 | $0.00 | $731.18 |
| 2026 | 13636 | EMS1 - FIRE DIST #1 EMS | $140.57 | $140.56 | $0.00 | $0.00 | $0.00 | $281.13 |
| 2026 | 13636 | JCCD - JC Conservation District | $2.55 | $2.55 | $0.00 | $0.00 | $0.00 | $5.10 |
| 2026 | 13636 | NWA - Noxious Weed Assessment | $2.98 | $2.97 | $0.00 | $0.00 | $0.00 | $5.95 |
| 2026 | 13636 | TOTAL: | $2321.17 | $2321.09 | $0.00 | $0.00 | $0.00 | $4642.26 |
|
| 2026 | 13636 | $2321.17 | $2321.09 | $0.00 | $0.00 | $0.00 | $4642.26 |
Statement Details |
| 2025 | 13662 | STATE - STATE LEVY (SCHOOL) | $720.27 | $720.25 | $0.00 | $0.00 | $1440.52 | $0.00 |
| 2025 | 13662 | COUNTY - COUNTY LEVIES (CE, DD, VET, MH) | $283.24 | $283.23 | $0.00 | $0.00 | $566.47 | $0.00 |
| 2025 | 13662 | CONSERVE - CONSERVATION FUTURES | $8.50 | $8.49 | $0.00 | $0.00 | $16.99 | $0.00 |
| 2025 | 13662 | COROADS - COUNTY ROADS (ROADS, DIV TO CE) | $226.93 | $226.91 | $0.00 | $0.00 | $453.84 | $0.00 |
| 2025 | 13662 | PORTPT - PORT DISTRICT | $115.59 | $115.57 | $0.00 | $0.00 | $231.16 | $0.00 |
| 2025 | 13662 | PUD1 - PUD #1 | $18.54 | $18.53 | $0.00 | $0.00 | $37.07 | $0.00 |
| 2025 | 13662 | LIB1 - LIBRARY DIST #1 | $87.79 | $87.79 | $0.00 | $0.00 | $175.58 | $0.00 |
| 2025 | 13662 | HD2 - HOSP DIST #2 | $16.53 | $16.52 | $0.00 | $0.00 | $33.05 | $0.00 |
| 2025 | 13662 | SD49 - SCHOOL DIST #49 | $386.01 | $386.01 | $0.00 | $0.00 | $772.02 | $0.00 |
| 2025 | 13662 | FD1 - FIRE DISTRICT #1 | $373.76 | $373.76 | $0.00 | $0.00 | $747.52 | $0.00 |
| 2025 | 13662 | EMS1 - FIRE DIST #1 EMS | $143.76 | $143.76 | $0.00 | $0.00 | $287.52 | $0.00 |
| 2025 | 13662 | JCCD - JC Conservation District | $2.55 | $2.55 | $0.00 | $0.00 | $5.10 | $0.00 |
| 2025 | 13662 | NWA - Noxious Weed Assessment | $2.15 | $2.15 | $0.00 | $0.00 | $4.30 | $0.00 |
| 2025 | 13662 | TOTAL: | $2385.62 | $2385.52 | $0.00 | $0.00 | $4771.14 | $0.00 |
|
| 2025 | 13662 | $2385.62 | $2385.52 | $0.00 | $0.00 | $4771.14 | $0.00 |
Statement Details |
| 2024 | 13691 | STATE - STATE LEVY (SCHOOL) | $679.00 | $678.99 | $0.00 | $0.00 | $1357.99 | $0.00 |
| 2024 | 13691 | COUNTY - COUNTY LEVIES (CE, DD, VET, MH) | $290.55 | $290.54 | $0.00 | $0.00 | $581.09 | $0.00 |
| 2024 | 13691 | CONSERVE - CONSERVATION FUTURES | $8.71 | $8.71 | $0.00 | $0.00 | $17.42 | $0.00 |
| 2024 | 13691 | COROADS - COUNTY ROADS (ROADS, DIV TO CE) | $233.80 | $233.79 | $0.00 | $0.00 | $467.59 | $0.00 |
| 2024 | 13691 | PORTPT - PORT DISTRICT | $120.02 | $120.00 | $0.00 | $0.00 | $240.02 | $0.00 |
| 2024 | 13691 | PUD1 - PUD #1 | $19.09 | $19.08 | $0.00 | $0.00 | $38.17 | $0.00 |
| 2024 | 13691 | LIB1 - LIBRARY DIST #1 | $90.46 | $90.45 | $0.00 | $0.00 | $180.91 | $0.00 |
| 2024 | 13691 | HD2 - HOSP DIST #2 | $16.96 | $16.95 | $0.00 | $0.00 | $33.91 | $0.00 |
| 2024 | 13691 | SD49 - SCHOOL DIST #49 | $303.21 | $303.19 | $0.00 | $0.00 | $606.40 | $0.00 |
| 2024 | 13691 | FD1 - FIRE DISTRICT #1 | $384.17 | $384.17 | $0.00 | $0.00 | $768.34 | $0.00 |
| 2024 | 13691 | EMS1 - FIRE DIST #1 EMS | $146.74 | $146.74 | $0.00 | $0.00 | $293.48 | $0.00 |
| 2024 | 13691 | JCCD - JC Conservation District | $2.55 | $2.55 | $0.00 | $0.00 | $5.10 | $0.00 |
| 2024 | 13691 | NWA - Noxious Weed Assessment | $2.15 | $2.15 | $0.00 | $0.00 | $4.30 | $0.00 |
| 2024 | 13691 | TOTAL: | $2297.41 | $2297.31 | $0.00 | $0.00 | $4594.72 | $0.00 |
|
| 2024 | 13691 | $2297.41 | $2297.31 | $0.00 | $0.00 | $4594.72 | $0.00 |
Statement Details |
| 2023 | 13714 | STATE - STATE LEVY (SCHOOL) | $663.67 | $663.67 | $0.00 | $0.00 | $1327.34 | $0.00 |
| 2023 | 13714 | COUNTY - COUNTY LEVIES (CE, DD, VET, MH) | $289.62 | $289.59 | $0.00 | $0.00 | $579.21 | $0.00 |
| 2023 | 13714 | CONSERVE - CONSERVATION FUTURES | $8.69 | $8.68 | $0.00 | $0.00 | $17.37 | $0.00 |
| 2023 | 13714 | COROADS - COUNTY ROADS (ROADS, DIV TO CE) | $234.31 | $234.31 | $0.00 | $0.00 | $468.62 | $0.00 |
| 2023 | 13714 | PORTPT - PORT DISTRICT | $122.00 | $122.00 | $0.00 | $0.00 | $244.00 | $0.00 |
| 2023 | 13714 | PUD1 - PUD #1 | $19.20 | $19.19 | $0.00 | $0.00 | $38.39 | $0.00 |
| 2023 | 13714 | LIB1 - LIBRARY DIST #1 | $90.66 | $90.65 | $0.00 | $0.00 | $181.31 | $0.00 |
| 2023 | 13714 | HD2 - HOSP DIST #2 | $16.90 | $16.90 | $0.00 | $0.00 | $33.80 | $0.00 |
| 2023 | 13714 | SD49 - SCHOOL DIST #49 | $310.24 | $310.22 | $0.00 | $0.00 | $620.46 | $0.00 |
| 2023 | 13714 | FD3 - FIRE DISTRICT #3 | $288.12 | $288.11 | $0.00 | $0.00 | $576.23 | $0.00 |
| 2023 | 13714 | EMS3 - FIRE DIST #3 EMS | $103.00 | $103.00 | $0.00 | $0.00 | $206.00 | $0.00 |
| 2023 | 13714 | JCCD - JC Conservation District | $2.55 | $2.55 | $0.00 | $0.00 | $5.10 | $0.00 |
| 2023 | 13714 | NWA - Noxious Weed Assessment | $2.15 | $2.15 | $0.00 | $0.00 | $4.30 | $0.00 |
| 2023 | 13714 | TOTAL: | $2151.11 | $2151.02 | $0.00 | $0.00 | $4302.13 | $0.00 |
|
| 2023 | 13714 | $2151.11 | $2151.02 | $0.00 | $0.00 | $4302.13 | $0.00 |
Values
| (+) Improvement Homesite Value: | + | $0 | |
| (+) Improvement Non-Homesite Value: | + | $416,957 | |
| (+) Land Homesite Value: | + | $0 | |
| (+) Land Non-Homesite Value: | + | $183,750 | |
| (+) Curr Use (HS): | + | $0 | $0 |
| (+) Curr Use (NHS): | + | $0 | $0 |
| | | -------------------------- | |
| (=) Market Value: | = | $600,707 | |
| (–) Productivity Loss: | – | $0 | |
| | | -------------------------- | |
| (=) Subtotal: | = | $600,707 | |
| (+) Senior Appraised Value: | + | $0 | |
| (+) Non-Senior Appraised Value: | + | $600,707 | |
| | | -------------------------- | |
| (=) Total Appraised Value: | = | $600,707 | |
| (–) Senior Exemption Loss: | – | $0 | |
| (–) Exemption Loss: | – | $0 | |
| | | -------------------------- | |
| (=) Taxable Value: | = | $600,707 | |
Taxing Jurisdiction
| Owner: | RAYDEAN HILTON PATTERSON LIVING TRUST | | |
| % Ownership: | 100.0000000000% | | |
| Total Value: | $600,707 | | |
| Tax Area: | 0213 - 1-49F1E1H2L1 |
| CE | COUNTY CURRENT EXPENSE | 0.9034619479 | $600,707 | $600,707 | $542.72 | | |
| CNTYDD | DEVELOPMENTAL DISABILITIES | 0.0052121823 | $600,707 | $600,707 | $3.13 | | |
| CNTYVET | VETERANS RELIEF | 0.0052777810 | $600,707 | $600,707 | $3.17 | | |
| MENTAL | MENTAL HEALTH | 0.0052121823 | $600,707 | $600,707 | $3.13 | | |
| ROADS | COUNTY ROADS | 0.7415066410 | $600,707 | $600,707 | $445.43 | | |
| ROADSCU | COUNTY ROADS TO CUR EXP | 0.0000000000 | $600,707 | $600,707 | $0.00 | | |
| HOSP2CASH | HOSP DIST #2 GENERAL | 0.0536075306 | $600,707 | $600,707 | $32.20 | | |
| SCH49CP | SCHOOL DIST #49 CAP PROJ | 0.6279093905 | $600,707 | $600,707 | $377.19 | | |
| SCH49MO | SCHOOL DIST #49 EP & O | 0.6376483602 | $600,707 | $600,707 | $383.04 | | |
| CONSERVE | CONSERVATION FUTURES | 0.0275621078 | $600,707 | $600,707 | $16.56 | | |
| EMS1 | FIRE DIST #1 EMS | 0.4679948282 | $600,707 | $600,707 | $281.13 | | |
| FD1 | FIRE DIST #1 GENERAL | 1.2171942929 | $600,707 | $600,707 | $731.18 | | |
| LIB1 | LIBRARY DIST #1 GENERAL | 0.2868827388 | $600,707 | $600,707 | $172.33 | | |
| PORTPT | PORT OF PT GENERAL | 0.1134941229 | $600,707 | $600,707 | $68.18 | | |
| PORTPTIDD | PORT OF PT IDD 2019 | 0.2577346692 | $600,707 | $600,707 | $154.82 | | |
| PUD1 | PUD #1 GENERAL | 0.0597888892 | $600,707 | $600,707 | $35.92 | | |
| STATE | STATE SCHOOL PART 1 | 1.4940692947 | $600,707 | $600,707 | $897.50 | | |
| STATE2 | STATE SCHOOL PART 2 | 0.8050170049 | $600,707 | $600,707 | $483.58 | | |
| | Total Tax Rate: | 7.7095739644 | | | | | |
| | | | | Taxes w/Current Exemptions: | $4,631.21 | | |
| | | | | Taxes w/o Exemptions: | $4,631.21 | | |
Improvement / Building
| Improvement #1: | Residential Bldg | State Code: | 11 | 1716.0 sqft | Value: | $416,957 |
| Bathrooms (#): | 2 (FULL) | Bedrooms (#): | 2 | | Exterior Wall: | SI/ST | Fireplace: | SIN 1-GOOD | | Floor Construction: | FRAME | Foundation: | CONPR | | Heating/Cooling: | HPUMP | Inside Verify: | YES-FIX | | Roof Cover: | SHAKE |   |   |
|
| | Type | Description | Class CD | Sub Class CD | Year Built | Area |
| | MA | Main Area | 4+ | 1S | 1990 | 1716.0 |
| | HCPOR | House Concrete Porch | 4 | * | 1990 | 120.0 |
| | HDECK | House Deck | 4 | * | 1990 | 626.0 |
| | GATT | House Attached Garage | 4 | 1S | 1990 | 506.0 |
Sketch
Property Image
Land
| 1 | 3349-1145L | | 0.0000 | 0.00 | 0.00 | 0.00 | 1.00 | $183,750 | $0 |
Roll Value History
| 2026 | N/A | N/A | N/A | N/A | N/A |
| 2025 | $416,957 | $183,750 | $0 | $600,707 | $600,707 |
| 2024 | $416,957 | $183,750 | $0 | $600,707 | $600,707 |
| 2023 | $416,957 | $170,000 | $0 | $586,957 | $586,957 |
| 2022 | $398,828 | $165,000 | $0 | $563,828 | $563,828 |
Deed and Sales History
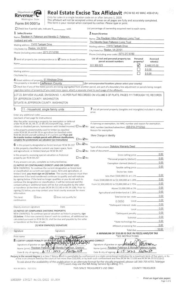
| 1 | 06/21/2022 | SWD | Statutory Warranty Deed | RAYDEAN H PATTERSON | RAYDEAN HILTON PATTERSON LIVING TRUST | | | | 139327 | |
| 2 | 03/14/2003 | QCD | Quit Claim Deed | PATTERSON, RAYMOND H/ET A | PATTERSON, RAYDEAN H/MERETTA D | 0 | 0 | $0.00 | 96943 | 0 |
| 3 | 05/12/1995 | SWD | Statutory Warranty Deed | PRETTY, FRANCIS H/JOYCE A | PATTERSON, RAYMOND/TRUST,ET AL | 0 | 0 | $208,000.00 | 76954 | 0 |
| 4 | 05/12/1995 | QCD | Quit Claim Deed | PATTERSON, MERETTA D | PATTERSON, RAYDEAN H | 0 | 0 | $0.00 | 76955 | 0 |
Payout Agreement
| No payout information available.. |