Property
Account |
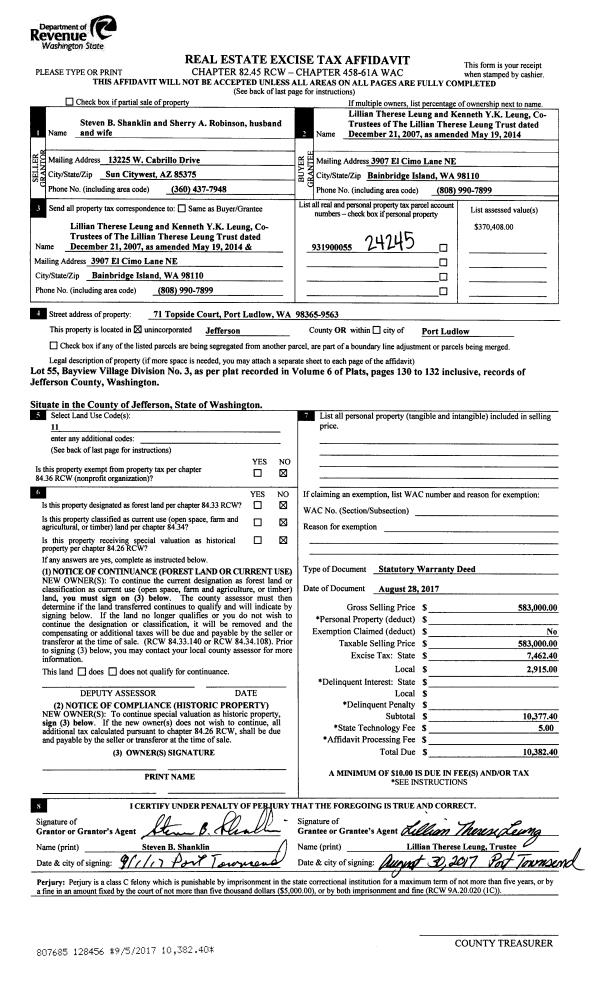
| Property ID: | 24245 | Abbreviated Legal Description: | BAYVIEW VILLAGE DIV 3 LOT 55 |
| Parcel # / Geo ID: | 931900055 | Agent Code: | |
| Type: | Real | | |
| Tax Area: | 0213 - 1-49F1E1H2L1 | Land Use Code | 11 |
| Open Space: | N | DFL | N |
| Historic Property: | N | Remodel Property: | N |
| Multi-Family Redevelopment: | N | | |
| Township: | 28N | Section: | 16 |
| Range: | 1E |
Location |
| Address: | 71 TOPSIDE CT PORT LUDLOW, WA 98365 | Mapsco: | 004/015 |
| Neighborhood: | BAYVIEW VILLAGE DIVISIONS 1 AND 3 (& 2 THRU 2024) | Map ID: | |
| Neighborhood CD: | 3349 |
Owner |
| Name: | ERIC & MARGARET SALMASSY LIVING TRUST | Owner ID: | 106602 |
| Mailing Address: | ERIC SALMASSY TRUSTEE MARGARE SALMASSY TRUSTEE 71 TOPSIDE CT PORT LUDLOW, WA 98365-9563 | % Ownership: | 100.0000000000% |
| | | Exemptions: | |
Pay Tax Due
Select the appropriate checkbox next to the year to be paid. Multiple years may be selected.
*Convenience Fee not included
Taxes and Assessment Details
Property Tax Information as of
03/12/2026
Click on "Statement Details" to expand or collapse a tax statement.
* Please enter a valid date ** Please enter a valid date *
Statement Details |
| 2026 | 13668 | STATE - STATE LEVY (SCHOOL) | $950.88 | $950.87 | $0.00 | $0.00 | $0.00 | $1901.75 |
| 2026 | 13668 | COUNTY - COUNTY LEVIES (CE, DD, VET, MH) | $380.18 | $380.14 | $0.00 | $0.00 | $0.00 | $760.32 |
| 2026 | 13668 | CONSERVE - CONSERVATION FUTURES | $11.40 | $11.40 | $0.00 | $0.00 | $0.00 | $22.80 |
| 2026 | 13668 | COROADS - COUNTY ROADS (ROADS, DIV TO CE) | $306.68 | $306.68 | $0.00 | $0.00 | $0.00 | $613.36 |
| 2026 | 13668 | PORTPT - PORT DISTRICT | $153.54 | $153.53 | $0.00 | $0.00 | $0.00 | $307.07 |
| 2026 | 13668 | PUD1 - PUD #1 | $24.73 | $24.73 | $0.00 | $0.00 | $0.00 | $49.46 |
| 2026 | 13668 | LIB1 - LIBRARY DIST #1 | $118.65 | $118.65 | $0.00 | $0.00 | $0.00 | $237.30 |
| 2026 | 13668 | HD2 - HOSP DIST #2 | $22.17 | $22.17 | $0.00 | $0.00 | $0.00 | $44.34 |
| 2026 | 13668 | SD49 - SCHOOL DIST #49 | $523.43 | $523.41 | $0.00 | $0.00 | $0.00 | $1046.84 |
| 2026 | 13668 | FD1 - FIRE DISTRICT #1 | $503.42 | $503.42 | $0.00 | $0.00 | $0.00 | $1006.84 |
| 2026 | 13668 | EMS1 - FIRE DIST #1 EMS | $193.56 | $193.56 | $0.00 | $0.00 | $0.00 | $387.12 |
| 2026 | 13668 | JCCD - JC Conservation District | $2.55 | $2.55 | $0.00 | $0.00 | $0.00 | $5.10 |
| 2026 | 13668 | NWA - Noxious Weed Assessment | $2.98 | $2.97 | $0.00 | $0.00 | $0.00 | $5.95 |
| 2026 | 13668 | TOTAL: | $3194.17 | $3194.08 | $0.00 | $0.00 | $0.00 | $6388.25 |
|
| 2026 | 13668 | $3194.17 | $3194.08 | $0.00 | $0.00 | $0.00 | $6388.25 |
Statement Details |
| 2025 | 13694 | STATE - STATE LEVY (SCHOOL) | $991.80 | $991.80 | $0.00 | $0.00 | $1983.60 | $0.00 |
| 2025 | 13694 | COUNTY - COUNTY LEVIES (CE, DD, VET, MH) | $390.03 | $390.00 | $0.00 | $0.00 | $780.03 | $0.00 |
| 2025 | 13694 | CONSERVE - CONSERVATION FUTURES | $11.70 | $11.69 | $0.00 | $0.00 | $23.39 | $0.00 |
| 2025 | 13694 | COROADS - COUNTY ROADS (ROADS, DIV TO CE) | $312.47 | $312.46 | $0.00 | $0.00 | $624.93 | $0.00 |
| 2025 | 13694 | PORTPT - PORT DISTRICT | $159.15 | $159.15 | $0.00 | $0.00 | $318.30 | $0.00 |
| 2025 | 13694 | PUD1 - PUD #1 | $25.52 | $25.52 | $0.00 | $0.00 | $51.04 | $0.00 |
| 2025 | 13694 | LIB1 - LIBRARY DIST #1 | $120.89 | $120.89 | $0.00 | $0.00 | $241.78 | $0.00 |
| 2025 | 13694 | HD2 - HOSP DIST #2 | $22.76 | $22.75 | $0.00 | $0.00 | $45.51 | $0.00 |
| 2025 | 13694 | SD49 - SCHOOL DIST #49 | $531.55 | $531.54 | $0.00 | $0.00 | $1063.09 | $0.00 |
| 2025 | 13694 | FD1 - FIRE DISTRICT #1 | $514.68 | $514.67 | $0.00 | $0.00 | $1029.35 | $0.00 |
| 2025 | 13694 | EMS1 - FIRE DIST #1 EMS | $197.96 | $197.95 | $0.00 | $0.00 | $395.91 | $0.00 |
| 2025 | 13694 | JCCD - JC Conservation District | $2.55 | $2.55 | $0.00 | $0.00 | $5.10 | $0.00 |
| 2025 | 13694 | NWA - Noxious Weed Assessment | $2.15 | $2.15 | $0.00 | $0.00 | $4.30 | $0.00 |
| 2025 | 13694 | TOTAL: | $3283.21 | $3283.12 | $0.00 | $0.00 | $6566.33 | $0.00 |
|
| 2025 | 13694 | $3283.21 | $3283.12 | $0.00 | $0.00 | $6566.33 | $0.00 |
Statement Details |
| 2024 | 13723 | STATE - STATE LEVY (SCHOOL) | $939.25 | $939.23 | $0.00 | $0.00 | $1878.48 | $0.00 |
| 2024 | 13723 | COUNTY - COUNTY LEVIES (CE, DD, VET, MH) | $401.92 | $401.91 | $0.00 | $0.00 | $803.83 | $0.00 |
| 2024 | 13723 | CONSERVE - CONSERVATION FUTURES | $12.05 | $12.05 | $0.00 | $0.00 | $24.10 | $0.00 |
| 2024 | 13723 | COROADS - COUNTY ROADS (ROADS, DIV TO CE) | $323.41 | $323.40 | $0.00 | $0.00 | $646.81 | $0.00 |
| 2024 | 13723 | PORTPT - PORT DISTRICT | $166.01 | $166.00 | $0.00 | $0.00 | $332.01 | $0.00 |
| 2024 | 13723 | PUD1 - PUD #1 | $26.40 | $26.40 | $0.00 | $0.00 | $52.80 | $0.00 |
| 2024 | 13723 | LIB1 - LIBRARY DIST #1 | $125.12 | $125.12 | $0.00 | $0.00 | $250.24 | $0.00 |
| 2024 | 13723 | HD2 - HOSP DIST #2 | $23.45 | $23.45 | $0.00 | $0.00 | $46.90 | $0.00 |
| 2024 | 13723 | SD49 - SCHOOL DIST #49 | $419.42 | $419.41 | $0.00 | $0.00 | $838.83 | $0.00 |
| 2024 | 13723 | FD1 - FIRE DISTRICT #1 | $531.42 | $531.42 | $0.00 | $0.00 | $1062.84 | $0.00 |
| 2024 | 13723 | EMS1 - FIRE DIST #1 EMS | $202.99 | $202.98 | $0.00 | $0.00 | $405.97 | $0.00 |
| 2024 | 13723 | JCCD - JC Conservation District | $2.55 | $2.55 | $0.00 | $0.00 | $5.10 | $0.00 |
| 2024 | 13723 | NWA - Noxious Weed Assessment | $2.15 | $2.15 | $0.00 | $0.00 | $4.30 | $0.00 |
| 2024 | 13723 | TOTAL: | $3176.14 | $3176.07 | $0.00 | $0.00 | $6352.21 | $0.00 |
|
| 2024 | 13723 | $3176.14 | $3176.07 | $0.00 | $0.00 | $6352.21 | $0.00 |
Statement Details |
| 2023 | 13746 | STATE - STATE LEVY (SCHOOL) | $918.51 | $918.50 | $0.00 | $0.00 | $1837.01 | $0.00 |
| 2023 | 13746 | COUNTY - COUNTY LEVIES (CE, DD, VET, MH) | $400.82 | $400.79 | $0.00 | $0.00 | $801.61 | $0.00 |
| 2023 | 13746 | CONSERVE - CONSERVATION FUTURES | $12.02 | $12.02 | $0.00 | $0.00 | $24.04 | $0.00 |
| 2023 | 13746 | COROADS - COUNTY ROADS (ROADS, DIV TO CE) | $324.28 | $324.28 | $0.00 | $0.00 | $648.56 | $0.00 |
| 2023 | 13746 | PORTPT - PORT DISTRICT | $168.84 | $168.84 | $0.00 | $0.00 | $337.68 | $0.00 |
| 2023 | 13746 | PUD1 - PUD #1 | $26.57 | $26.57 | $0.00 | $0.00 | $53.14 | $0.00 |
| 2023 | 13746 | LIB1 - LIBRARY DIST #1 | $125.46 | $125.46 | $0.00 | $0.00 | $250.92 | $0.00 |
| 2023 | 13746 | HD2 - HOSP DIST #2 | $23.40 | $23.38 | $0.00 | $0.00 | $46.78 | $0.00 |
| 2023 | 13746 | SD49 - SCHOOL DIST #49 | $429.36 | $429.34 | $0.00 | $0.00 | $858.70 | $0.00 |
| 2023 | 13746 | FD3 - FIRE DISTRICT #3 | $398.75 | $398.74 | $0.00 | $0.00 | $797.49 | $0.00 |
| 2023 | 13746 | EMS3 - FIRE DIST #3 EMS | $142.55 | $142.55 | $0.00 | $0.00 | $285.10 | $0.00 |
| 2023 | 13746 | JCCD - JC Conservation District | $2.55 | $2.55 | $0.00 | $0.00 | $5.10 | $0.00 |
| 2023 | 13746 | NWA - Noxious Weed Assessment | $2.15 | $2.15 | $0.00 | $0.00 | $4.30 | $0.00 |
| 2023 | 13746 | TOTAL: | $2975.26 | $2975.17 | $0.00 | $0.00 | $5950.43 | $0.00 |
|
| 2023 | 13746 | $2975.26 | $2975.17 | $0.00 | $0.00 | $5950.43 | $0.00 |
Values
| (+) Improvement Homesite Value: | + | $0 | |
| (+) Improvement Non-Homesite Value: | + | $611,930 | |
| (+) Land Homesite Value: | + | $0 | |
| (+) Land Non-Homesite Value: | + | $215,250 | |
| (+) Curr Use (HS): | + | $0 | $0 |
| (+) Curr Use (NHS): | + | $0 | $0 |
| | | -------------------------- | |
| (=) Market Value: | = | $827,180 | |
| (–) Productivity Loss: | – | $0 | |
| | | -------------------------- | |
| (=) Subtotal: | = | $827,180 | |
| (+) Senior Appraised Value: | + | $0 | |
| (+) Non-Senior Appraised Value: | + | $827,180 | |
| | | -------------------------- | |
| (=) Total Appraised Value: | = | $827,180 | |
| (–) Senior Exemption Loss: | – | $0 | |
| (–) Exemption Loss: | – | $0 | |
| | | -------------------------- | |
| (=) Taxable Value: | = | $827,180 | |
Taxing Jurisdiction
| Owner: | ERIC & MARGARET SALMASSY LIVING TRUST | | |
| % Ownership: | 100.0000000000% | | |
| Total Value: | $827,180 | | |
| Tax Area: | 0213 - 1-49F1E1H2L1 |
| CE | COUNTY CURRENT EXPENSE | 0.9034619479 | $827,180 | $827,180 | $747.33 | | |
| CNTYDD | DEVELOPMENTAL DISABILITIES | 0.0052121823 | $827,180 | $827,180 | $4.31 | | |
| CNTYVET | VETERANS RELIEF | 0.0052777810 | $827,180 | $827,180 | $4.37 | | |
| MENTAL | MENTAL HEALTH | 0.0052121823 | $827,180 | $827,180 | $4.31 | | |
| ROADS | COUNTY ROADS | 0.7415066410 | $827,180 | $827,180 | $613.36 | | |
| ROADSCU | COUNTY ROADS TO CUR EXP | 0.0000000000 | $827,180 | $827,180 | $0.00 | | |
| HOSP2CASH | HOSP DIST #2 GENERAL | 0.0536075306 | $827,180 | $827,180 | $44.34 | | |
| SCH49CP | SCHOOL DIST #49 CAP PROJ | 0.6279093905 | $827,180 | $827,180 | $519.39 | | |
| SCH49MO | SCHOOL DIST #49 EP & O | 0.6376483602 | $827,180 | $827,180 | $527.45 | | |
| CONSERVE | CONSERVATION FUTURES | 0.0275621078 | $827,180 | $827,180 | $22.80 | | |
| EMS1 | FIRE DIST #1 EMS | 0.4679948282 | $827,180 | $827,180 | $387.12 | | |
| FD1 | FIRE DIST #1 GENERAL | 1.2171942929 | $827,180 | $827,180 | $1,006.84 | | |
| LIB1 | LIBRARY DIST #1 GENERAL | 0.2868827388 | $827,180 | $827,180 | $237.30 | | |
| PORTPT | PORT OF PT GENERAL | 0.1134941229 | $827,180 | $827,180 | $93.88 | | |
| PORTPTIDD | PORT OF PT IDD 2019 | 0.2577346692 | $827,180 | $827,180 | $213.19 | | |
| PUD1 | PUD #1 GENERAL | 0.0597888892 | $827,180 | $827,180 | $49.46 | | |
| STATE | STATE SCHOOL PART 1 | 1.4940692947 | $827,180 | $827,180 | $1,235.86 | | |
| STATE2 | STATE SCHOOL PART 2 | 0.8050170049 | $827,180 | $827,180 | $665.89 | | |
| | Total Tax Rate: | 7.7095739644 | | | | | |
| | | | | Taxes w/Current Exemptions: | $6,377.20 | | |
| | | | | Taxes w/o Exemptions: | $6,377.20 | | |
Improvement / Building
| Improvement #1: | Residential Bldg | State Code: | 11 | 2269.0 sqft | Value: | $611,930 |
| Bathrooms (#): | 3 (FULL) | Bedrooms (#): | 3 | | Exterior Wall: | SI/ST | Fireplace: | SIN 1-GOOD | | Floor Construction: | FRAME | Foundation: | CONPR | | Heating/Cooling: | F/A | Inside Verify: | YES-FIX | | Roof Cover: | SHNGL |   |   |
|
| | Type | Description | Class CD | Sub Class CD | Year Built | Area |
| | MA | Main Area | 5- | 15SF | 1991 | 1736.0 |
| | MA2 | Second Floor Main Area | 5- | 15SF | 1991 | 533.0 |
| | HCPOR | House Concrete Porch | 5 | 15SF | 1991 | 68.0 |
| | HDECK | House Deck | 5 | 15SF | 1991 | 476.0 |
| | GATT | House Attached Garage | 5 | 15SF | 1991 | 524.0 |
Sketch
Property Image
Land
| 1 | 3349-1143L | | 0.0000 | 0.00 | 0.00 | 0.00 | 1.00 | $215,250 | $0 |
Roll Value History
| 2026 | N/A | N/A | N/A | N/A | N/A |
| 2025 | $611,930 | $215,250 | $0 | $827,180 | $827,180 |
| 2024 | $611,930 | $215,250 | $0 | $827,180 | $827,180 |
| 2023 | $611,930 | $200,000 | $0 | $811,930 | $811,930 |
| 2022 | $585,324 | $195,000 | $0 | $780,324 | $780,324 |
Deed and Sales History
| 1 | 03/14/2022 | SWD | Statutory Warranty Deed | LILLIAN THERESE LEUNG TRUST | ERIC & MARGARET SALMASSY LIVING TRUST | | | $848,000.00 | 138732 | |
| 2 | 08/28/2017 | SWD | Statutory Warranty Deed | STEVEN B SHANKLIN | LILLIAN THERESE LEUNG TRUST | | | $583,000.00 | 128456 | |
| 3 | 04/01/2003 | SWD | Statutory Warranty Deed | LEWIS, CLYDE/DONNA | SHANKLIN, S/ROBINSON, S | 0 | 0 | $329,900.00 | 96995 | 0 |
Payout Agreement
| No payout information available.. |