Property
Account |
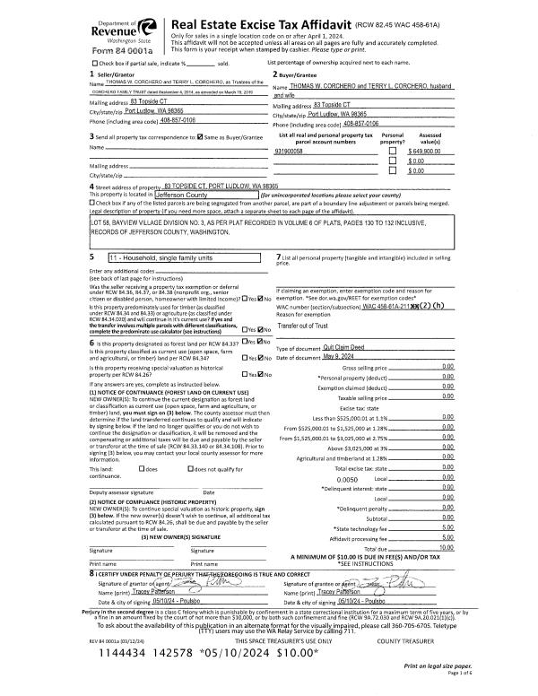
| Property ID: | 24248 | Abbreviated Legal Description: | BAYVIEW VILLAGE DIV 3 LOT 58 |
| Parcel # / Geo ID: | 931900058 | Agent Code: | |
| Type: | Real | | |
| Tax Area: | 0213 - 1-49F1E1H2L1 | Land Use Code | 11 |
| Open Space: | N | DFL | N |
| Historic Property: | N | Remodel Property: | N |
| Multi-Family Redevelopment: | N | | |
| Township: | 28N | Section: | 16 |
| Range: | 1E |
Location |
| Address: | 83 TOPSIDE CT PORT LUDLOW, WA 98365 | Mapsco: | 004/018 |
| Neighborhood: | BAYVIEW VILLAGE DIVISIONS 1 AND 3 (& 2 THRU 2024) | Map ID: | |
| Neighborhood CD: | 3349 |
Owner |
| Name: | THOMAS W & TERRY L CORCHERO | Owner ID: | 110792 |
| Mailing Address: | 83 TOPSIDE CT PORT LUDLOW, WA 98365-9563 | % Ownership: | 100.0000000000% |
| | | Exemptions: | |
Pay Tax Due
There is currently No Amount Due on this property.
Taxes and Assessment Details
Property Tax Information as of
03/10/2026
Click on "Statement Details" to expand or collapse a tax statement.
* Please enter a valid date ** Please enter a valid date *
Statement Details |
| | TOTAL: | $0.00 | $0.00 | $0.00 | $0.00 | $0.00 | $0.00 |
|
| | $0.00 | $0.00 | $0.00 | $0.00 | $0.00 | $0.00 |
Values
| (+) Improvement Homesite Value: | + | $0 | |
| (+) Improvement Non-Homesite Value: | + | $479,900 | |
| (+) Land Homesite Value: | + | $0 | |
| (+) Land Non-Homesite Value: | + | $183,750 | |
| (+) Curr Use (HS): | + | $0 | $0 |
| (+) Curr Use (NHS): | + | $0 | $0 |
| | | -------------------------- | |
| (=) Market Value: | = | $663,650 | |
| (–) Productivity Loss: | – | $0 | |
| | | -------------------------- | |
| (=) Subtotal: | = | $663,650 | |
| (+) Senior Appraised Value: | + | $0 | |
| (+) Non-Senior Appraised Value: | + | $663,650 | |
| | | -------------------------- | |
| (=) Total Appraised Value: | = | $663,650 | |
| (–) Senior Exemption Loss: | – | $0 | |
| (–) Exemption Loss: | – | $0 | |
| | | -------------------------- | |
| (=) Taxable Value: | = | $663,650 | |
Taxing Jurisdiction
| Owner: | THOMAS W & TERRY L CORCHERO | | |
| % Ownership: | 100.0000000000% | | |
| Total Value: | $663,650 | | |
| Tax Area: | 0213 - 1-49F1E1H2L1 |
| CE | COUNTY CURRENT EXPENSE | 0.9034619479 | $663,650 | $663,650 | $599.58 | | |
| CNTYDD | DEVELOPMENTAL DISABILITIES | 0.0052121823 | $663,650 | $663,650 | $3.46 | | |
| CNTYVET | VETERANS RELIEF | 0.0052777810 | $663,650 | $663,650 | $3.50 | | |
| MENTAL | MENTAL HEALTH | 0.0052121823 | $663,650 | $663,650 | $3.46 | | |
| ROADS | COUNTY ROADS | 0.7415066410 | $663,650 | $663,650 | $492.10 | | |
| ROADSCU | COUNTY ROADS TO CUR EXP | 0.0000000000 | $663,650 | $663,650 | $0.00 | | |
| HOSP2CASH | HOSP DIST #2 GENERAL | 0.0536075306 | $663,650 | $663,650 | $35.58 | | |
| SCH49CP | SCHOOL DIST #49 CAP PROJ | 0.6279093905 | $663,650 | $663,650 | $416.71 | | |
| SCH49MO | SCHOOL DIST #49 EP & O | 0.6376483602 | $663,650 | $663,650 | $423.18 | | |
| CONSERVE | CONSERVATION FUTURES | 0.0275621078 | $663,650 | $663,650 | $18.29 | | |
| EMS1 | FIRE DIST #1 EMS | 0.4679948282 | $663,650 | $663,650 | $310.58 | | |
| FD1 | FIRE DIST #1 GENERAL | 1.2171942929 | $663,650 | $663,650 | $807.79 | | |
| LIB1 | LIBRARY DIST #1 GENERAL | 0.2868827388 | $663,650 | $663,650 | $190.39 | | |
| PORTPT | PORT OF PT GENERAL | 0.1134941229 | $663,650 | $663,650 | $75.32 | | |
| PORTPTIDD | PORT OF PT IDD 2019 | 0.2577346692 | $663,650 | $663,650 | $171.05 | | |
| PUD1 | PUD #1 GENERAL | 0.0597888892 | $663,650 | $663,650 | $39.68 | | |
| STATE | STATE SCHOOL PART 1 | 1.4940692947 | $663,650 | $663,650 | $991.54 | | |
| STATE2 | STATE SCHOOL PART 2 | 0.8050170049 | $663,650 | $663,650 | $534.25 | | |
| | Total Tax Rate: | 7.7095739644 | | | | | |
| | | | | Taxes w/Current Exemptions: | $5,116.46 | | |
| | | | | Taxes w/o Exemptions: | $5,116.46 | | |
Improvement / Building
| Improvement #1: | Residential Bldg | State Code: | 11 | 1716.0 sqft | Value: | $479,900 |
| Bathrooms (#): | 2 (FULL) | Bedrooms (#): | 2 | | Exterior Wall: | SI/ST | Fireplace: | SIN 1-GOOD | | Floor Construction: | FRAME | Foundation: | CONPR | | Heating/Cooling: | F/A | Inside Verify: | YES | | Roof Cover: | COMP |   |   |
|
| | Type | Description | Class CD | Sub Class CD | Year Built | Area |
| | MA | Main Area | 5- | 1S | 1991 | 1716.0 |
| | HCPOR | House Concrete Porch | 5 | * | 1991 | 120.0 |
| | HDECK | House Deck | 5 | * | 1991 | 342.0 |
| | GATT | House Attached Garage | 5 | 1S | 1991 | 776.0 |
Sketch
Property Image
Land
| 1 | 3349-1145L | Good Wtr View Lots Bayview Village | 0.0000 | 0.00 | 0.00 | 0.00 | 1.00 | $183,750 | $0 |
Roll Value History
| 2026 | N/A | N/A | N/A | N/A | N/A |
| 2025 | $479,900 | $183,750 | $0 | $663,650 | $663,650 |
| 2024 | $479,900 | $183,750 | $0 | $663,650 | $663,650 |
| 2023 | $479,900 | $170,000 | $0 | $649,900 | $649,900 |
| 2022 | $459,034 | $165,000 | $0 | $624,034 | $624,034 |
Deed and Sales History
| 1 | 05/09/2024 | QCD | Quit Claim Deed | CORCHERO FAMILY TRUST | THOMAS W & TERRY L CORCHERO | | | | 142578 | |
| 2 | 05/19/2021 | SWD | Statutory Warranty Deed | DAVID E & JENNIFER L HOUTEN | CORCHERO FAMILY TRUST | | | $590,000.00 | 136803 | |
| 3 | 09/26/2014 | SWD | Statutory Warranty Deed | WILLIAM R CLARDY TRUSTEE | DAVID E & JENNIFER L HOUTEN | | | $318,250.00 | 122019 | |
| 4 | 02/05/1999 | QCD | Quit Claim Deed | CLARDY, WILLIAM R/MARY P | CLARDY, WILLIAM R & MARY P/TR | 0 | 0 | $0.00 | 86340 | 0 |
Payout Agreement
| No payout information available.. |