Property
Account |
| Property ID: | 24328 | Abbreviated Legal Description: | BELLEVIEW BLK 12 LOTS 6(S1/2), 7 & 10 |
| Parcel # / Geo ID: | 932101204 | Agent Code: | |
| Type: | Real | | |
| Tax Area: | 0441 - 1-46F4E4H2C1L1P2 | Land Use Code | 91 |
| Open Space: | N | DFL | N |
| Historic Property: | N | Remodel Property: | N |
| Multi-Family Redevelopment: | N | | |
| Township: | 25N | Section: | 29 |
| Range: | 2W |
Location |
| Address: | | Mapsco: | 002/009 |
| Neighborhood: | BELLEVIEW | Map ID: | |
| Neighborhood CD: | 1287 |
Owner |
| Name: | MICHAEL CALLAHAN | Owner ID: | 110986 |
| Mailing Address: | 218 MARK E REED WAY UNIT 781 SHELTON, WA 98584-5742 | % Ownership: | 100.0000000000% |
| | | Exemptions: | |
Pay Tax Due
Select the appropriate checkbox next to the year to be paid. Multiple years may be selected.
*Convenience Fee not included
Taxes and Assessment Details
Property Tax Information as of
03/11/2026
Click on "Statement Details" to expand or collapse a tax statement.
* Please enter a valid date ** Please enter a valid date *
Statement Details |
| 2026 | 13751 | STATE - STATE LEVY (SCHOOL) | $1.94 | $1.92 | $0.00 | $0.00 | $0.00 | $3.86 |
| 2026 | 13751 | COUNTY - COUNTY LEVIES (CE, DD, VET, MH) | $0.79 | $0.76 | $0.00 | $0.00 | $0.00 | $1.55 |
| 2026 | 13751 | CONSERVE - CONSERVATION FUTURES | $0.03 | $0.02 | $0.00 | $0.00 | $0.00 | $0.05 |
| 2026 | 13751 | COROADS - COUNTY ROADS (ROADS, DIV TO CE) | $0.63 | $0.62 | $0.00 | $0.00 | $0.00 | $1.25 |
| 2026 | 13751 | PORTPT - PORT DISTRICT | $0.32 | $0.30 | $0.00 | $0.00 | $0.00 | $0.62 |
| 2026 | 13751 | PUD1 - PUD #1 | $0.05 | $0.05 | $0.00 | $0.00 | $0.00 | $0.10 |
| 2026 | 13751 | LIB1 - LIBRARY DIST #1 | $0.24 | $0.24 | $0.00 | $0.00 | $0.00 | $0.48 |
| 2026 | 13751 | HD2 - HOSP DIST #2 | $0.05 | $0.04 | $0.00 | $0.00 | $0.00 | $0.09 |
| 2026 | 13751 | SD46 - SCHOOL DIST #46 | $0.58 | $0.58 | $0.00 | $0.00 | $0.00 | $1.16 |
| 2026 | 13751 | FD4 - FIRE DISTRICT #4 | $1.40 | $1.40 | $0.00 | $0.00 | $0.00 | $2.80 |
| 2026 | 13751 | EMS4 - FIRE DIST #4 EMS | $0.39 | $0.39 | $0.00 | $0.00 | $0.00 | $0.78 |
| 2026 | 13751 | CEM1 - CEMETERY DIST #1 | $0.01 | $0.01 | $0.00 | $0.00 | $0.00 | $0.02 |
| 2026 | 13751 | FPLCA - DNR Landowner Contingency Assmt | $3.00 | $3.00 | $0.00 | $0.00 | $0.00 | $6.00 |
| 2026 | 13751 | JCCD - JC Conservation District | $2.53 | $2.53 | $0.00 | $0.00 | $0.00 | $5.06 |
| 2026 | 13751 | NWA - Noxious Weed Assessment | $2.98 | $2.97 | $0.00 | $0.00 | $0.00 | $5.95 |
| 2026 | 13751 | WAT - Clean Water District | $13.00 | $13.00 | $0.00 | $0.00 | $0.00 | $26.00 |
| 2026 | 13751 | TOTAL: | $27.94 | $27.83 | $0.00 | $0.00 | $0.00 | $55.77 |
|
| 2026 | 13751 | $27.94 | $27.83 | $0.00 | $0.00 | $0.00 | $55.77 |
Statement Details |
| 2025 | 13777 | STATE - STATE LEVY (SCHOOL) | $1.92 | $1.91 | $0.00 | $0.00 | $3.83 | $0.00 |
| 2025 | 13777 | COUNTY - COUNTY LEVIES (CE, DD, VET, MH) | $0.77 | $0.74 | $0.00 | $0.00 | $1.51 | $0.00 |
| 2025 | 13777 | CONSERVE - CONSERVATION FUTURES | $0.03 | $0.02 | $0.00 | $0.00 | $0.05 | $0.00 |
| 2025 | 13777 | COROADS - COUNTY ROADS (ROADS, DIV TO CE) | $0.61 | $0.60 | $0.00 | $0.00 | $1.21 | $0.00 |
| 2025 | 13777 | PORTPT - PORT DISTRICT | $0.32 | $0.30 | $0.00 | $0.00 | $0.62 | $0.00 |
| 2025 | 13777 | PUD1 - PUD #1 | $0.05 | $0.05 | $0.00 | $0.00 | $0.10 | $0.00 |
| 2025 | 13777 | LIB1 - LIBRARY DIST #1 | $0.24 | $0.23 | $0.00 | $0.00 | $0.47 | $0.00 |
| 2025 | 13777 | HD2 - HOSP DIST #2 | $0.05 | $0.04 | $0.00 | $0.00 | $0.09 | $0.00 |
| 2025 | 13777 | SD46 - SCHOOL DIST #46 | $0.51 | $0.50 | $0.00 | $0.00 | $1.01 | $0.00 |
| 2025 | 13777 | FD4 - FIRE DISTRICT #4 | $1.42 | $1.40 | $0.00 | $0.00 | $2.82 | $0.00 |
| 2025 | 13777 | EMS4 - FIRE DIST #4 EMS | $0.39 | $0.39 | $0.00 | $0.00 | $0.78 | $0.00 |
| 2025 | 13777 | CEM1 - CEMETERY DIST #1 | $0.01 | $0.01 | $0.00 | $0.00 | $0.02 | $0.00 |
| 2025 | 13777 | FPLCA - DNR Landowner Contingency Assmt | $3.00 | $3.00 | $0.00 | $0.00 | $6.00 | $0.00 |
| 2025 | 13777 | JCCD - JC Conservation District | $2.53 | $2.53 | $0.00 | $0.00 | $5.06 | $0.00 |
| 2025 | 13777 | NWA - Noxious Weed Assessment | $2.15 | $2.15 | $0.00 | $0.00 | $4.30 | $0.00 |
| 2025 | 13777 | WAT - Clean Water District | $13.00 | $13.00 | $0.00 | $0.00 | $26.00 | $0.00 |
| 2025 | 13777 | TOTAL: | $27.00 | $26.87 | $0.00 | $0.00 | $53.87 | $0.00 |
|
| 2025 | 13777 | $27.00 | $26.87 | $0.00 | $0.00 | $53.87 | $0.00 |
Statement Details |
| 2024 | 13806 | STATE - STATE LEVY (SCHOOL) | $1.86 | $1.84 | $0.00 | $0.00 | $3.70 | $0.00 |
| 2024 | 13806 | COUNTY - COUNTY LEVIES (CE, DD, VET, MH) | $0.81 | $0.78 | $0.00 | $0.00 | $1.59 | $0.00 |
| 2024 | 13806 | CONSERVE - CONSERVATION FUTURES | $0.03 | $0.02 | $0.00 | $0.00 | $0.05 | $0.00 |
| 2024 | 13806 | COROADS - COUNTY ROADS (ROADS, DIV TO CE) | $0.64 | $0.64 | $0.00 | $0.00 | $1.28 | $0.00 |
| 2024 | 13806 | PORTPT - PORT DISTRICT | $0.33 | $0.33 | $0.00 | $0.00 | $0.66 | $0.00 |
| 2024 | 13806 | PUD1 - PUD #1 | $0.05 | $0.05 | $0.00 | $0.00 | $0.10 | $0.00 |
| 2024 | 13806 | LIB1 - LIBRARY DIST #1 | $0.25 | $0.24 | $0.00 | $0.00 | $0.49 | $0.00 |
| 2024 | 13806 | HD2 - HOSP DIST #2 | $0.05 | $0.04 | $0.00 | $0.00 | $0.09 | $0.00 |
| 2024 | 13806 | SD46 - SCHOOL DIST #46 | $0.56 | $0.55 | $0.00 | $0.00 | $1.11 | $0.00 |
| 2024 | 13806 | FD4 - FIRE DISTRICT #4 | $1.44 | $1.43 | $0.00 | $0.00 | $2.87 | $0.00 |
| 2024 | 13806 | EMS4 - FIRE DIST #4 EMS | $0.40 | $0.40 | $0.00 | $0.00 | $0.80 | $0.00 |
| 2024 | 13806 | CEM1 - CEMETERY DIST #1 | $0.01 | $0.01 | $0.00 | $0.00 | $0.02 | $0.00 |
| 2024 | 13806 | FPLCA - DNR Landowner Contingency Assmt | $3.00 | $3.00 | $0.00 | $0.00 | $6.00 | $0.00 |
| 2024 | 13806 | JCCD - JC Conservation District | $2.53 | $2.53 | $0.00 | $0.00 | $5.06 | $0.00 |
| 2024 | 13806 | NWA - Noxious Weed Assessment | $2.15 | $2.15 | $0.00 | $0.00 | $4.30 | $0.00 |
| 2024 | 13806 | WAT - Clean Water District | $12.50 | $12.50 | $0.00 | $0.00 | $25.00 | $0.00 |
| 2024 | 13806 | TOTAL: | $26.61 | $26.51 | $0.00 | $0.00 | $53.12 | $0.00 |
|
| 2024 | 13806 | $26.61 | $26.51 | $0.00 | $0.00 | $53.12 | $0.00 |
Statement Details |
| 2023 | 13829 | STATE - STATE LEVY (SCHOOL) | $1.89 | $1.87 | $0.00 | $0.00 | $3.76 | $0.00 |
| 2023 | 13829 | COUNTY - COUNTY LEVIES (CE, DD, VET, MH) | $0.84 | $0.81 | $0.00 | $0.00 | $1.65 | $0.00 |
| 2023 | 13829 | CONSERVE - CONSERVATION FUTURES | $0.03 | $0.02 | $0.00 | $0.00 | $0.05 | $0.00 |
| 2023 | 13829 | COROADS - COUNTY ROADS (ROADS, DIV TO CE) | $0.67 | $0.66 | $0.00 | $0.00 | $1.33 | $0.00 |
| 2023 | 13829 | PORTPT - PORT DISTRICT | $0.35 | $0.34 | $0.00 | $0.00 | $0.69 | $0.00 |
| 2023 | 13829 | PUD1 - PUD #1 | $0.06 | $0.05 | $0.00 | $0.00 | $0.11 | $0.00 |
| 2023 | 13829 | LIB1 - LIBRARY DIST #1 | $0.26 | $0.25 | $0.00 | $0.00 | $0.51 | $0.00 |
| 2023 | 13829 | HD2 - HOSP DIST #2 | $0.05 | $0.04 | $0.00 | $0.00 | $0.09 | $0.00 |
| 2023 | 13829 | SD46 - SCHOOL DIST #46 | $0.62 | $0.61 | $0.00 | $0.00 | $1.23 | $0.00 |
| 2023 | 13829 | FD4 - FIRE DISTRICT #4 | $1.02 | $1.02 | $0.00 | $0.00 | $2.04 | $0.00 |
| 2023 | 13829 | EMS4 - FIRE DIST #4 EMS | $0.29 | $0.29 | $0.00 | $0.00 | $0.58 | $0.00 |
| 2023 | 13829 | CEM1 - CEMETERY DIST #1 | $0.01 | $0.01 | $0.00 | $0.00 | $0.02 | $0.00 |
| 2023 | 13829 | FPLCA - DNR Landowner Contingency Assmt | $3.00 | $3.00 | $0.00 | $0.00 | $6.00 | $0.00 |
| 2023 | 13829 | JCCD - JC Conservation District | $2.53 | $2.53 | $0.00 | $0.00 | $5.06 | $0.00 |
| 2023 | 13829 | NWA - Noxious Weed Assessment | $2.15 | $2.15 | $0.00 | $0.00 | $4.30 | $0.00 |
| 2023 | 13829 | WAT - Clean Water District | $12.00 | $12.00 | $0.00 | $0.00 | $24.00 | $0.00 |
| 2023 | 13829 | TOTAL: | $25.77 | $25.65 | $0.00 | $0.00 | $51.42 | $0.00 |
|
| 2023 | 13829 | $25.77 | $25.65 | $0.00 | $0.00 | $51.42 | $0.00 |
Values
| (+) Improvement Homesite Value: | + | $0 | |
| (+) Improvement Non-Homesite Value: | + | $0 | |
| (+) Land Homesite Value: | + | $0 | |
| (+) Land Non-Homesite Value: | + | $1,680 | |
| (+) Curr Use (HS): | + | $0 | $0 |
| (+) Curr Use (NHS): | + | $0 | $0 |
| | | -------------------------- | |
| (=) Market Value: | = | $1,680 | |
| (–) Productivity Loss: | – | $0 | |
| | | -------------------------- | |
| (=) Subtotal: | = | $1,680 | |
| (+) Senior Appraised Value: | + | $0 | |
| (+) Non-Senior Appraised Value: | + | $1,680 | |
| | | -------------------------- | |
| (=) Total Appraised Value: | = | $1,680 | |
| (–) Senior Exemption Loss: | – | $0 | |
| (–) Exemption Loss: | – | $0 | |
| | | -------------------------- | |
| (=) Taxable Value: | = | $1,680 | |
Taxing Jurisdiction
| Owner: | MICHAEL CALLAHAN | | |
| % Ownership: | 100.0000000000% | | |
| Total Value: | $1,680 | | |
| Tax Area: | 0441 - 1-46F4E4H2C1L1P2 |
| CE | COUNTY CURRENT EXPENSE | 0.9034619479 | $1,680 | $1,680 | $1.52 | | |
| CNTYDD | DEVELOPMENTAL DISABILITIES | 0.0052121823 | $1,680 | $1,680 | $0.01 | | |
| CNTYVET | VETERANS RELIEF | 0.0052777810 | $1,680 | $1,680 | $0.01 | | |
| MENTAL | MENTAL HEALTH | 0.0052121823 | $1,680 | $1,680 | $0.01 | | |
| ROADS | COUNTY ROADS | 0.7415066410 | $1,680 | $1,680 | $1.25 | | |
| ROADSCU | COUNTY ROADS TO CUR EXP | 0.0000000000 | $1,680 | $1,680 | $0.00 | | |
| HOSP2CASH | HOSP DIST #2 GENERAL | 0.0536075306 | $1,680 | $1,680 | $0.09 | | |
| SCH46MO | SCHOOL DIST #46 EP & O | 0.6890207067 | $1,680 | $1,680 | $1.16 | | |
| CEM1 | CEMETERY DIST #1 GENERAL | 0.0107168292 | $1,680 | $1,680 | $0.02 | | |
| CONSERVE | CONSERVATION FUTURES | 0.0275621078 | $1,680 | $1,680 | $0.05 | | |
| EMS4 | FIRE DIST #4 EMS | 0.4644216158 | $1,680 | $1,680 | $0.78 | | |
| FD4 | FIRE DIST #4 GENERAL | 1.3939598390 | $1,680 | $1,680 | $2.34 | | |
| FD4BOND | FIRE DIST #4 BOND 2019 | 0.2748466981 | $1,680 | $1,680 | $0.46 | | |
| LIB1 | LIBRARY DIST #1 GENERAL | 0.2868827388 | $1,680 | $1,680 | $0.48 | | |
| PORTPT | PORT OF PT GENERAL | 0.1134941229 | $1,680 | $1,680 | $0.19 | | |
| PORTPTIDD | PORT OF PT IDD 2019 | 0.2577346692 | $1,680 | $1,680 | $0.43 | | |
| PUD1 | PUD #1 GENERAL | 0.0597888892 | $1,680 | $1,680 | $0.10 | | |
| STATE | STATE SCHOOL PART 1 | 1.4940692947 | $1,680 | $1,680 | $2.51 | | |
| STATE2 | STATE SCHOOL PART 2 | 0.8050170049 | $1,680 | $1,680 | $1.35 | | |
| | Total Tax Rate: | 7.5917927814 | | | | | |
| | | | | Taxes w/Current Exemptions: | $12.76 | | |
| | | | | Taxes w/o Exemptions: | $12.76 | | |
Improvement / Building
Sketch
| No sketches available for this property. |
Property Image
Land
| 1 | 1287-1155L | | 0.0000 | 0.00 | 0.00 | 0.00 | 2.00 | $1,344 | $0 |
| 2 | 1287-1155L | | 0.0000 | 0.00 | 0.00 | 0.00 | 1.00 | $336 | $0 |
Roll Value History
| 2026 | N/A | N/A | N/A | N/A | N/A |
| 2025 | $0 | $1,680 | $0 | $1,680 | $1,680 |
| 2024 | $0 | $1,600 | $0 | $1,600 | $1,600 |
| 2023 | $0 | $1,600 | $0 | $1,600 | $1,600 |
| 2022 | $0 | $1,600 | $0 | $1,600 | $1,600 |
Deed and Sales History
| 1 | 06/12/2024 | SWD | Statutory Warranty Deed | JOSHUA S JOHNSTON | MICHAEL CALLAHAN | | | $35,000.00 | 142748 | |
|   | |
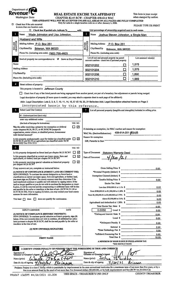
| 2 | 04/20/2021 | SWD | Statutory Warranty Deed | WADE R JOHNSTON | JOSHUA S JOHNSTON | | | | 136595 | |
| 3 | 04/06/2018 | REC | Real Estate Contract | MICHAEL GAJADHAR | WADE R JOHNSTON | | | $15,000.00 | 129876 | |
|   | |
Payout Agreement
| No payout information available.. |