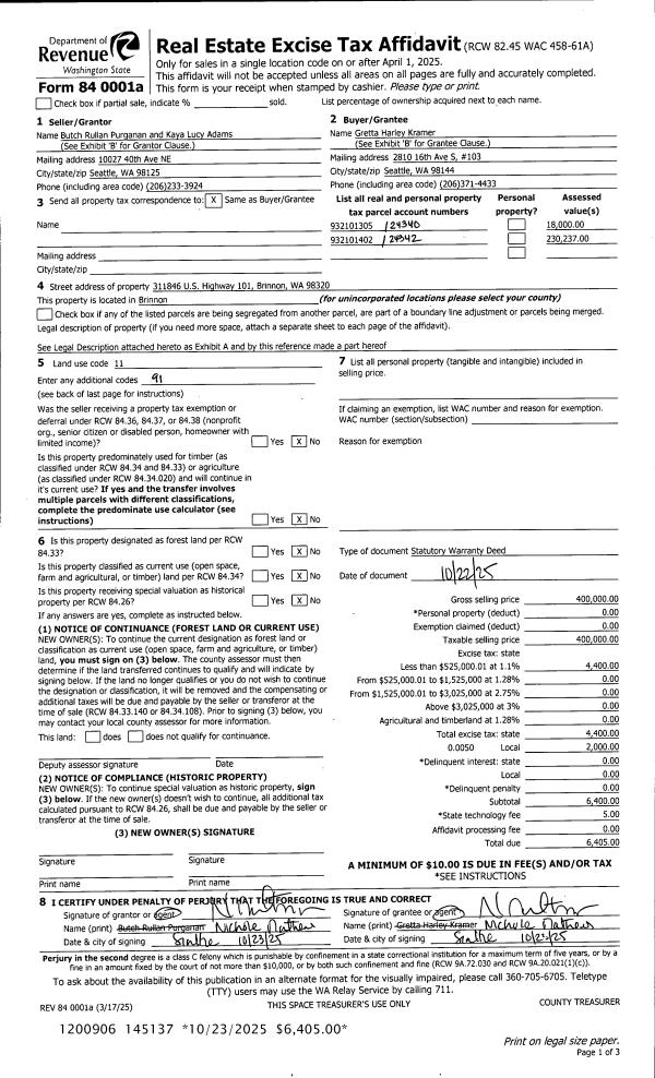
Property
Account |
| Property ID: | 24342 | Abbreviated Legal Description: | BELLEVIEW BLK 14 LOTS 13 THRU 18 BOUND BY BLA #91238 SUBJ TO REST COVT AFN#443878 |
| Parcel # / Geo ID: | 932101402 | Agent Code: | |
| Type: | Real | | |
| Tax Area: | 0441 - 1-46F4E4H2C1L1P2 | Land Use Code | 11 |
| Open Space: | N | DFL | N |
| Historic Property: | N | Remodel Property: | N |
| Multi-Family Redevelopment: | N | | |
| Township: | 25N | Section: | 29 |
| Range: | 2W |
Location |
| Address: | 311846 HIGHWAY 101 BRINNON, WA 98320 | Mapsco: | 002/035 |
| Neighborhood: | BELLEVIEW | Map ID: | |
| Neighborhood CD: | 1287 |
Owner |
| Name: | GRETTA H KRAMER | Owner ID: | 113556 |
| Mailing Address: | GLEN B LOGAN 2810 16TH AVE S APT 103 SEATTLE, WA 98144-5761 | % Ownership: | 100.0000000000% |
| | | Exemptions: | |
Pay Tax Due
Select the appropriate checkbox next to the year to be paid. Multiple years may be selected.
*Convenience Fee not included
Taxes and Assessment Details
Property Tax Information as of
03/11/2026
Click on "Statement Details" to expand or collapse a tax statement.
* Please enter a valid date ** Please enter a valid date *
Statement Details |
| 2026 | 13765 | STATE - STATE LEVY (SCHOOL) | $277.00 | $276.99 | $0.00 | $0.00 | $0.00 | $553.99 |
| 2026 | 13765 | COUNTY - COUNTY LEVIES (CE, DD, VET, MH) | $110.75 | $110.74 | $0.00 | $0.00 | $0.00 | $221.49 |
| 2026 | 13765 | CONSERVE - CONSERVATION FUTURES | $3.32 | $3.32 | $0.00 | $0.00 | $0.00 | $6.64 |
| 2026 | 13765 | COROADS - COUNTY ROADS (ROADS, DIV TO CE) | $89.34 | $89.33 | $0.00 | $0.00 | $0.00 | $178.67 |
| 2026 | 13765 | PORTPT - PORT DISTRICT | $44.73 | $44.72 | $0.00 | $0.00 | $0.00 | $89.45 |
| 2026 | 13765 | PUD1 - PUD #1 | $7.21 | $7.20 | $0.00 | $0.00 | $0.00 | $14.41 |
| 2026 | 13765 | LIB1 - LIBRARY DIST #1 | $34.57 | $34.56 | $0.00 | $0.00 | $0.00 | $69.13 |
| 2026 | 13765 | HD2 - HOSP DIST #2 | $6.46 | $6.46 | $0.00 | $0.00 | $0.00 | $12.92 |
| 2026 | 13765 | SD46 - SCHOOL DIST #46 | $83.02 | $83.01 | $0.00 | $0.00 | $0.00 | $166.03 |
| 2026 | 13765 | FD4 - FIRE DISTRICT #4 | $201.07 | $201.05 | $0.00 | $0.00 | $0.00 | $402.12 |
| 2026 | 13765 | EMS4 - FIRE DIST #4 EMS | $55.96 | $55.95 | $0.00 | $0.00 | $0.00 | $111.91 |
| 2026 | 13765 | CEM1 - CEMETERY DIST #1 | $1.29 | $1.29 | $0.00 | $0.00 | $0.00 | $2.58 |
| 2026 | 13765 | FP - DNR Forest Fire Protection Assmt | $8.50 | $8.50 | $0.00 | $0.00 | $0.00 | $17.00 |
| 2026 | 13765 | FPLCA - DNR Landowner Contingency Assmt | $3.00 | $3.00 | $0.00 | $0.00 | $0.00 | $6.00 |
| 2026 | 13765 | JCCD - JC Conservation District | $2.55 | $2.55 | $0.00 | $0.00 | $0.00 | $5.10 |
| 2026 | 13765 | NWA - Noxious Weed Assessment | $2.98 | $2.97 | $0.00 | $0.00 | $0.00 | $5.95 |
| 2026 | 13765 | OSS - On Site Septic | $23.10 | $23.10 | $0.00 | $0.00 | $0.00 | $46.20 |
| 2026 | 13765 | WAT - Clean Water District | $13.00 | $13.00 | $0.00 | $0.00 | $0.00 | $26.00 |
| 2026 | 13765 | FP ADMIN - FP ADMIN | $0.50 | $0.00 | $0.00 | $0.00 | $0.00 | $0.50 |
| 2026 | 13765 | TOTAL: | $968.35 | $967.74 | $0.00 | $0.00 | $0.00 | $1936.09 |
|
| 2026 | 13765 | $968.35 | $967.74 | $0.00 | $0.00 | $0.00 | $1936.09 |
Statement Details |
| 2025 | 13791 | STATE - STATE LEVY (SCHOOL) | $276.07 | $276.05 | $0.00 | $0.00 | $552.12 | $0.00 |
| 2025 | 13791 | COUNTY - COUNTY LEVIES (CE, DD, VET, MH) | $108.57 | $108.54 | $0.00 | $0.00 | $217.11 | $0.00 |
| 2025 | 13791 | CONSERVE - CONSERVATION FUTURES | $3.26 | $3.25 | $0.00 | $0.00 | $6.51 | $0.00 |
| 2025 | 13791 | COROADS - COUNTY ROADS (ROADS, DIV TO CE) | $86.97 | $86.97 | $0.00 | $0.00 | $173.94 | $0.00 |
| 2025 | 13791 | PORTPT - PORT DISTRICT | $44.31 | $44.29 | $0.00 | $0.00 | $88.60 | $0.00 |
| 2025 | 13791 | PUD1 - PUD #1 | $7.11 | $7.10 | $0.00 | $0.00 | $14.21 | $0.00 |
| 2025 | 13791 | LIB1 - LIBRARY DIST #1 | $33.65 | $33.65 | $0.00 | $0.00 | $67.30 | $0.00 |
| 2025 | 13791 | HD2 - HOSP DIST #2 | $6.34 | $6.33 | $0.00 | $0.00 | $12.67 | $0.00 |
| 2025 | 13791 | SD46 - SCHOOL DIST #46 | $72.97 | $72.96 | $0.00 | $0.00 | $145.93 | $0.00 |
| 2025 | 13791 | FD4 - FIRE DISTRICT #4 | $202.22 | $202.20 | $0.00 | $0.00 | $404.42 | $0.00 |
| 2025 | 13791 | EMS4 - FIRE DIST #4 EMS | $56.11 | $56.10 | $0.00 | $0.00 | $112.21 | $0.00 |
| 2025 | 13791 | CEM1 - CEMETERY DIST #1 | $1.30 | $1.30 | $0.00 | $0.00 | $2.60 | $0.00 |
| 2025 | 13791 | FP - DNR Forest Fire Protection Assmt | $8.50 | $8.50 | $0.00 | $0.00 | $17.00 | $0.00 |
| 2025 | 13791 | FPLCA - DNR Landowner Contingency Assmt | $3.00 | $3.00 | $0.00 | $0.00 | $6.00 | $0.00 |
| 2025 | 13791 | JCCD - JC Conservation District | $2.55 | $2.55 | $0.00 | $0.00 | $5.10 | $0.00 |
| 2025 | 13791 | NWA - Noxious Weed Assessment | $2.15 | $2.15 | $0.00 | $0.00 | $4.30 | $0.00 |
| 2025 | 13791 | OSS - On Site Septic | $21.50 | $21.50 | $0.00 | $0.00 | $43.00 | $0.00 |
| 2025 | 13791 | WAT - Clean Water District | $13.00 | $13.00 | $0.00 | $0.00 | $26.00 | $0.00 |
| 2025 | 13791 | FP ADMIN - FP ADMIN | $0.50 | $0.00 | $0.00 | $0.00 | $0.50 | $0.00 |
| 2025 | 13791 | TOTAL: | $950.08 | $949.44 | $0.00 | $0.00 | $1899.52 | $0.00 |
|
| 2025 | 13791 | $950.08 | $949.44 | $0.00 | $0.00 | $1899.52 | $0.00 |
Statement Details |
| 2024 | 13820 | STATE - STATE LEVY (SCHOOL) | $260.56 | $260.55 | $0.00 | $0.00 | $521.11 | $0.00 |
| 2024 | 13820 | COUNTY - COUNTY LEVIES (CE, DD, VET, MH) | $111.50 | $111.48 | $0.00 | $0.00 | $222.98 | $0.00 |
| 2024 | 13820 | CONSERVE - CONSERVATION FUTURES | $3.35 | $3.34 | $0.00 | $0.00 | $6.69 | $0.00 |
| 2024 | 13820 | COROADS - COUNTY ROADS (ROADS, DIV TO CE) | $89.72 | $89.71 | $0.00 | $0.00 | $179.43 | $0.00 |
| 2024 | 13820 | PORTPT - PORT DISTRICT | $46.06 | $46.04 | $0.00 | $0.00 | $92.10 | $0.00 |
| 2024 | 13820 | PUD1 - PUD #1 | $7.33 | $7.32 | $0.00 | $0.00 | $14.65 | $0.00 |
| 2024 | 13820 | LIB1 - LIBRARY DIST #1 | $34.71 | $34.71 | $0.00 | $0.00 | $69.42 | $0.00 |
| 2024 | 13820 | HD2 - HOSP DIST #2 | $6.51 | $6.50 | $0.00 | $0.00 | $13.01 | $0.00 |
| 2024 | 13820 | SD46 - SCHOOL DIST #46 | $78.22 | $78.22 | $0.00 | $0.00 | $156.44 | $0.00 |
| 2024 | 13820 | FD4 - FIRE DISTRICT #4 | $202.06 | $202.06 | $0.00 | $0.00 | $404.12 | $0.00 |
| 2024 | 13820 | EMS4 - FIRE DIST #4 EMS | $56.31 | $56.31 | $0.00 | $0.00 | $112.62 | $0.00 |
| 2024 | 13820 | CEM1 - CEMETERY DIST #1 | $1.32 | $1.31 | $0.00 | $0.00 | $2.63 | $0.00 |
| 2024 | 13820 | FP - DNR Forest Fire Protection Assmt | $8.50 | $8.50 | $0.00 | $0.00 | $17.00 | $0.00 |
| 2024 | 13820 | FPLCA - DNR Landowner Contingency Assmt | $3.00 | $3.00 | $0.00 | $0.00 | $6.00 | $0.00 |
| 2024 | 13820 | JCCD - JC Conservation District | $2.55 | $2.55 | $0.00 | $0.00 | $5.10 | $0.00 |
| 2024 | 13820 | NWA - Noxious Weed Assessment | $2.15 | $2.15 | $0.00 | $0.00 | $4.30 | $0.00 |
| 2024 | 13820 | OSS - On Site Septic | $21.00 | $21.00 | $0.00 | $0.00 | $42.00 | $0.00 |
| 2024 | 13820 | WAT - Clean Water District | $12.50 | $12.50 | $0.00 | $0.00 | $25.00 | $0.00 |
| 2024 | 13820 | FP ADMIN - FP ADMIN | $0.50 | $0.00 | $0.00 | $0.00 | $0.50 | $0.00 |
| 2024 | 13820 | TOTAL: | $947.85 | $947.25 | $0.00 | $0.00 | $1895.10 | $0.00 |
|
| 2024 | 13820 | $947.85 | $947.25 | $0.00 | $0.00 | $1895.10 | $0.00 |
Statement Details |
| 2023 | 13843 | STATE - STATE LEVY (SCHOOL) | $240.70 | $240.70 | $0.00 | $0.00 | $481.40 | $0.00 |
| 2023 | 13843 | COUNTY - COUNTY LEVIES (CE, DD, VET, MH) | $105.05 | $105.01 | $0.00 | $0.00 | $210.06 | $0.00 |
| 2023 | 13843 | CONSERVE - CONSERVATION FUTURES | $3.15 | $3.15 | $0.00 | $0.00 | $6.30 | $0.00 |
| 2023 | 13843 | COROADS - COUNTY ROADS (ROADS, DIV TO CE) | $84.99 | $84.97 | $0.00 | $0.00 | $169.96 | $0.00 |
| 2023 | 13843 | PORTPT - PORT DISTRICT | $44.25 | $44.24 | $0.00 | $0.00 | $88.49 | $0.00 |
| 2023 | 13843 | PUD1 - PUD #1 | $6.96 | $6.96 | $0.00 | $0.00 | $13.92 | $0.00 |
| 2023 | 13843 | LIB1 - LIBRARY DIST #1 | $32.88 | $32.88 | $0.00 | $0.00 | $65.76 | $0.00 |
| 2023 | 13843 | HD2 - HOSP DIST #2 | $6.13 | $6.13 | $0.00 | $0.00 | $12.26 | $0.00 |
| 2023 | 13843 | SD46 - SCHOOL DIST #46 | $78.56 | $78.56 | $0.00 | $0.00 | $157.12 | $0.00 |
| 2023 | 13843 | FD4 - FIRE DISTRICT #4 | $130.64 | $130.62 | $0.00 | $0.00 | $261.26 | $0.00 |
| 2023 | 13843 | EMS4 - FIRE DIST #4 EMS | $37.15 | $37.15 | $0.00 | $0.00 | $74.30 | $0.00 |
| 2023 | 13843 | CEM1 - CEMETERY DIST #1 | $1.32 | $1.31 | $0.00 | $0.00 | $2.63 | $0.00 |
| 2023 | 13843 | FP - DNR Forest Fire Protection Assmt | $8.50 | $8.50 | $0.00 | $0.00 | $17.00 | $0.00 |
| 2023 | 13843 | FPLCA - DNR Landowner Contingency Assmt | $3.00 | $3.00 | $0.00 | $0.00 | $6.00 | $0.00 |
| 2023 | 13843 | JCCD - JC Conservation District | $2.55 | $2.55 | $0.00 | $0.00 | $5.10 | $0.00 |
| 2023 | 13843 | NWA - Noxious Weed Assessment | $2.15 | $2.15 | $0.00 | $0.00 | $4.30 | $0.00 |
| 2023 | 13843 | OSS - On Site Septic | $20.50 | $20.50 | $0.00 | $0.00 | $41.00 | $0.00 |
| 2023 | 13843 | WAT - Clean Water District | $12.00 | $12.00 | $0.00 | $0.00 | $24.00 | $0.00 |
| 2023 | 13843 | FP ADMIN - FP ADMIN | $0.50 | $0.00 | $0.00 | $0.00 | $0.50 | $0.00 |
| 2023 | 13843 | TOTAL: | $820.98 | $820.38 | $0.00 | $0.00 | $1641.36 | $0.00 |
|
| 2023 | 13843 | $820.98 | $820.38 | $0.00 | $0.00 | $1641.36 | $0.00 |
Values
| (+) Improvement Homesite Value: | + | $0 | |
| (+) Improvement Non-Homesite Value: | + | $181,111 | |
| (+) Land Homesite Value: | + | $0 | |
| (+) Land Non-Homesite Value: | + | $59,850 | |
| (+) Curr Use (HS): | + | $0 | $0 |
| (+) Curr Use (NHS): | + | $0 | $0 |
| | | -------------------------- | |
| (=) Market Value: | = | $240,961 | |
| (–) Productivity Loss: | – | $0 | |
| | | -------------------------- | |
| (=) Subtotal: | = | $240,961 | |
| (+) Senior Appraised Value: | + | $0 | |
| (+) Non-Senior Appraised Value: | + | $240,961 | |
| | | -------------------------- | |
| (=) Total Appraised Value: | = | $240,961 | |
| (–) Senior Exemption Loss: | – | $0 | |
| (–) Exemption Loss: | – | $0 | |
| | | -------------------------- | |
| (=) Taxable Value: | = | $240,961 | |
Taxing Jurisdiction
| Owner: | GRETTA H KRAMER | | |
| % Ownership: | 100.0000000000% | | |
| Total Value: | $240,961 | | |
| Tax Area: | 0441 - 1-46F4E4H2C1L1P2 |
| CE | COUNTY CURRENT EXPENSE | 0.9034619479 | $240,961 | $240,961 | $217.70 | | |
| CNTYDD | DEVELOPMENTAL DISABILITIES | 0.0052121823 | $240,961 | $240,961 | $1.26 | | |
| CNTYVET | VETERANS RELIEF | 0.0052777810 | $240,961 | $240,961 | $1.27 | | |
| MENTAL | MENTAL HEALTH | 0.0052121823 | $240,961 | $240,961 | $1.26 | | |
| ROADS | COUNTY ROADS | 0.7415066410 | $240,961 | $240,961 | $178.67 | | |
| ROADSCU | COUNTY ROADS TO CUR EXP | 0.0000000000 | $240,961 | $240,961 | $0.00 | | |
| HOSP2CASH | HOSP DIST #2 GENERAL | 0.0536075306 | $240,961 | $240,961 | $12.92 | | |
| SCH46MO | SCHOOL DIST #46 EP & O | 0.6890207067 | $240,961 | $240,961 | $166.03 | | |
| CEM1 | CEMETERY DIST #1 GENERAL | 0.0107168292 | $240,961 | $240,961 | $2.58 | | |
| CONSERVE | CONSERVATION FUTURES | 0.0275621078 | $240,961 | $240,961 | $6.64 | | |
| EMS4 | FIRE DIST #4 EMS | 0.4644216158 | $240,961 | $240,961 | $111.91 | | |
| FD4 | FIRE DIST #4 GENERAL | 1.3939598390 | $240,961 | $240,961 | $335.89 | | |
| FD4BOND | FIRE DIST #4 BOND 2019 | 0.2748466981 | $240,961 | $240,961 | $66.23 | | |
| LIB1 | LIBRARY DIST #1 GENERAL | 0.2868827388 | $240,961 | $240,961 | $69.13 | | |
| PORTPT | PORT OF PT GENERAL | 0.1134941229 | $240,961 | $240,961 | $27.35 | | |
| PORTPTIDD | PORT OF PT IDD 2019 | 0.2577346692 | $240,961 | $240,961 | $62.10 | | |
| PUD1 | PUD #1 GENERAL | 0.0597888892 | $240,961 | $240,961 | $14.41 | | |
| STATE | STATE SCHOOL PART 1 | 1.4940692947 | $240,961 | $240,961 | $360.01 | | |
| STATE2 | STATE SCHOOL PART 2 | 0.8050170049 | $240,961 | $240,961 | $193.98 | | |
| | Total Tax Rate: | 7.5917927814 | | | | | |
| | | | | Taxes w/Current Exemptions: | $1,829.34 | | |
| | | | | Taxes w/o Exemptions: | $1,829.34 | | |
Improvement / Building
| Improvement #1: | Residential Bldg | State Code: | 11 | 1096.0 sqft | Value: | $181,111 |
| Bathrooms (#): | 2 (FULL) | Bedrooms (#): | 2 | | Exterior Wall: | SI/ST | Fireplace: | WD ST-GOOD | | Floor Construction: | FRAME | Foundation: | CONPR | | Heating/Cooling: | OTHER | Roof Cover: | METAL |
|
| | Type | Description | Class CD | Sub Class CD | Year Built | Area |
| | MA | Main Area | 3+ | 2S | 1996 | 535.0 |
| | MA2 | Second Floor Main Area | 3 | 2S | 1996 | 561.0 |
| | HBAL | House Balcony | 3 | * | 1996 | 60.0 |
| | HDECK | House Deck | 3 | * | 1996 | 386.0 |
| | SHED | Shed (Table Not Dep) | 3 | * | 1996 | 500.0 |
Sketch
Property Image
Land
| 1 | 1287-1145L | | 0.0000 | 0.00 | 0.00 | 0.00 | 6.00 | $59,850 | $0 |
Roll Value History
| 2026 | N/A | N/A | N/A | N/A | N/A |
| 2025 | $181,111 | $59,850 | $0 | $240,961 | $240,961 |
| 2024 | $173,237 | $57,000 | $0 | $230,237 | $230,237 |
| 2023 | $173,237 | $52,000 | $0 | $225,237 | $225,237 |
| 2022 | $157,488 | $47,000 | $0 | $204,488 | $204,488 |
Deed and Sales History
| 1 | 10/22/2025 | SWD | Statutory Warranty Deed | BUTCH PURGANAN & KAYA ADAMS | GRETTA H KRAMER | | | $400,000.00 | 145137 | |
|   | |
| 2 | 01/04/2016 | SWD | Statutory Warranty Deed | TIMOTHY J STEINHOFF | BUTCH PURGANAN & KAYA ADAMS | | | $187,000.00 | 124718 | |
|   | |
| 3 | 01/24/2013 | SPWD | Special Warranty Deed | FEDERAL NATIONAL ASSOCIATION | TIMOTHY J STEINHOFF | | | $71,900.00 | 118723 | |
|   | |
| 4 | 05/07/2012 | SWD | Statutory Warranty Deed | JORDAN, DEBORAH | FEDERAL NATIONAL MORTGAGE ASSO | 0 | 0 | $0.00 | 117742 | 0 |
| 5 | 04/18/2005 | SWD | Statutory Warranty Deed | HEROLD, MICHAEL & BRANDY | JORDAN, DEBORAH | | | $185,000.00 | 103305 | 0 |
| 6 | 11/13/2001 | SWD | Statutory Warranty Deed | WILLIAMS, GERALD W/SANDRA | HEROLD, MICHAEL J | 0 | 0 | $0.00 | 93519 | 0 |
| 7 | 03/30/1995 | SWD | Statutory Warranty Deed | KILP, LOREN T | WILLIAMS, GERALD W/SANDRA V | 0 | 0 | $24,000.00 | 76611 | 0 |
Payout Agreement
| No payout information available.. |