Property
Account |
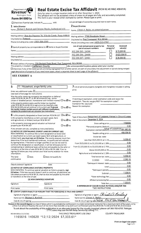
| Property ID: | 24401 | Abbreviated Legal Description: | BECKETT POINT FISHERMAN'S CLUB ASSESSOR'S PLAT HILL PARK LOT 7 INCL LEASEHOLD LAND |
| Parcel # / Geo ID: | 932200207 | Agent Code: | BPFCA_HOA |
| Type: | Real | | |
| Tax Area: | 0111 - 1-50F1E1H2L1 | Land Use Code | 91 |
| Open Space: | N | DFL | N |
| Historic Property: | N | Remodel Property: | N |
| Multi-Family Redevelopment: | N | | |
| Township: | 30N | Section: | 23 |
| Range: | 2W |
Location |
| Address: | | Mapsco: | 002/027 |
| Neighborhood: | BECKETT POINT | Map ID: | |
| Neighborhood CD: | 5580 |
Owner |
| Name: | CHRISTI BAILEY | Owner ID: | 109484 |
| Mailing Address: | 5700 HENDRICKS ST PORT TOWNSEND, WA 98368-1106 | % Ownership: | 100.0000000000% |
| | | Exemptions: | |
Pay Tax Due
Select the appropriate checkbox next to the year to be paid. Multiple years may be selected.
*Convenience Fee not included
Taxes and Assessment Details
Property Tax Information as of
02/13/2026
Click on "Statement Details" to expand or collapse a tax statement.
* Please enter a valid date ** Please enter a valid date *
Statement Details |
| 2026 | 13819 | STATE - STATE LEVY (SCHOOL) | $47.43 | $47.41 | $0.00 | $0.00 | $0.00 | $94.84 |
| 2026 | 13819 | COUNTY - COUNTY LEVIES (CE, DD, VET, MH) | $18.97 | $18.96 | $0.00 | $0.00 | $0.00 | $37.93 |
| 2026 | 13819 | CONSERVE - CONSERVATION FUTURES | $0.57 | $0.57 | $0.00 | $0.00 | $0.00 | $1.14 |
| 2026 | 13819 | COROADS - COUNTY ROADS (ROADS, DIV TO CE) | $15.30 | $15.29 | $0.00 | $0.00 | $0.00 | $30.59 |
| 2026 | 13819 | PORTPT - PORT DISTRICT | $7.66 | $7.65 | $0.00 | $0.00 | $0.00 | $15.31 |
| 2026 | 13819 | PUD1 - PUD #1 | $1.24 | $1.23 | $0.00 | $0.00 | $0.00 | $2.47 |
| 2026 | 13819 | LIB1 - LIBRARY DIST #1 | $5.92 | $5.91 | $0.00 | $0.00 | $0.00 | $11.83 |
| 2026 | 13819 | HD2 - HOSP DIST #2 | $1.11 | $1.10 | $0.00 | $0.00 | $0.00 | $2.21 |
| 2026 | 13819 | SD50 - SCHOOL DIST #50 | $37.57 | $37.56 | $0.00 | $0.00 | $0.00 | $75.13 |
| 2026 | 13819 | FD1 - FIRE DISTRICT #1 | $25.11 | $25.10 | $0.00 | $0.00 | $0.00 | $50.21 |
| 2026 | 13819 | EMS1 - FIRE DIST #1 EMS | $9.65 | $9.65 | $0.00 | $0.00 | $0.00 | $19.30 |
| 2026 | 13819 | FPLCA - DNR Landowner Contingency Assmt | $3.00 | $3.00 | $0.00 | $0.00 | $0.00 | $6.00 |
| 2026 | 13819 | JCCD - JC Conservation District | $2.53 | $2.53 | $0.00 | $0.00 | $0.00 | $5.06 |
| 2026 | 13819 | NWA - Noxious Weed Assessment | $2.98 | $2.97 | $0.00 | $0.00 | $0.00 | $5.95 |
| 2026 | 13819 | WAT - Clean Water District | $13.00 | $13.00 | $0.00 | $0.00 | $0.00 | $26.00 |
| 2026 | 13819 | TOTAL: | $192.04 | $191.93 | $0.00 | $0.00 | $0.00 | $383.97 |
|
| 2026 | 13819 | $192.04 | $191.93 | $0.00 | $0.00 | $0.00 | $383.97 |
Statement Details |
| 2025 | 13850 | STATE - STATE LEVY (SCHOOL) | $47.21 | $47.21 | $0.00 | $0.00 | $94.42 | $0.00 |
| 2025 | 13850 | COUNTY - COUNTY LEVIES (CE, DD, VET, MH) | $18.58 | $18.55 | $0.00 | $0.00 | $37.13 | $0.00 |
| 2025 | 13850 | CONSERVE - CONSERVATION FUTURES | $0.56 | $0.55 | $0.00 | $0.00 | $1.11 | $0.00 |
| 2025 | 13850 | COROADS - COUNTY ROADS (ROADS, DIV TO CE) | $14.88 | $14.87 | $0.00 | $0.00 | $29.75 | $0.00 |
| 2025 | 13850 | PORTPT - PORT DISTRICT | $7.58 | $7.57 | $0.00 | $0.00 | $15.15 | $0.00 |
| 2025 | 13850 | PUD1 - PUD #1 | $1.22 | $1.21 | $0.00 | $0.00 | $2.43 | $0.00 |
| 2025 | 13850 | LIB1 - LIBRARY DIST #1 | $5.76 | $5.75 | $0.00 | $0.00 | $11.51 | $0.00 |
| 2025 | 13850 | HD2 - HOSP DIST #2 | $1.09 | $1.08 | $0.00 | $0.00 | $2.17 | $0.00 |
| 2025 | 13850 | SD50 - SCHOOL DIST #50 | $34.51 | $34.50 | $0.00 | $0.00 | $69.01 | $0.00 |
| 2025 | 13850 | FD1 - FIRE DISTRICT #1 | $24.50 | $24.50 | $0.00 | $0.00 | $49.00 | $0.00 |
| 2025 | 13850 | EMS1 - FIRE DIST #1 EMS | $9.43 | $9.42 | $0.00 | $0.00 | $18.85 | $0.00 |
| 2025 | 13850 | FPLCA - DNR Landowner Contingency Assmt | $3.00 | $3.00 | $0.00 | $0.00 | $6.00 | $0.00 |
| 2025 | 13850 | JCCD - JC Conservation District | $2.53 | $2.53 | $0.00 | $0.00 | $5.06 | $0.00 |
| 2025 | 13850 | NWA - Noxious Weed Assessment | $2.15 | $2.15 | $0.00 | $0.00 | $4.30 | $0.00 |
| 2025 | 13850 | WAT - Clean Water District | $13.00 | $13.00 | $0.00 | $0.00 | $26.00 | $0.00 |
| 2025 | 13850 | TOTAL: | $186.00 | $185.89 | $0.00 | $0.00 | $371.89 | $0.00 |
|
| 2025 | 13850 | $186.00 | $185.89 | $0.00 | $0.00 | $371.89 | $0.00 |
Statement Details |
| 2024 | 13879 | STATE - STATE LEVY (SCHOOL) | $40.49 | $40.48 | $0.00 | $0.00 | $80.97 | $0.00 |
| 2024 | 13879 | COUNTY - COUNTY LEVIES (CE, DD, VET, MH) | $17.33 | $17.33 | $0.00 | $0.00 | $34.66 | $0.00 |
| 2024 | 13879 | CONSERVE - CONSERVATION FUTURES | $0.52 | $0.52 | $0.00 | $0.00 | $1.04 | $0.00 |
| 2024 | 13879 | COROADS - COUNTY ROADS (ROADS, DIV TO CE) | $13.94 | $13.94 | $0.00 | $0.00 | $27.88 | $0.00 |
| 2024 | 13879 | PORTPT - PORT DISTRICT | $7.16 | $7.15 | $0.00 | $0.00 | $14.31 | $0.00 |
| 2024 | 13879 | PUD1 - PUD #1 | $1.14 | $1.14 | $0.00 | $0.00 | $2.28 | $0.00 |
| 2024 | 13879 | LIB1 - LIBRARY DIST #1 | $5.40 | $5.39 | $0.00 | $0.00 | $10.79 | $0.00 |
| 2024 | 13879 | HD2 - HOSP DIST #2 | $1.01 | $1.01 | $0.00 | $0.00 | $2.02 | $0.00 |
| 2024 | 13879 | SD50 - SCHOOL DIST #50 | $32.76 | $32.75 | $0.00 | $0.00 | $65.51 | $0.00 |
| 2024 | 13879 | FD1 - FIRE DISTRICT #1 | $22.91 | $22.91 | $0.00 | $0.00 | $45.82 | $0.00 |
| 2024 | 13879 | EMS1 - FIRE DIST #1 EMS | $8.75 | $8.75 | $0.00 | $0.00 | $17.50 | $0.00 |
| 2024 | 13879 | FPLCA - DNR Landowner Contingency Assmt | $3.00 | $3.00 | $0.00 | $0.00 | $6.00 | $0.00 |
| 2024 | 13879 | JCCD - JC Conservation District | $2.53 | $2.53 | $0.00 | $0.00 | $5.06 | $0.00 |
| 2024 | 13879 | NWA - Noxious Weed Assessment | $2.15 | $2.15 | $0.00 | $0.00 | $4.30 | $0.00 |
| 2024 | 13879 | WAT - Clean Water District | $12.50 | $12.50 | $0.00 | $0.00 | $25.00 | $0.00 |
| 2024 | 13879 | TOTAL: | $171.59 | $171.55 | $0.00 | $0.00 | $343.14 | $0.00 |
|
| 2024 | 13879 | $171.59 | $171.55 | $0.00 | $0.00 | $343.14 | $0.00 |
Statement Details |
| 2023 | 13902 | STATE - STATE LEVY (SCHOOL) | $41.20 | $41.19 | $0.00 | $0.00 | $82.39 | $0.00 |
| 2023 | 13902 | COUNTY - COUNTY LEVIES (CE, DD, VET, MH) | $17.98 | $17.97 | $0.00 | $0.00 | $35.95 | $0.00 |
| 2023 | 13902 | CONSERVE - CONSERVATION FUTURES | $0.54 | $0.54 | $0.00 | $0.00 | $1.08 | $0.00 |
| 2023 | 13902 | COROADS - COUNTY ROADS (ROADS, DIV TO CE) | $14.55 | $14.54 | $0.00 | $0.00 | $29.09 | $0.00 |
| 2023 | 13902 | PORTPT - PORT DISTRICT | $7.58 | $7.57 | $0.00 | $0.00 | $15.15 | $0.00 |
| 2023 | 13902 | PUD1 - PUD #1 | $1.19 | $1.19 | $0.00 | $0.00 | $2.38 | $0.00 |
| 2023 | 13902 | LIB1 - LIBRARY DIST #1 | $5.63 | $5.62 | $0.00 | $0.00 | $11.25 | $0.00 |
| 2023 | 13902 | HD2 - HOSP DIST #2 | $1.06 | $1.04 | $0.00 | $0.00 | $2.10 | $0.00 |
| 2023 | 13902 | SD50 - SCHOOL DIST #50 | $32.70 | $32.68 | $0.00 | $0.00 | $65.38 | $0.00 |
| 2023 | 13902 | FD1 - FIRE DISTRICT #1 | $14.81 | $14.81 | $0.00 | $0.00 | $29.62 | $0.00 |
| 2023 | 13902 | EMS1 - FIRE DIST #1 EMS | $6.30 | $6.30 | $0.00 | $0.00 | $12.60 | $0.00 |
| 2023 | 13902 | FPLCA - DNR Landowner Contingency Assmt | $3.00 | $3.00 | $0.00 | $0.00 | $6.00 | $0.00 |
| 2023 | 13902 | JCCD - JC Conservation District | $2.53 | $2.53 | $0.00 | $0.00 | $5.06 | $0.00 |
| 2023 | 13902 | NWA - Noxious Weed Assessment | $2.15 | $2.15 | $0.00 | $0.00 | $4.30 | $0.00 |
| 2023 | 13902 | WAT - Clean Water District | $12.00 | $12.00 | $0.00 | $0.00 | $24.00 | $0.00 |
| 2023 | 13902 | TOTAL: | $163.22 | $163.13 | $0.00 | $0.00 | $326.35 | $0.00 |
|
| 2023 | 13902 | $163.22 | $163.13 | $0.00 | $0.00 | $326.35 | $0.00 |
Values
| (+) Improvement Homesite Value: | + | $0 | |
| (+) Improvement Non-Homesite Value: | + | $0 | |
| (+) Land Homesite Value: | + | $0 | |
| (+) Land Non-Homesite Value: | + | $41,250 | |
| (+) Curr Use (HS): | + | $0 | $0 |
| (+) Curr Use (NHS): | + | $0 | $0 |
| | | -------------------------- | |
| (=) Market Value: | = | $41,250 | |
| (–) Productivity Loss: | – | $0 | |
| | | -------------------------- | |
| (=) Subtotal: | = | $41,250 | |
| (+) Senior Appraised Value: | + | $0 | |
| (+) Non-Senior Appraised Value: | + | $41,250 | |
| | | -------------------------- | |
| (=) Total Appraised Value: | = | $41,250 | |
| (–) Senior Exemption Loss: | – | $0 | |
| (–) Exemption Loss: | – | $0 | |
| | | -------------------------- | |
| (=) Taxable Value: | = | $41,250 | |
Taxing Jurisdiction
| Owner: | CHRISTI BAILEY | | |
| % Ownership: | 100.0000000000% | | |
| Total Value: | N/A | | |
| Tax Area: | 0111 - 1-50F1E1H2L1 |
| CE | COUNTY CURRENT EXPENSE | N/A | N/A | N/A | N/A | | |
| CNTYDD | DEVELOPMENTAL DISABILITIES | N/A | N/A | N/A | N/A | | |
| CNTYVET | VETERANS RELIEF | N/A | N/A | N/A | N/A | | |
| MENTAL | MENTAL HEALTH | N/A | N/A | N/A | N/A | | |
| ROADS | COUNTY ROADS | N/A | N/A | N/A | N/A | | |
| HOSP2CASH | HOSP DIST #2 GENERAL | N/A | N/A | N/A | N/A | | |
| SCH50BOND | SCHOOL DIST #50 BOND 2016 | N/A | N/A | N/A | N/A | | |
| SCH50CP | SCHOOL DIST #50 CAP PROJ | N/A | N/A | N/A | N/A | | |
| SCH50MO | SCHOOL DIST #50 EP & O | N/A | N/A | N/A | N/A | | |
| CONSERVE | CONSERVATION FUTURES | N/A | N/A | N/A | N/A | | |
| EMS1 | FIRE DIST #1 EMS | N/A | N/A | N/A | N/A | | |
| FD1 | FIRE DIST #1 GENERAL | N/A | N/A | N/A | N/A | | |
| LIB1 | LIBRARY DIST #1 GENERAL | N/A | N/A | N/A | N/A | | |
| PORTPT | PORT OF PT GENERAL | N/A | N/A | N/A | N/A | | |
| PORTPTIDD | PORT OF PT IDD 2019 | N/A | N/A | N/A | N/A | | |
| PUD1 | PUD #1 GENERAL | N/A | N/A | N/A | N/A | | |
| STATE | STATE SCHOOL PART 1 | N/A | N/A | N/A | N/A | | |
| STATE2 | STATE SCHOOL PART 2 | N/A | N/A | N/A | N/A | | |
| | Total Tax Rate: | N/A | | | | | |
| | | | | Taxes w/Current Exemptions: | N/A | | |
| | | | | Taxes w/o Exemptions: | N/A | | |
Improvement / Building
Sketch
| No sketches available for this property. |
Property Image
Land
| 1 | 5580-1145L | | 0.0000 | 0.00 | 0.00 | 0.00 | 1.00 | $41,250 | $0 |
Roll Value History
| 2026 | N/A | N/A | N/A | N/A | N/A |
| 2025 | $0 | $41,250 | $0 | $41,250 | $41,250 |
| 2024 | $0 | $39,375 | $0 | $39,375 | $39,375 |
| 2023 | $0 | $35,000 | $0 | $35,000 | $35,000 |
| 2022 | $0 | $35,000 | $0 | $35,000 | $35,000 |
Deed and Sales History
| 1 | 12/09/2024 | LEASE | Lease or Assignment of Lease | | CHRISTI BAILEY | | | $1,150,000.00 | 143620 | |
|   | |
Payout Agreement
| No payout information available.. |